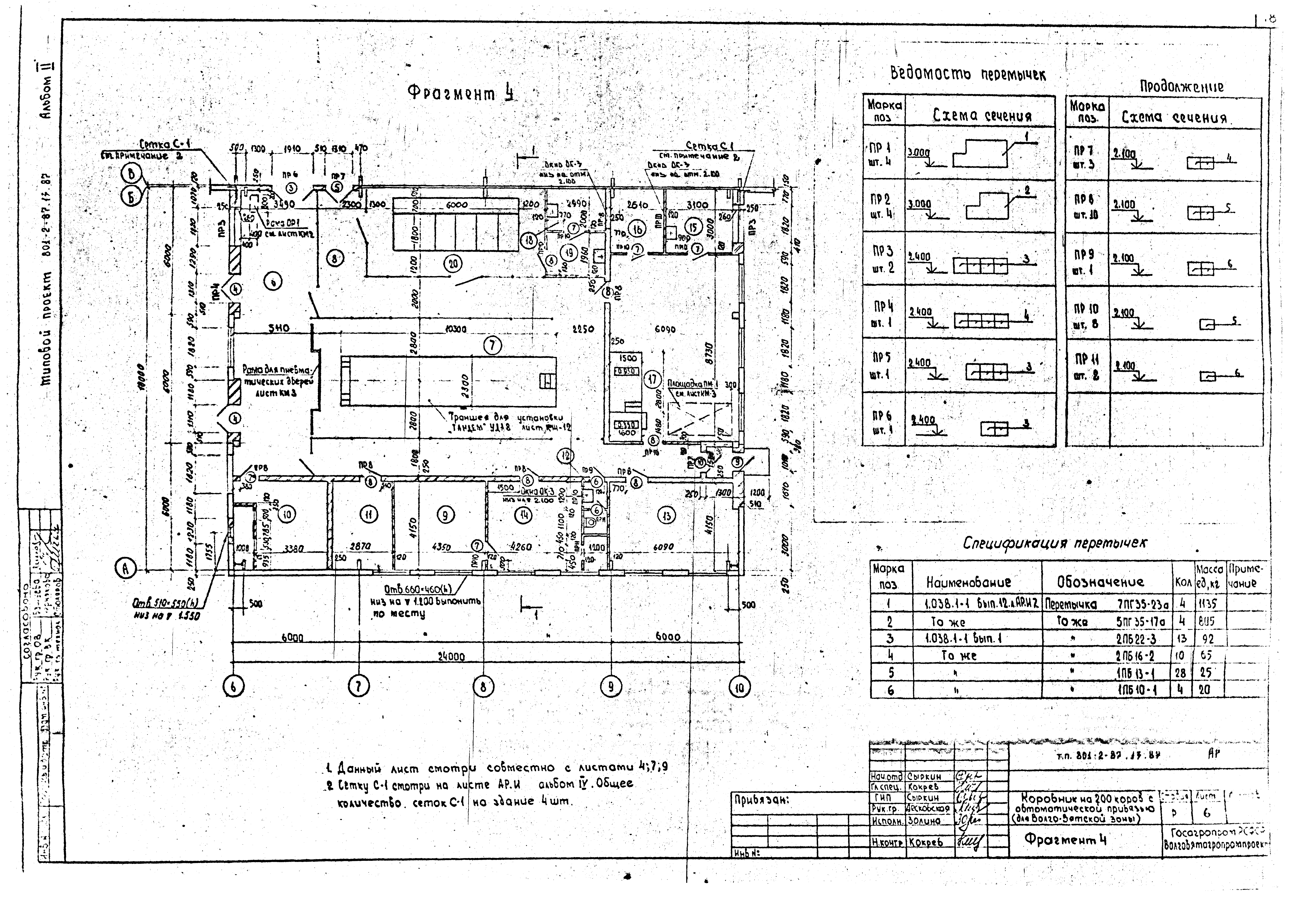
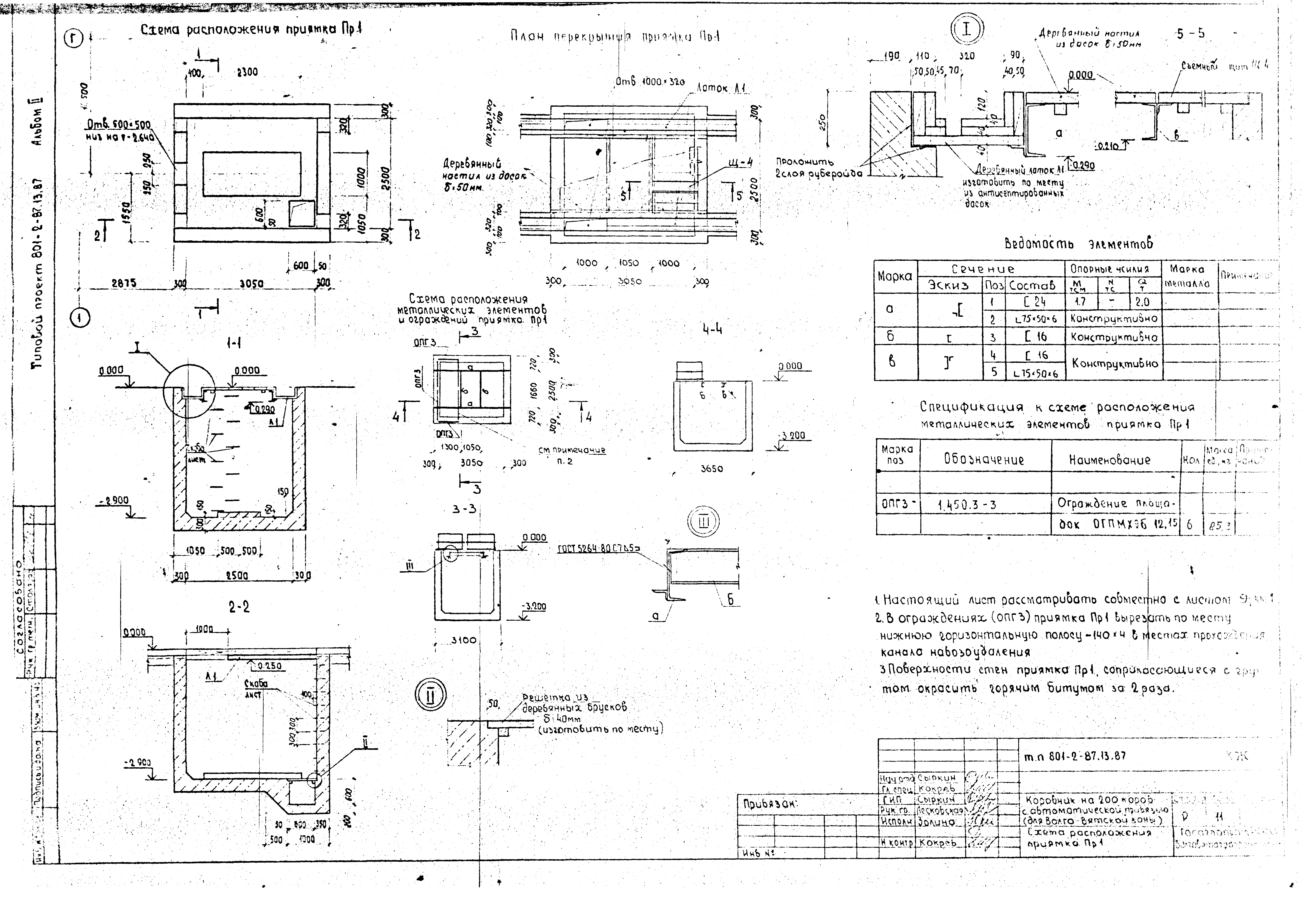
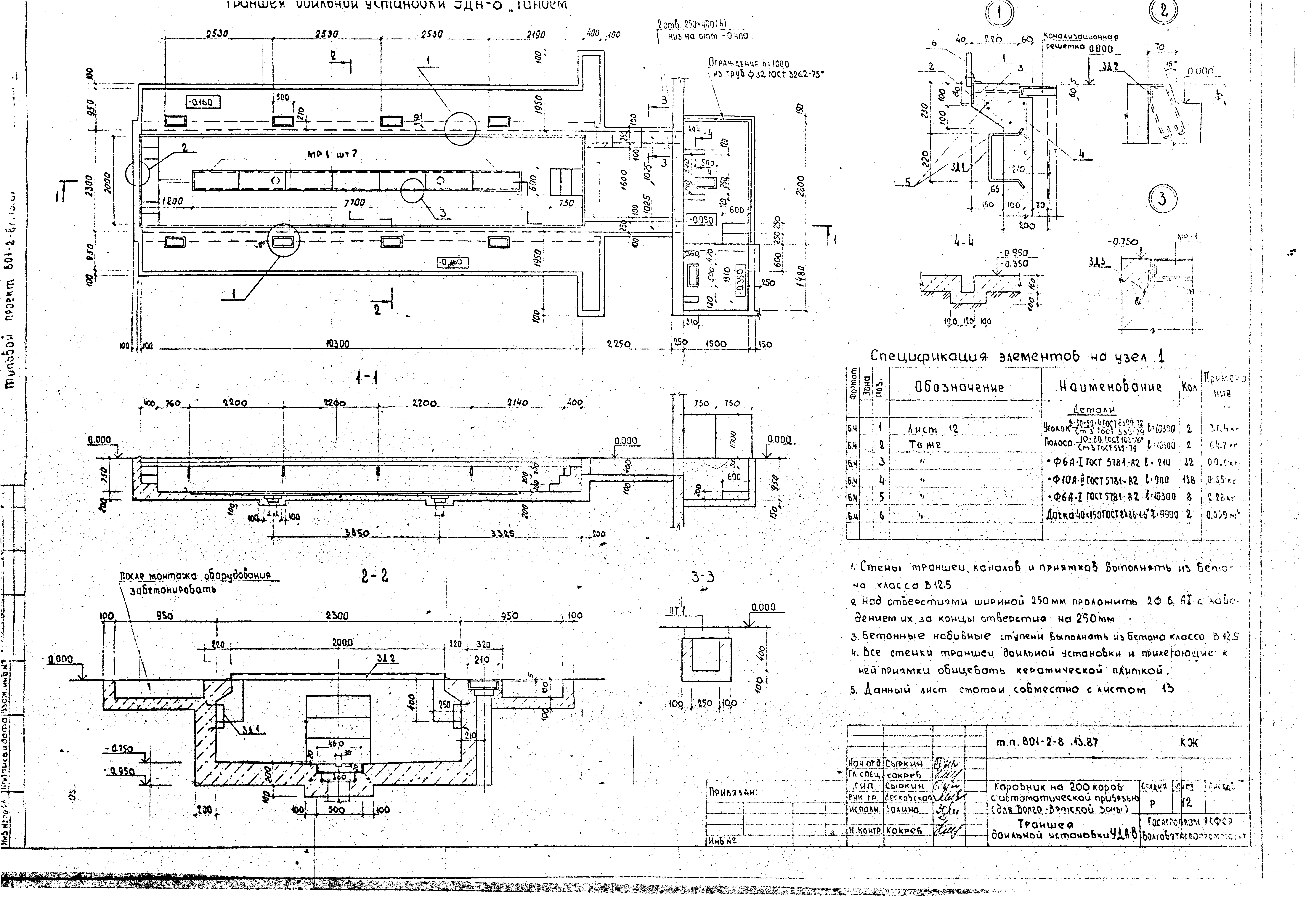
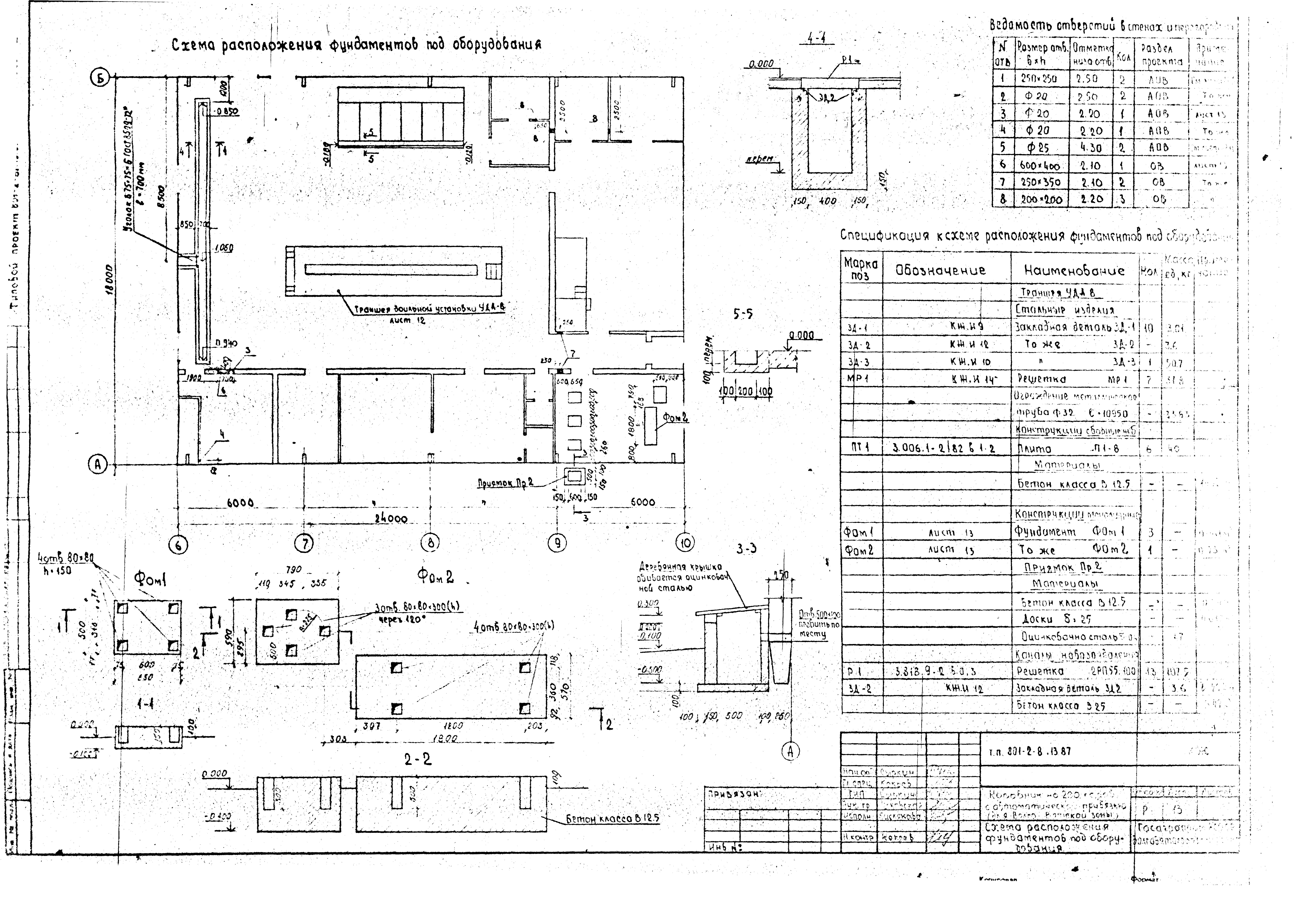
Скачать Типовой проект 801-2-87.13.87 Альбом II. Архитектурно-строительные решения. Конструкции железобетонныеДата актуализации: 01.01.2021
|
| Обозначение: | Типовой проект 801-2-87.13.87 |
| Обозначение англ: | 801-2-87.13.87 |
| Статус: | не определен законодательством |
| Название рус.: | Альбом II. Архитектурно-строительные решения. Конструкции железобетонные |
| Дата добавления в базу: | 01.09.2013 |
| Дата актуализации: | 01.01.2021 |
| Дата введения: | 18.05.1987 |
| Дата окончания срока действия: | 30.06.2003 |
| Разработан: | ВИЭСХ Институт Волговятагропромпроект |
| Утверждён: | 18.05.1987 Госагропром РСФСР (Russian Federation Gosagroprom 41-В) |











































