Скачать Серия 1.400-10/76 Выпуск 3. Узлы тормозных конструкций, фахверка и вертикальных связей по колоннам. Чертежи КМДата актуализации: 01.01.2021
|
| Обозначение: | Серия 1.400-10/76 |
| Обозначение англ: | Series 1.400-10/76 |
| Статус: | не действует |
| Название рус.: | Выпуск 3. Узлы тормозных конструкций, фахверка и вертикальных связей по колоннам. Чертежи КМ |
| Дата добавления в базу: | 01.09.2013 |
| Дата актуализации: | 01.01.2021 |
| Дата окончания срока действия: | 01.07.1984 |
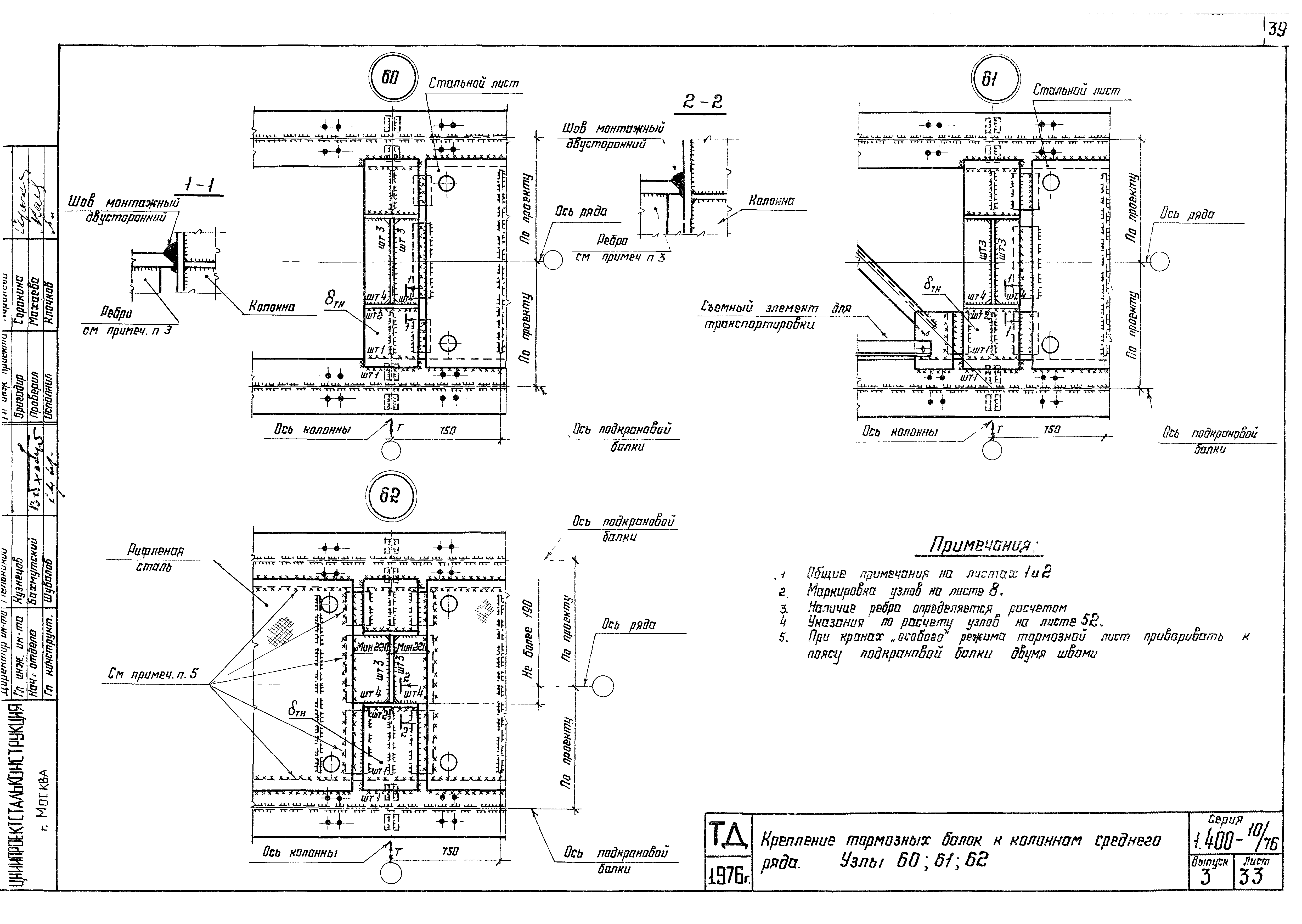
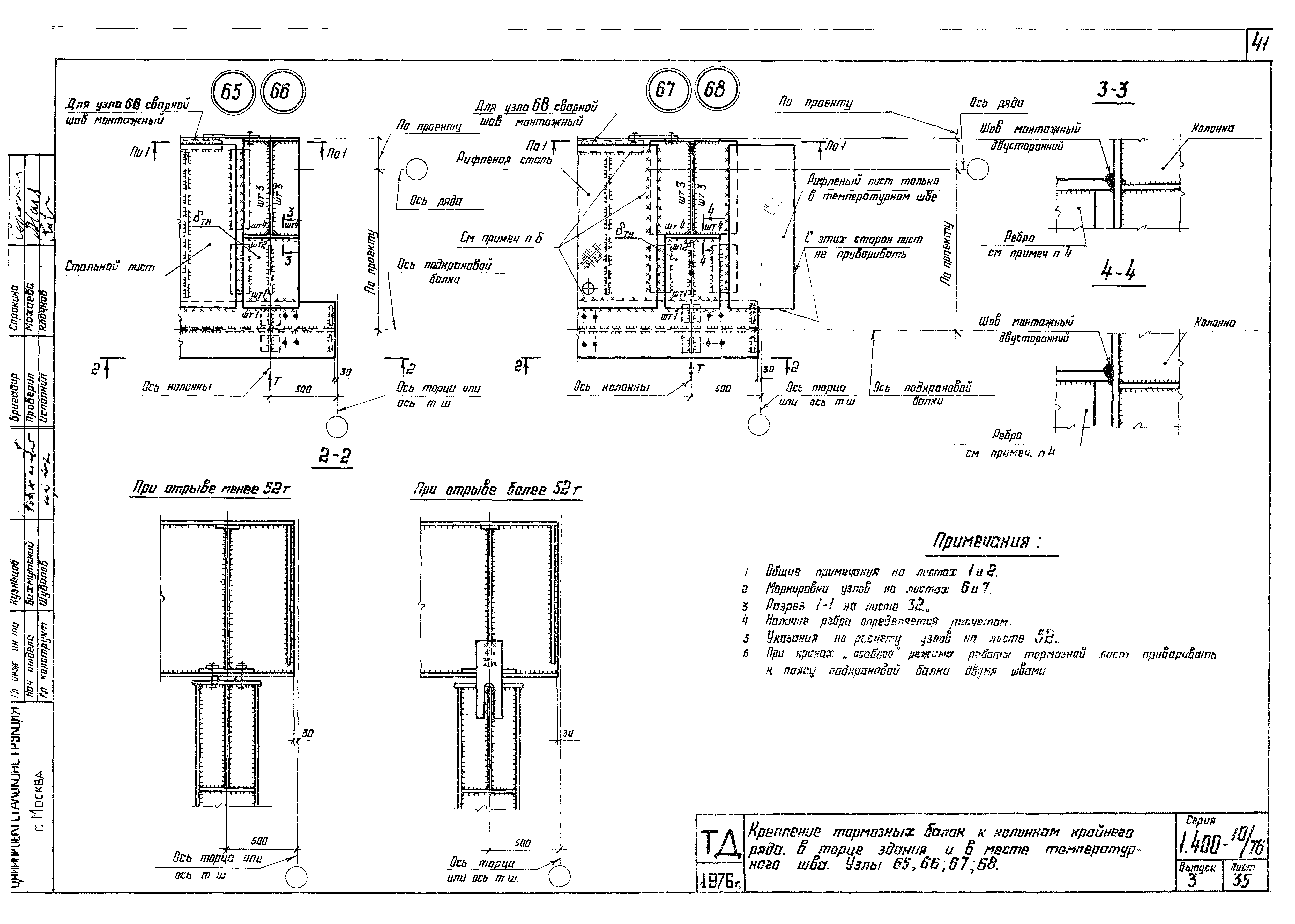
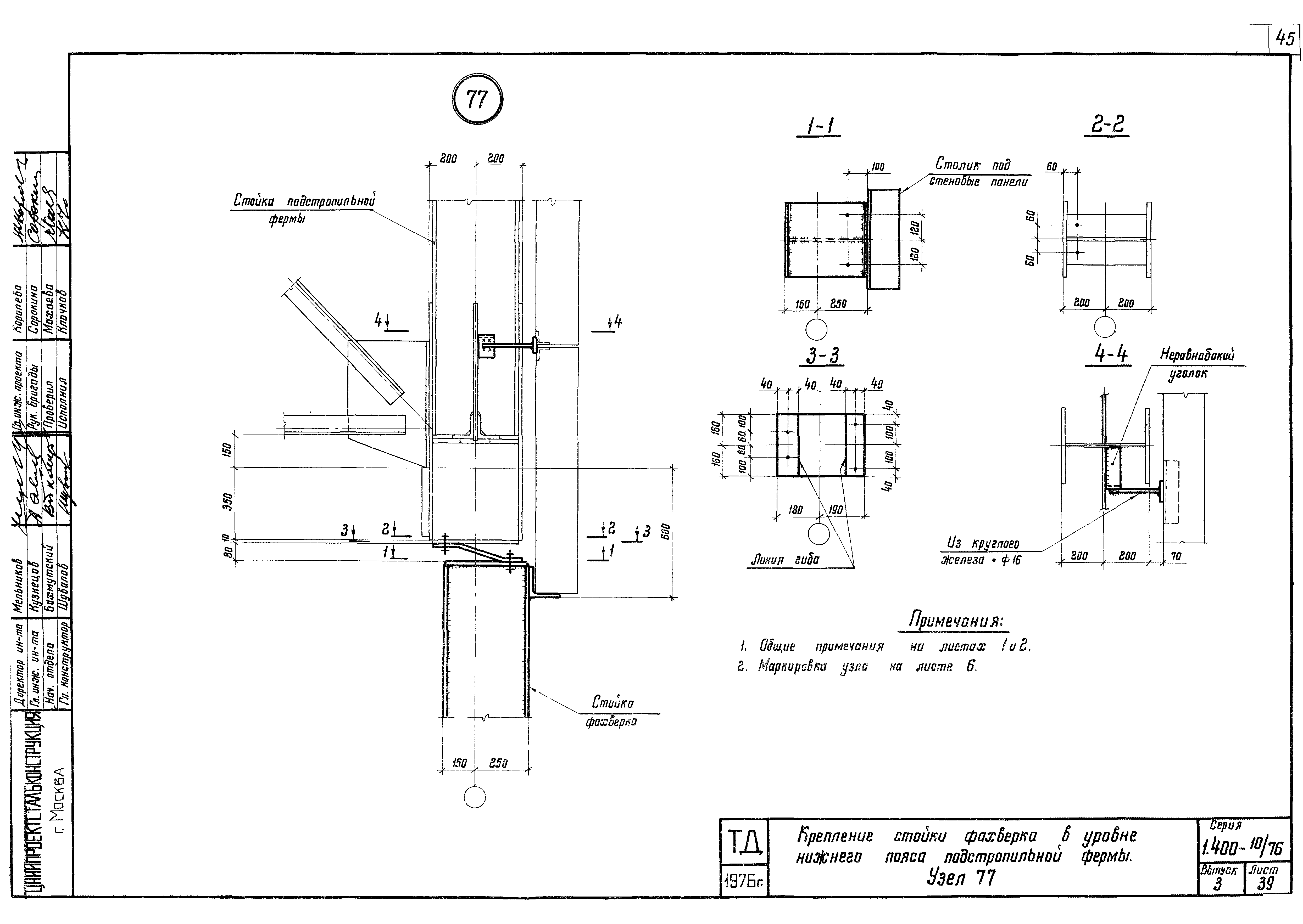
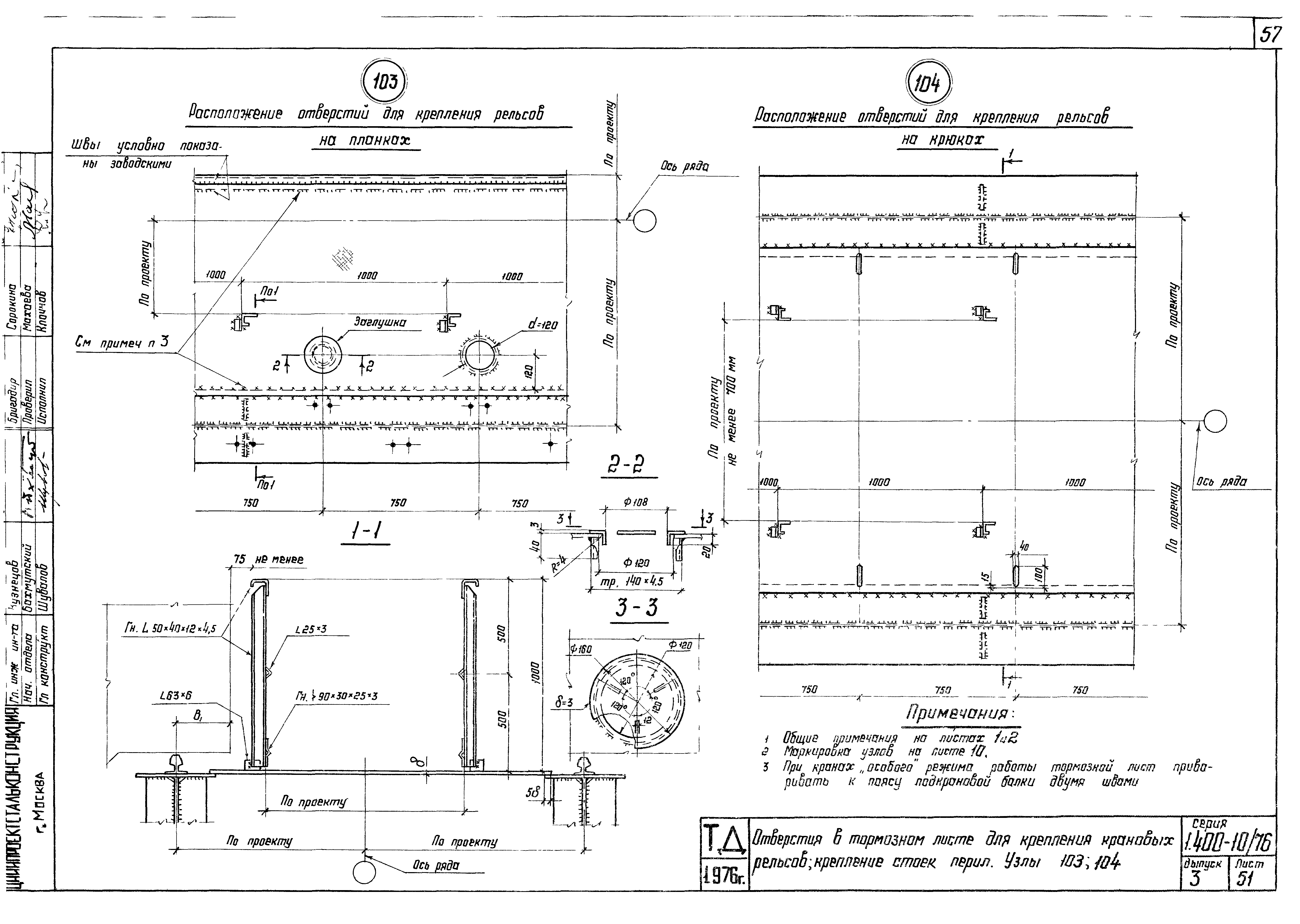
| Оглавление: | Пояснительная записка Общие примечания I. Схемы с маркировкой узлов вертикальных связей Маркировка узлов крепления связей по крайним и средним рядам колонн постоянного сечения Маркировка узлов крепления связей по крайним рядам ступенчатых колонн Маркировка узлов крепления связей по средним рядам ступенчатых колонн II. Схемы с маркировкой узлов тормозных устройств подкрановых балок Маркировка узлов крепления тормозных балок и узлов крепления связевых панелей в уровне верхних поясов подкрановых балок по крайним рядам колонн Маркировка узлов крепления тормозных ферм и узлов крепления связевых панелей в уровне верхних поясов подкрановых балок по крайним рядам колонн Маркировка узлов крепления тормозных ферм балок и узлов крепления связевых панелей в уровне верхних поясов подкрановых балок по средним рядам колонн Маркировка узлов связей по нижним поясам подкрановых балок и вспомогательных ферм Маркировка узлов проемов и технологических отверстий в тормозных устройствах по крайним и средним рядам колонн III. Узлы вертикальных связей по стальным колоннам Вертикальные связи по колоннам. Узлы 1; 2; 3; 4; 5 Вертикальные связи по колоннам. Узлы 6; 7; 8; 9; 10 Вертикальные связи по колоннам. Узлы 11; 12; 13; 14; 15 Вертикальные связи по колоннам. Узлы 16; 17; 18 Вертикальные связи по колоннам. Узлы 19; 20 Вертикальные связи по колоннам. Узлы 21; 22 Вертикальные связи по колоннам. Узлы 23; 24 Вертикальные связи по колоннам. Узлы 25; 26 Вертикальные связи по колоннам. Узлы 27; 28 Вертикальные связи по колоннам. Узлы 29; 30 Вертикальные связи по колоннам. Узлы 31; 32; 33 Вертикальные связи по колоннам. Узел 34 Вертикальные связи по колоннам. Узел 35 Вертикальные связи по колоннам. Узел 36 Вертикальные связи по колоннам. Узлы 37; 38 Вертикальные связи по колоннам. Узлы 39; 40; 41; 42 Вертикальные связи по колоннам. Узлы 43; 44 Вертикальные связи по колоннам. Узлы 45; 46 Вертикальные связи по колоннам. Узлы 47; 48; 49 Вертикальные связи по колоннам. Узел 50 IV. Узлы крепления тормозных устройств неразрезных подкрановых балок к стальным колоннам Крепление тормозных балок к колоннам крайнего ряда. Узлы 51; 52; 53; 54; 55 Крепление тормозных балок к колоннам крайнего ряда. Узлы 56; 57; 58; 59 Крепление тормозных балок к колоннам среднего ряда. Узлы 60; 61; 62 Крепление тормозных балок к колоннам среднего ряда с проходом в стенке колонны. Узлы 63; 64 Крепление тормозных балок к колоннам крайнего ряда в торце здания и в месте температурного шва. Узлы 65; 66; 67; 68 Крепление тормозных балок к колоннам крайнего ряда с проходом в стенке колонн в торце здания и в месте температурного шва. Узлы 69; 70; 71; 72 Крепление тормозных балок к колоннам среднего ряда в торце здания и в месте температурного шва. Узлы 73; 74 Крепление тормозных балок к колоннам среднего ряда с проходом в стенке колонны в торце здания и в месте температурного шва. Узлы 75; 76 V. Промежуточные узлы тормозных устройств Крепление стойки фахверка в уровне нижнего пояса подстропильной фермы. Узел 77 Крепление тормозных устройств к стойкам фахверка и промежуточные узлы. Узлы 78; 79 Крепление тормозных устройств к стойкам фахверка и промежуточные узлы. Узлы 80; 81 Крепление тормозных устройств к стойкам фахверка. Узлы 82; 83 Промежуточные узлы тормозных устройств. Узлы 84; 85; 86; 87 VI Узлы горизонтальных связей Горизонтальные связи по нижним поясам подкрановых балок и вспомогательная ферма. Узлы 88; 89; 90; 91; 92 Горизонтальные связи по нижним поясам подкрановых балок и вспомогательная ферма. Узлы 93; 94; 95; 96 VII. Узлы проемов в тормозных устройствах Технологические проемы в тормозных фермах крайнего и среднего рядов. Узлы 97; 98 Выход на подкрановые пути крайнего ряда. Тормозное устройство - балка. Узел 99 Выход на подкрановые пути среднего ряда. Тормозное устройство - балка. Узел 100 Крышка люка Технологические отверстия в тормозных балках. Узлы 101; 102 Отверстия в тормозном листе для крепления крановых рельсов. Крепление стоек перил. Узлы 103; 104 Расчет крепления неразрезных подкрановых балок к стальным колоннам в горизонтальной плоскости Расчет крепления разрезных подкрановых балок к стальным колоннам в горизонтальной плоскости |
| Разработан: | ЦНИИпроектстальконструкция |
| Утверждён: | 17.03.1977 Госстрой СССР (Государственный комитет Совета Министров СССР по делам строительства) (USSR Gosstroy 21) |
| Чем заменён: |


























































