Скачать Типовой проект 407-3-653.01 Альбом I. Пояснительная записка. Архитектурно-строительные решения. Строительные изделия. Отопление и вентиляцияДата актуализации: 01.01.2021
|
| Обозначение: | Типовой проект 407-3-653.01 |
| Обозначение англ: | 407-3-653.01 |
| Статус: | не определен законодательством |
| Название рус.: | Альбом I. Пояснительная записка. Архитектурно-строительные решения. Строительные изделия. Отопление и вентиляция |
| Дата добавления в базу: | 01.09.2013 |
| Дата актуализации: | 01.01.2021 |
| Дата введения: | 01.11.2002 |
| Дата окончания срока действия: | 30.06.2003 |
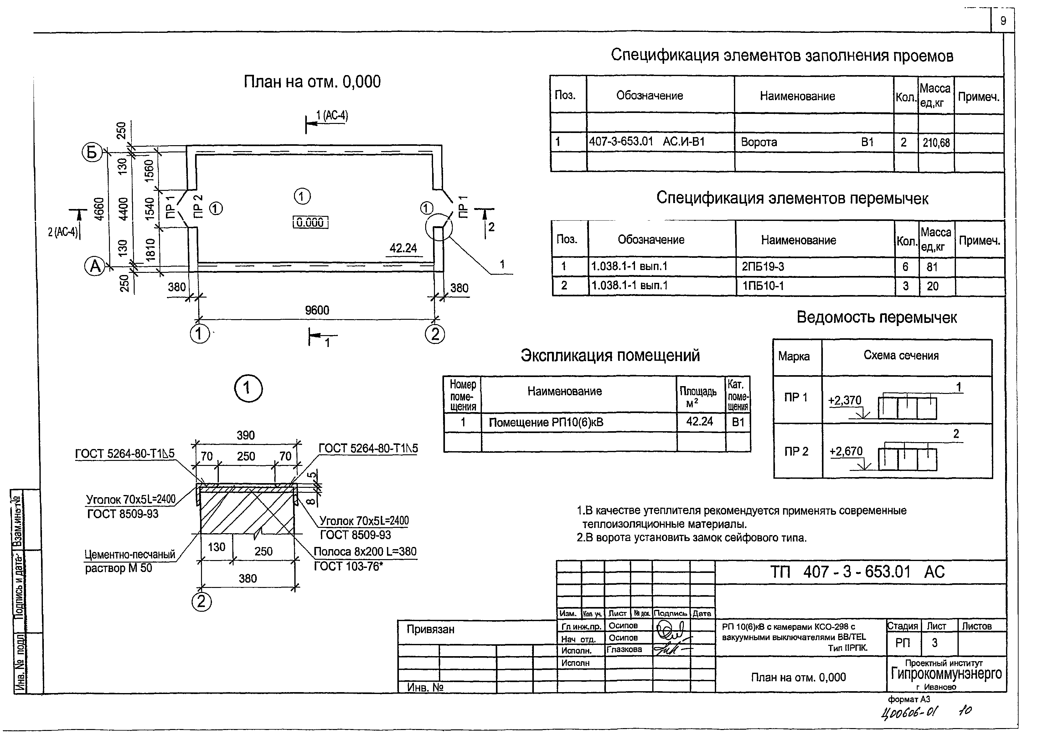
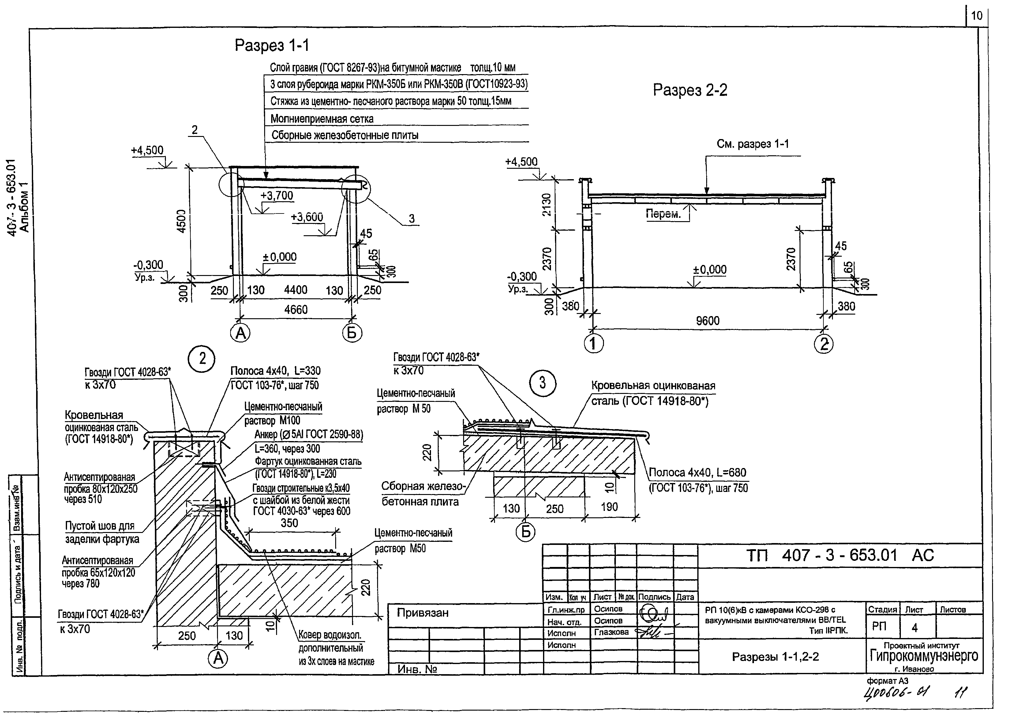
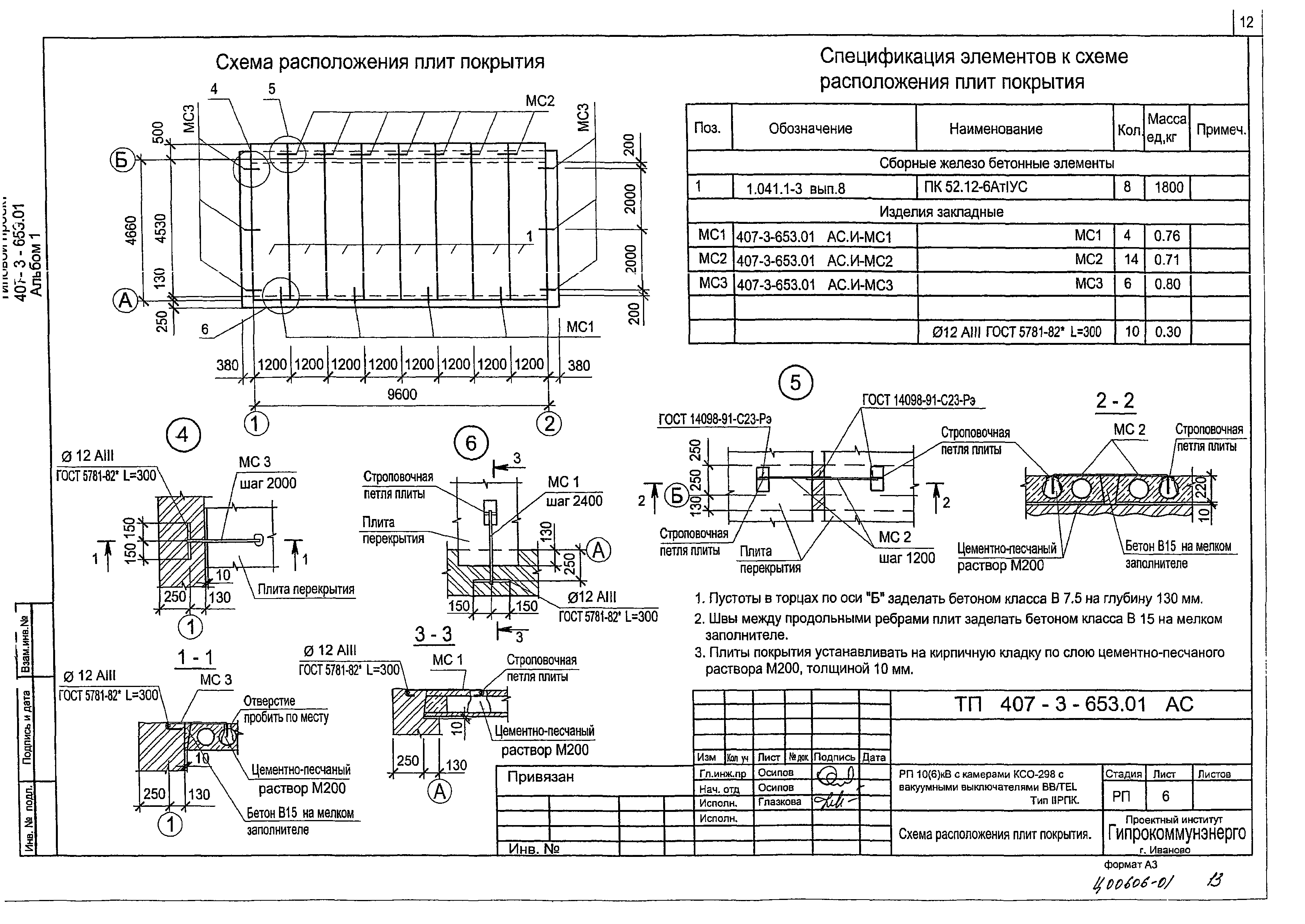
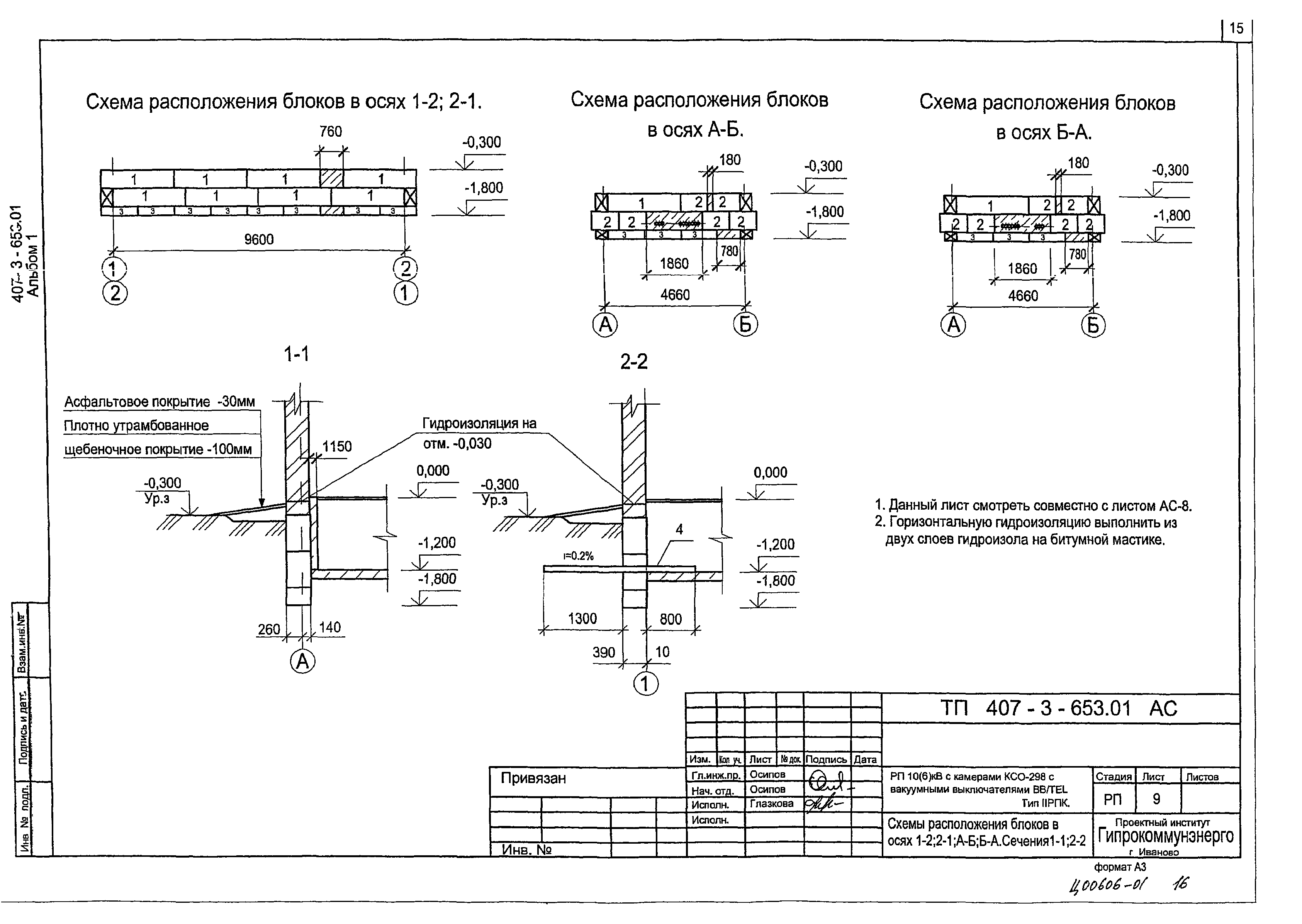
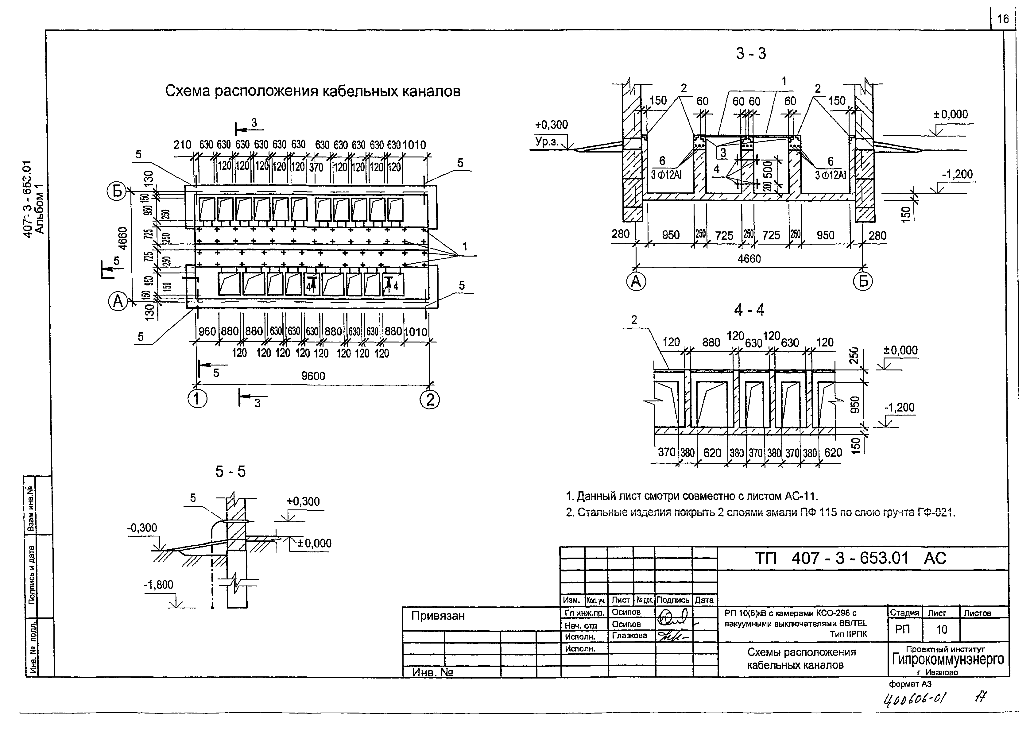
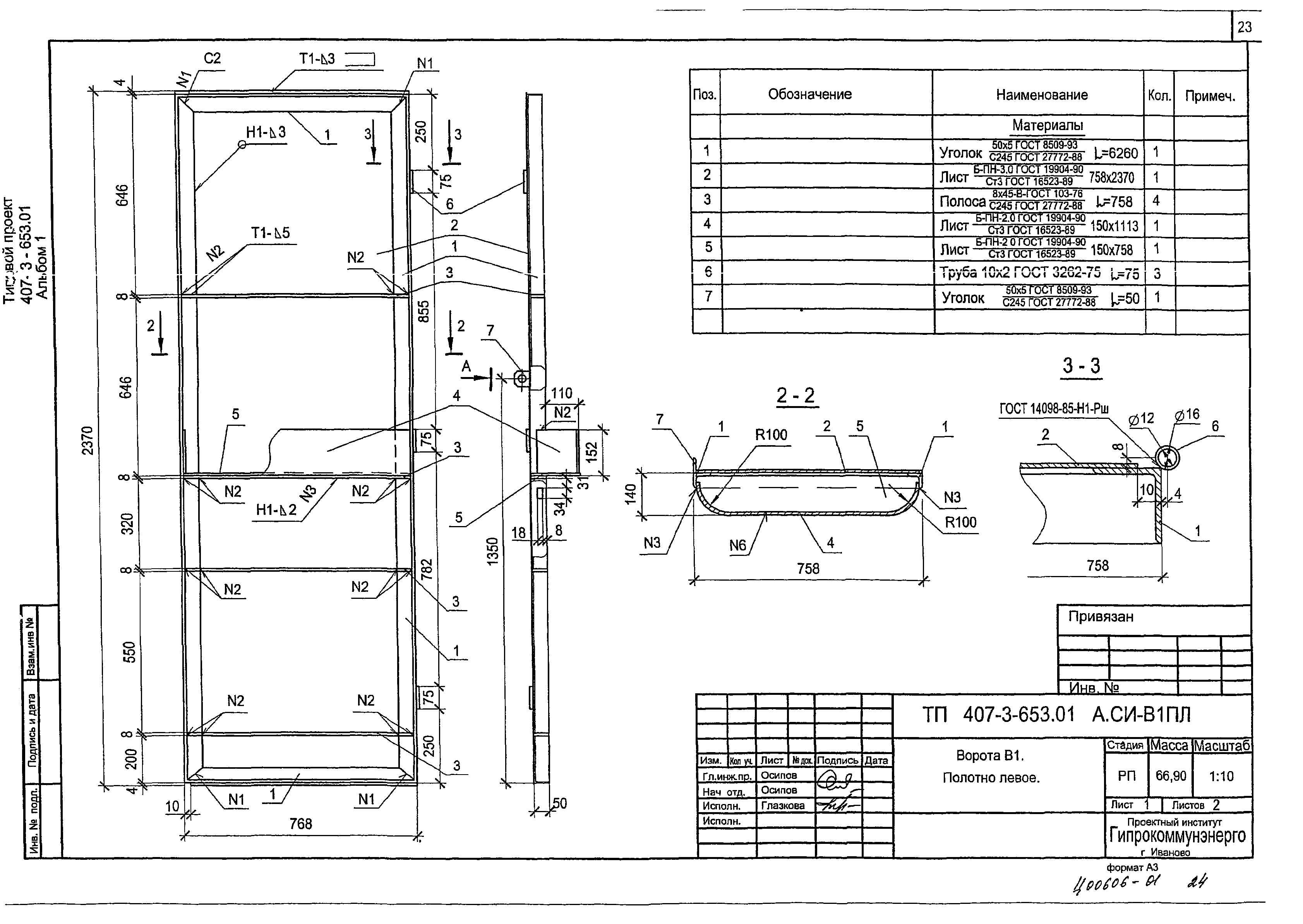
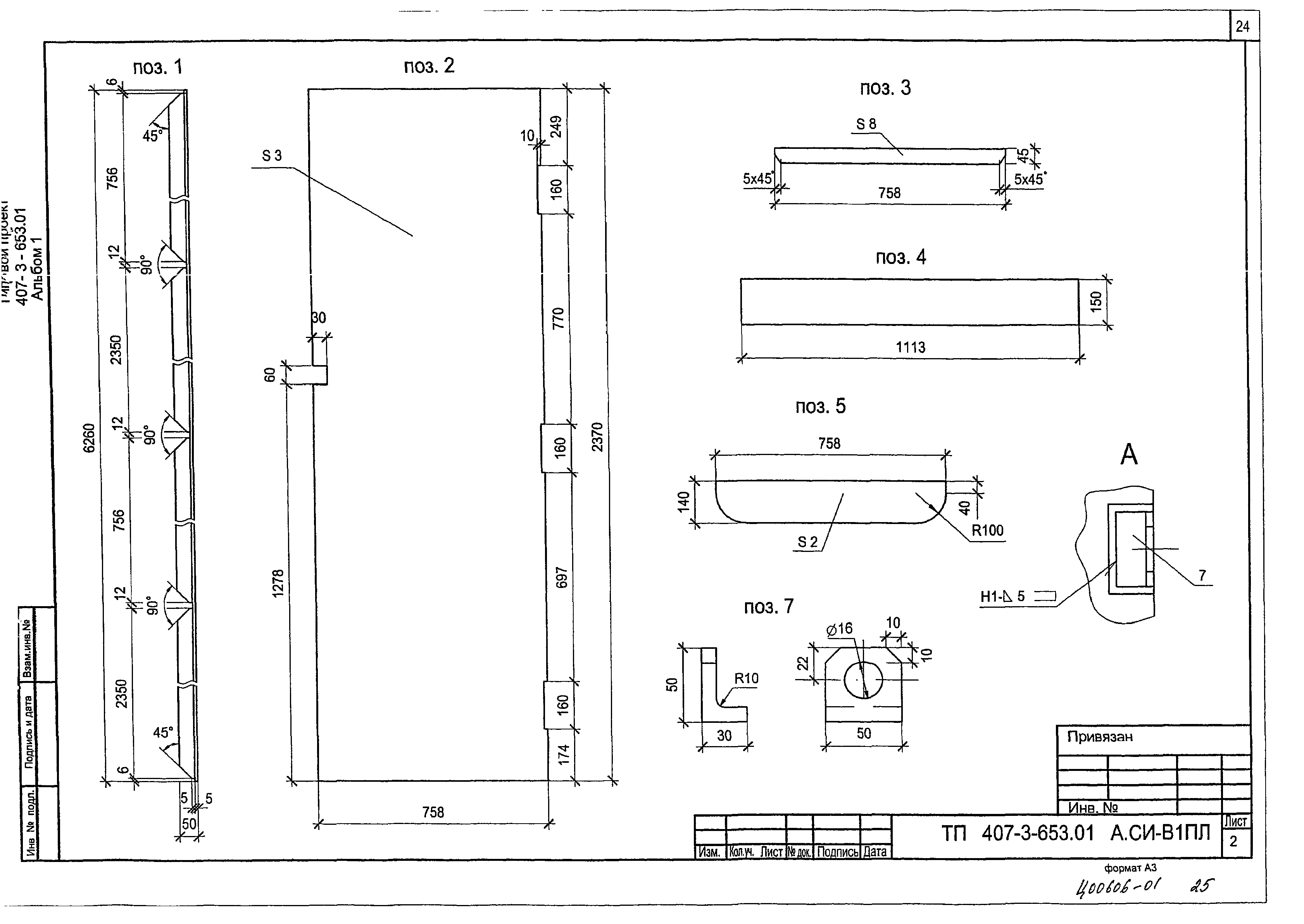
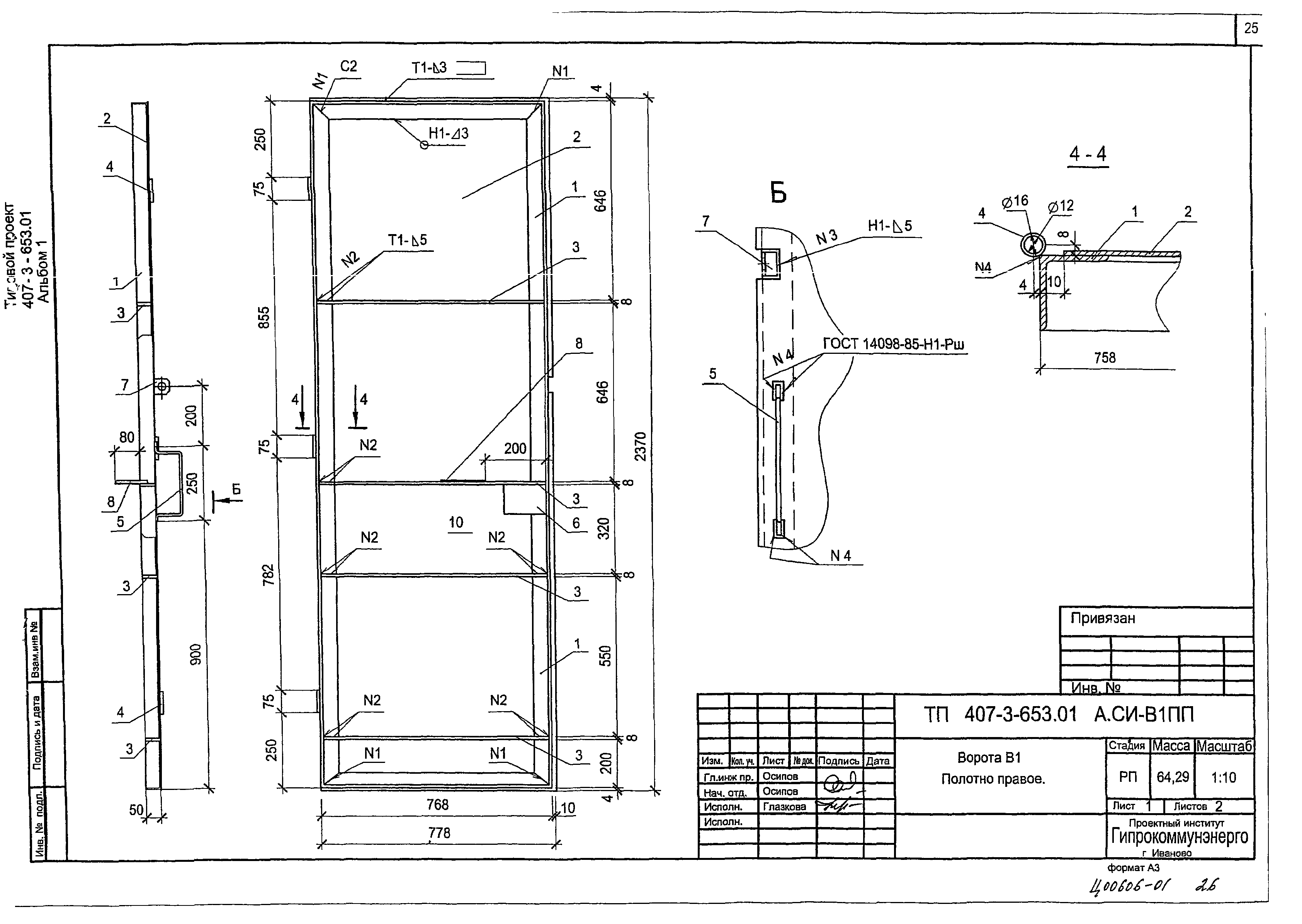
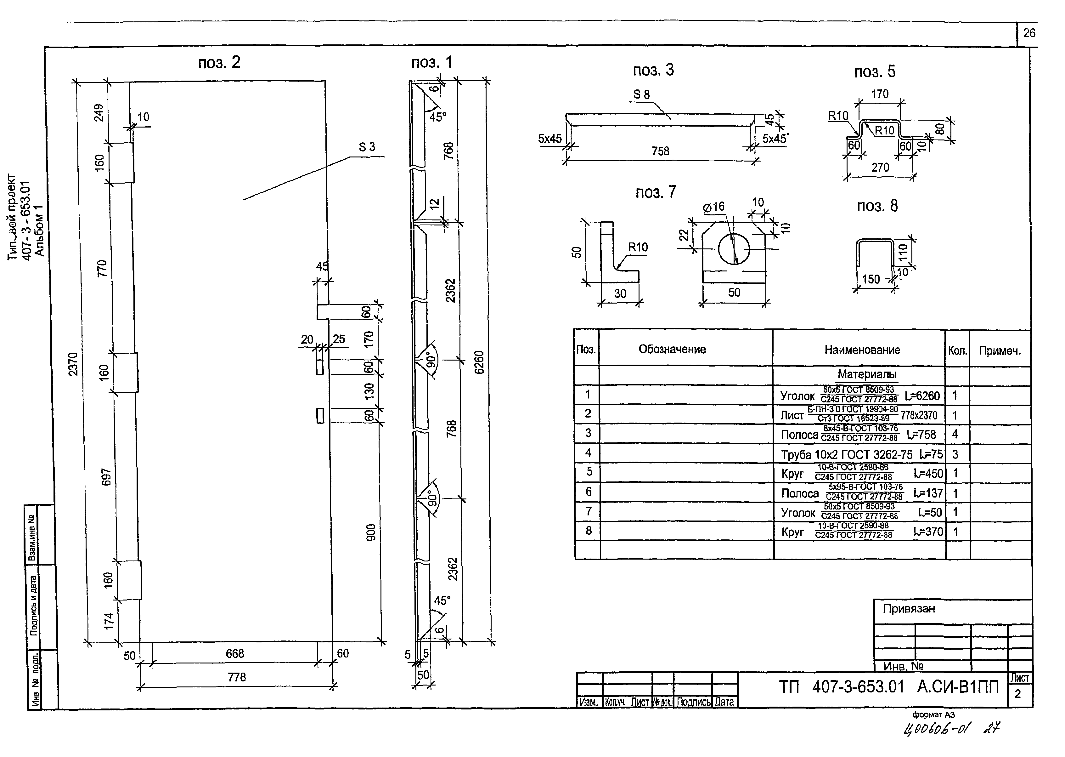
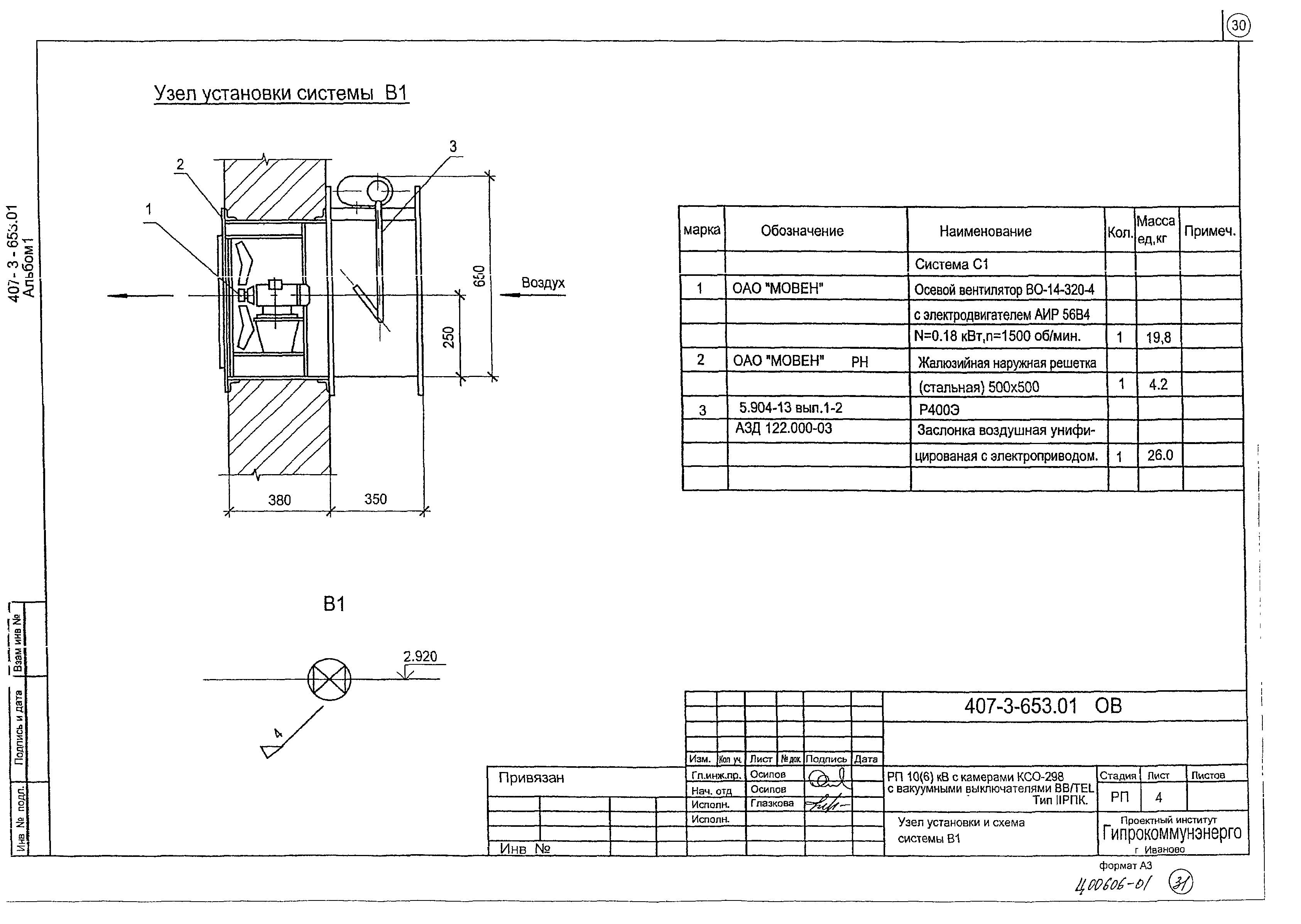
| Оглавление: | Пояснительная записка АС Архитектурно-строительные решения 1 Общие данные (начало) 2 Общие данные (окончание) 3 План на отм. 0,000 4 Разрезы 1-1; 2-2 5 Фасады 6 Схема расположения плит покрытий 7 План полов на отм. 0,000. План кровли 8 Схемы расположения фундаментов 9 Схемы расположения блоков в осях 1-2, 2-1, А-Б, Б-А. Сечения 1-1, 2-2 10 Схемы расположения кабельных каналов 11 Схемы перекрытия кабельных каналов АС И Строительные изделия АС И-ТУ Технические условия АС И-МК1 Марка изделия МК1 АС И-МС1 Изделие закладное МС1 АС И-МС2 Изделие закладное МС2 АС И-МС3 Изделие закладное МС3 АС И-В1 Ворота В1. Общий вид АС И-В1ПЛ Ворота В1. Полотно левое АС И-В1ПП Ворота В1. Полотно правое ОВ Отопление и вентиляция 1 Общие данные (начало) 2 Общие данные (окончание) 3 План на отм. 0,000. Разрез 1-1. Установка электрических печей 4 Узел установки и схема системы В1 |
| Разработан: | Гипрокоммунэнерго |
| Утверждён: | 01.11.2002 Гипрокоммунэнерго |






























