Скачать Типовой проект 902-9-13 Альбом III. Архитектурно-строительная частьДата актуализации: 01.01.2021
|
| Обозначение: | Типовой проект 902-9-13 |
| Обозначение англ: | 902-9-13 |
| Статус: | не определен законодательством |
| Название рус.: | Альбом III. Архитектурно-строительная часть |
| Дата добавления в базу: | 01.09.2013 |
| Дата актуализации: | 01.01.2021 |
| Дата введения: | 01.01.1982 |
| Дата окончания срока действия: | 30.06.2003 |
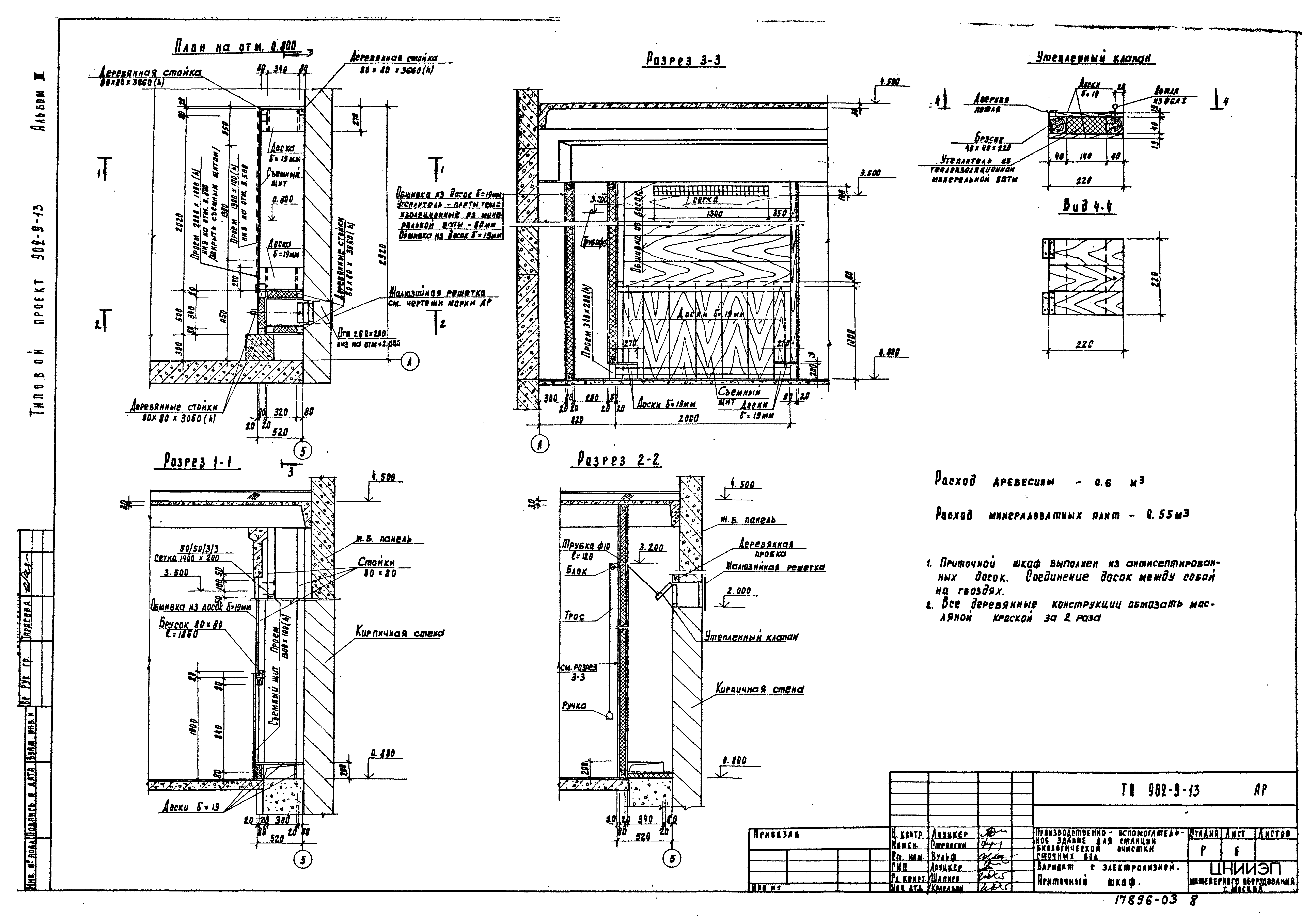
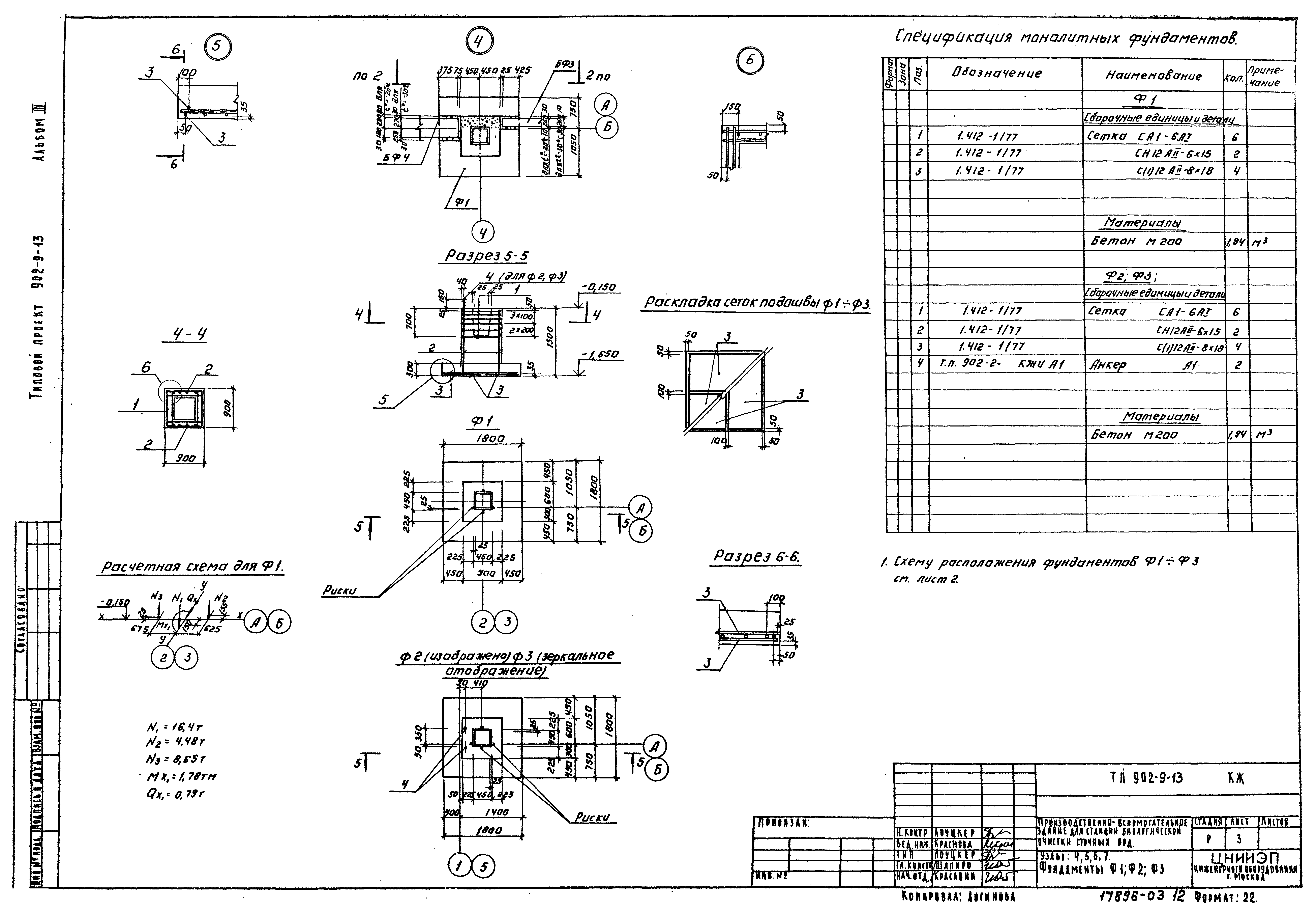
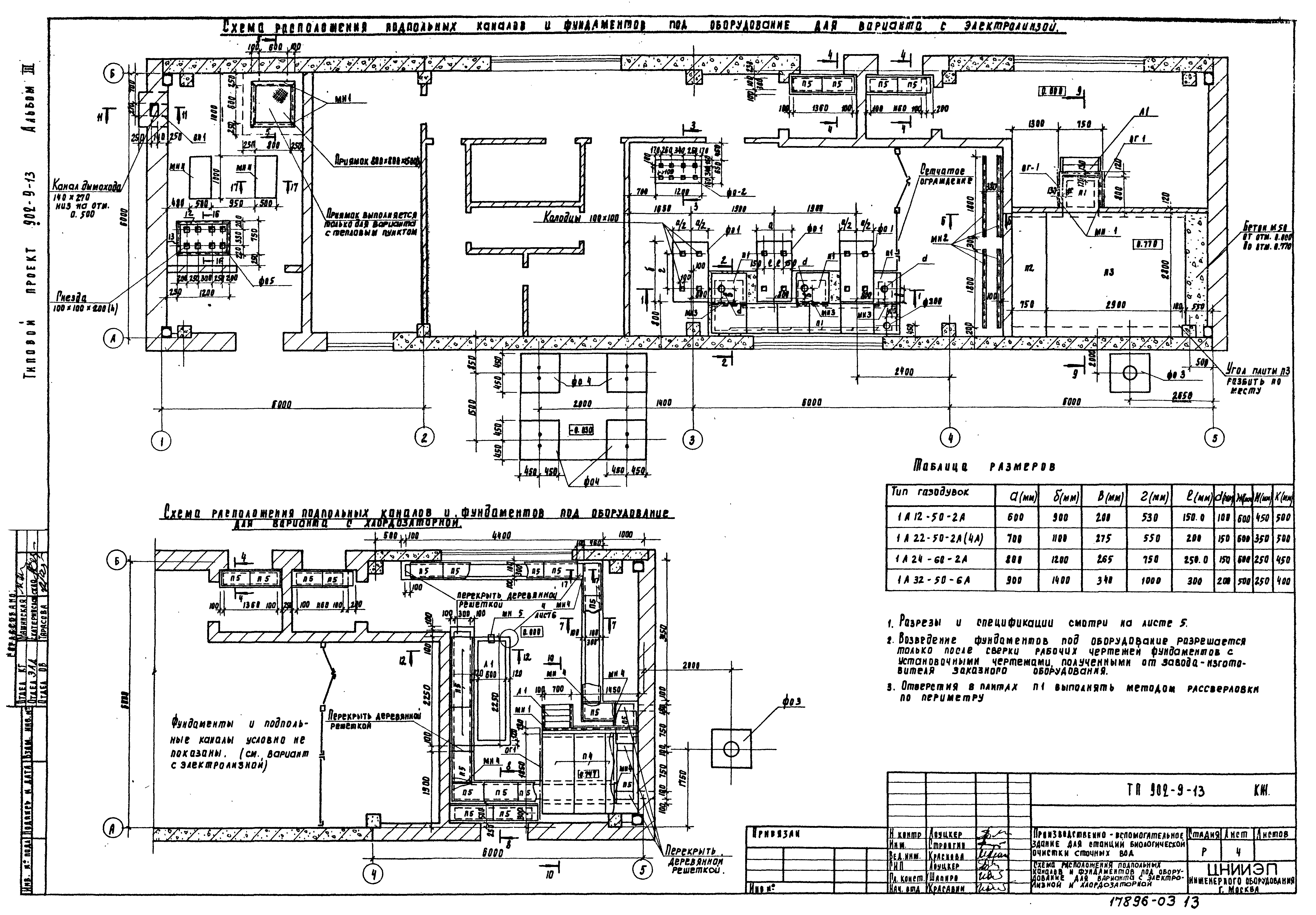
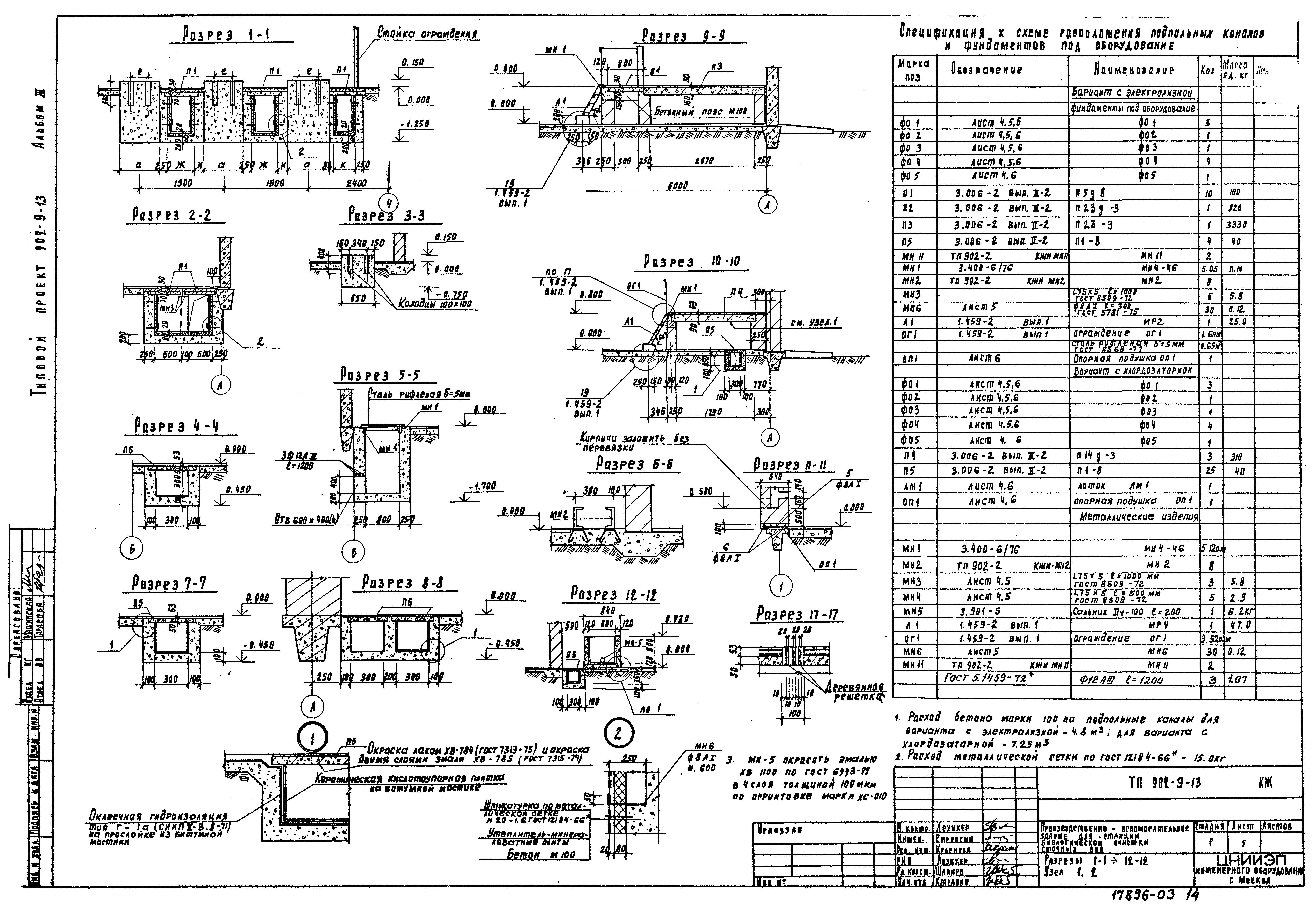
| Оглавление: | Чертежи марки АР Общие данные План на отм. 0,00 и ведомость перемычек Разрезы -1, 2-2 и детали 1, 2 Фасады 1-5, 5-1, Б-А, А-Б План полов. Экспликация полов. Ведомость отделки помещений Вариант с электролизной. Приточный шкаф Вариант с хлордозаторной. Приточный шкаф Чертежи марки КЖ Общие данные Схема расположения фундаментов и фундаментных балок. Узлы 1, 2, 3 Узлы 4, 5, 6, 7. Фундаменты Ф1, Ф2, Ф3 Схема расположения подпольных каналов и фундаментов под оборудование для варианта с электролизной и хлордозаторной Разрезы 1-1…12-12. Узел 1, 2 Фундамент под трубу Фо3. Фундамент под стойку навеса Фо4 Схема расположения колонн и балок покрытия. Схема расположения плит покрытия Схемы расположения стеновых панелей. Фрагменты Чертежи марки КМ Общие данные Схема расположения монорельса. Вариант с электролизной и хлордозаторной Схема расположения металлических балок и стоек навеса. Схема расположения сетчатого ограждения Выбросная труба. Вариант с хлордозаторной Выбросная труба. Вариант с электролизной |
| Разработан: | ЦНИИЭП инженерного оборудования |
| Утверждён: | 29.04.1981 Госгражданстрой (Gosgrazhdanstroy 141) |





















