Скачать НТС 65-06 Выпуск 1. Подвижные и направляющие опоры для канальной прокладки теплопроводов Ду=100-1000 мм в ППУ изоляции в полиэтиленовой оболочке. Рабочие чертежиДата актуализации: 01.01.2021
|
| Обозначение: | НТС 65-06 |
| Обозначение англ: | 65-06 |
| Статус: | не определен законодательством |
| Название рус.: | Выпуск 1. Подвижные и направляющие опоры для канальной прокладки теплопроводов Ду=100-1000 мм в ППУ изоляции в полиэтиленовой оболочке. Рабочие чертежи |
| Дата добавления в базу: | 01.09.2013 |
| Дата актуализации: | 01.01.2021 |
| Дата введения: | 01.04.2006 |
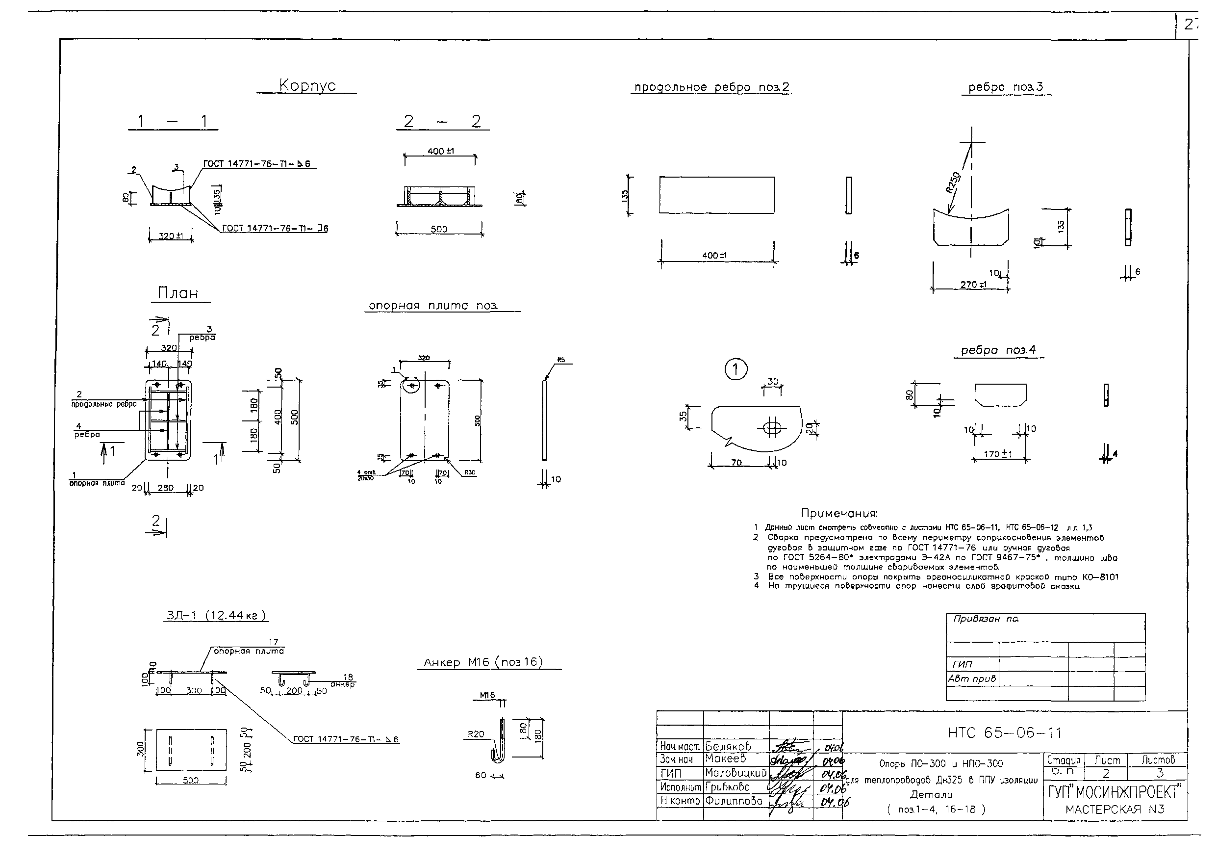
| Оглавление: | НТС 65-06 Содержание альбома. Выпуск 1 НТС 65-06-ПЗ Пояснительная записка НТС 65-06-01 Подвижная опора ПО-100 для теплопроводов Дн108 в ППУ изоляции. Установочный чертеж. Спецификация. Детали поз.1-4;16-18; поз.5-10 НТС 65-06-02 Направляющая опора ПО-100 для теплопроводов Дн108 в ППУ изоляции. Установочный чертеж. Спецификация НТС 65-06-03 Подвижная опора ПО-125 для теплопроводов Дн133 в ППУ изоляции. Установочный чертеж. Спецификация. Детали поз.1-4;16-18; поз.5-10 НТС 65-06-04 Направляющая опора ПО-125 для теплопроводов Дн133 в ППУ изоляции. Установочный чертеж. Спецификация НТС 65-06-05 Подвижная опора ПО-150 для теплопроводов Дн159 в ППУ изоляции. Установочный чертеж. Спецификация. Детали поз.1-4;16-18; поз.5-10 НТС 65-06-06 Направляющая опора ПО-150 для теплопроводов Дн159 в ППУ изоляции. Установочный чертеж. Спецификация НТС 65-06-07 Подвижная опора ПО-200 для теплопроводов Дн219 в ППУ изоляции. Установочный чертеж. Спецификация. Детали поз.1-4;16-18; поз.5-10 НТС 65-06-08 Направляющая опора ПО-200 для теплопроводов Дн219 в ППУ изоляции. Установочный чертеж. Спецификация НТС 65-06-09 Подвижная опора ПО-250 для теплопроводов Дн273 в ППУ изоляции. Установочный чертеж. Спецификация. Детали поз.1-4;16-18; поз.5-10 НТС 65-06-10 Направляющая опора ПО-250 для теплопроводов Дн273 в ППУ изоляции. Установочный чертеж. Спецификация НТС 65-06-11 Подвижная опора ПО-300 для теплопроводов Дн325 в ППУ изоляции. Установочный чертеж. Спецификация. Детали поз.1-4;16-18; поз.5-10 НТС 65-06-12 Направляющая опора ПО-300 для теплопроводов Дн325 в ППУ изоляции. Установочный чертеж. Спецификация НТС 65-06-13 Подвижная опора ПО-400 для теплопроводов Дн426 в ППУ изоляции. Установочный чертеж. Спецификация. Детали поз.1-4;16-18; поз.5-10 НТС 65-06-14 Направляющая опора ПО-400 для теплопроводов Дн426 в ППУ изоляции. Установочный чертеж. Спецификация НТС 65-06-15 Подвижная опора ПО-500 для теплопроводов Дн530 в ППУ изоляции. Установочный чертеж. Спецификация. Детали поз.1-4;16-18; поз.5-10 НТС 65-06-16 Направляющая опора ПО-500 для теплопроводов Дн530 в ППУ изоляции. Установочный чертеж. Спецификация НТС 65-06-17 Подвижная опора ПО-600 для теплопроводов Дн630 в ППУ изоляции. Установочный чертеж. Спецификация. Детали поз.1-4;16-18; поз.5-10 НТС 65-06-18 Направляющая опора ПО-600 для теплопроводов Дн630 в ППУ изоляции. Установочный чертеж. Спецификация НТС 65-06-19 Подвижная опора ПО-700 для теплопроводов Дн720 в ППУ изоляции. Установочный чертеж. Спецификация. Детали поз.1-4;16-18; поз.5-10 НТС 65-06-20 Направляющая опора ПО-700 для теплопроводов Дн720 в ППУ изоляции. Установочный чертеж. Спецификация НТС 65-06-21 Подвижная опора ПО-800 для теплопроводов Дн820 в ППУ изоляции. Установочный чертеж. Спецификация. Детали поз.1-4;16-18; поз.5-10 НТС 65-06-22 Направляющая опора ПО-800 для теплопроводов Дн820 в ППУ изоляции. Установочный чертеж. Спецификация НТС 65-06-23 Подвижная опора ПО-900 для теплопроводов Дн920 в ППУ изоляции. Установочный чертеж. Спецификация. Детали поз.1-4;16-18; поз.5-10 НТС 65-06-24 Направляющая опора ПО-900 для теплопроводов Дн920 в ППУ изоляции. Установочный чертеж. Спецификация НТС 65-06-25 Подвижная опора ПО-1020 для теплопроводов Дн1020 в ППУ изоляции. Установочный чертеж. Спецификация. Детали поз.1-4;16-18; поз.5-10 НТС 65-06-26 Направляющая опора ПО-1000 для теплопроводов Д1020 в ППУ изоляции. Установочный чертеж. Спецификация |
| Разработан: | ГУП Мосинжпроект |
| Утверждён: | 01.04.2006 Мосинжпроект (Mosinzhproject ) |
| Принят: | 01.04.2006 ЗАО МосФлоулайн (Mosflowline ZAO ) 01.04.2006 ОАО Московская тепловая компания 01.04.2006 ОАО МОЭК |


























































