Скачать РМ-2283 ПД 1/2-9 серия 2-9 этажных жилых блок-секций производства ДСК-I для строительства в г. Москве. Опалубочные чертежиДата актуализации: 01.01.2021
|
| Обозначение: | РМ-2283 |
| Обозначение англ: | РМ-2283 |
| Статус: | не определен законодательством |
| Название рус.: | ПД 1/2-9 серия 2-9 этажных жилых блок-секций производства ДСК-I для строительства в г. Москве. Опалубочные чертежи |
| Дата добавления в базу: | 01.09.2013 |
| Дата актуализации: | 01.01.2021 |
| Дата введения: | 01.01.1992 |
| Дата окончания срока действия: | 30.06.2003 |
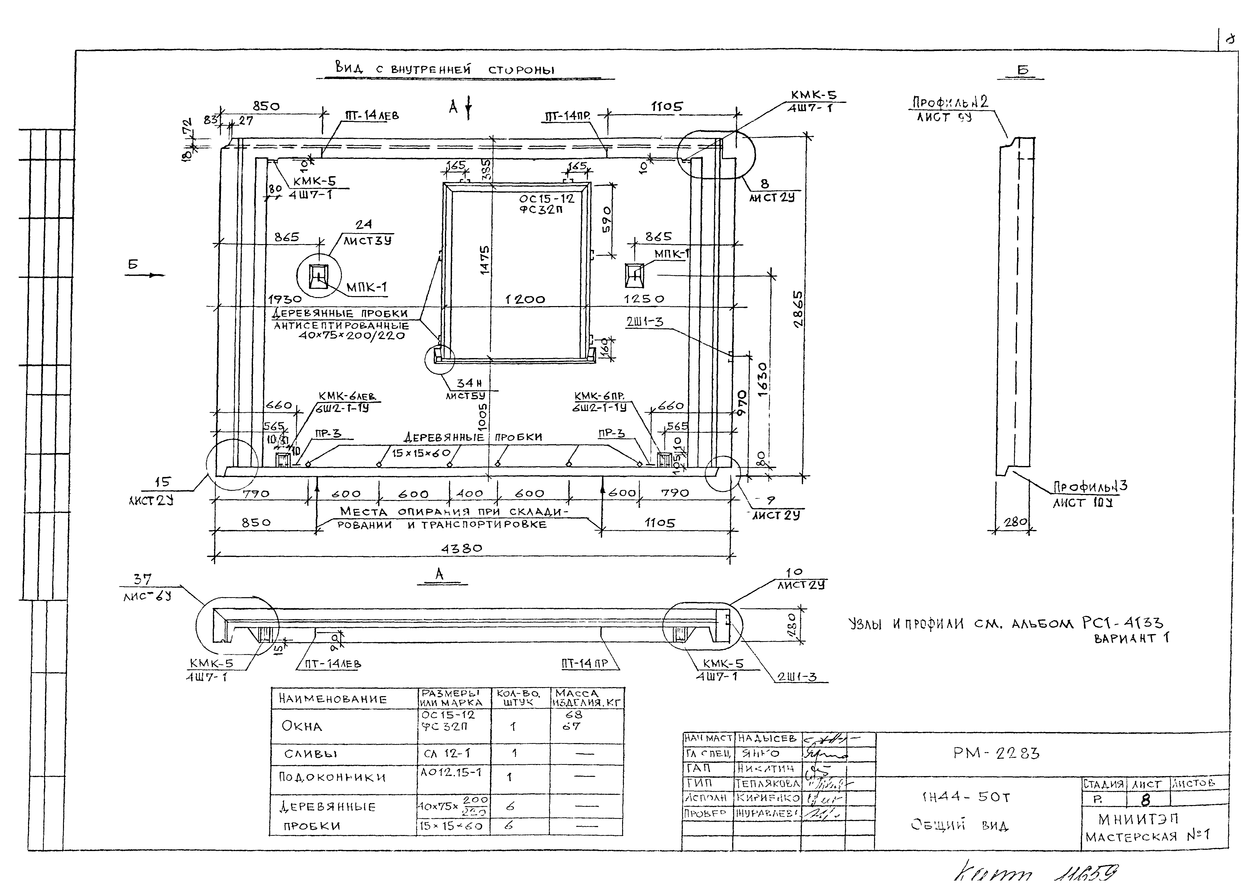
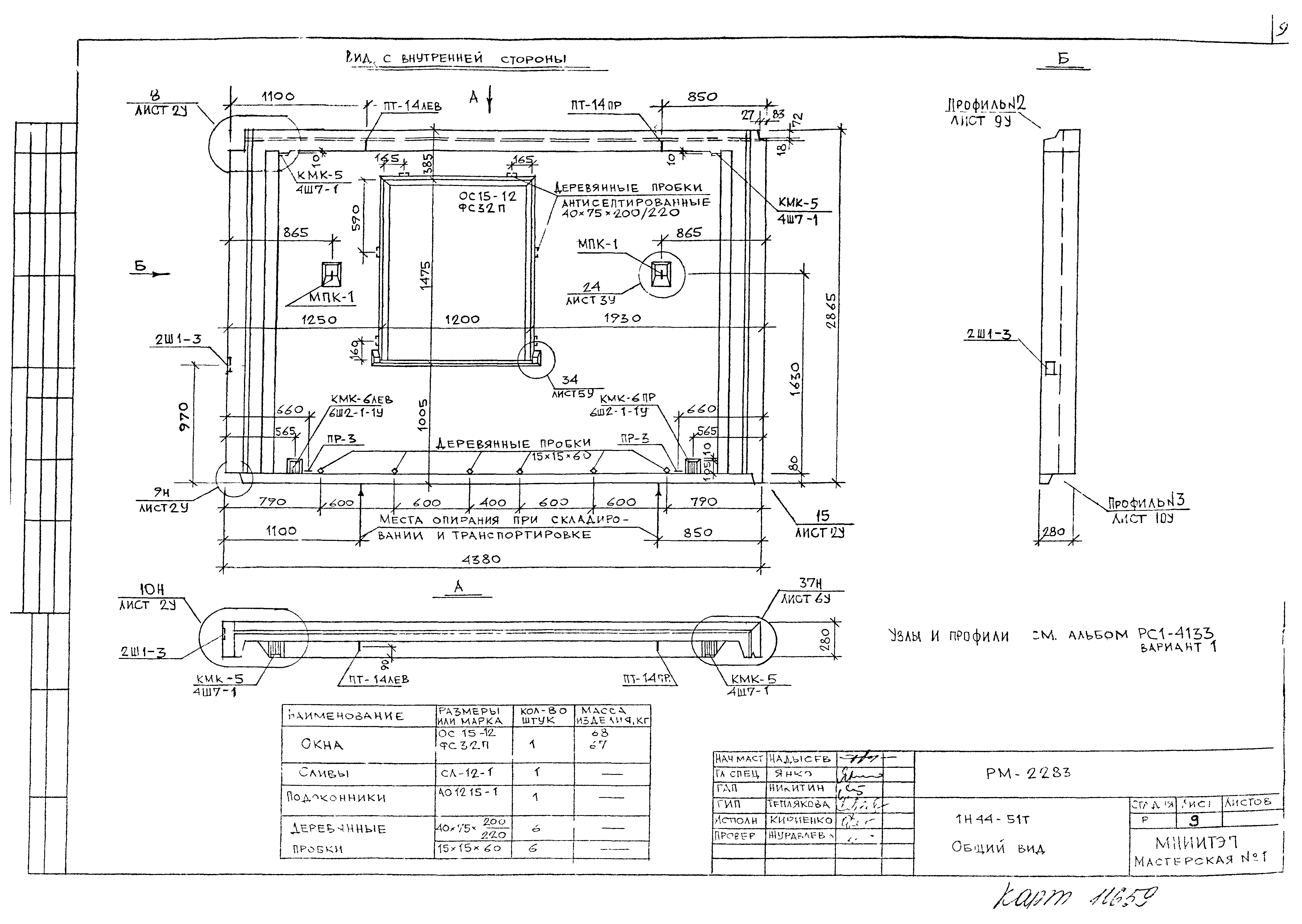
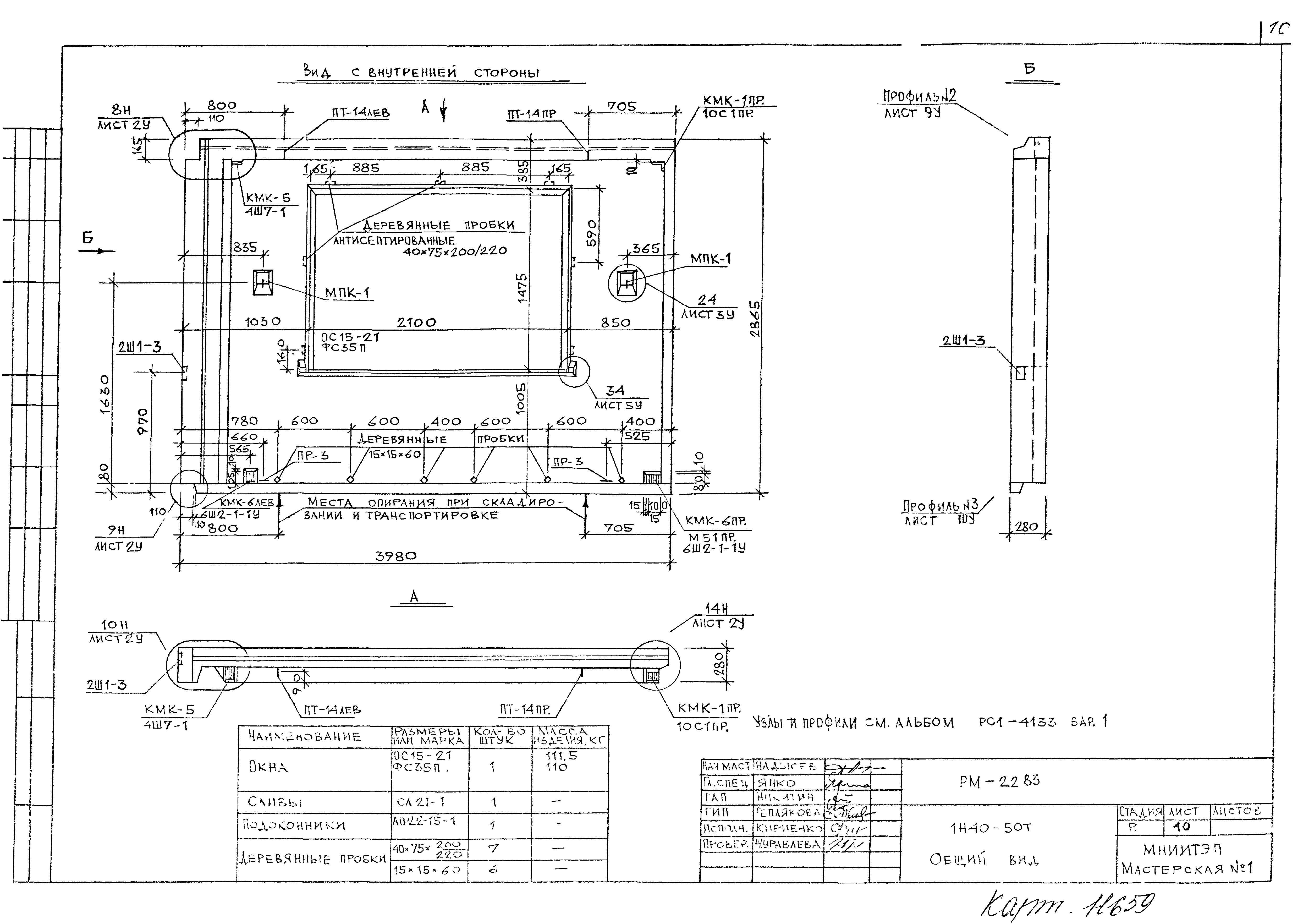
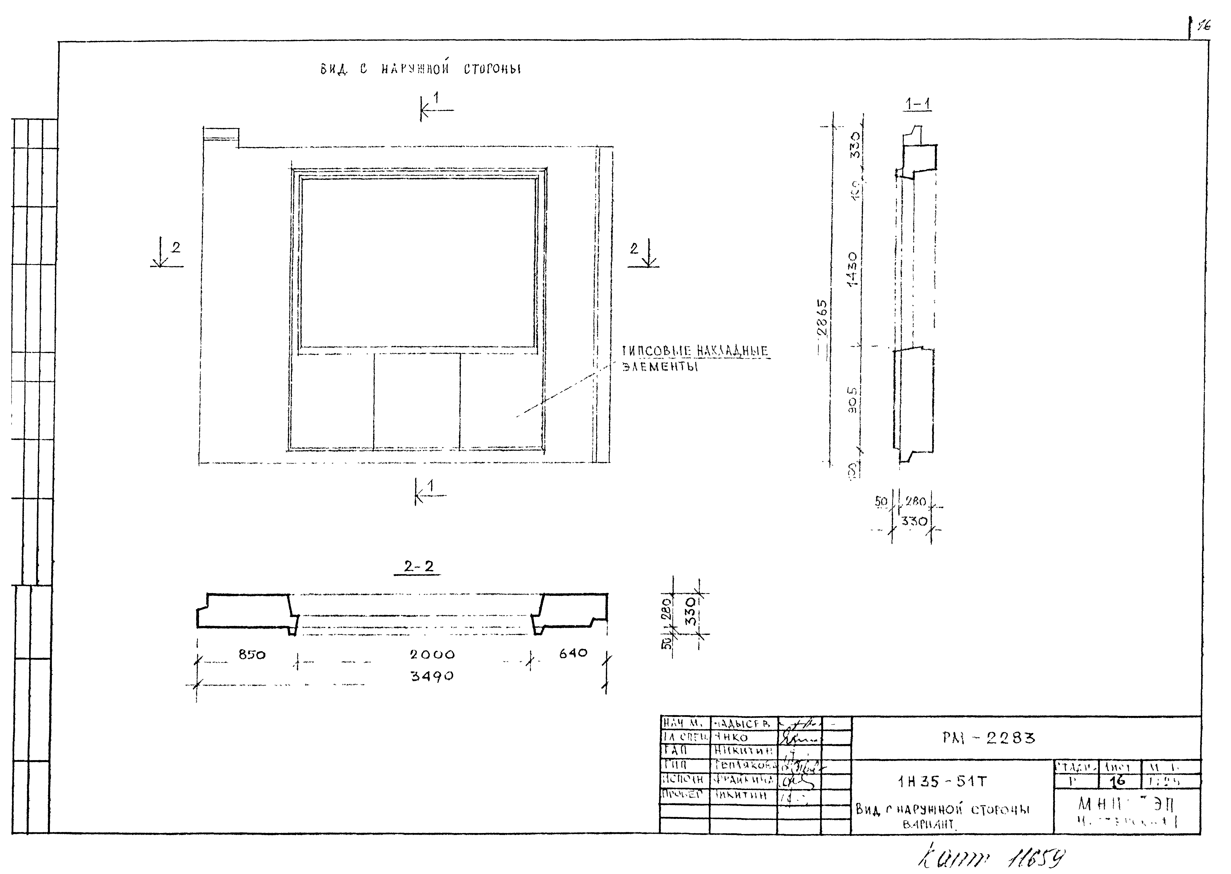
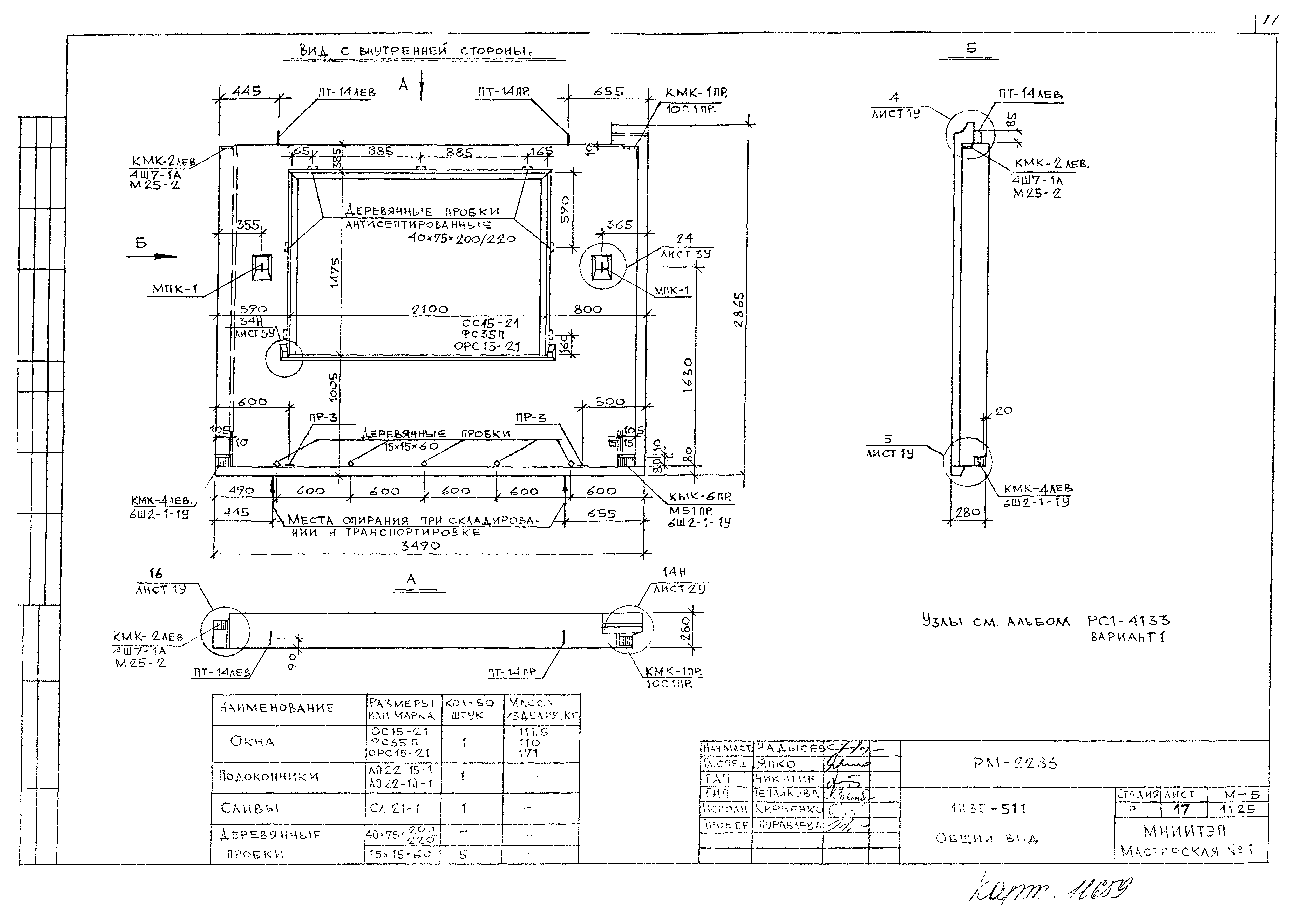
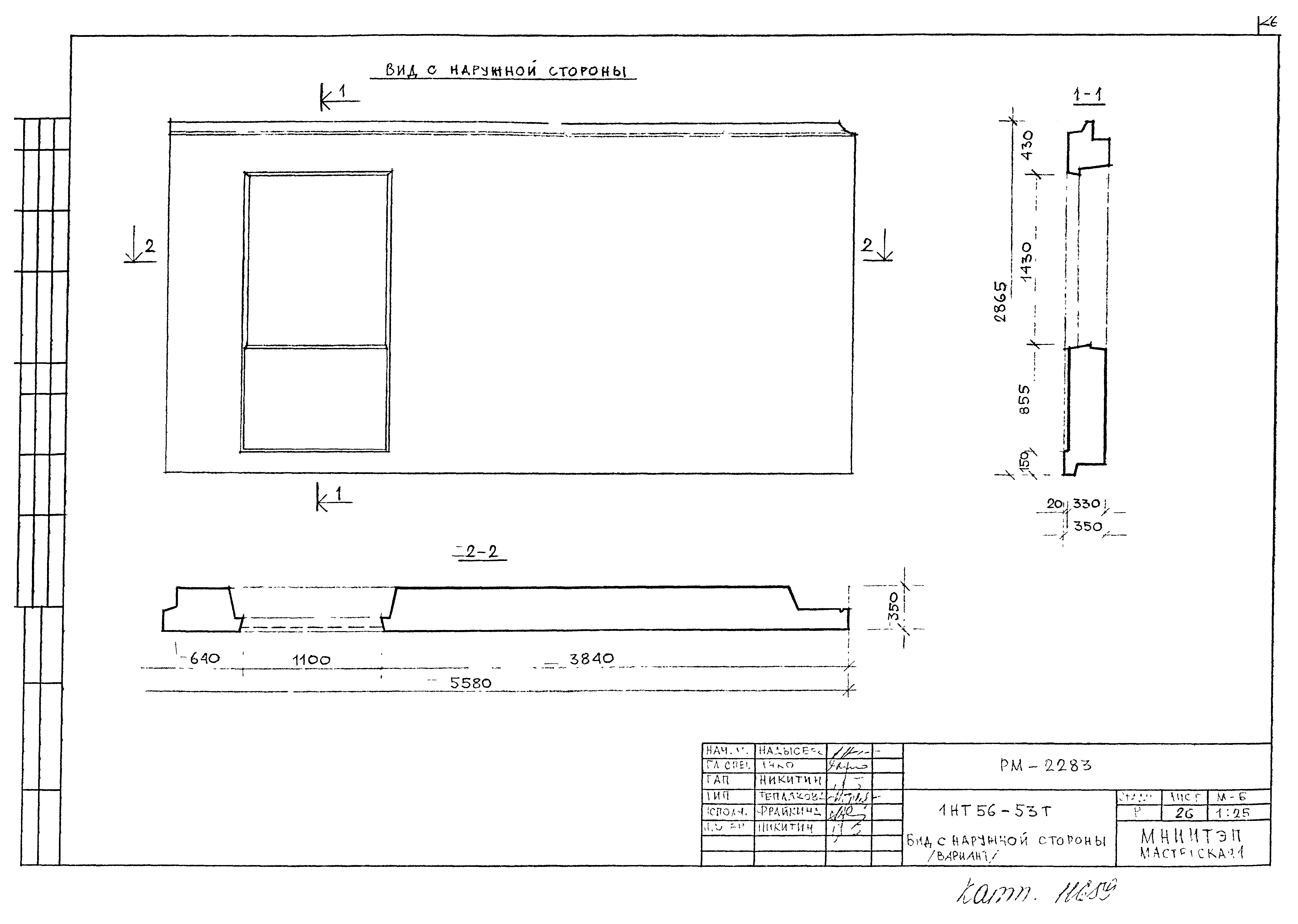
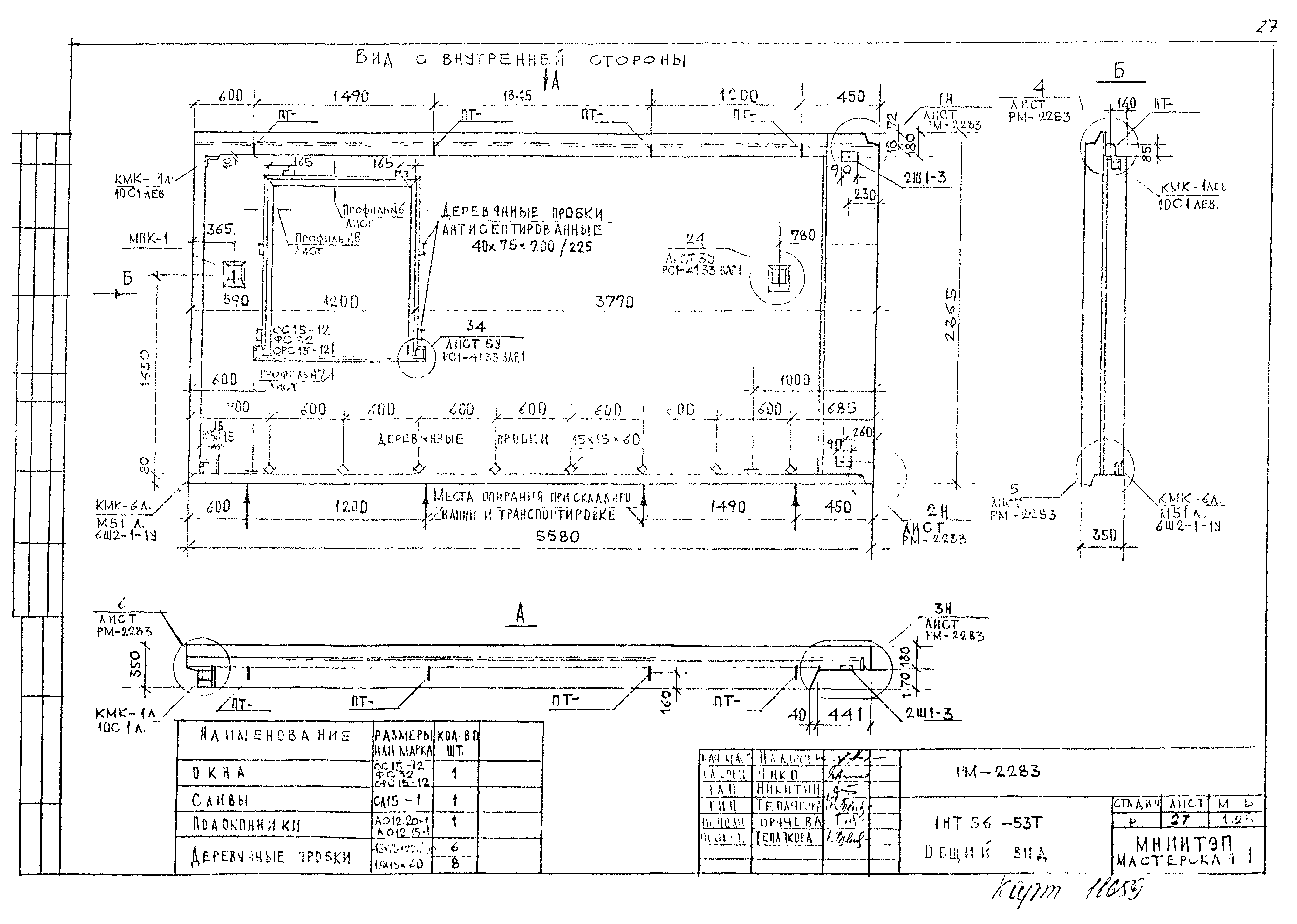
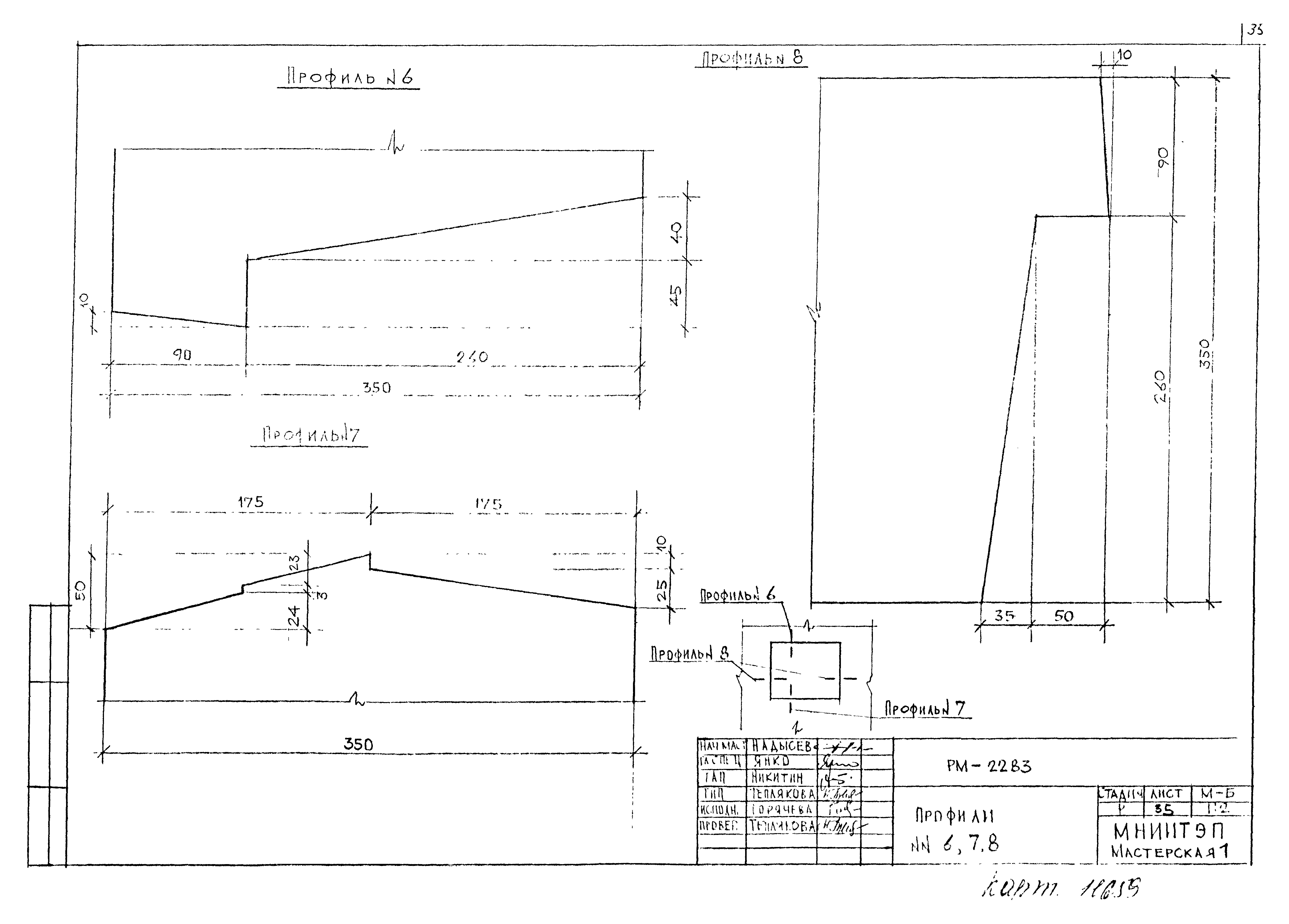
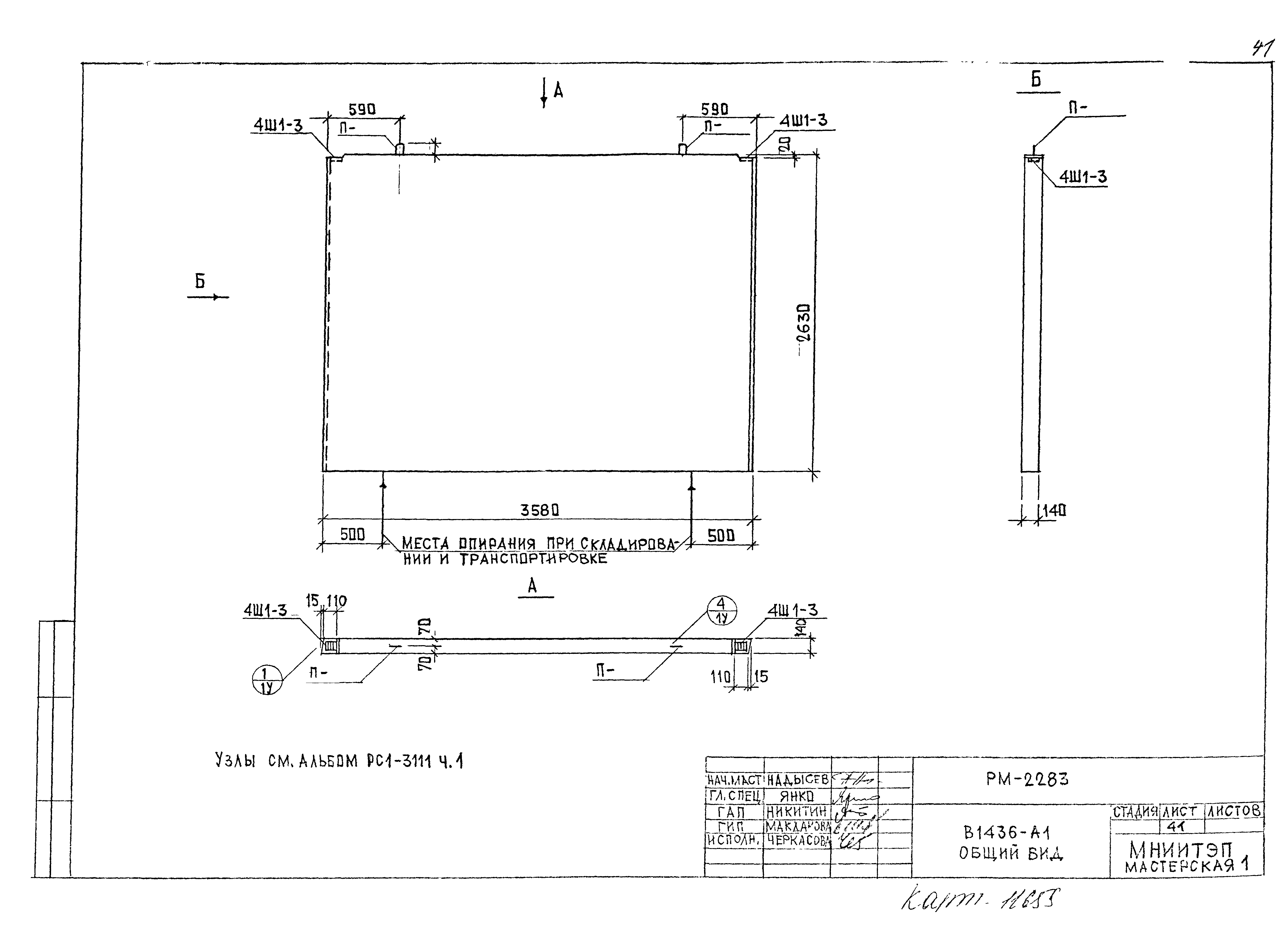
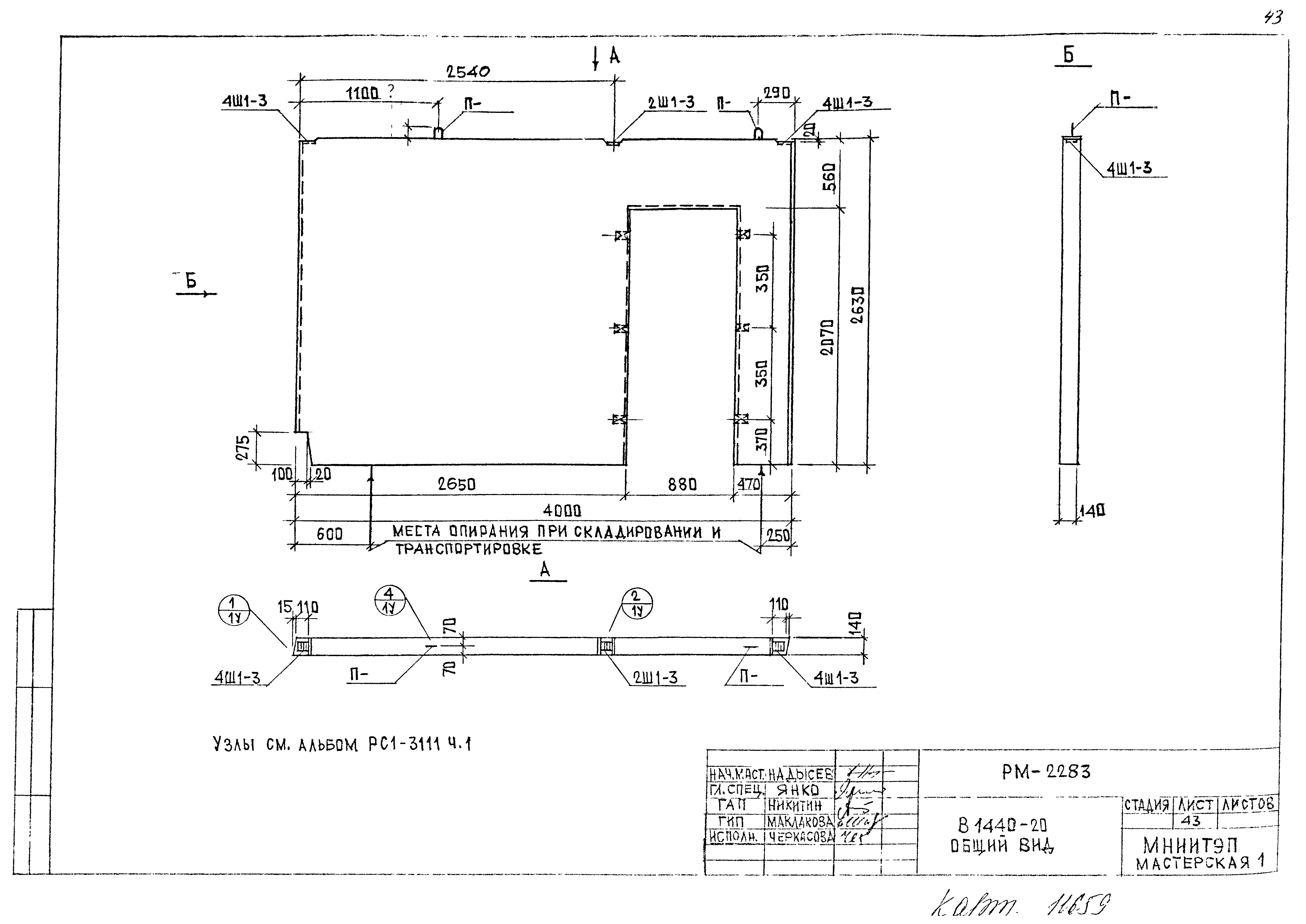
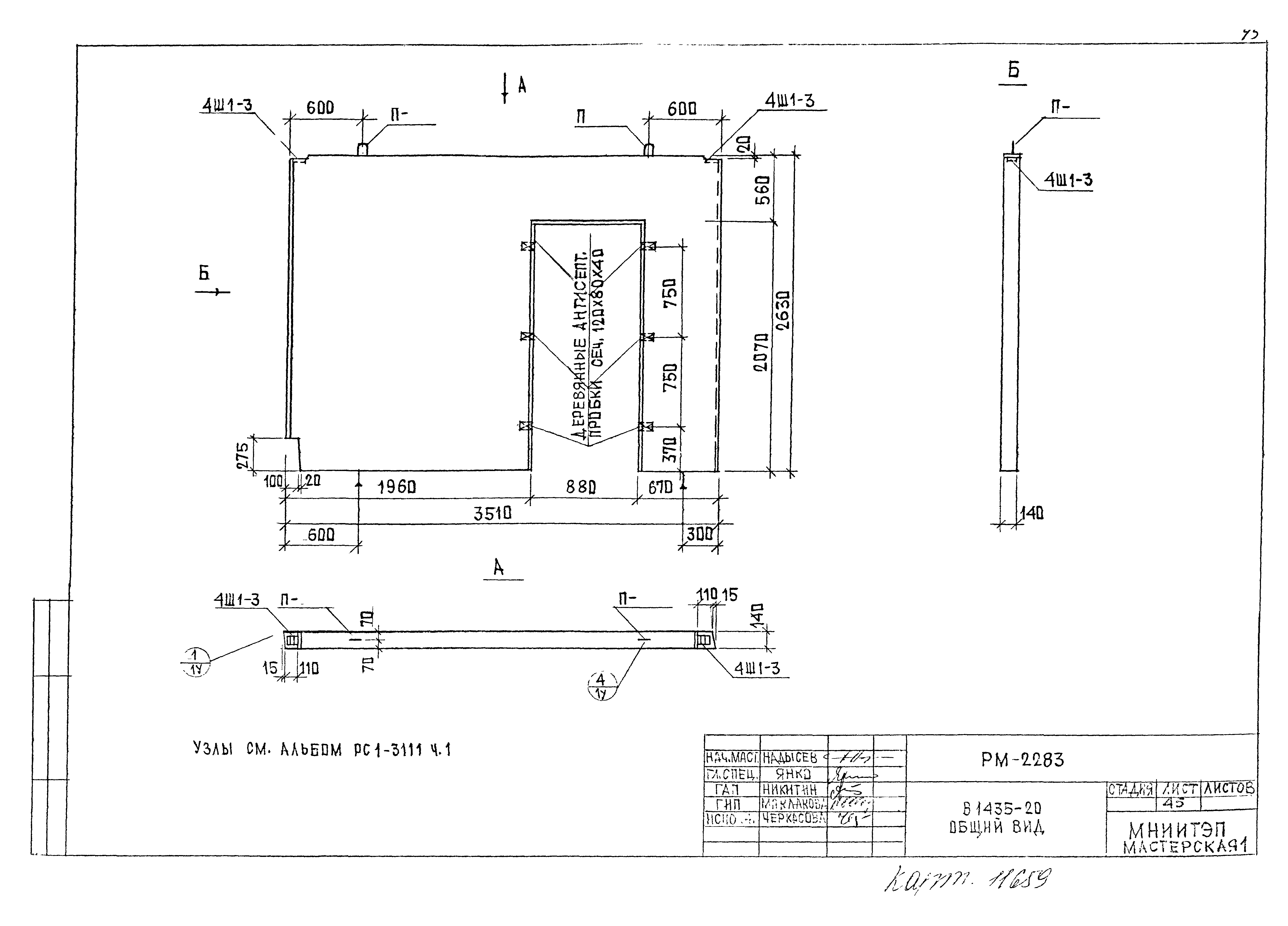
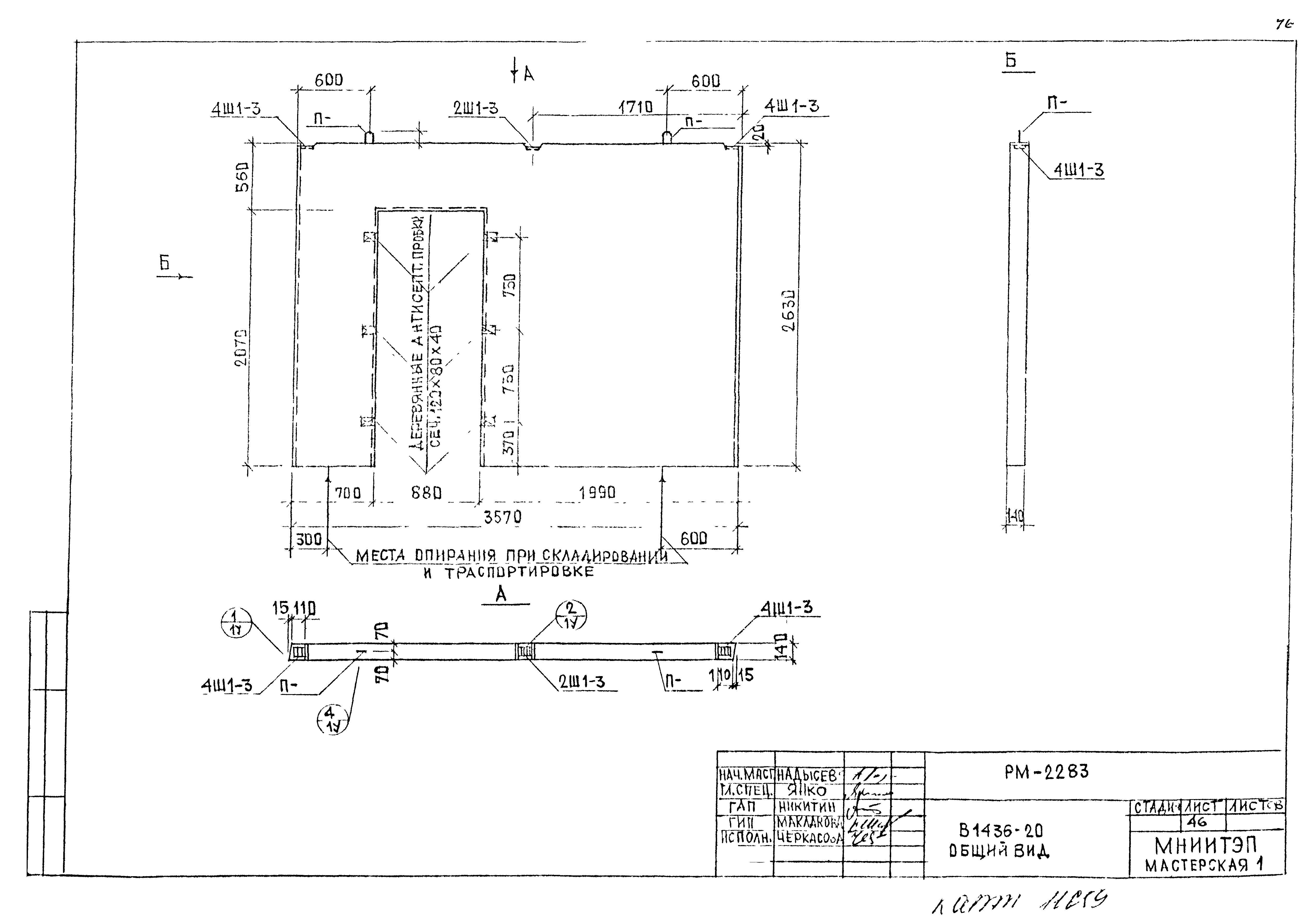
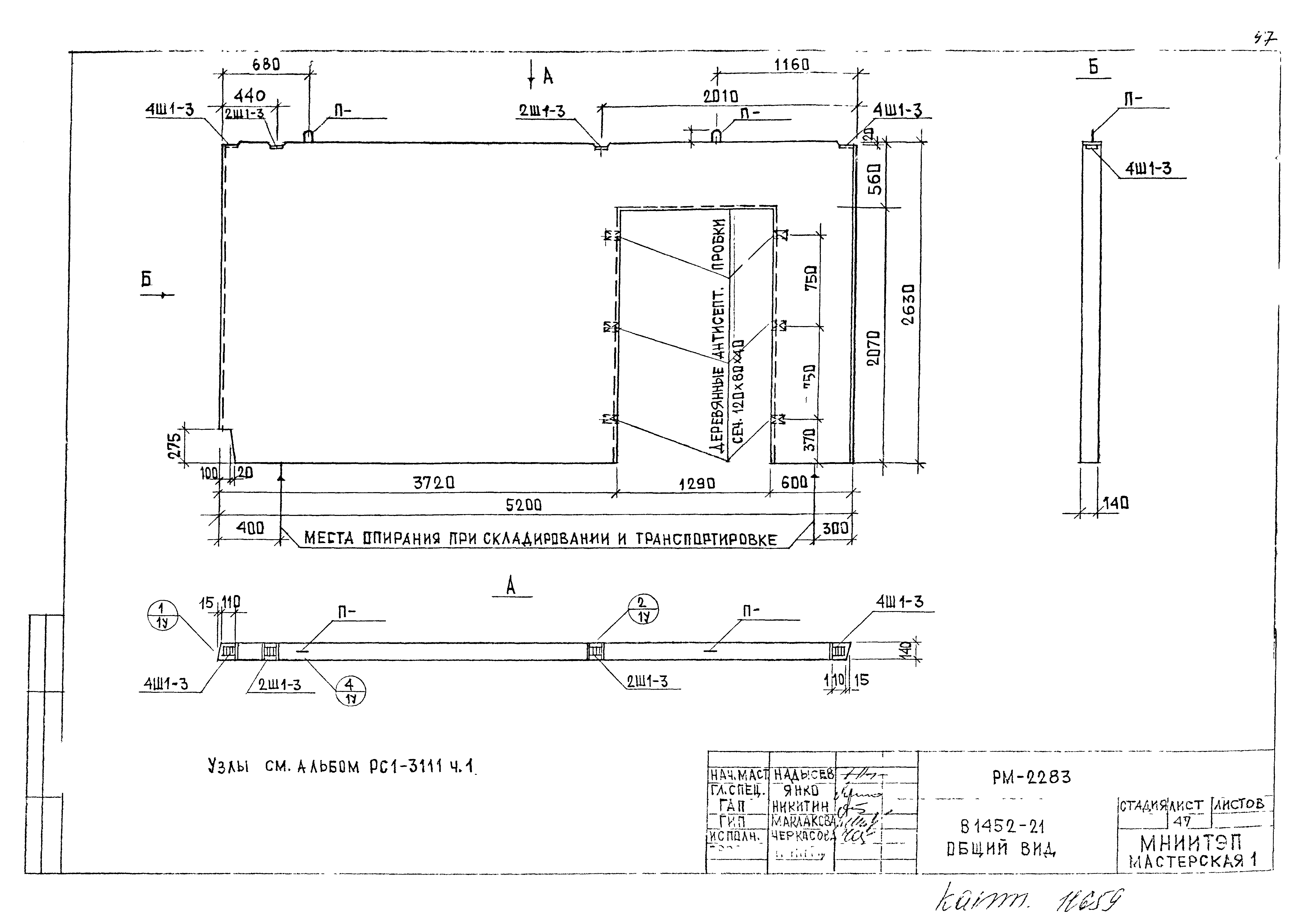
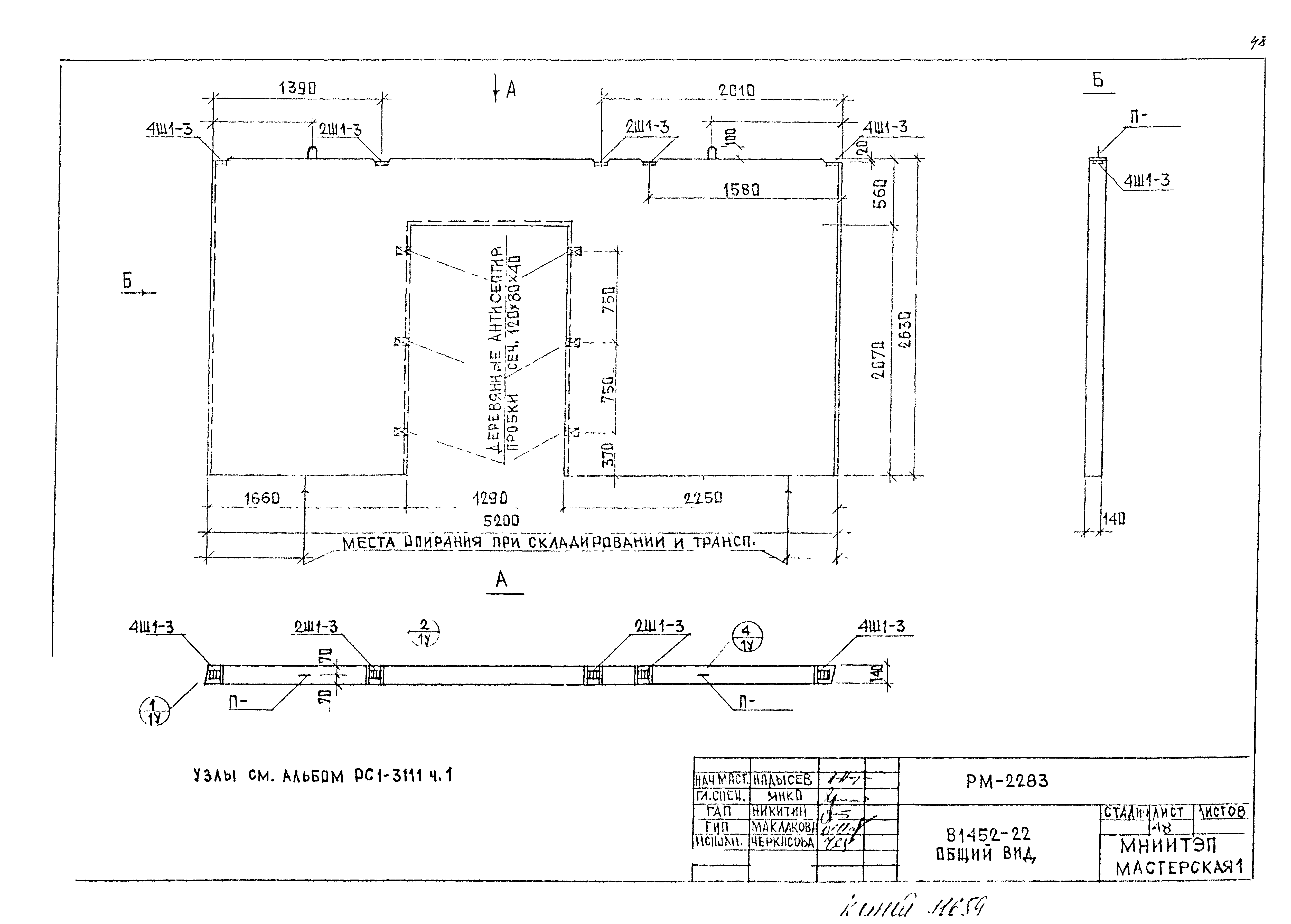
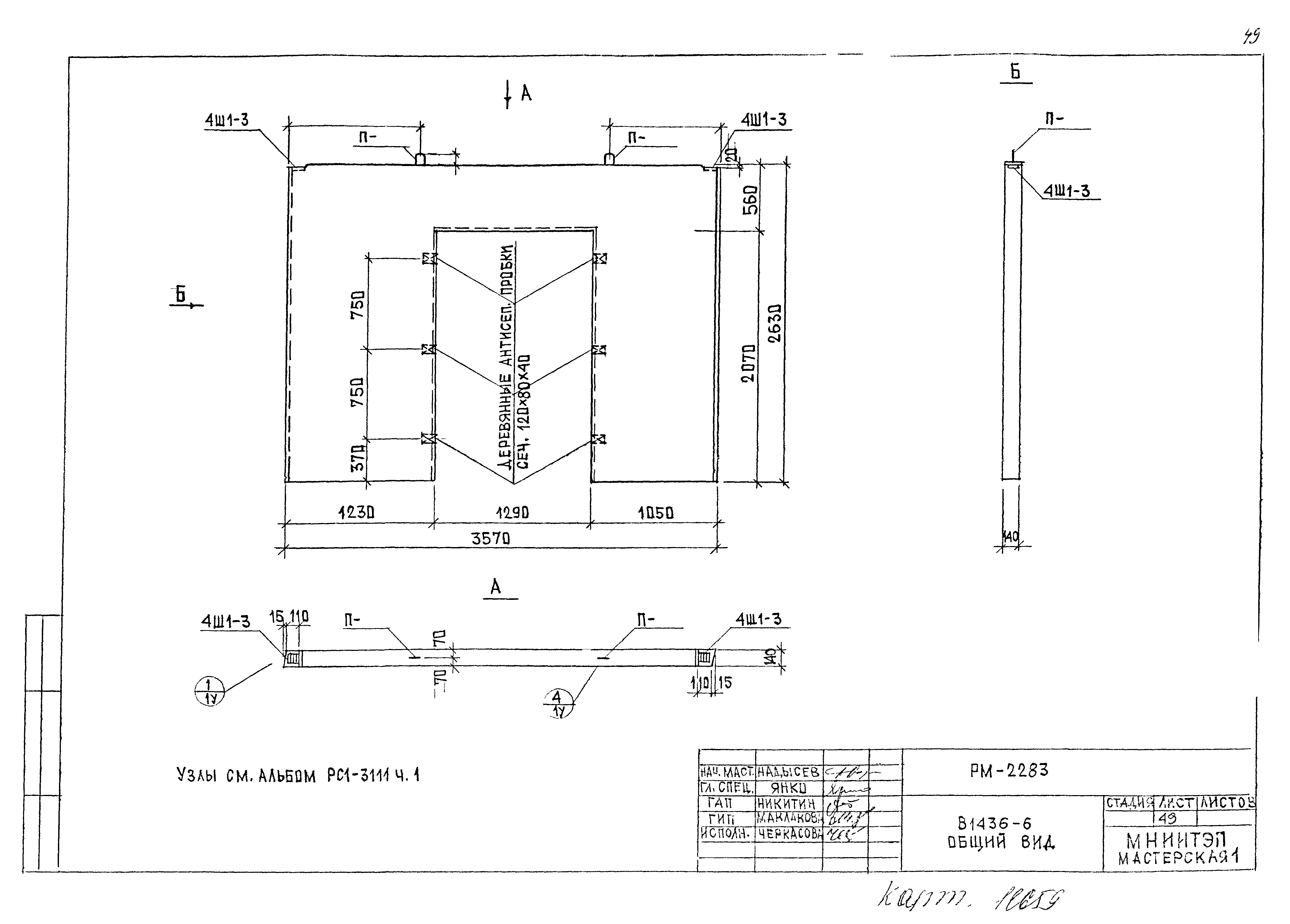
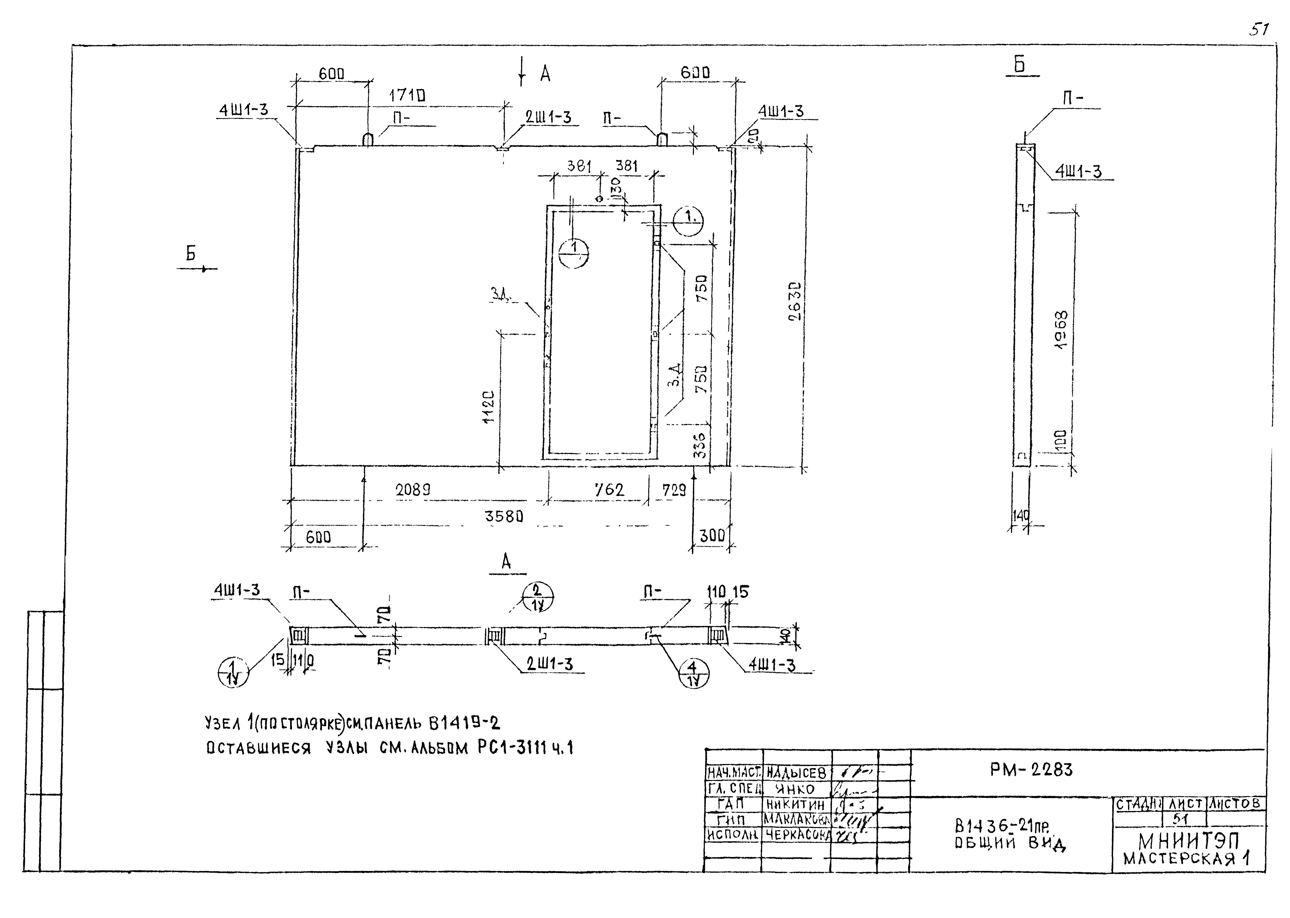
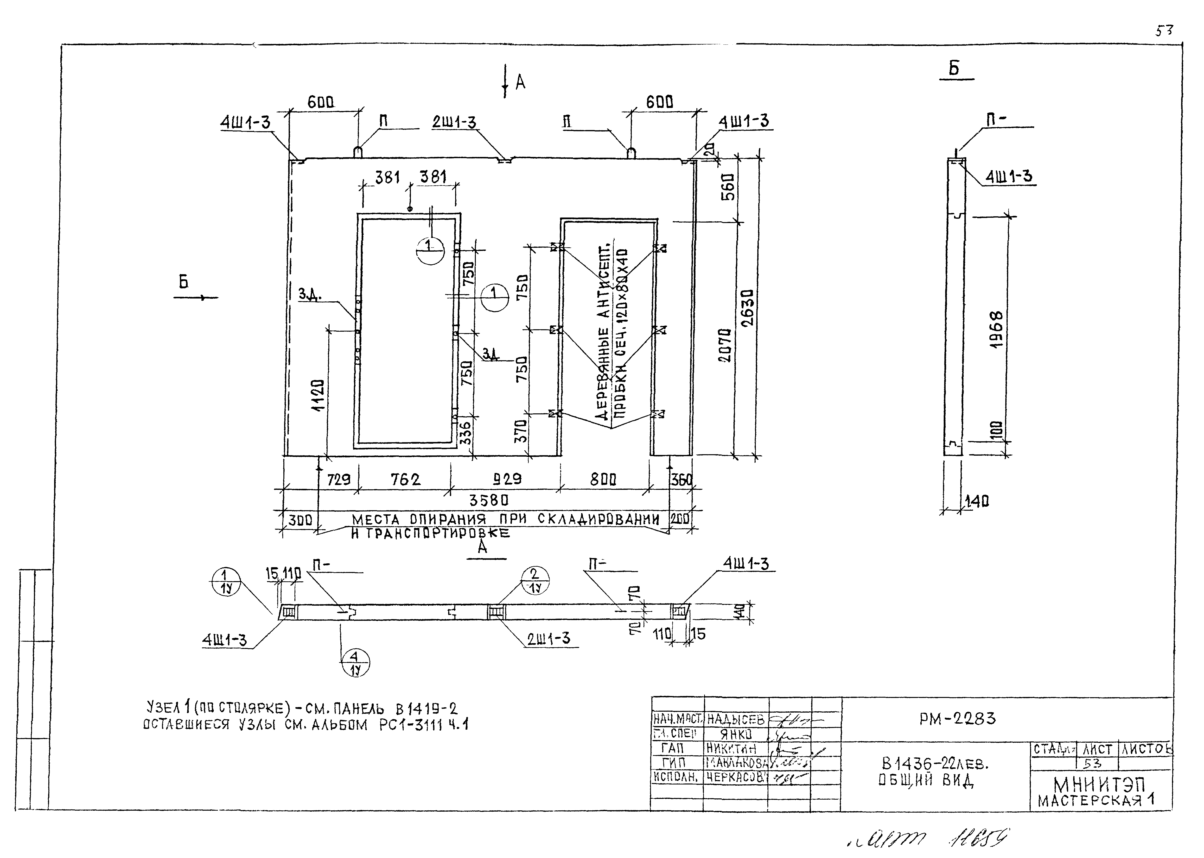
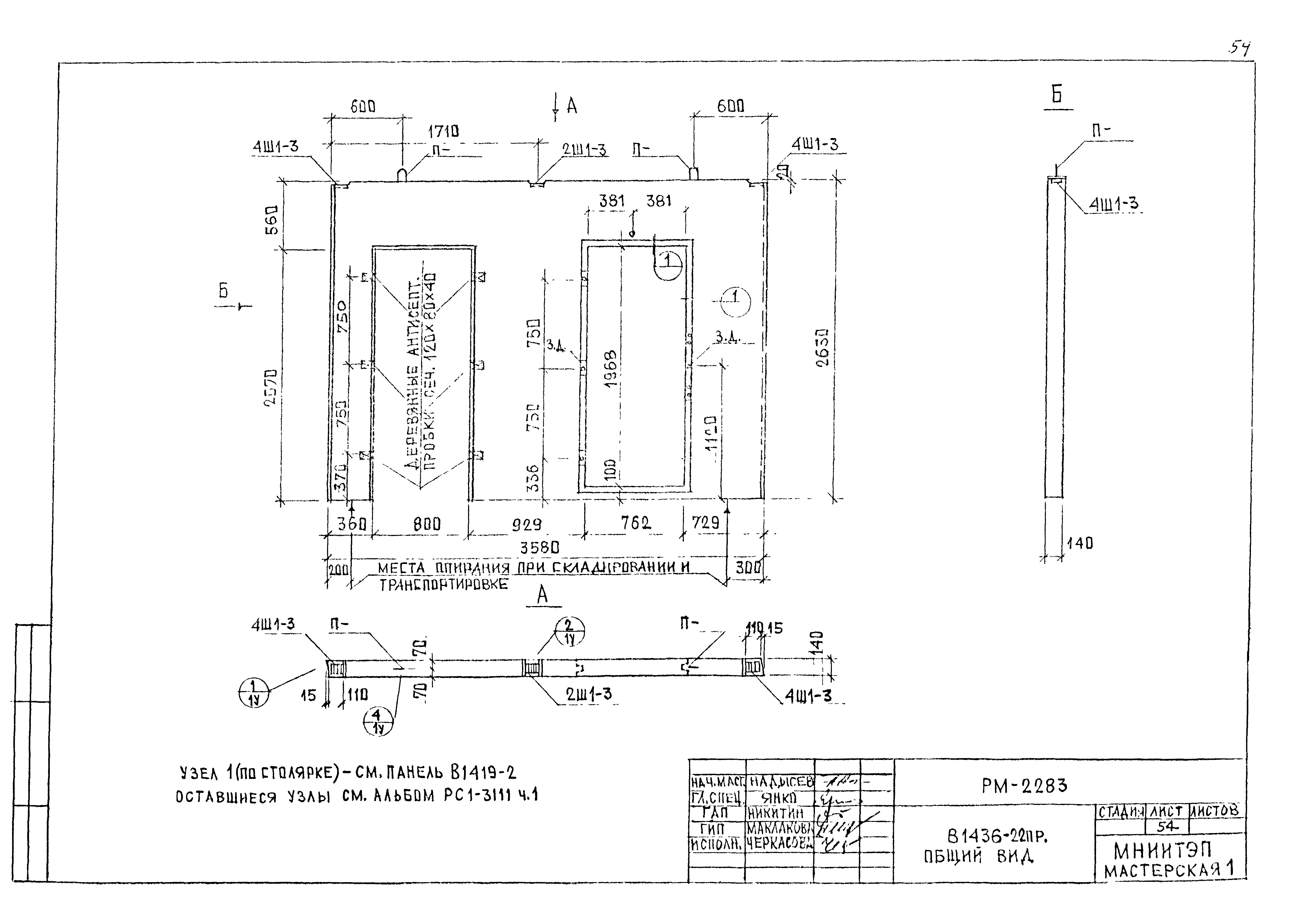
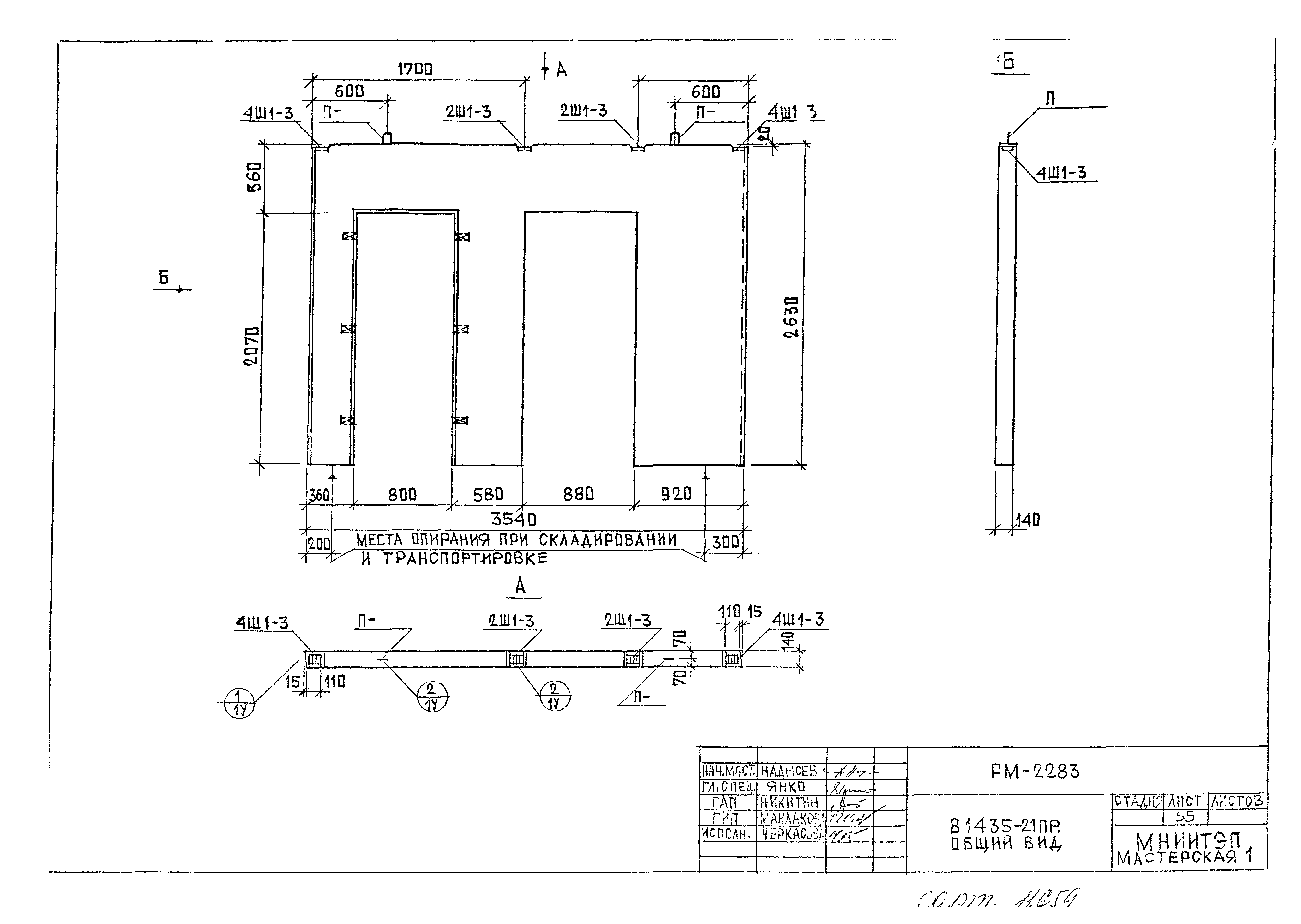
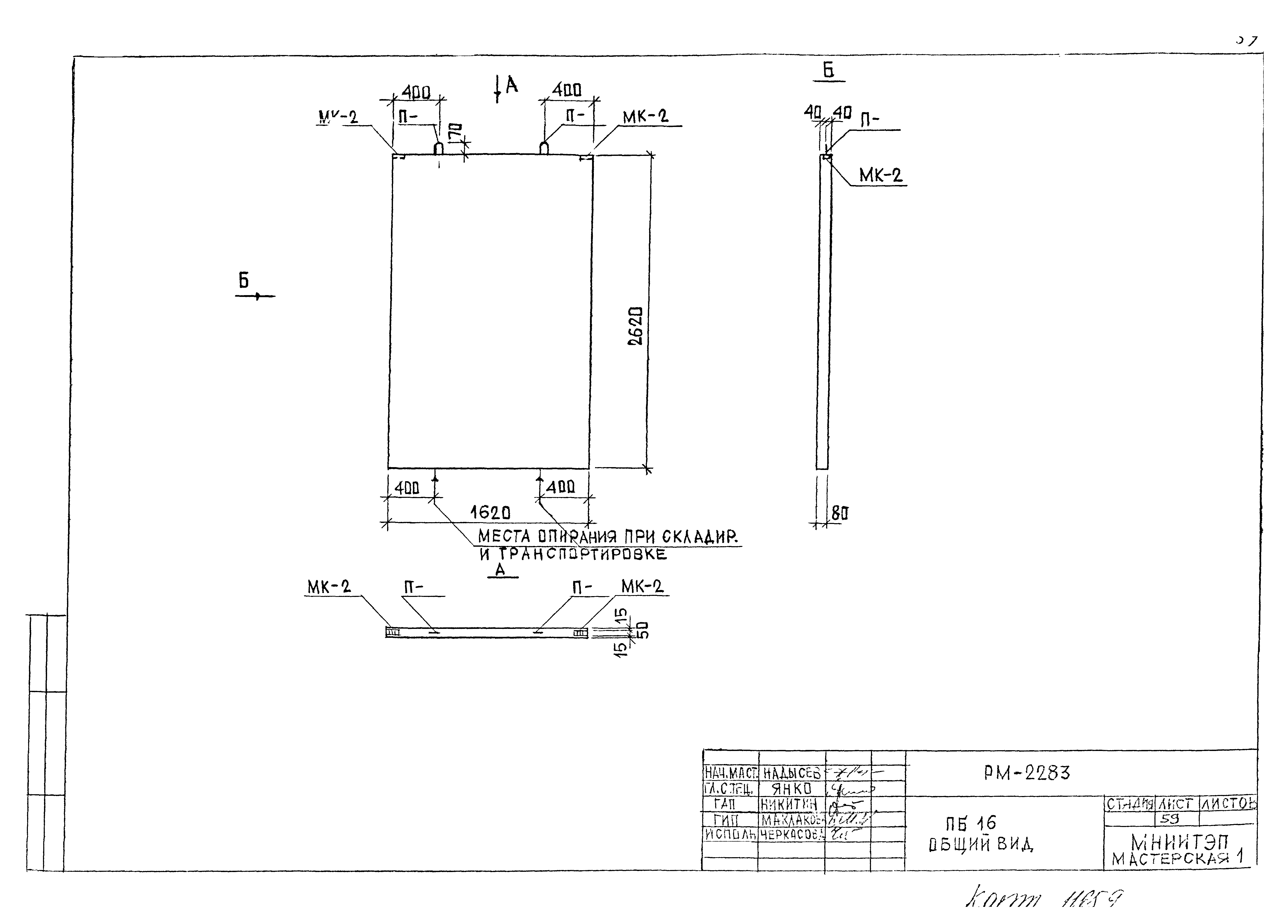
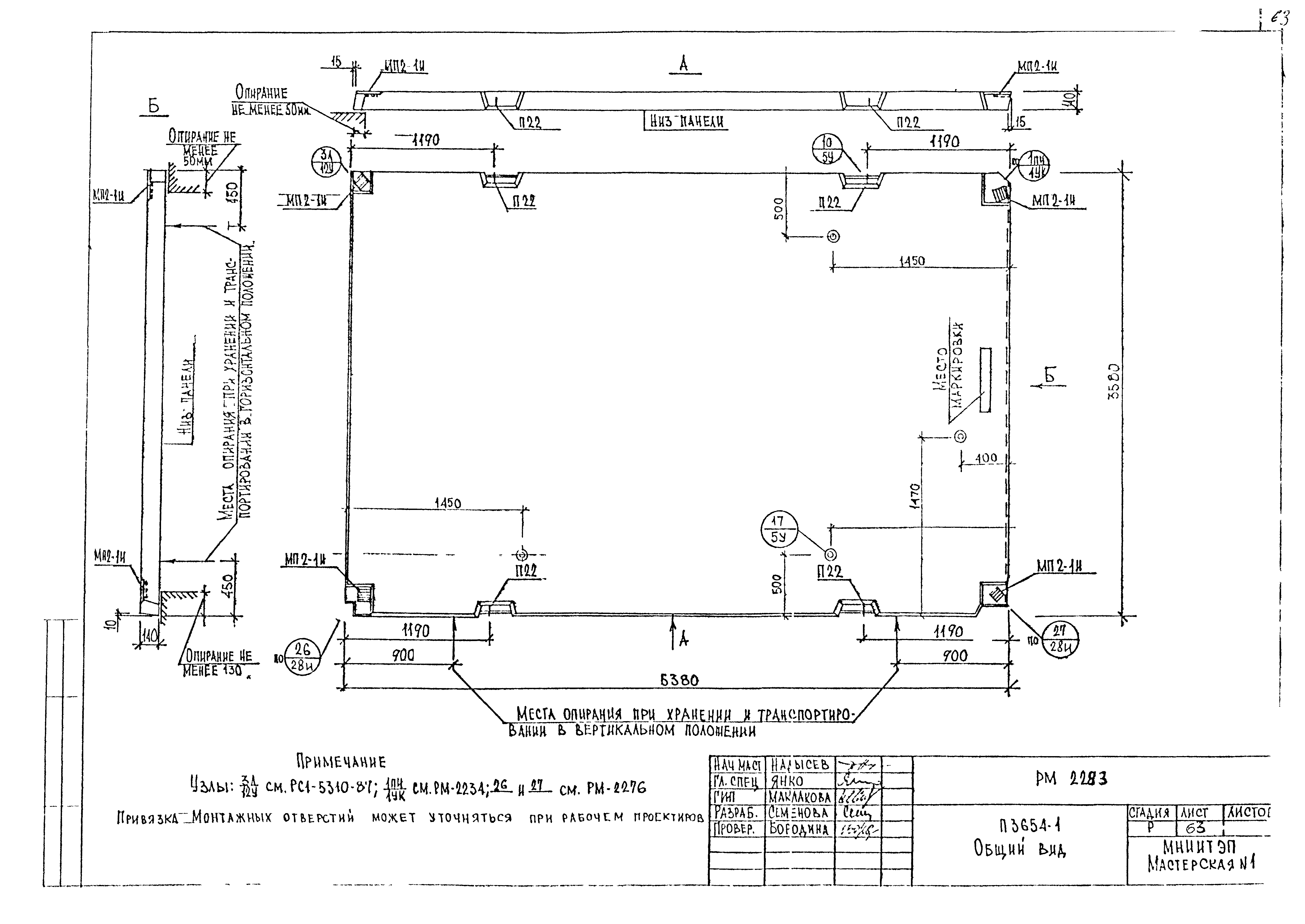
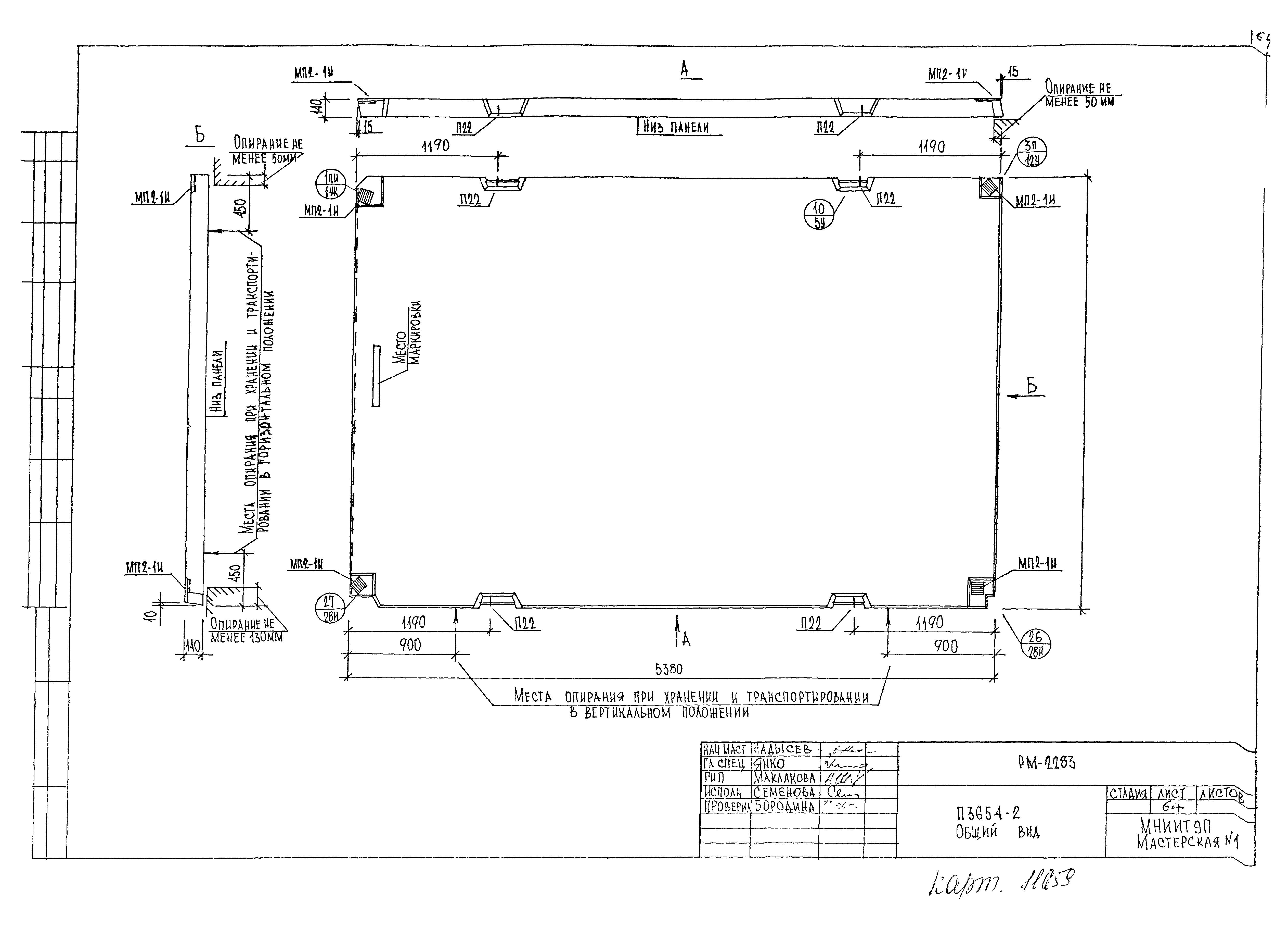
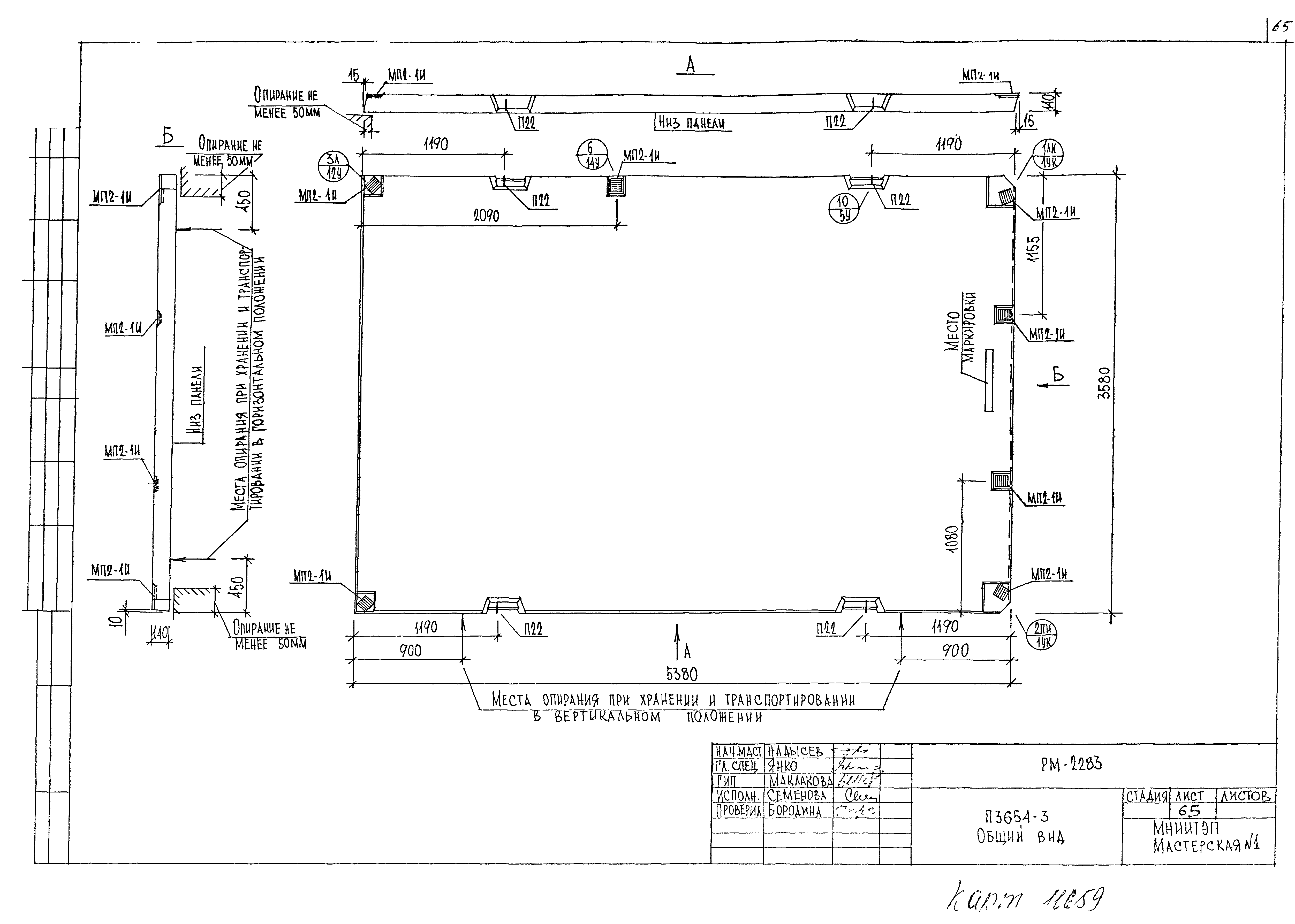
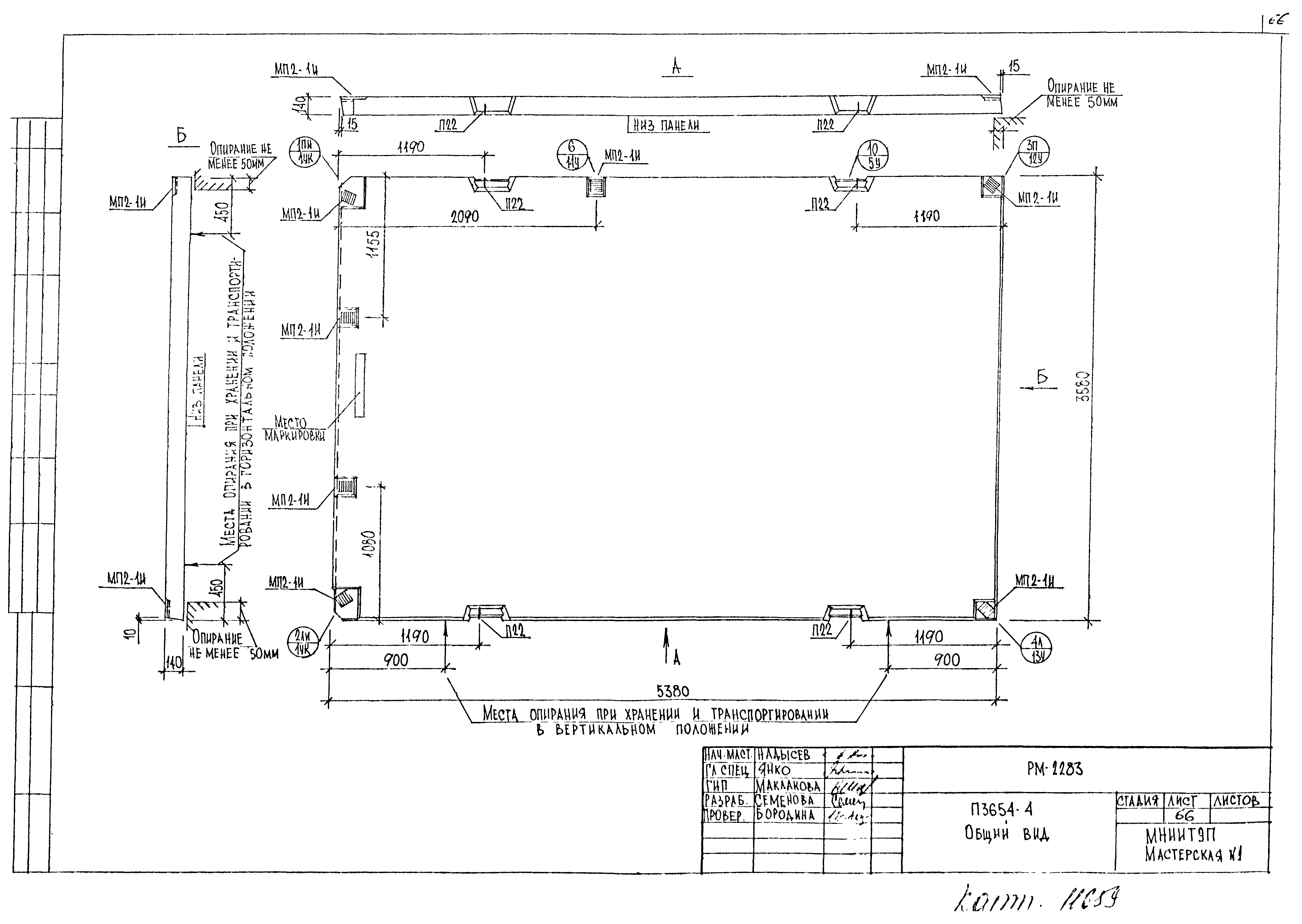
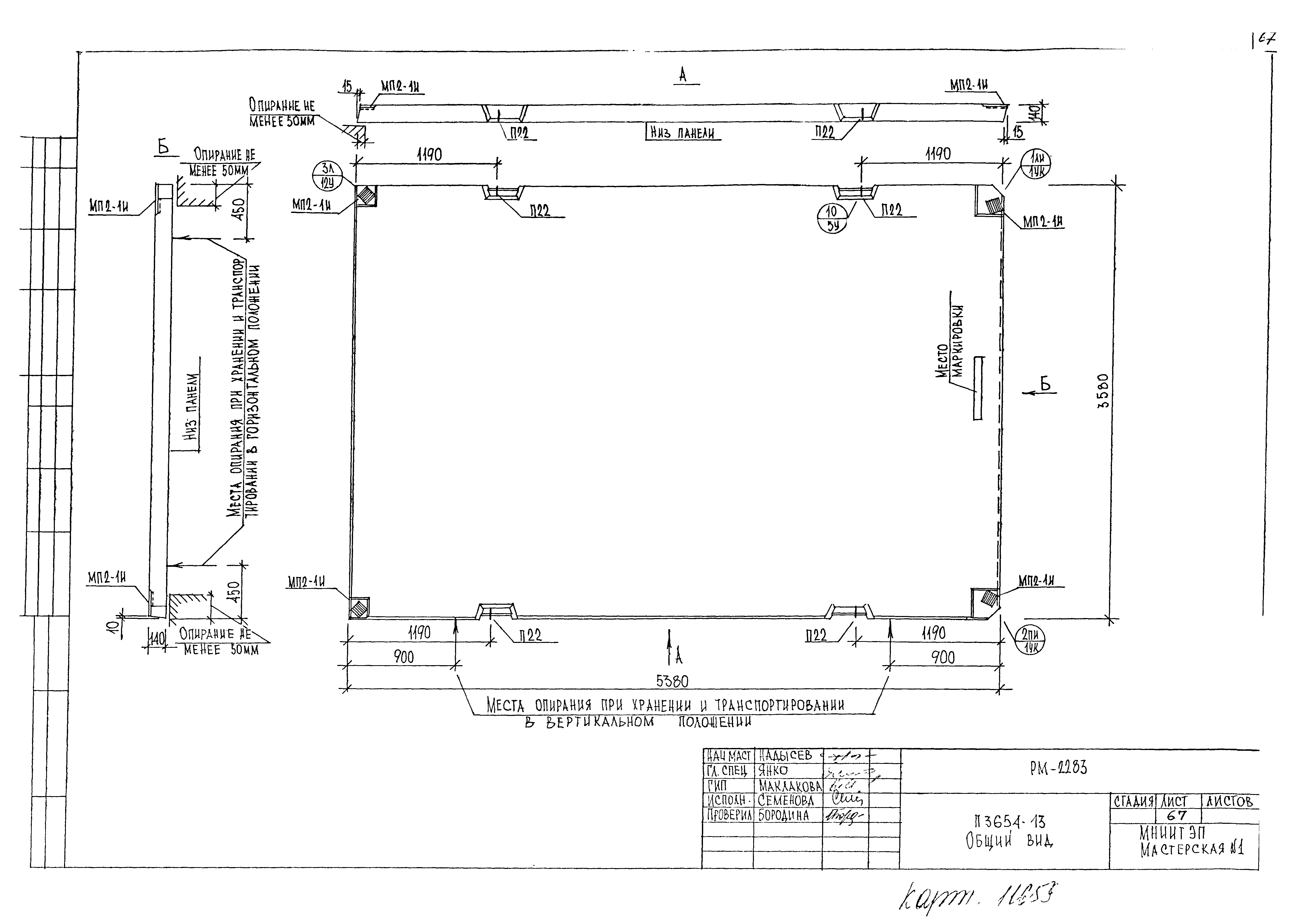
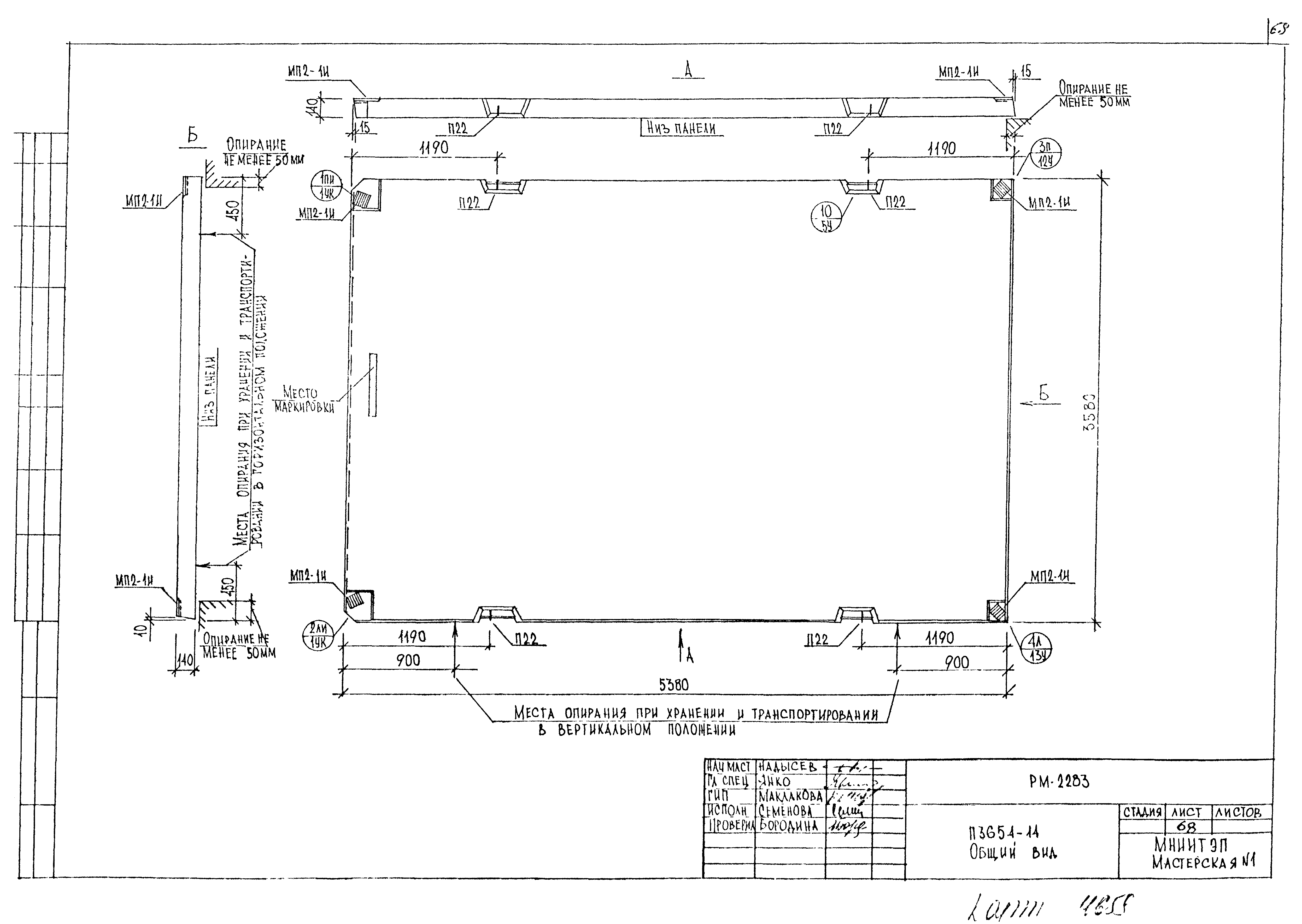
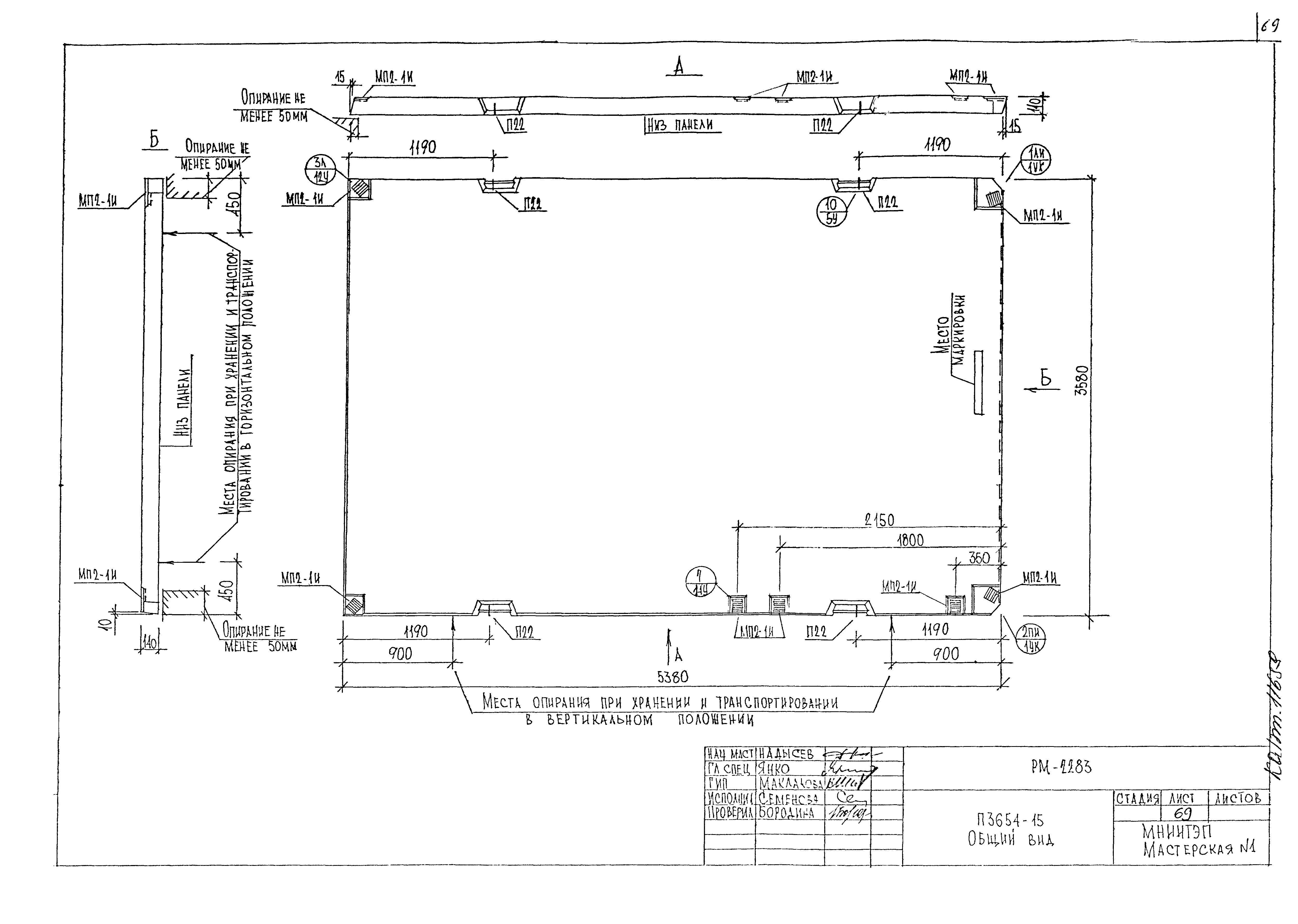
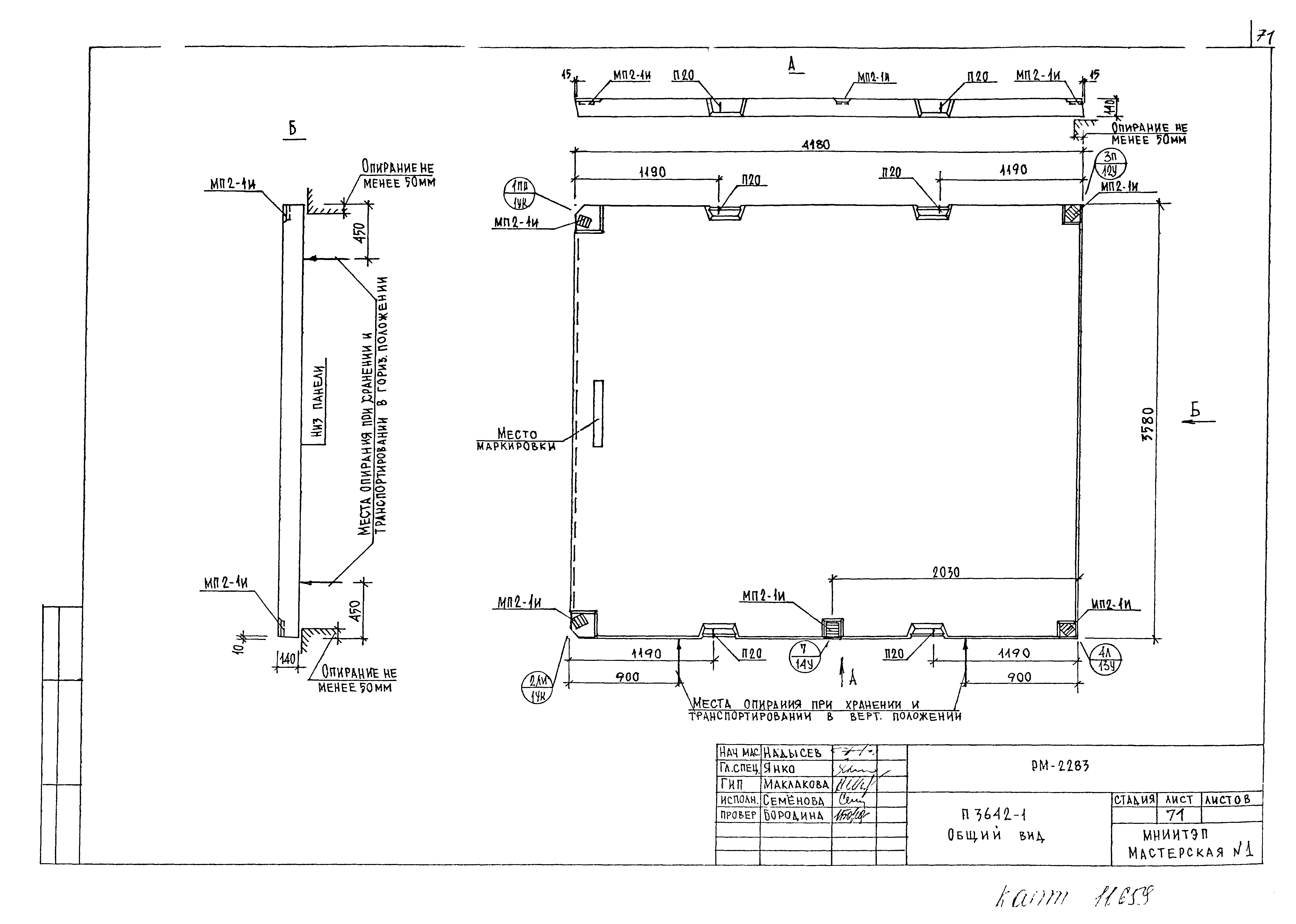
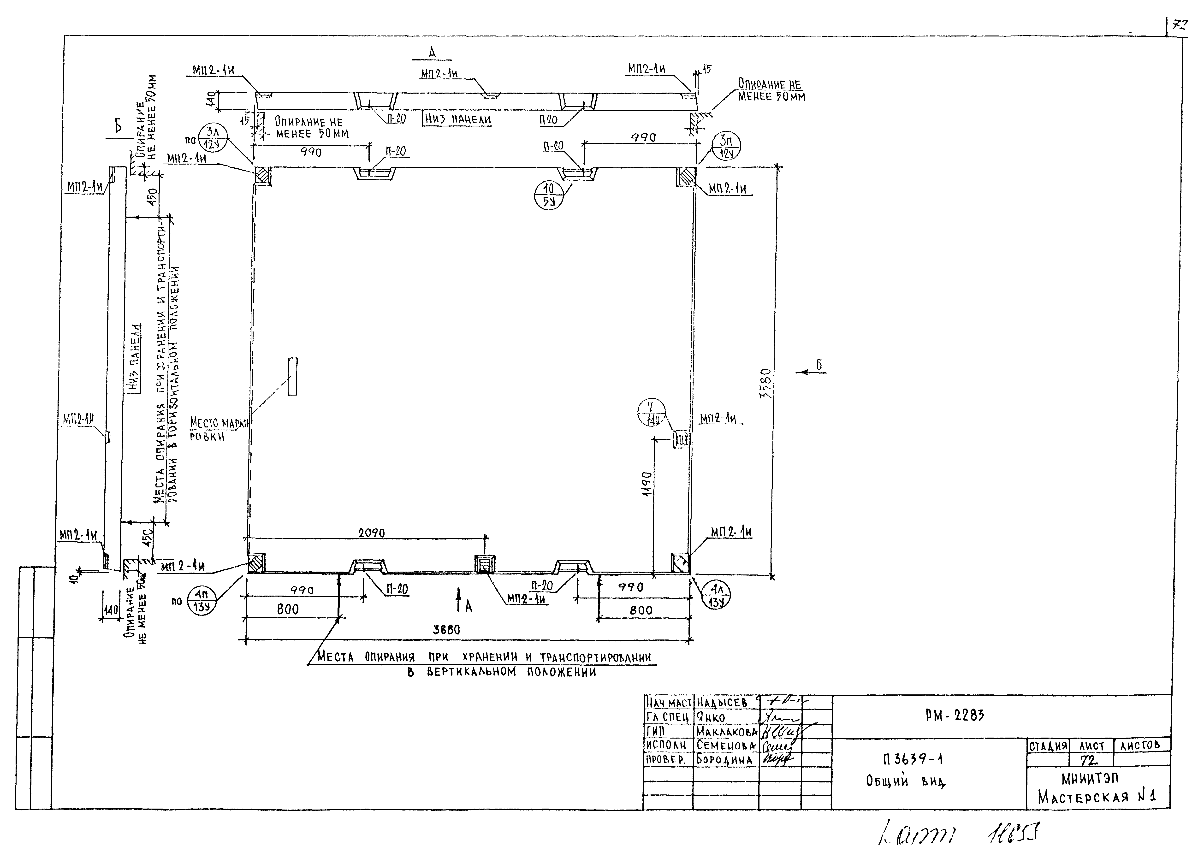
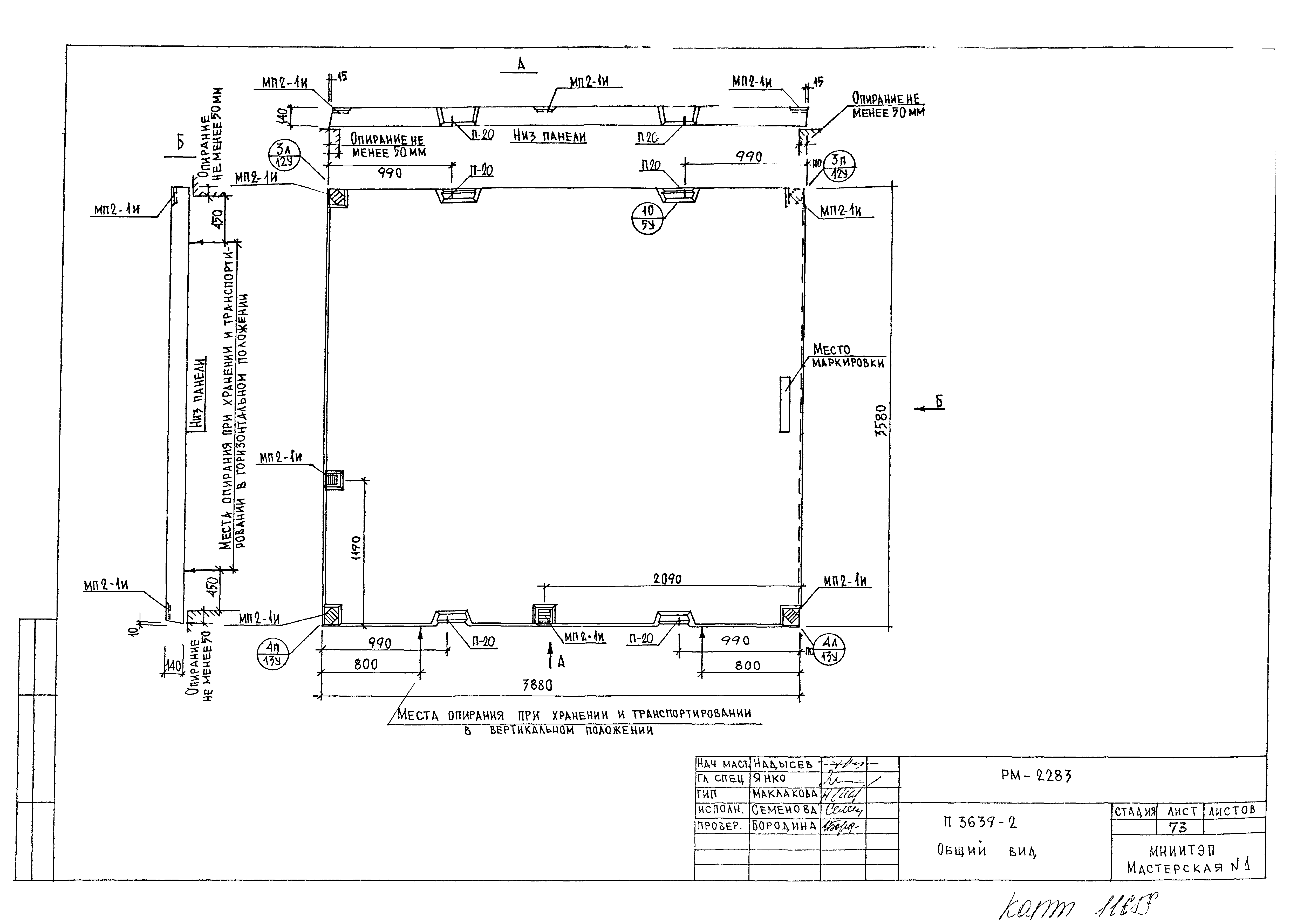
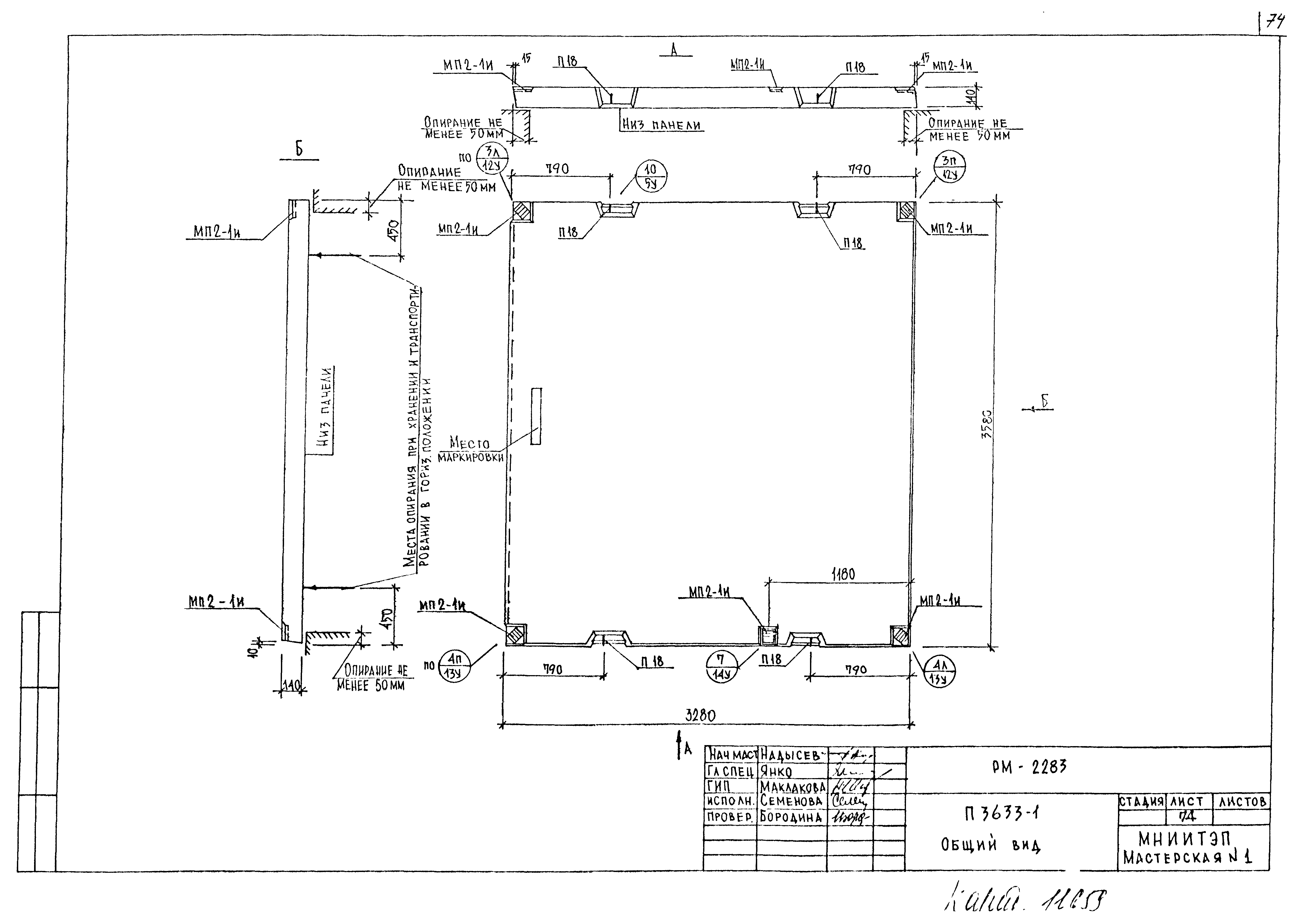
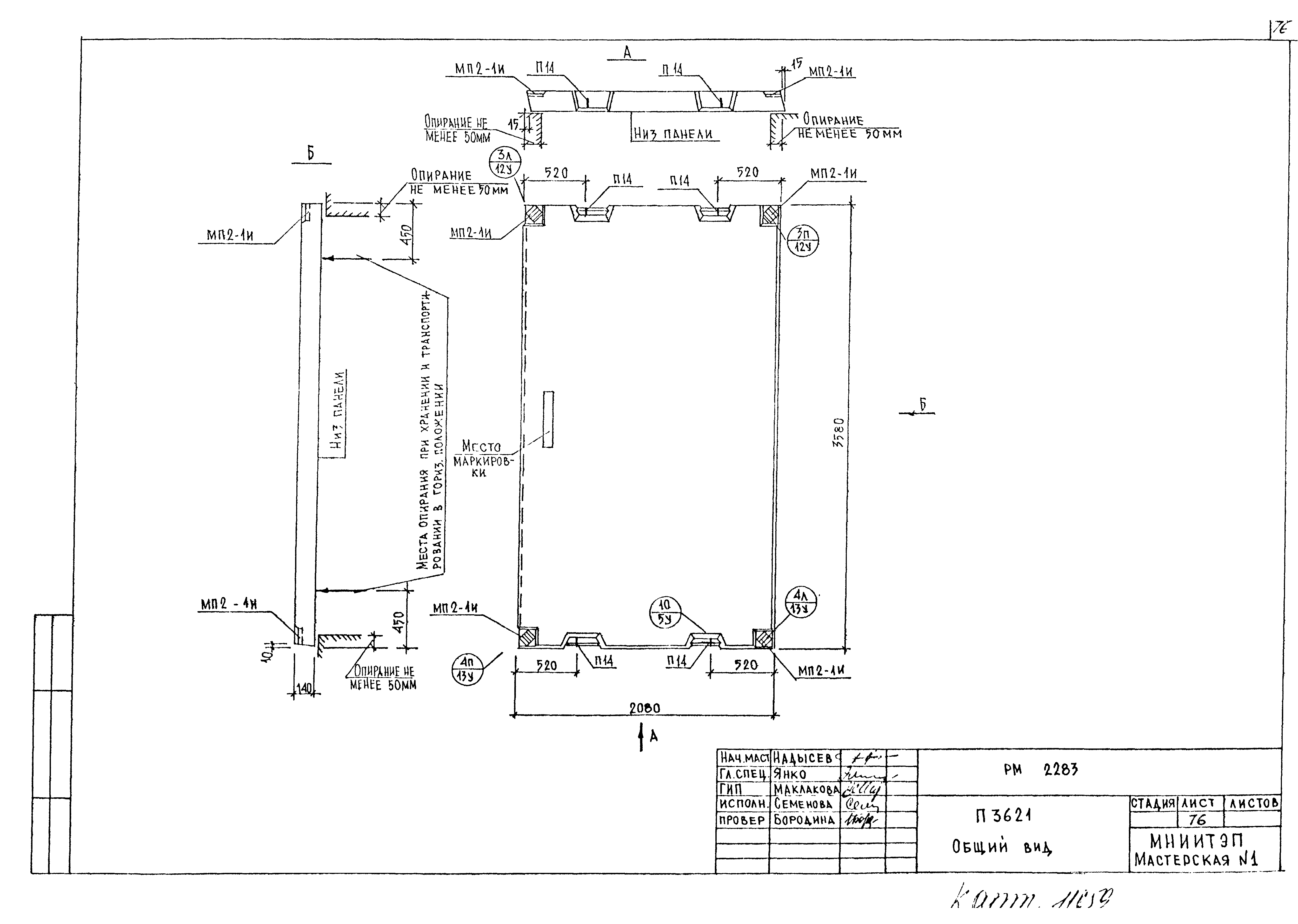
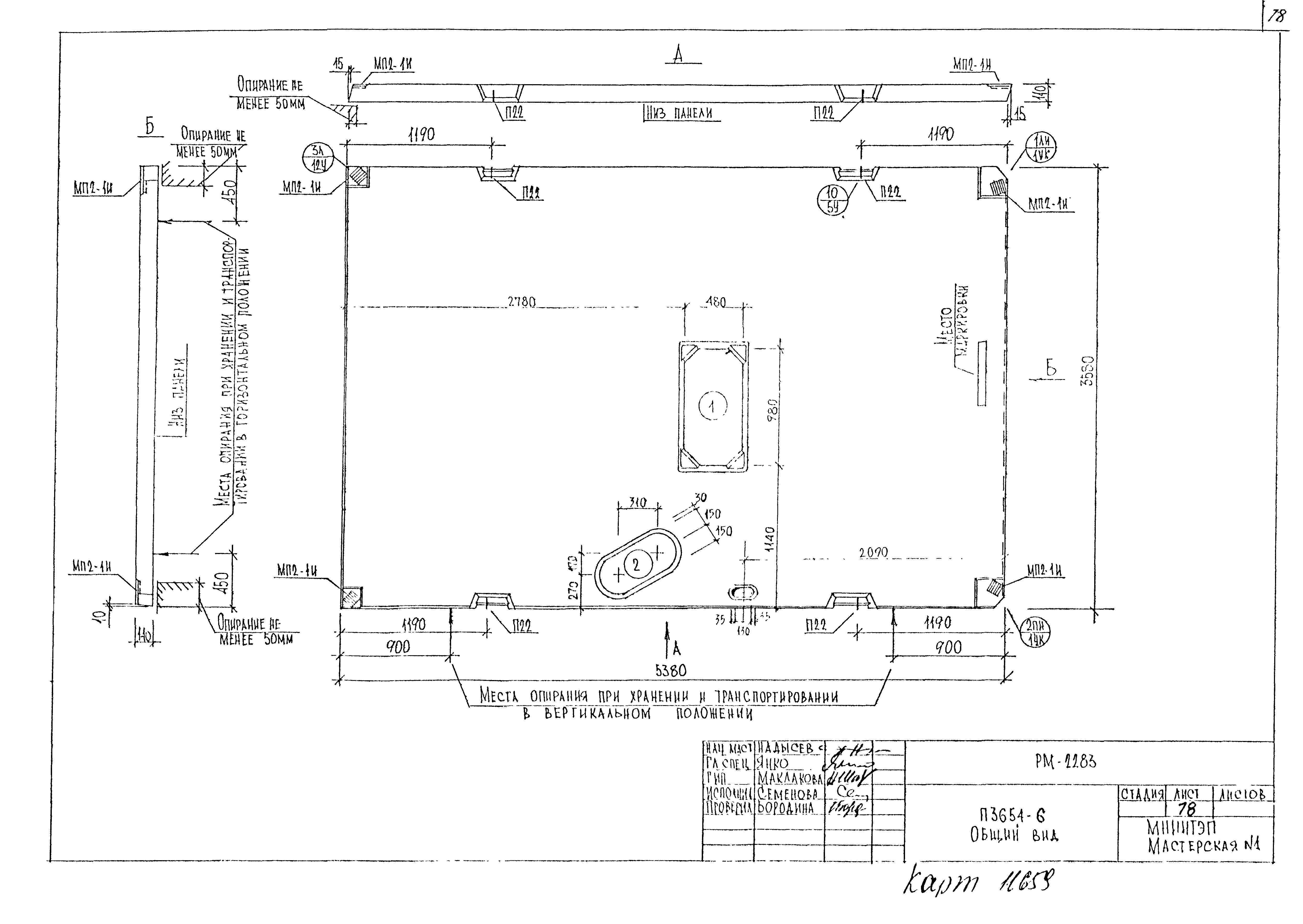
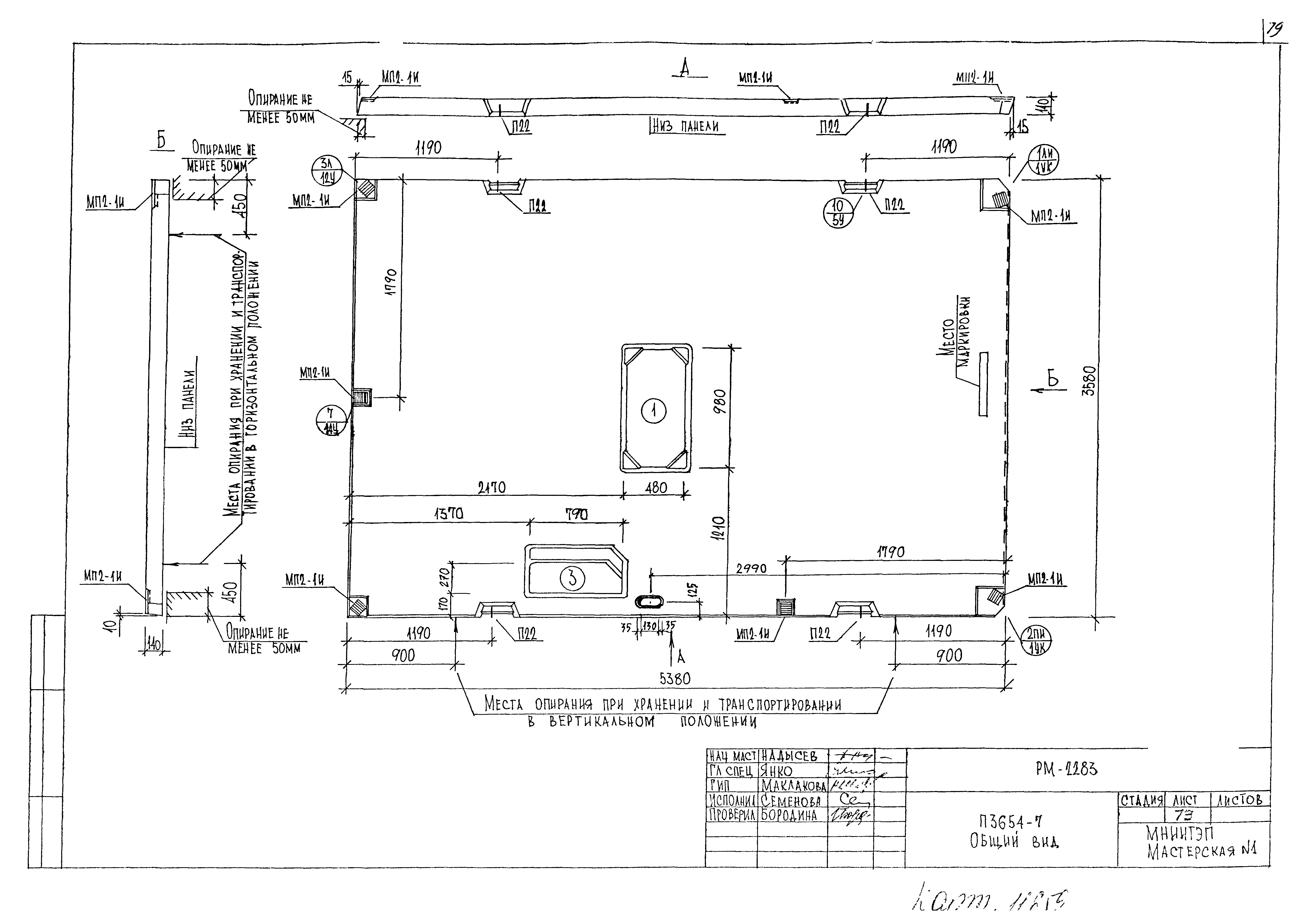
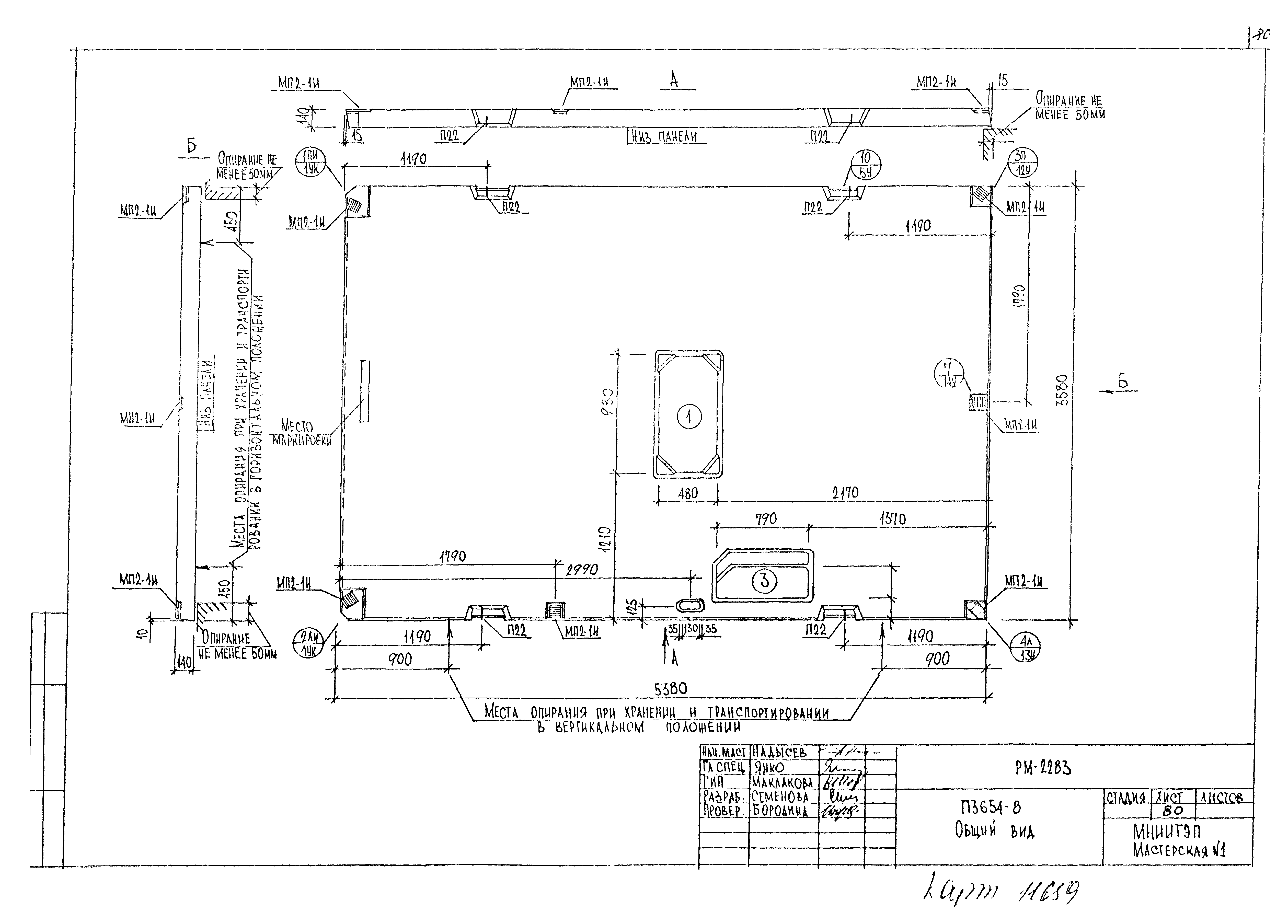
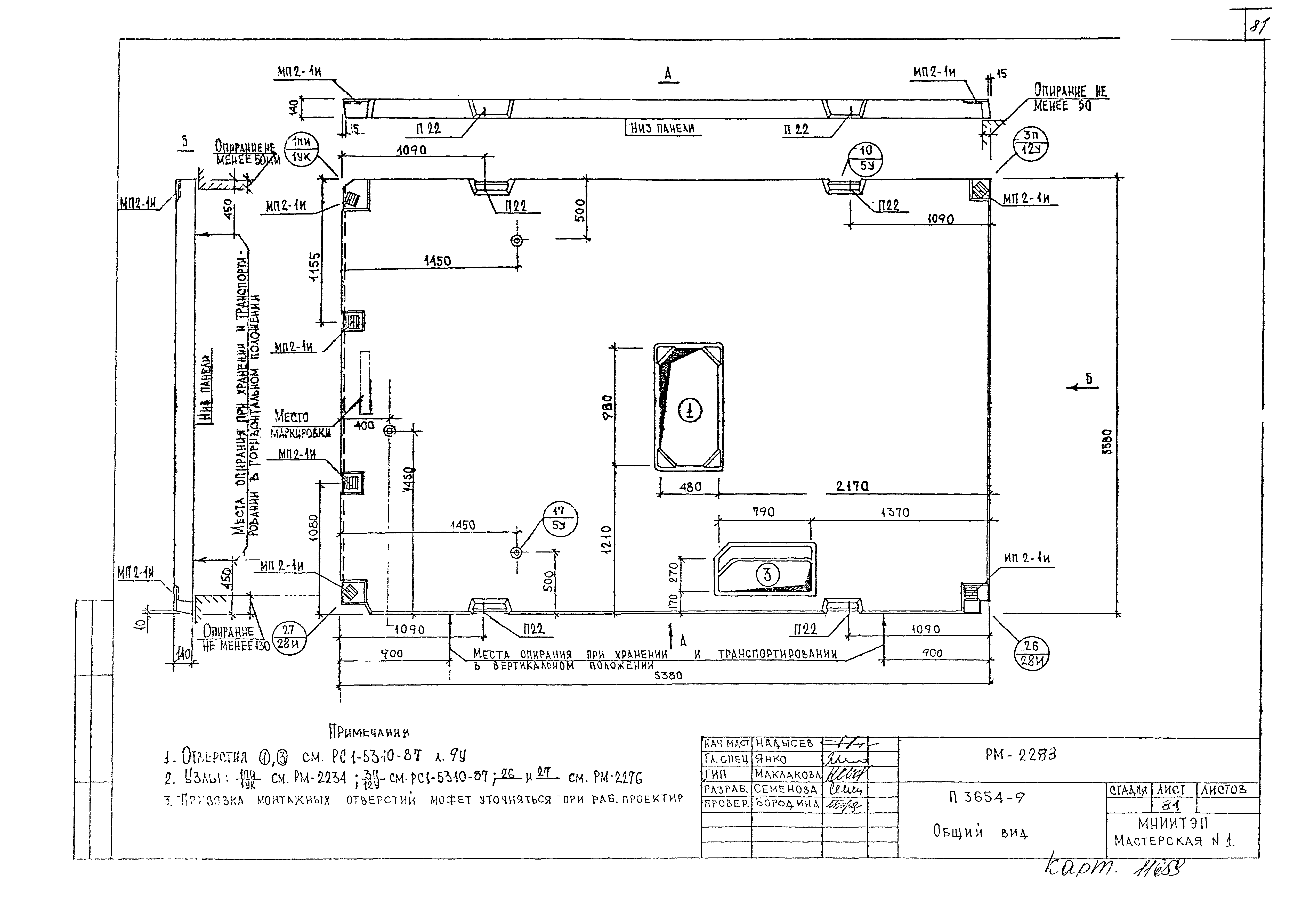
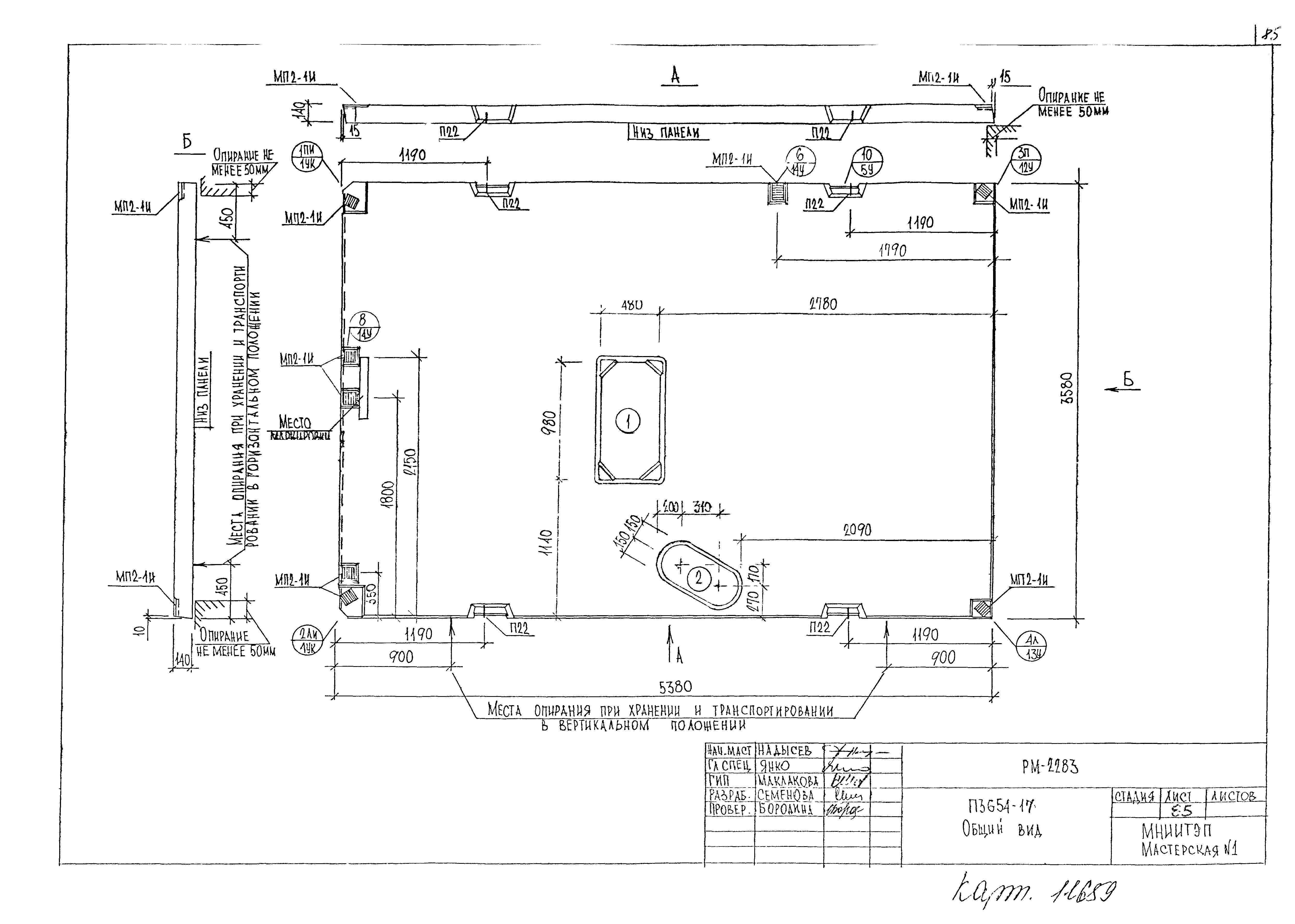
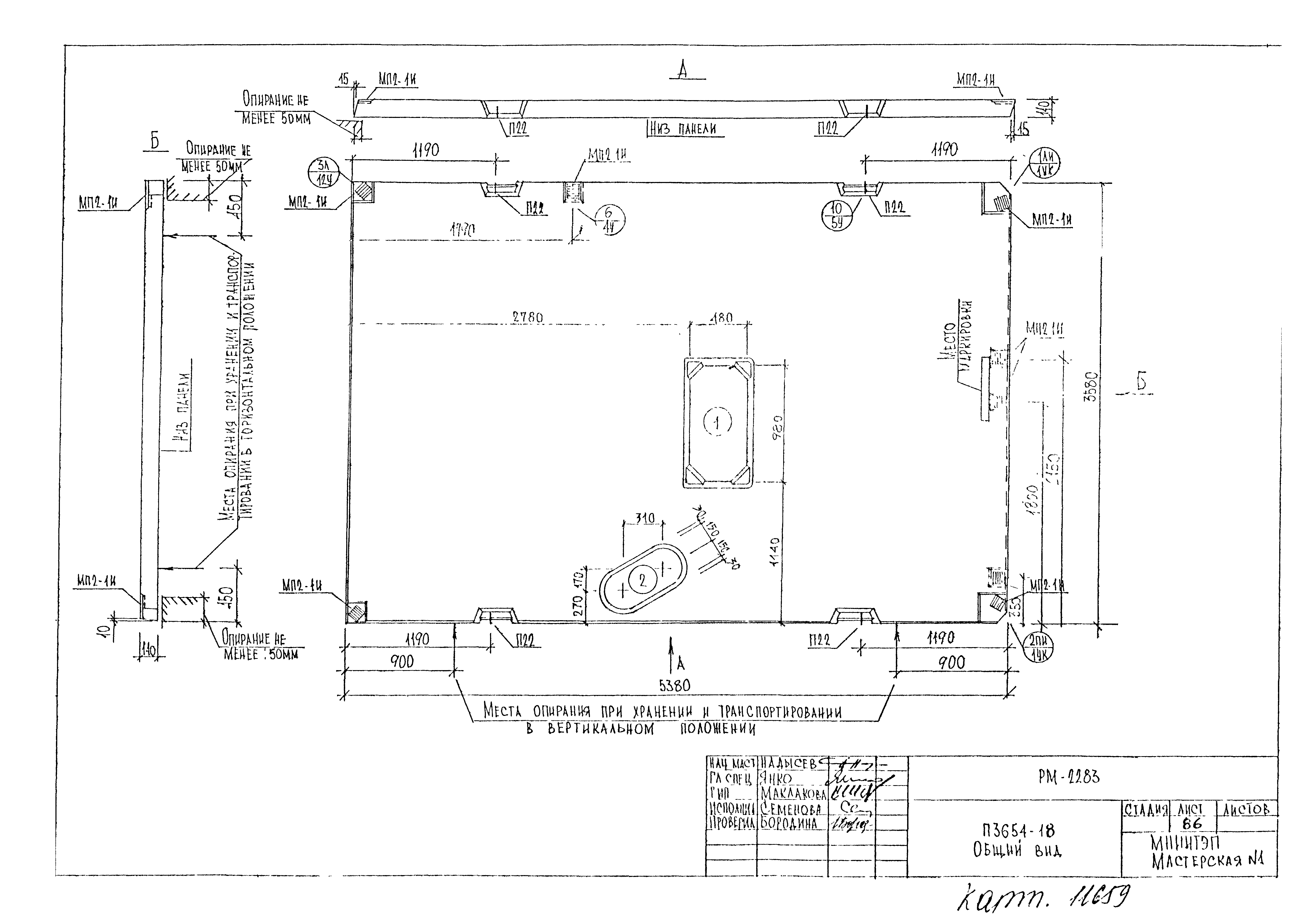
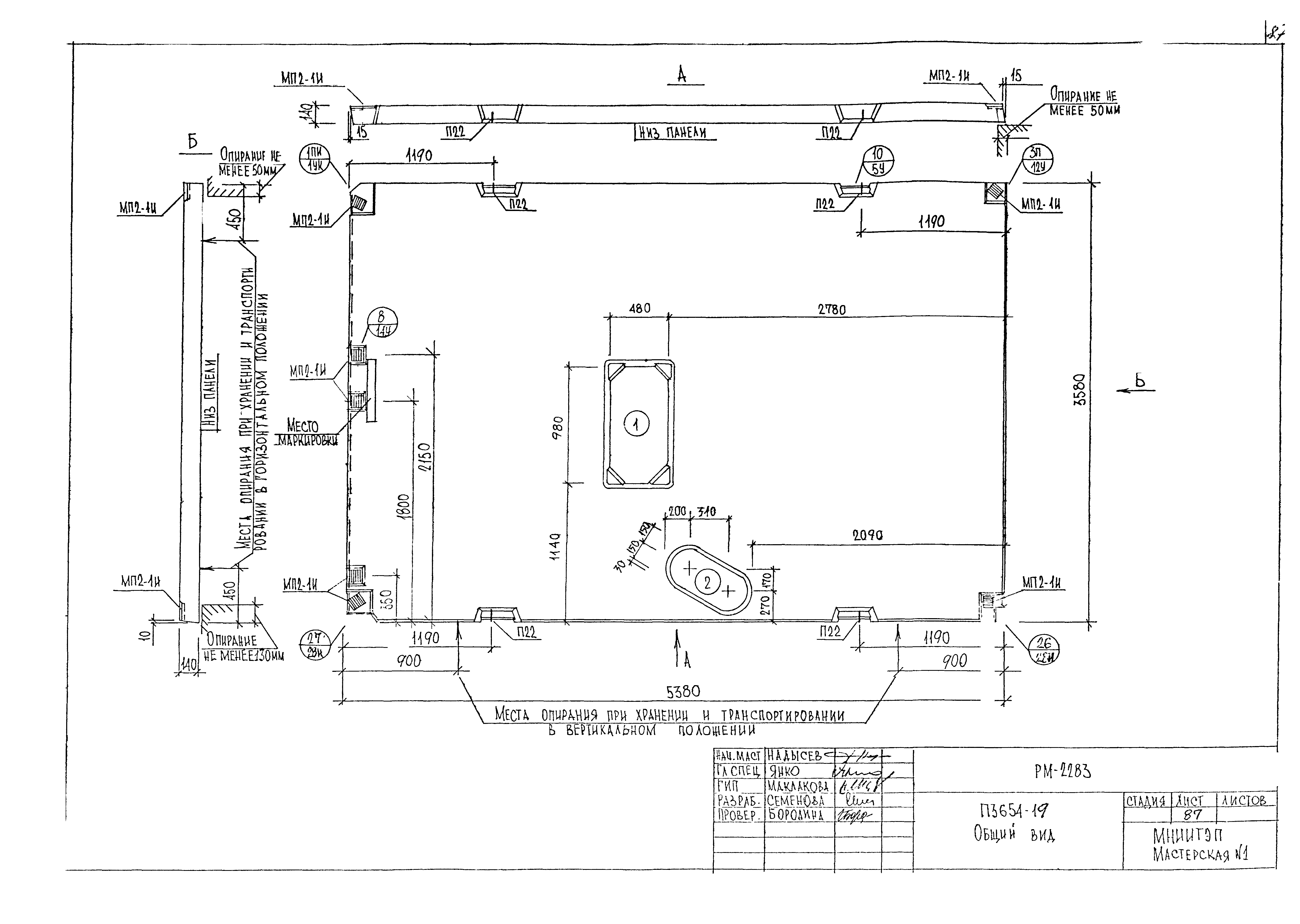
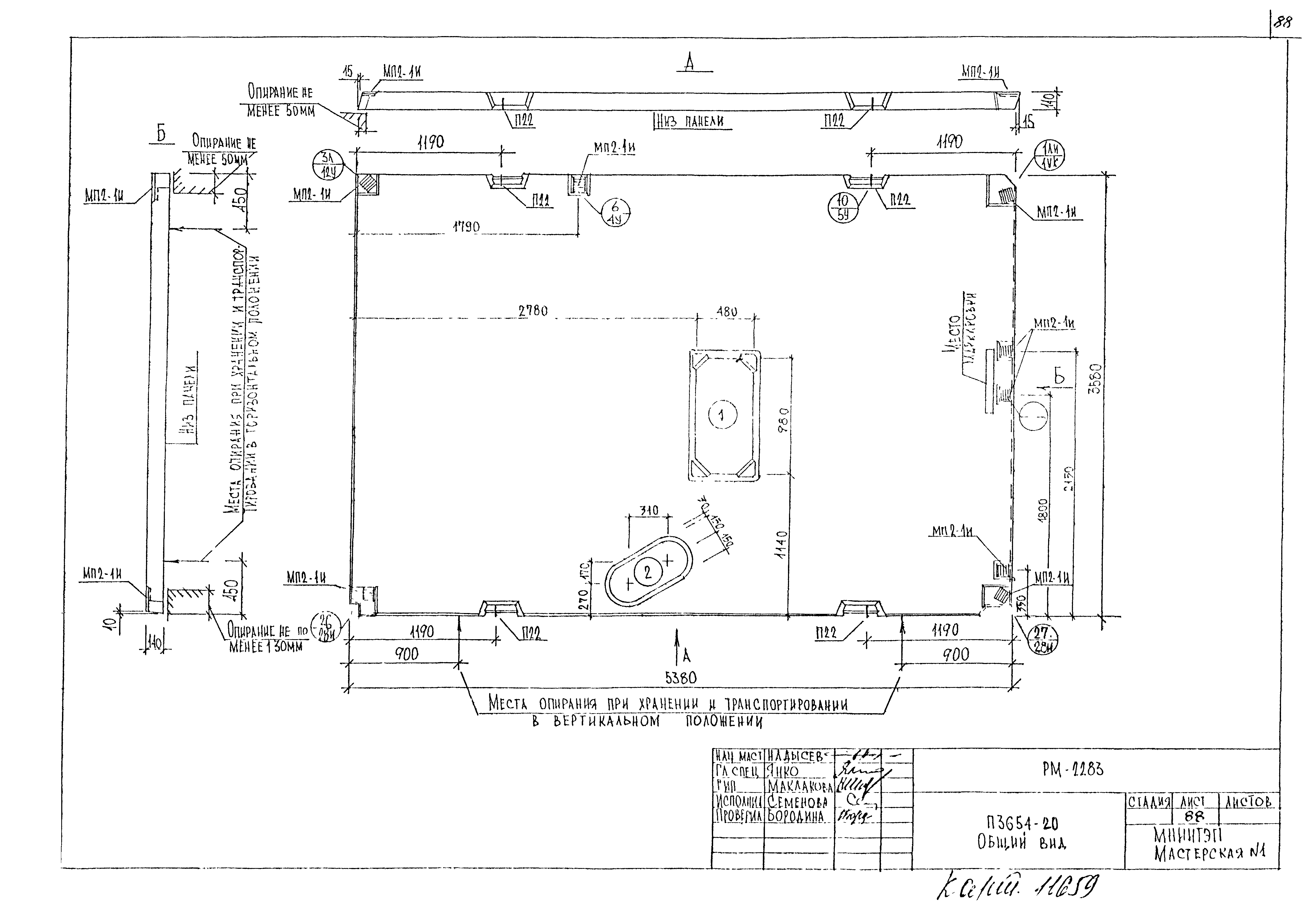
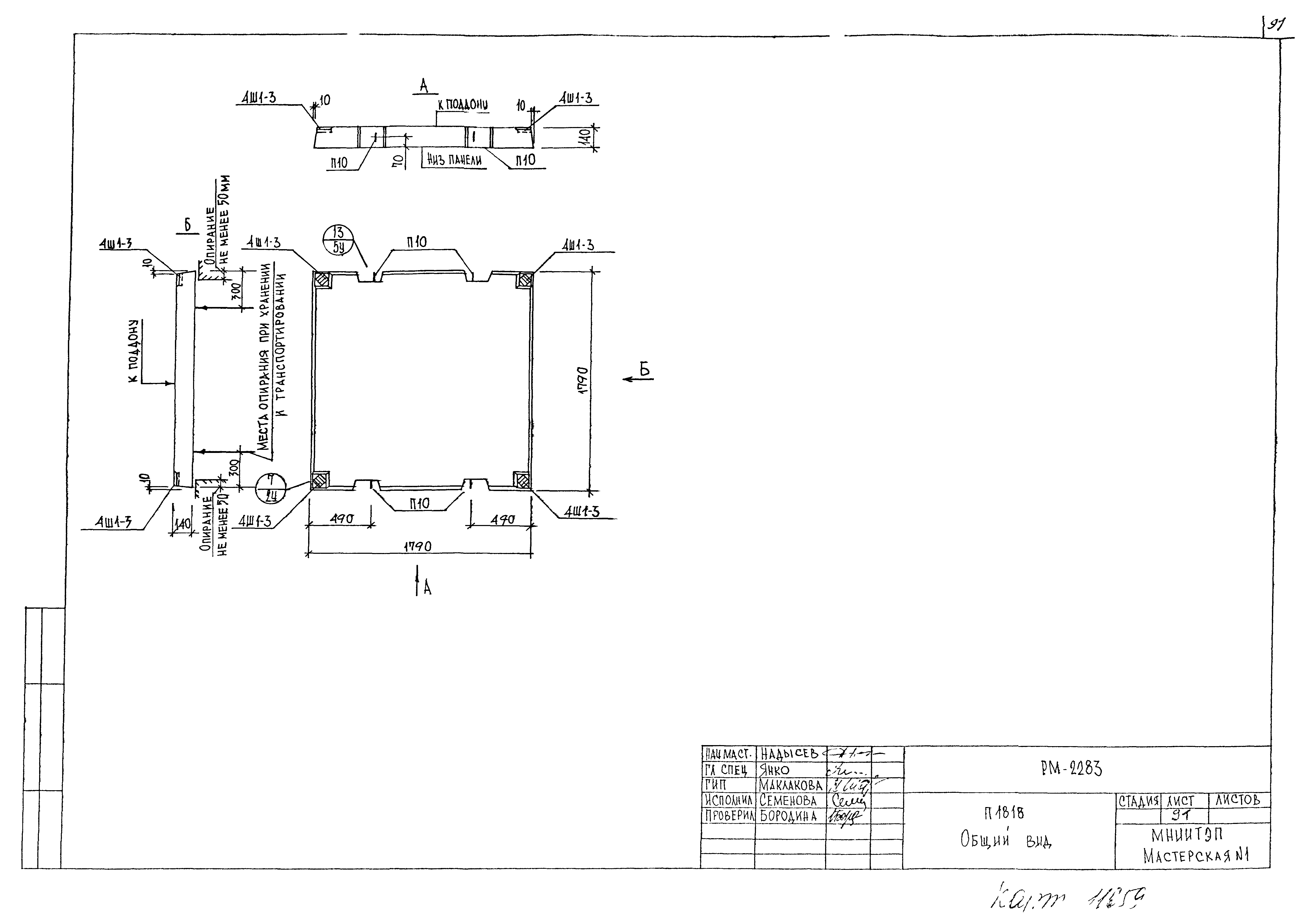
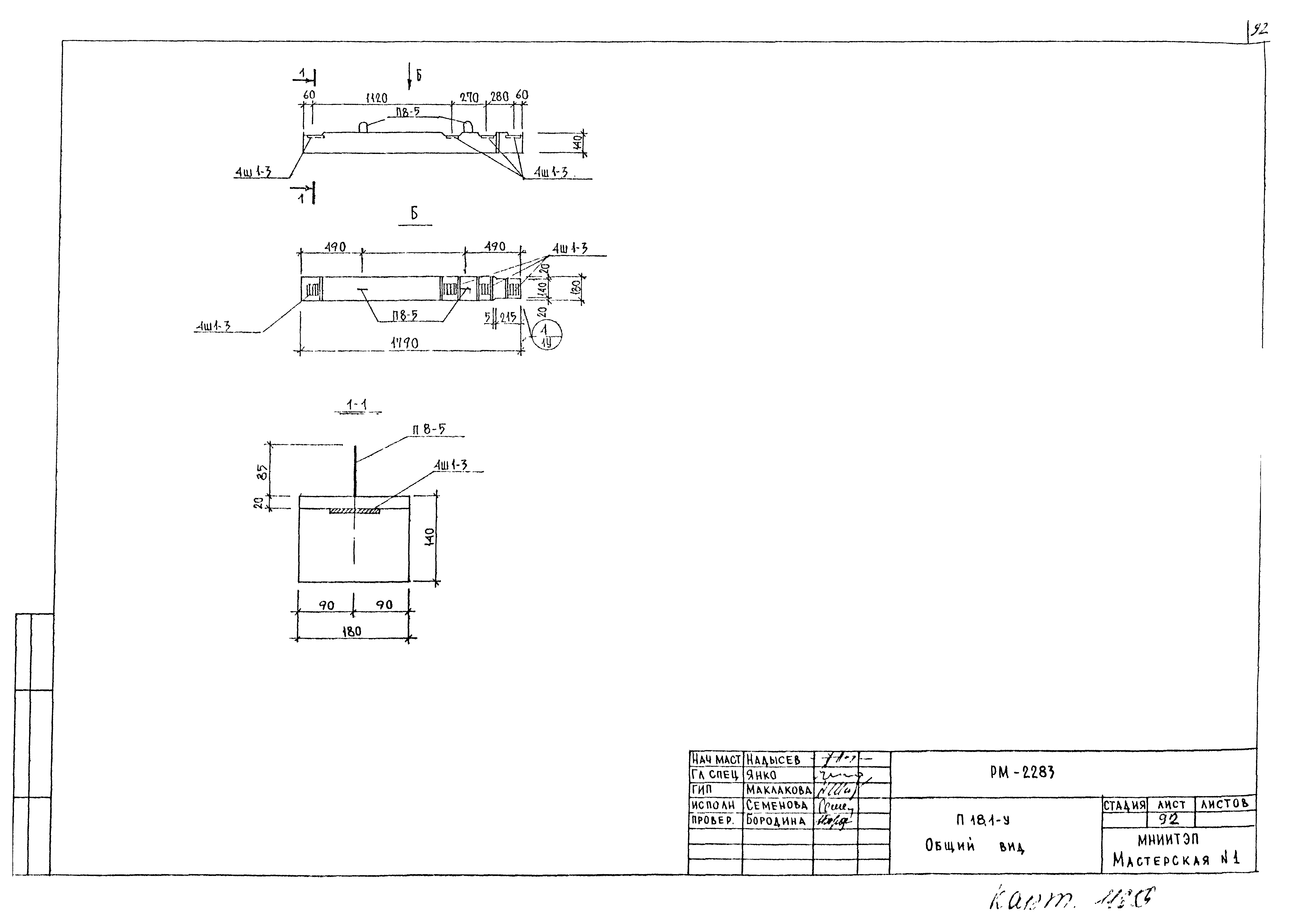
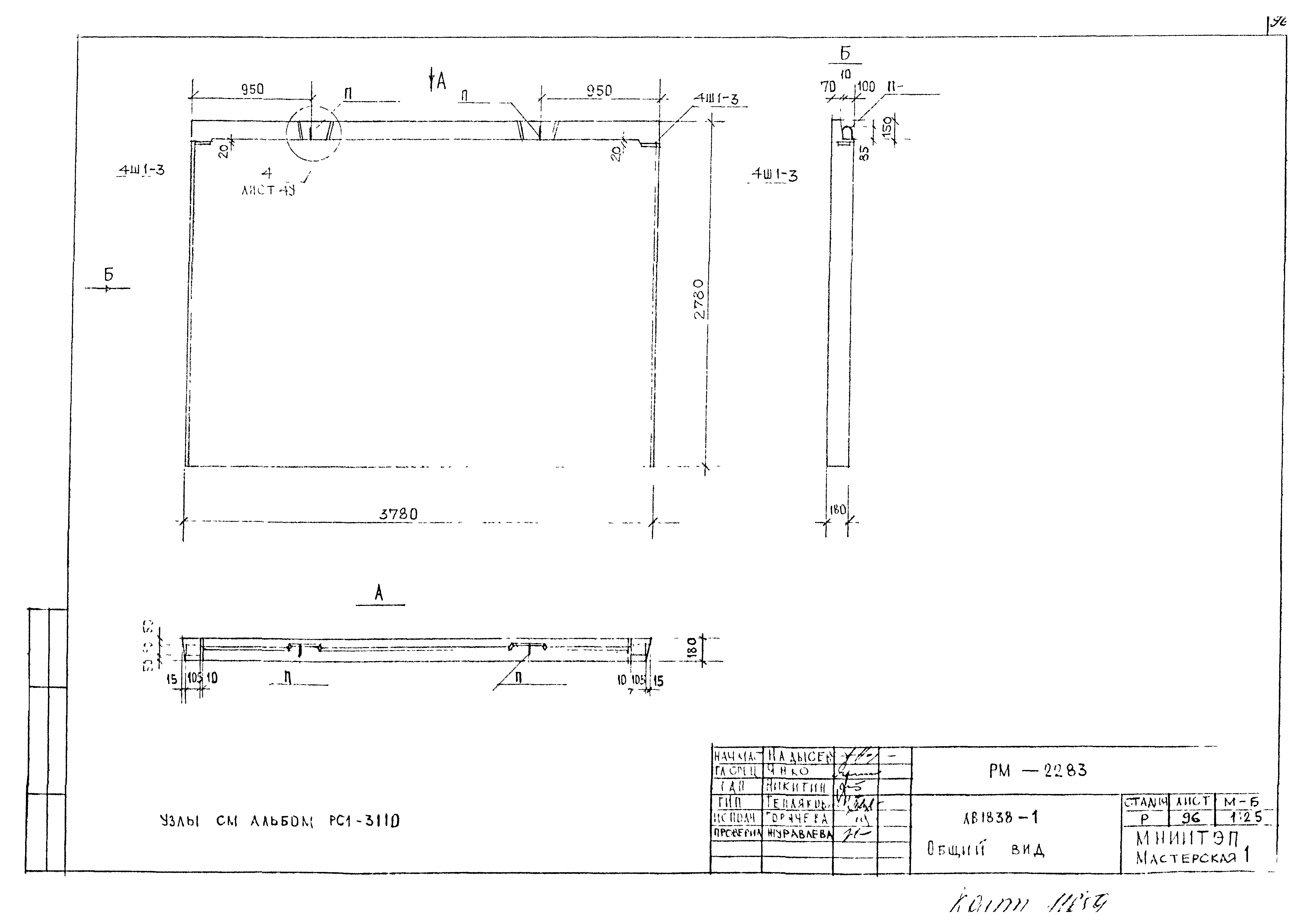
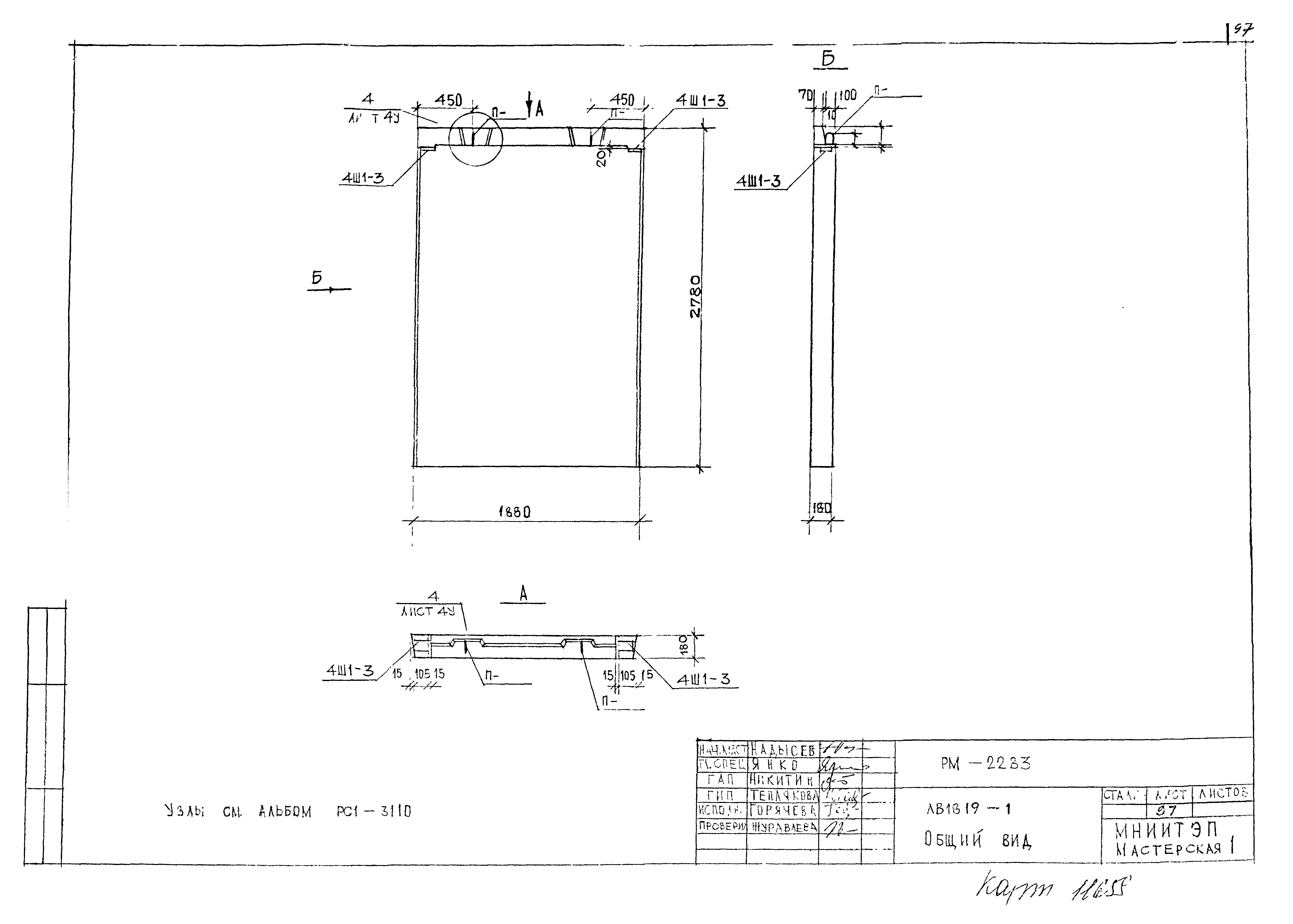
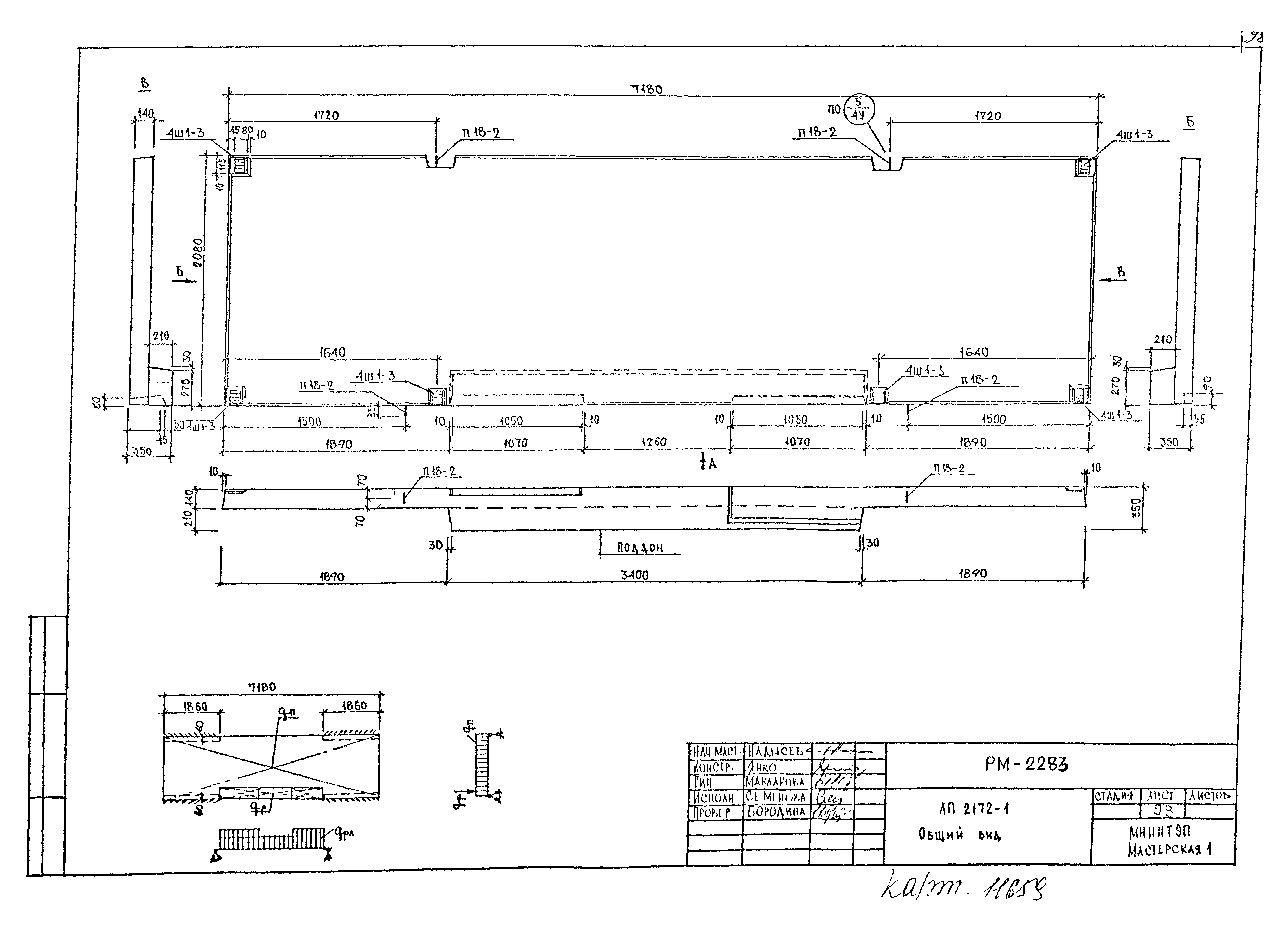
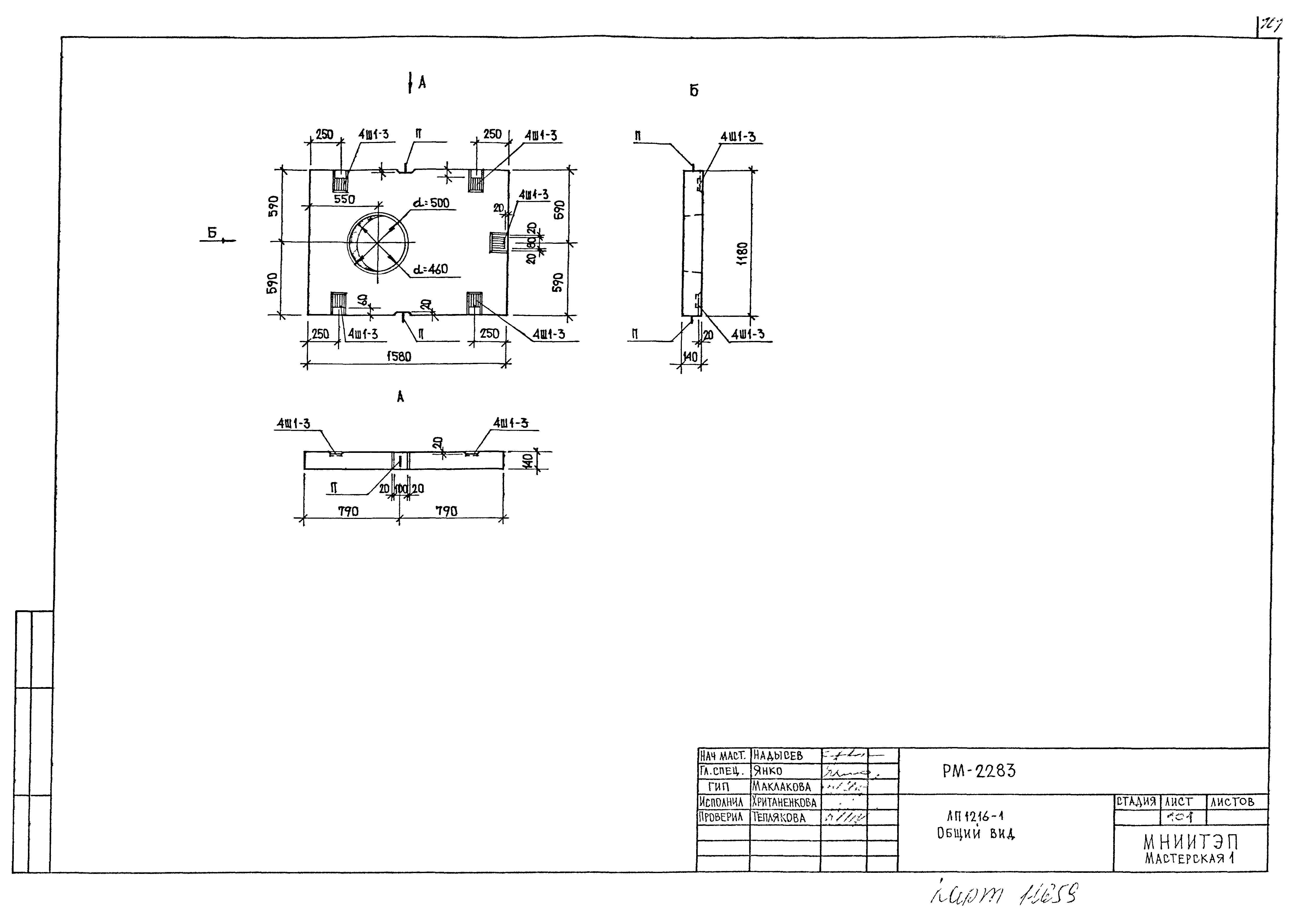
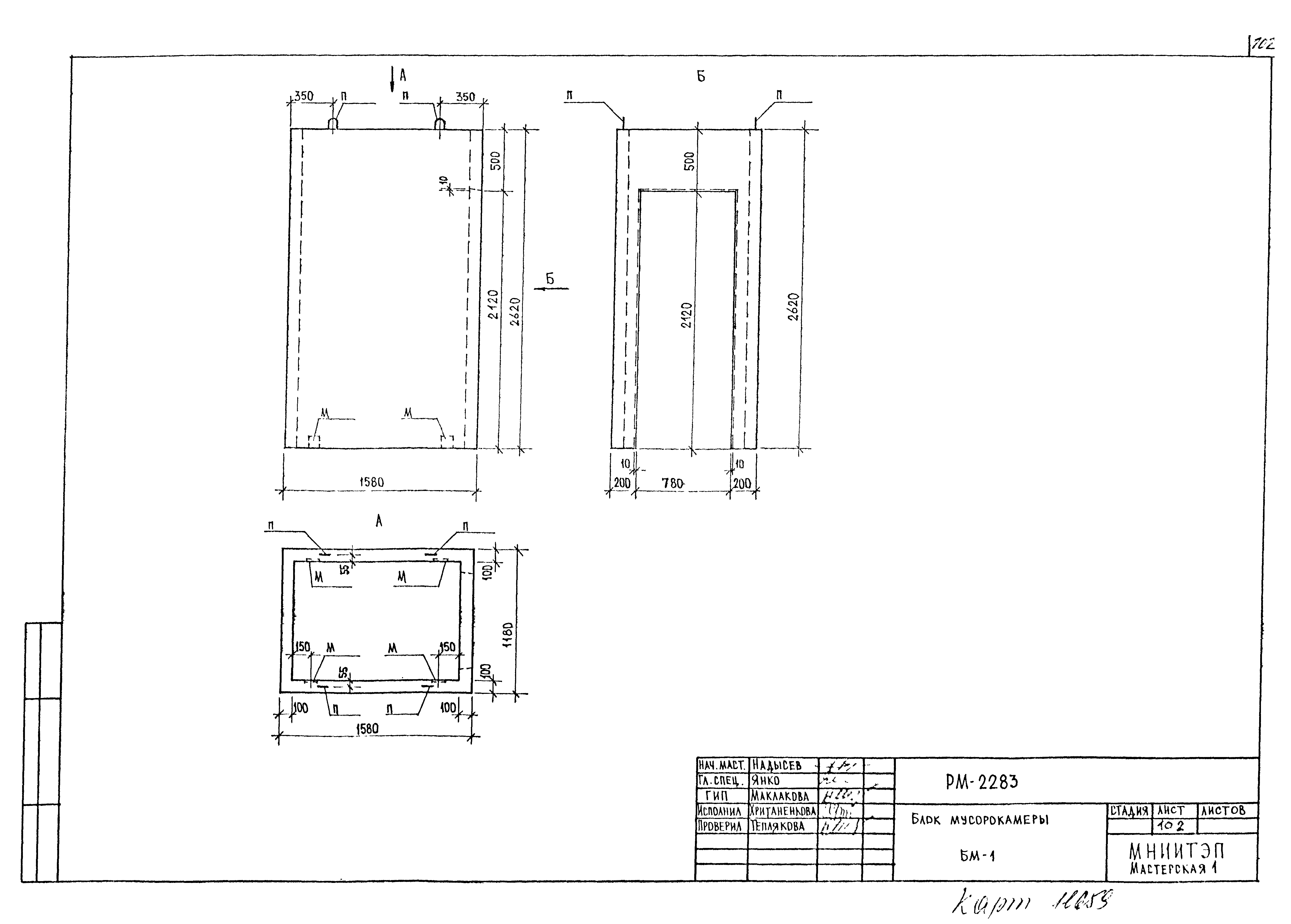
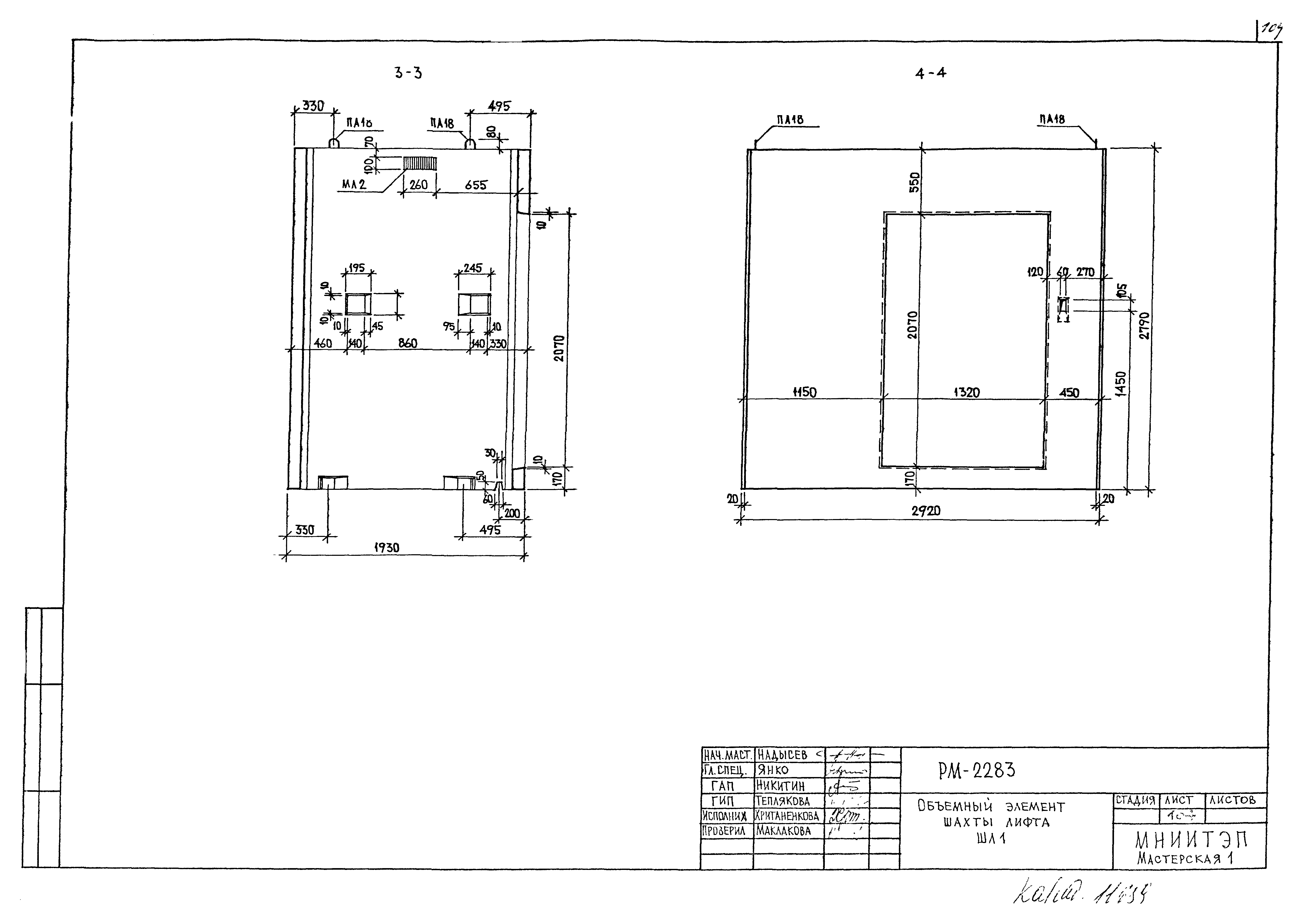
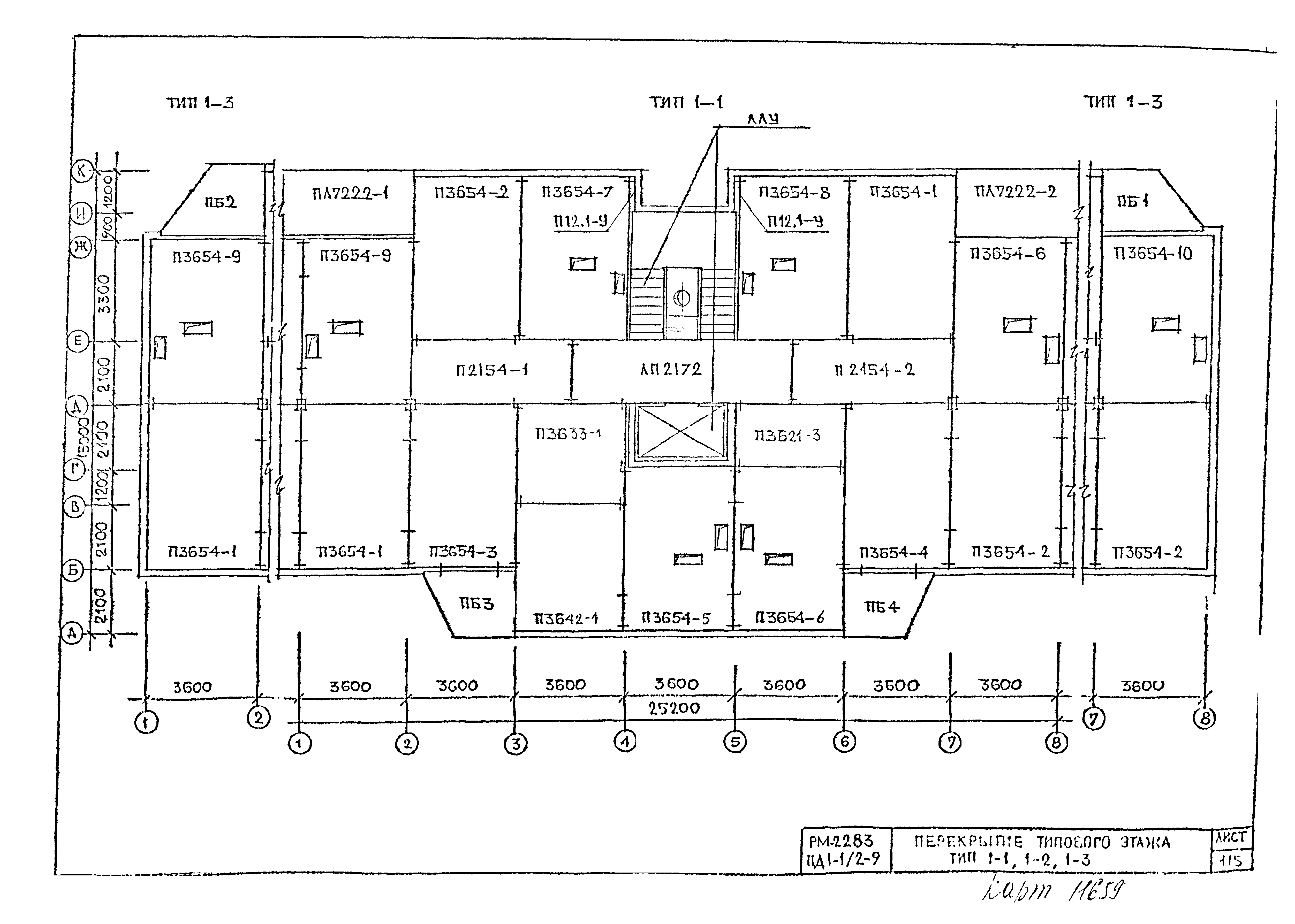
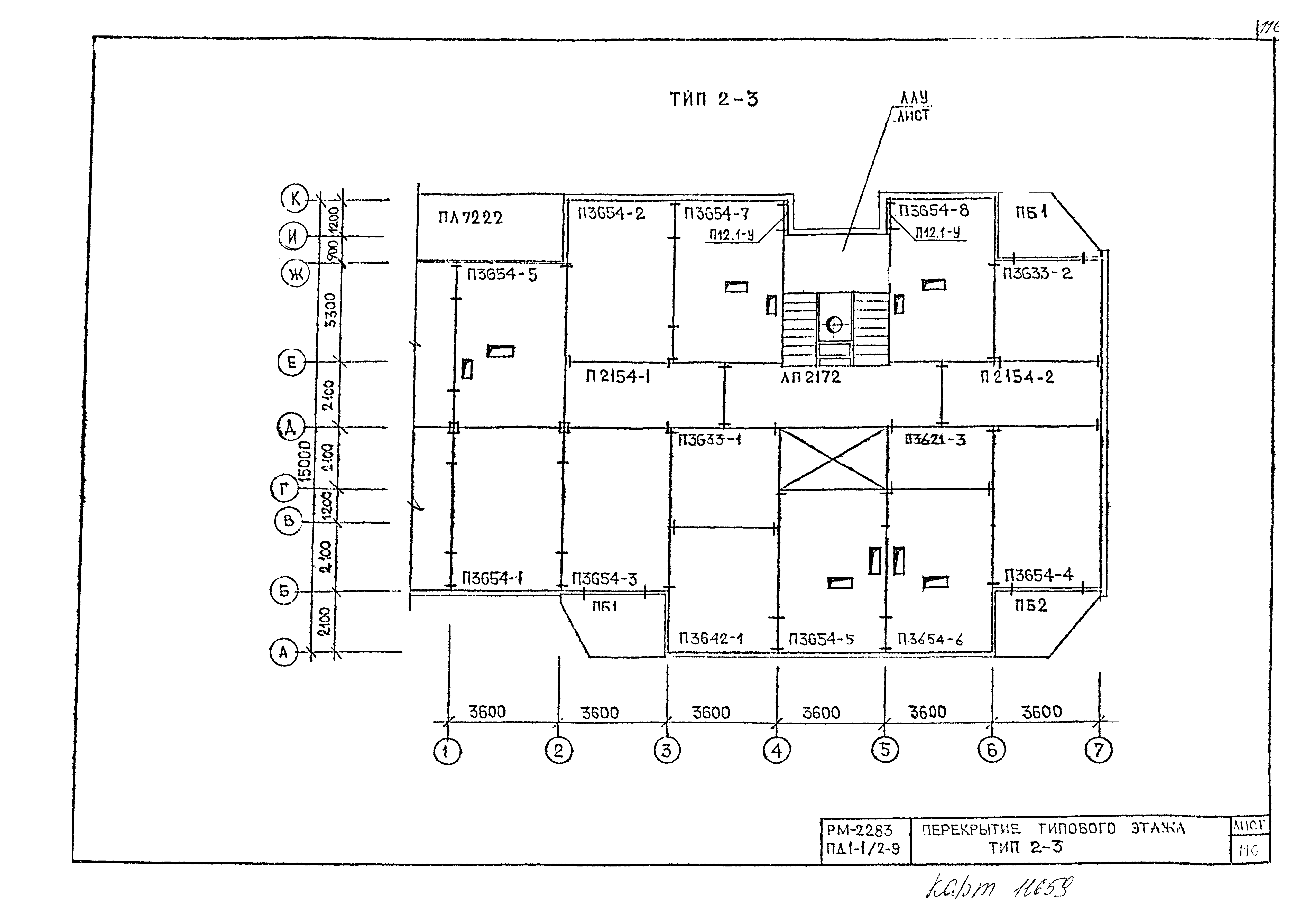
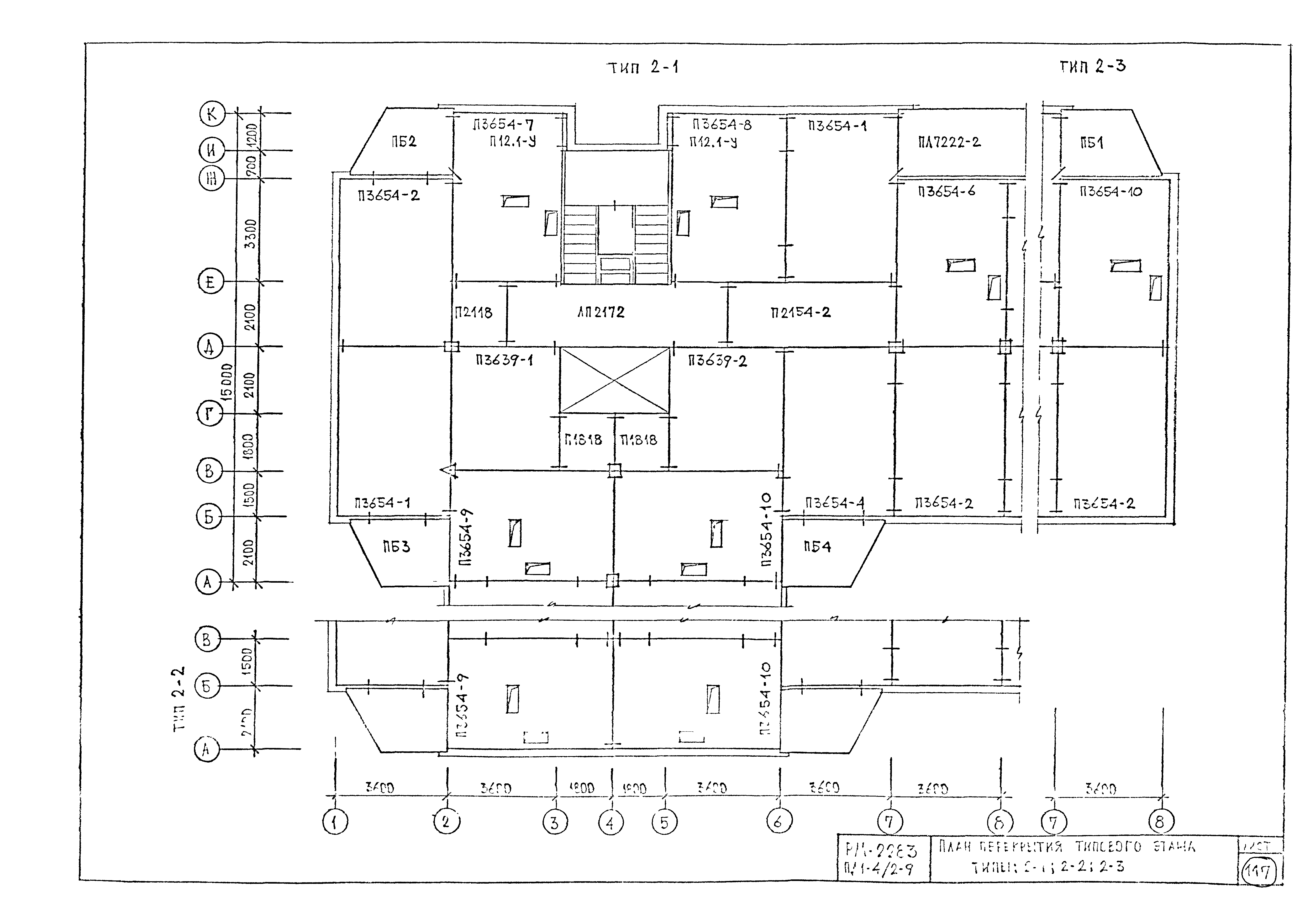
| Оглавление: | 1. Содержание. Пояснительная записка 2. Номенклатура наружных стеновых панелей 3. Опалубочные чертежи наружных стеновых панелей 4. Номенклатура внутренних стеновых панелей 5. Опалубочные чертежи панелей внутренних стен 6. Номенклатура - панелей перекрытий 7. Опалубочные чертежи панелей перекрытия 8. Номенклатура изделий лестнично-лифтового узла. Изделия лестнично-лифтового узла 9. Панели внутренних стен 10. Лестничные площадки 11. Объемный элемент шахты лифта 12. Блок мусорокамеры 13. Номенклатура плит лоджий и балконов 14. Опалубочные чертежи плит лоджий и балконов 15. Планы стен типовых этажей 16. Планы перекрытий типовых этажей |
| Разработан: | МНИИТЭП |
| Утверждён: | 01.01.1992 МНИИТЭП (MNIITEP ) |




















































































































