Скачать Альбом УАС 1-1 Рабочая документация. Монтажные узлы и деталиДата актуализации: 01.01.2021
|
| Обозначение: | Альбом УАС 1-1 |
| Обозначение англ: | УАС 1-1 |
| Статус: | не определен законодательством |
| Название рус.: | Рабочая документация. Монтажные узлы и детали |
| Дата добавления в базу: | 01.09.2013 |
| Дата актуализации: | 01.01.2021 |
| Дата введения: | 01.08.2002 |
| Дата окончания срока действия: | 30.06.2003 |
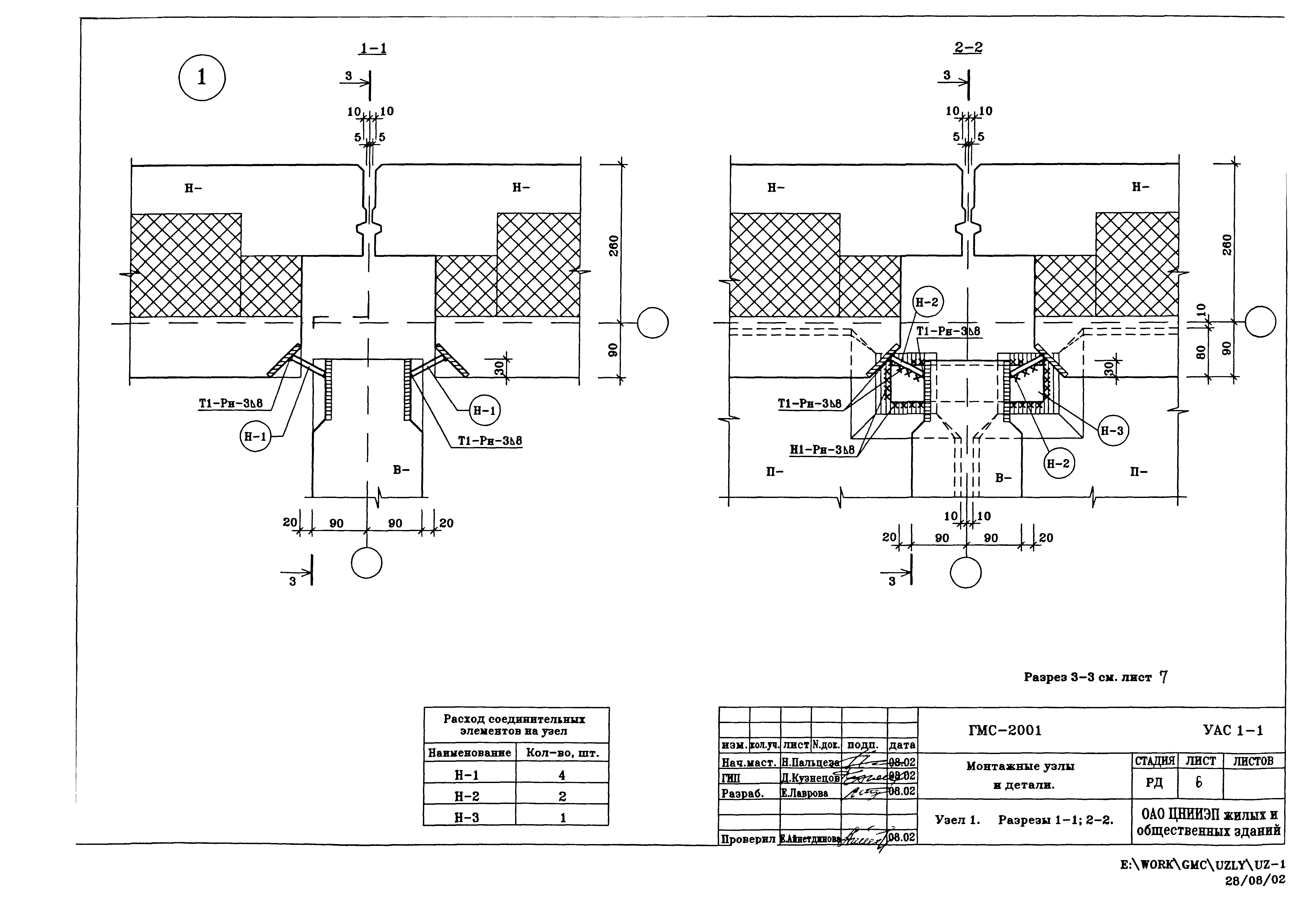
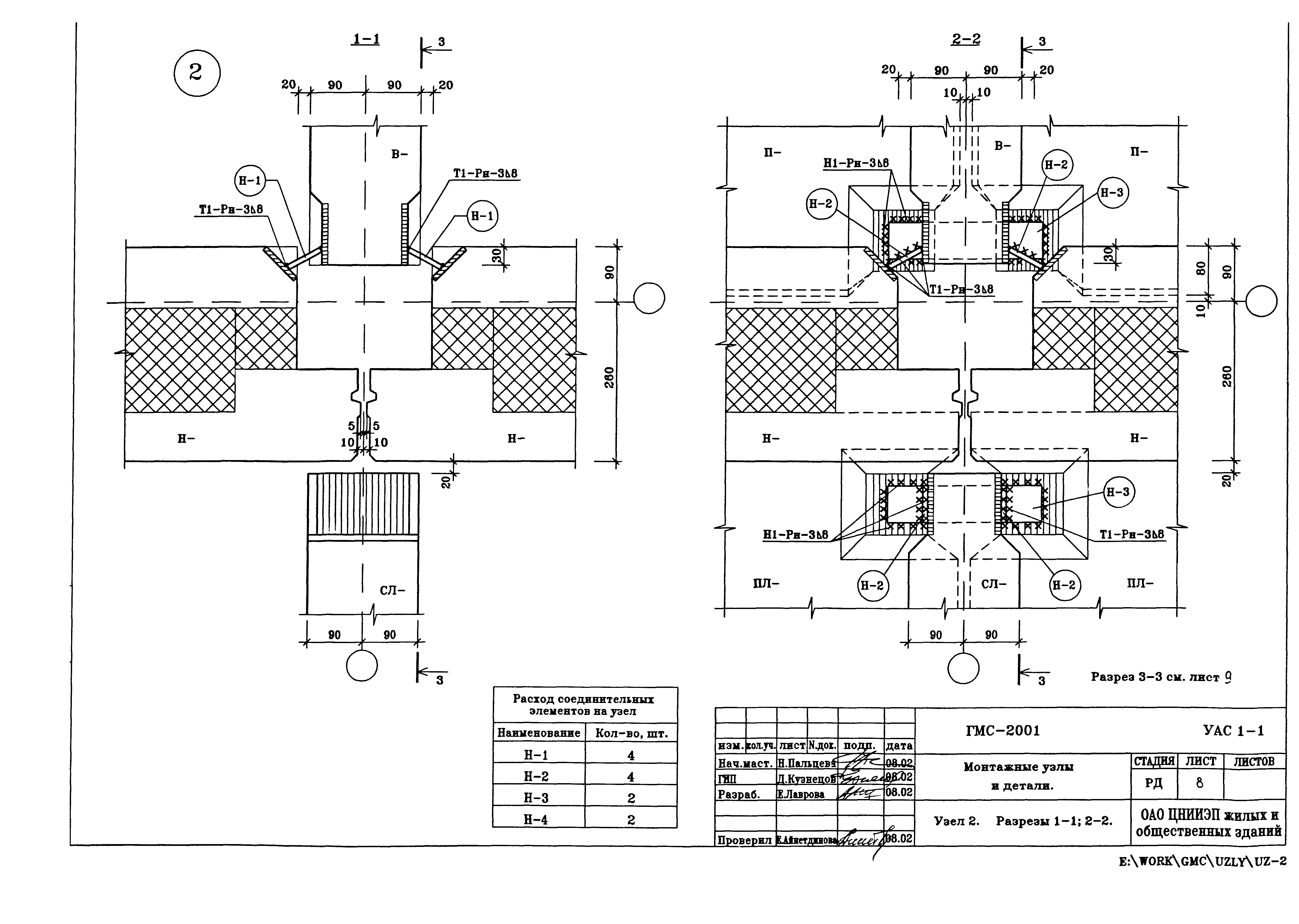
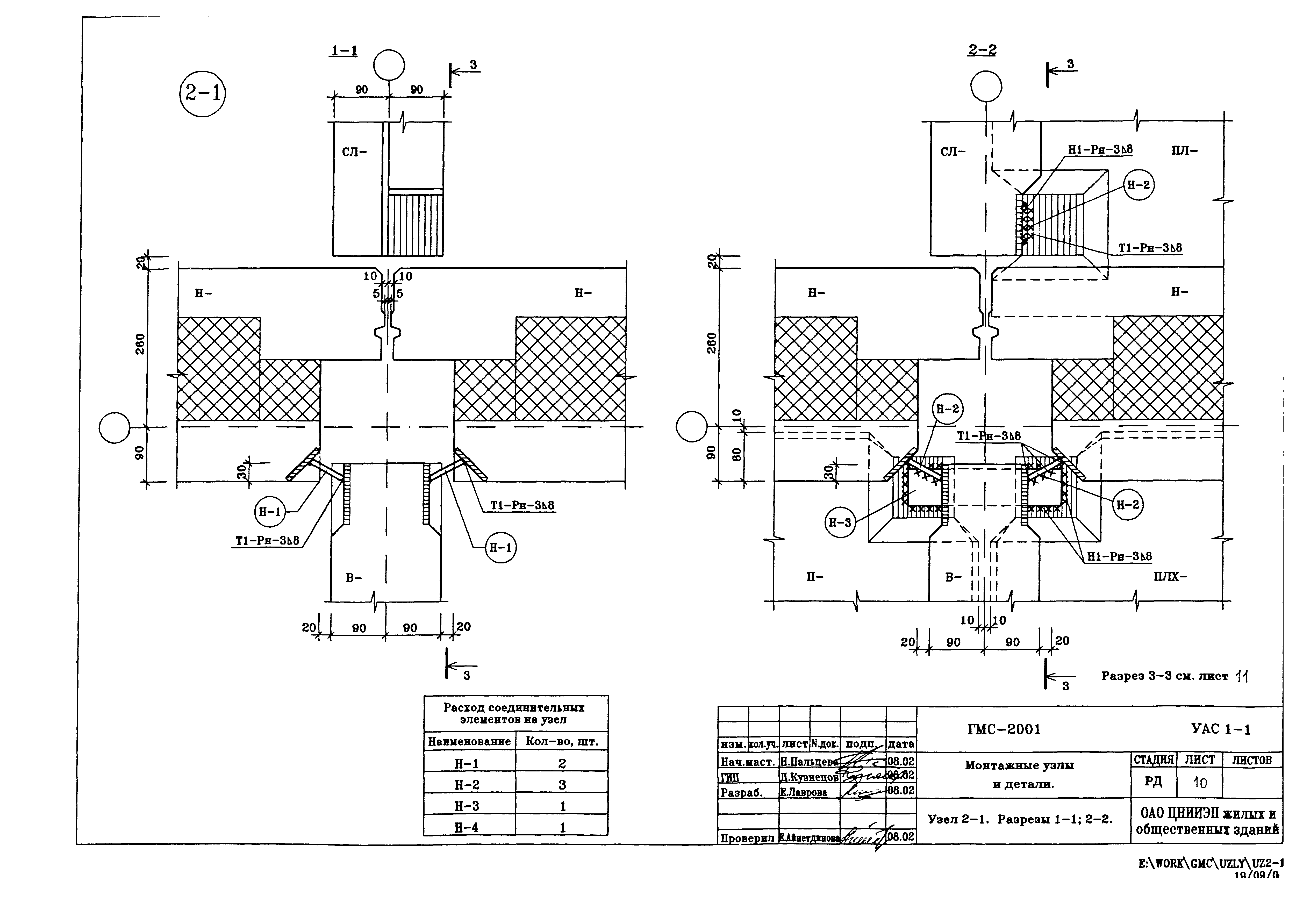
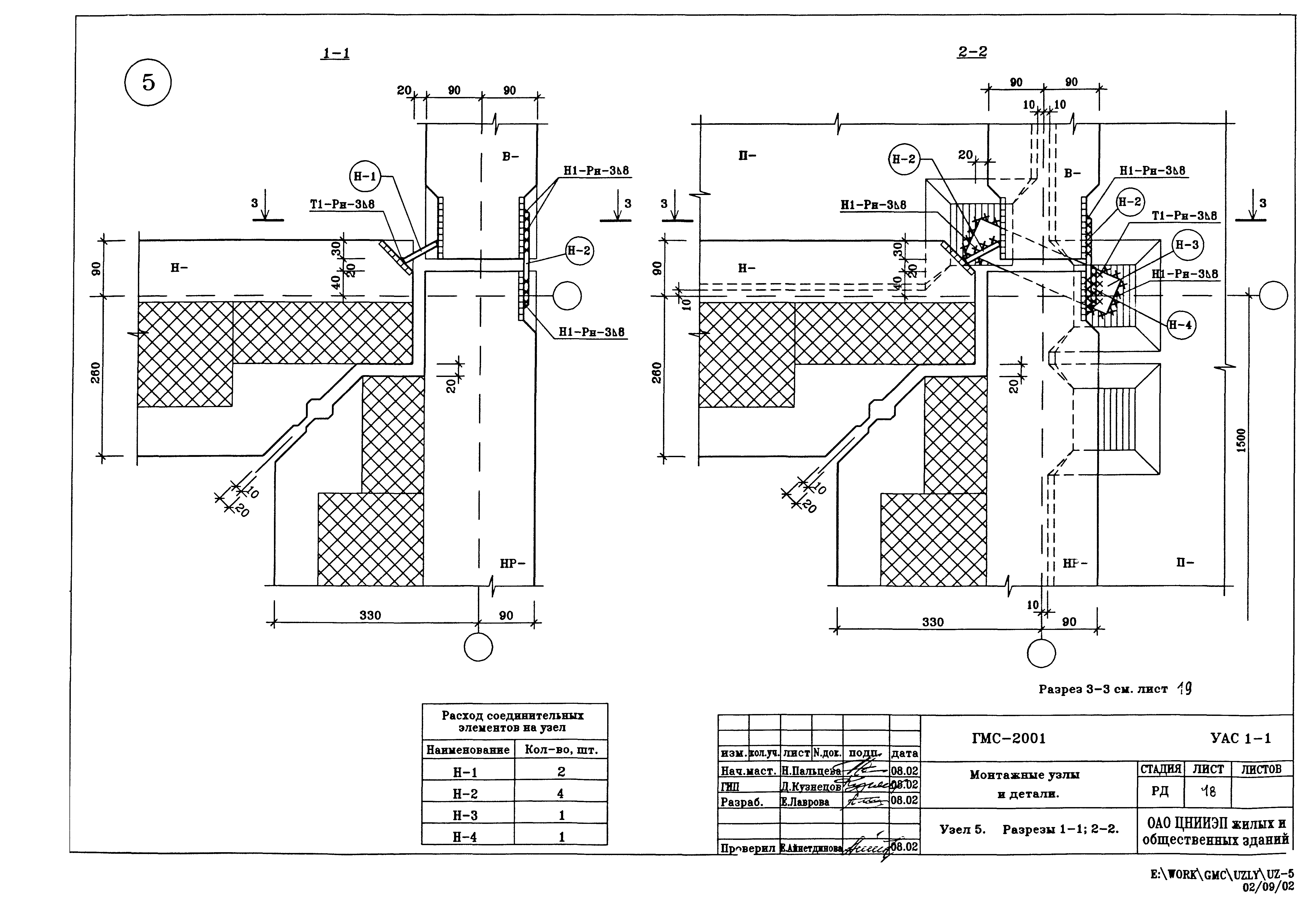
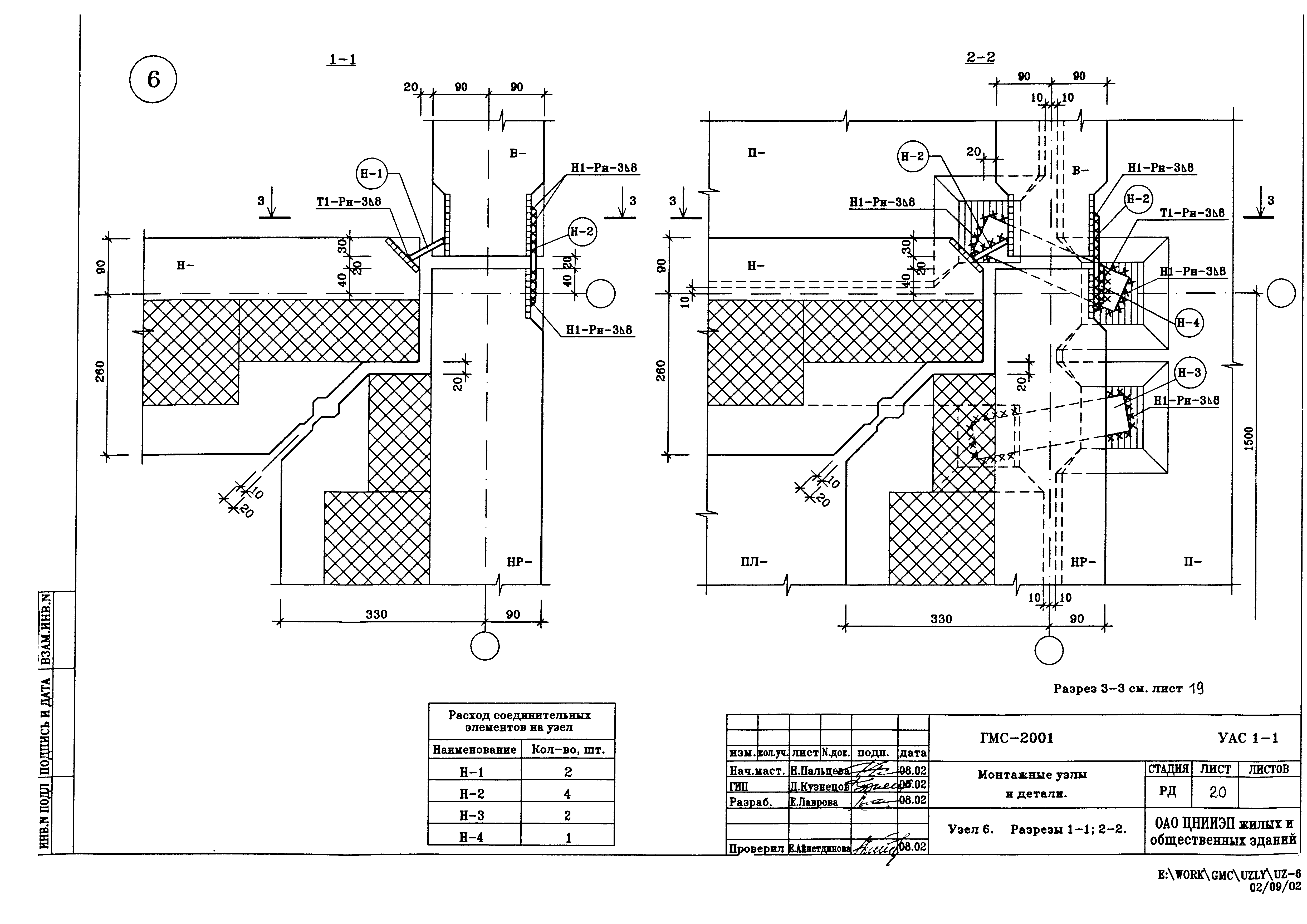
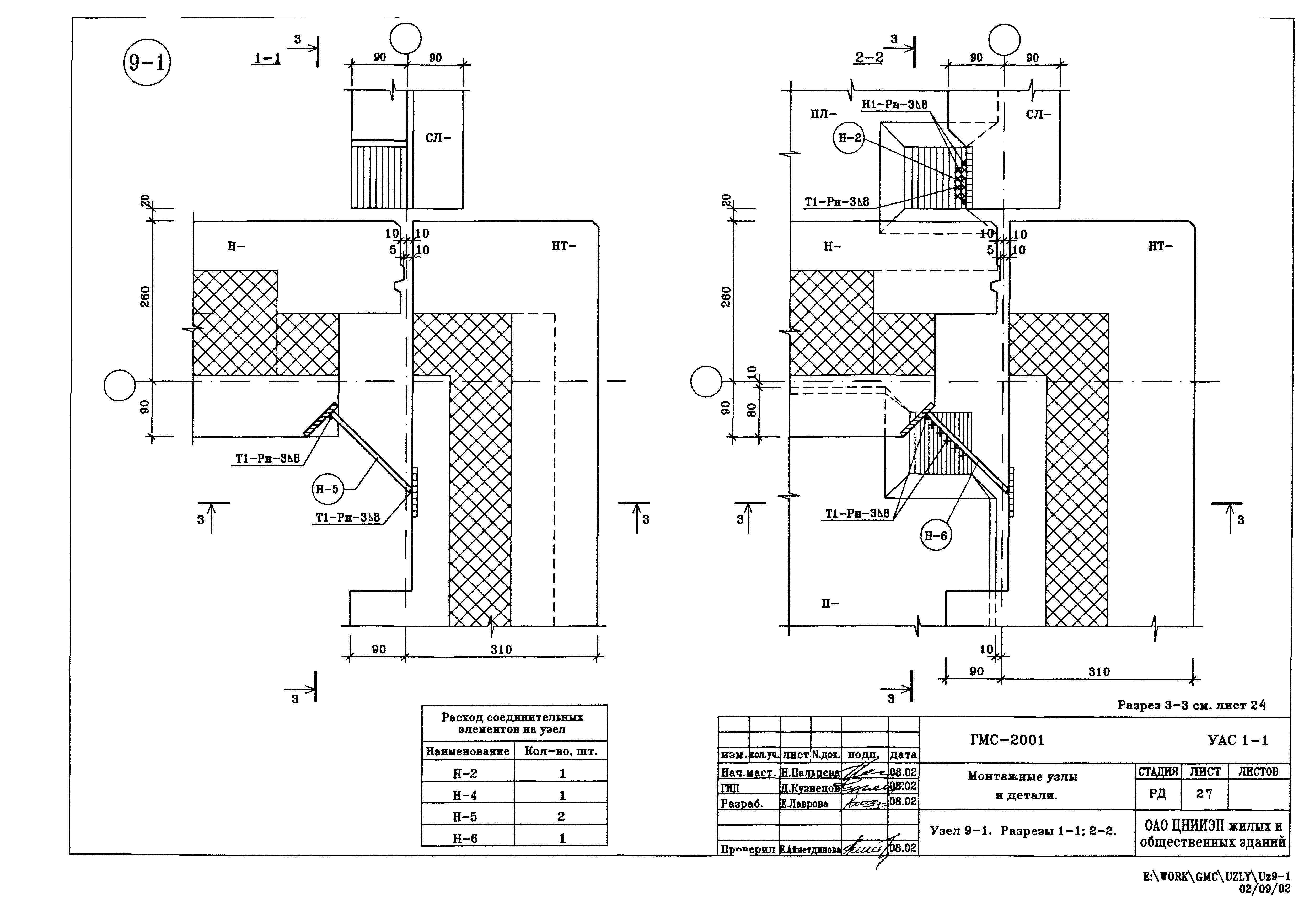
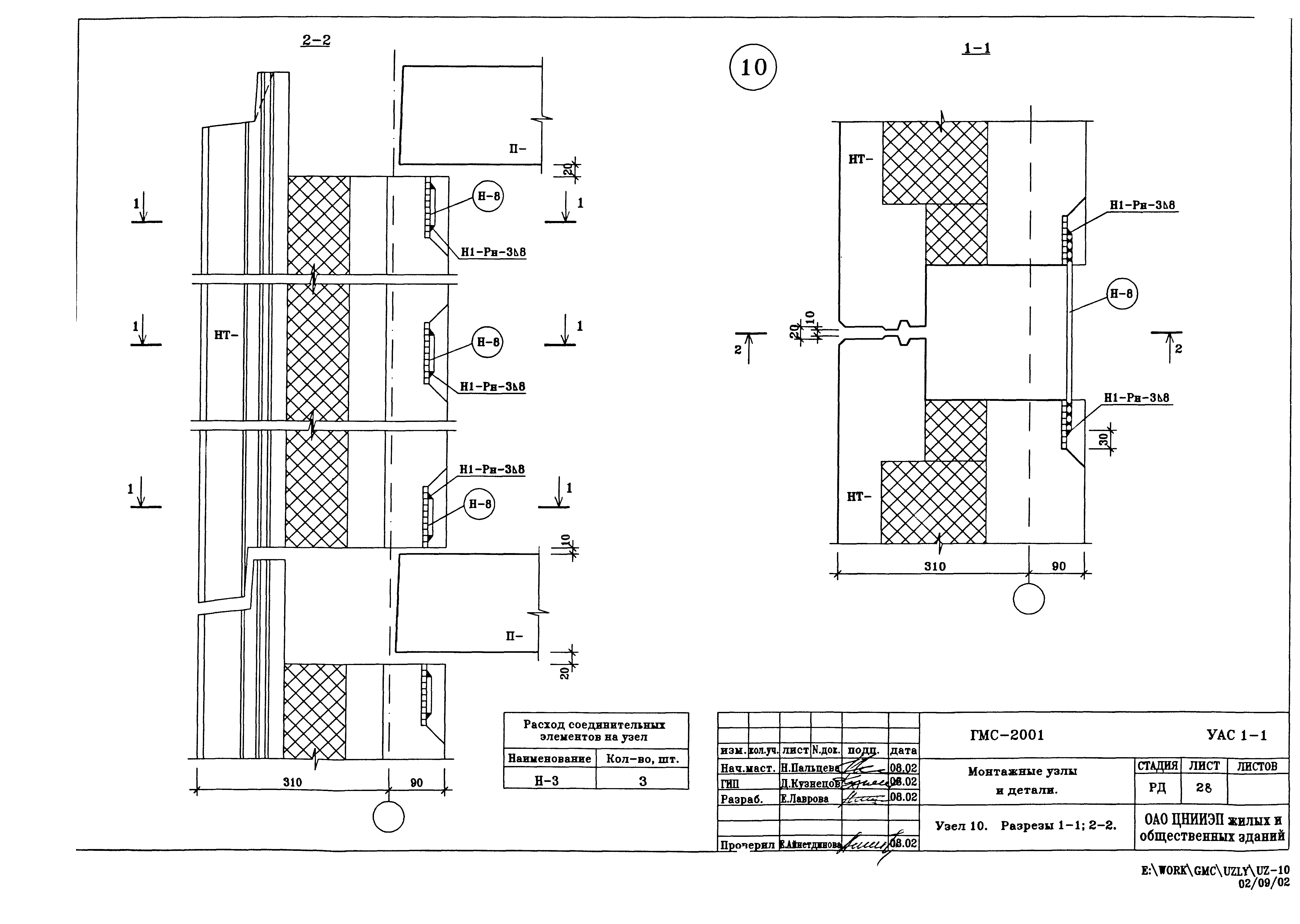
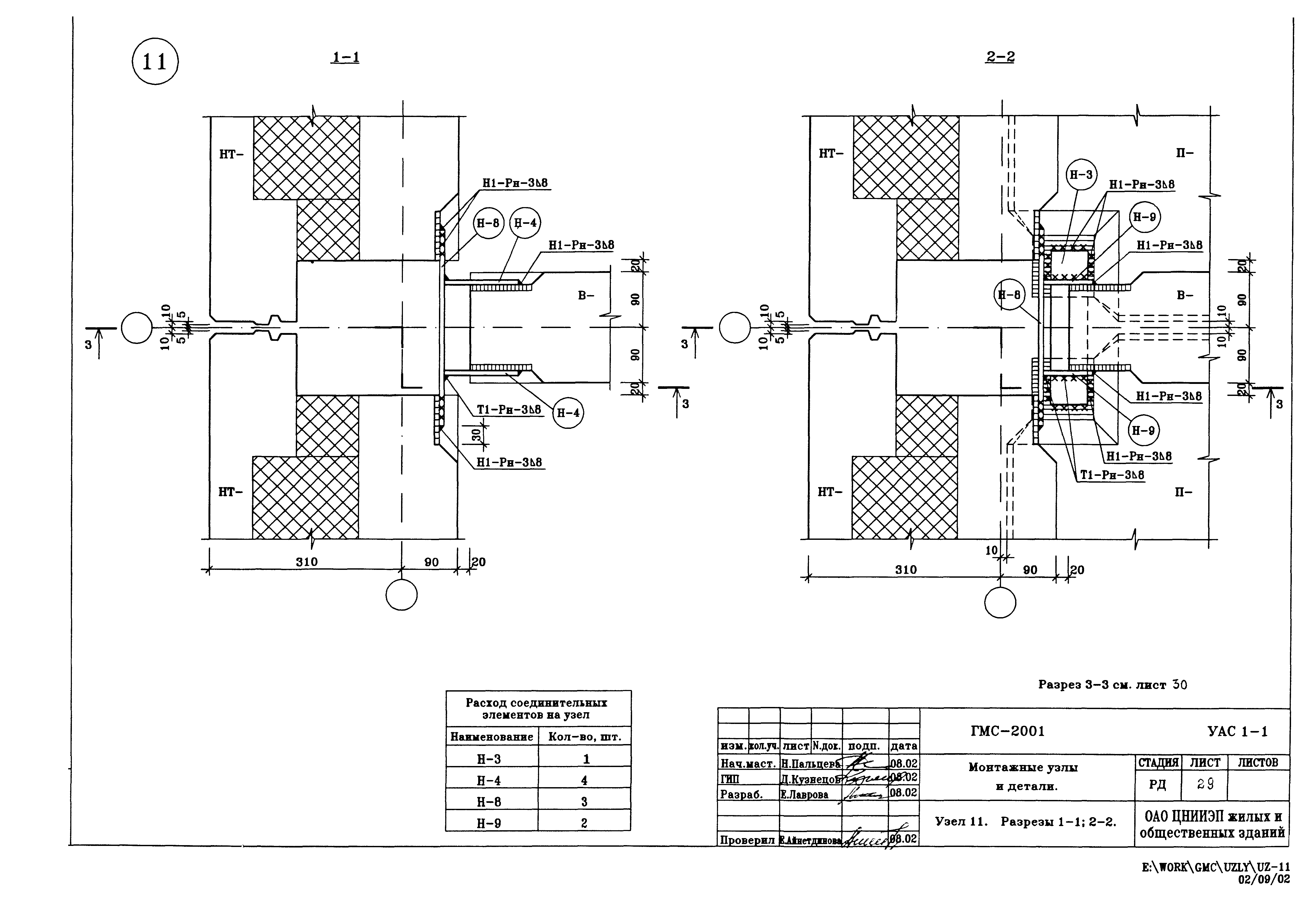
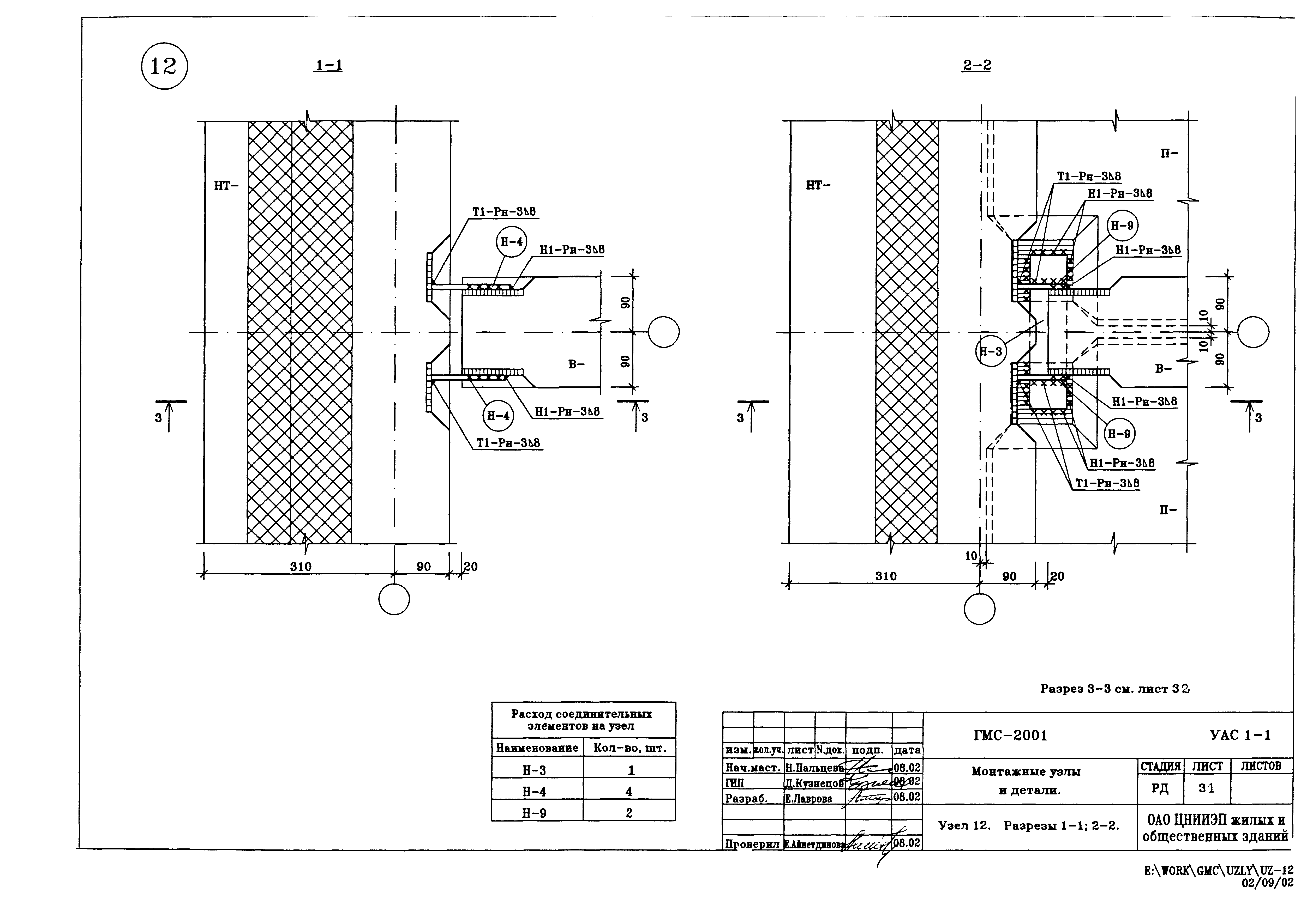
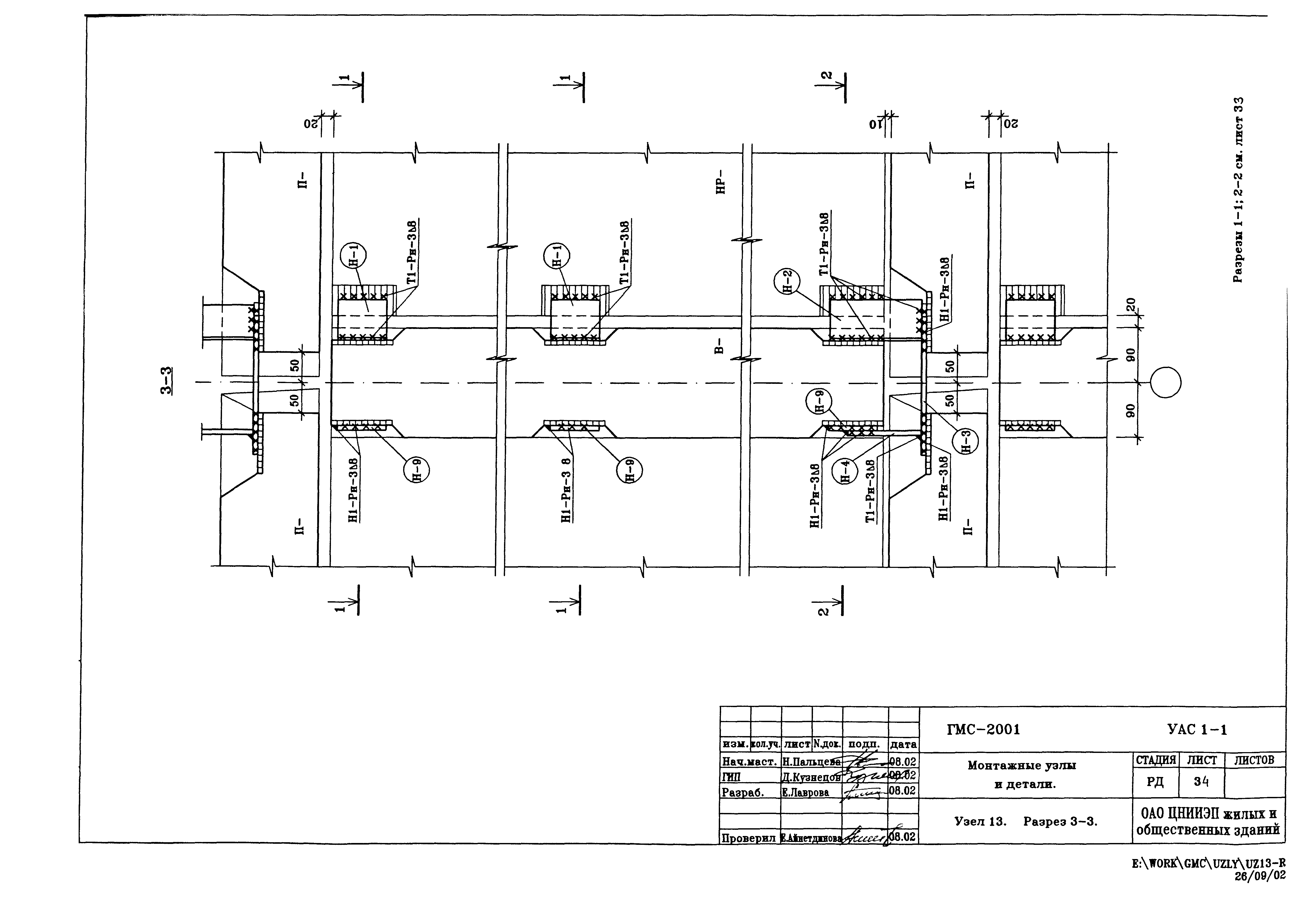
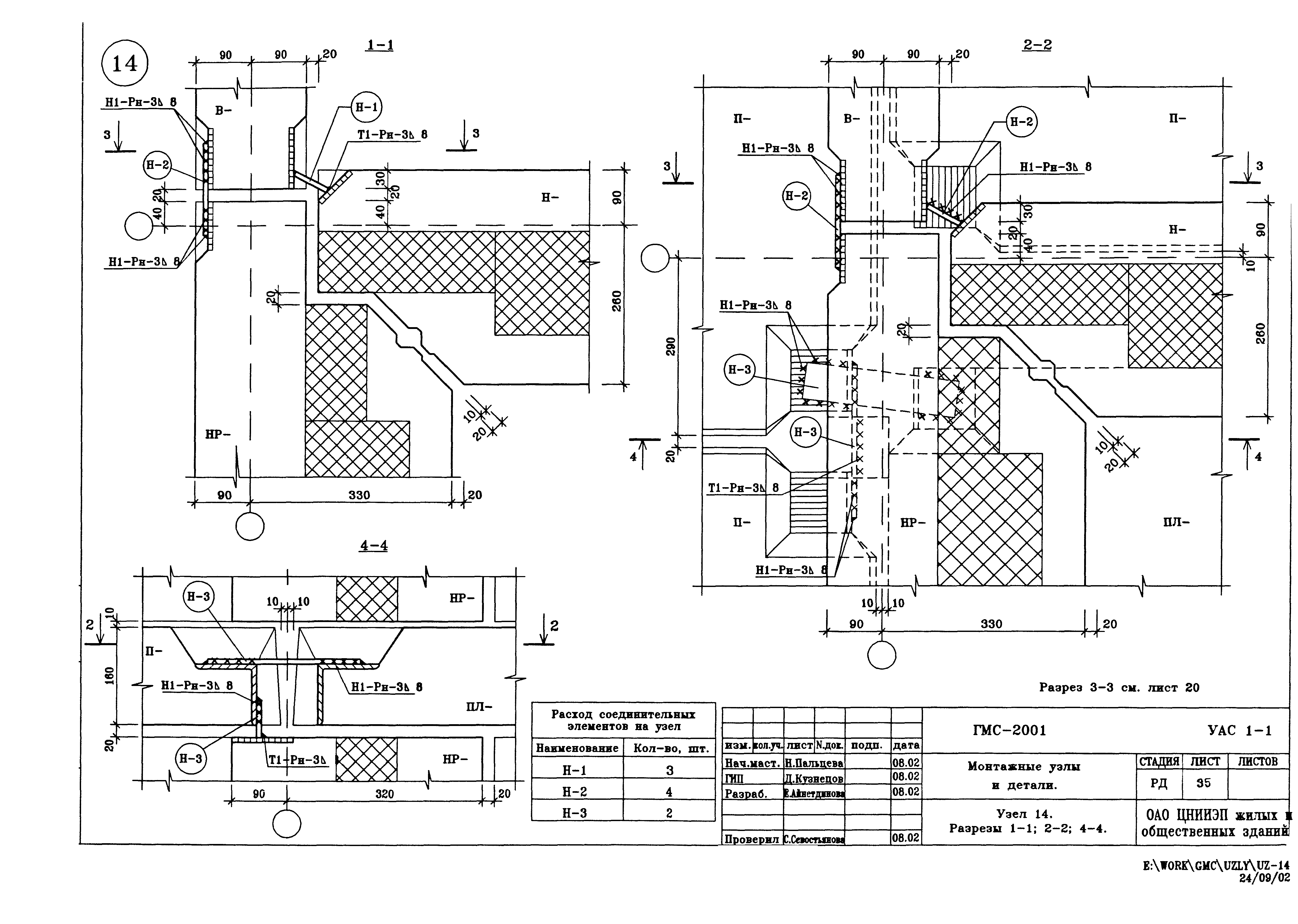
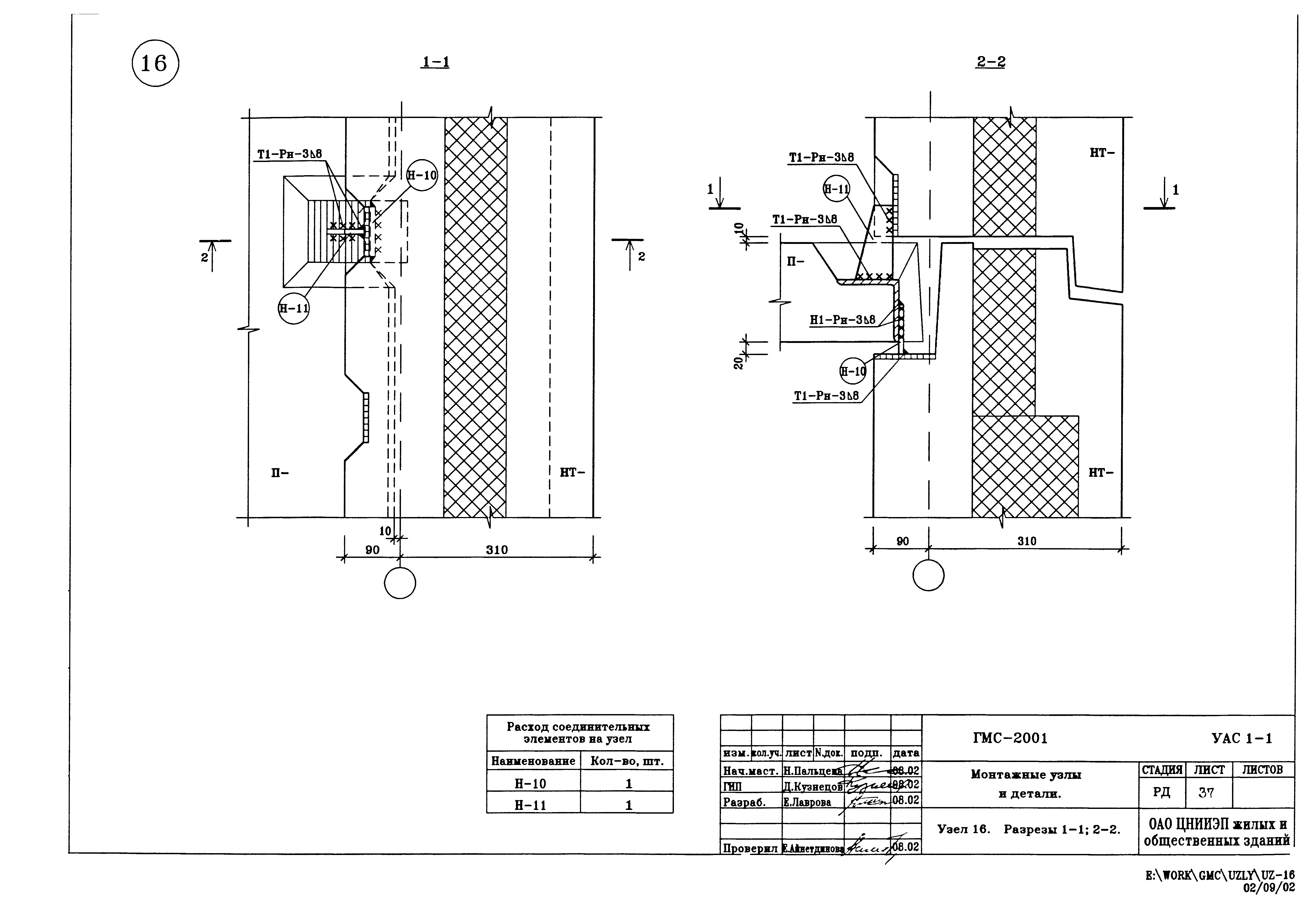
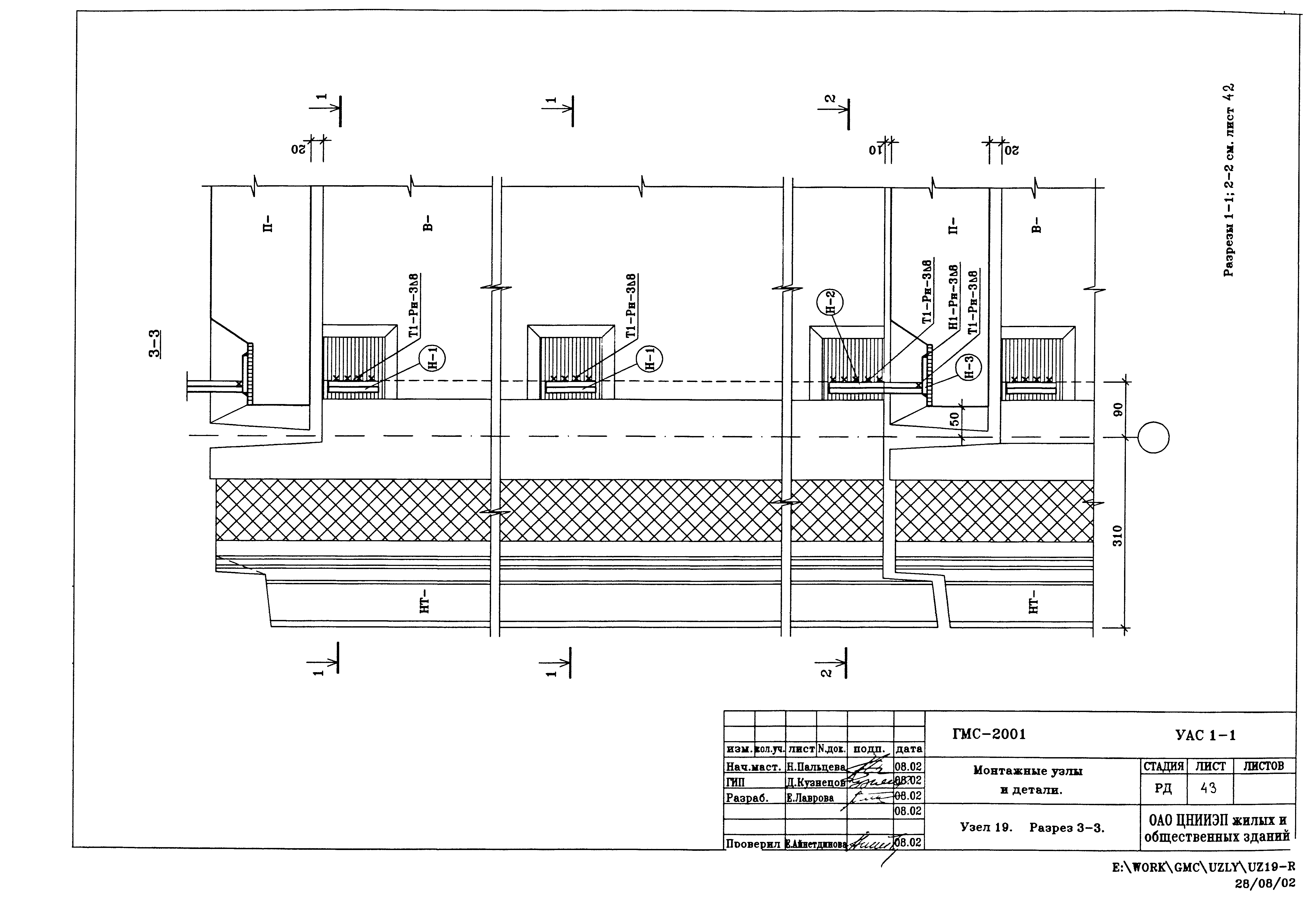
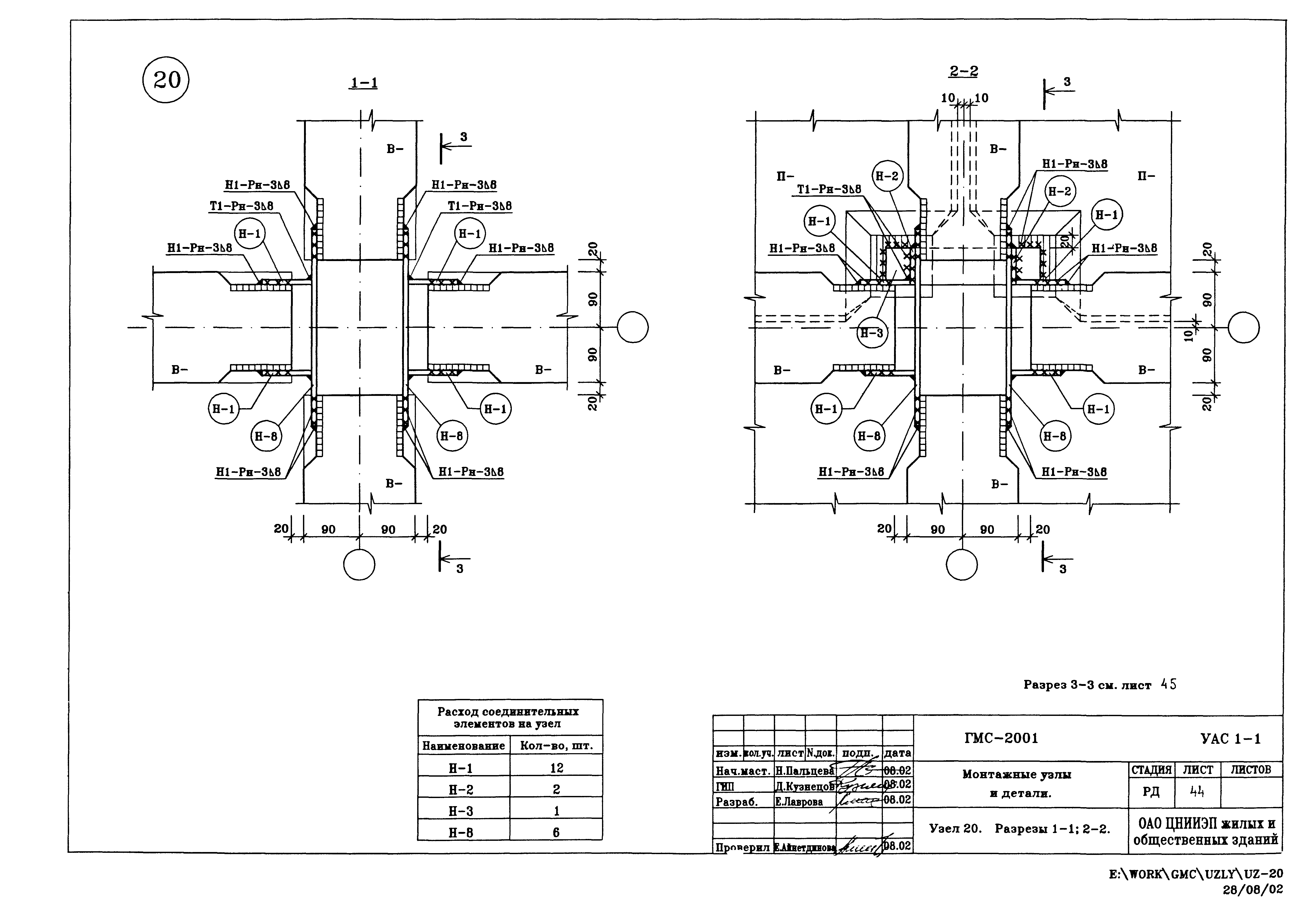
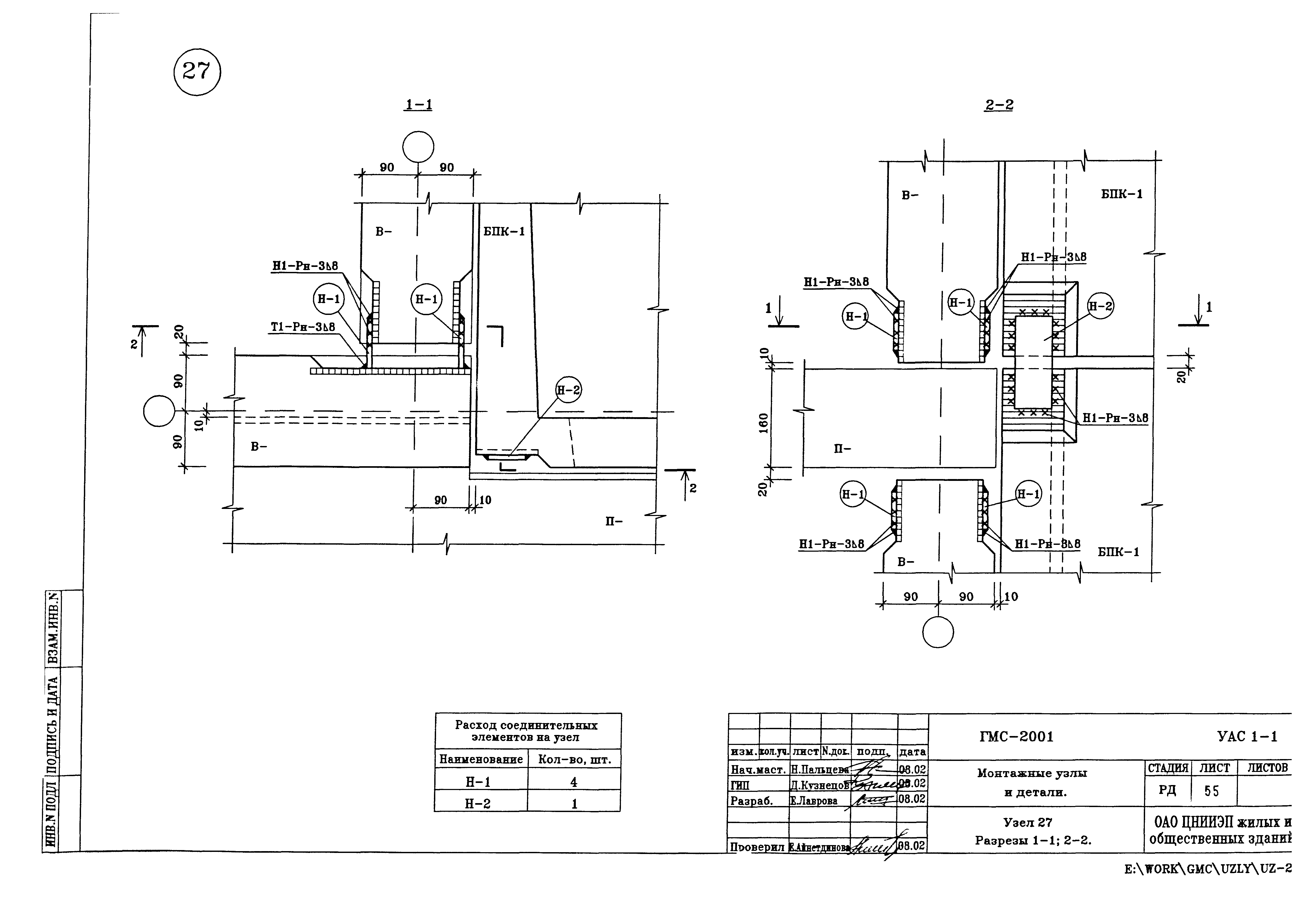
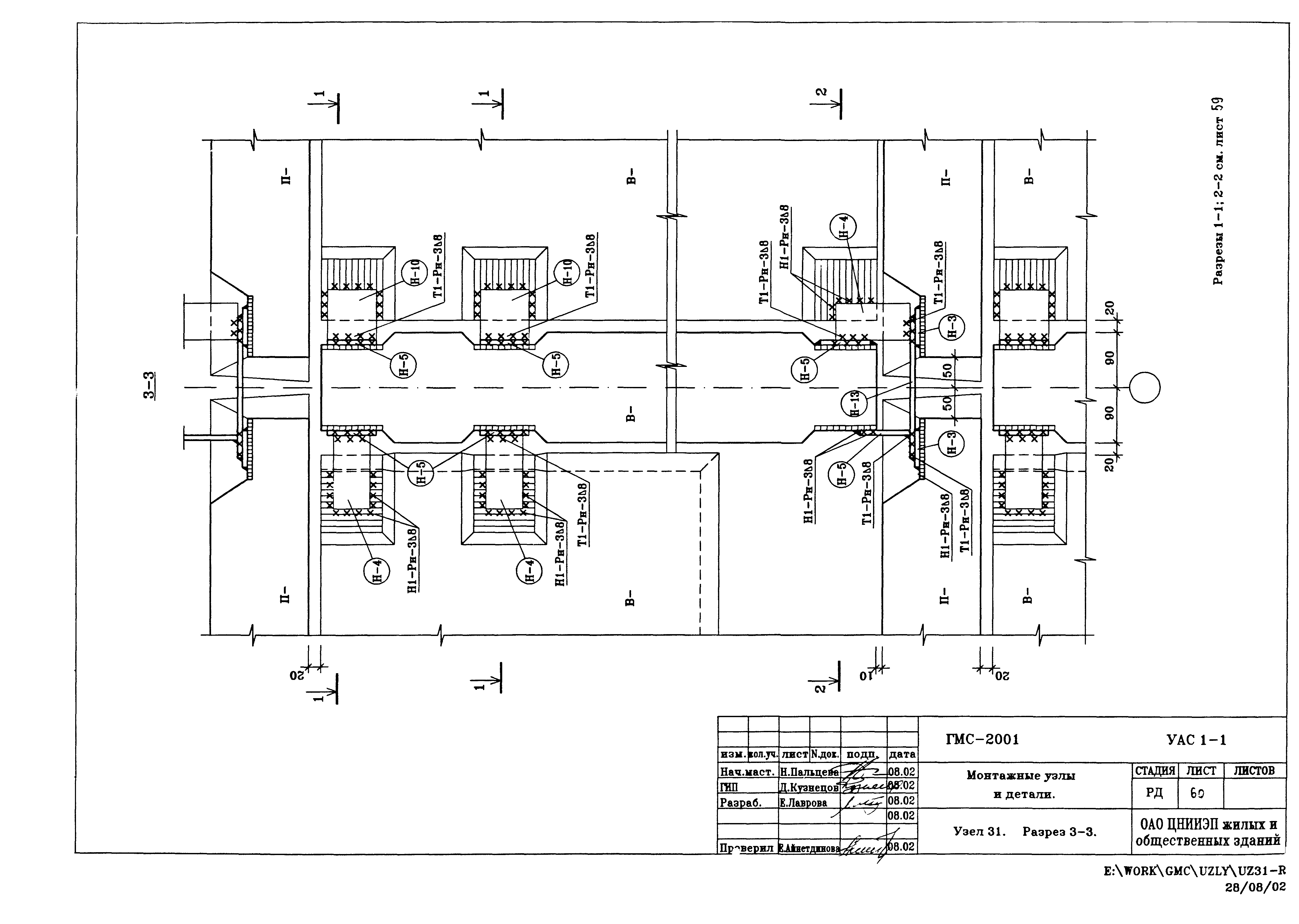
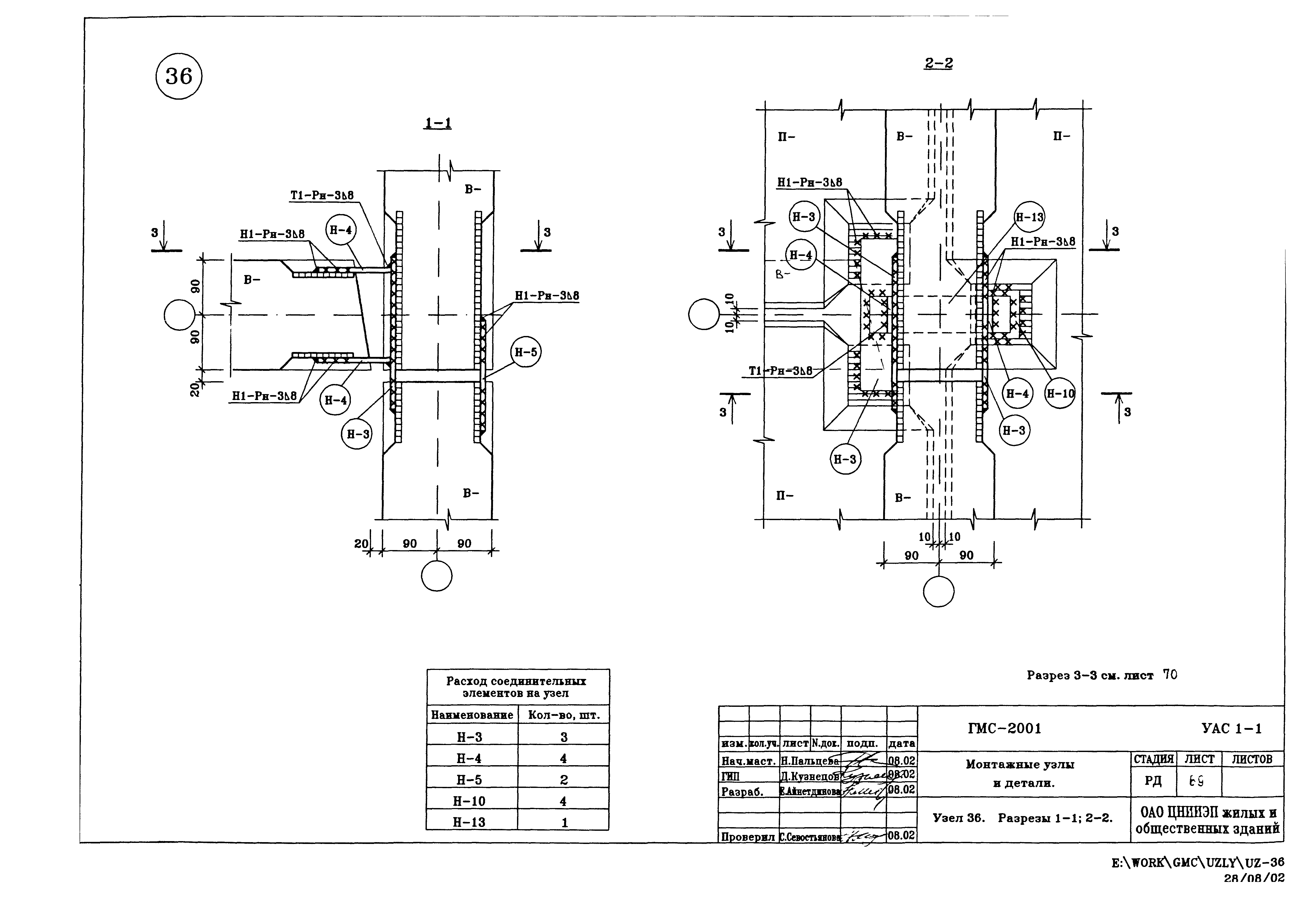
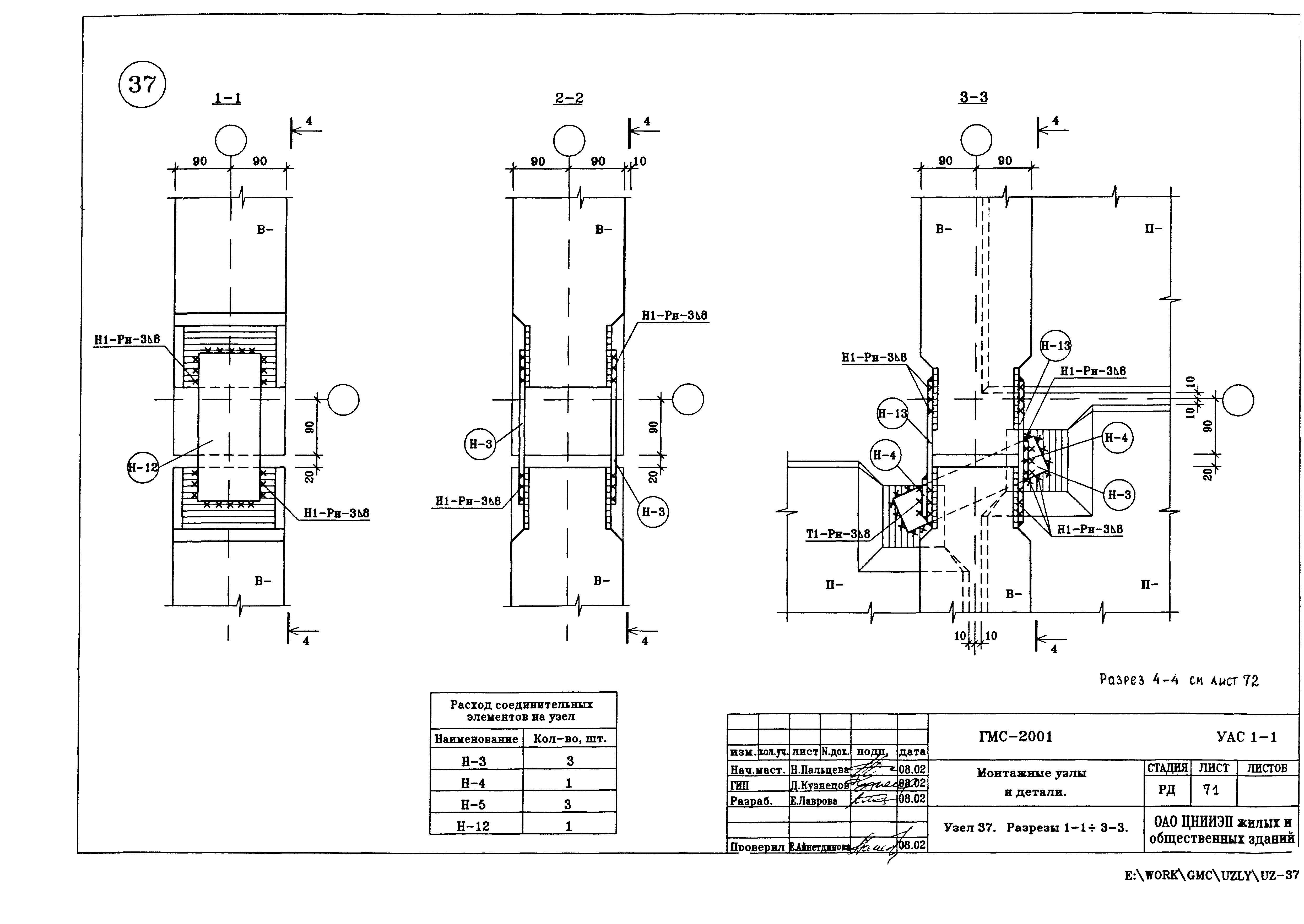
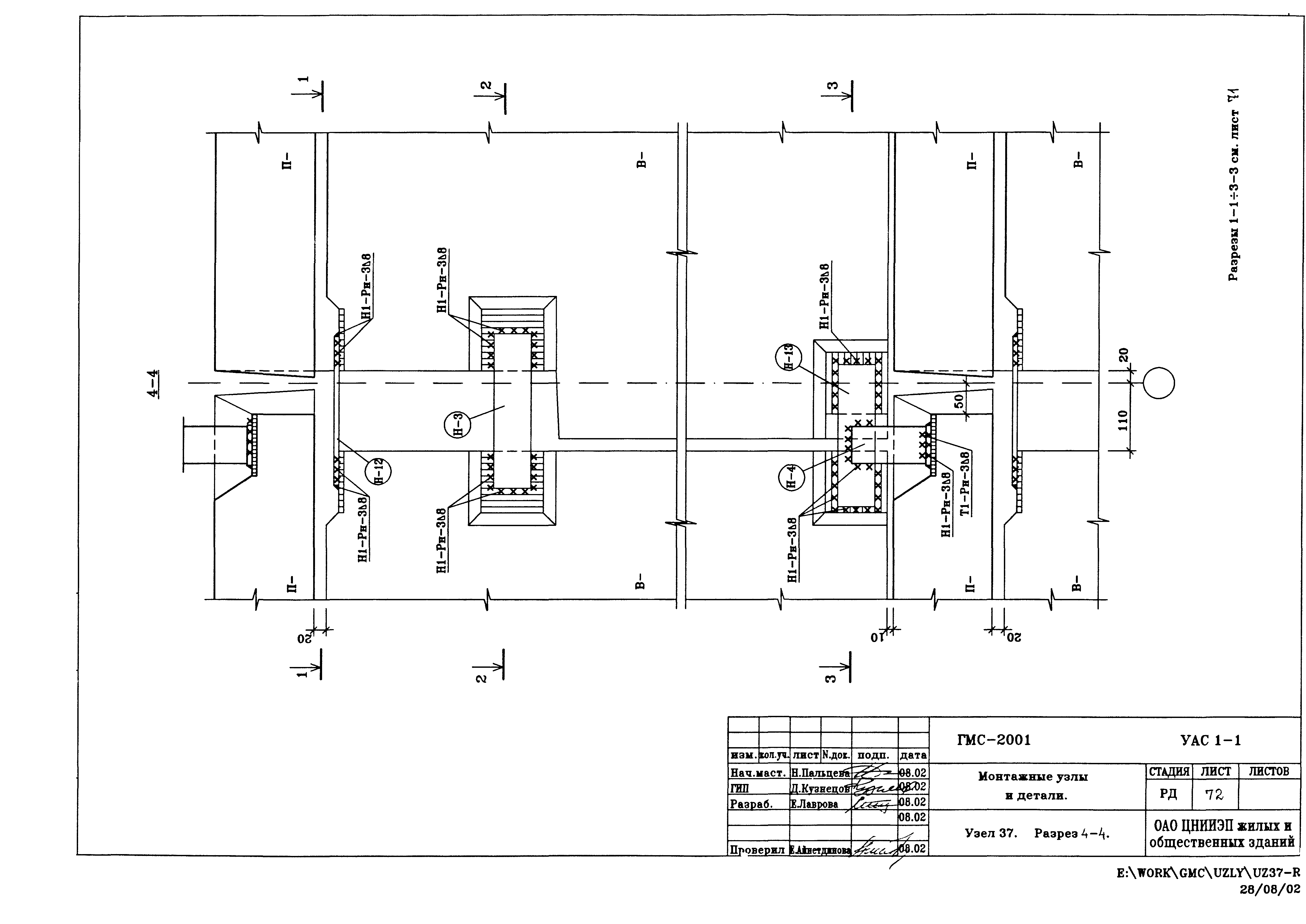
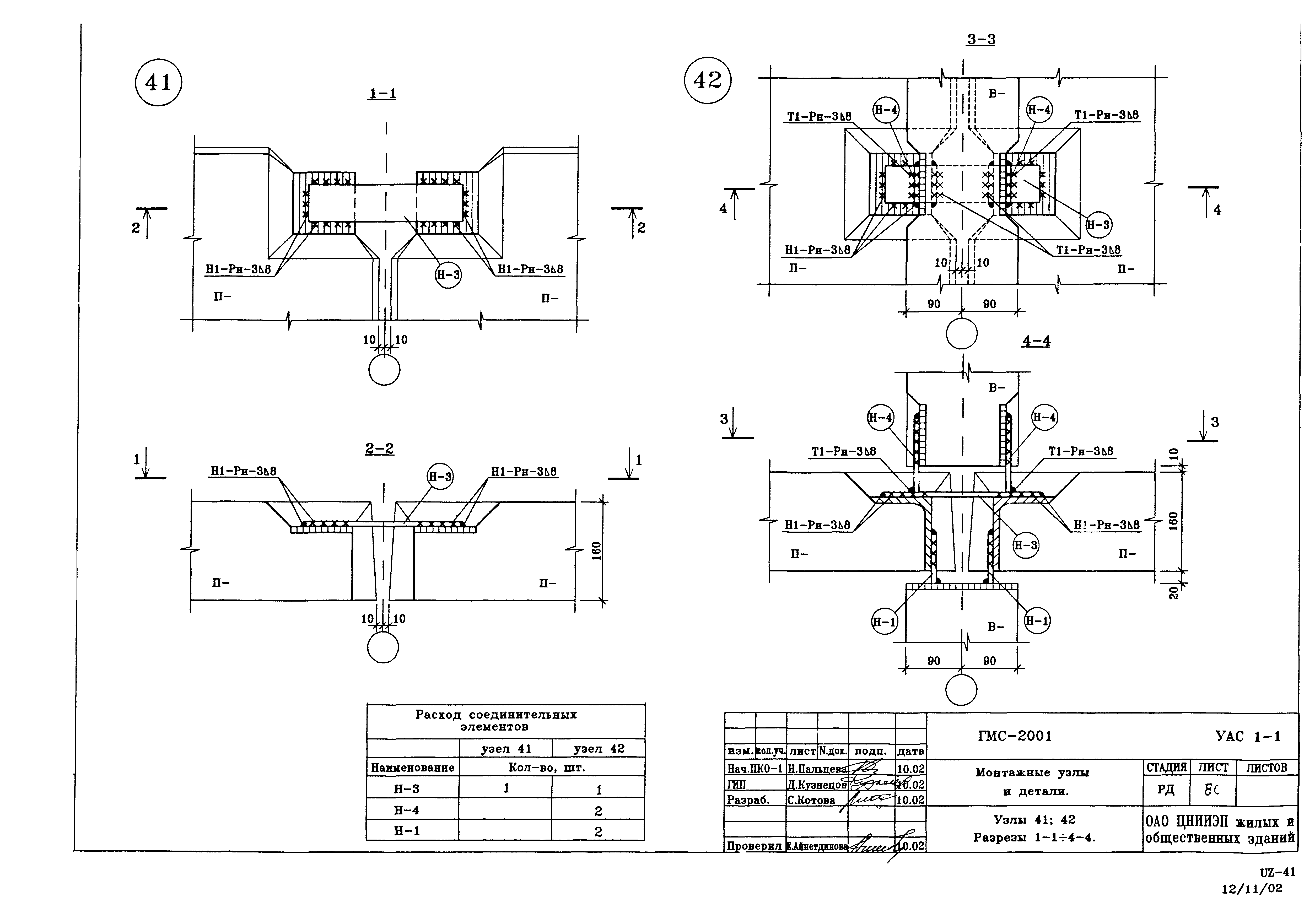
| Оглавление: | ГМС-2001УАС1-1-01 Содержание ГМС-2001УАС1-1-1 Пояснительная записка Монтажные узлы наружных стеновых панелей ГМС-2001УАС1-1-1 Узлы 1с; 2с. ГМС-2001УАС1-1-2 Узлы 3с; 4с. ГМС-2001УАС1-1-3 Узлы 5с; 6с. ГМС-2001УАС1-1-4 Узлы 7с; 8с. ГМС-2001УАС1-1-5 Разрезы А-А; Б-Б. ГМС-2001УАС1-1-6 Узел 1. Разрезы 1-1; 2-2. ГМС-2001УАС1-1-7 Узел 1. Разрез 3-3. ГМС-2001УАС1-1-8 Узел 2. Разрезы 1-1; 2-2. ГМС-2001УАС1-1-9 Узел 2. Разрез 3-3. ГМС-2001УАС1-1-10 Узел 2-1. Разрезы 1-1; 2-2. ГМС-2001УАС1-1-11 Узел 2-1. Разрез 3-3. ГМС-2001УАС1-1-12 Узел 3. Разрезы 1-1; 2-2. ГМС-2001УАС1-1-13 Узел 3. Разрез 3-3. ГМС-2001УАС1-1-14 Узел 4. Разрезы 1-1; 2-2. ГМС-2001УАС1-1-15 Узел 4. Разрез 3-3. ГМС-2001УАС1-1-16 Узел 4-1. Разрезы 1-1; 2-2. ГМС-2001УАС1-1-17 Узел 4-1. Разрез 3-3. ГМС-2001УАС1-1-18 Узел 5. Разрезы 1-1; 2-2. ГМС-2001УАС1-1-19 Узел 5. Разрез 3-3. ГМС-2001УАС1-1-20 Узел 6. Разрезы 1-1; 2-2. ГМС-2001УАС1-1-21 Узел 7. Разрезы 1-1; 2-2. ГМС-2001УАС1-1-22 Узел 7. Разрез 3-3. ГМС-2001УАС1-1-23 Узел 8. Разрезы 1-1; 2-2. ГМС-2001УАС1-1-24 Узел 8. Разрез 3-3. ГМС-2001УАС1-1-25 Узел 9. Разрезы 1-1; 2-2. ГМС-2001УАС1-1-26 Узел 9. Разрез 3-3. ГМС-2001УАС1-1-27 Узел 9-1. Разрезы 1-1; 2-2. ГМС-2001УАС1-1-28 Узел 10. Разрезы 1-1; 2-2. ГМС-2001УАС1-1-29 Узел 11. Разрезы 1-1; 2-2. ГМС-2001УАС1-1-30 Узел 11. Разрез 3-3. ГМС-2001УАС1-1-31 Узел 12. Разрезы 1-1; 2-2. ГМС-2001УАС1-1-32 Узел 12. Разрез 3-3. ГМС-2001УАС1-1-33 Узел 13. Разрезы 1-1; 2-2. ГМС-2001УАС1-1-34 Узел 13. Разрез 3-3. ГМС-2001УАС1-1-35 Узел 14. Разрезы 1-1; 2-2. ГМС-2001УАС1-1-36 Узел 15. Разрезы 1-1; 2-2. ГМС-2001УАС1-1-37 Узел 16. Разрезы 1-1; 2-2. ГМС-2001УАС1-1-38 Узел 17. Разрезы 1-1; 2-2. ГМС-2001УАС1-1-39 Узел 17. Разрез 3-3. ГМС-2001УАС1-1-40 Узел 18. Разрезы 1-1; 2-2. ГМС-2001УАС1-1-41 Узел 18. Разрез 3-3. ГМС-2001УАС1-1-42 Узел 19. Разрезы 1-1; 2-2. ГМС-2001УАС1-1-43 Узел 19. Разрез 3-3. Монтажные узлы внутренних стен, перекрытий и перегородок ГМС-2001УАС1-1-44 Узел 20. Разрезы 1-1; 2-2. ГМС-2001УАС1-1-45 Узел 20. Разрез 3-3. ГМС-2001УАС1-1-46 Узел 21. Разрезы 1-1; 2-2. ГМС-2001УАС1-1-47 Узел 21. Разрез 3-3. ГМС-2001УАС1-1-48 Узел 22. Разрезы 1-1; 2-2. ГМС-2001УАС1-1-49 Узел 22. Разрез 3-3. ГМС-2001УАС1-1-50 Узел 23. Разрезы 1-1; 2-2. ГМС-2001УАС1-1-51 Узел 23. Разрез 3-3. ГМС-2001УАС1-1-52 Узел 24. Разрезы 1-1; 2-2. ГМС-2001УАС1-1-53 Узел 25. Разрезы 1-1-3-3. ГМС-2001УАС1-1-54 Узел 26. Разрезы 1-1-3-3. ГМС-2001УАС1-1-55 Узел 27. Разрезы 1-1; 2-2. ГМС-2001УАС1-1-56 Узел 28. Разрезы 1-1; 2-2. ГМС-2001УАС1-1-57 Узел 29. Разрезы 1-1; 2-2. ГМС-2001УАС1-1-58 Узел 30. Разрезы 1-1; 2-2. ГМС-2001УАС1-1-59 Узел 31. Разрезы 1-1; 2-2. ГМС-2001УАС1-1-60 Узел 31. Разрез 3-3. ГМС-2001УАС1-1-61 Узел 32. Разрезы 1-1- 3-3. ГМС-2001УАС1-1-62 Узел 32. Разрез 4-4. ГМС-2001УАС1-1-63 Узел 33. Разрезы 1-1; 2-2. ГМС-2001УАС1-1-64 Узел 34. Разрезы 1-1; 2-2. ГМС-2001УАС1-1-65 Узел 34-1.Разрезы 1-1; 2-2. ГМС-2001УАС1-1-66 Узел 34-1.Разрез 3-3. ГМС-2001УАС1-1-67 Узел 35. Разрезы 1-1; 2-2. ГМС-2001УАС1-1-68 Узел 35. Разрез 3-3. ГМС-2001УАС1-1-69 Узел 36. Разрезы 1-1; 2-2. ГМС-2001УАС1-1-70 Узел 36. Разрез 3-3. ГМС-2001УАС1-1-71 Узел 37. Разрезы 1-1- 3-3. ГМС-2001УАС1-1-72 Узел 37. Разрез 4-4. ГМС-2001УАС1-1-73 Узел 38. Разрезы 1-1; 2-2. ГМС-2001УАС1-1-74 Узел 38. Разрез 3-3. ГМС-2001УАС1-1-75 Узел 39. Разрезы 1-1; 2-2. ГМС-2001УАС1-1-76 Узел 39. Разрезы 3-3; 4-4. ГМС-2001УАС1-1-78 Узел 40. Разрезы 1-1; 2-2. ГМС-2001УАС1-1-79 Узел 40. Разрез 3-3. ГМС-2001УАС1-1-80 Узлы 41; 42. Разрезы 1-14-4-4. ГМС-2001УАС1-1-81 Узлы 43; 43-1. Разрезы 1-14-4-4. ГМС-2001УАС1-1-82 Узел 44. Разрезы 1-1; 2-2. ГМС-2001УАС1-1-83 Узлы 45; 46. Разрезы 1-1--4-4. ГМС-2001УАС1-1-84 Узел 47. Разрезы 1-1; 2-2. ГМС-2001УАС1-1-85 Узел 48. Разрезы 1-1; 2-2. ГМС-2001УАС1-1-89 Узлы 51; 52. Разрезы 1-1-4-4. ГМС-2001УАС1-1-90 Узлы 53; 54. Разрезы 1-1-4-4. ГМС-2001УАС1-1-91 Узлы 55; 56. Разрезы 1-1-4-4. Монтажные узлы лоджий ГМС-2001УАС1-1-96 Фрагменты лоджий 1-3. ГМС-2001УАС1-1-97 Фрагменты лоджий 4; 4.1; 4.2; 5. ГМС-2001УАС1-1-98 Фрагменты лоджий 6; 7; 7.1; 7.2; 8. ГМС-2001УАС1-1-99 Фрагменты лоджий 9-14. ГМС-2001УАС1-1-100 Узлы 69; 70. ГМС-2001УАС1-1-101 Узлы 71; 72; 73. ГМС-2001УАС1-1-102 Узел 74. ГМС-2001УАС1-1-103 Узлы 75; 76. |
| Разработан: | ЦНИИЭП жилища |
| Утверждён: | 01.08.2002 ЦНИИЭП жилища (TsNIIEPzhilishcha ) |








































































































