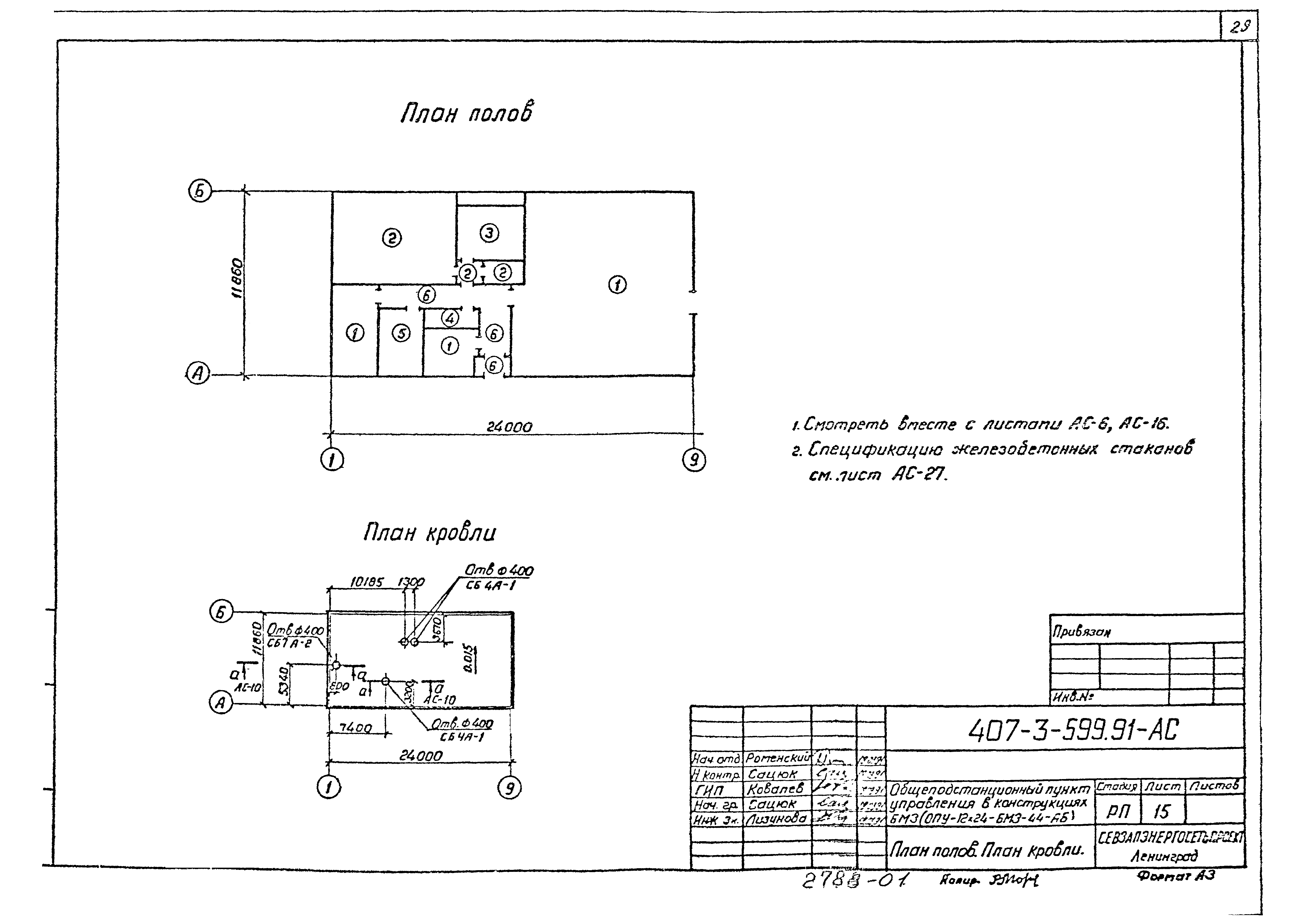
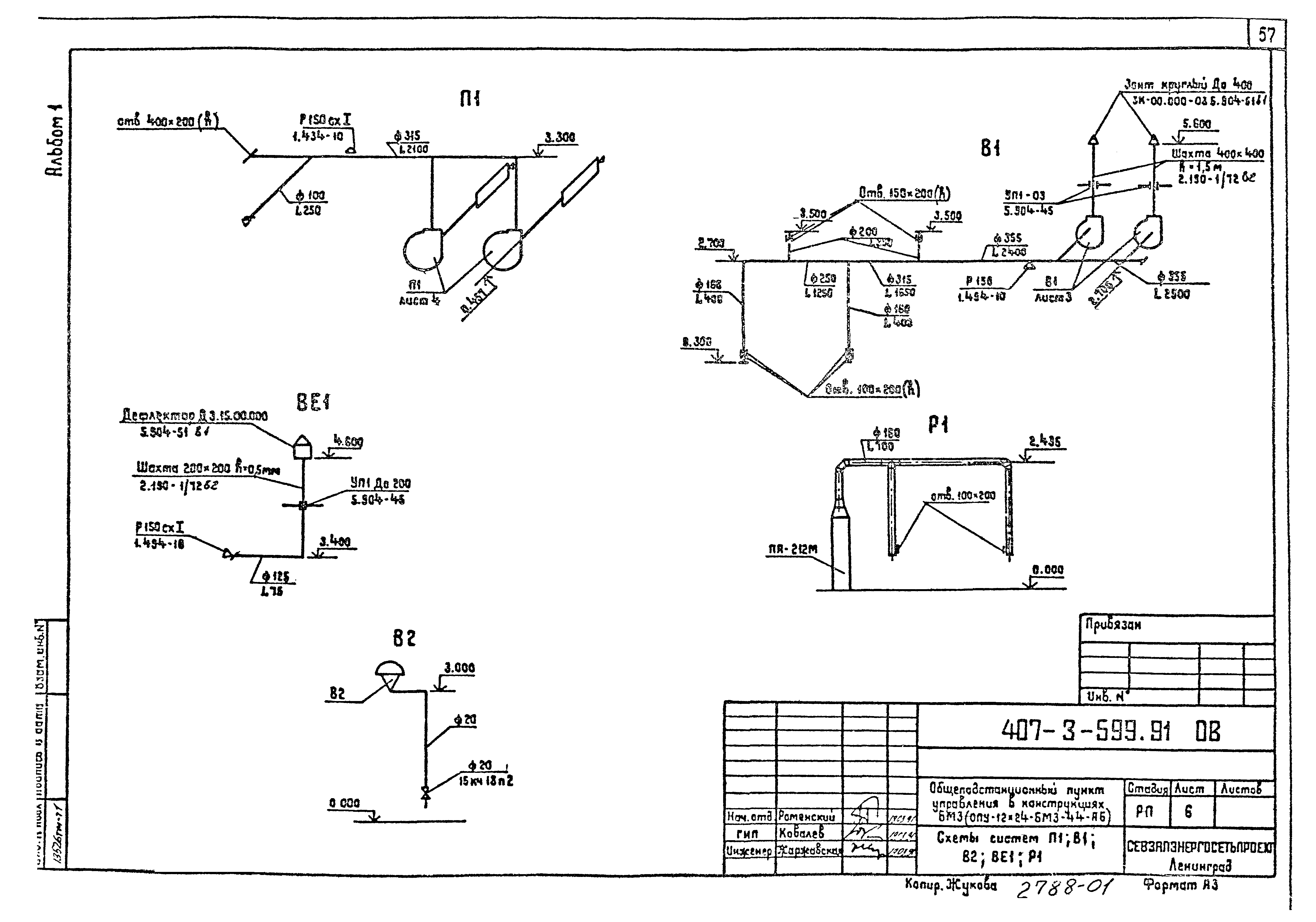
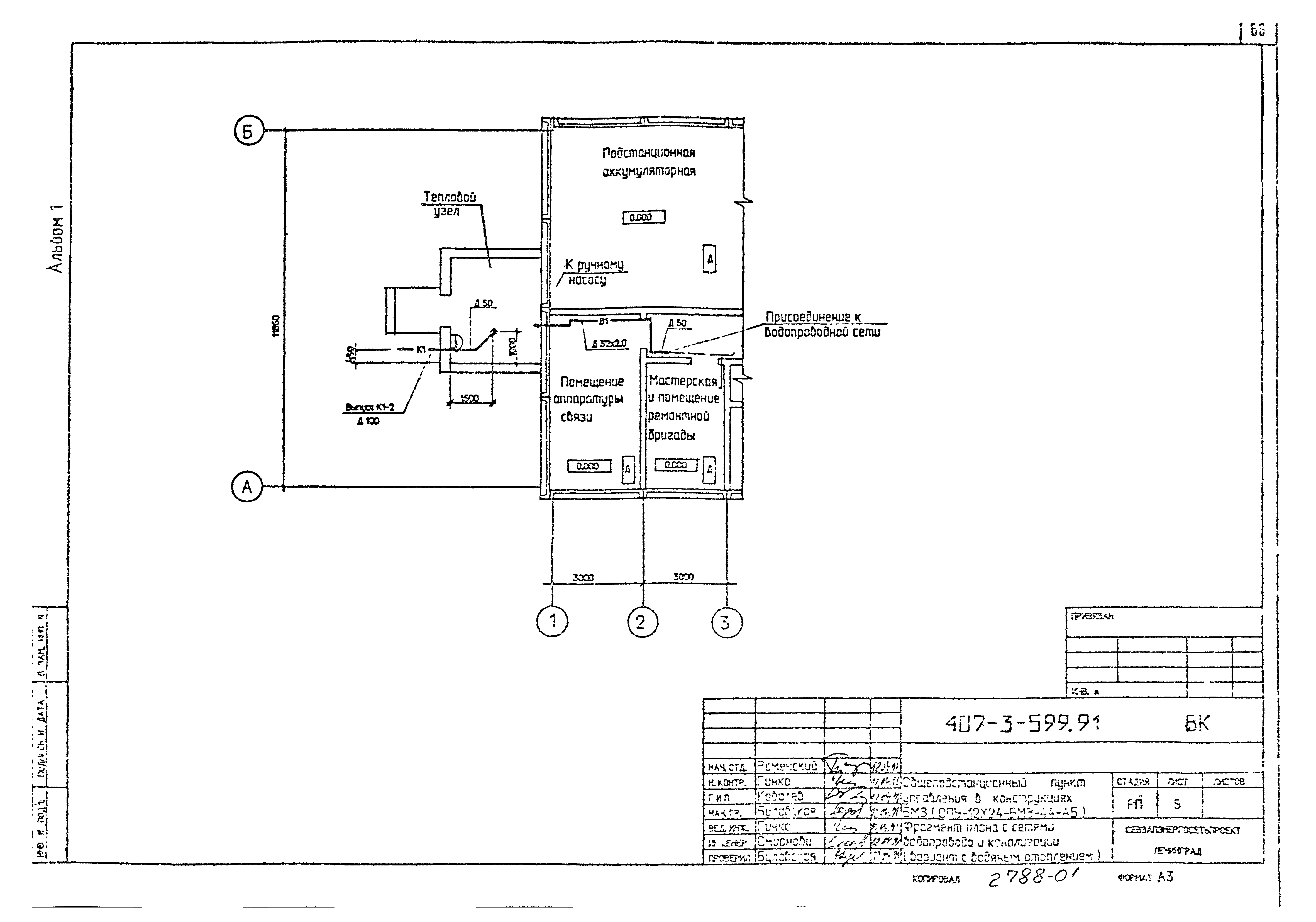
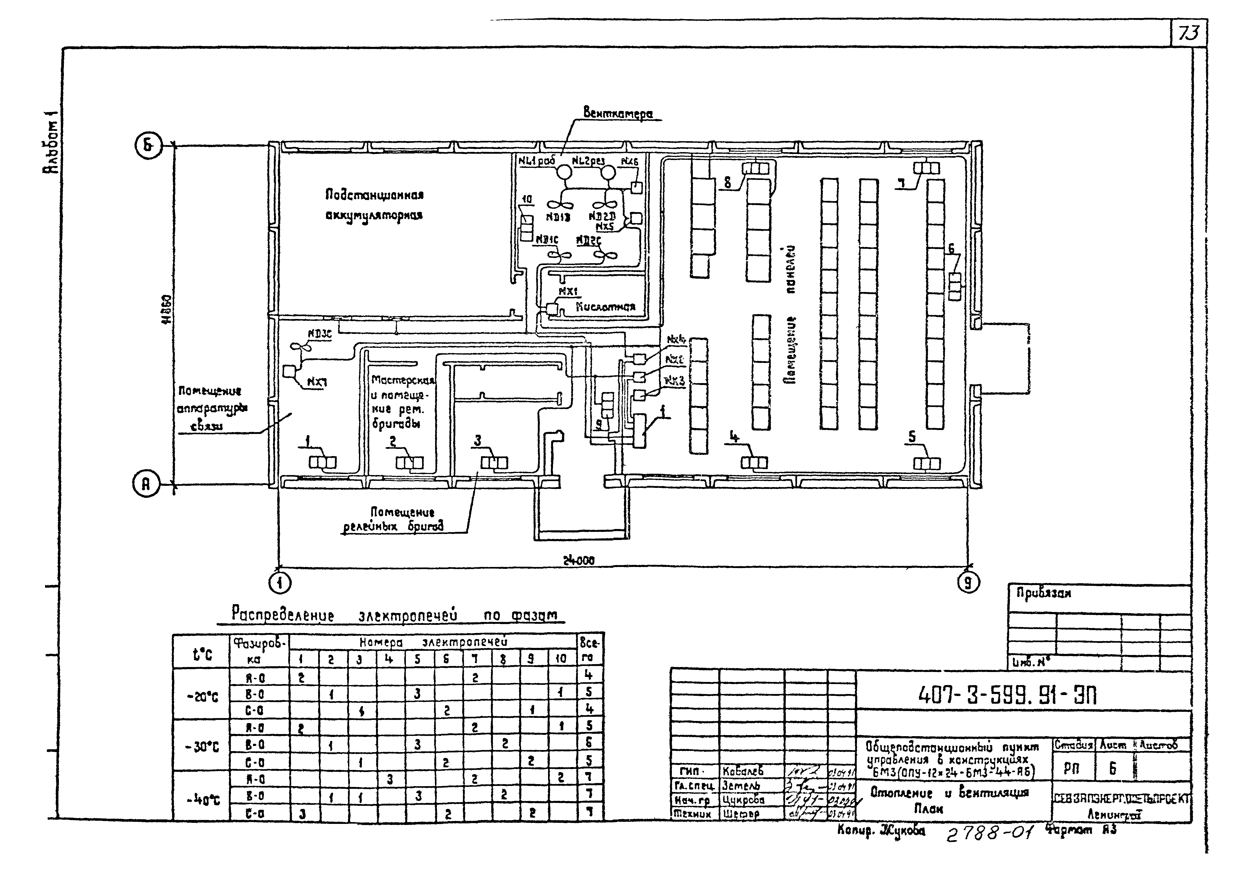
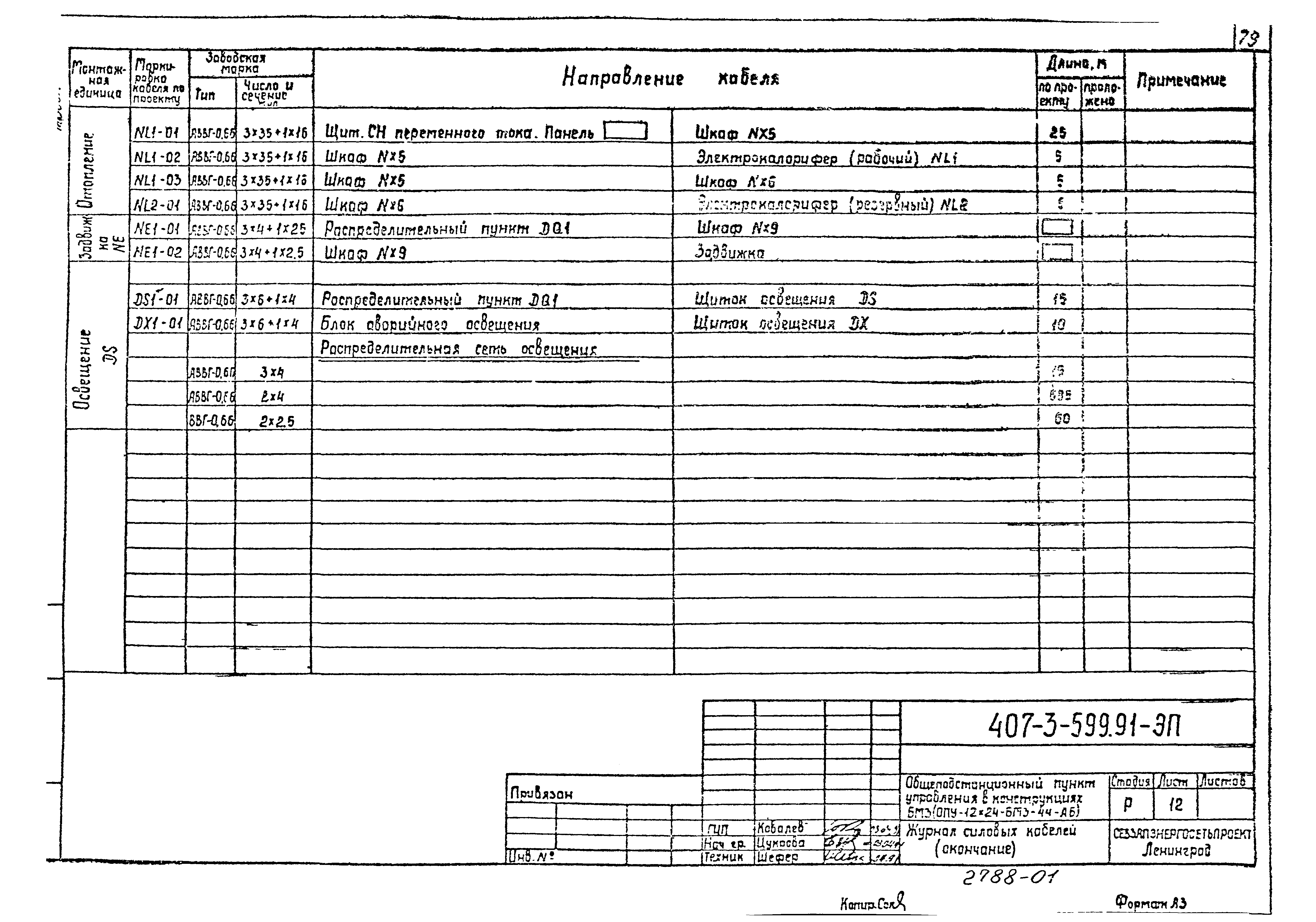
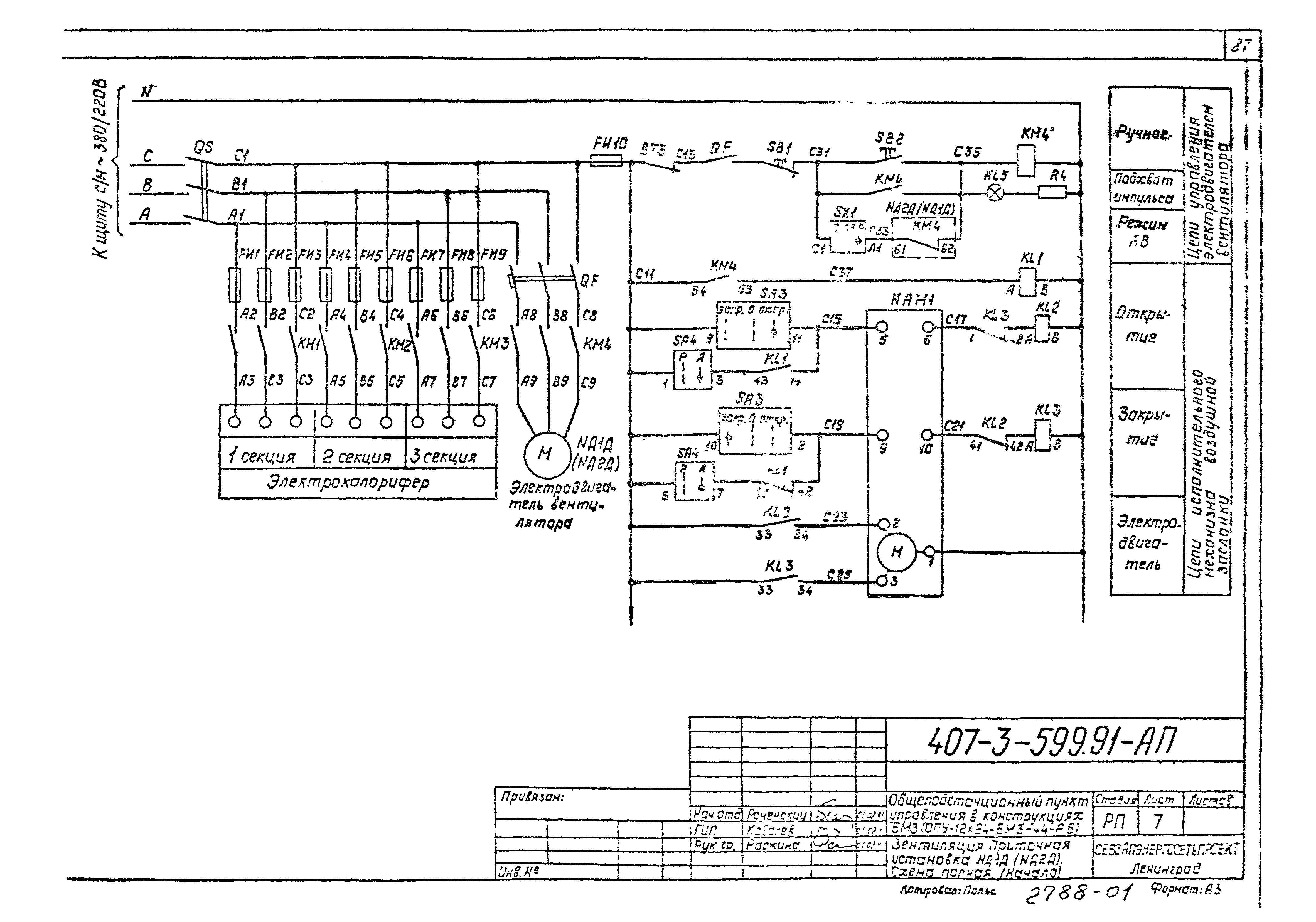
Скачать Типовой проект 407-3-599.91 Альбом 1. Общая пояснительная записка. Архитектурно-строительные решения. Отопление и вентиляция. Внутренние водопровод и канализация. Электротехнические решения. Автоматизация и управлениеДата актуализации: 01.01.2021
|
| Обозначение: | Типовой проект 407-3-599.91 |
| Обозначение англ: | 407-3-599.91 |
| Статус: | не действует |
| Название рус.: | Альбом 1. Общая пояснительная записка. Архитектурно-строительные решения. Отопление и вентиляция. Внутренние водопровод и канализация. Электротехнические решения. Автоматизация и управление |
| Дата добавления в базу: | 01.09.2013 |
| Дата актуализации: | 01.01.2021 |
| Разработан: | Севзапэнергосетьпроект |
| Утверждён: | 17.04.1991 Минэнерго СССР (USSR Minenergo 8) |
| Издан: | Севзапэнергосетьпроект (1991 г. ) |




























































































