Скачать Серия 1.090.1-2с Выпуск 2-3. Панели наружных стен однослойные для зданий с высотой этажа 3,0 м. Рабочие чертежиДата актуализации: 01.01.2021
|
| Обозначение: | Серия 1.090.1-2с |
| Обозначение англ: | Series 1.090.1-2с |
| Статус: | не действует |
| Название рус.: | Выпуск 2-3. Панели наружных стен однослойные для зданий с высотой этажа 3,0 м. Рабочие чертежи |
| Дата добавления в базу: | 01.09.2013 |
| Дата актуализации: | 01.01.2021 |
| Дата введения: | 01.01.1985 |
| Дата окончания срока действия: | 01.04.1991 |
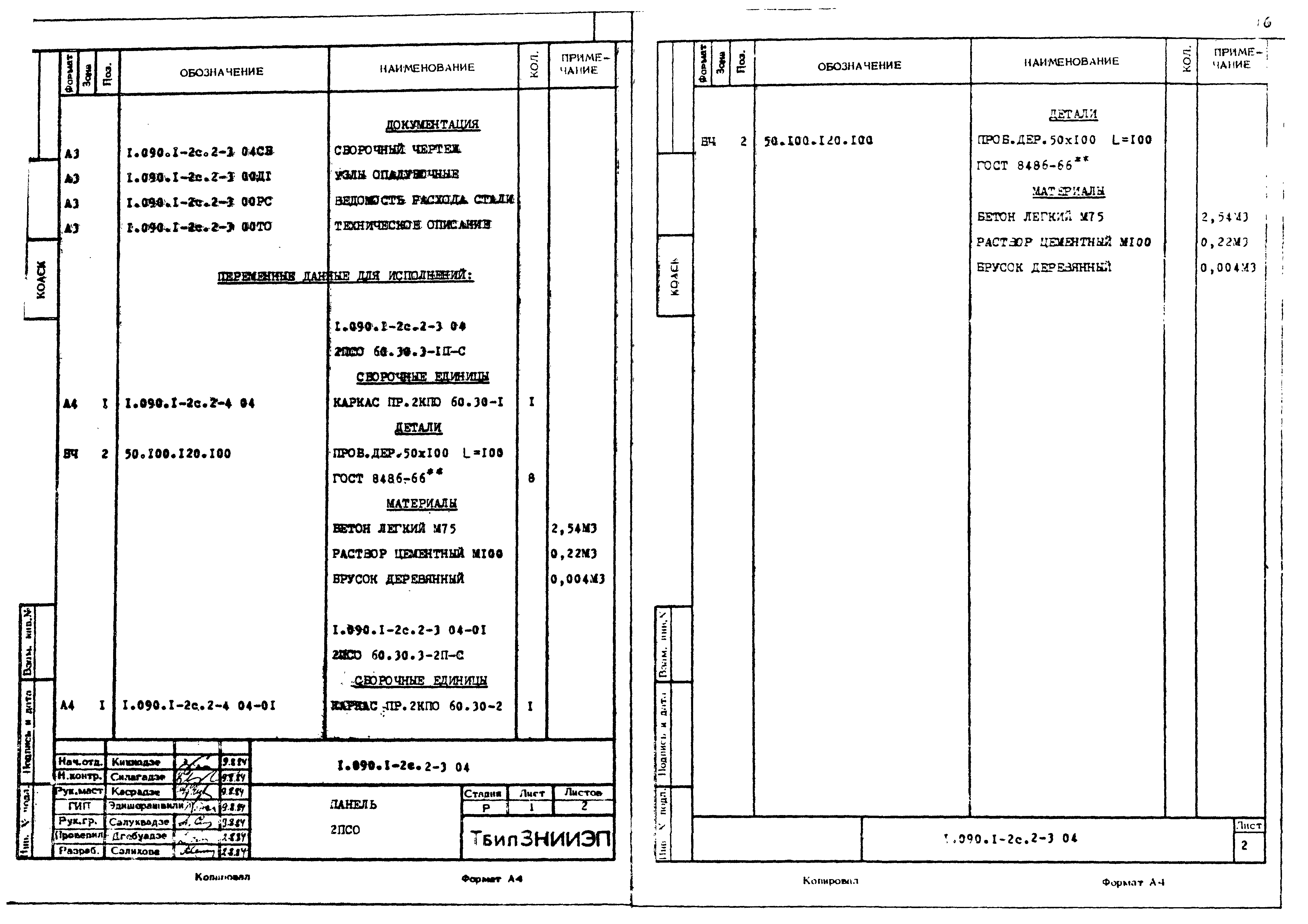
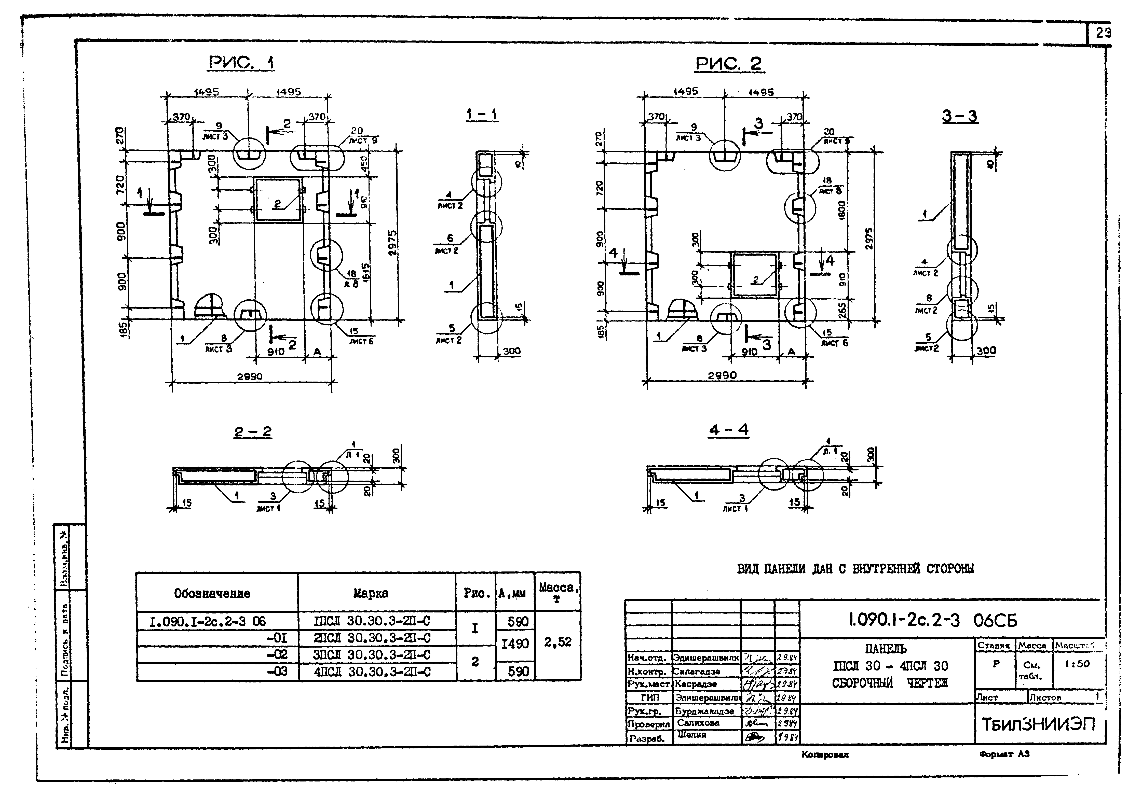
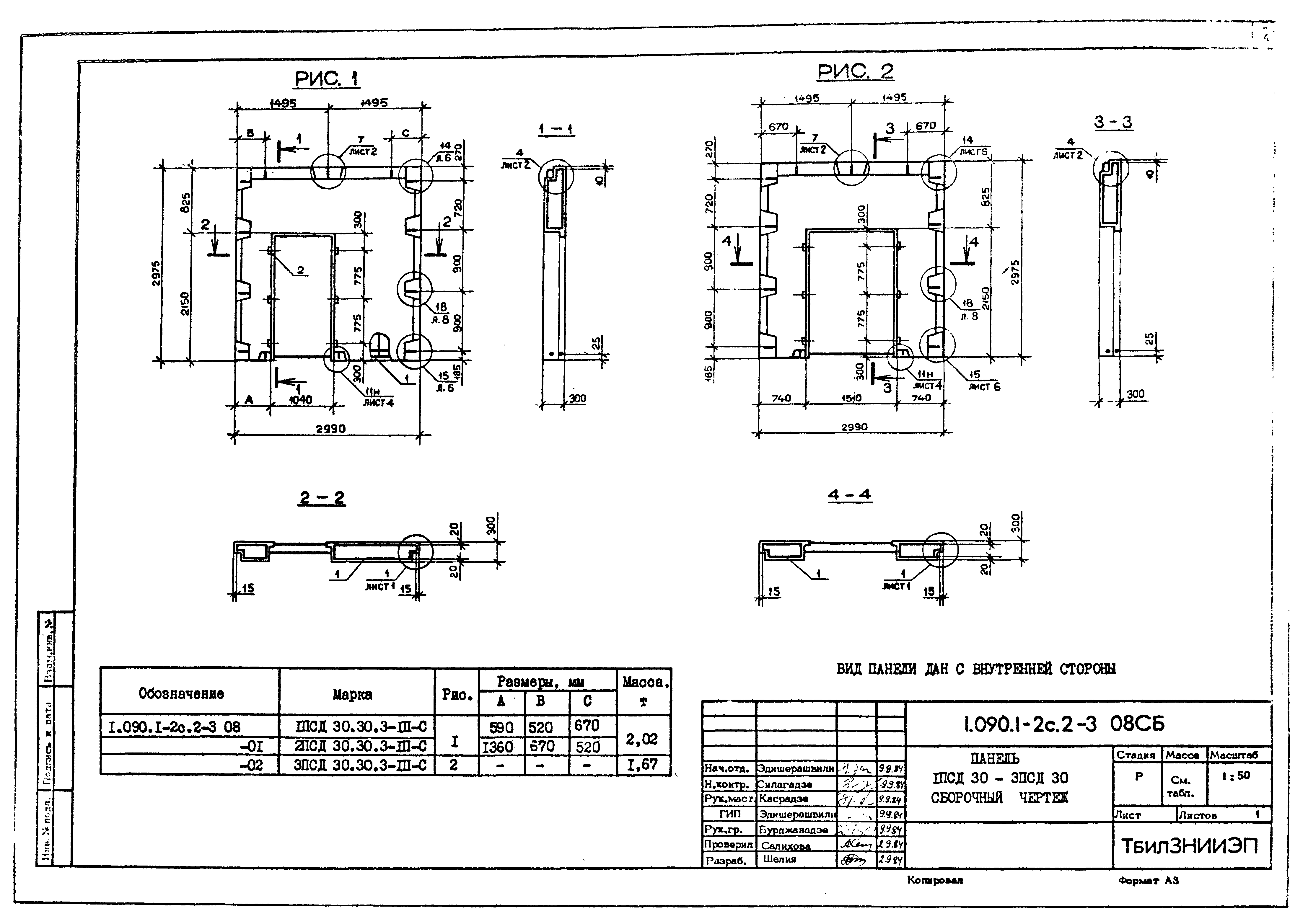
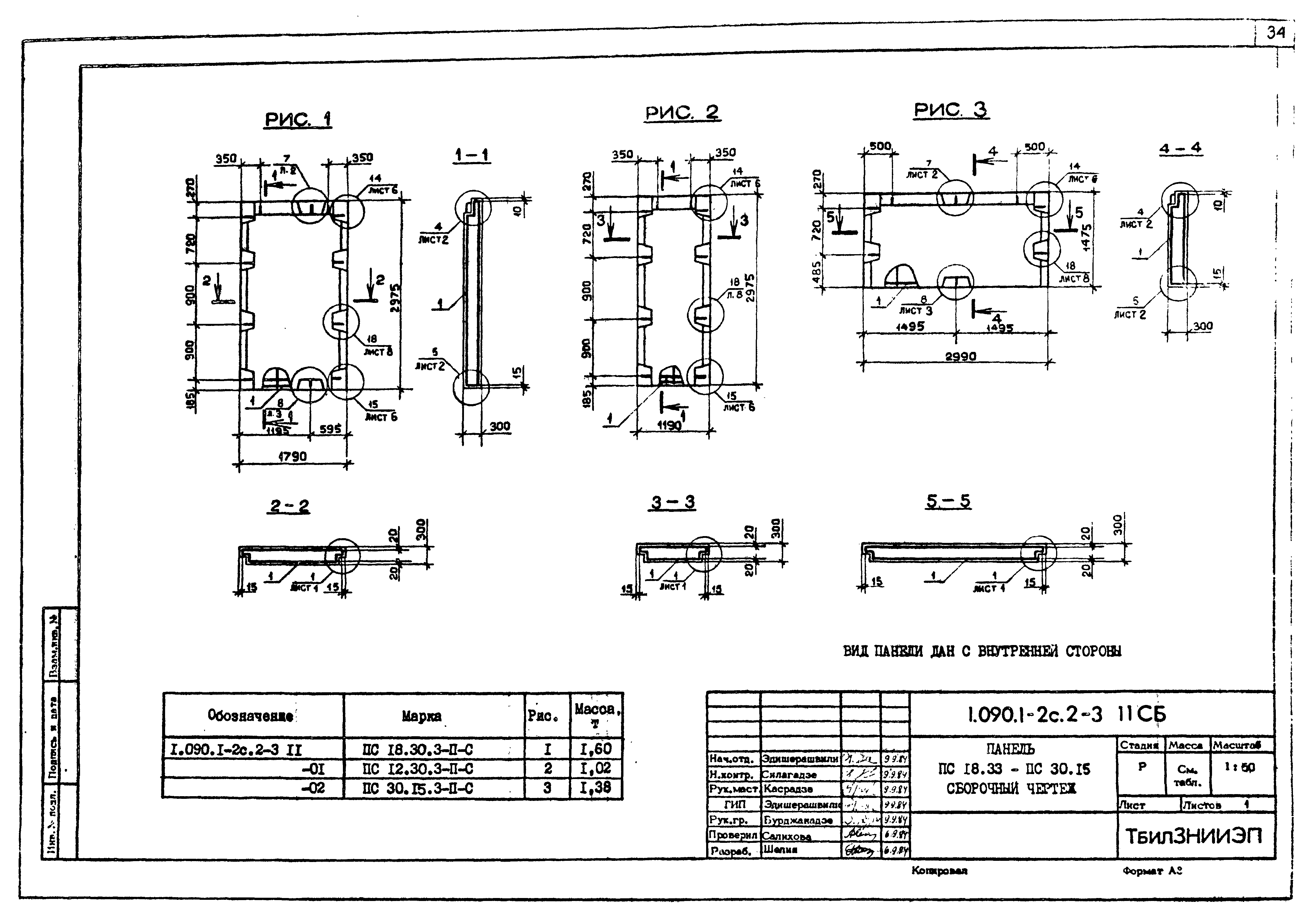
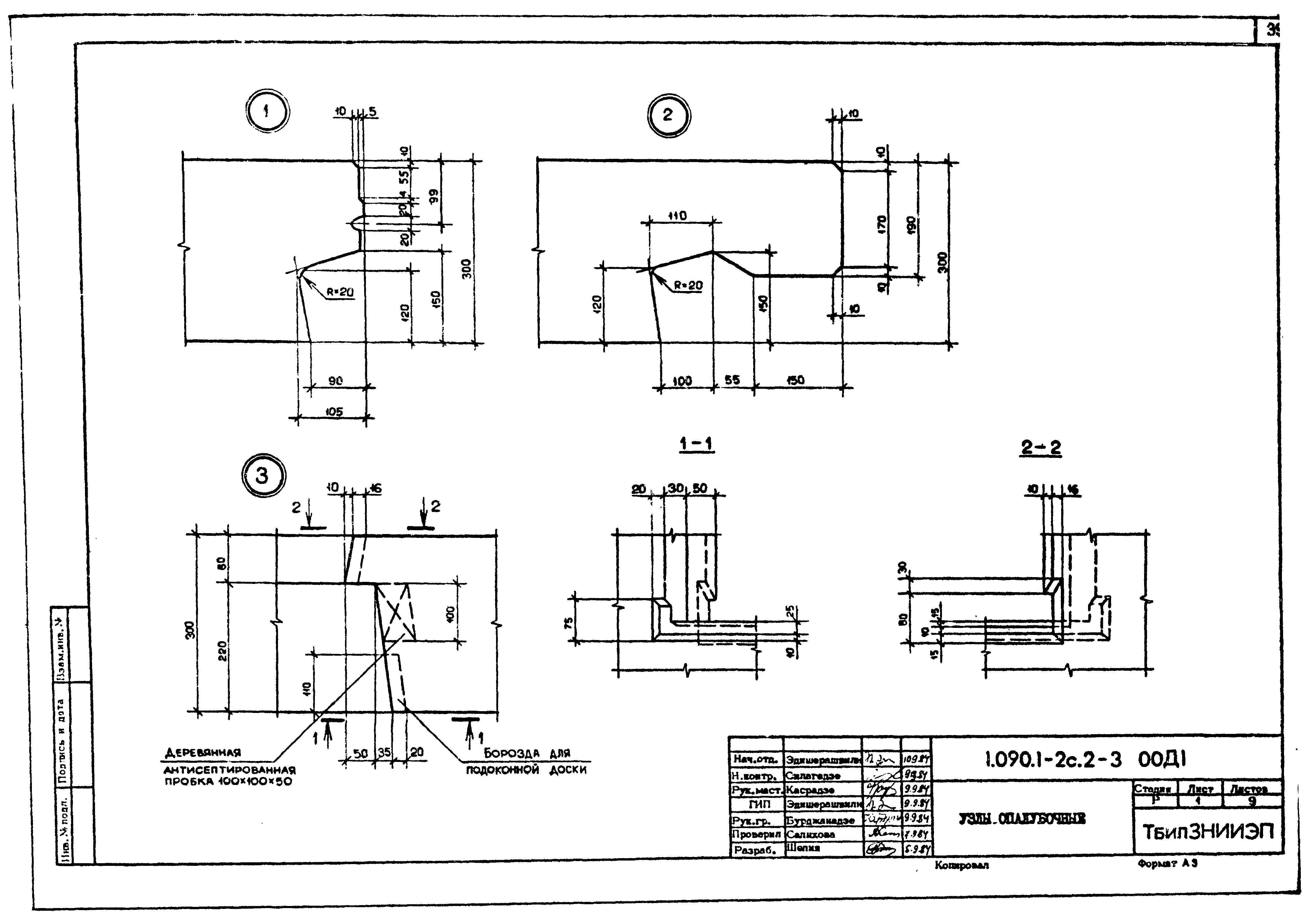
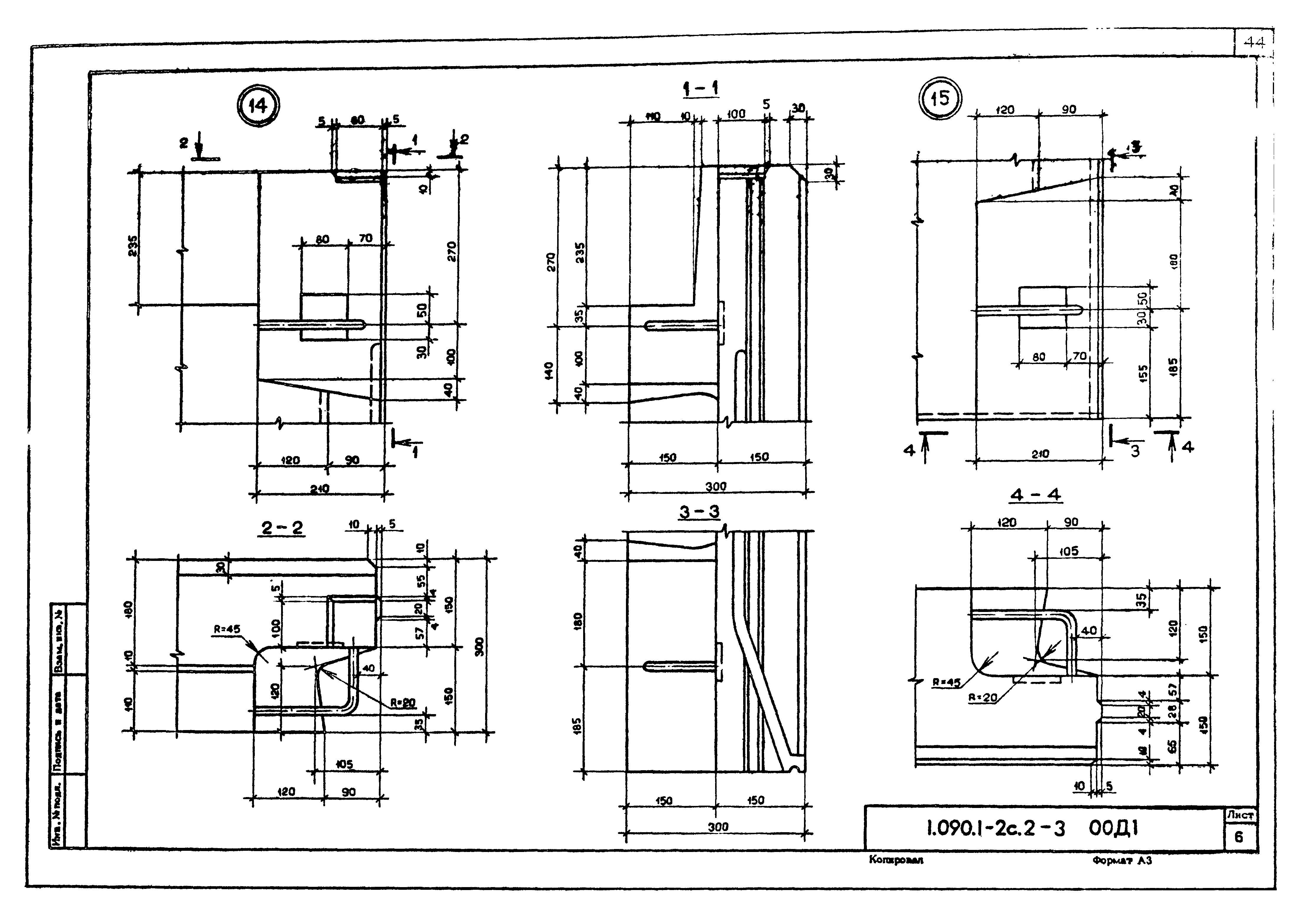
| Оглавление: | 1.090.1-2с.2-3 00ТО Техническое описание 1.090.1-2с.2-3 01 Панель 2ПСО30-6ПСО30 1.090.1-2с.2-3 02 Панель 7ПСО30-9ПСО30 1.090.1-2с.2-3 03 Панель 1ПСО32-2ПСО32 1.090.1-2с.2-3 04 Панель 2ПСО60 1.090.1-2с.2-3 05 Панель 3ПСО60-4ПСО60 1.090.1-2с.2-3 06 Панель 1ПСЛ30-4ПСЛ30 1.090.1-2с.2-3 07 Панель 5ПСЛ30-8ПСЛ30 1.090.1-2с.2-3 08 Панель 1ПСД30-3ПСД30 1.090.1-2с.2-3 09 Панель 4ПСД30, ПСД30 1.090.1-2с.2-3 10 Панель ПС30, 3ПС24 1.090.1-2с.2-3 11 Панель ПС18.30-ПС30.15 1.090.1-2с.2-3 12 Панель 1ПС32-1ПС14 1.090.1-2с.2-3 13 Панель 2ПС32-2ПС14 1.090.1-2с.2-3 00Д1 Узлы опалубочные 1.090.1-2с.2-3 00РС Ведомость расхода стали |
| Разработан: | ТбилЗНИИЭП |
| Утверждён: | 01.11.1984 Госстрой СССР (Государственный комитет Совета Министров СССР по делам строительства) (USSR Gosstroy ИИ-31) |



















































