Скачать Серия 1.090.1-2с Выпуск 7-1. Монтажные узлы. Рабочие чертежиДата актуализации: 01.01.2021
|
| Обозначение: | Серия 1.090.1-2с |
| Обозначение англ: | Series 1.090.1-2с |
| Статус: | не действует |
| Название рус.: | Выпуск 7-1. Монтажные узлы. Рабочие чертежи |
| Дата добавления в базу: | 01.09.2013 |
| Дата актуализации: | 01.01.2021 |
| Дата введения: | 01.01.1985 |
| Дата окончания срока действия: | 01.04.1991 |
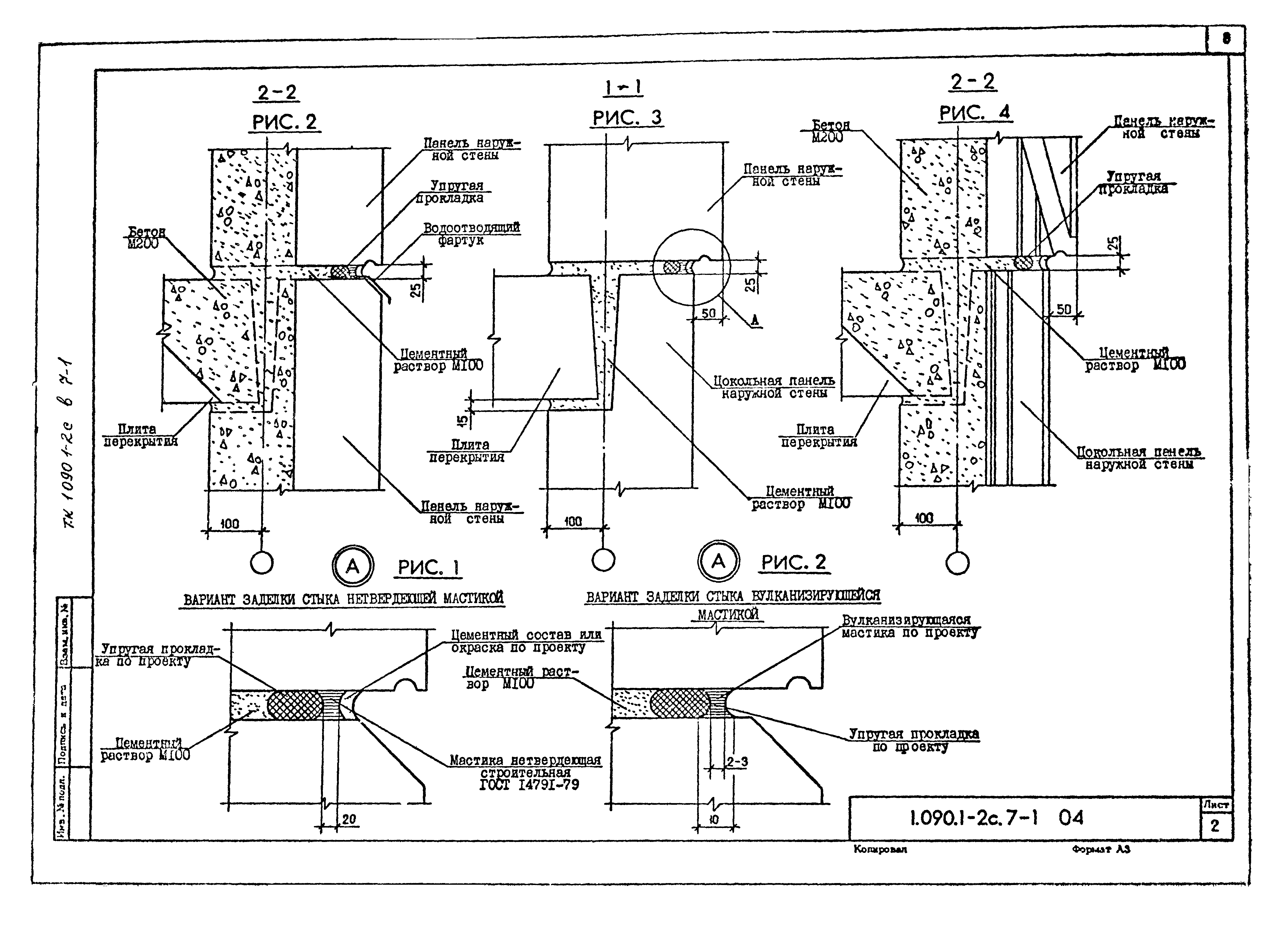
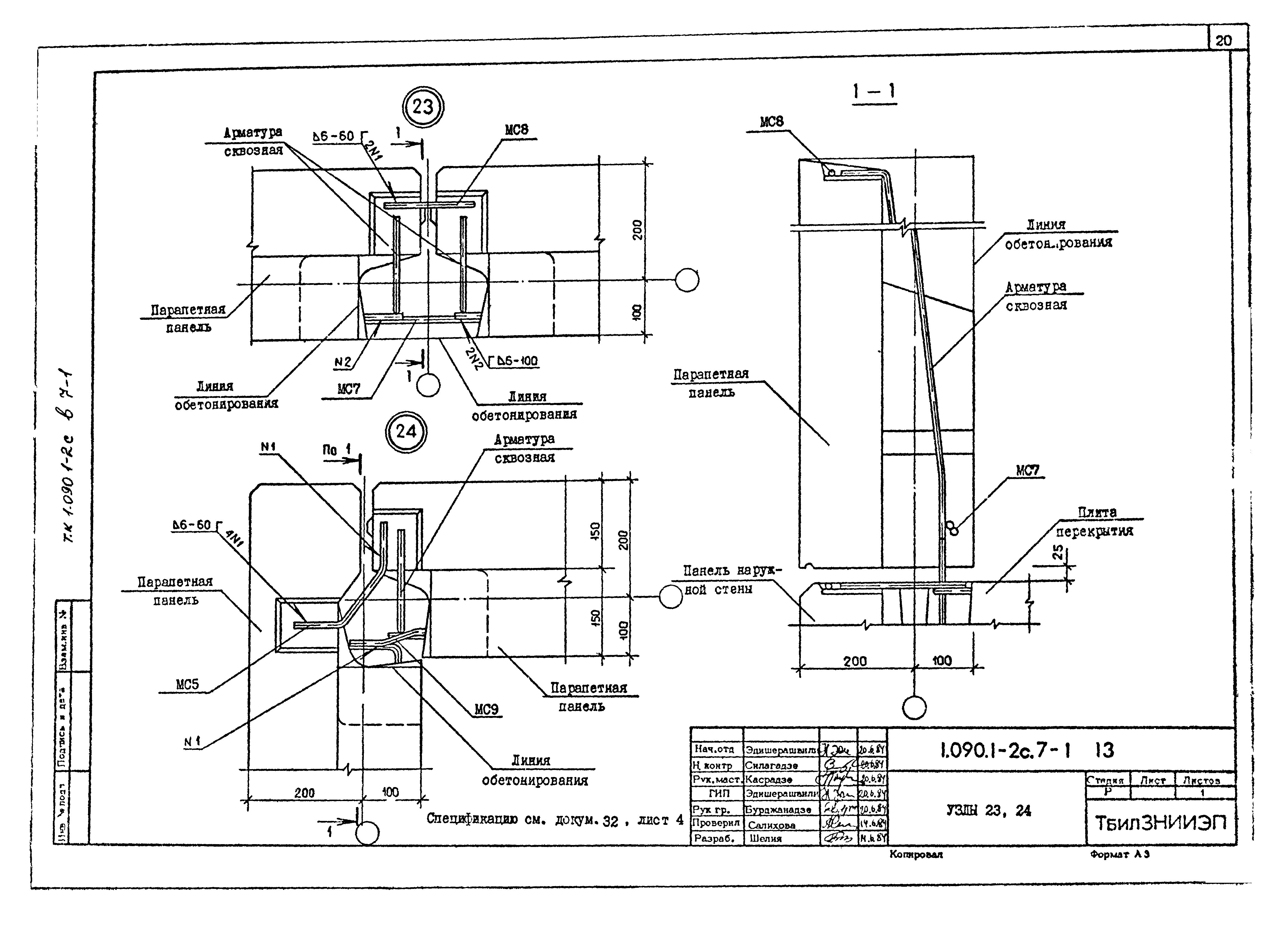
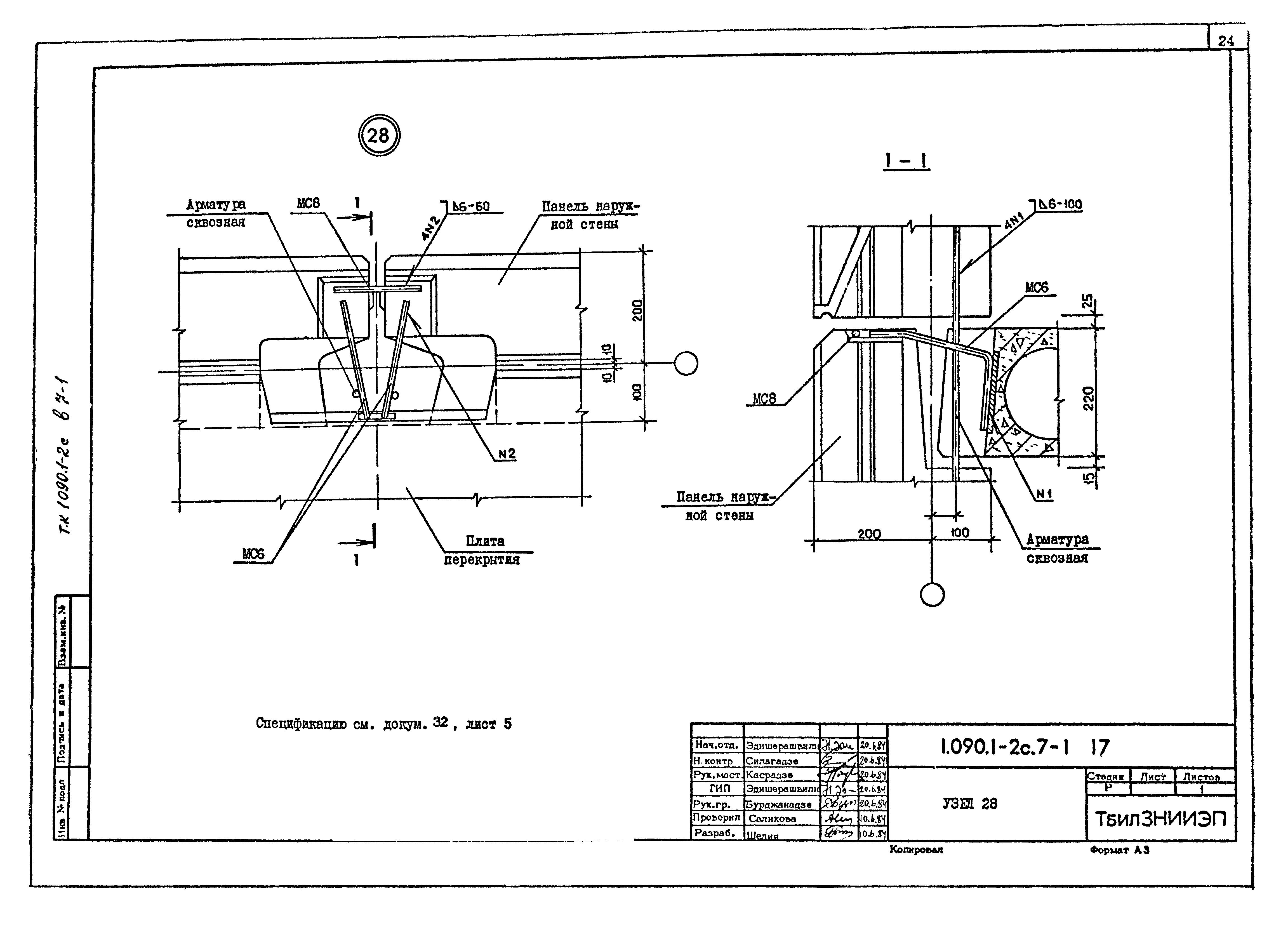
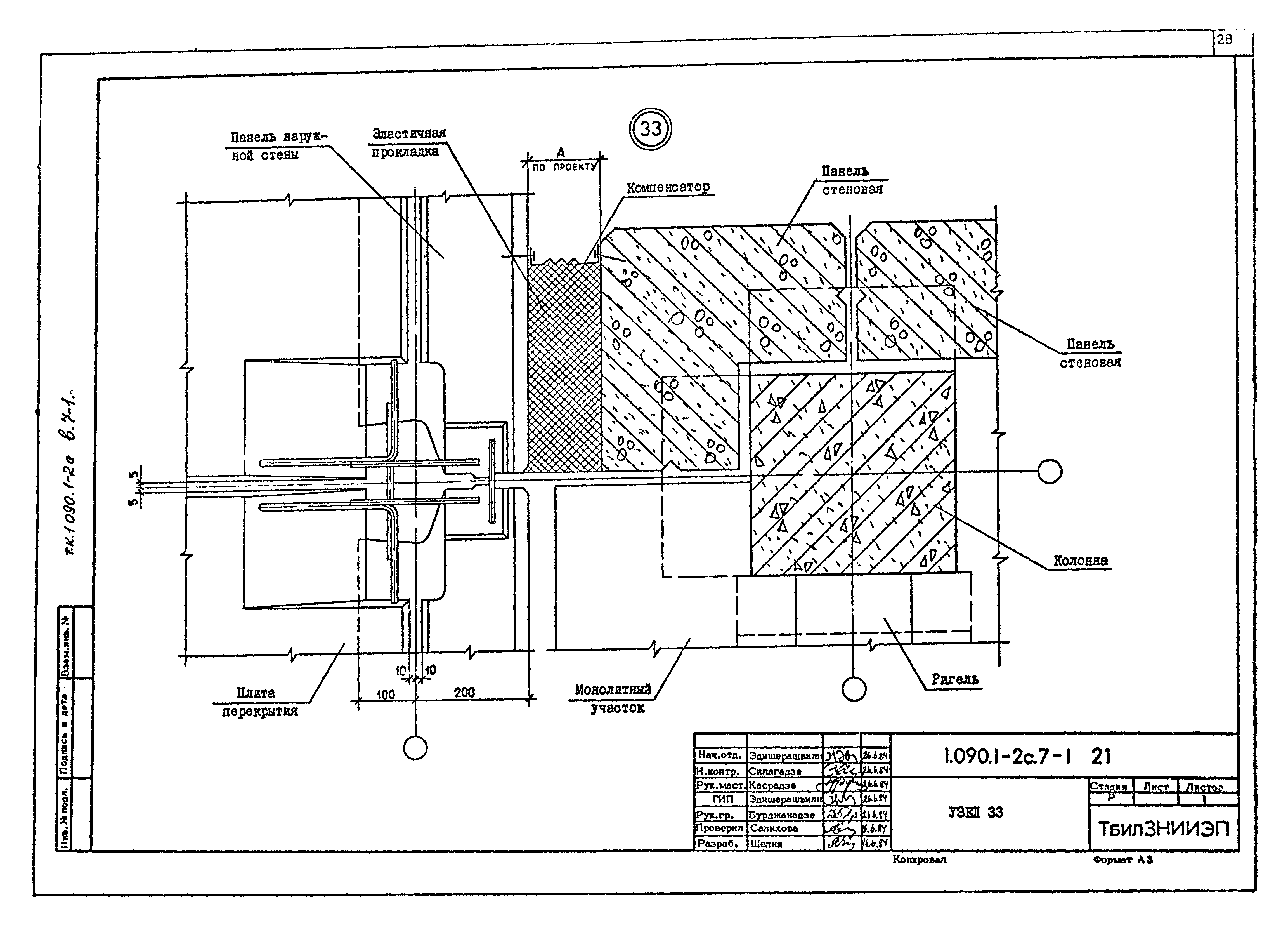
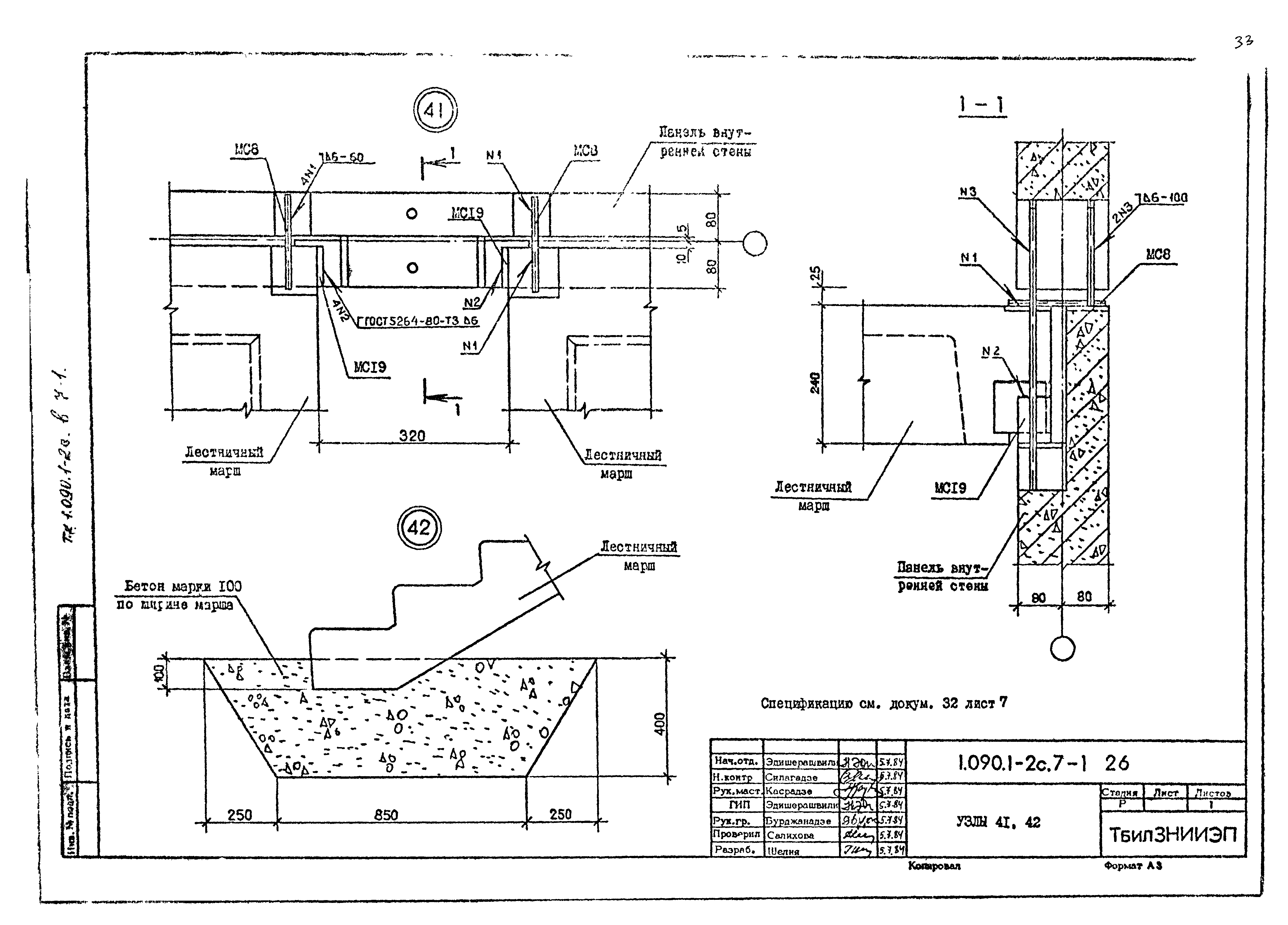
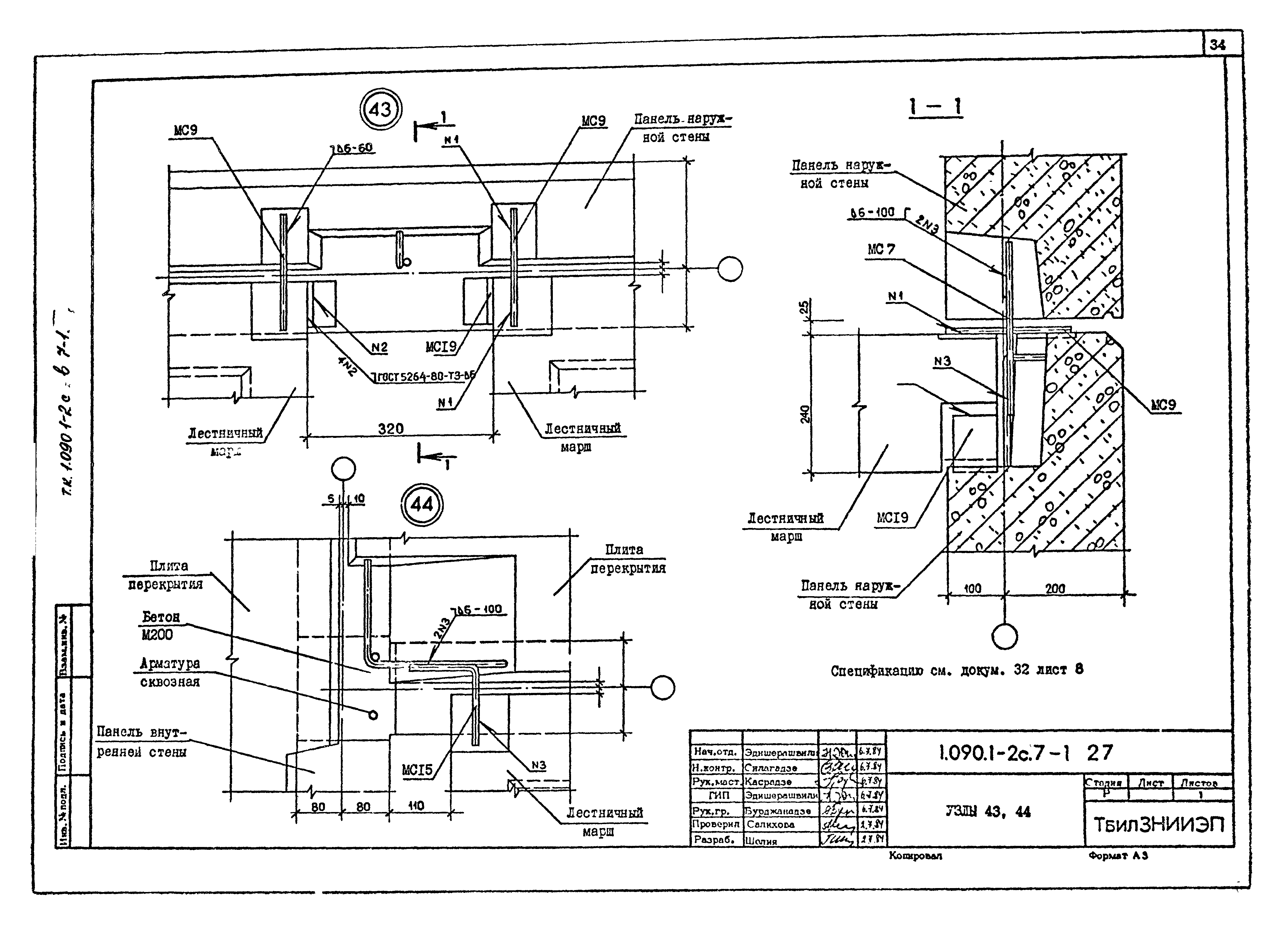
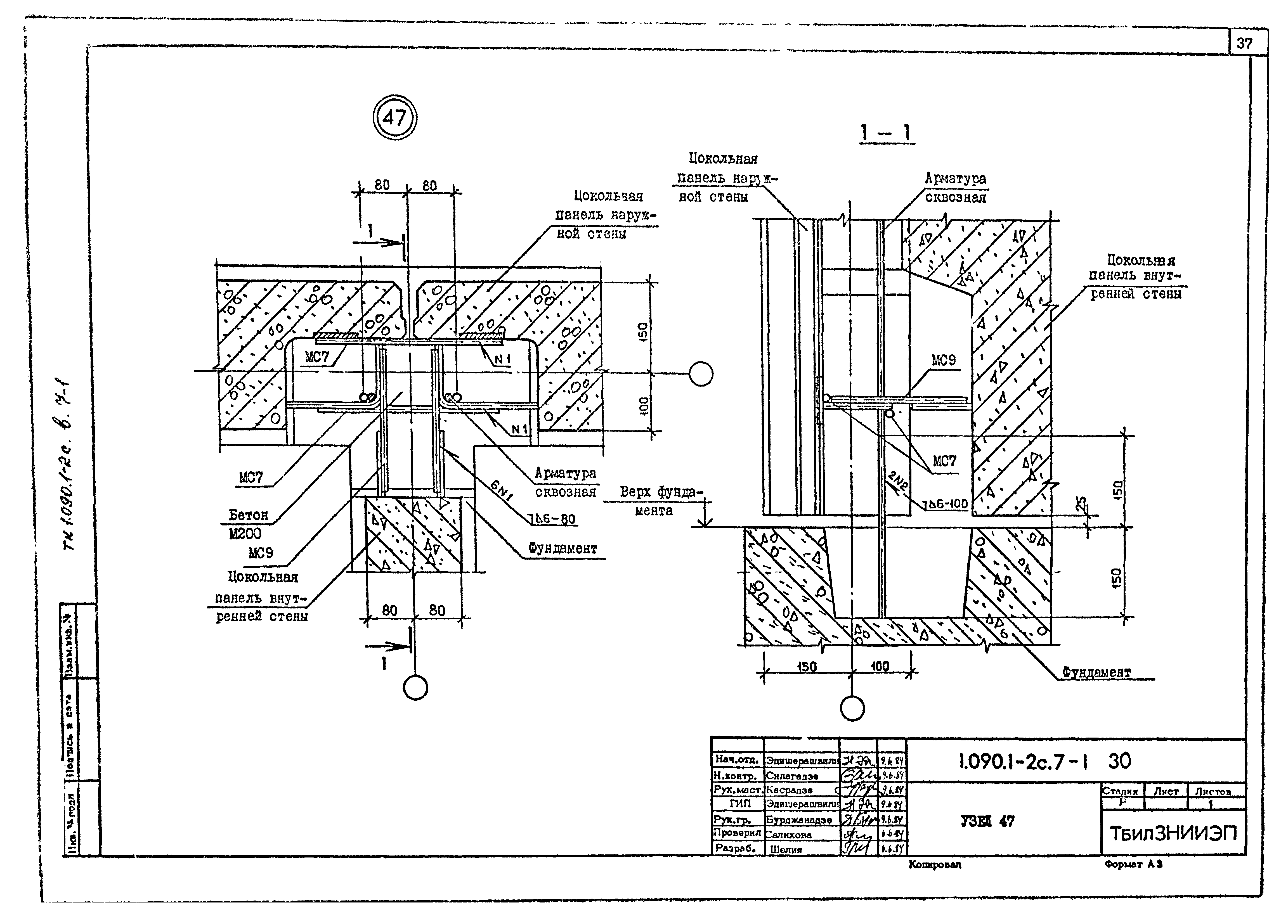
| Оглавление: | 1.090.1-2с.7-1 00ТО Техническое описание 1.090.1-2с.7-1 01 Узел 1 1.090.1-2с.7-1 02 Узел 2 1.090.1-2с.7-1 03 Узел 3,4 1.090.1-2с.7-1 04 Узел 5 1.090.1-2с.7-1 05 Узел 6,7,8 1.090.1-2с.7-1 06 Узел 9,10,11,12 1.090.1-2с.7-1 07 Узел 13,14 1.090.1-2с.7-1 08 Узел 15,16 1.090.1-2с.7-1 09 Узел 17,18 1.090.1-2с.7-1 10 Узел 19 1.090.1-2с.7-1 11 Узел 20,21 1.090.1-2с.7-1 12 Узел 22 1.090.1-2с.7-1 13 Узел 23,24 1.090.1-2с.7-1 14 Узел 25 1.090.1-2с.7-1 15 Узел 26 1.090.1-2с.7-1 16 Узел 27 1.090.1-2с.7-1 17 Узел 28 1.090.1-2с.7-1 18 Узел 29,30 1.090.1-2с.7-1 19 Узел 31 1.090.1-2с.7-1 20 Узел 32 1.090.1-2с.7-1 21 Узел 33 1.090.1-2с.7-1 22 Узел 34,35 1.090.1-2с.7-1 23 Узел 36 1.090.1-2с.7-1 24 Узел 37,38 1.090.1-2с.7-1 25 Узел 39,40 1.090.1-2с.7-1 26 Узел 41,42 1.090.1-2с.7-1 27 Узел 43,44 1.090.1-2с.7-1 28 Узел 45 1.090.1-2с.7-1 29 Узел 46 1.090.1-2с.7-1 30 Узел 47 1.090.1-2с.7-1 31 Узел 48 1.090.1-2с.7-1 32 Спецификация |
| Разработан: | ТбилЗНИИЭП |
| Утверждён: | 01.11.1984 Госстрой СССР (Государственный комитет Совета Министров СССР по делам строительства) (USSR Gosstroy ИИ-31) |











































