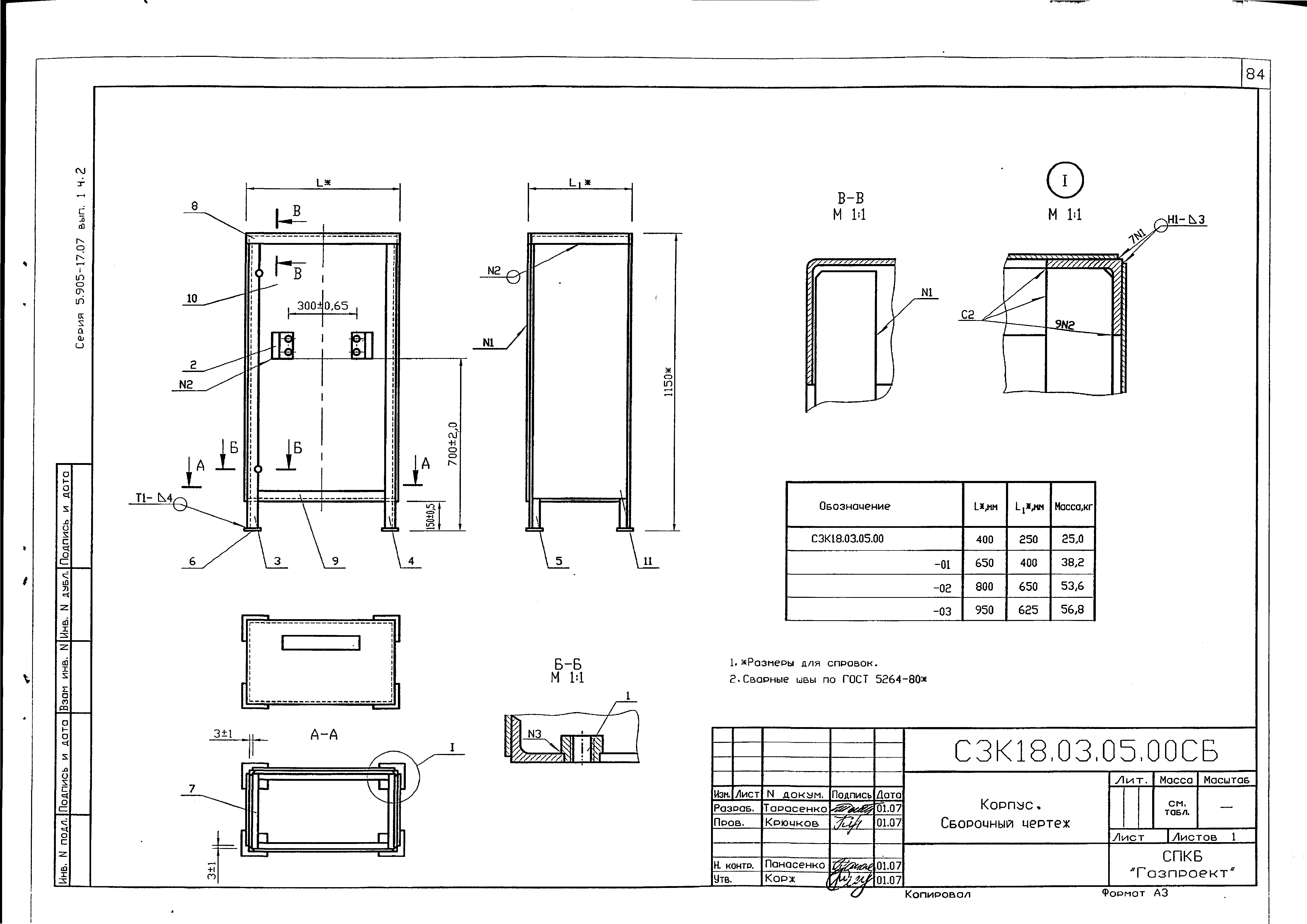
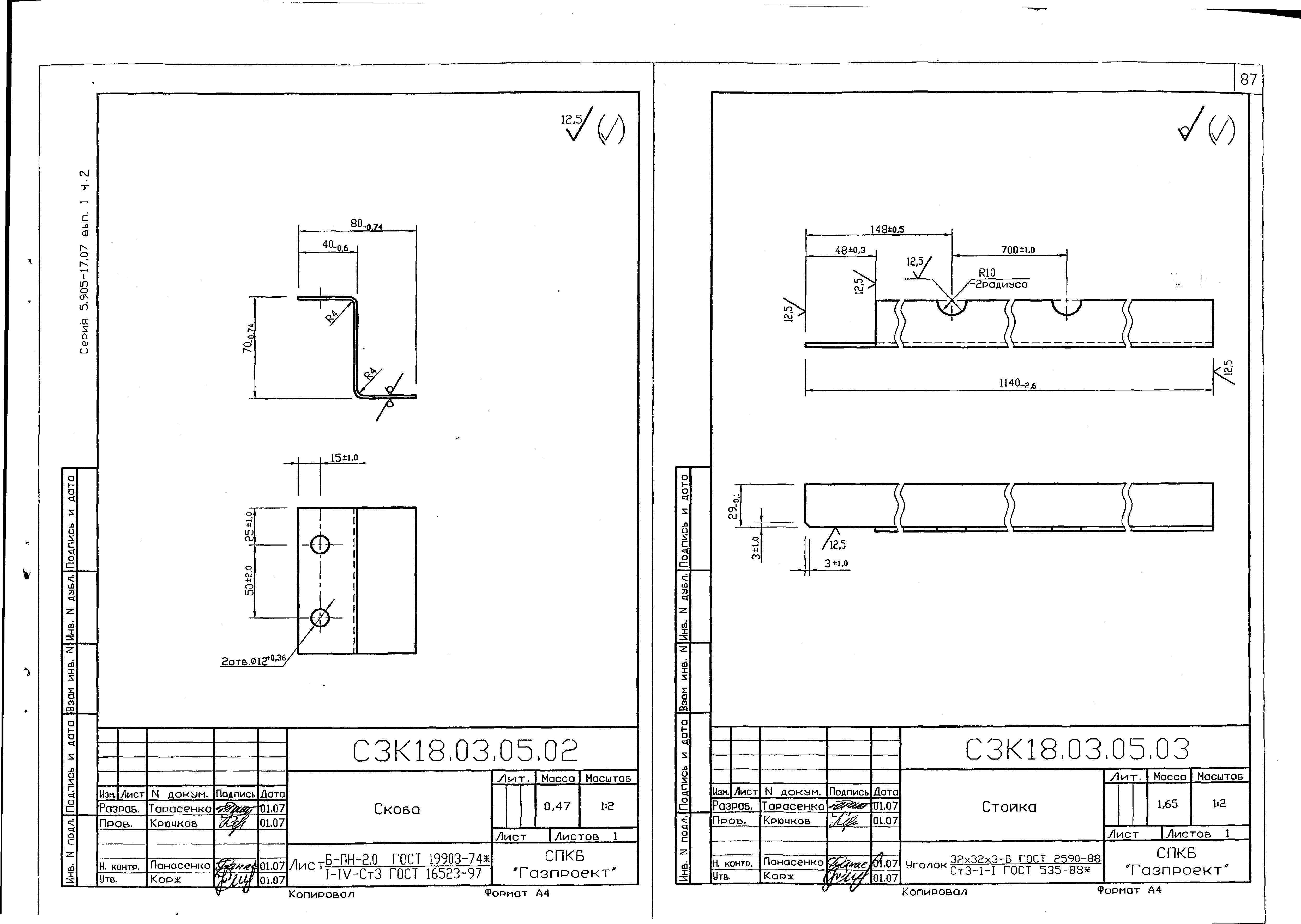
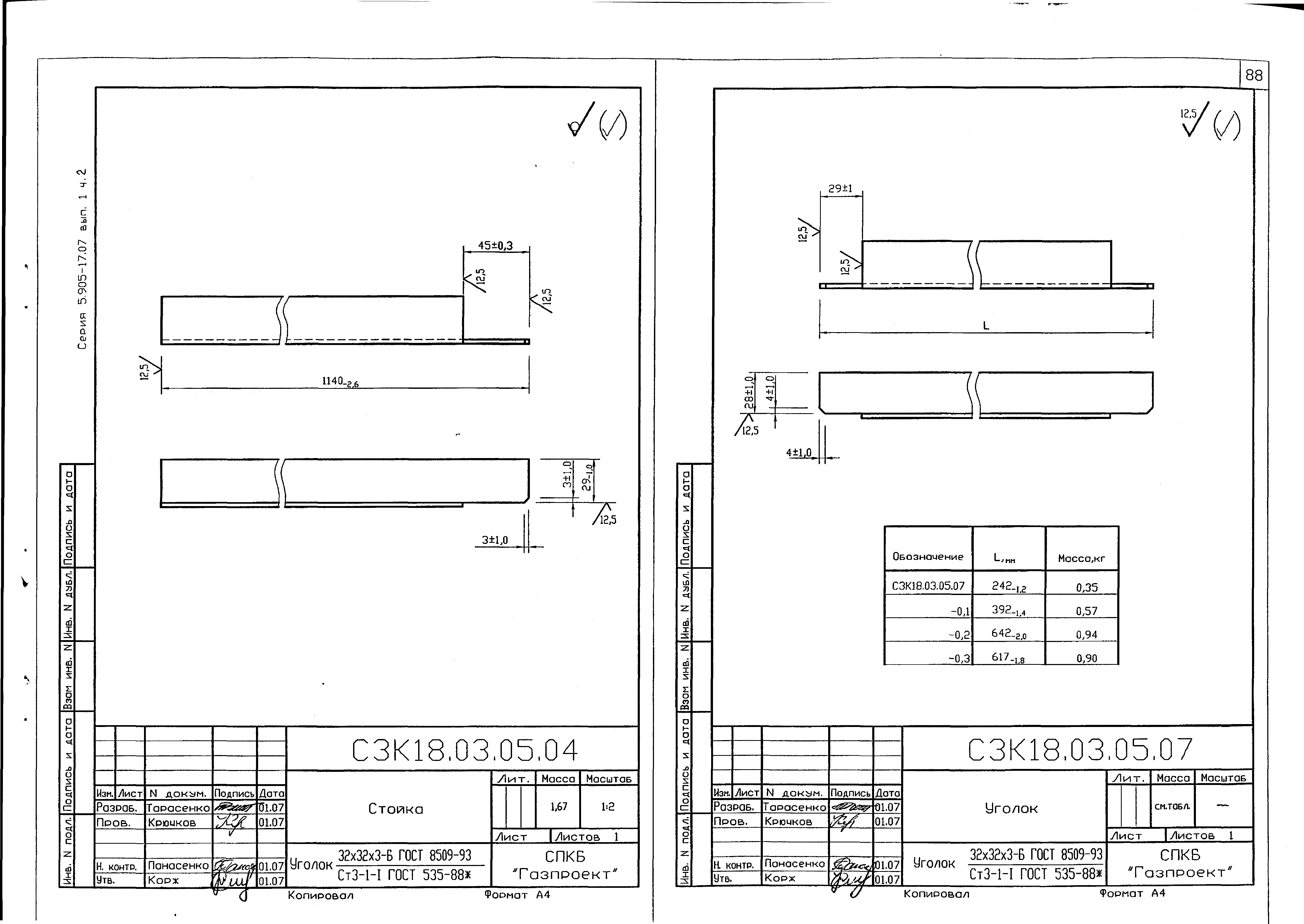
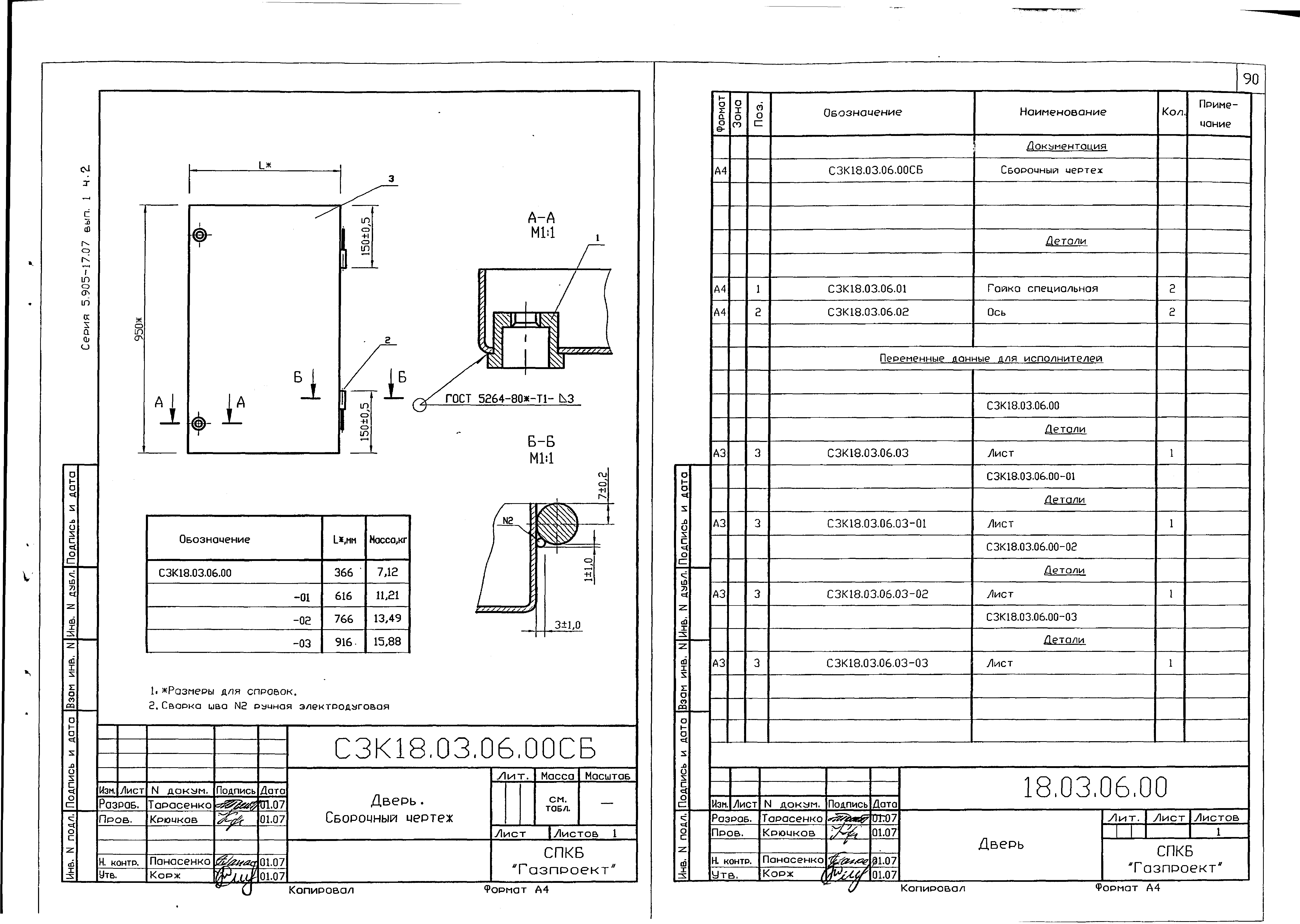
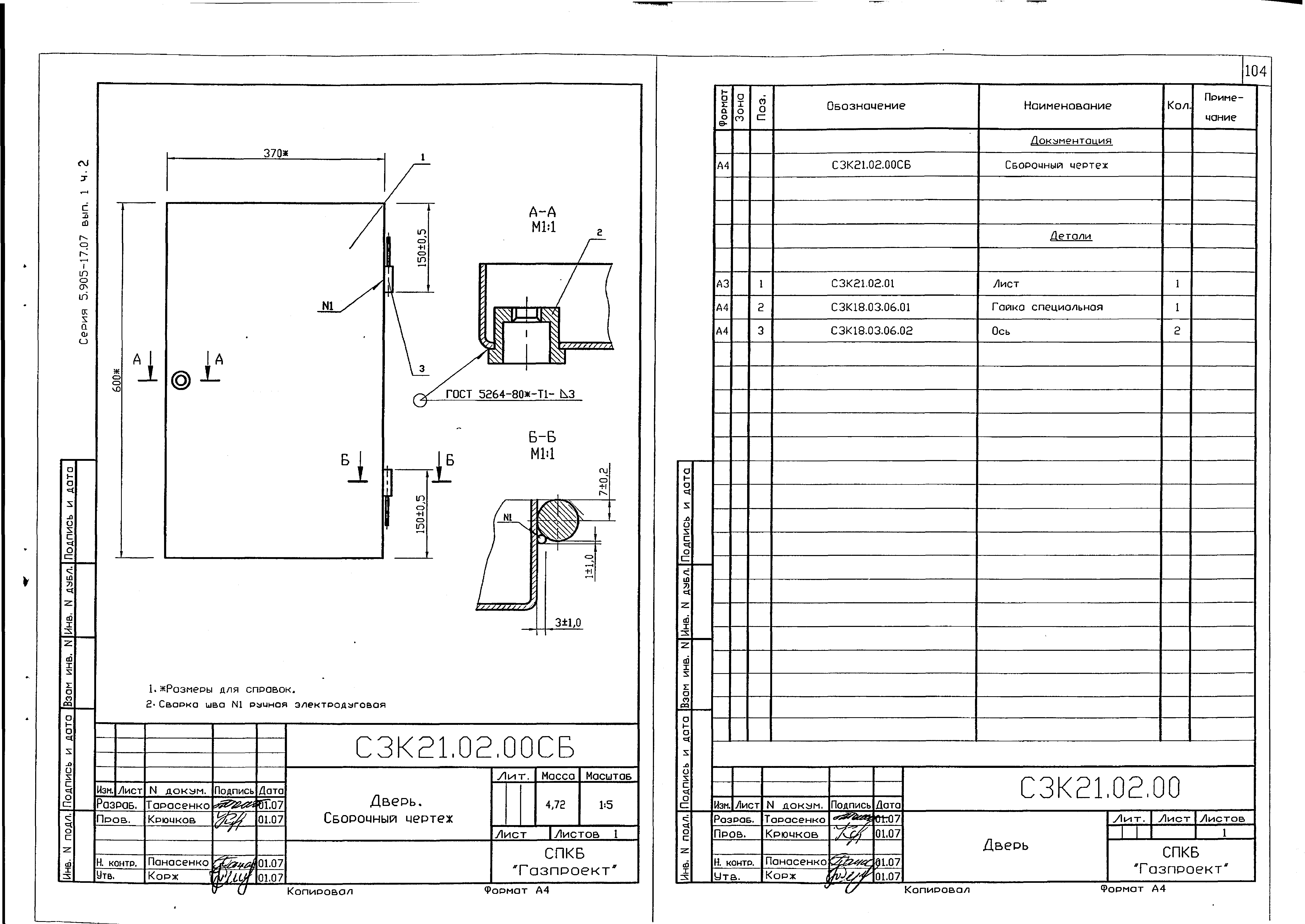
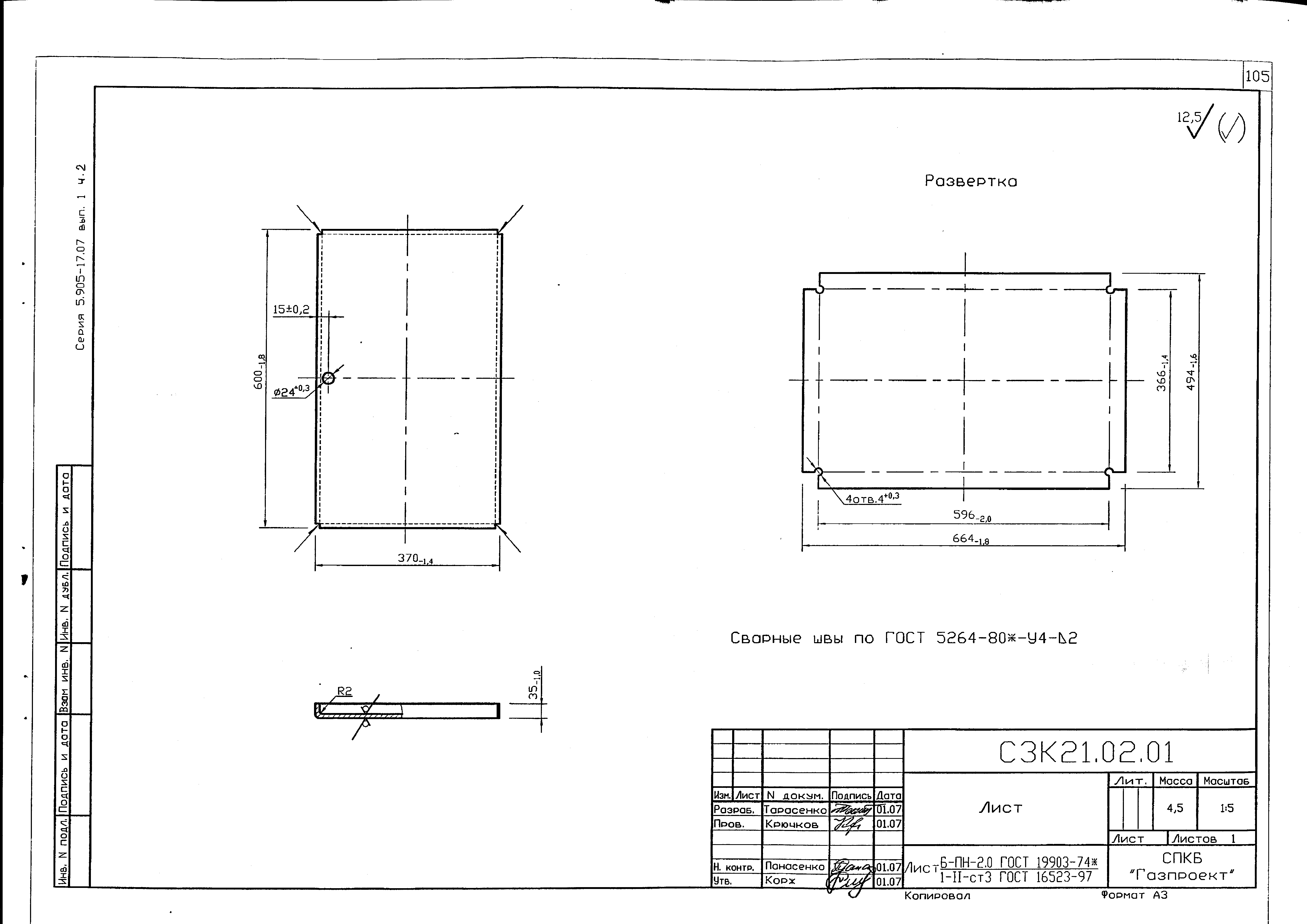
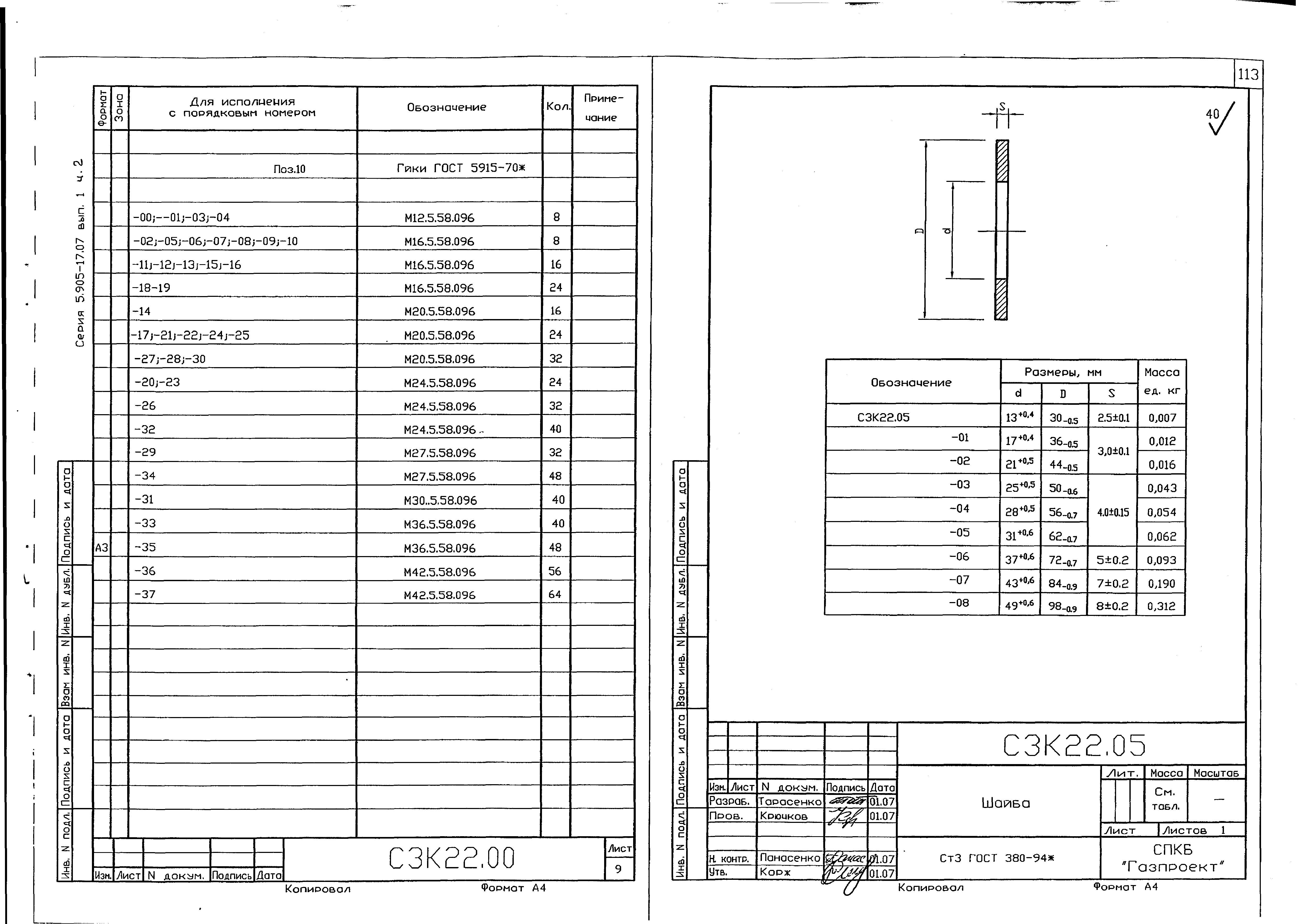
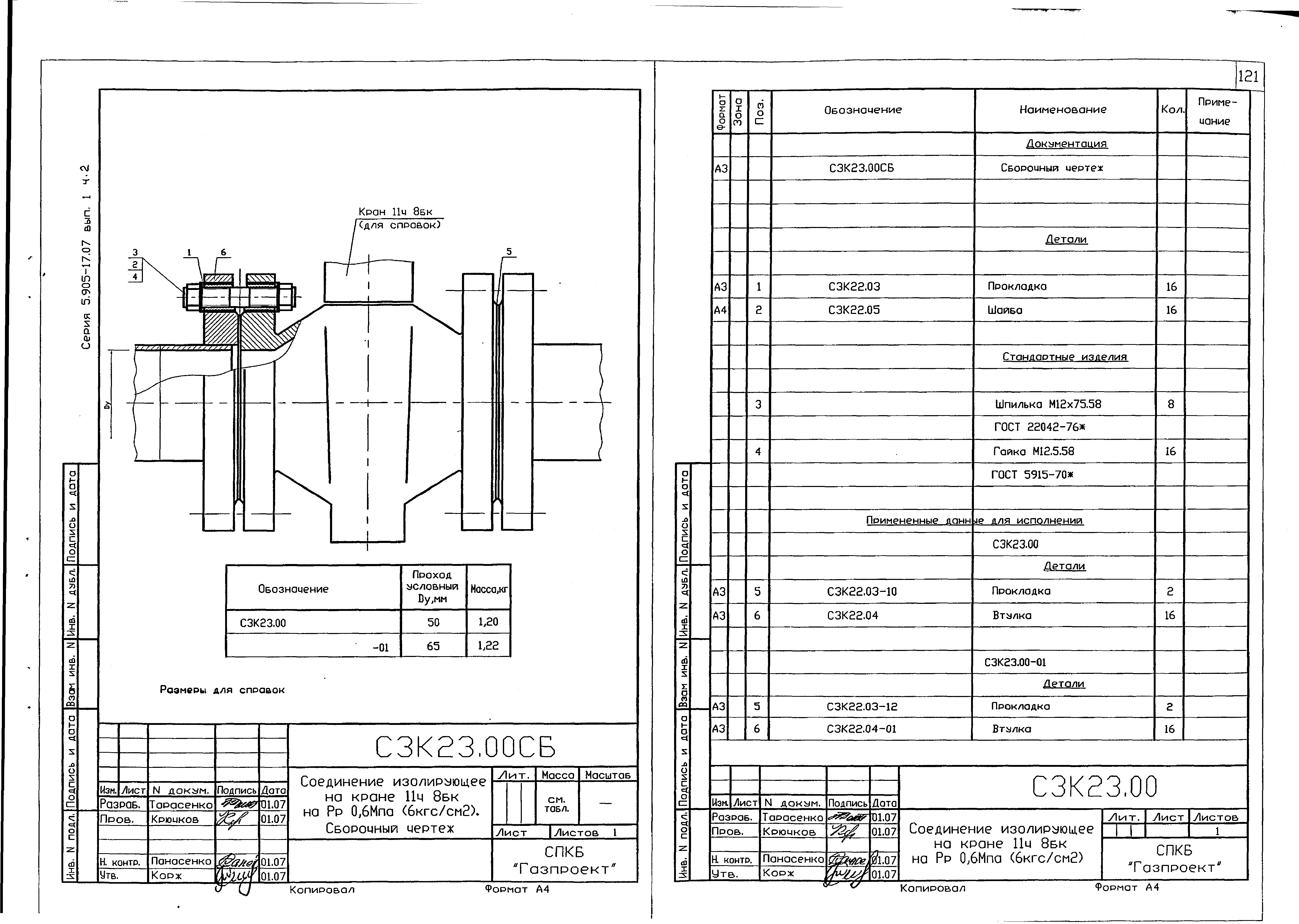
Скачать Серия 5.905-17.07 Выпуск 1. Часть 2. Рабочие чертежиДата актуализации: 01.01.2021 Серия 5.905-17.07
Выпуск 1. Часть 2. Рабочие чертежи| Обозначение: | Серия 5.905-17.07 | | Обозначение англ: | Series 5.905-17.07 | | Статус: | не определен законодательством | | Название рус.: | Выпуск 1. Часть 2. Рабочие чертежи | | Дата добавления в базу: | 01.09.2013 | | Дата актуализации: | 01.01.2021 | | Дата введения: | 01.03.2007 | | Разработан: | ОАО СПКБ Газпроект -БТЦ
| | Утверждён: | 16.02.2007 АО Росгазификация (Rosgazifikatsiya AO 5)
| | Издан: | Информационный бюллетень о нормативной, методической и типовой проектной документации ФГУП ЦПП (2007 г. (5))
| | Заменяет собой: | |
                                                                                               
|