Скачать Типовой проект 902-1-132.88 Альбом I. Пояснительная записка. Технологические решения. Конструкции железобетонные. Электротехнические решения. Спецификации оборудования. Ведомость потребности в материалахДата актуализации: 01.01.2021
|
| Обозначение: | Типовой проект 902-1-132.88 |
| Обозначение англ: | 902-1-132.88 |
| Статус: | не определен законодательством |
| Название рус.: | Альбом I. Пояснительная записка. Технологические решения. Конструкции железобетонные. Электротехнические решения. Спецификации оборудования. Ведомость потребности в материалах |
| Дата добавления в базу: | 01.09.2013 |
| Дата актуализации: | 01.01.2021 |
| Дата введения: | 25.12.1987 |
| Дата окончания срока действия: | 30.06.2003 |
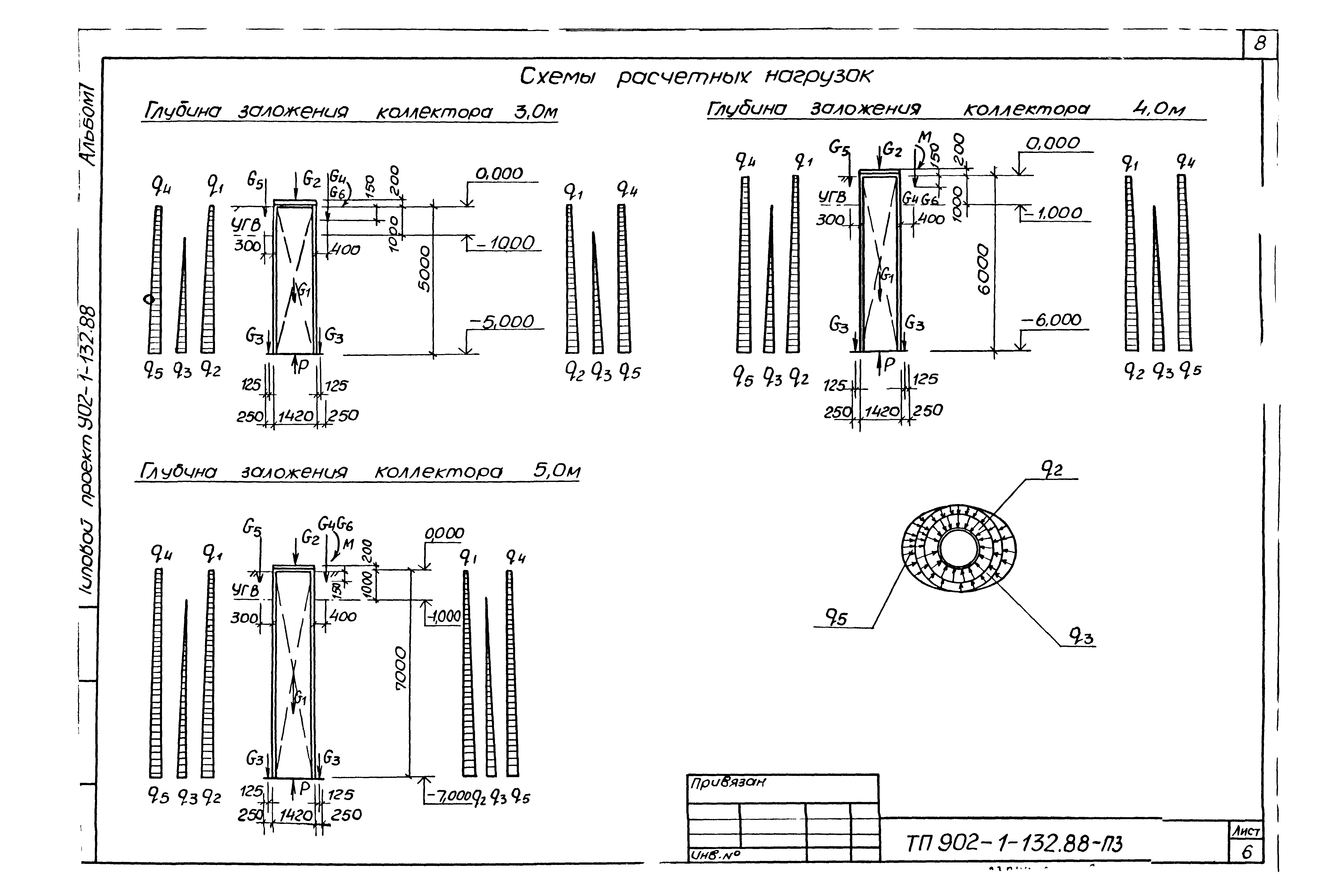
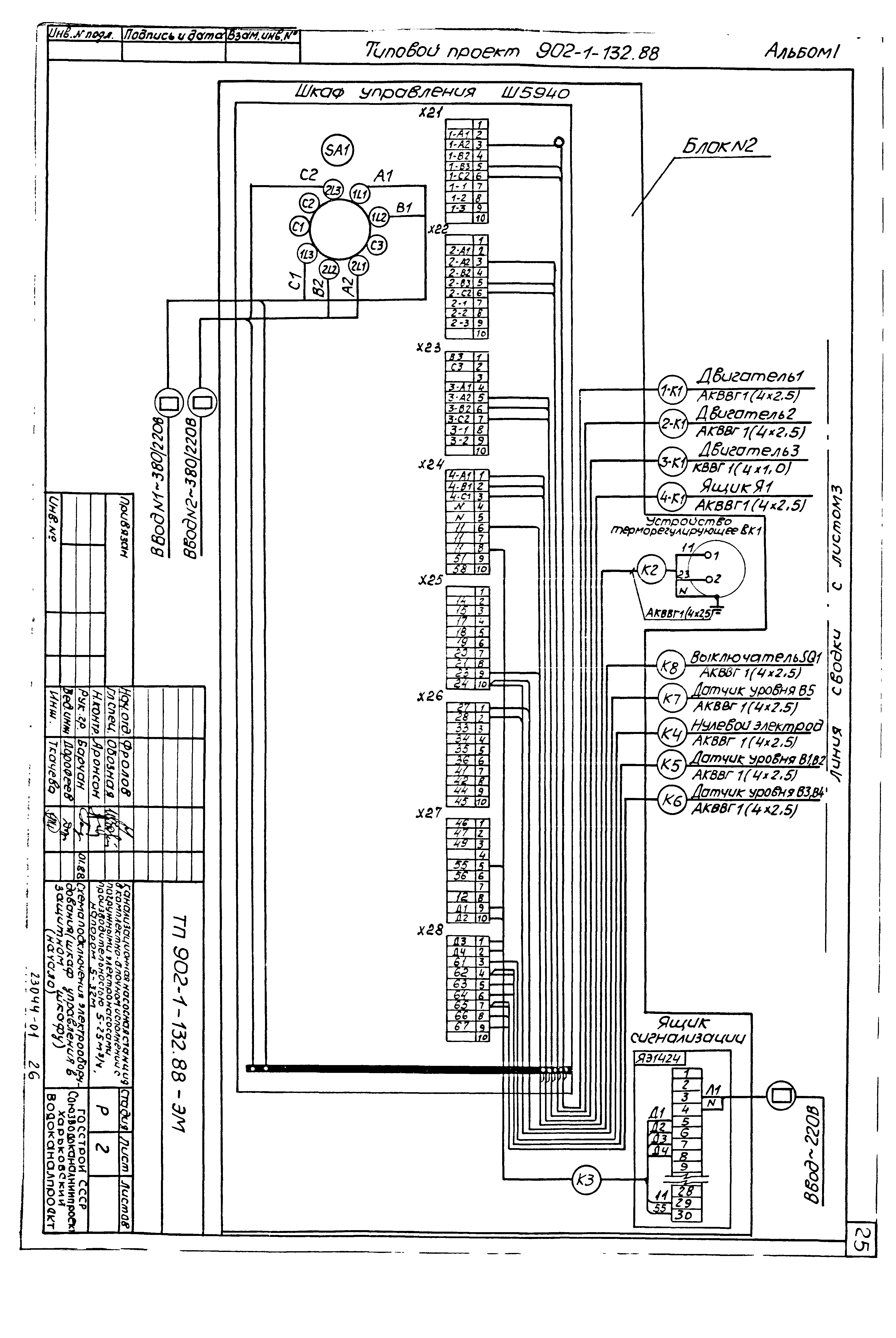
| Оглавление: | ТП902-1-132.88-ПЗ Пояснительная записка ТП902-1-132.88-НК Основной комплект марки НК ТП902-1-132.88-НК Общие данные ТП902-1-132.88-НК План 1-1. Разрез 2-12 (для насосов в стационарном исполнении) ТП902-1-132.88-НК План 1-1. Разрез 2-12 (для насосов в переносном исполнении) ТП902-1-132.88-КЖ Основной комплект марки КЖ ТП902-1-132.88-КЖ Общие данные ТП902-1-132.88-КЖ Схемы расположения приемного резервуара и фундаментов под шкаф управления ТП902-1-132.88-ЭМ Основной комплект марки ЭМ ТП902-1-132.88-ЭМ Общие данные ТП902-1-132.88-ЭМ Схема подключения электрооборудования (шкаф управления в защитном шкафу) ТП902-1-132.88-ЭМ Схема подключения электрооборудования (шкаф управления в помещении) ТП902-1-132.88-ЭМ План расположения электрооборудования. Прокладка кабелей (шкаф управления в защитном шкафу) ТП902-1-132.88-ЭМ План расположения электрооборудования. Прокладка кабелей (шкаф управления в помещении) ТП902-1-132.88-ЭМ Кабельный журнал ТП902-1-132.88-НК.СО Спецификация оборудования по рабочим чертежам основного комплекта марки НК ТП902-1-132.88-ЭМ.СО Спецификация оборудования по рабочим чертежам основного комплекта марки ЭМ ТП902-1-132.88-КЖ.СО Ведомость потребности в материалах по рабочим чертежам основного комплекта КЖ. Сборочный чертеж |
| Разработан: | Харьковский Водоканалпроект |
| Утверждён: | 25.12.1987 Госстрой СССР (Государственный комитет Совета Министров СССР по делам строительства) (USSR Gosstroy 102) |
| Издан: | ЦИТП Госстроя СССР (CITP, Gosstroy (USSR) 1988 г. ) |

































