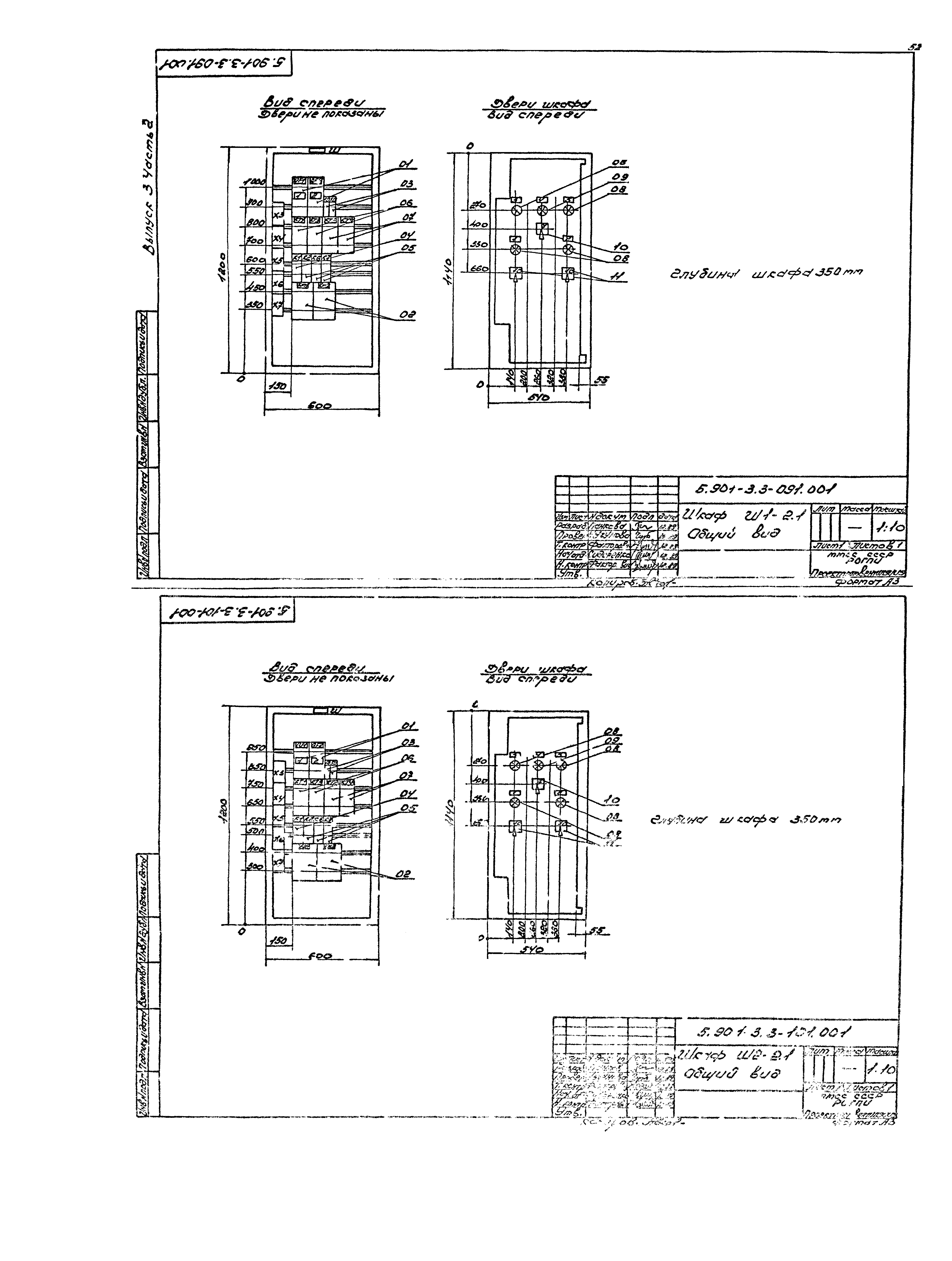
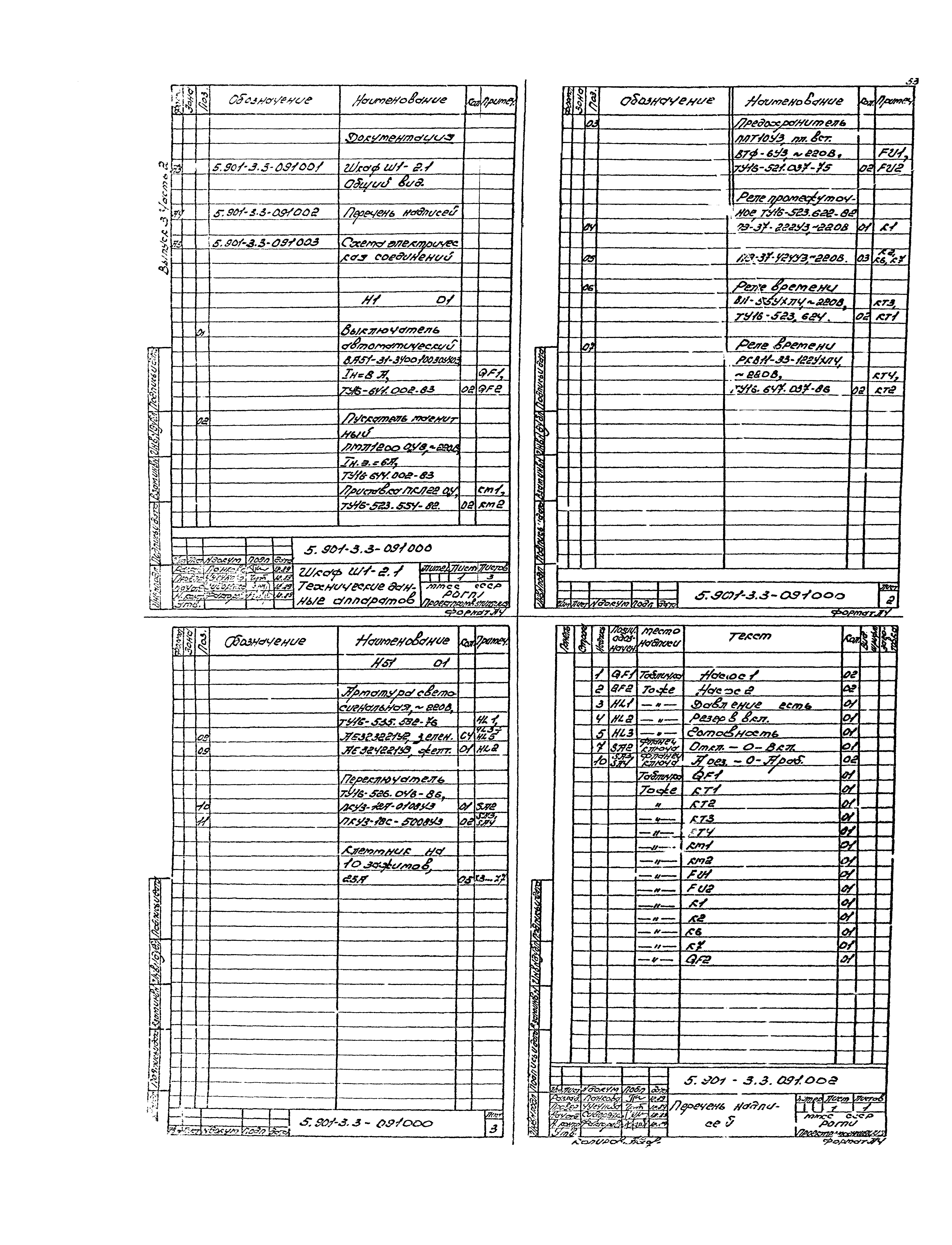
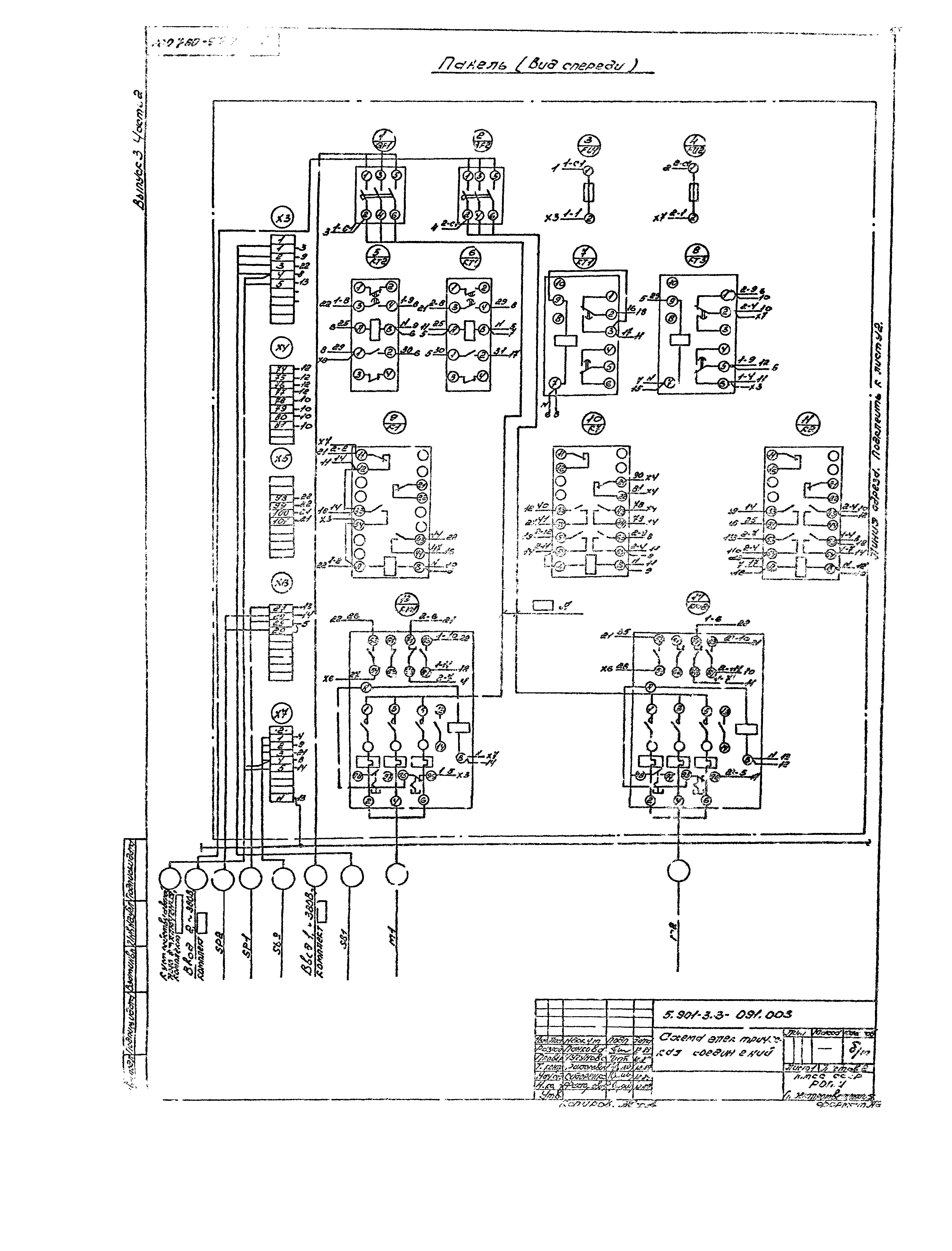
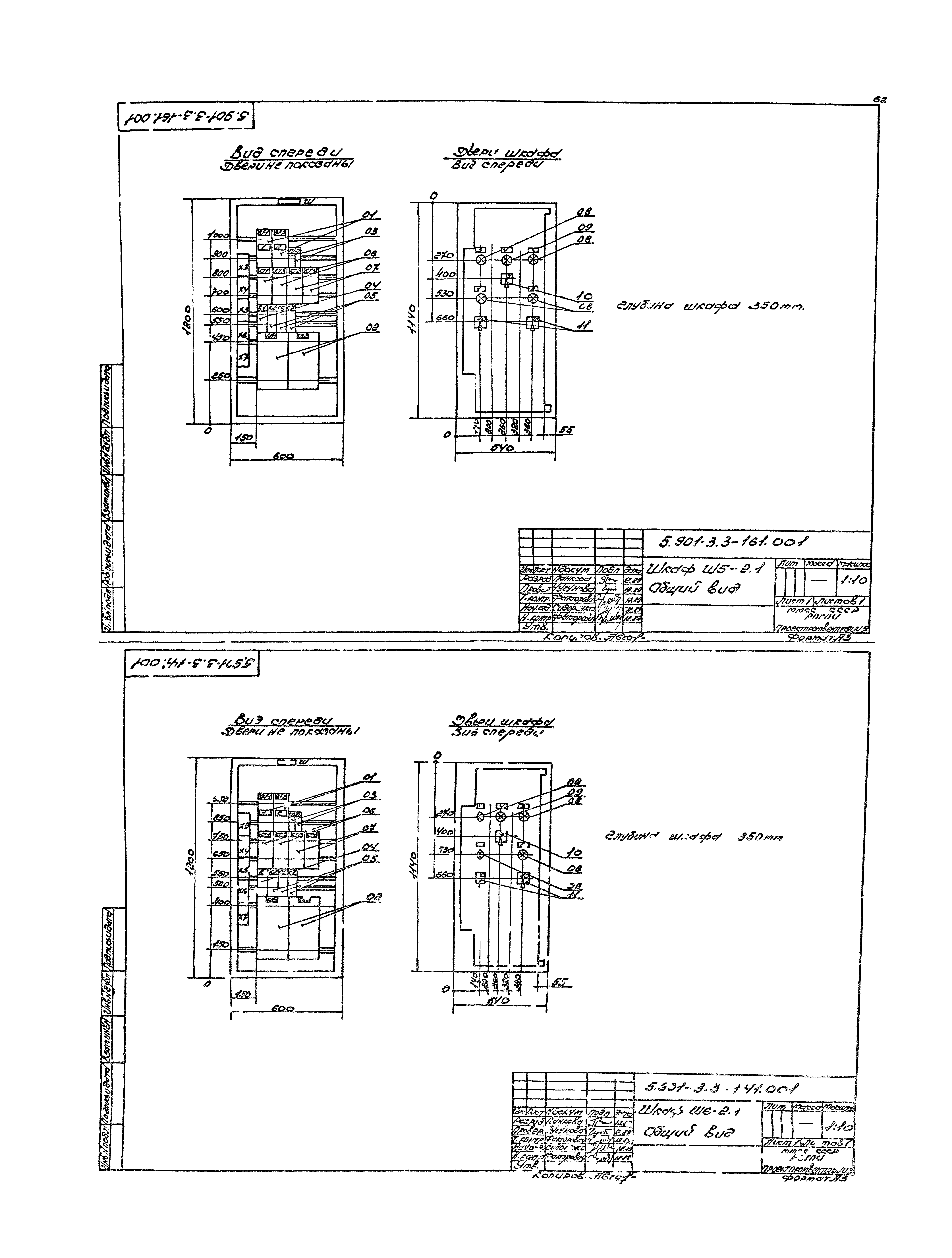
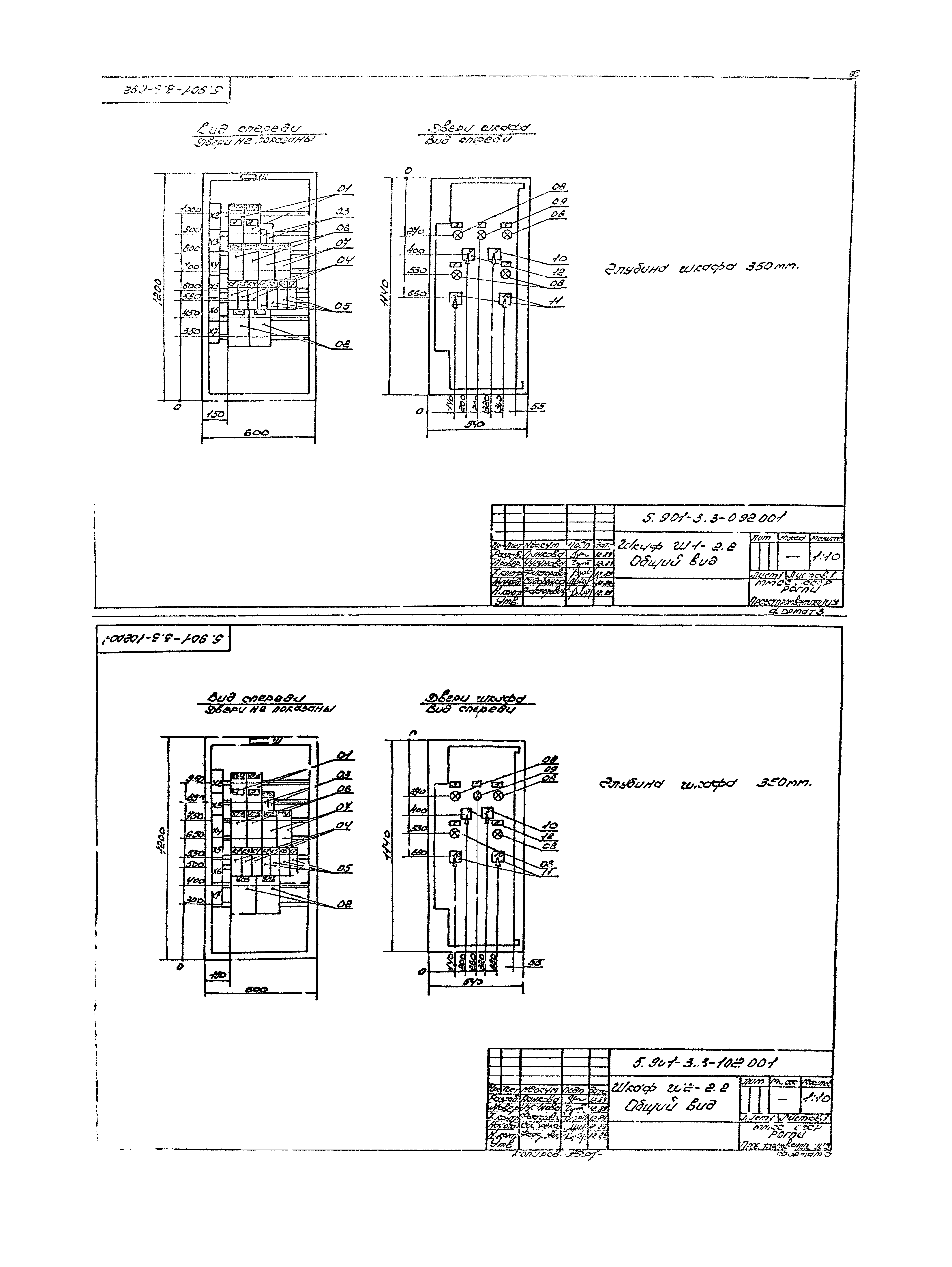
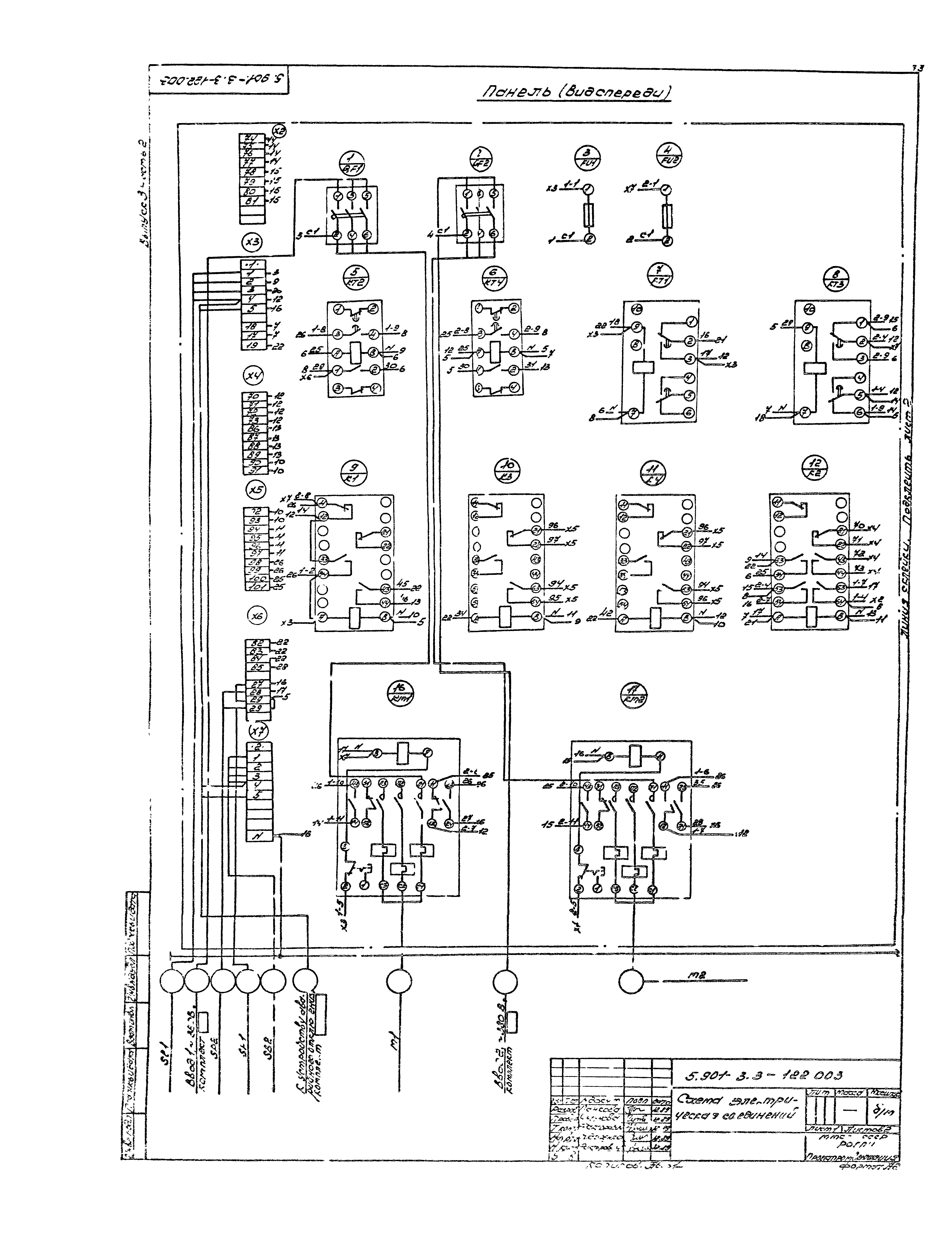
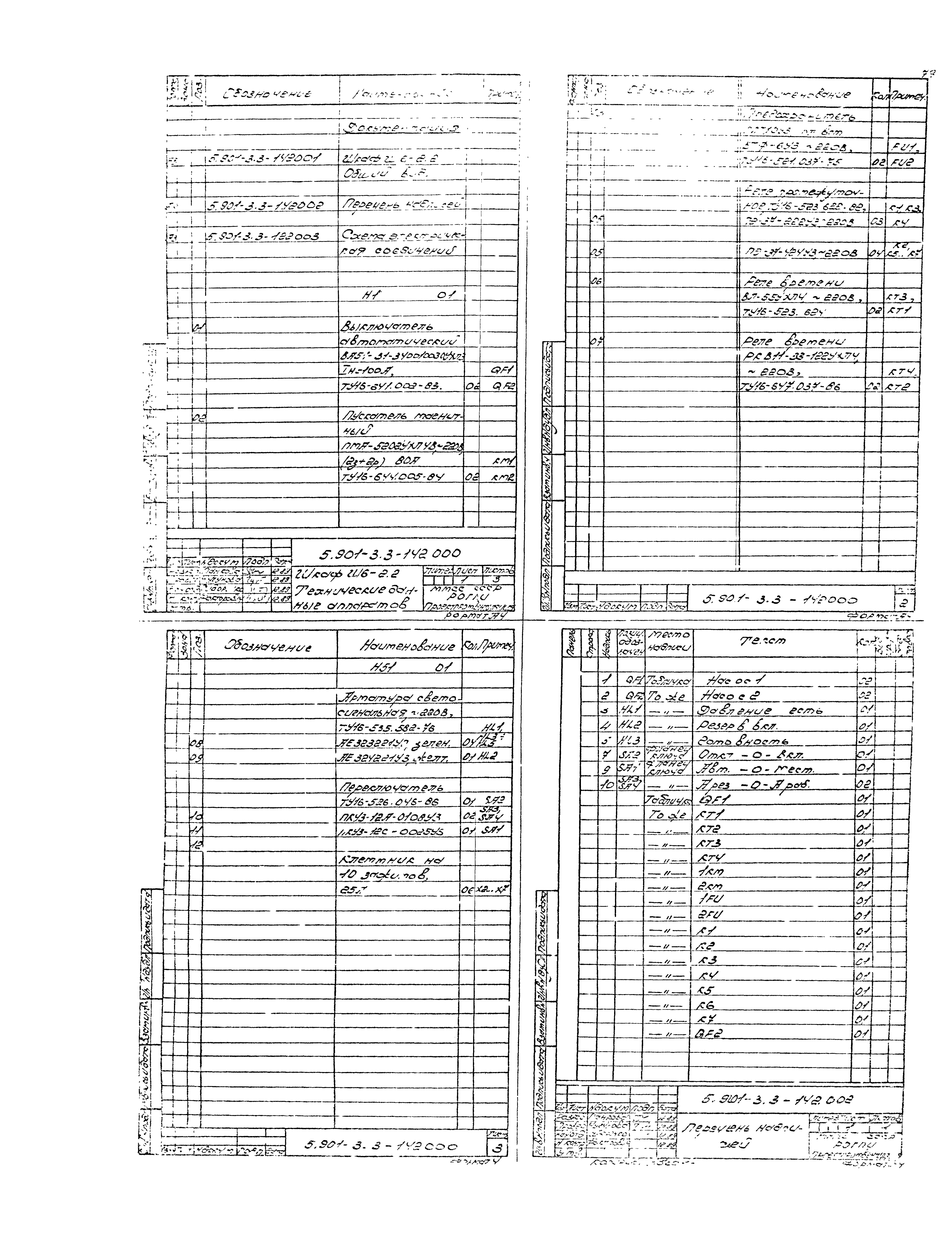
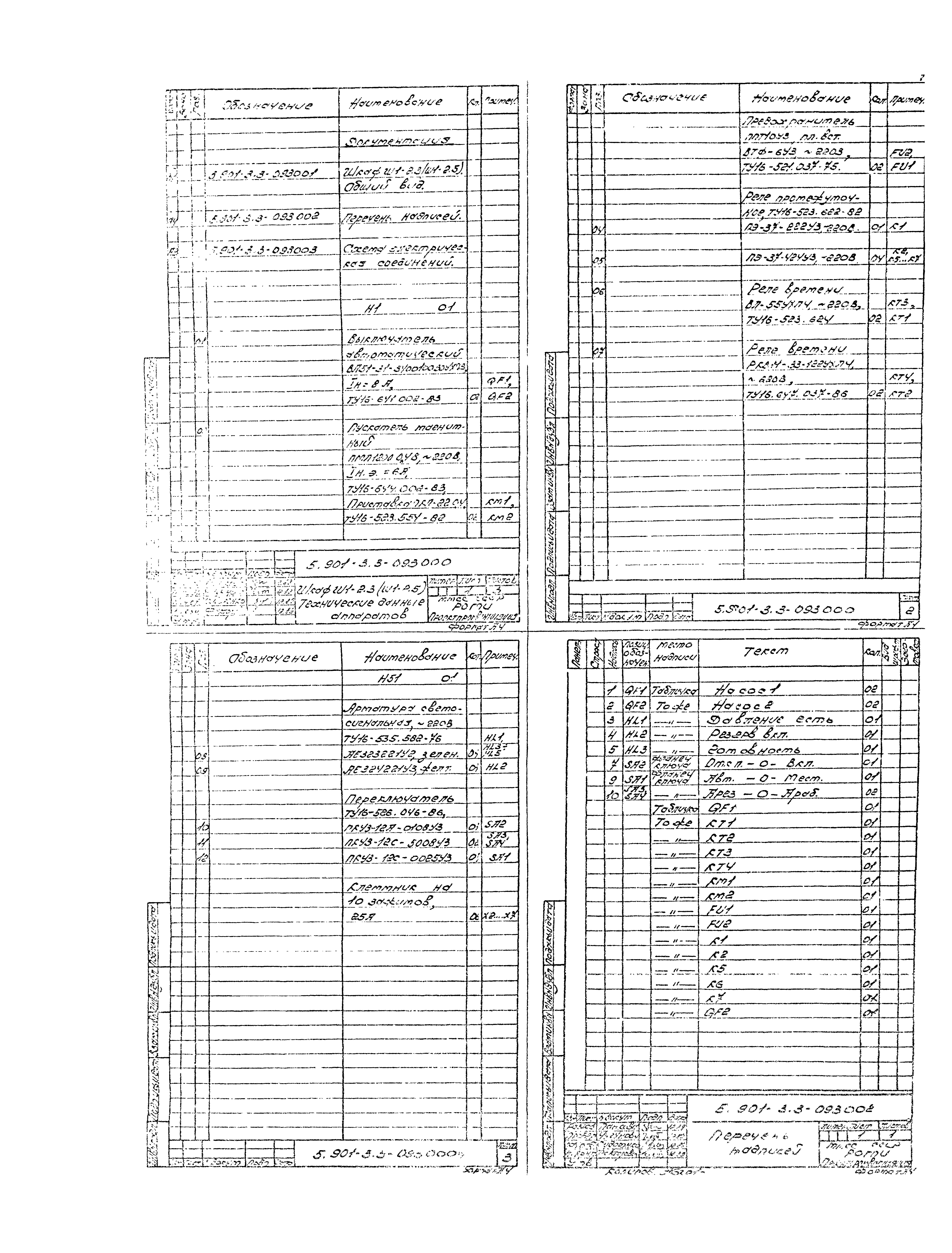
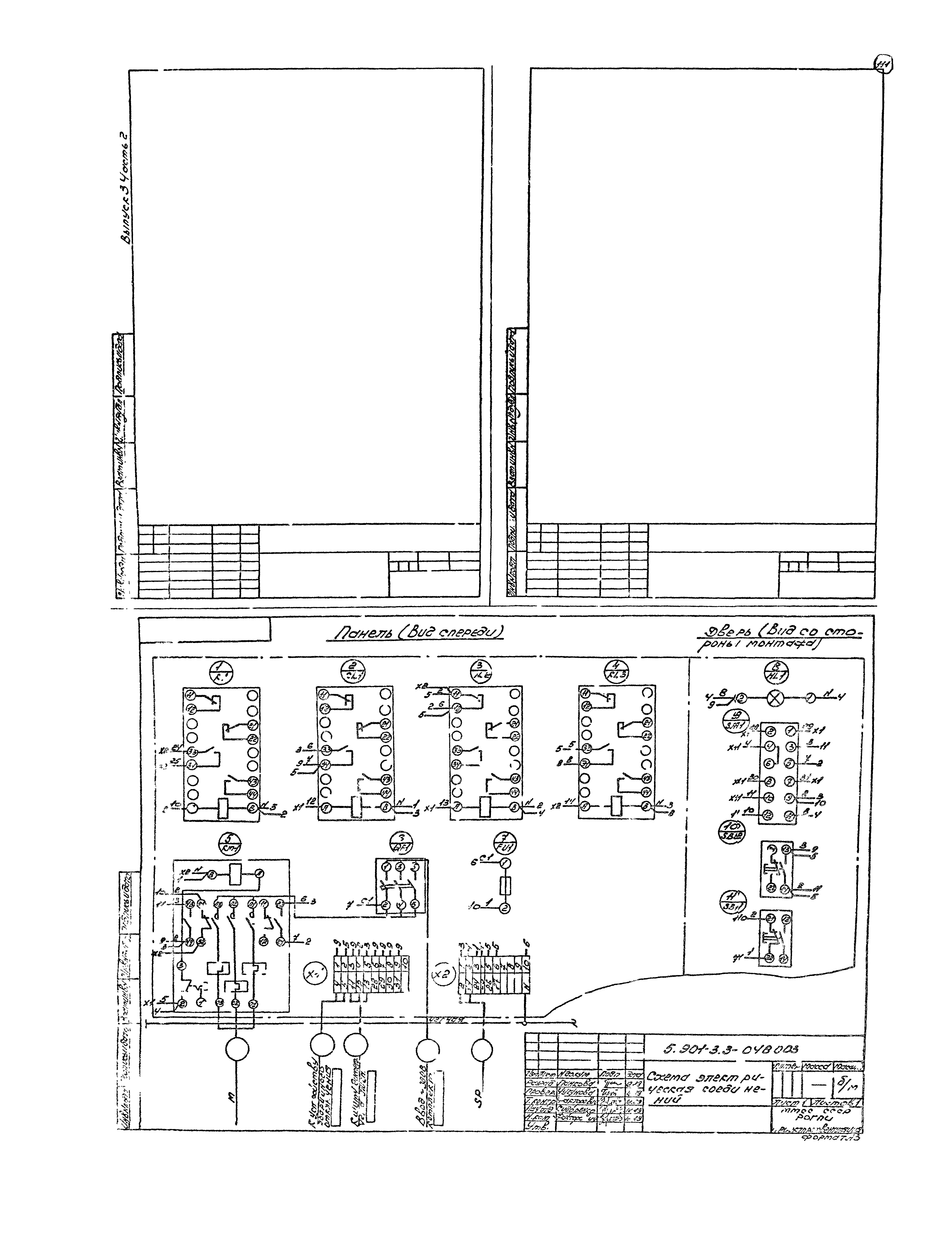
Скачать Серия 5.901-3 Выпуск 3. Часть 2. Электротехническая часть. Рабочие чертежиДата актуализации: 01.01.2021
|
| Обозначение: | Серия 5.901-3 |
| Обозначение англ: | Series 5.901-3 |
| Статус: | не определен законодательством |
| Название рус.: | Выпуск 3. Часть 2. Электротехническая часть. Рабочие чертежи |
| Дата добавления в базу: | 01.09.2013 |
| Дата актуализации: | 01.01.2021 |
| Дата введения: | 01.04.1990 |
| Дата окончания срока действия: | 30.06.2003 |
| Разработан: | Ростовское отделение ГПИ Проектпромвентиляция Минмонтажспецстроя СССР |
| Утверждён: | 22.12.1989 НПО Промвентиляция (376) |





























































