Скачать ГОСТ Р МЭК 60297-3-101-2006 Конструкции несущие базовые радиоэлектронных средств. Блочные каркасы и связанные с ними вставные блоки. Размеры конструкций серии 482,6 мм (19 дюймов)Дата актуализации: 01.01.2021
|
| Обозначение: | ГОСТ Р МЭК 60297-3-101-2006 |
| Обозначение англ: | GOST R IEC 60297-3-101-2006 |
| Статус: | введен впервые |
| Название рус.: | Конструкции несущие базовые радиоэлектронных средств. Блочные каркасы и связанные с ними вставные блоки. Размеры конструкций серии 482,6 мм (19 дюймов) |
| Название англ.: | Mechanical structures for radio-electronic equipment. Subracks and associated plug-in units. Dimensions of mechanical structures of the 482,6 mm (19 in) series |
| Дата добавления в базу: | 01.09.2013 |
| Дата актуализации: | 01.01.2021 |
| Дата введения: | 01.01.2008 |
| Область применения: | Стандарт распространяется на основные размеры модульного ряда блочных каркасов и связанных с ними вставных блоков в соответствии со стандартами серии МЭК 60297. Стандарт предназначен для определения размеров, обеспечивающих размерную взаимозаменяемость блочных каркасов и вставных блоков. Размеры применяемых разъемов ограничены только установочными размерами. |
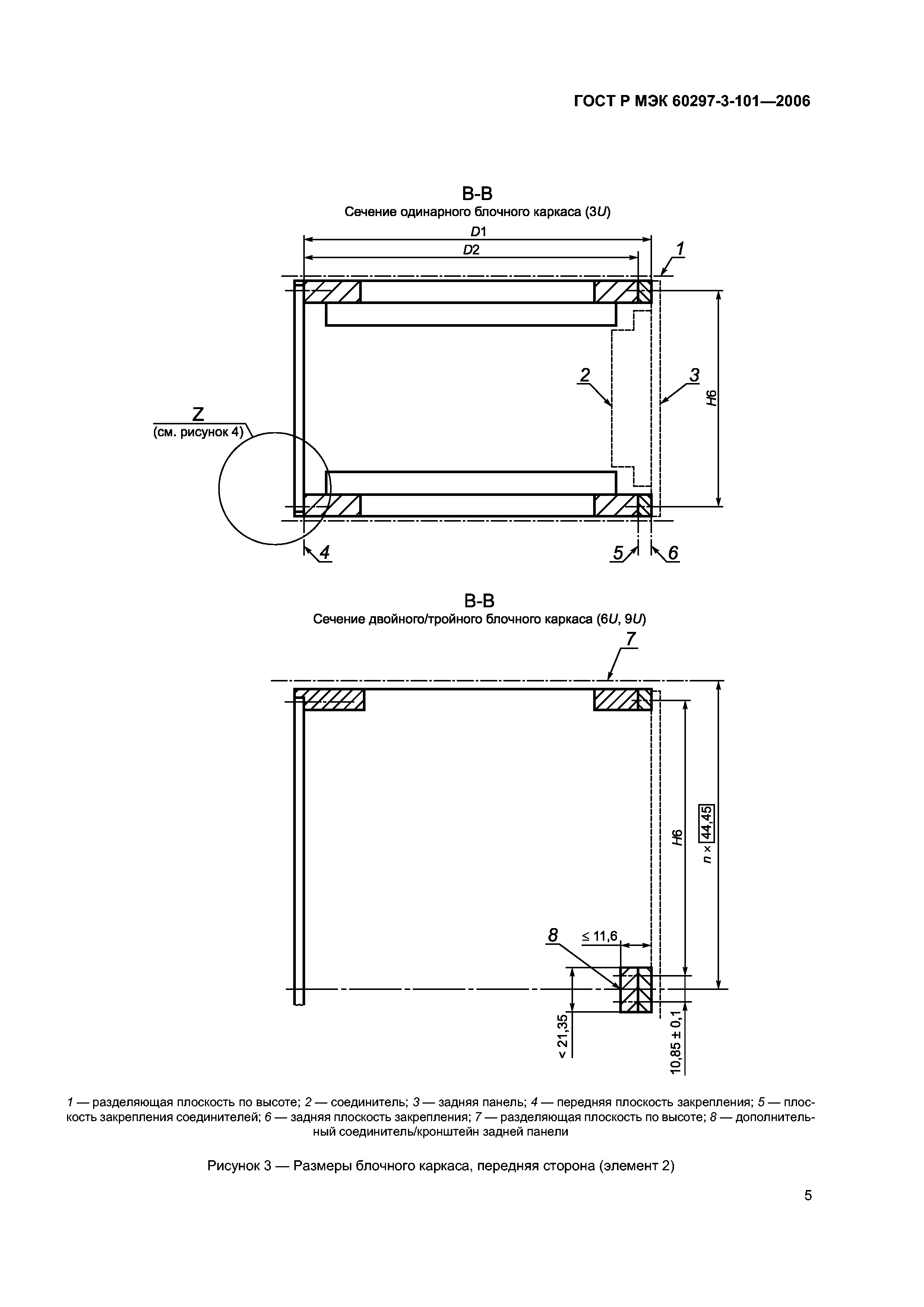
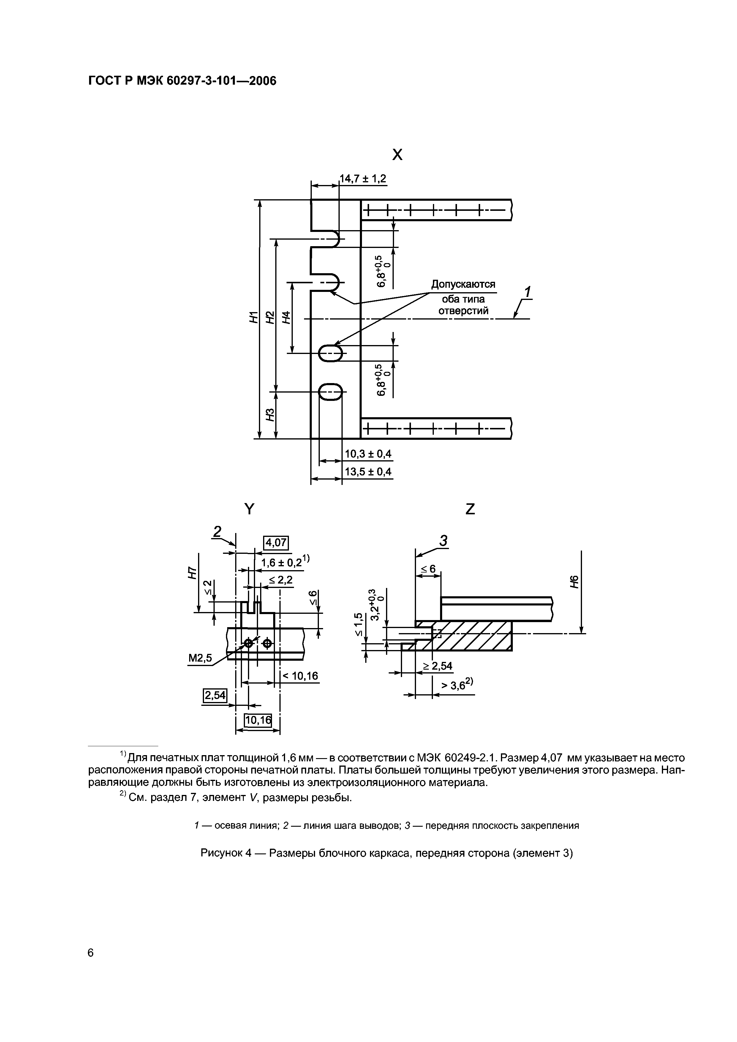
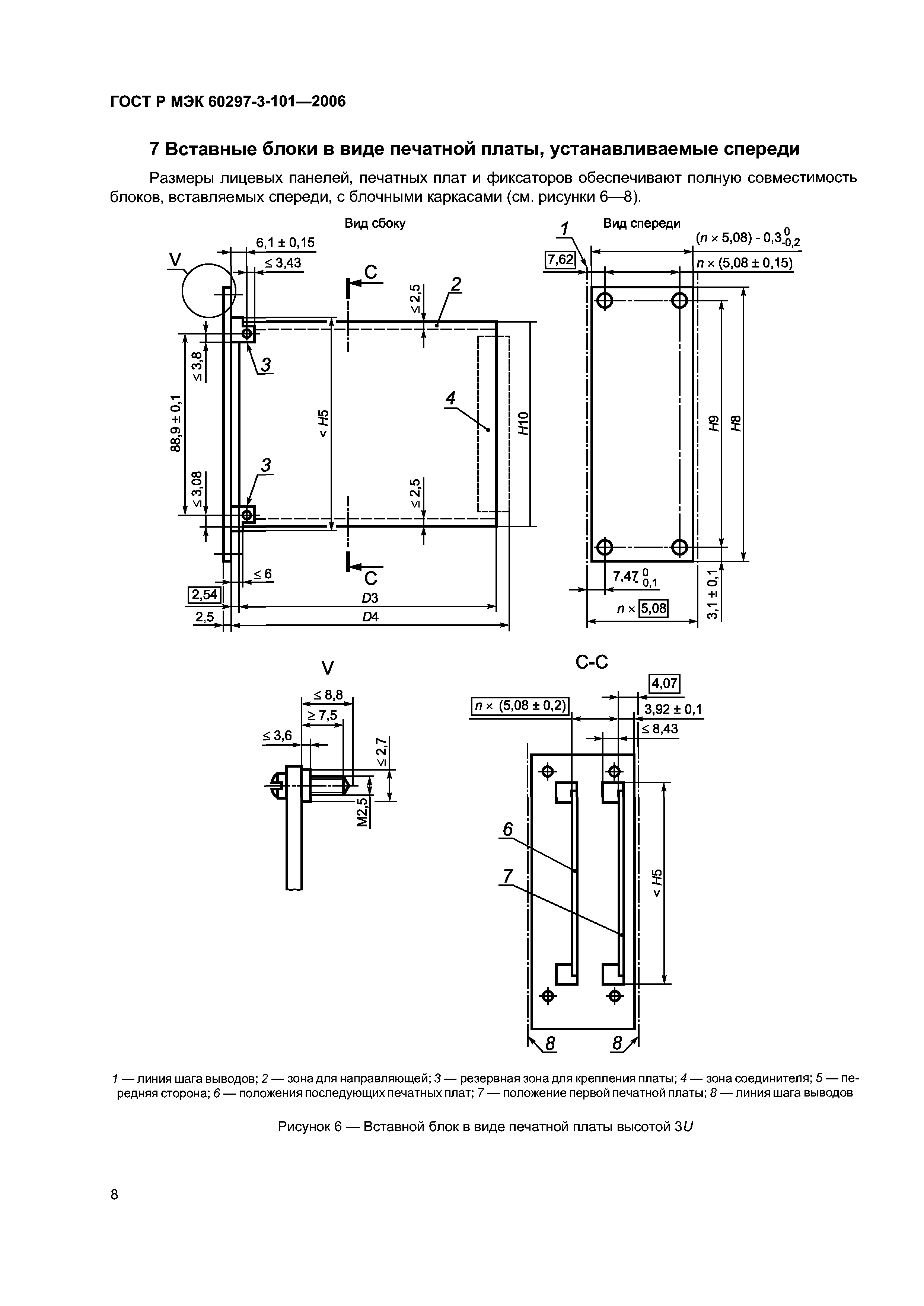
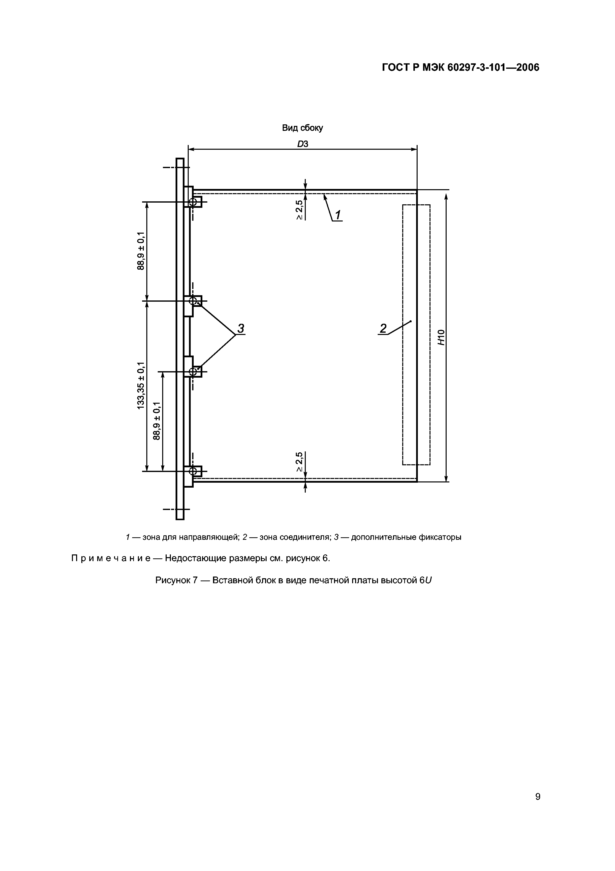
| Оглавление: | 1 Область применения 2 Нормативные ссылки 3 Термины и определения 4 Общая компоновка 5 Размеры блочного каркаса, передняя сторона 6 Размеры блочного каркаса, задняя сторона 7 Вставные блоки в виде печатной платы, устанавливаемые спереди 8 Вставные блоки с кожухом, устанавливаемые спереди 9 Вставные блоки в виде печатных плат, устанавливаемые сзади 10 Блочные каркасы и вставные блоки, оснащенные средствами электромагнитного экранирования 10.1 Общие сведения 10.2 Дополнительные сопрягающиеся размеры экранированного блочного каркаса 10.3 Вставные блоки и заглушающие панели с функцией электромагнитного экранирования 11 Блочные каркасы, оснащенные средствами защиты от электростатического разряда 11.1 Общие сведения 11.2 Размеры контактного элемента ЗЭР на направляющей блочного каркаса 12 Размеры, указанные на рисунках 1 - 16 Приложение А (справочное) Сведения о соответствии национальных стандартов Российской Федерации ссылочным международным стандартам |
| Разработан: | АНО Изинтех ЗАО Авангард-ТехСт |
| Утверждён: | 27.12.2006 Федеральное агентство по техническому регулированию и метрологии (384-ст) |
| Издан: | Стандартинформ (2007 г. ) |
| Нормативные ссылки: |
|























