Скачать Типовой проект 901-4-69.83 Альбом III. Конструкции железобетонныеДата актуализации: 01.01.2021
|
| Обозначение: | Типовой проект 901-4-69.83 |
| Обозначение англ: | 901-4-69.83 |
| Статус: | не определен законодательством |
| Название рус.: | Альбом III. Конструкции железобетонные |
| Дата добавления в базу: | 01.09.2013 |
| Дата актуализации: | 01.01.2021 |
| Дата введения: | 13.07.1983 |
| Дата окончания срока действия: | 30.06.2003 |
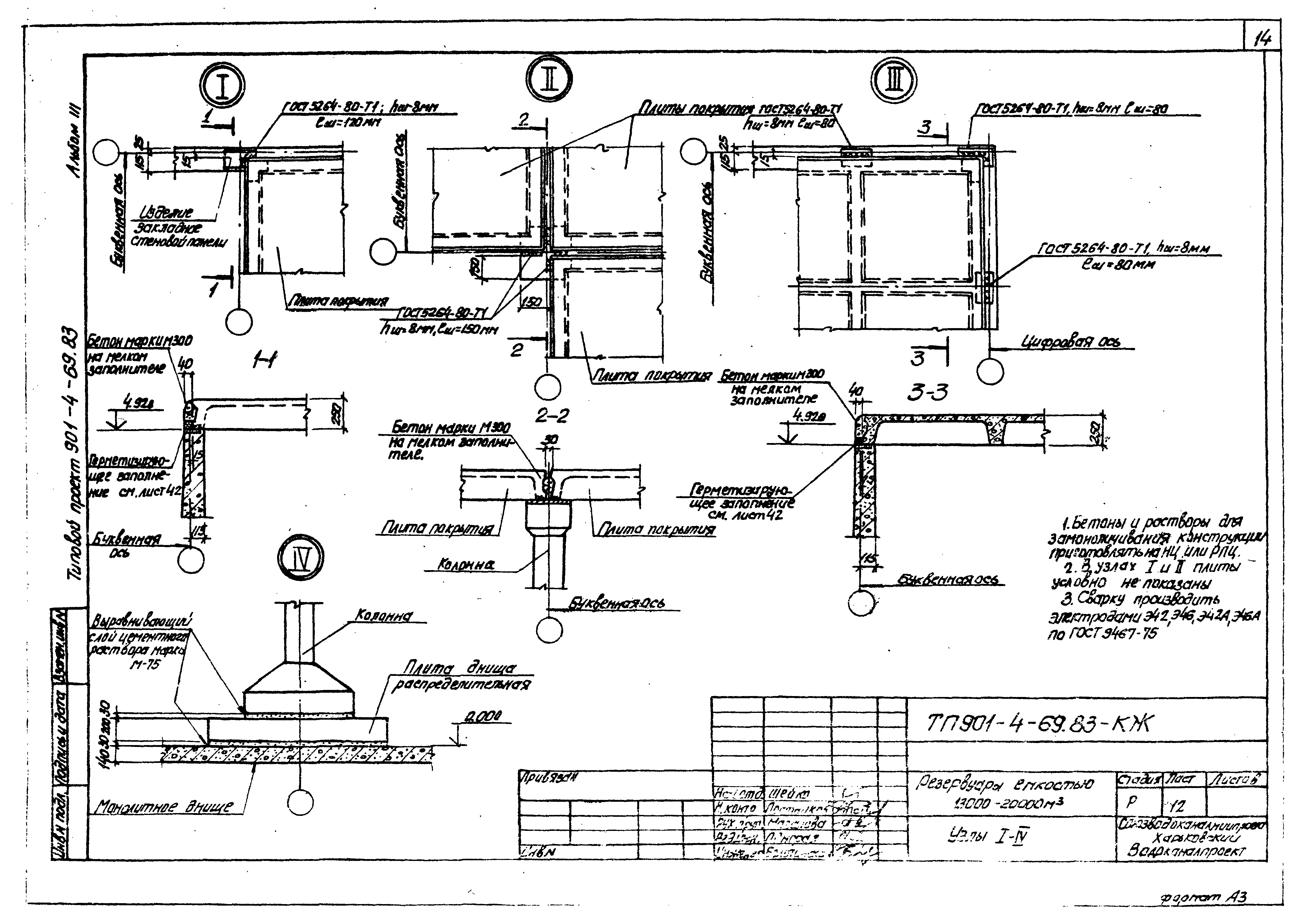
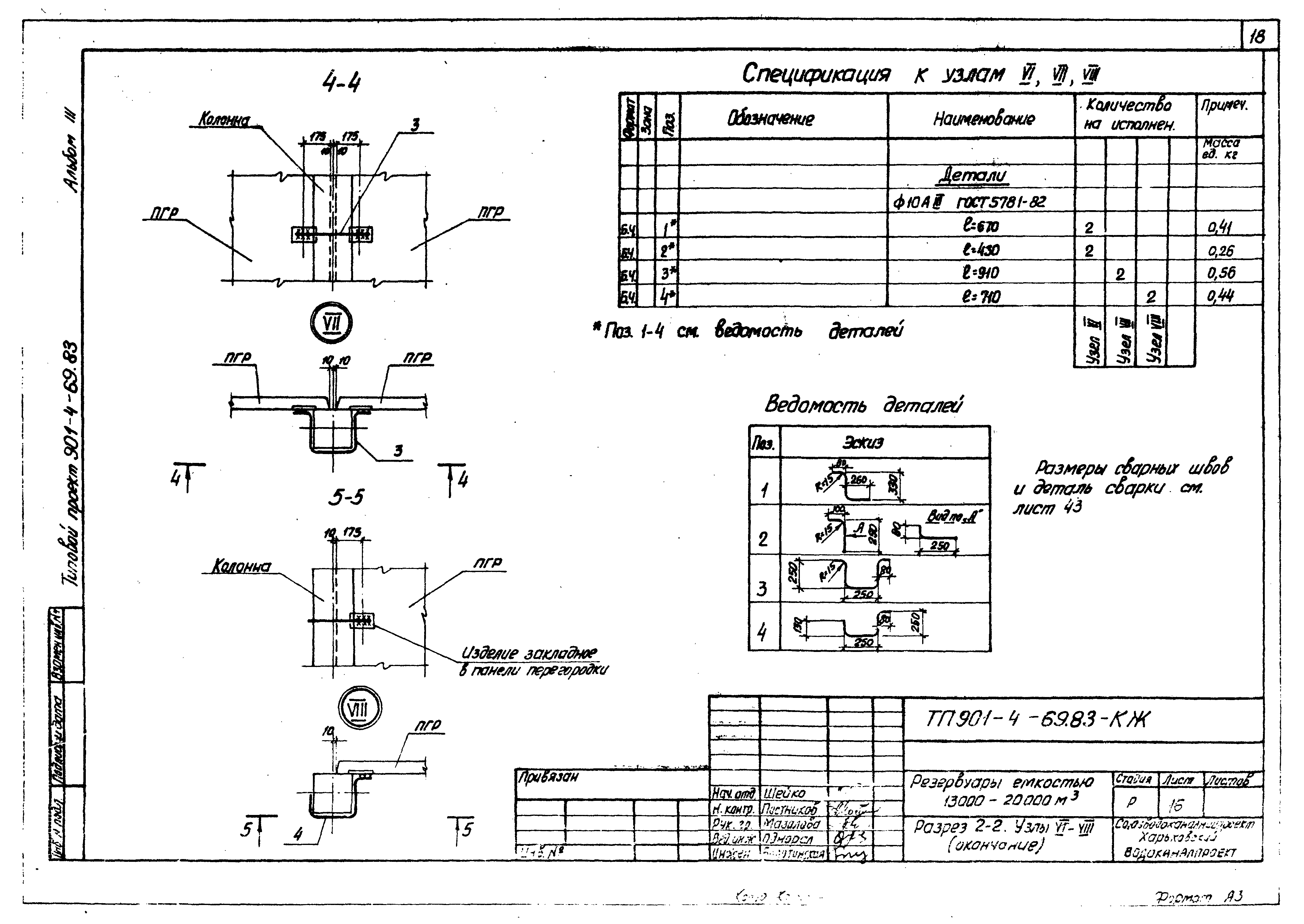
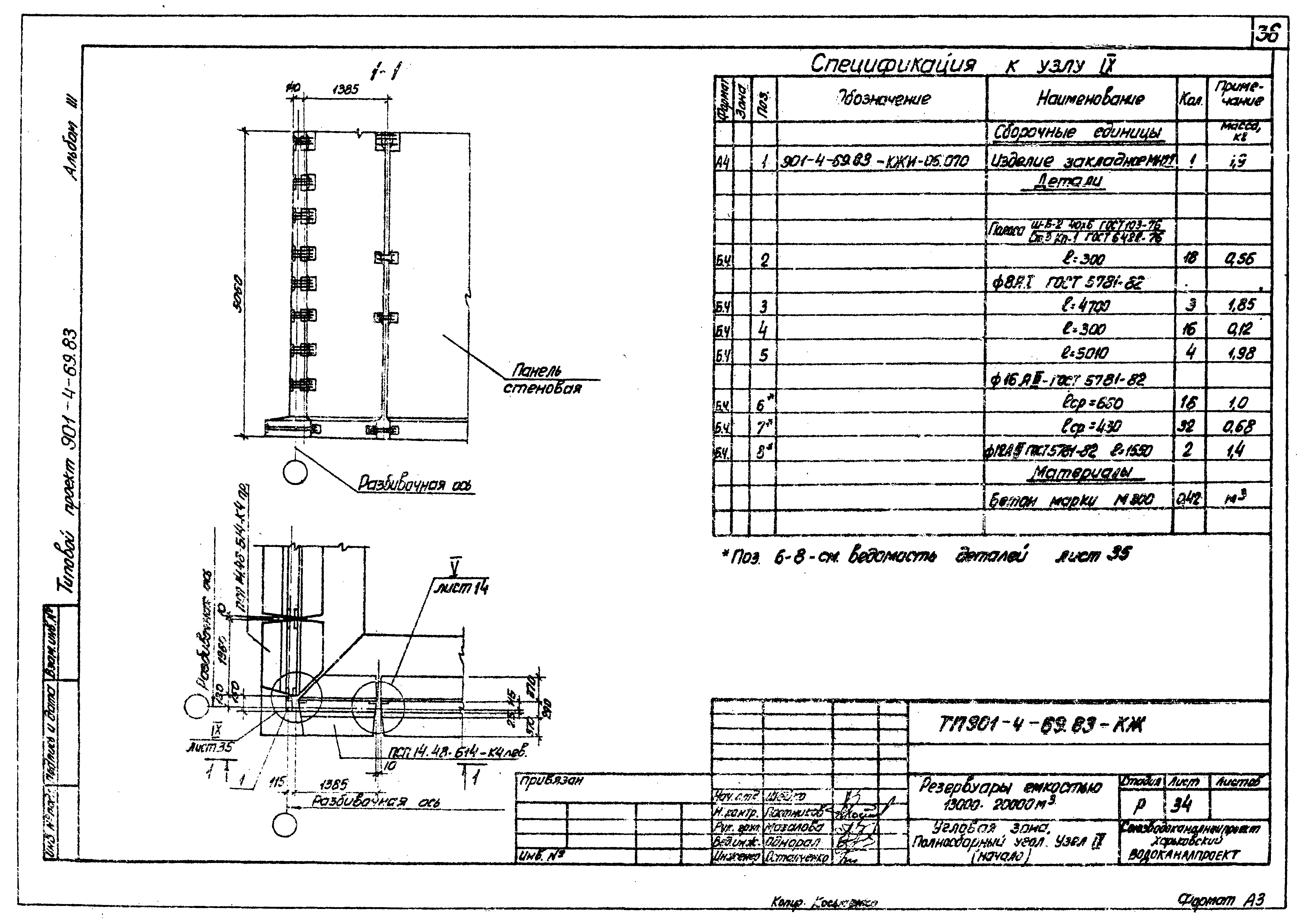
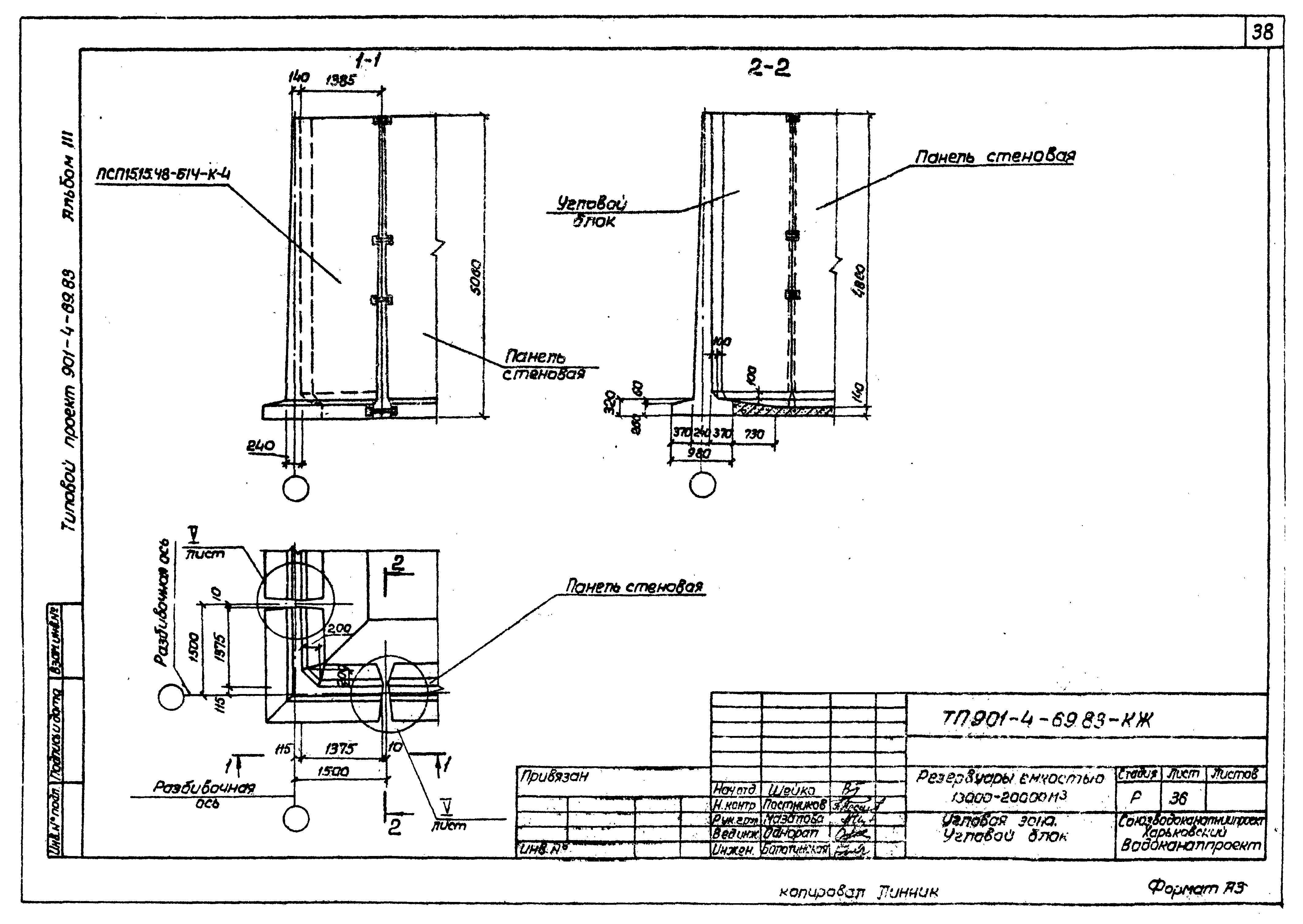
| Оглавление: | Общие данные План, разрезы Схема расположения элементов конструкций резервуара Спецификация к схеме расположения элементов конструкций резервуара Узел 1 - 4 Узел 5 (со шпоночным стыком) Узел 5 (с клиновидным стыком) Разрез 2-2. Узлы 6 - 8 Днище ПДм1. Общий вид Днище ПДм1. Схема армирования Днище ПДм1. Спецификация элементов Днище ПДм1. Ведомость расхода стали Камера Км. Общий вид. Схема армирования Угол монолитный Ум1. Общий вид. Схема армирования Угловая зона. Полносборный угол. Узел 9 Угловая зона. Угловой блок |
| Разработан: | Союзводоканалниипроект Харьковский водоканалпроект |
| Утверждён: | 17.11.1978 Госстрой СССР (Государственный комитет Совета Министров СССР по делам строительства) (USSR Gosstroy 2/3-409) |











































