Скачать Сборник 2-8 Встроенные шкафы и антресоли. Конструкции и виды работ жилищно-гражданского назначения. Сборники укрупненных сметных норм (УСН). Правила разработки и применения укрупненных сметных норм и расценокДата актуализации: 01.01.2021
|
| Обозначение: | Сборник 2-8 |
| Обозначение англ: | Сборник 2-8 |
| Статус: | действует |
| Название рус.: | Встроенные шкафы и антресоли. Конструкции и виды работ жилищно-гражданского назначения. Сборники укрупненных сметных норм (УСН). Правила разработки и применения укрупненных сметных норм и расценок |
| Дата добавления в базу: | 01.11.2014 |
| Дата актуализации: | 01.01.2021 |
| Дата введения: | 01.01.1988 |
| Область применения: | Сборник предназначен для составления смет и сметных расчетов при определении сметной стоимости строительства на стадии проекта (рабочего проекта) и рабочей документации. |
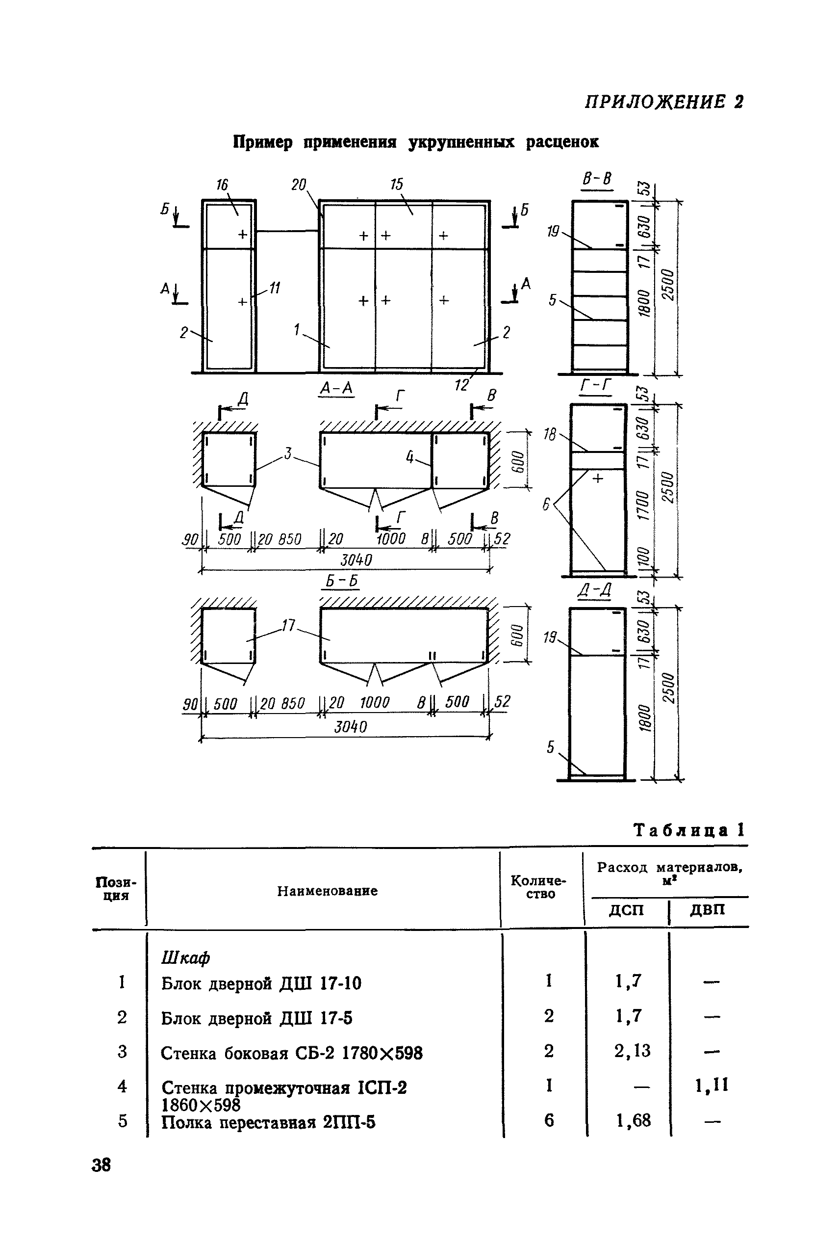
| Оглавление: | Общая часть Укрупненные расценки на установку встроенных шкафов и антресолей Раздел 1. Встроенные шкафы Раздел 2. Встроенные антресоли Укрупненные сметные нормы на установку встроенных шкафов и антресолей Приложение 1. Материальные ресурсы, не учтенные в укрупненных расценках Приложение 2. Пример применения укрупненных расценок |
| Разработан: | ЦНИИЭУС Госстроя СССР Казгорстройпроект |
| Утверждён: | 06.10.1987 Госстрой СССР (Государственный комитет Совета Министров СССР по делам строительства) (USSR Gosstroy 224) |
| Издан: | Стройиздат (1989 г. ) |
| Заменяет собой: |
|






































