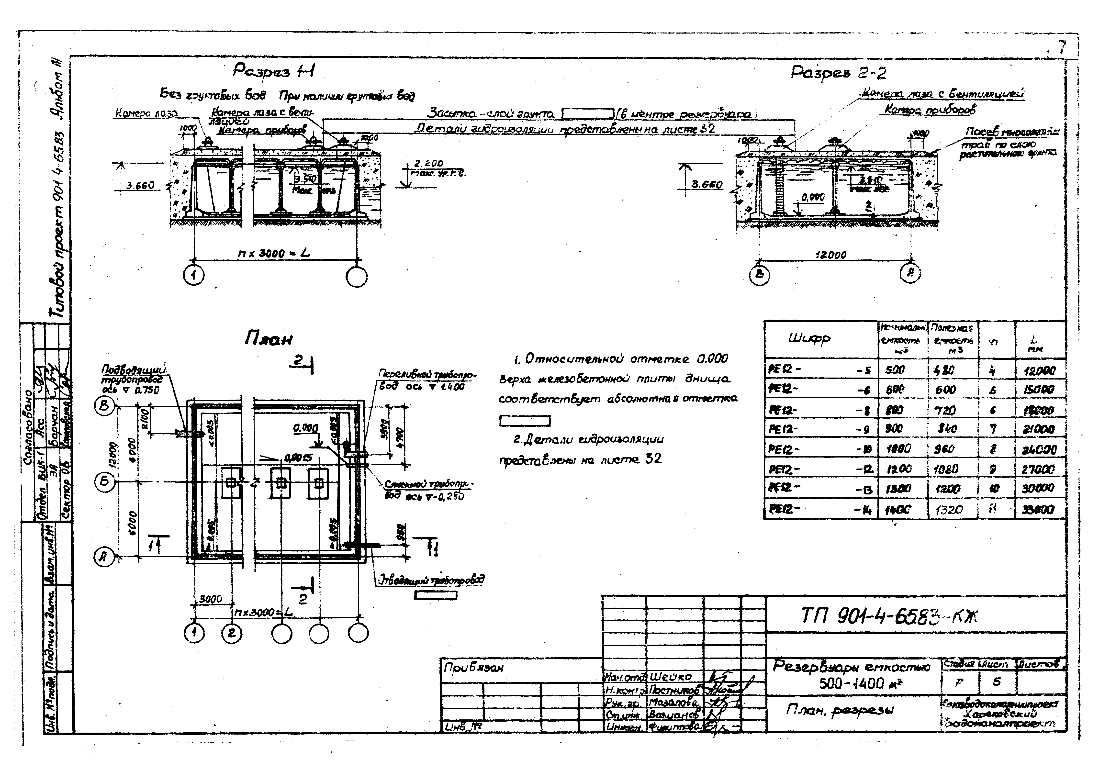
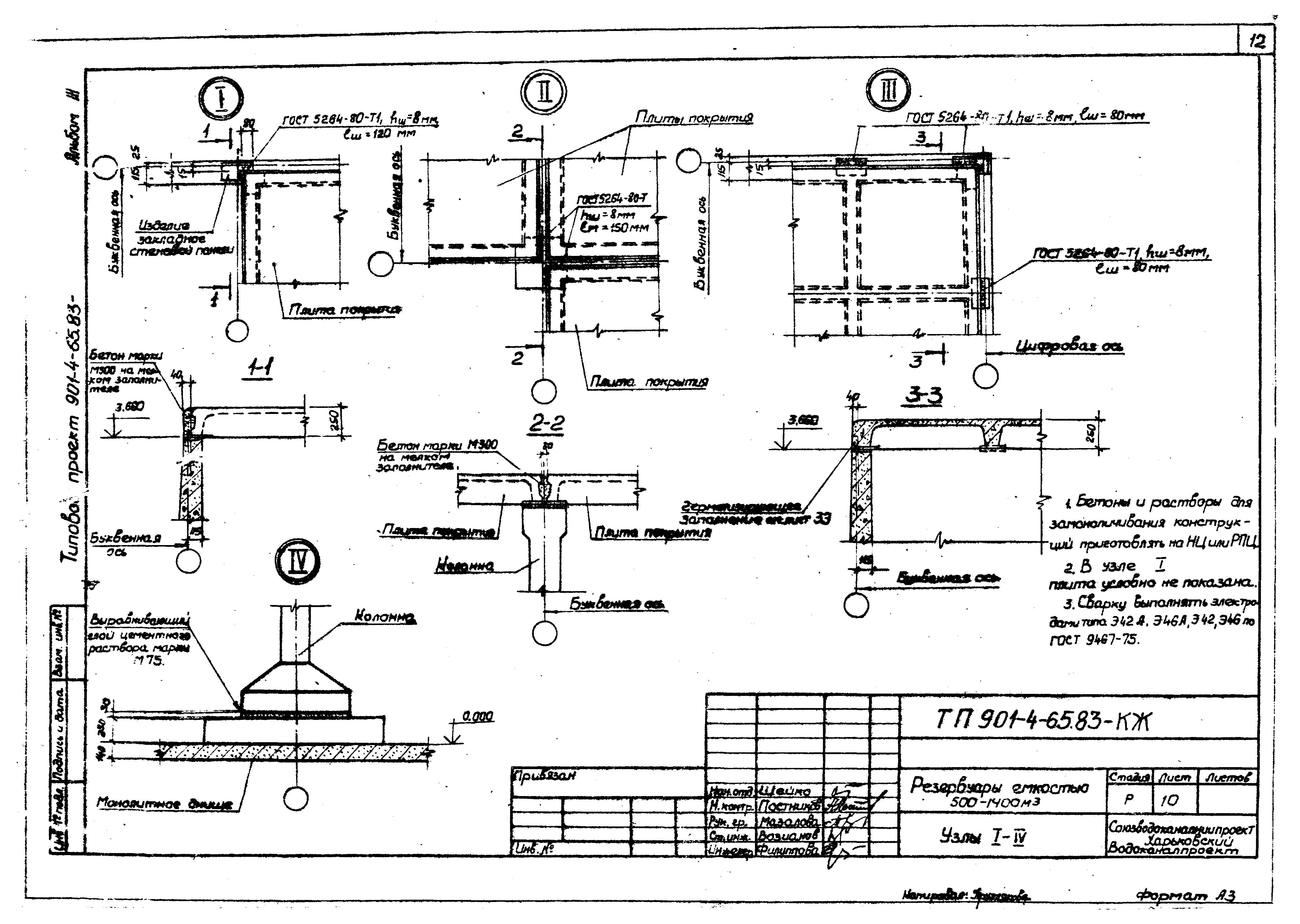
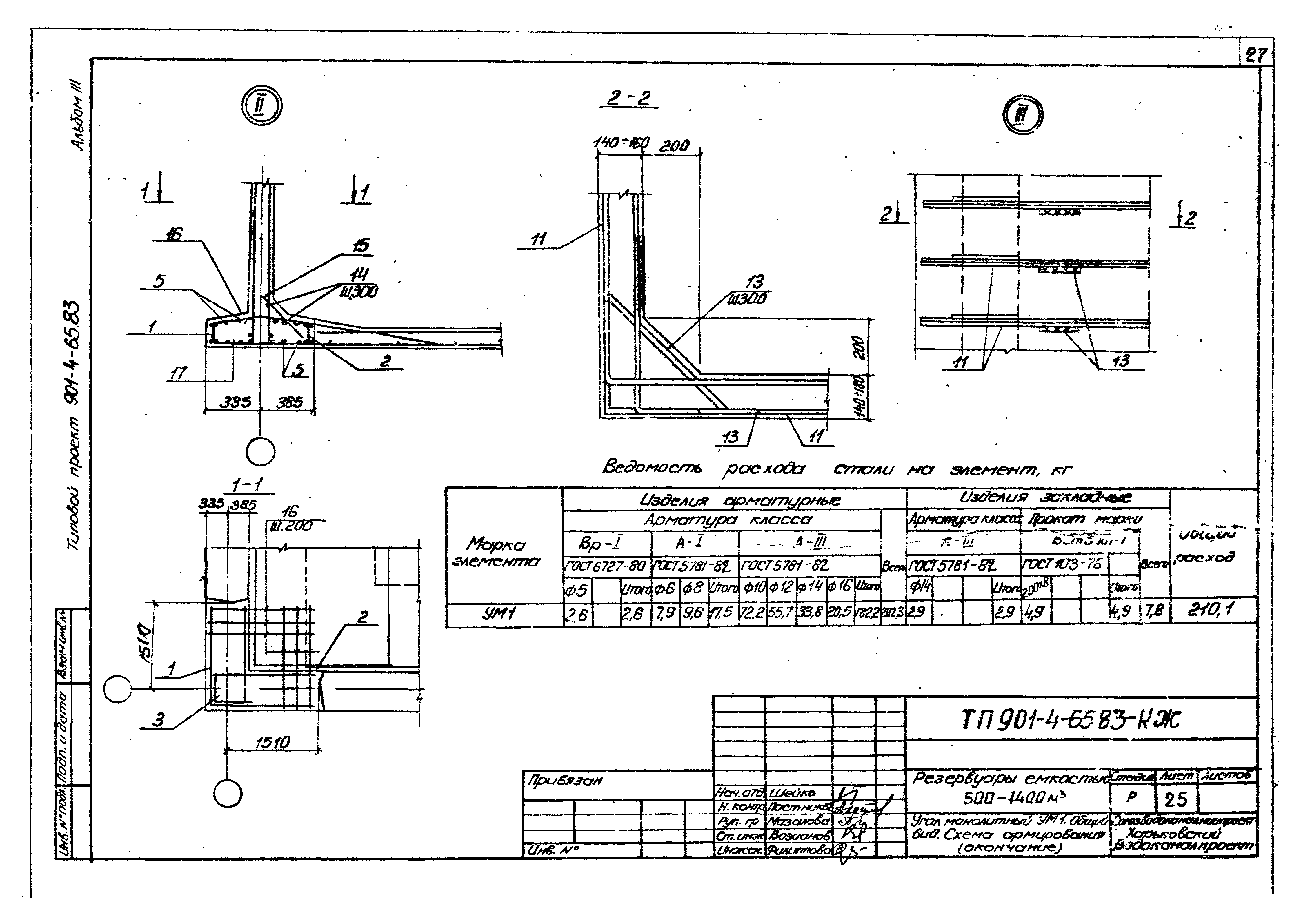
Скачать Типовой проект 901-4-65.83 Альбом III. Конструкции железобетонныеДата актуализации: 01.01.2021
|
| Обозначение: | Типовой проект 901-4-65.83 |
| Обозначение англ: | 901-4-65.83 |
| Статус: | не определен законодательством |
| Название рус.: | Альбом III. Конструкции железобетонные |
| Дата добавления в базу: | 01.09.2013 |
| Дата актуализации: | 01.01.2021 |
| Дата введения: | 13.07.1983 |
| Дата окончания срока действия: | 30.06.2003 |
| Разработан: | Союзводоканалниипроект Харьковский водоканалпроект |
| Утверждён: | 17.11.1978 Госстрой СССР (Государственный комитет Совета Министров СССР по делам строительства) (USSR Gosstroy 2/3-409) |




































