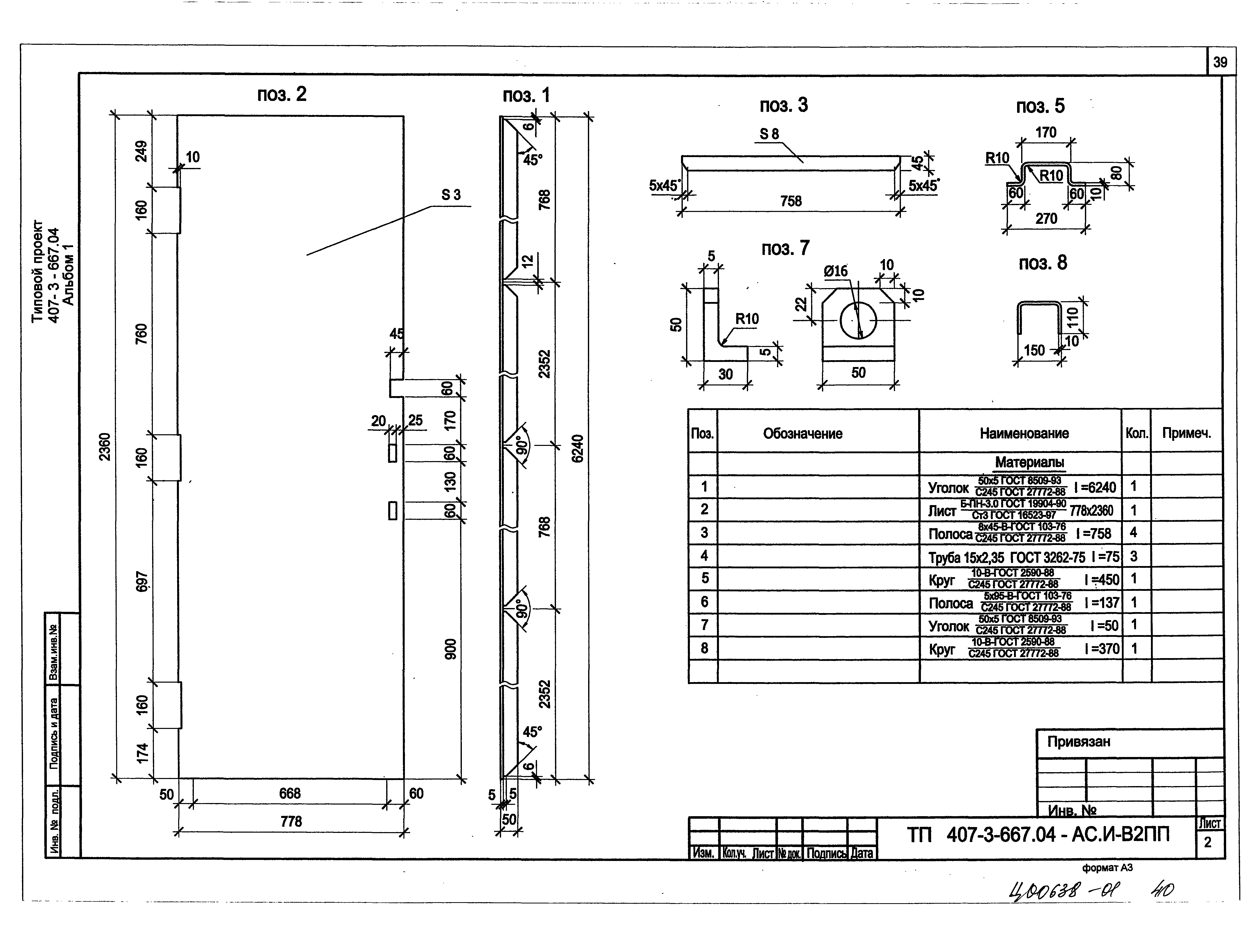
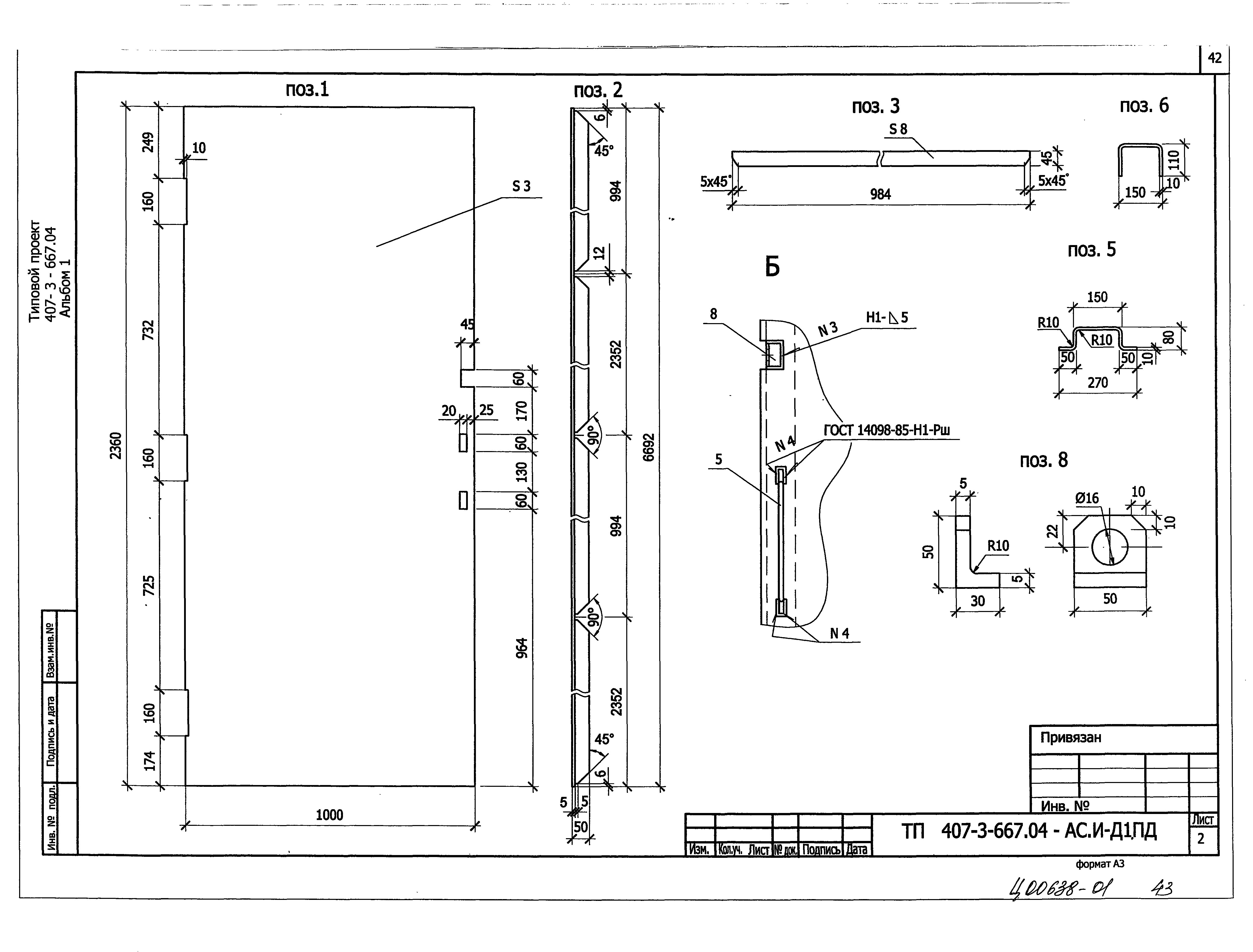
Скачать Типовой проект 407-3-667.04 Альбом 1. Пояснительная записка. Архитектурно-строительные решения. Отопление и вентиляция. Архитектурно-строительные изделияДата актуализации: 01.01.2021
|
| Обозначение: | Типовой проект 407-3-667.04 |
| Обозначение англ: | 407-3-667.04 |
| Статус: | не определен законодательством |
| Название рус.: | Альбом 1. Пояснительная записка. Архитектурно-строительные решения. Отопление и вентиляция. Архитектурно-строительные изделия |
| Дата добавления в базу: | 01.09.2013 |
| Дата актуализации: | 01.01.2021 |
| Дата введения: | 17.03.2005 |
| Разработан: | ОГУП ПИ Гипрокоммунэнерго |
| Утверждён: | 17.03.2005 ОАО Самарский завод Электрощит (89-Пр) |











































