Скачать Типовой проект 407-3-660.03 Альбом 2. Электросиловое оборудование. Электромонтажные конструкцииДата актуализации: 01.01.2021
|
| Обозначение: | Типовой проект 407-3-660.03 |
| Обозначение англ: | 407-3-660.03 |
| Статус: | не определен законодательством |
| Название рус.: | Альбом 2. Электросиловое оборудование. Электромонтажные конструкции |
| Дата добавления в базу: | 01.09.2013 |
| Дата актуализации: | 01.01.2021 |
| Дата введения: | 23.07.2003 |
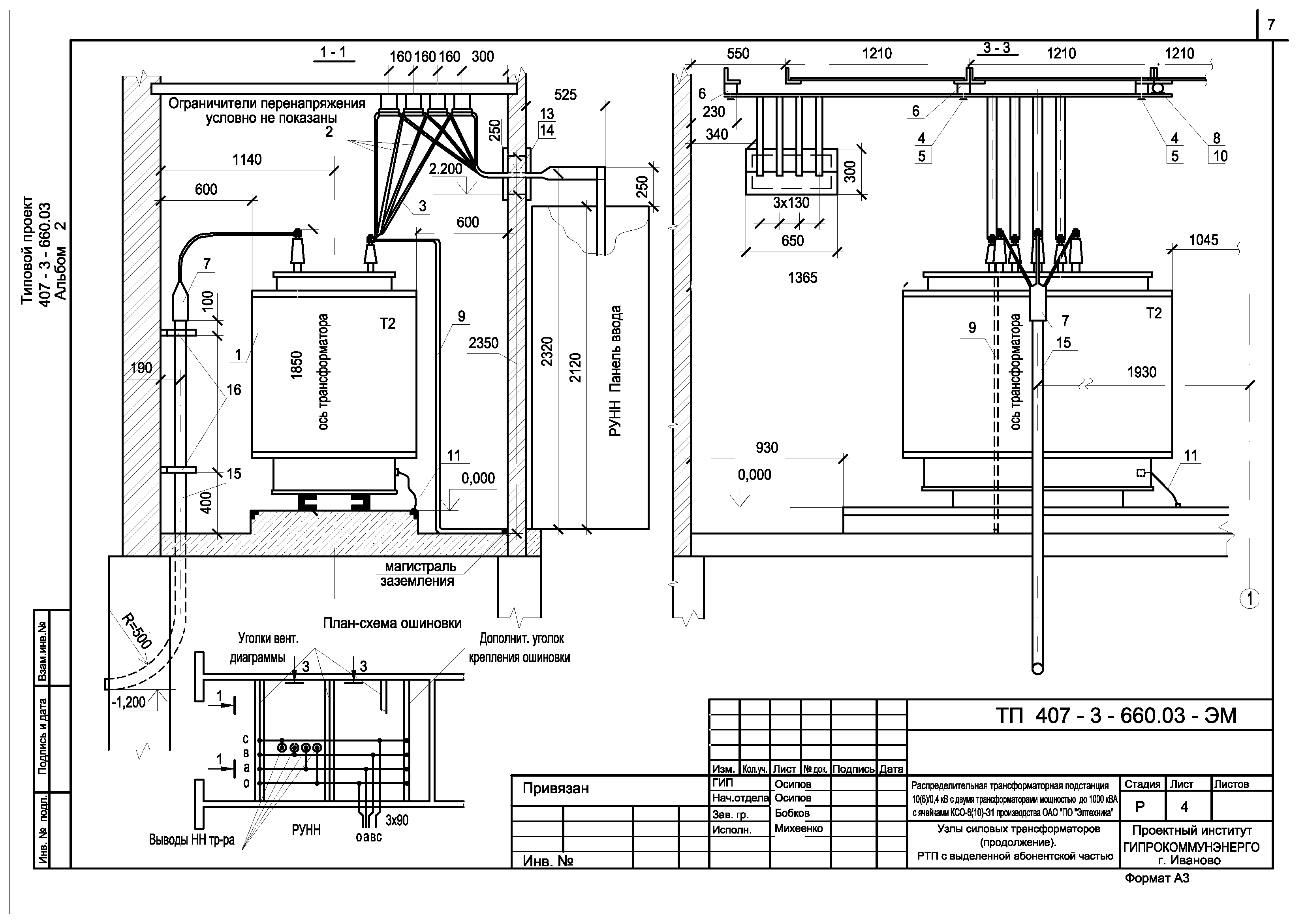
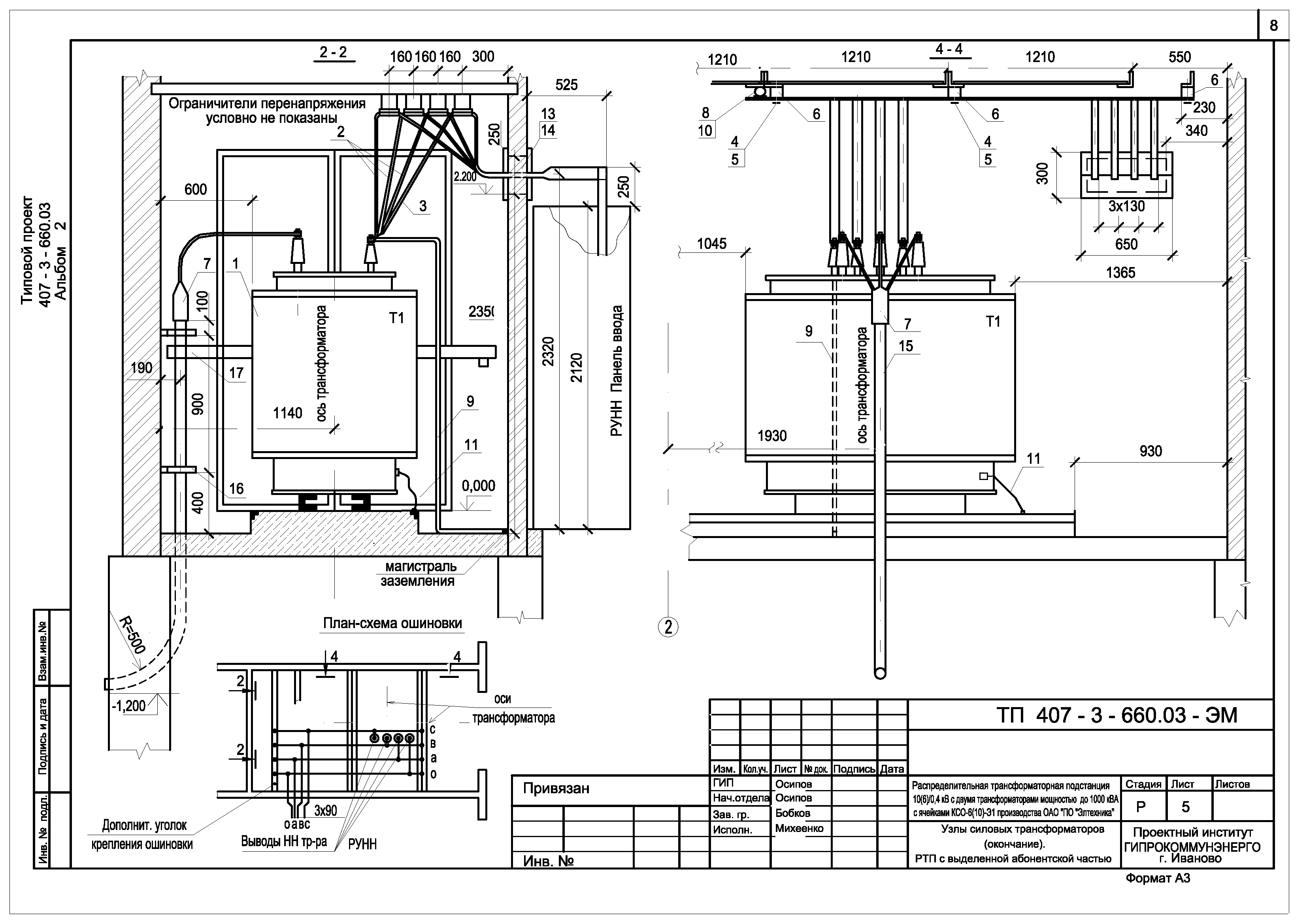
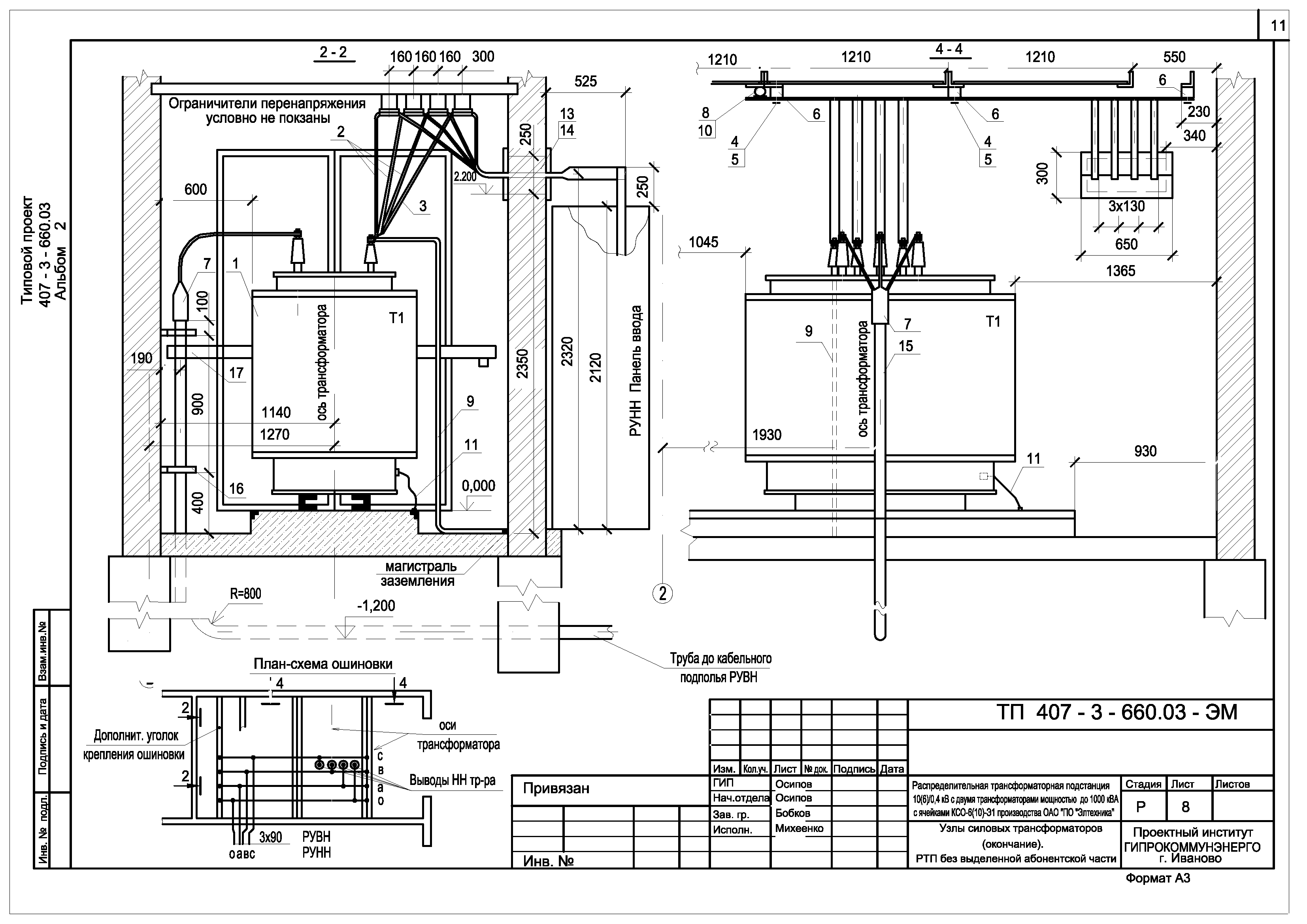
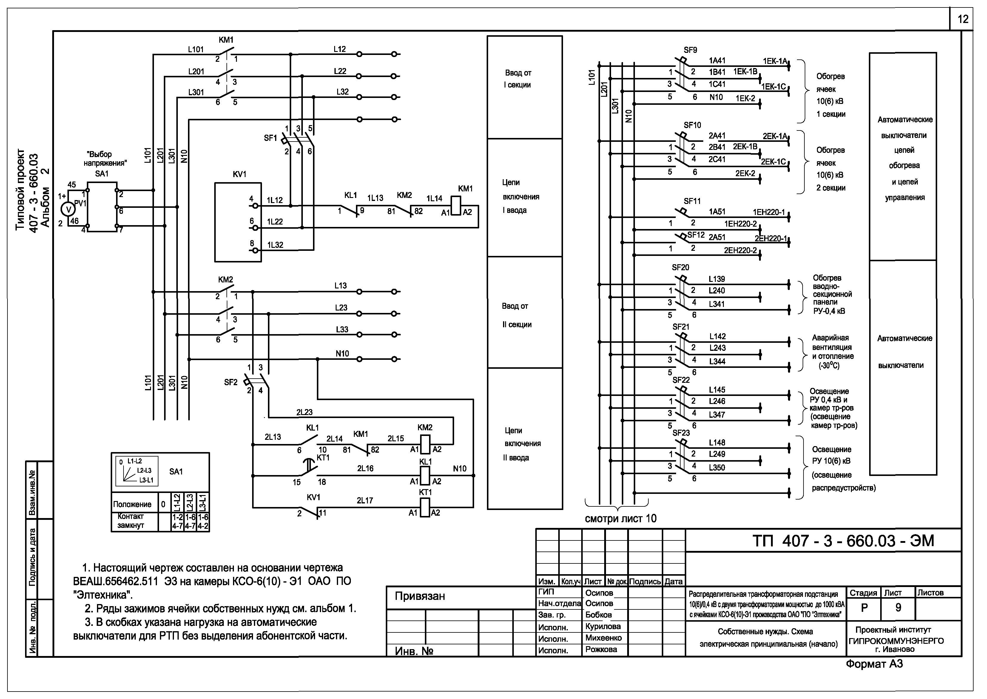
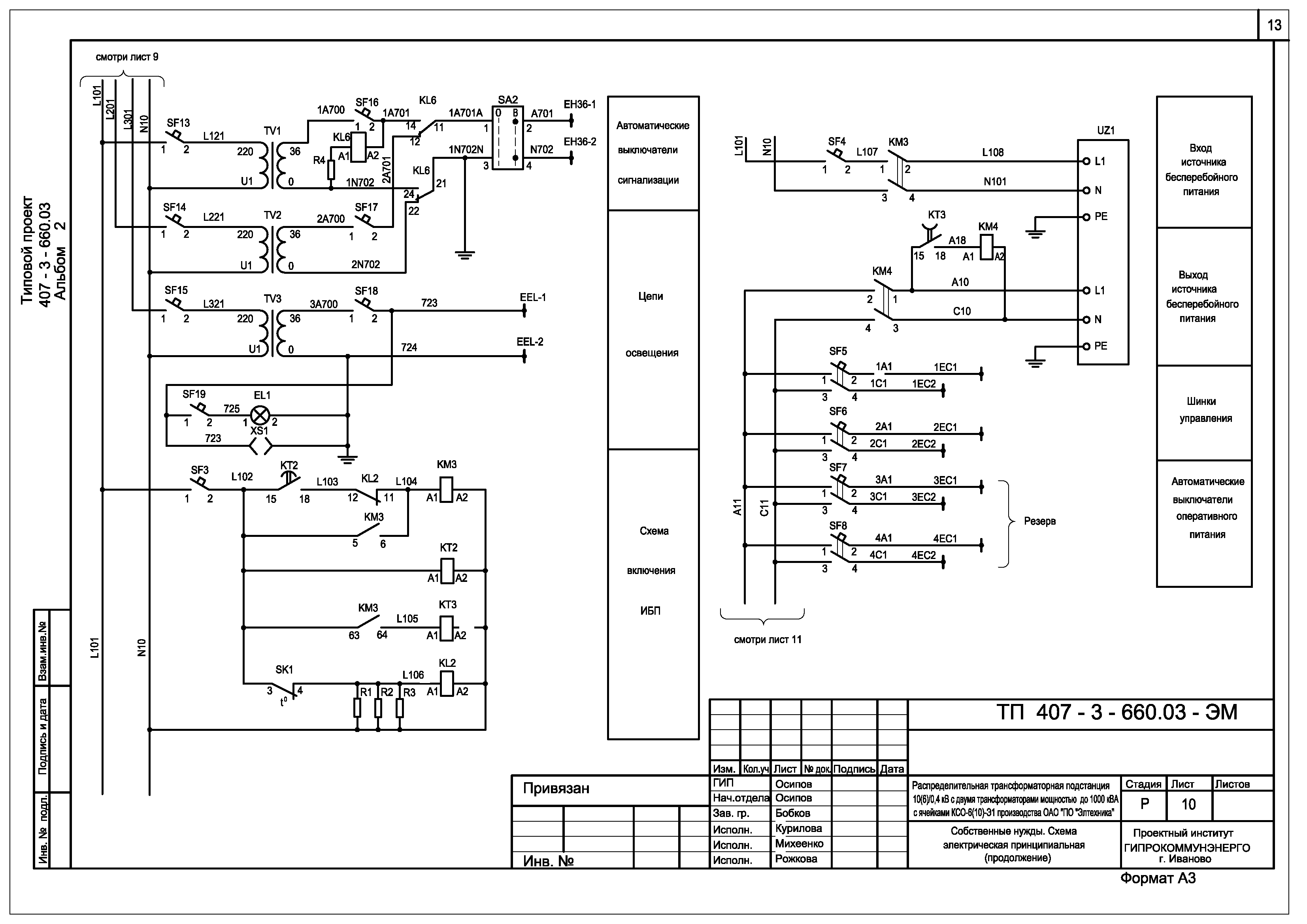
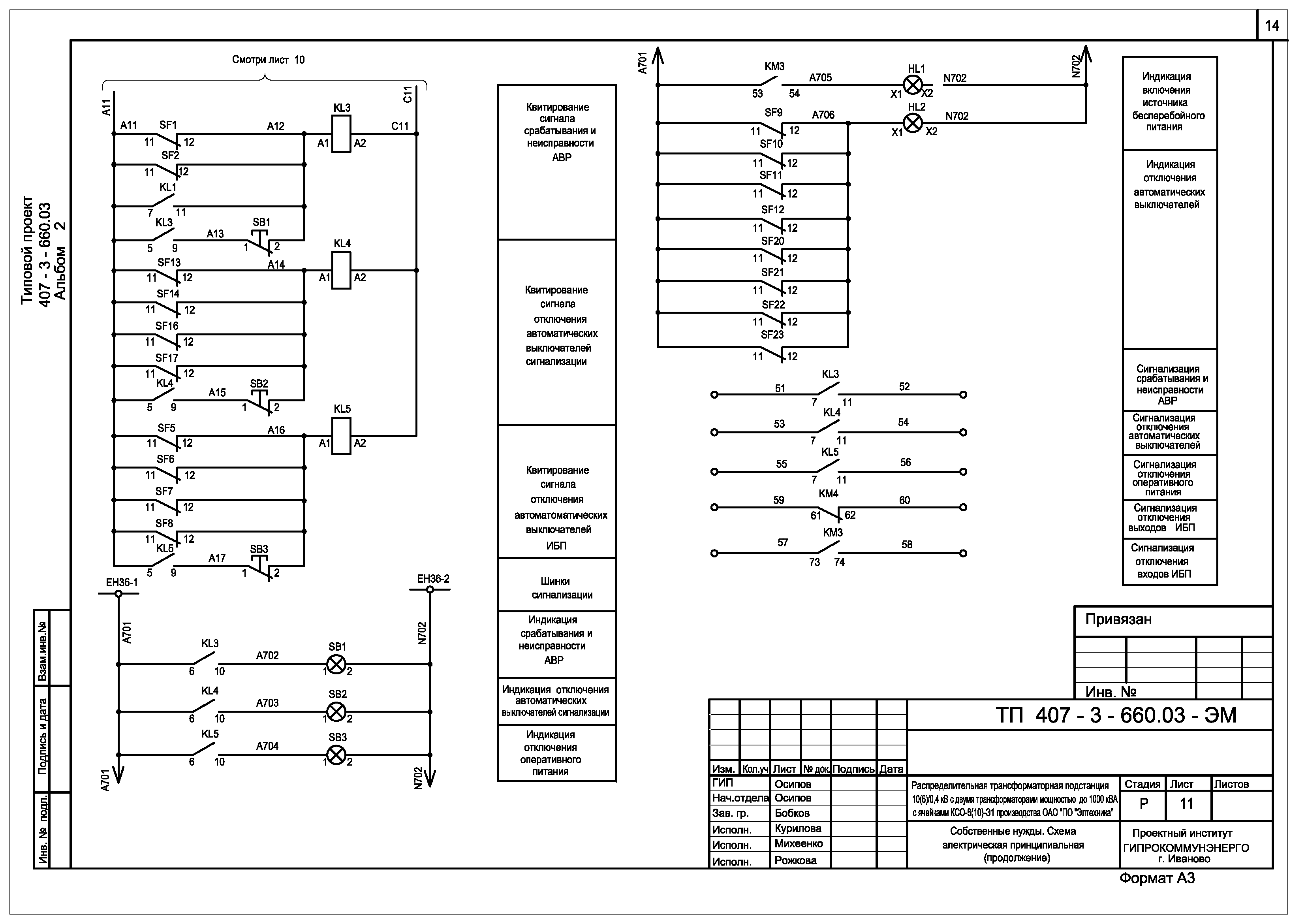
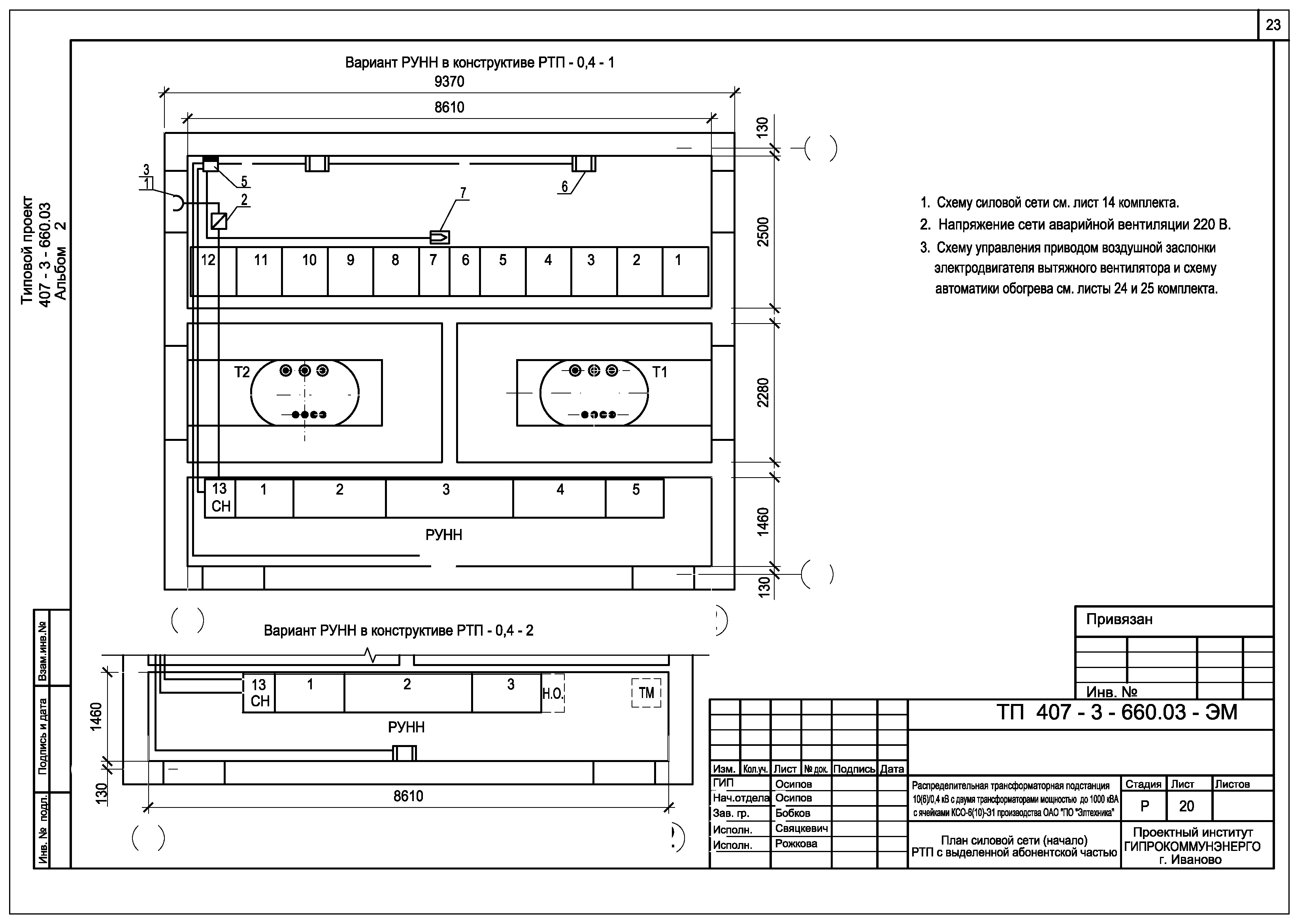
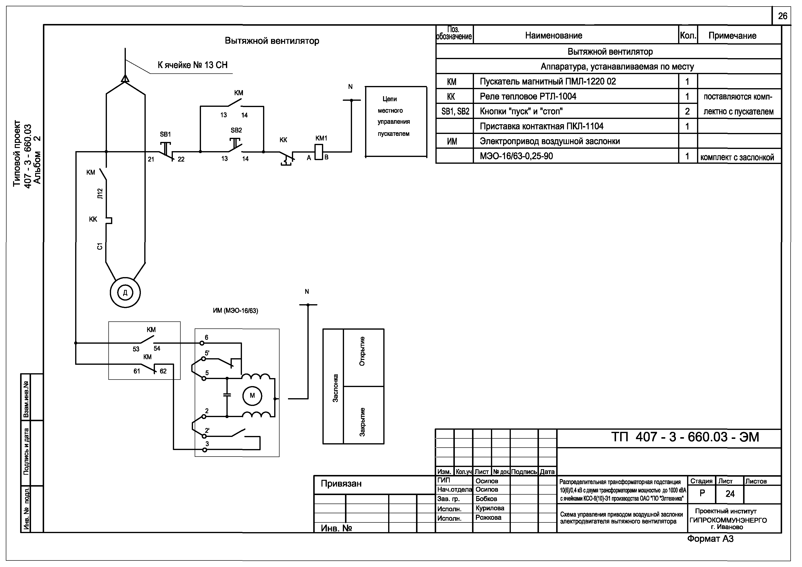
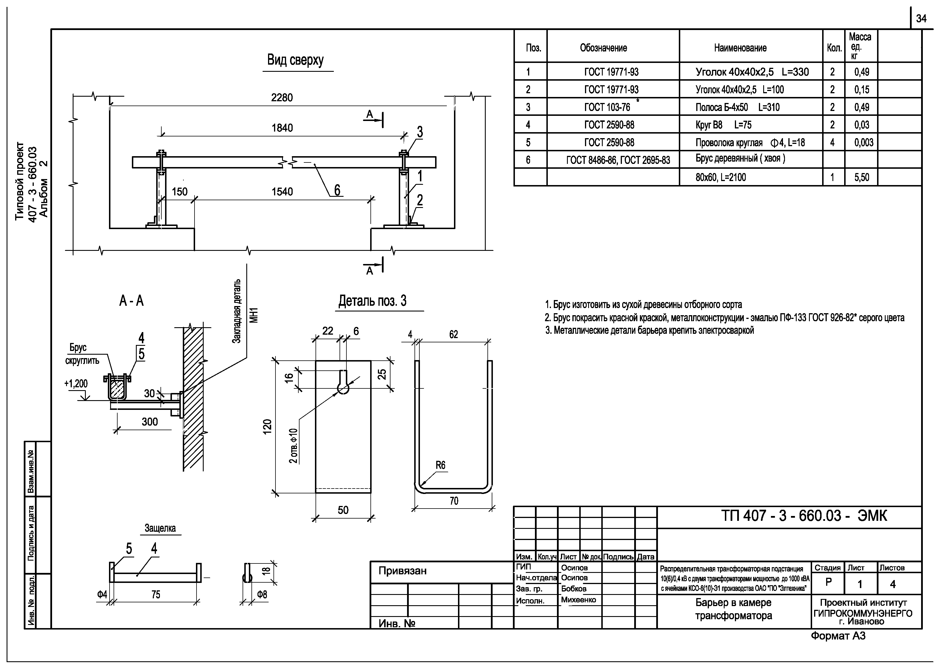
| Оглавление: | Содержание альбома ТП 407-3-660.03-ЭМ Электросиловое оборудование - ЭМ ТП 407-3-660.03-ЭМ Общие данные (начало) ТП 407-3-660.03-ЭМ Общие данные (окончание) ТП 407-3-660.03-ЭМ Узлы силовых трансформаторов (начало). РТП с выделенной абонентской частью ТП 407-3-660.03-ЭМ Узлы силовых трансформаторов (продолжение). РТП с выделенной абонентской частью ТП 407-3-660.03-ЭМ Узлы силовых трансформаторов (окончание). РТП с выделенной абонентской частью ТП 407-3-660.03-ЭМ Узлы силовых трансформаторов (начало). РТП без выделенной абонентской части ТП 407-3-660.03-ЭМ Узлы силовых трансформаторов (продолжение). РТП без выделенной абонентской части ТП 407-3-660.03-ЭМ Узлы силовых трансформаторов (окончание). РТП без выделенной абонентской части ТП 407-3-660.03-ЭМ Собственные нужды. Схема электрическая принципиальная (начало) ТП 407-3-660.03-ЭМ Собственные нужды. Схема электрическая принципиальная (продолжение) ТП 407-3-660.03-ЭМ Собственные нужды. Схема электрическая принципиальная (окончание) ТП 407-3-660.03-ЭМ Схема электрического освещения и отопления. РТП с выделенной абонентской частью ТП 407-3-660.03-ЭМ Схема электрического освещения и отопления. РТП без выделенной абонентской части ТП 407-3-660.03-ЭМ План осветительной сети (начало). РТП с выделенной абонентской частью ТП 407-3-660.03-ЭМ План осветительной сети (окончание). РТП с выделенной абонентской частью ТП 407-3-660.03-ЭМ План осветительной сети (начало). РТП без выделенной абонентской части ТП 407-3-660.03-ЭМ План осветительной сети (окончание). РТП без выделенной абонентской части ТП 407-3-660.03-ЭМ План силовой сети (начало). РТП с выделенной абонентской частью ТП 407-3-660.03-ЭМ План силовой сети (начало). РТП без выделенной абонентской части ТП 407-3-660.03-ЭМ План силовой сети (окончание). РТП с выделенной абонентской частью ТП 407-3-660.03-ЭМ План силовой сети (окончание). РТП без выделенной абонентской части ТП 407-3-660.03-ЭМ Схема управления приводом воздушной заслонки, электродвигателя вытяжного вентилятора ТП 407-3-660.03-ЭМ Автоматика обогрева. Схема электрическая принципиальная ТП 407-3-660.03-ЭМ План прокладки кабелей. РТП с выделенной абонентской частью ТП 407-3-660.03-ЭМ Журнал силовых и контрольных кабелей. РТП с выделенной абонентской частью ТП 407-3-660.03-ЭМ План прокладки кабелей. РТП без выделенной абонентской части ТП 407-3-660.03-ЭМ Журнал силовых и контрольных кабелей. РТП без выделенной абонентской части ТП 407-3-660.03-ЭМ Заземление и молниезащита. РТП с выделенной абонентской частью ТП 407-3-660.03-ЭМ Заземление и молниезащита. РТП без выделенной абонентской части ТП 407-3-660.03-ЭМК Прилагаемые документы марки - ЭМК ТП 407-3-660.03-ЭМК Барьер в камере трансформатора ТП 407-3-660.03-ЭМК Детали оборудования трансформаторных вводов ТП 407-3-660.03-ЭМК Подставка изолирующая Ведомость изделий МЭЗ |
| Разработан: | ОГУП ПИ Гипрокоммунэнерго |
| Утверждён: | 23.07.2003 ОАО ПО Элтехника (34) |





































