Скачать Типовой проект 407-3-660.03 Альбом 4. РТП без выделенной абонентской частиДата актуализации: 01.01.2021
|
| Обозначение: | Типовой проект 407-3-660.03 |
| Обозначение англ: | 407-3-660.03 |
| Статус: | не определен законодательством |
| Название рус.: | Альбом 4. РТП без выделенной абонентской части |
| Дата добавления в базу: | 01.09.2013 |
| Дата актуализации: | 01.01.2021 |
| Дата введения: | 23.07.2003 |
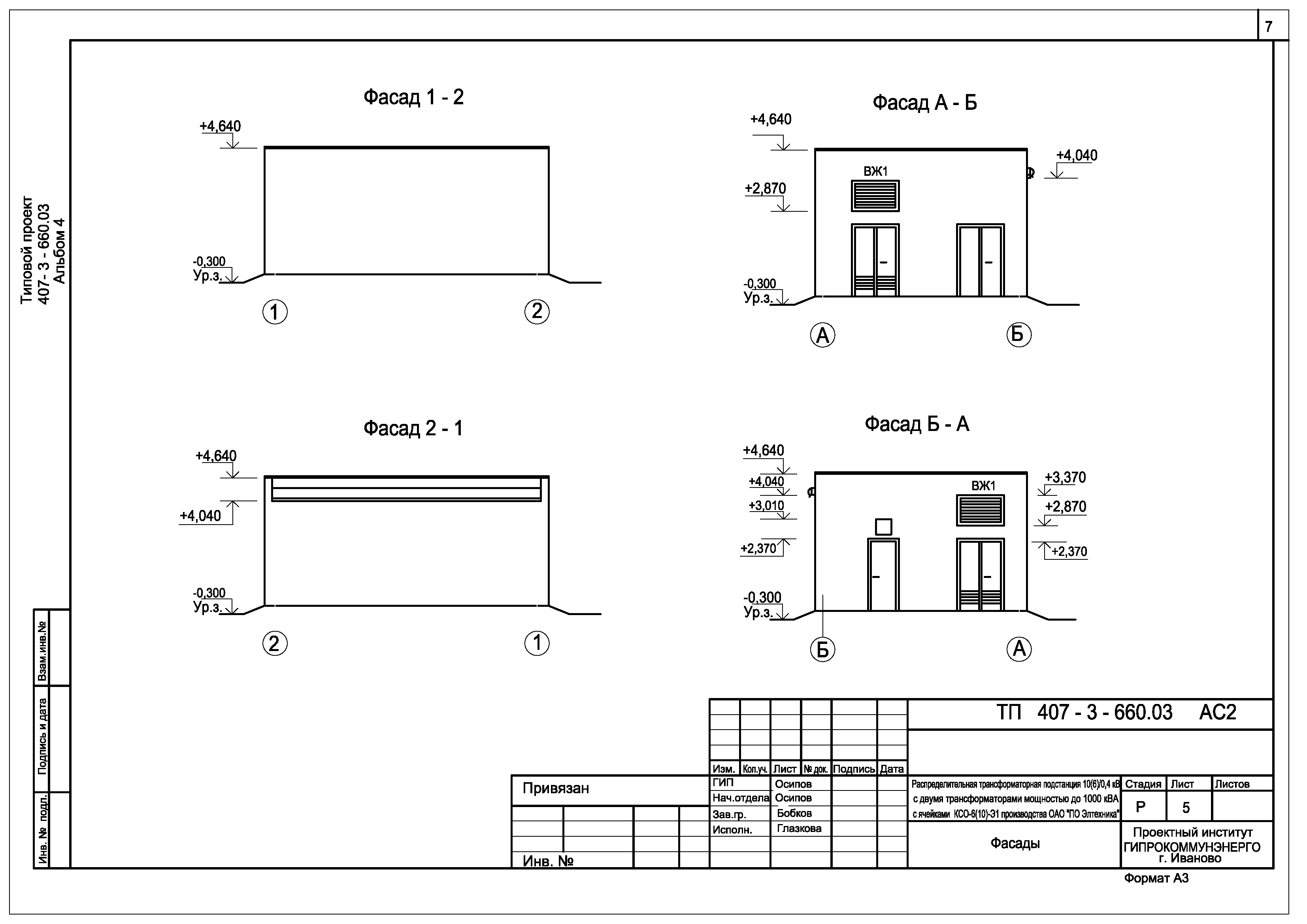
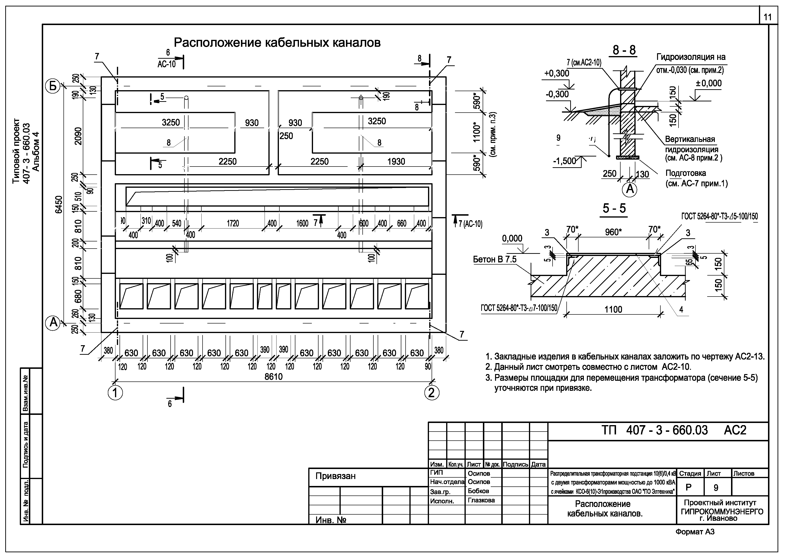
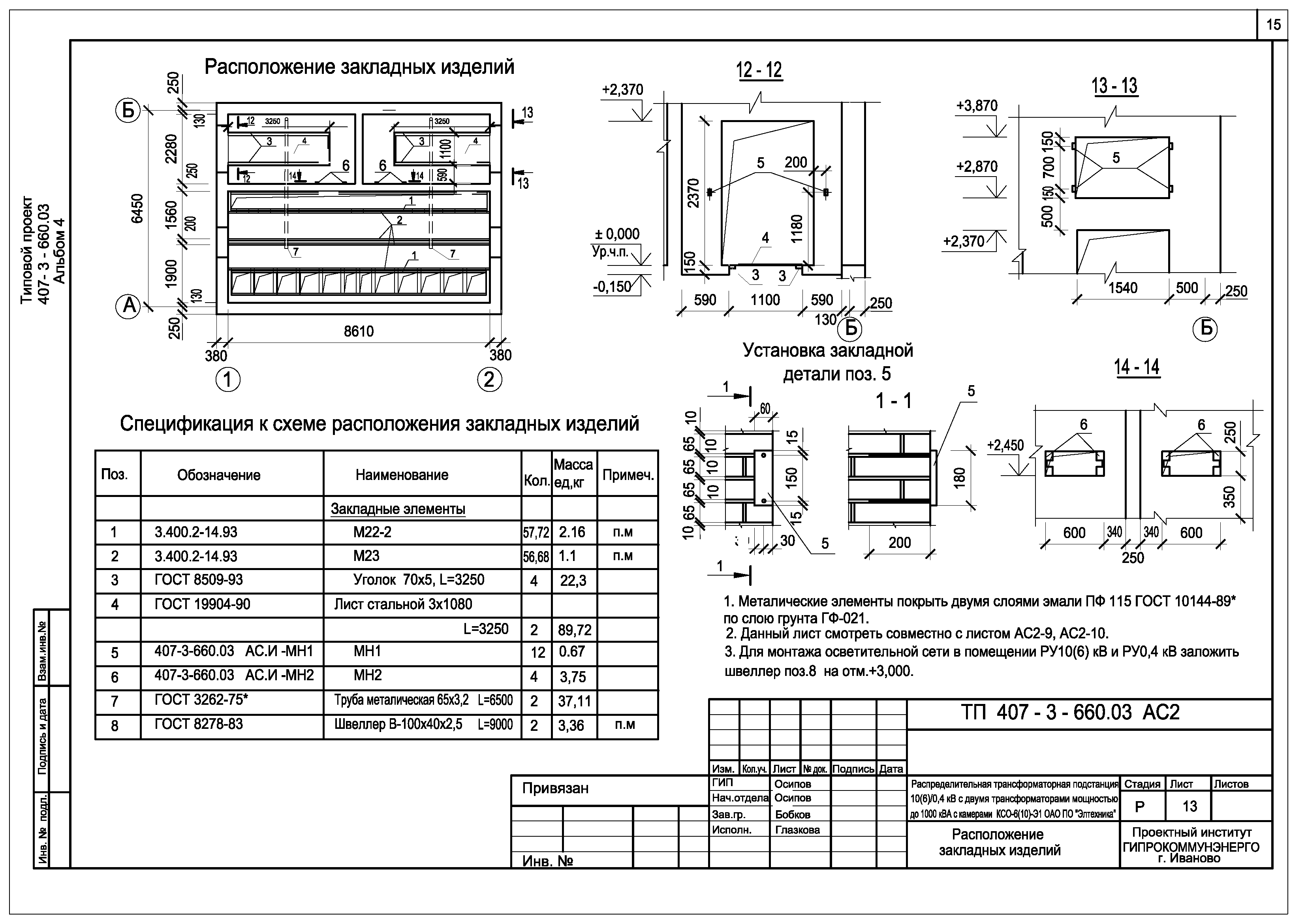
| Оглавление: | Содержание альбома ТП 407-3-660.03 АС2 Архитектурно-строительные решения - АС2 ТП 407-3-660.03 АС2 Общие данные (начало). ТП 407-3-660.03 АС2 Общие данные (окончание). ТП 407-3-660.03 АС2 План на отм. 0,000 ТП 407-3-660.03 АС2 Разрез 1-1; разрез 2-2. ТП 407-3-660.03 АС2 Фасады. ТП 407-3-660.03 АС2 План полов на отм. 0,000. План кровли. ТП 407-3-660.03 АС2 Схема расположения фундаментов. ТП 407-3-660.03 АС2 Схема расположения блоков в осях А-Б;Б-А;1-2;2-1. Сечения 2-2;3-3;4-4,5-5. ТП 407-3-660.03 АС2 Расположение кабельных каналов. ТП 407-3-660.03 АС2 Перекрытие кабельных каналов. ТП 407-3-660.03 АС2 Схема расположения плит покрытий. ТП 407-3-660.03 АС2 Расположение горизонтальной диафрагмы. ТП 407-3-660.03 АС2 Расположение закладных изделий. ТП 407-3-660.03 ОВ2 Отопление и вентиляция - ОВ2 ТП 407-3-660.03 ОВ2 Общие данные (начало). ТП 407-3-660.03 ОВ2 Общие данные (окончание). ТП 407-3-660.03 ОВ2 План на отм. 0.000.Разрез 1-1. Установка электрических печей. ТП 407-3-660.03 ОВ2 Узел установки и схема системы В-1. |
| Разработан: | ОГУП ПИ Гипрокоммунэнерго |
| Утверждён: | 23.07.2003 ОАО ПО Элтехника (34) |



















