Скачать Типовой проект 704-1-163.83 Альбом I. Стальные конструкции для надземной и подземной установкиДата актуализации: 01.01.2021
|
| Обозначение: | Типовой проект 704-1-163.83 |
| Обозначение англ: | 704-1-163.83 |
| Статус: | не действует |
| Название рус.: | Альбом I. Стальные конструкции для надземной и подземной установки |
| Дата добавления в базу: | 01.09.2013 |
| Дата актуализации: | 01.01.2021 |
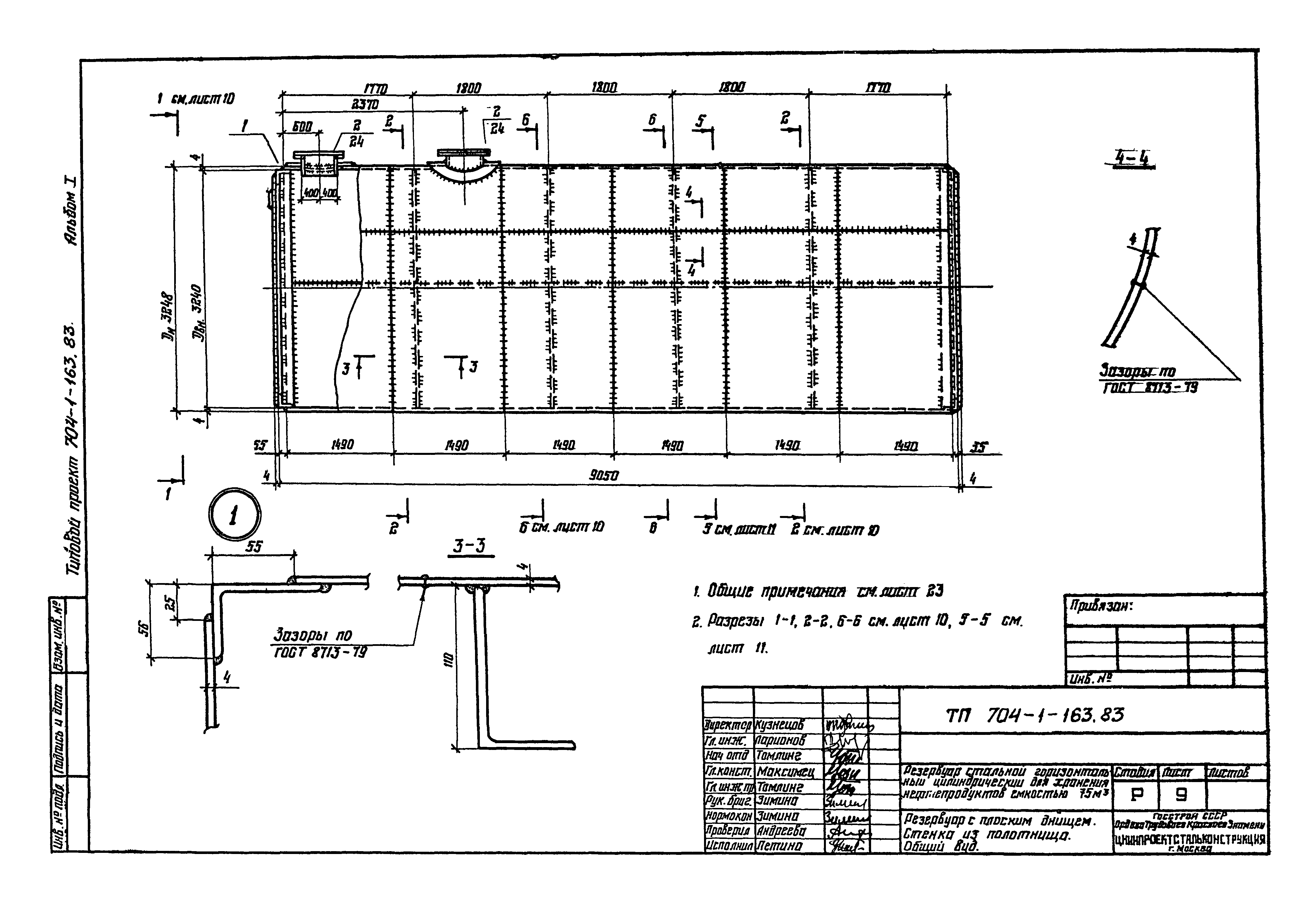
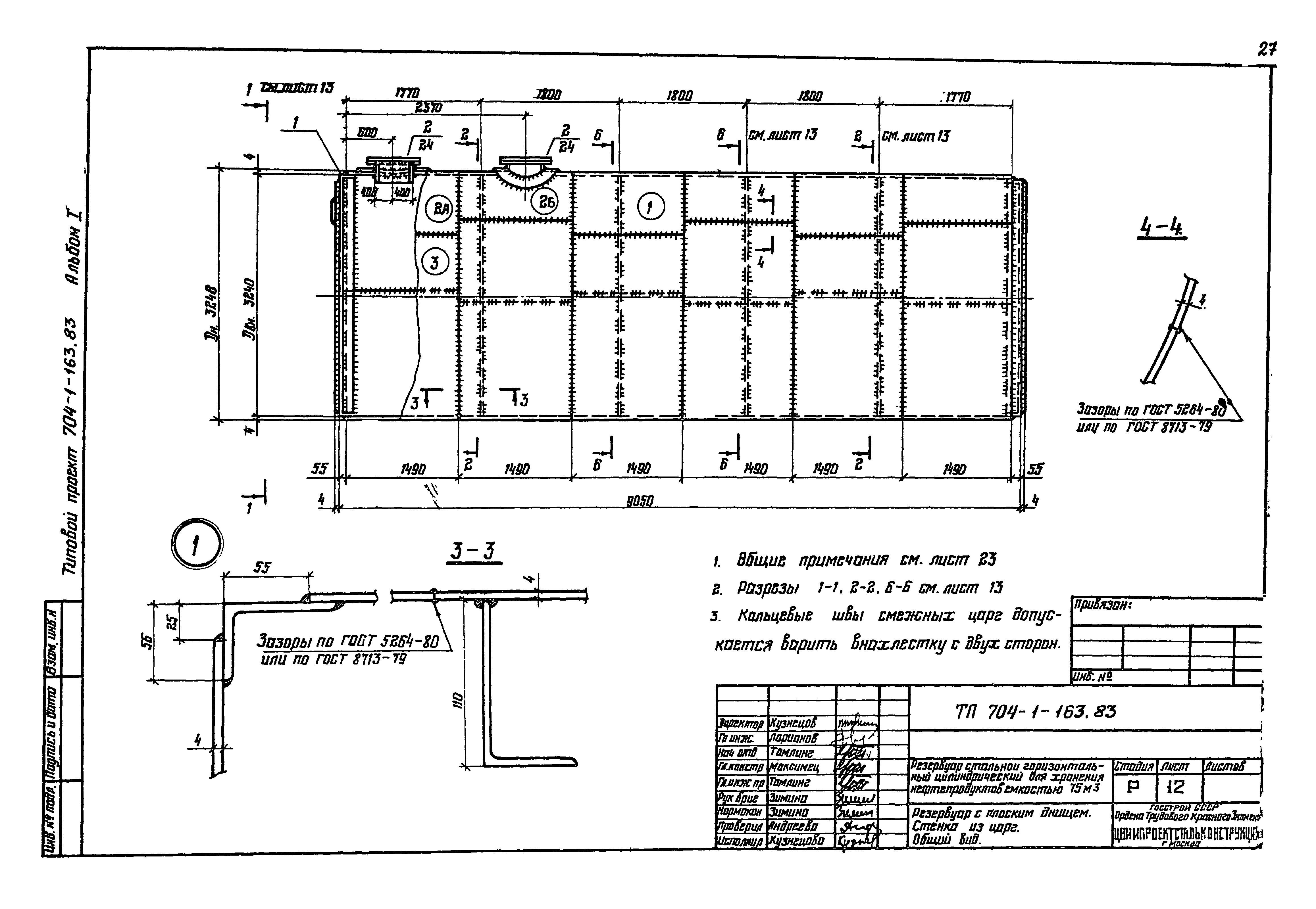
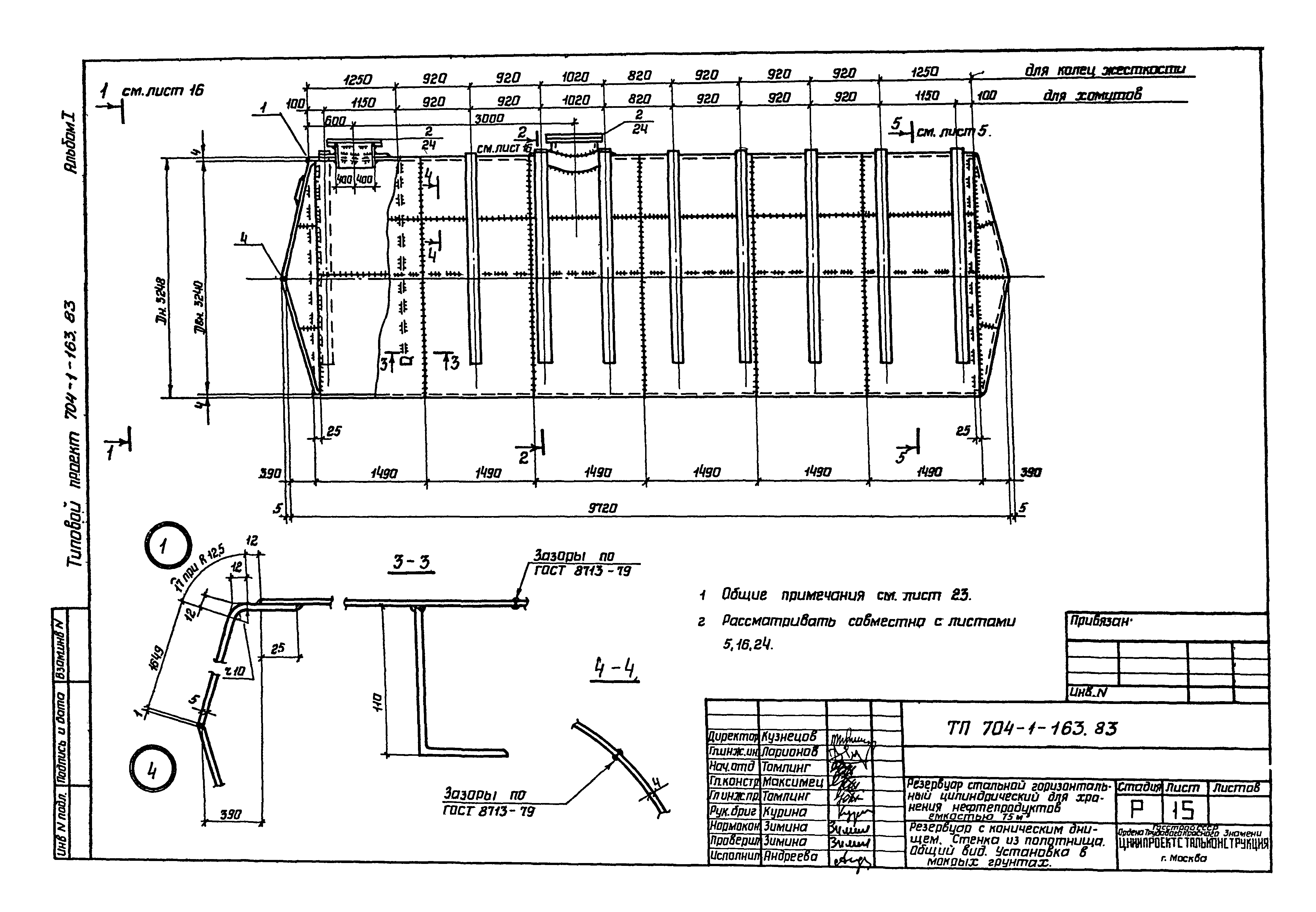
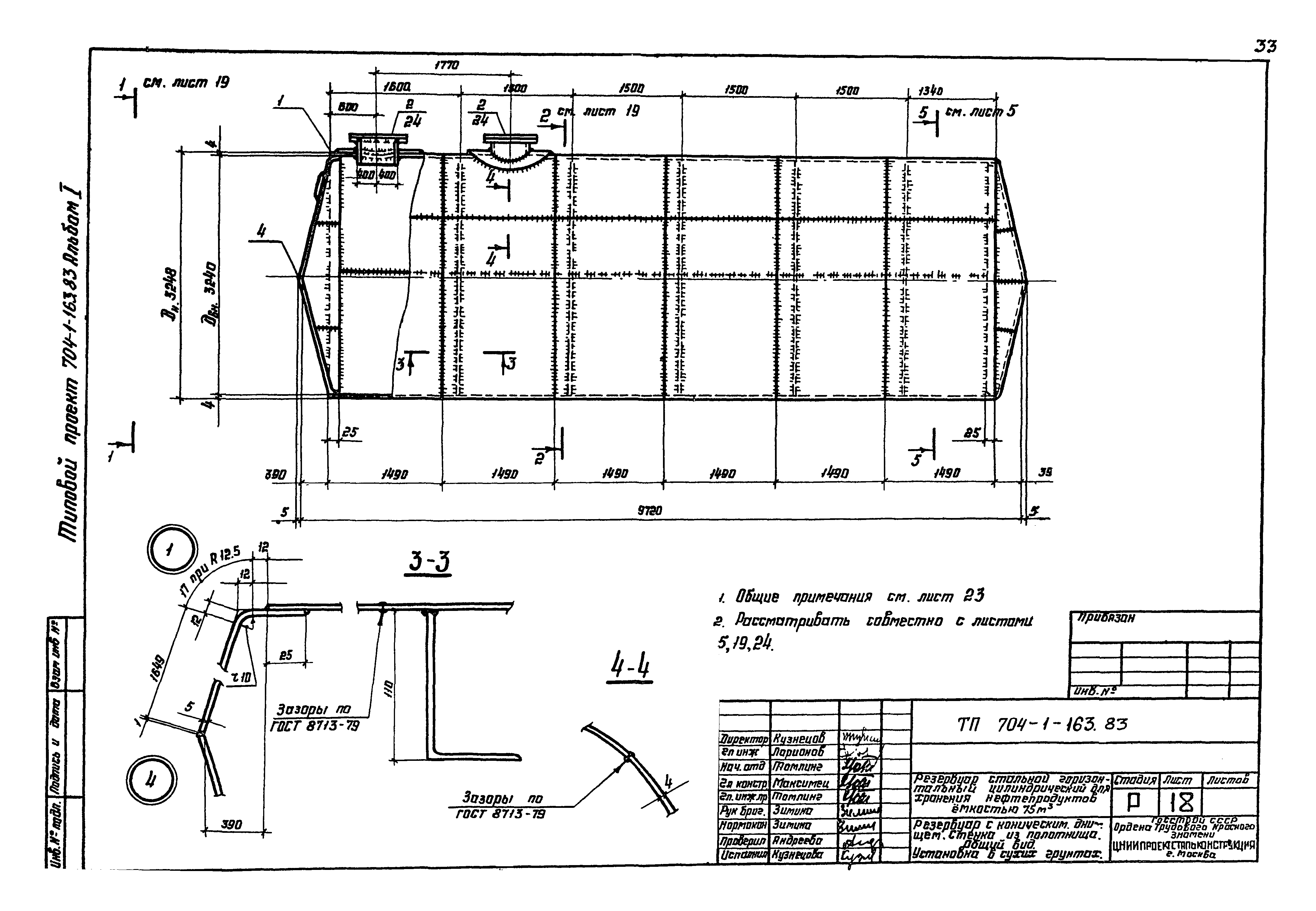
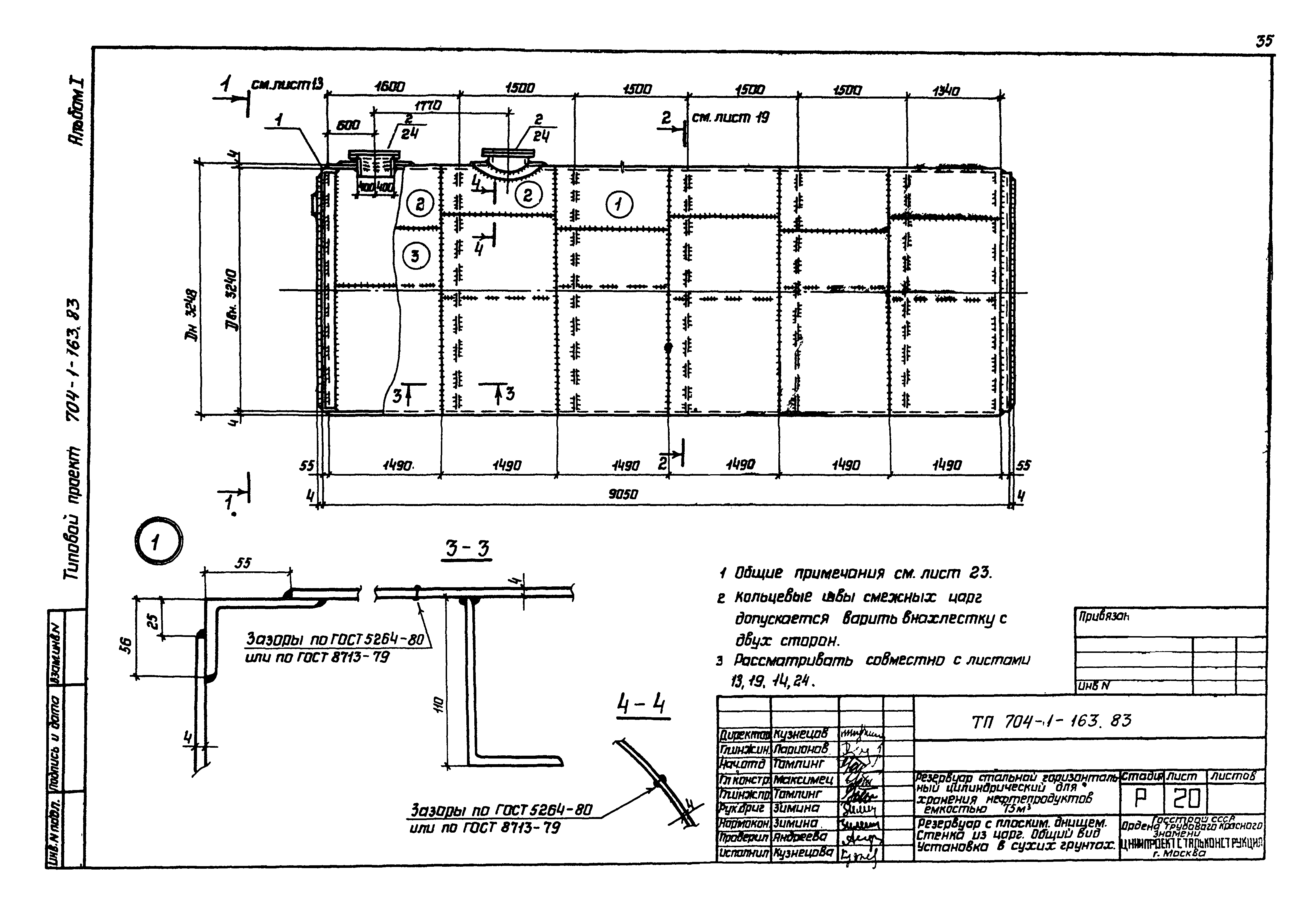
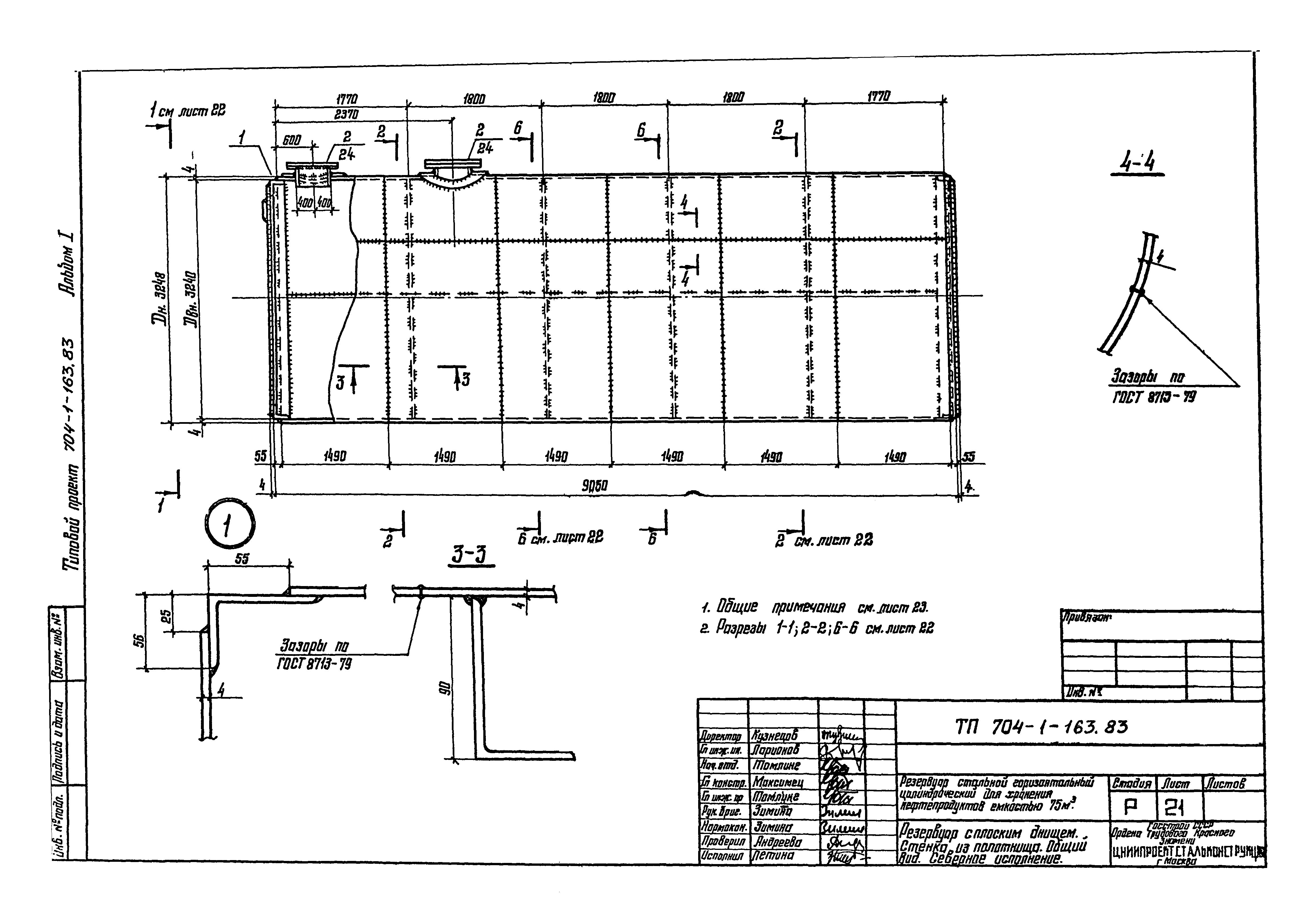
| Оглавление: | 704-1-163.83 Общие данные 704-1-163.83 Техническая спецификация стали. Резервуар с коническим днищем. Надземная установка 704-1-163.83 Техническая спецификация стали. Резервуар с плоским днищем. Надземная установка 704-1-163.83 Техническая спецификация стали. Резервуар с коническим днищем. Установка в мокрых грунтах 704-1-163.83 Техническая спецификация стали. Резервуар с плоским днищем. Установка в мокрых грунтах 704-1-163.83 Техническая спецификация стали. Резервуар с коническим днищем. Установка в сухих грунтах 704-1-163.83 Техническая спецификация стали. Резервуар с плоским днищем. Установка в сухих грунтах 704-1-163.83 Техническая спецификация стали. Резервуар с плоским днищем. Северное исполнение 704-1-163.83 Резервуар с коническим днищем. Стенка из полотнища. Общий вид 704-1-163.83 Резервуар с коническим днищем. Стенка из полотнища. Днище и разрезы 704-1-163.83 Резервуар с коническим днищем. Стенка из полотнища. Детали и раскрой листов 704-1-163.83 Резервуар с коническим днищем. Стенка из царг. Общий вид 704-1-163.83 Резервуар с коническим днищем. Стенка из царг. Днище и разрезы 704-1-163.83 Резервуар с коническим днищем. Стенка из царг. Детали и раскрой листов 704-1-163.83 Резервуар с плоским днищем. Стенка из полотнища. Общий вид 704-1-163.83 Резервуар с плоским днищем. Стенка из полотнища. Днище и разрезы 704-1-163.83 Резервуар с плоским днищем. Стенка из полотнища. Детали и раскрой листов 704-1-163.83 Резервуар с плоским днищем. Стенка из царг. Общий вид 704-1-163.83 Резервуар с плоским днищем. Стенка из царг. Днище и разрезы 704-1-163.83 Резервуар с плоским днищем. Стенка из царг. Детали и раскрой листов 704-1-163.83 Резервуар с коническим днищем. Стенка из полотнища Общий вид. Установка в мокрых грунтах 704-1-163.83 Резервуар с коническим днищем. Стенка из полотнища Днище и разрезы. Установка в мокрых грунтах 704-1-163.83 Резервуар с плоским днищем. Стенка из полотнища. Общий вид. Установка в мокрых грунтах 704-1-163.83 Резервуар с коническим днищем. Стенка из полотнища. Общий вид. Установка в сухих грунтах 704-1-163.83 Резервуар с коническим днищем. Стенка из полотнища. Днище и разрезы. Установка в сухих грунтах 704-1-163.83 Резервуар с плоским днищем. Стенка из царг Общий вид. Установка в сухих грунтах 704-1-163.83 Резервуар с плоским днищем. Стенка из полотнища. Общий вид. Северное исполнение 704-1-163.83 Резервуар с плоским днищем. Стенка из полотнища. Днище и разрезы. Северное исполнение 704-1-163.83 Схемы установки резервуара и примечания 704-1-163.83 Узлы и детали при наземном и подземном расположении резервуара 704-1-163.83 Патрубок для замера уровня при наземном и подземном расположении резервуара 704-1-163.83 Вариант болтового крепления треугольных диафрагм в резервуарах, подлежащих оцинковке 704-1-163.83 Скобы 704-1-163.83 Ведомость металлоконструкций по видам профилей. Надземная установка. Резервуар с коническим днищем 704-1-163.83 Ведомость металлоконструкций по видам профилей. Установка в мокрых грунтах. Резервуар с коническим днищем |
| Разработан: | ЦНИИпроектстальконструкция |
| Утверждён: | 10.12.1982 Миннефтепром СССР |














































