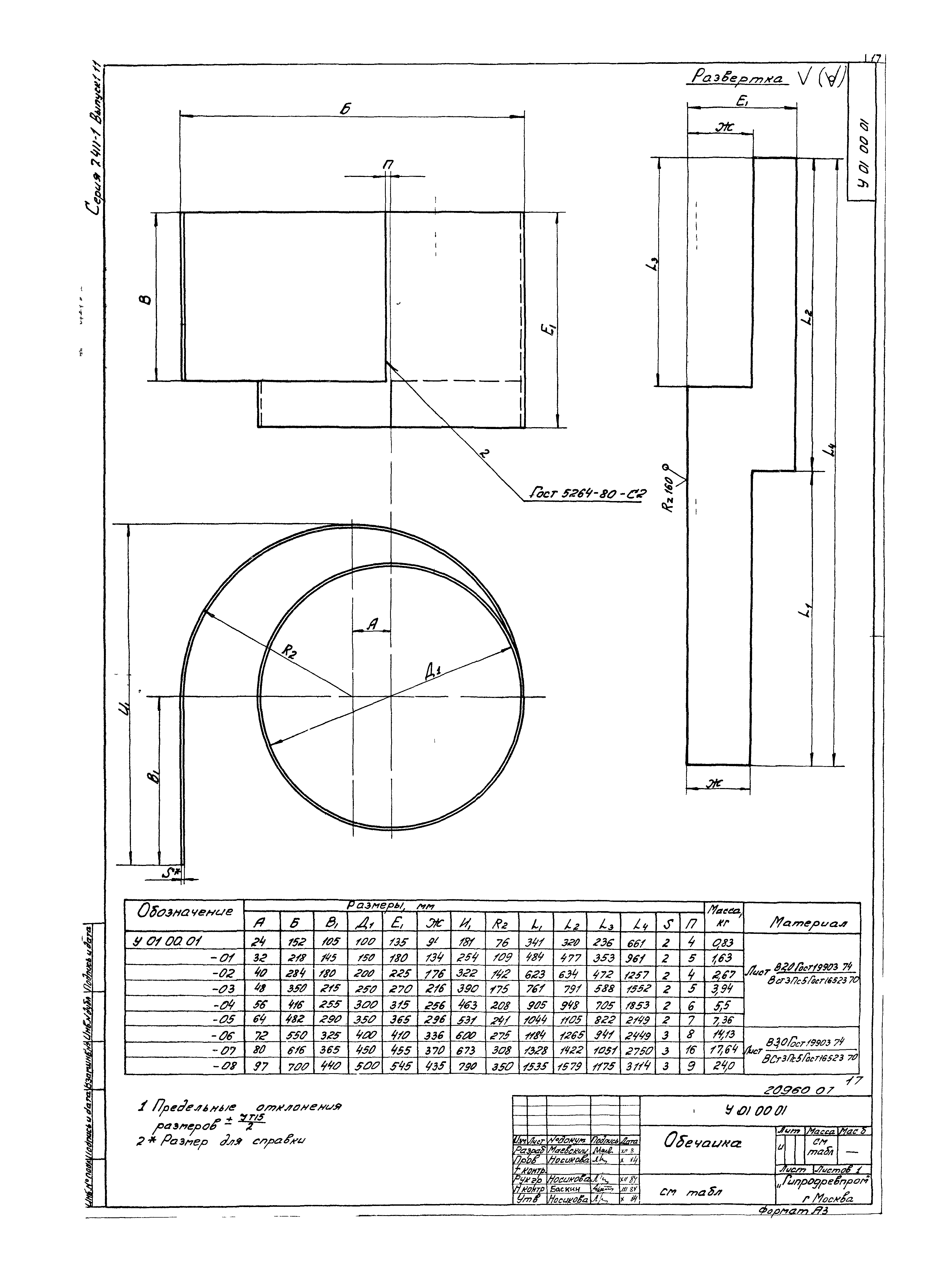
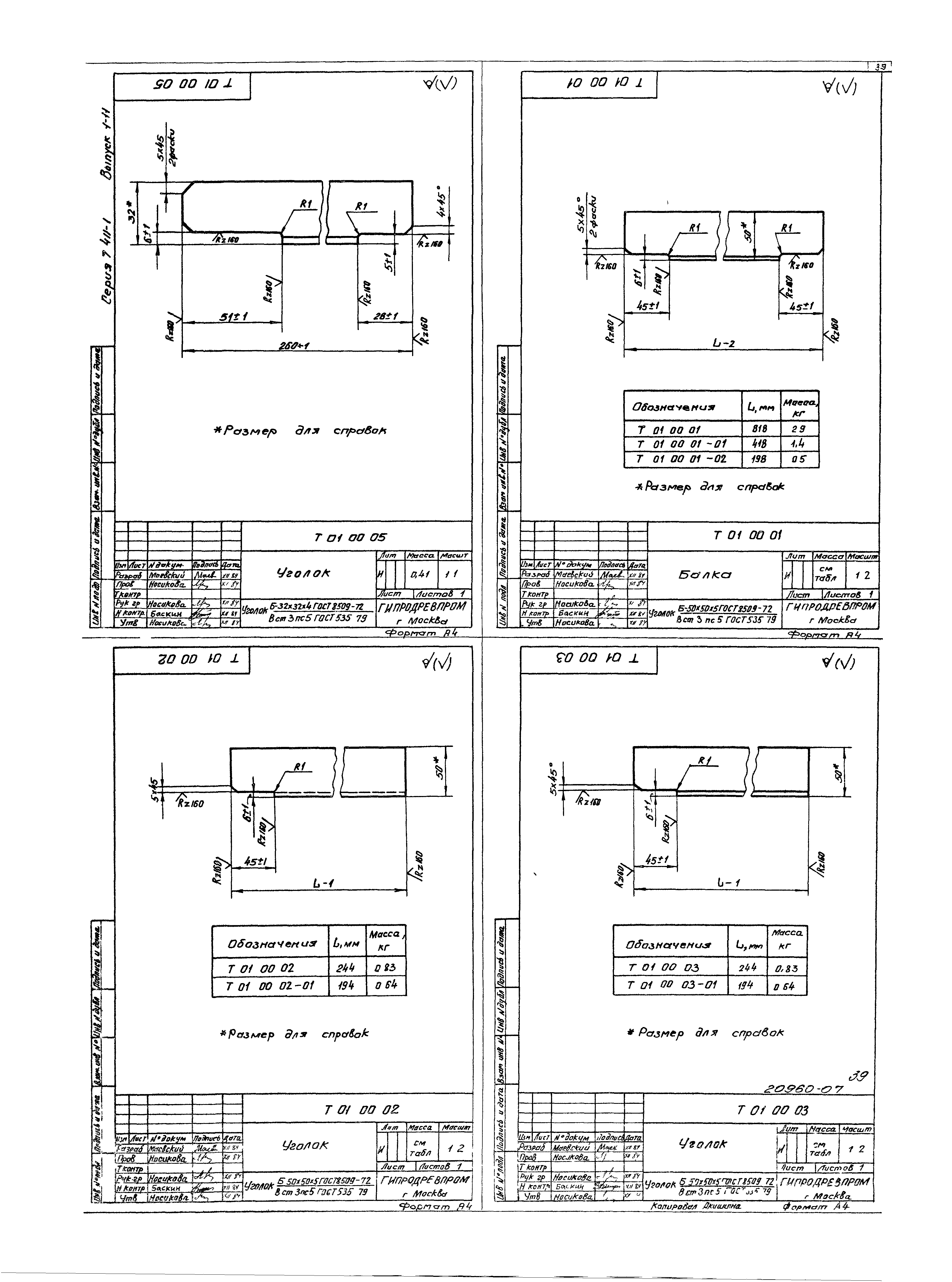
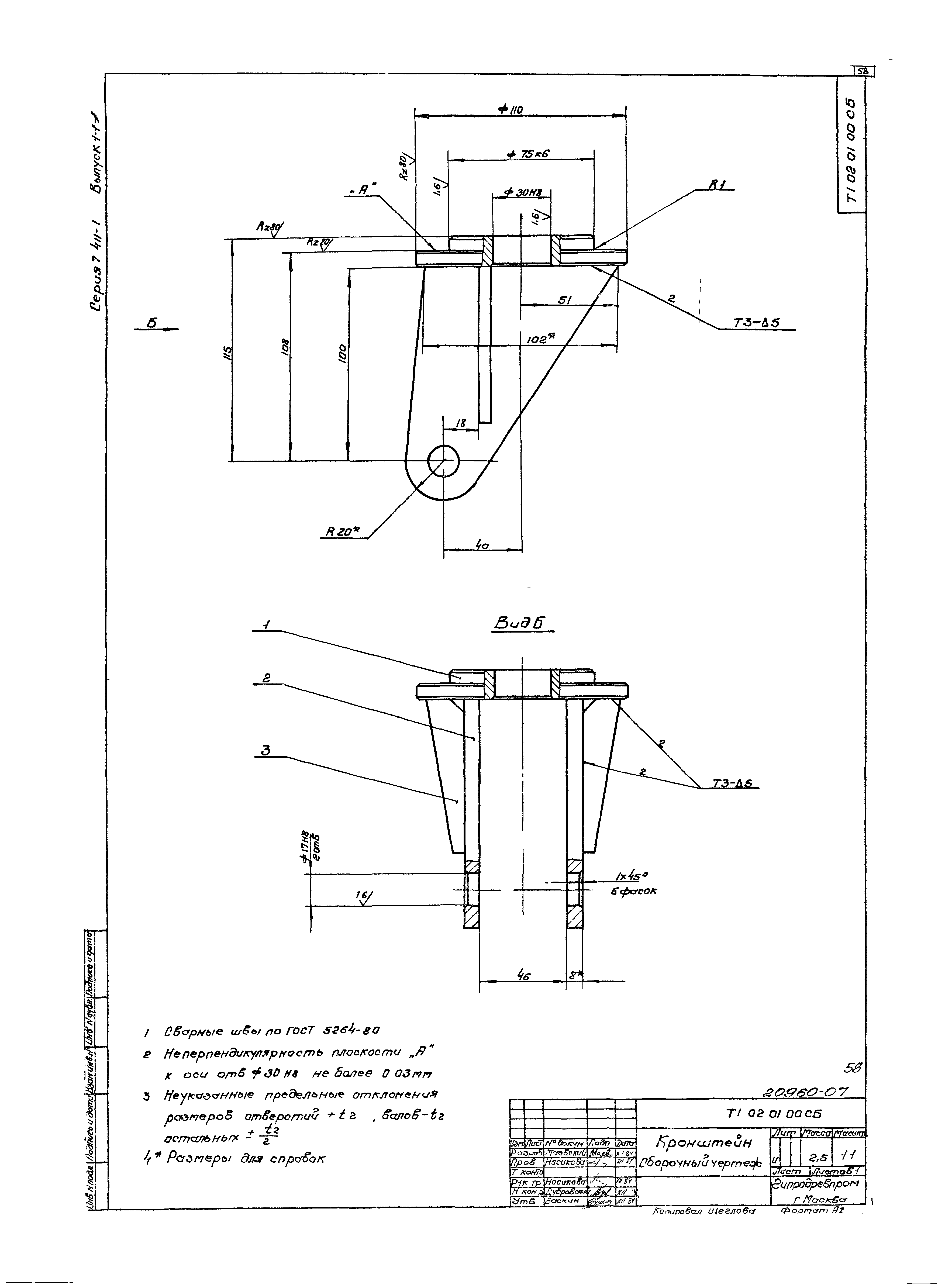
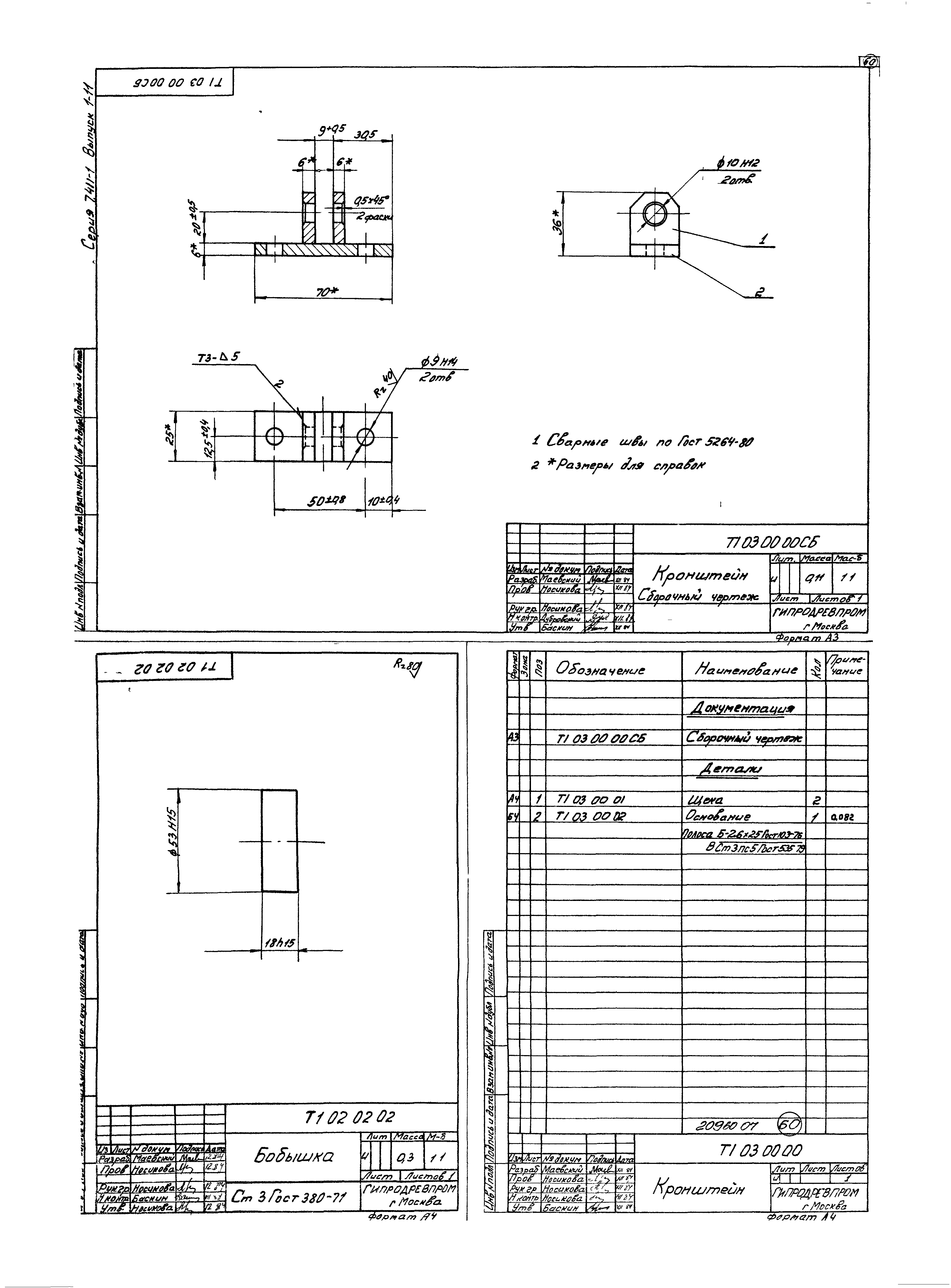
Скачать Серия 7.411-1 Выпуск 1-11. Циклоны РИСИ №№ 2, 3, 4, 5, 6, 7, 8, 9, 10, 11. Рабочие чертежиДата актуализации: 01.01.2021 Серия 7.411-1
Выпуск 1-11. Циклоны РИСИ №№ 2, 3, 4, 5, 6, 7, 8, 9, 10, 11. Рабочие чертежи| Обозначение: | Серия 7.411-1 | | Обозначение англ: | Series 7.411-1 | | Статус: | не определен законодательством | | Название рус.: | Выпуск 1-11. Циклоны РИСИ №№ 2, 3, 4, 5, 6, 7, 8, 9, 10, 11. Рабочие чертежи | | Дата добавления в базу: | 01.09.2013 | | Дата актуализации: | 01.01.2021 | | Дата введения: | 31.07.1986 | | Дата окончания срока действия: | 30.06.2003 | | Разработан: | Гипродревпром Минлеспрома СССР
| | Утверждён: | 15.07.1985 Минлесбумпром СССР (USSR Minlesbumprom )
| | Издан: | ЦИТП Госстроя СССР (CITP, Gosstroy (USSR) 1988 г. )
|
                                                          
|