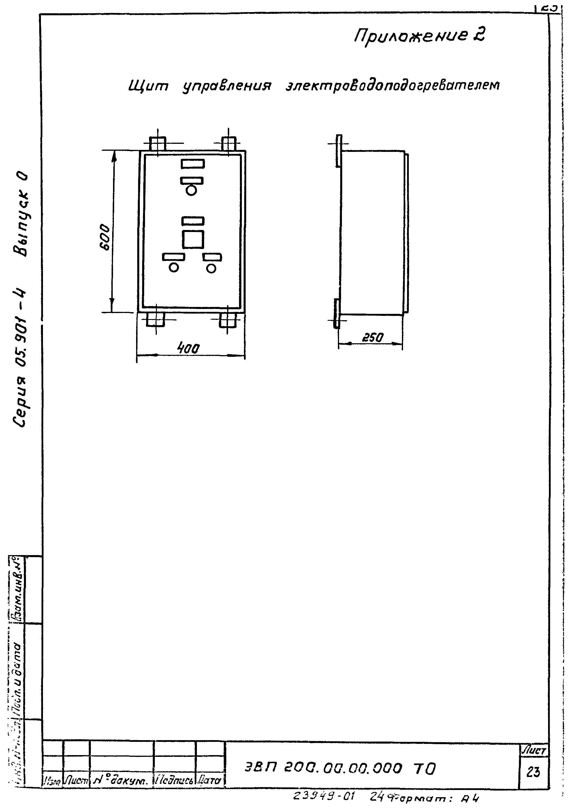
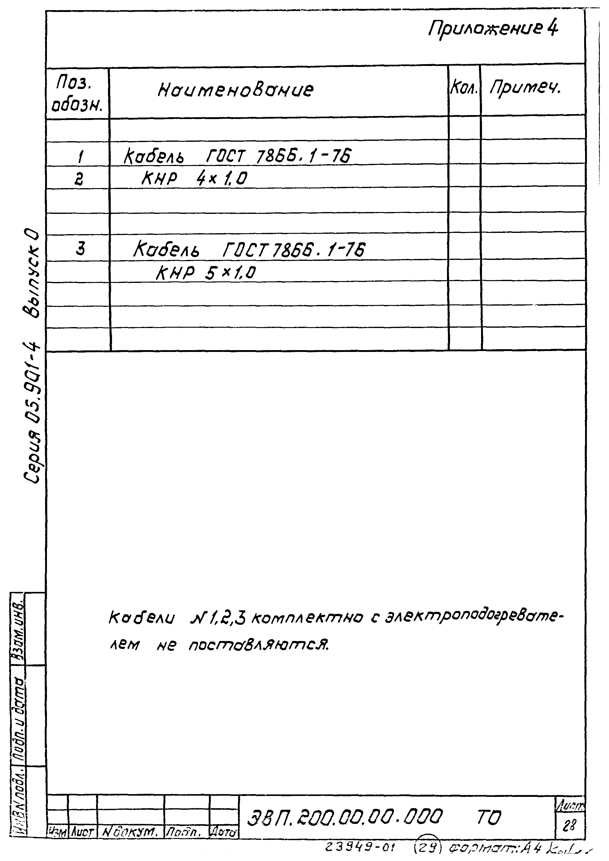
Скачать Серия 05.901-4 Выпуск 0. Техническое описание. Указания по применению, монтажу и эксплуатацииДата актуализации: 01.01.2021 Серия 05.901-4
Выпуск 0. Техническое описание. Указания по применению, монтажу и эксплуатации| Обозначение: | Серия 05.901-4 | | Обозначение англ: | Series 05.901-4 | | Статус: | не определен законодательством | | Название рус.: | Выпуск 0. Техническое описание. Указания по применению, монтажу и эксплуатации | | Дата добавления в базу: | 01.09.2013 | | Дата актуализации: | 01.01.2021 | | Дата введения: | 01.09.1989 | | Дата окончания срока действия: | 30.06.2003 | | Разработан: | Гипрокоммундортранс
| | Утверждён: | 11.08.1989 Служба Н.Г.О. СССР (49)
| | Издан: | ГУП ЦПП (CPP GUP 2002 г. )
|
                           
|