Скачать Типовой проект 5728 тм Альбом II. Чертежи узлов прокладки и защиты кабелейДата актуализации: 01.01.2021
|
| Обозначение: | Типовой проект 5728 тм |
| Обозначение англ: | 5728 тм |
| Статус: | не определен законодательством |
| Название рус.: | Альбом II. Чертежи узлов прокладки и защиты кабелей |
| Дата добавления в базу: | 01.09.2013 |
| Дата актуализации: | 01.01.2021 |
| Дата введения: | 01.04.1974 |
| Дата окончания срока действия: | 30.06.2003 |
| Область применения: | В альбоме содержатся конструктивные чертежи, иллюстрирующие указания и рекомендации по прокладке и защите кабелей, изложенные в альбоме I данной работы |
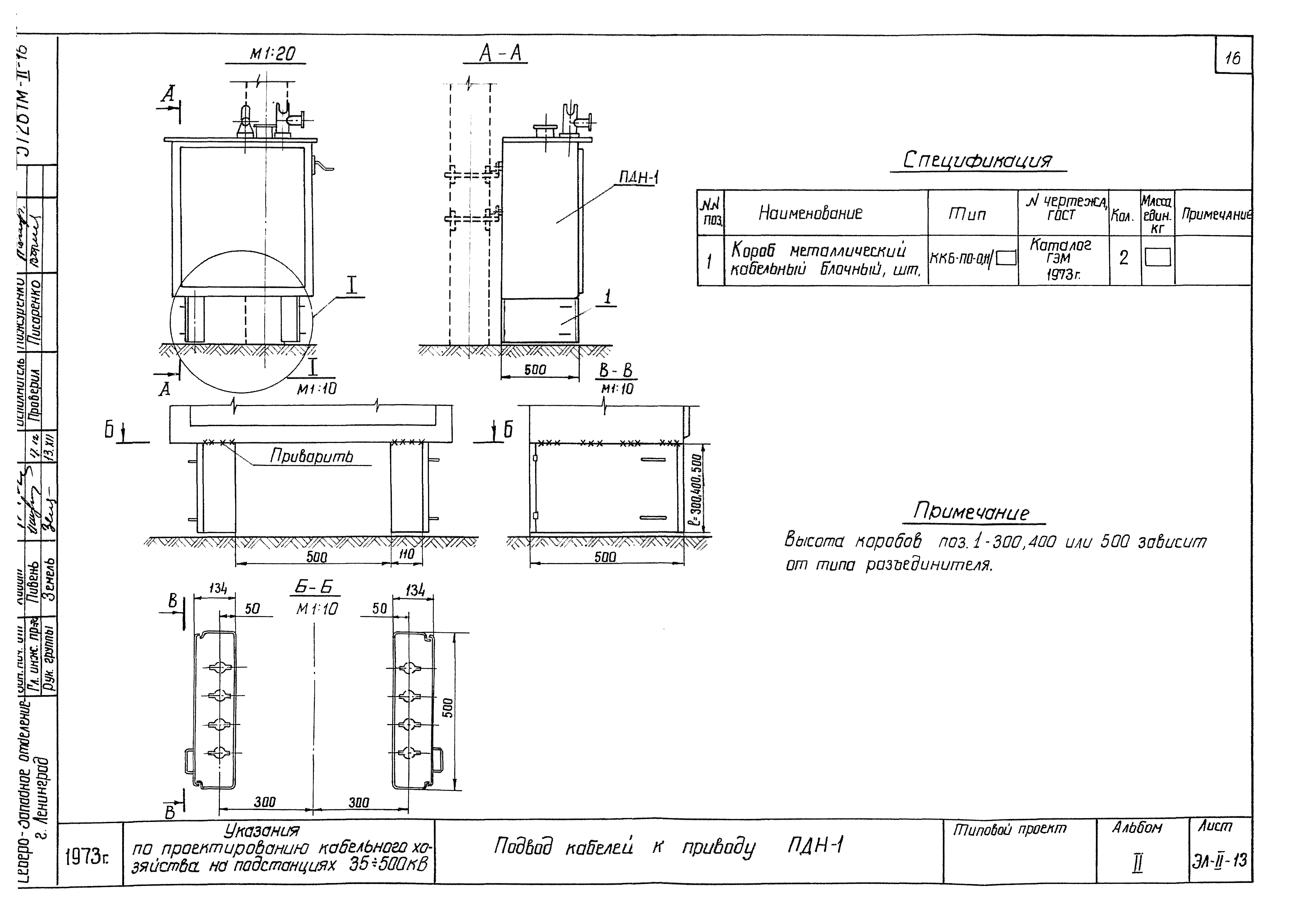
| Оглавление: | Титульный лист Перечень листов Пояснительная записка ЭЛ-III-1 Основные строительные элементы кабельного хозяйства подстанций (каналы, лотки, блоки и трубы) ЭЛ-III-2 Прокладка кабелей в лотках на поворотах, ответвлениях и в местах пересечений. Примеры ЭЛ-III-3 Расположение кабельных каналов и лотков параллельно другим сооружениям ЭЛ-III-4 Прокладка кабелей и расстановка кабельных конструкций на поворотах, ответвлениях и пересечениях каналов ЭЛ-III-5 Прокладка кабелей в каналах. Примеры расстановки кабельных конструкций ЭЛ-III-6 Прокладка кабелей в каналах и лотках. Узлы вывода кабелей из зданий и переходов под автодорогой ЭЛ-III-7 Пересечений кабельных лотков и каналов с железной дорогой ЭЛ-III-8 Прокладка кабелей на конструкциях. Определение длин полок и расстояний между ними в зависимости от количества и типа кабелей ЭЛ-III-9 Прокладка контрольных кабелей пучками на лотках и многослойно в стальных коробах. Определение длин полок и расстояний между ними в зависимости от размеров пучков, коробов и назначения кабелей ЭЛ-III-10 Прокладка кабелей в траншеях на прямых участках, параллельно другим сооружениям, на пересечениях с дорогой и на поворотах трассы ЭЛ-III-11 Прокладка кабелей в траншеях в местах пересечений и на подходе к зданиям ЭЛ-III-12 Узлы защиты кабелей при подходах к клеммным и другим шкафам, а также к проводам аппаратов ЭЛ-III-13 Подвод кабелей к приводу ПДН-1 ЭЛ-III-14 Пример прокладки и защиты кабелей на подходе к баковым выключателям 110кВ и 220кВ ЭЛ-III-15 Пример прокладки и защиты кабелей и труб на подходе к воздушным выключателям типов ВВБ и ВВУ 35-220кВ ЭЛ-III-16 Пример прокладки кабелей к камерам КРУ(10)кВ ЭЛ-III-17 Пример прокладки и защиты кабелей к силовым трансформаторам ЭЛ-III-18 Узлы сопряжения жил (до 3) кабеля большого сечения с одной жилой кабеля меньшего сечения, присоединяемой к контакту низковольтного аппарата ЭЛ-III-19 Пример выполнения чертежей раскладки кабелей по открытой части подстанции. План |
| Разработан: | Северо-западное отделение института Энергосетьпроект |
| Утверждён: | 01.04.1974 Энергосетьпроект (Energosetproject 55) |





















