Скачать Типовой проект 901-3-24 Альбом VI. Башня для хранения промывной воды с баком емкостью 200 куб. м (чертежи)Дата актуализации: 01.01.2021
|
| Обозначение: | Типовой проект 901-3-24 |
| Обозначение англ: | 901-3-24 |
| Статус: | не определен законодательством |
| Название рус.: | Альбом VI. Башня для хранения промывной воды с баком емкостью 200 куб. м (чертежи) |
| Дата добавления в базу: | 01.09.2013 |
| Дата актуализации: | 01.01.2021 |
| Дата введения: | 20.12.1967 |
| Дата окончания срока действия: | 30.06.2003 |
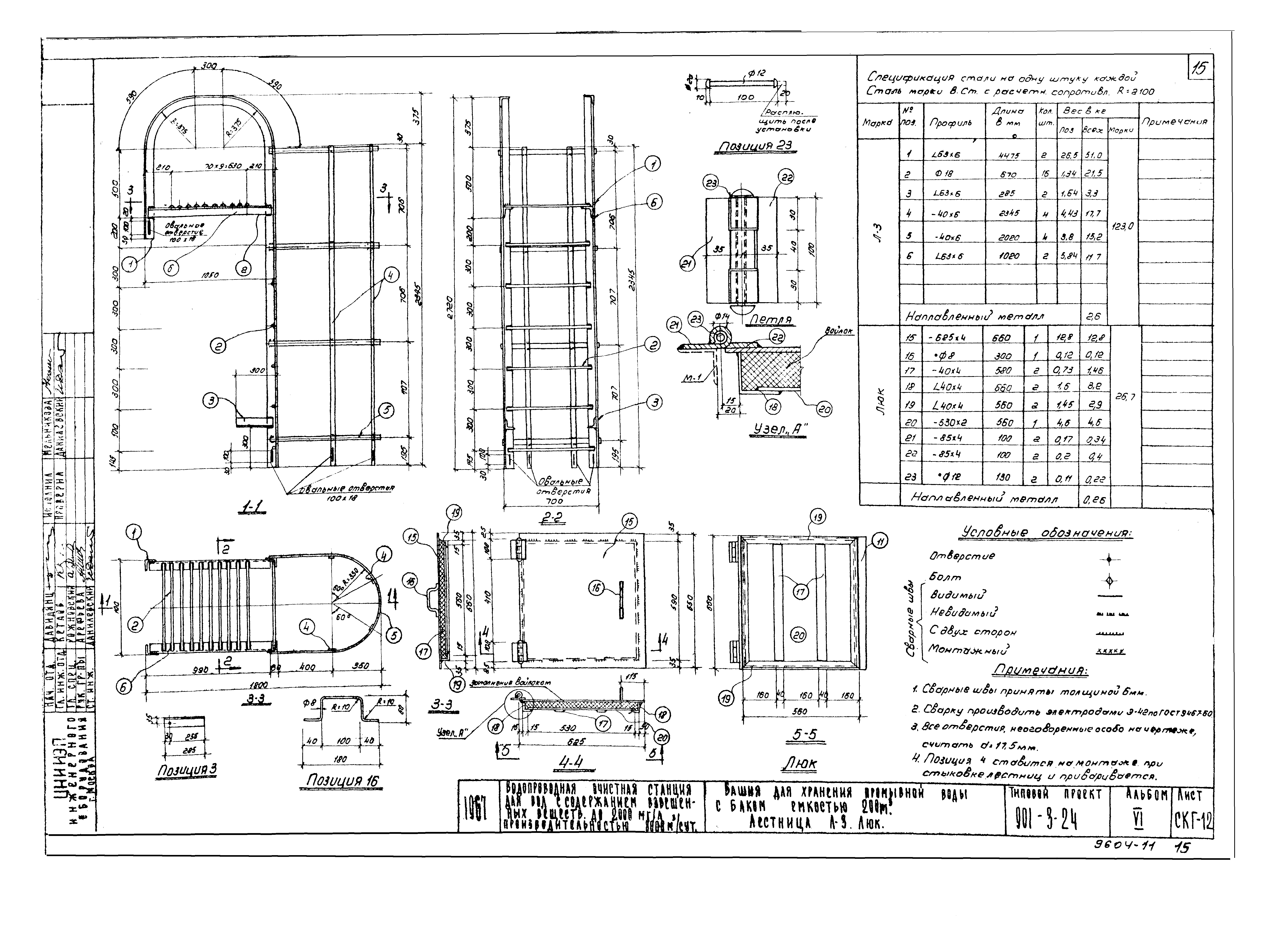
| Область применения: | Башня предназначена для хранения промывной воды в водопроводных очистных станциях для вод с содержанием взвешенных веществ до 2000 мг/л производительностью 8000 м3/сут |
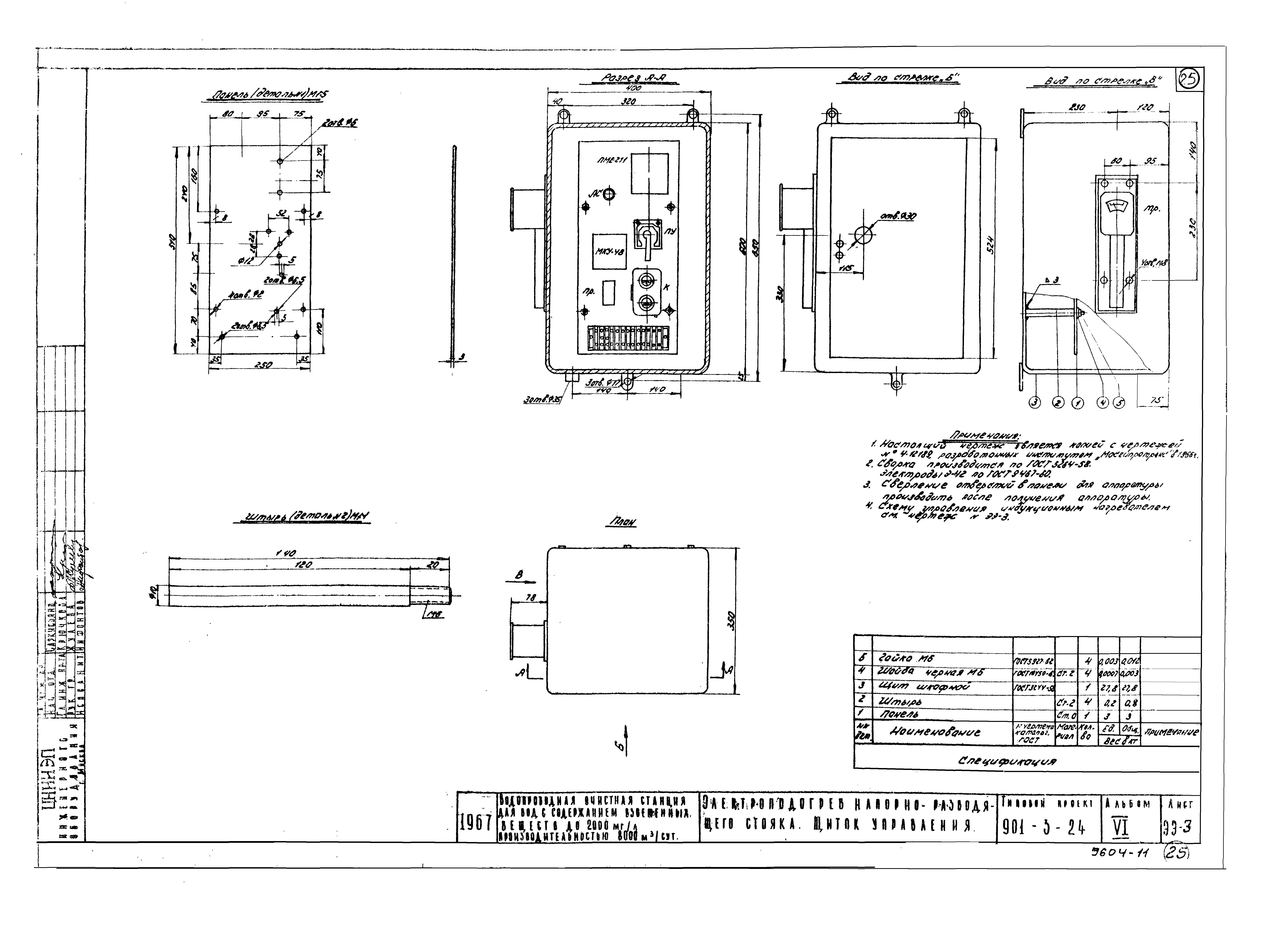
| Оглавление: | Титульный лист Состав проекта Содержание альбома Архитектурно-строительная часть Пояснительная записка Заглавный лист, выборка материалов на проект Фасады. Архитектурные детали Планы, разрезы, узел 1 Узлы 2 - 8 Детали утепления Стальной бак V = 200 куб. м Лестницы Л-1, Л-2 Лестница Л-3. Люк Оголовок ствола, перемычка БП-1, закладные детали ЗД-1, ЗД-2 Опалубка фундамента Ф-1 и плиты П-1 Армирование фундамента Ф-1 и плиты П-1 Технологическая часть Технологическое оборудование башни. Разрез 1-1. План по А-А и по Б-Б. Монтажная схема. Спецификация трубопроводов Автоматика Элементная схема обогрева электродов. Установка датчиков ЭРСУ-2 и подогревных сопротивлений Электротехническая часть Пояснительная записка Электрическое освещение, индукционный подогрев стояка и молниезащита Электроподогрев напорно-разводящего стояка. Схема управления индукционными нагревателями Электроподогрев напорно-разводящего стояка. Индукционный нагреватель и детали Электроподогрев напорно-разводящего стояка. Щиток управления |
| Разработан: | ЦНИИЭП инженерного оборудования |
| Утверждён: | 20.12.1967 ЦНИИЭП инженерного оборудования (TsNIIEP of Building Service Equipment 121) |
























