Скачать 2538 Типизированные решения по строповке пролетных строений с ездой понизу длиной 33-66 м стреловыми железнодорожными кранамиДата актуализации: 01.01.2021
|
| Обозначение: | 2538 |
| Обозначение англ: | 2538 |
| Статус: | не действует |
| Название рус.: | Типизированные решения по строповке пролетных строений с ездой понизу длиной 33-66 м стреловыми железнодорожными кранами |
| Дата добавления в базу: | 01.09.2013 |
| Дата актуализации: | 01.01.2021 |
| Область применения: | В данном проекте разработаны конструкции строповочных приспособлений, как инвентарные мостостроительных организаций применительно к типовым пролетным строениям как новым, так и распространенным на сети железных дорог старых расчетных норм 1884, 1896, 1907 гг. |
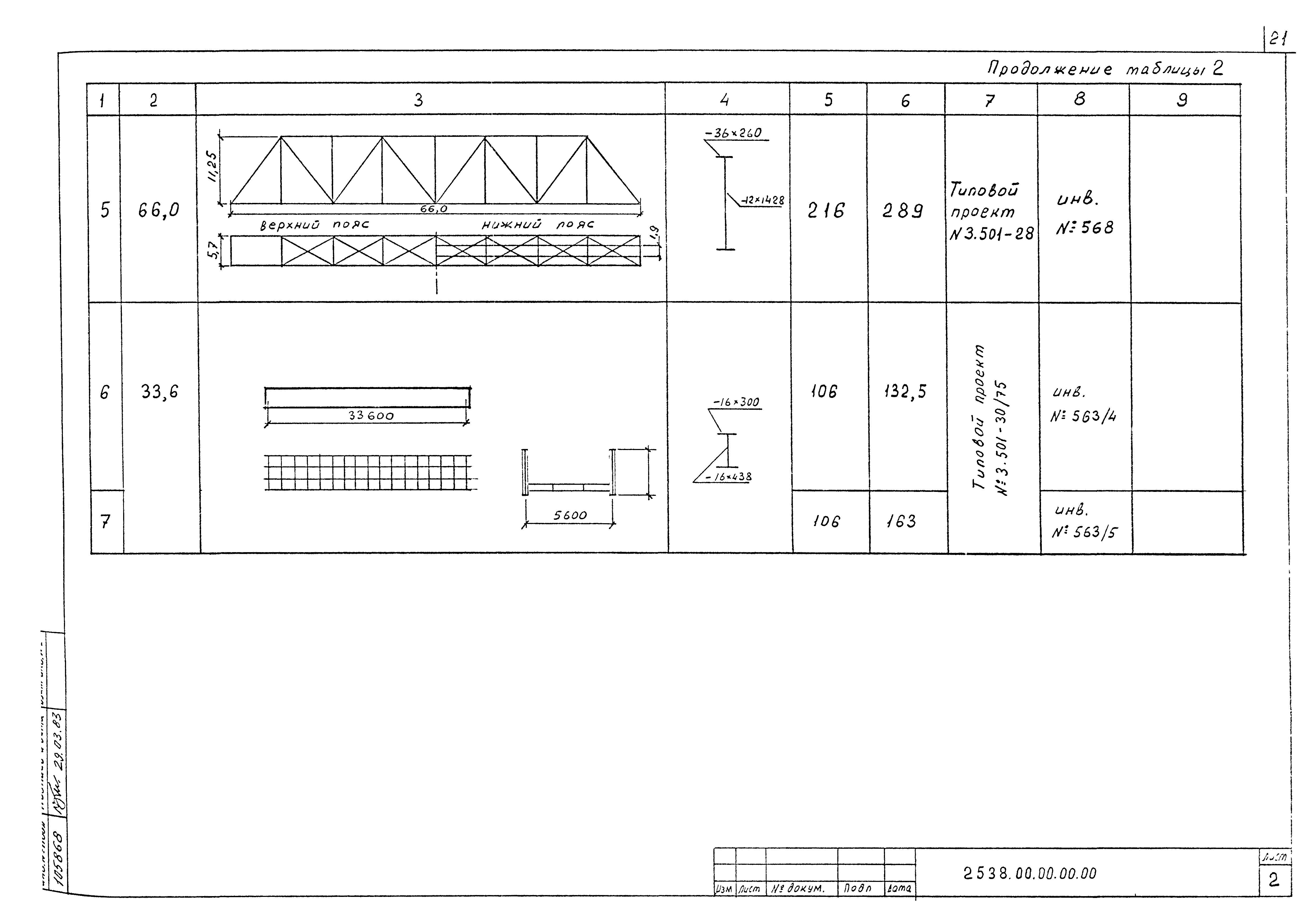
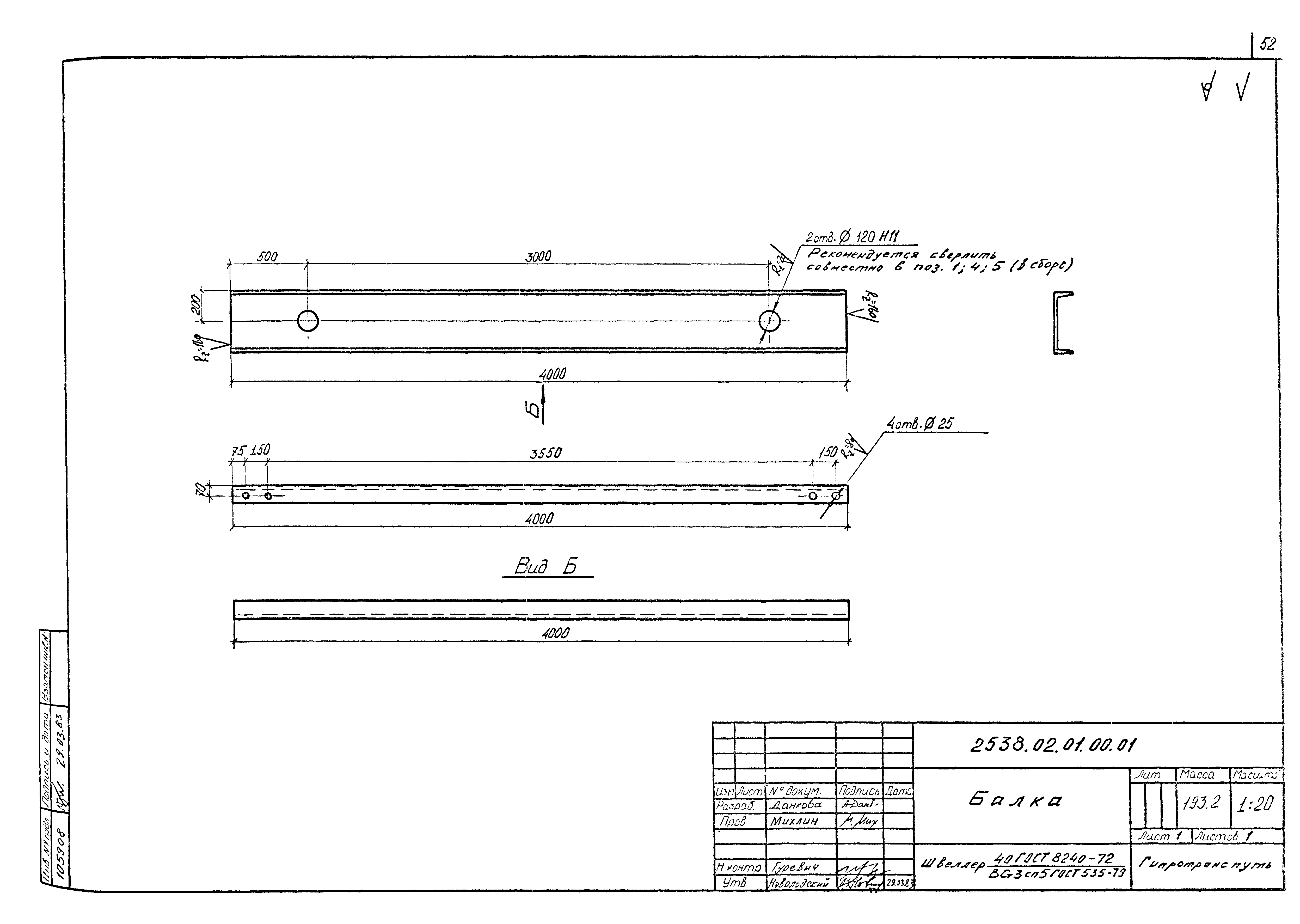
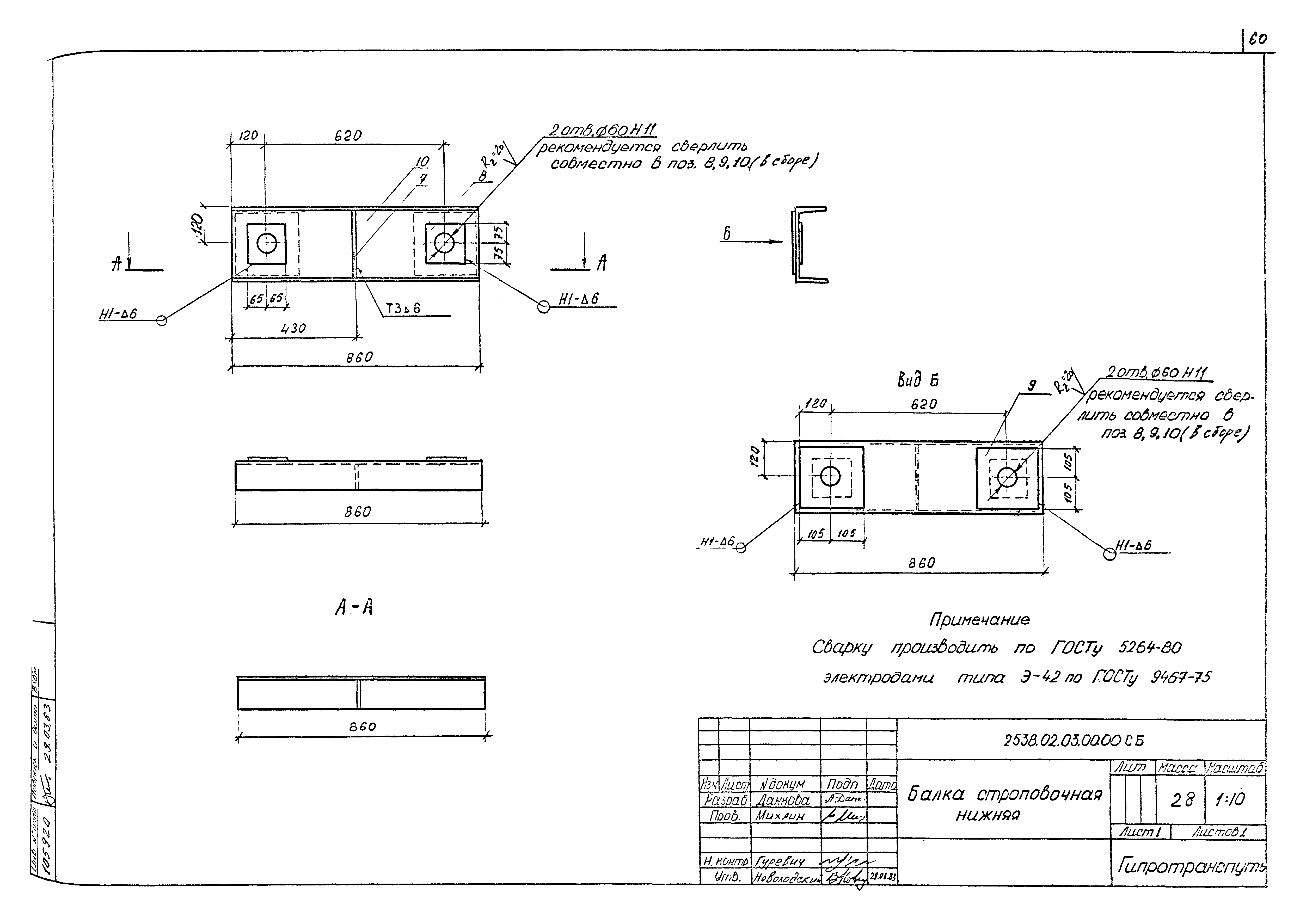
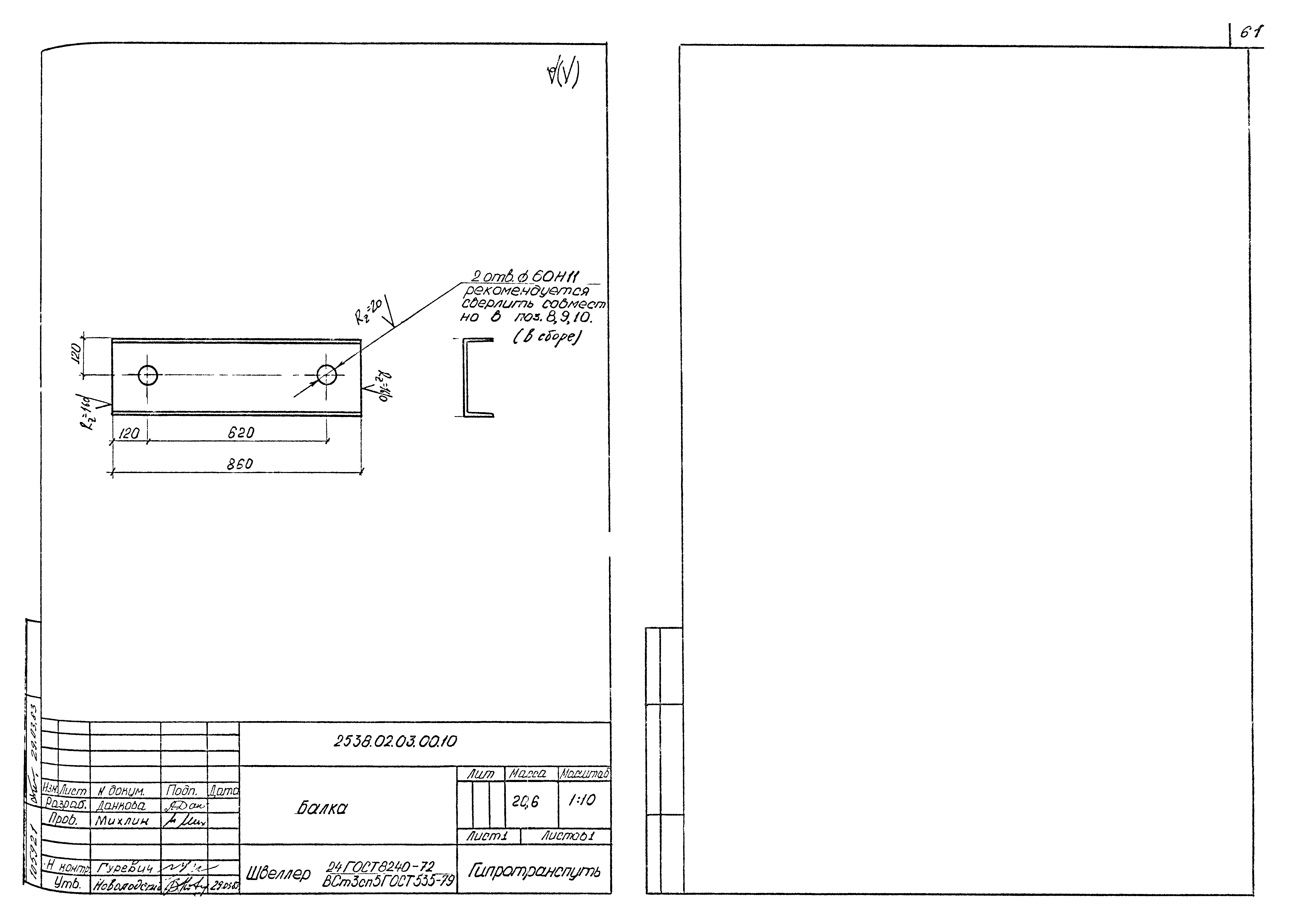
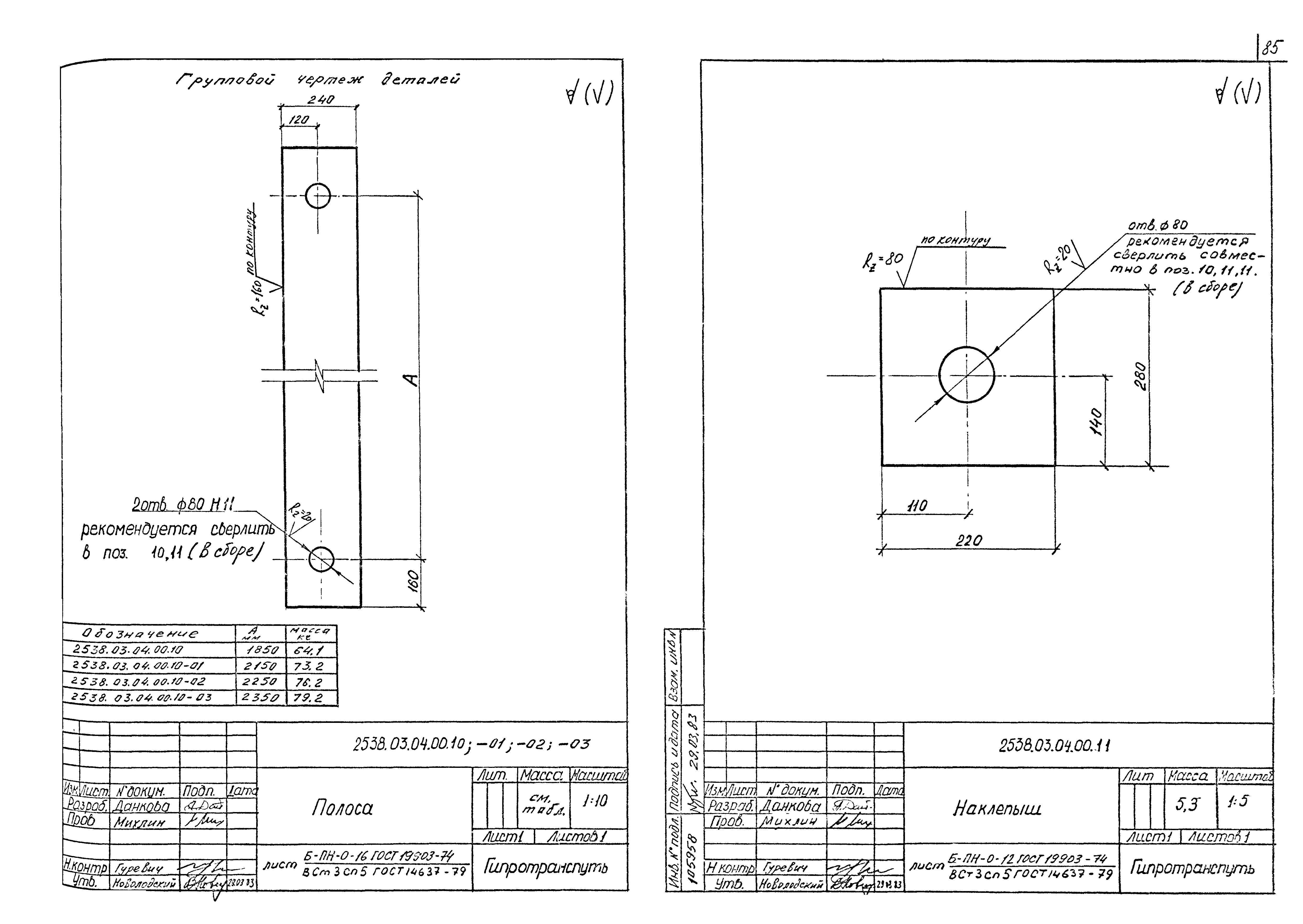
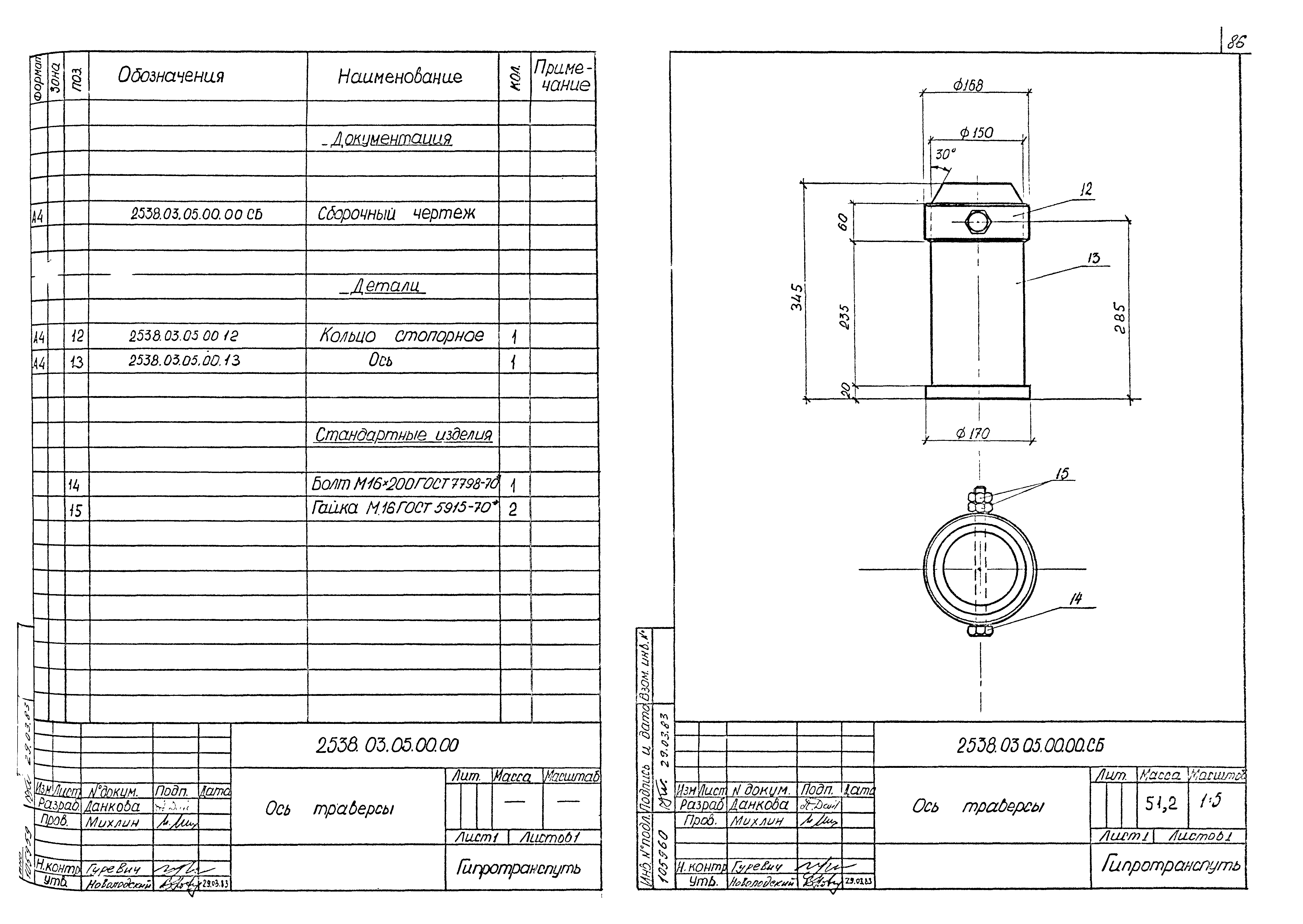
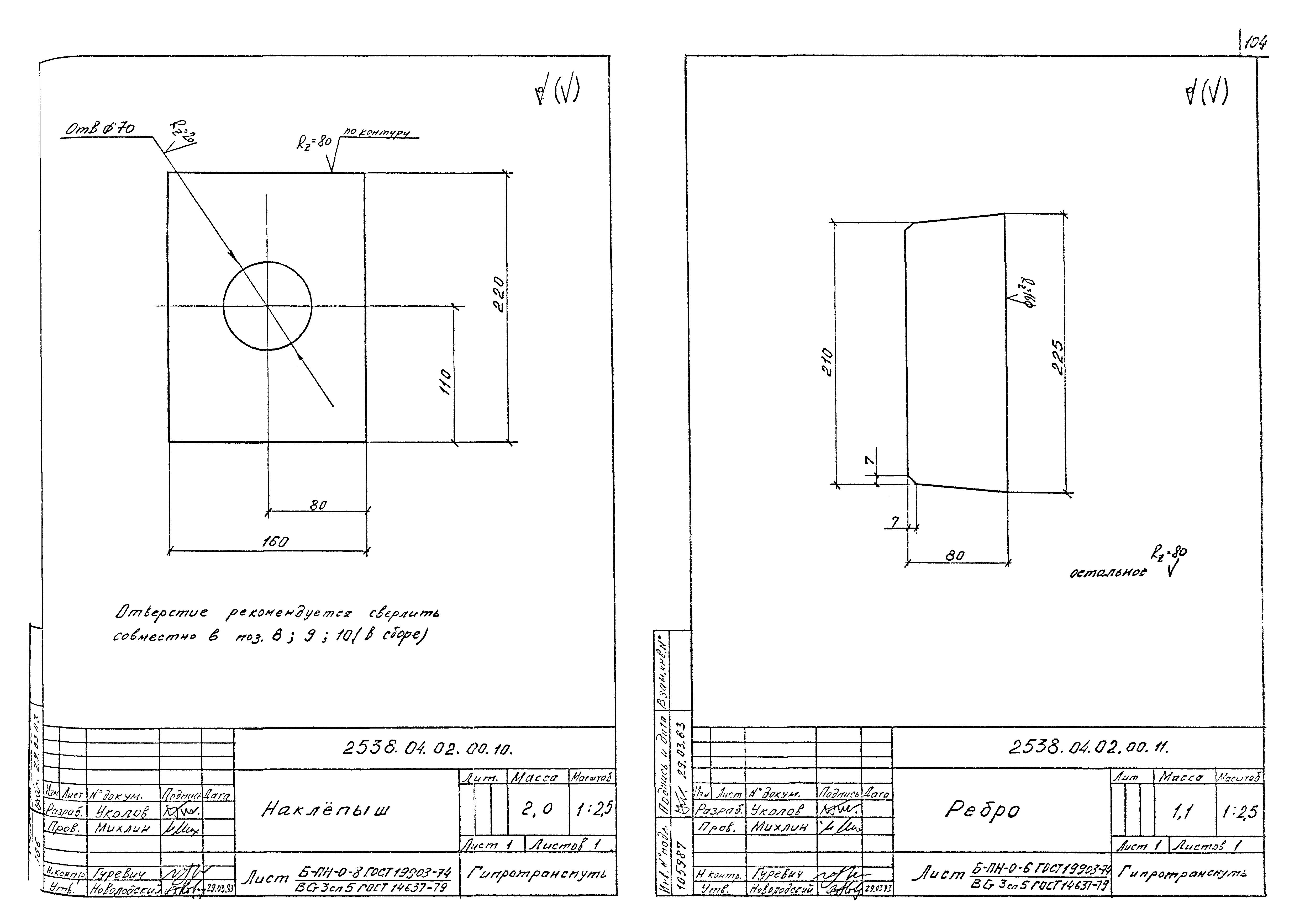
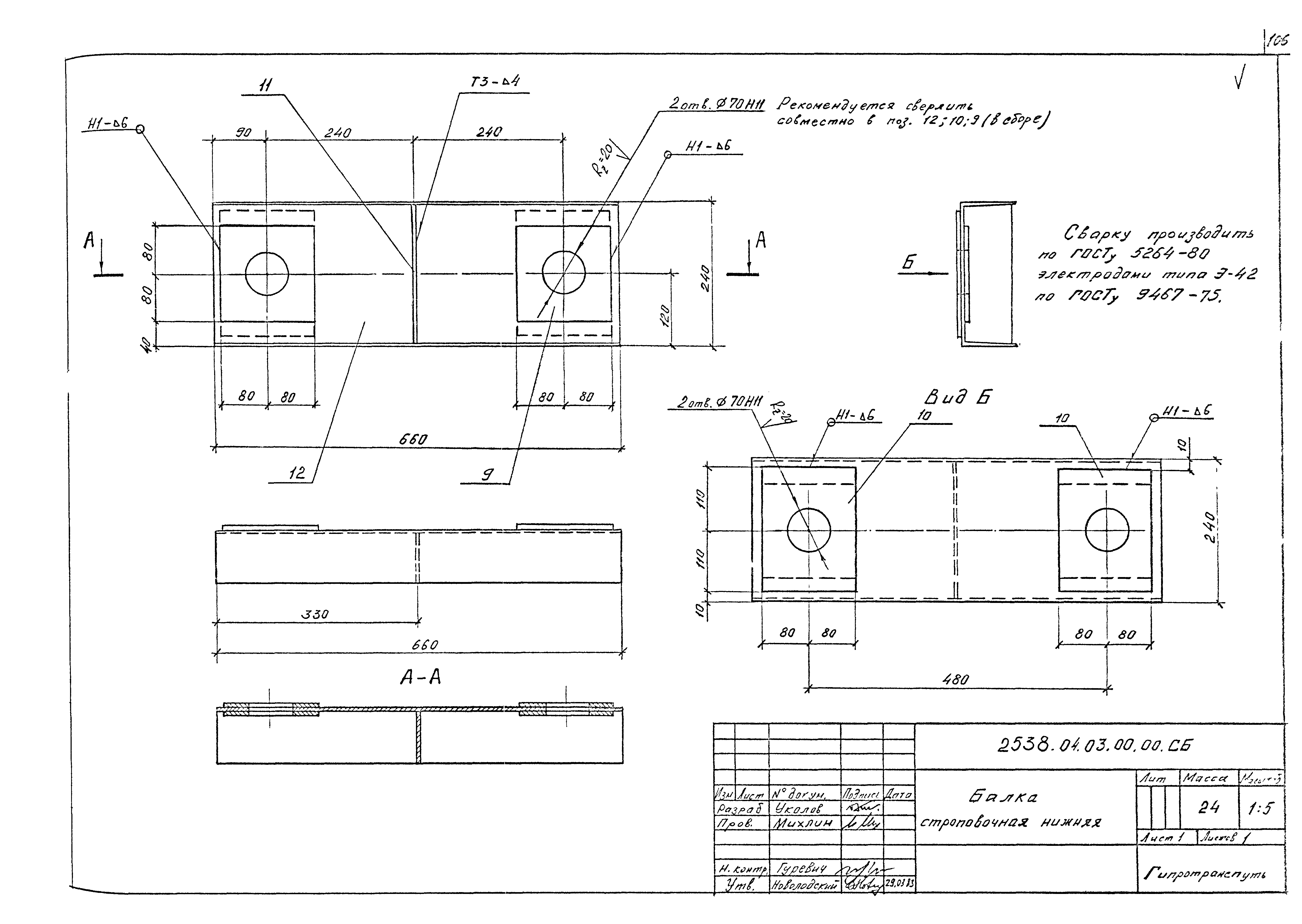
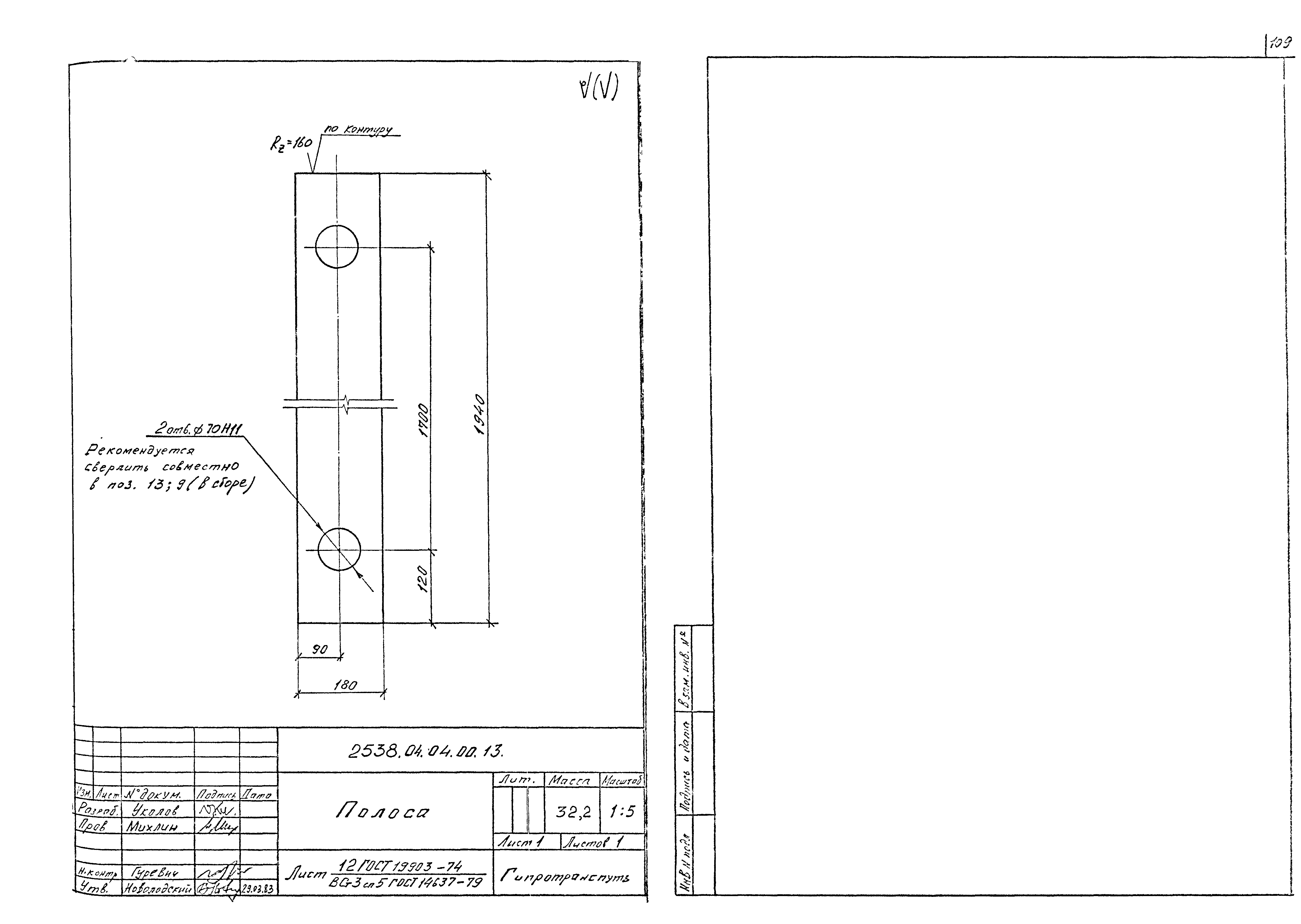
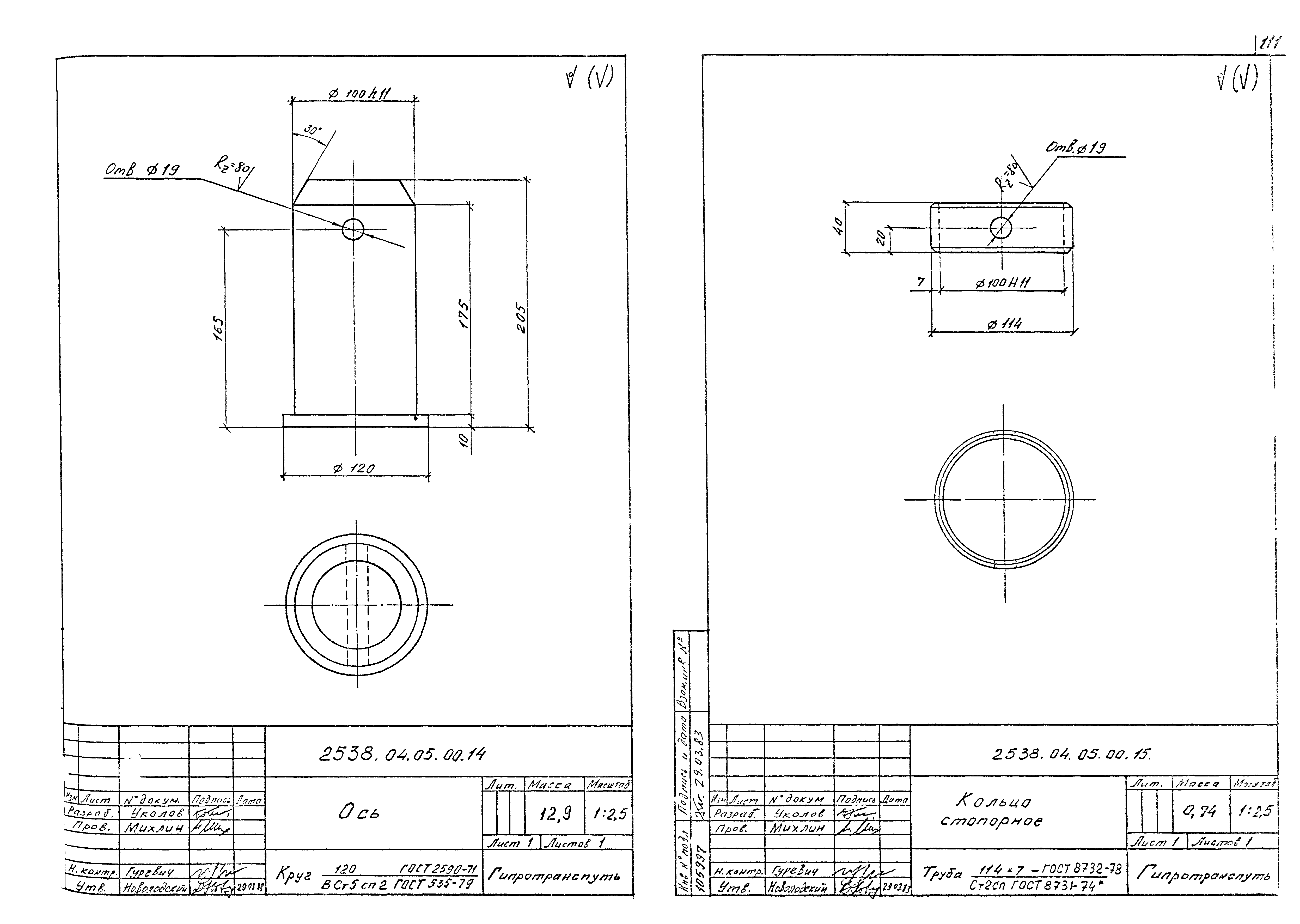
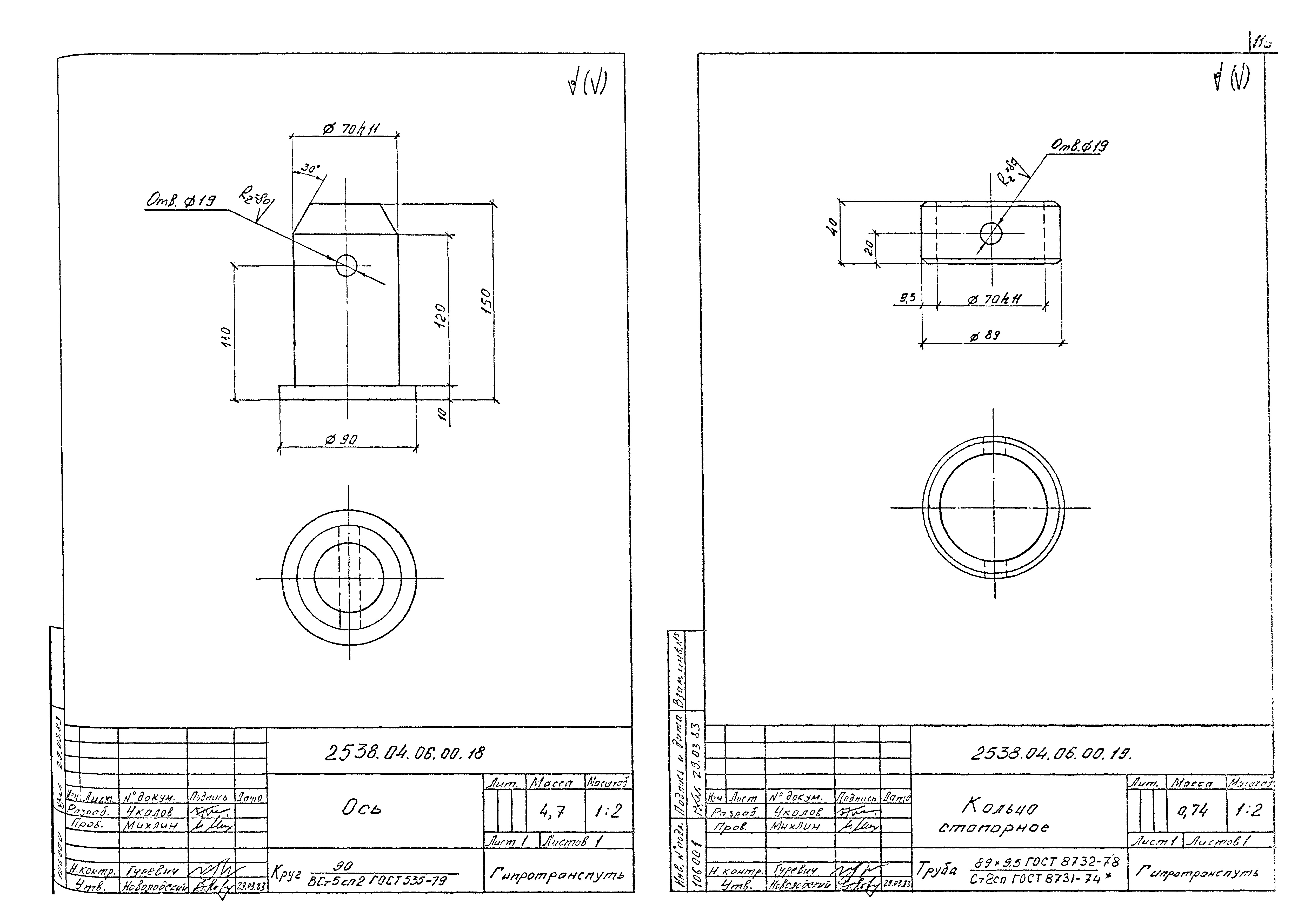
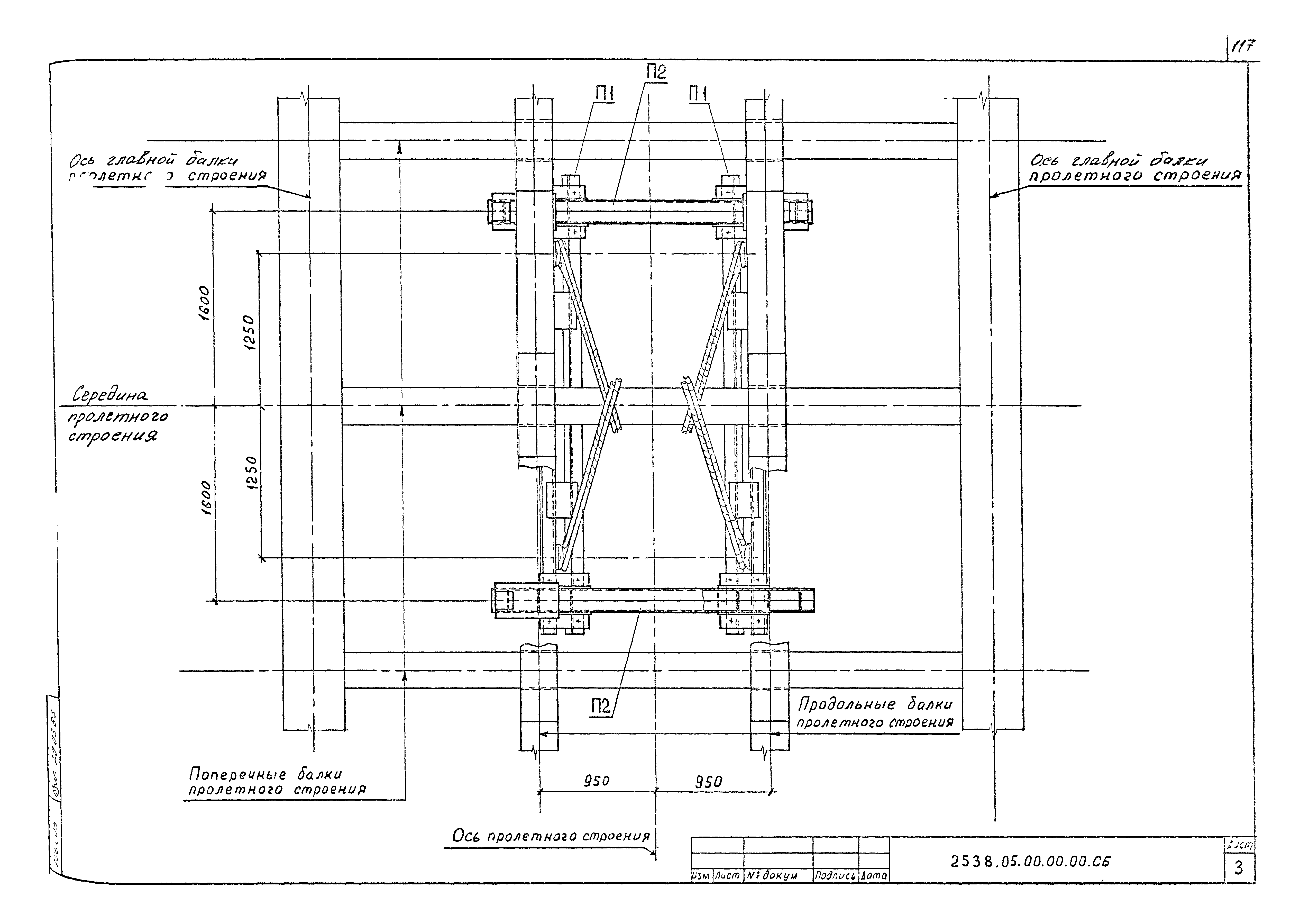
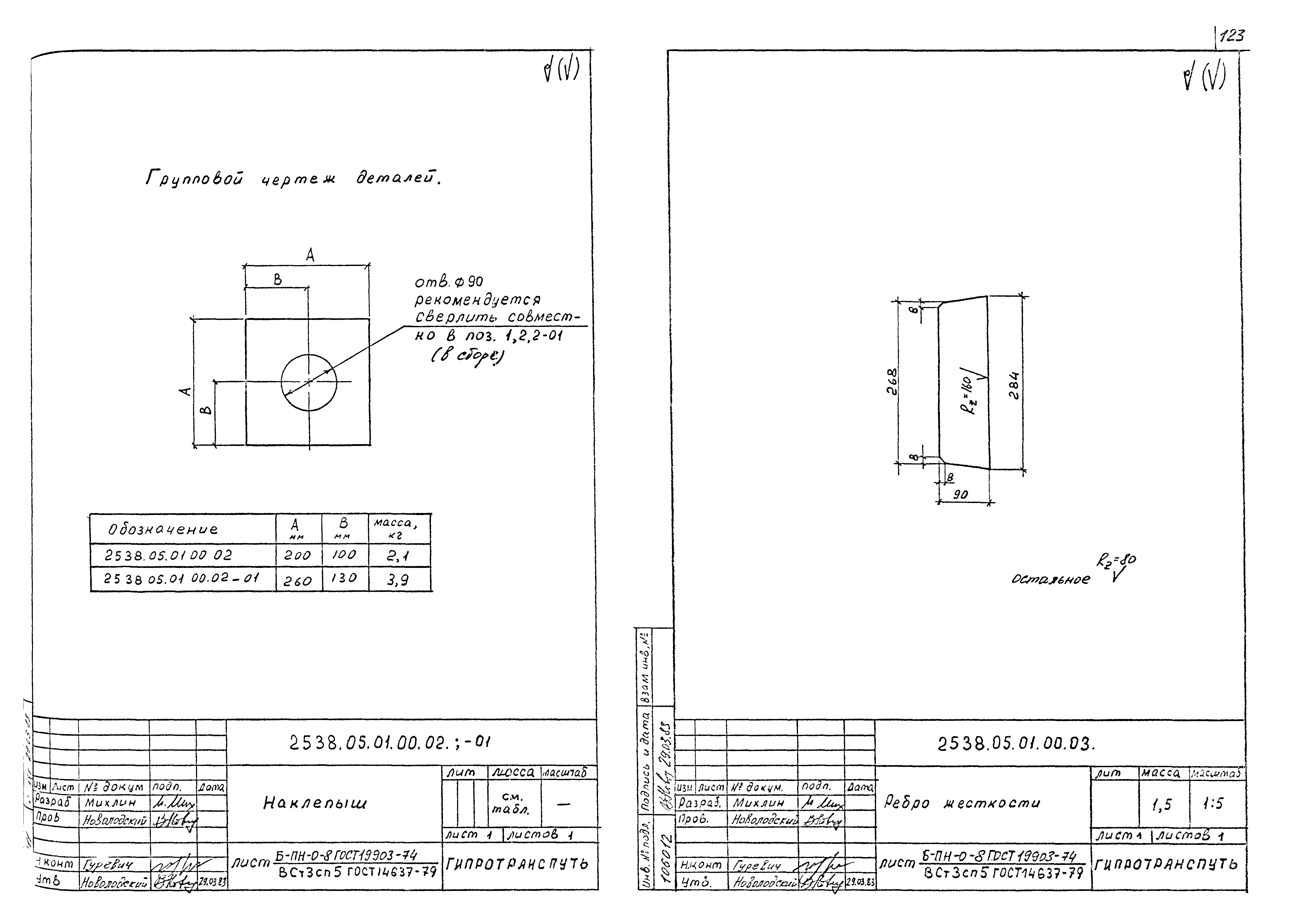
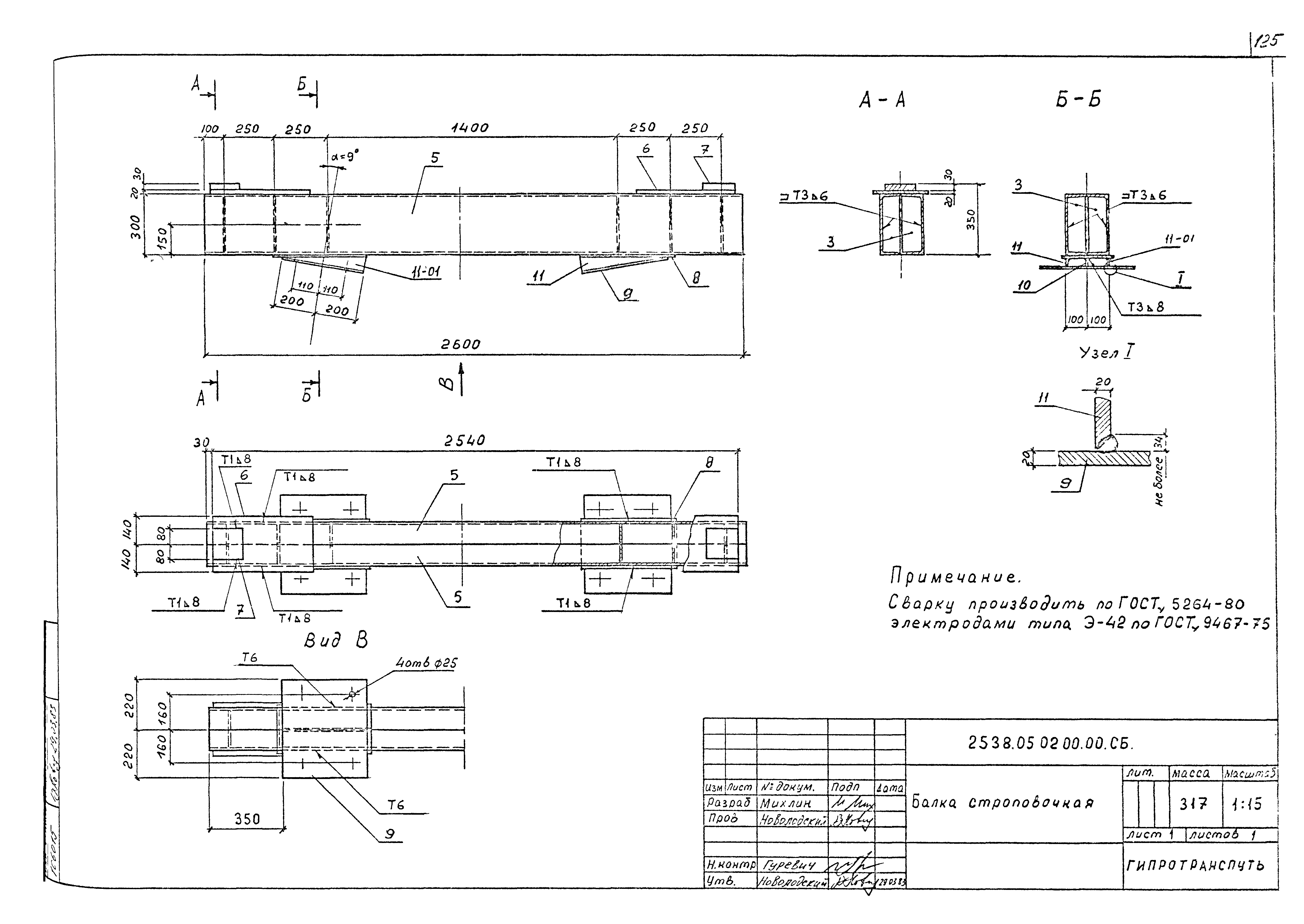
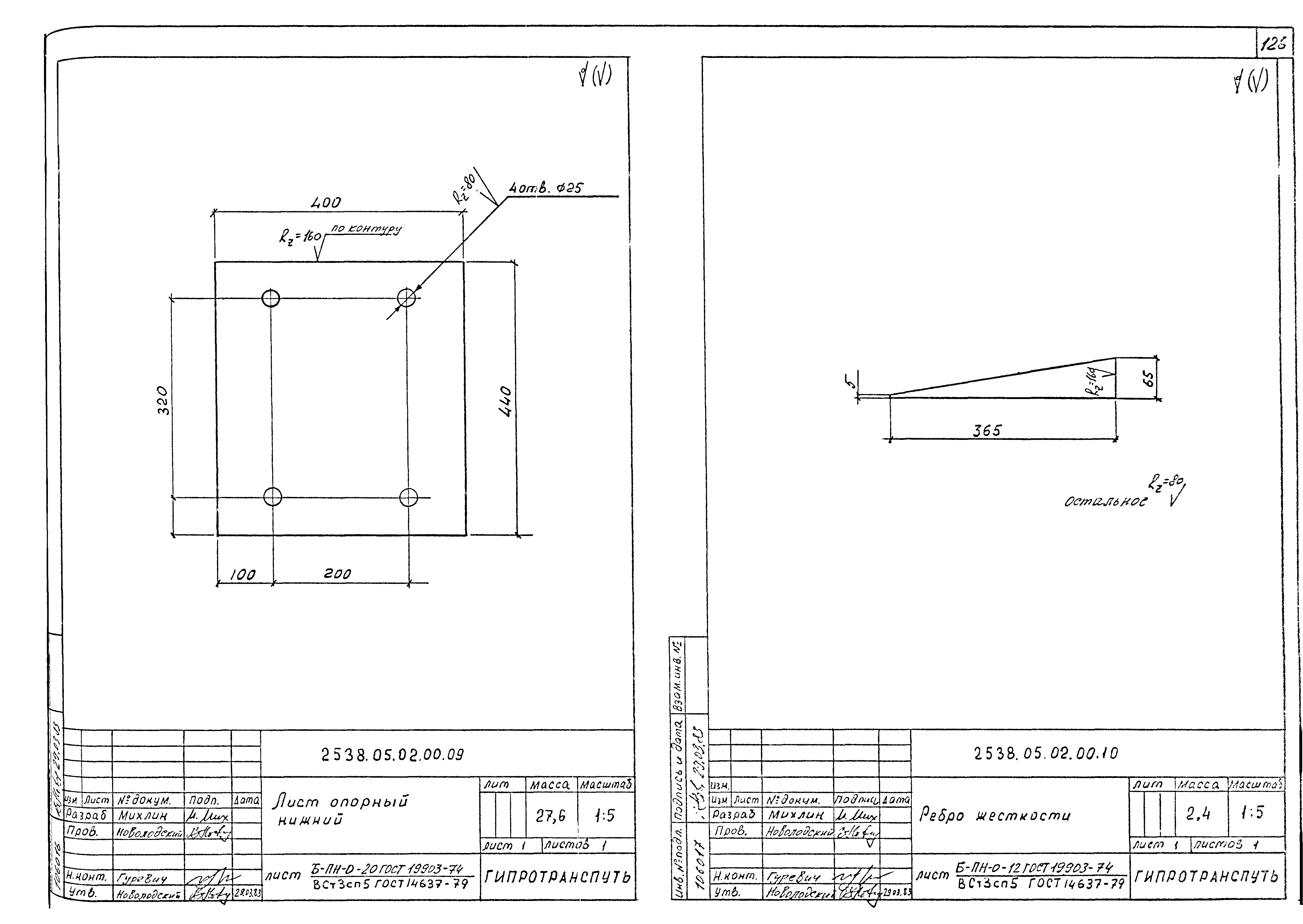
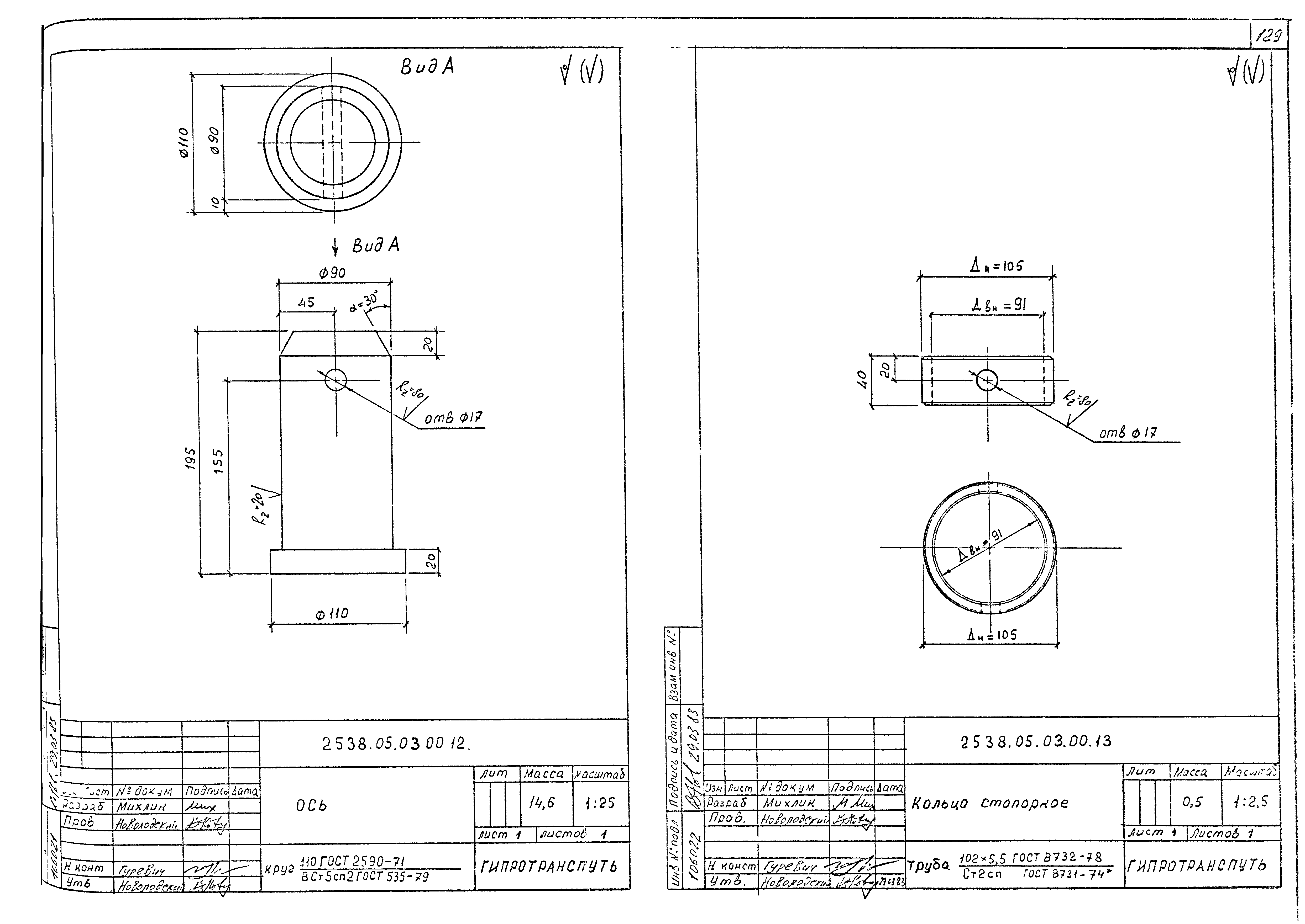
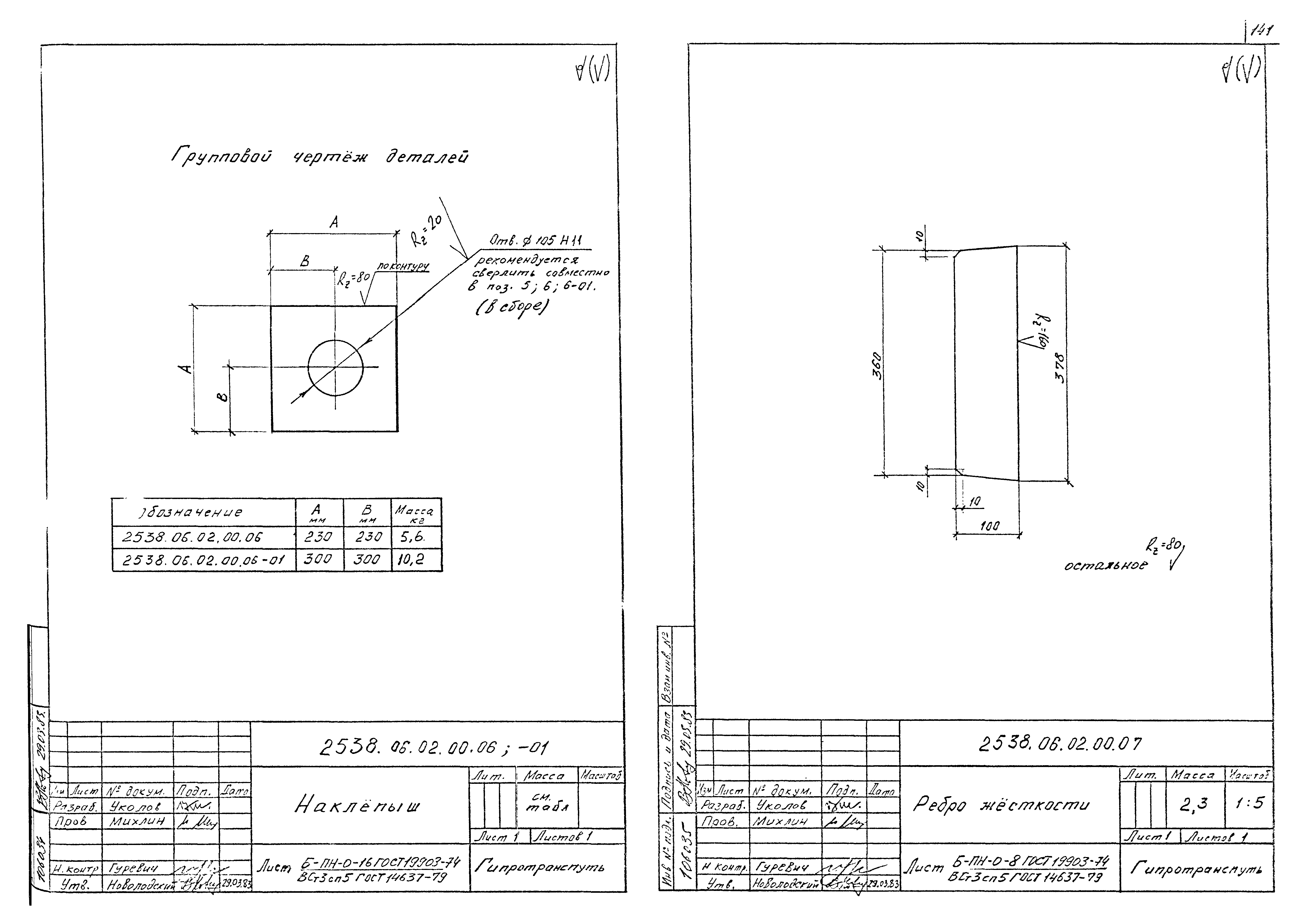
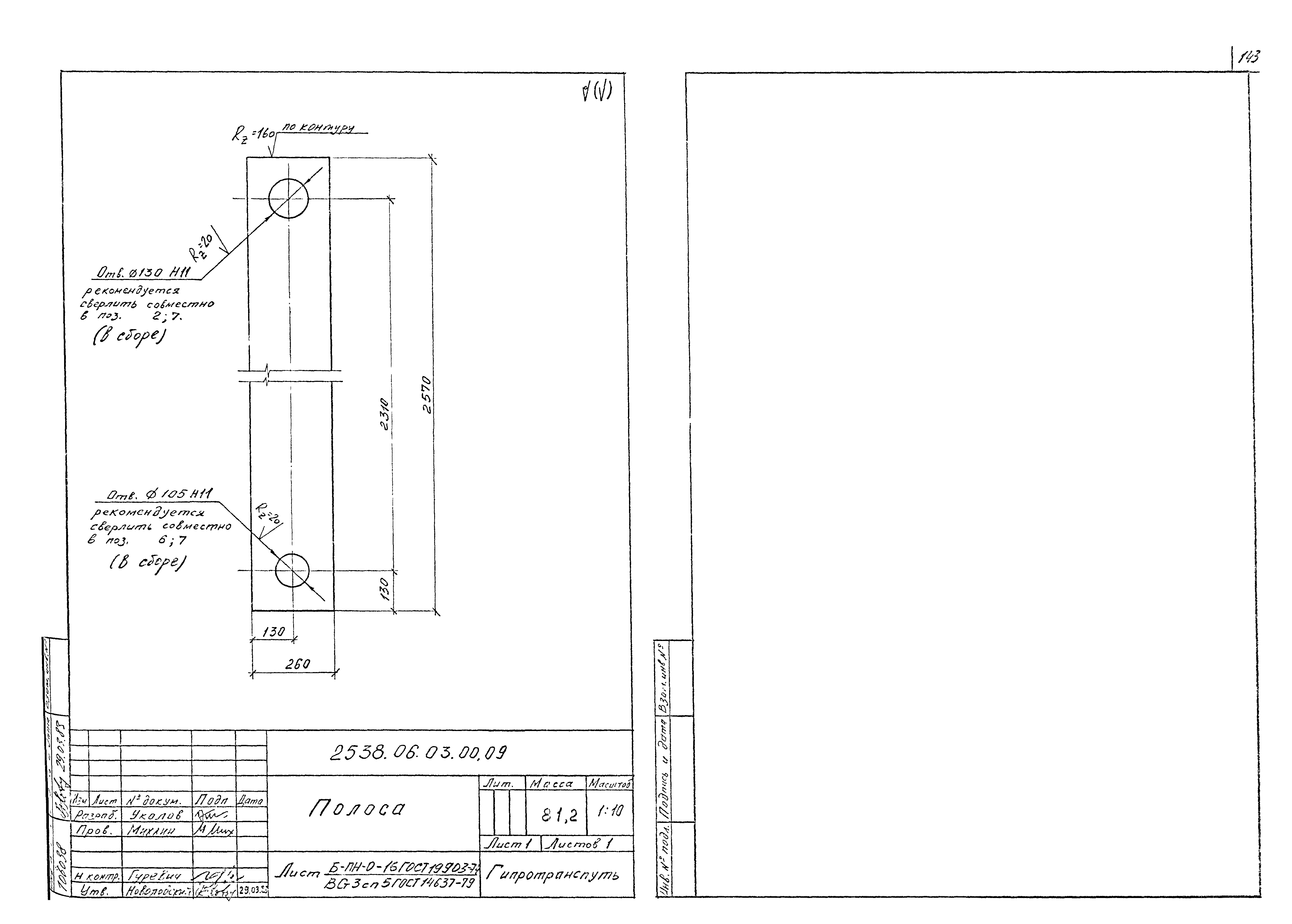
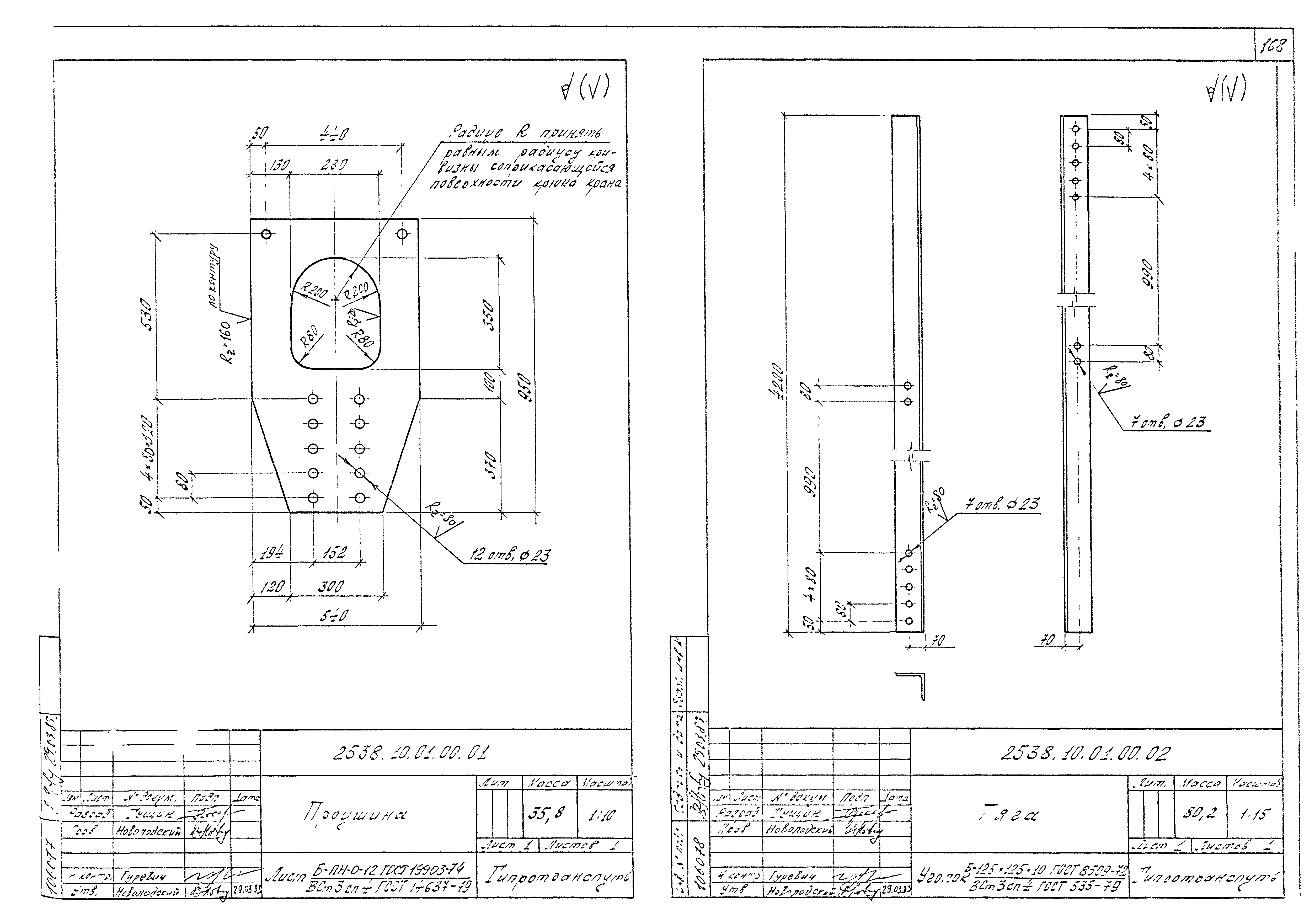
| Оглавление: | Состав проекта Пояснительная записка Технические условия Металлические пролетные строения характерных типов о ездой понизу 1884, 1896, 1907гг норм проектирования. Основные характеристики. Таблица 1. Металлические пролетные строения с ездой понизу современных норм проектирования. Основные характеристики. Таблица 2 Основные характеристики комплектов строповочных приспособления. Таблица 3 Комплект строповочных приспособлений C-1. г/п 50т. Комплект строповочных приспособление С-2 г/п 100т. Комплект строповочных приспособления С-3 г/п 125т Комплект строповочных приспособлений С-4 г/п 65т. Комплект строповочных приспособления С-5 г/п 100 т. Комплект строповочных приспособленка С-6 г/п 100 т. Усиление поперечной балки пролетного строения. Пример 1 Усиление поперечной балки пролетного строения. Пример 2. Строп жесткий. Технологические схемы подъемки пролетных строений стреловыми железнодорожными кранами с использованием комплектов строповочных приспособлений Приложение. Задание на проектирование |
| Разработан: | Гипротранспуть |
| Утверждён: | 16.07.1983 Главное управление капитального строительства (ЦУКС Мост-1) |














































































































































































