Скачать Типовой проект 402-22-69.86 Альбом I. Пояснительная записка, чертежи, спецификация оборудованияДата актуализации: 01.01.2021 Типовой проект 402-22-69.86
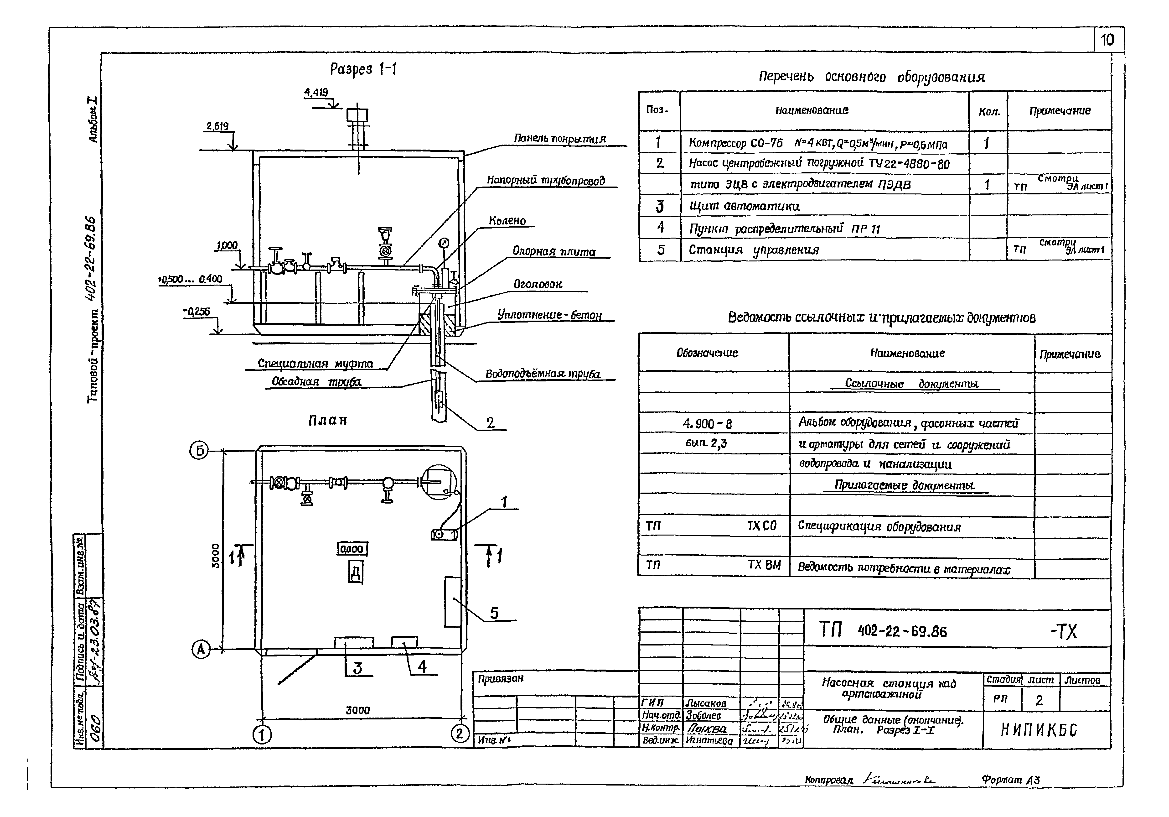
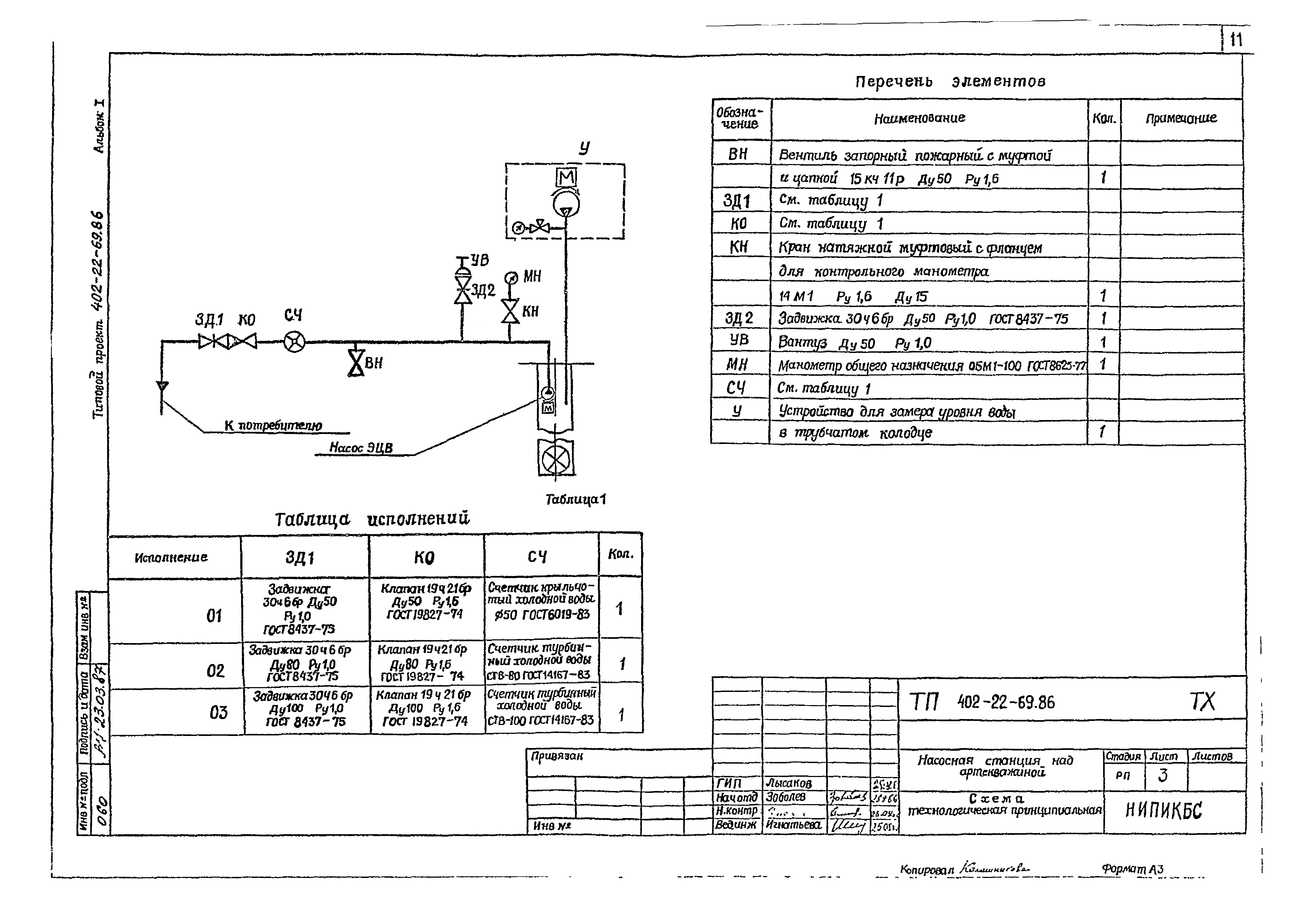
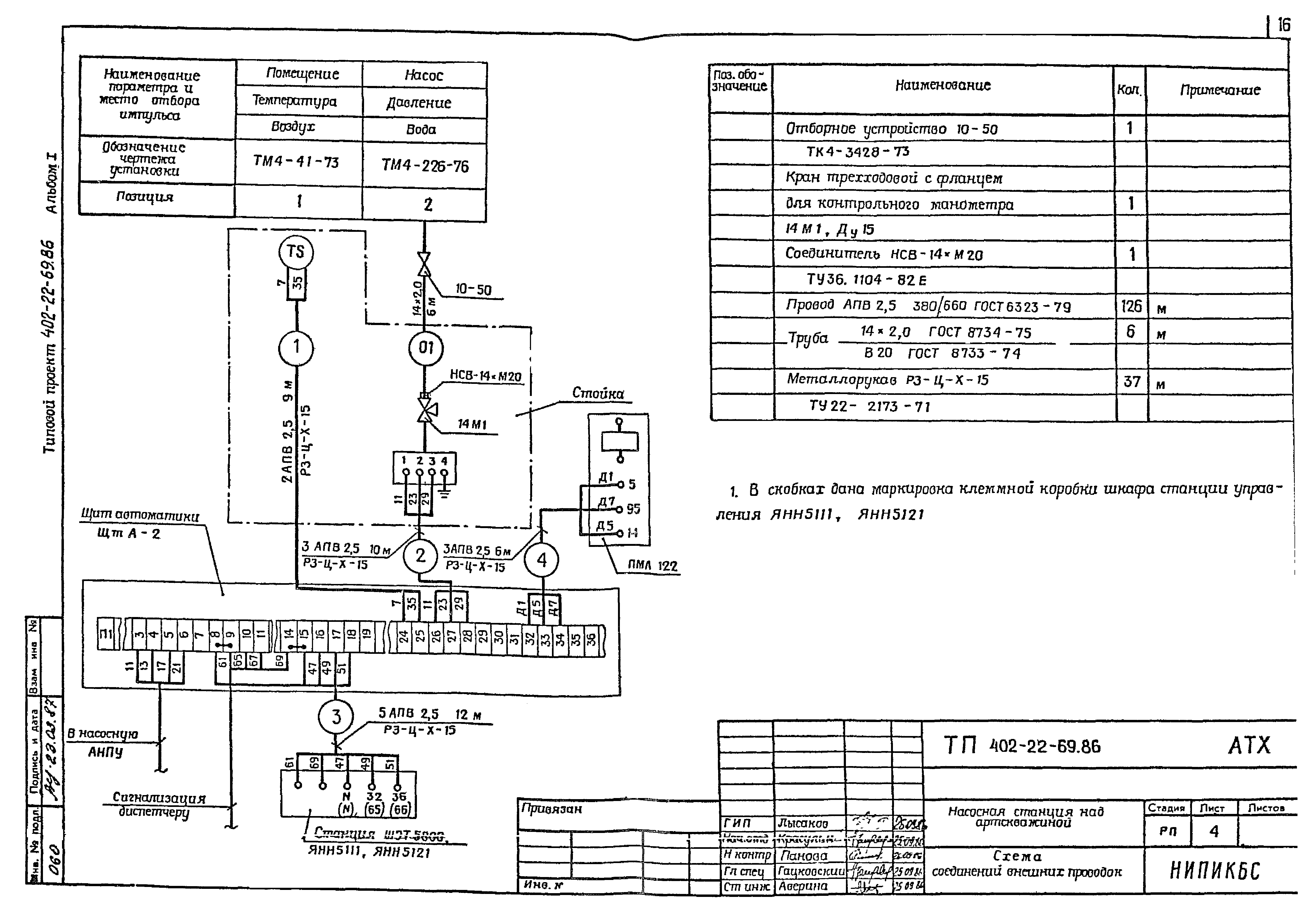
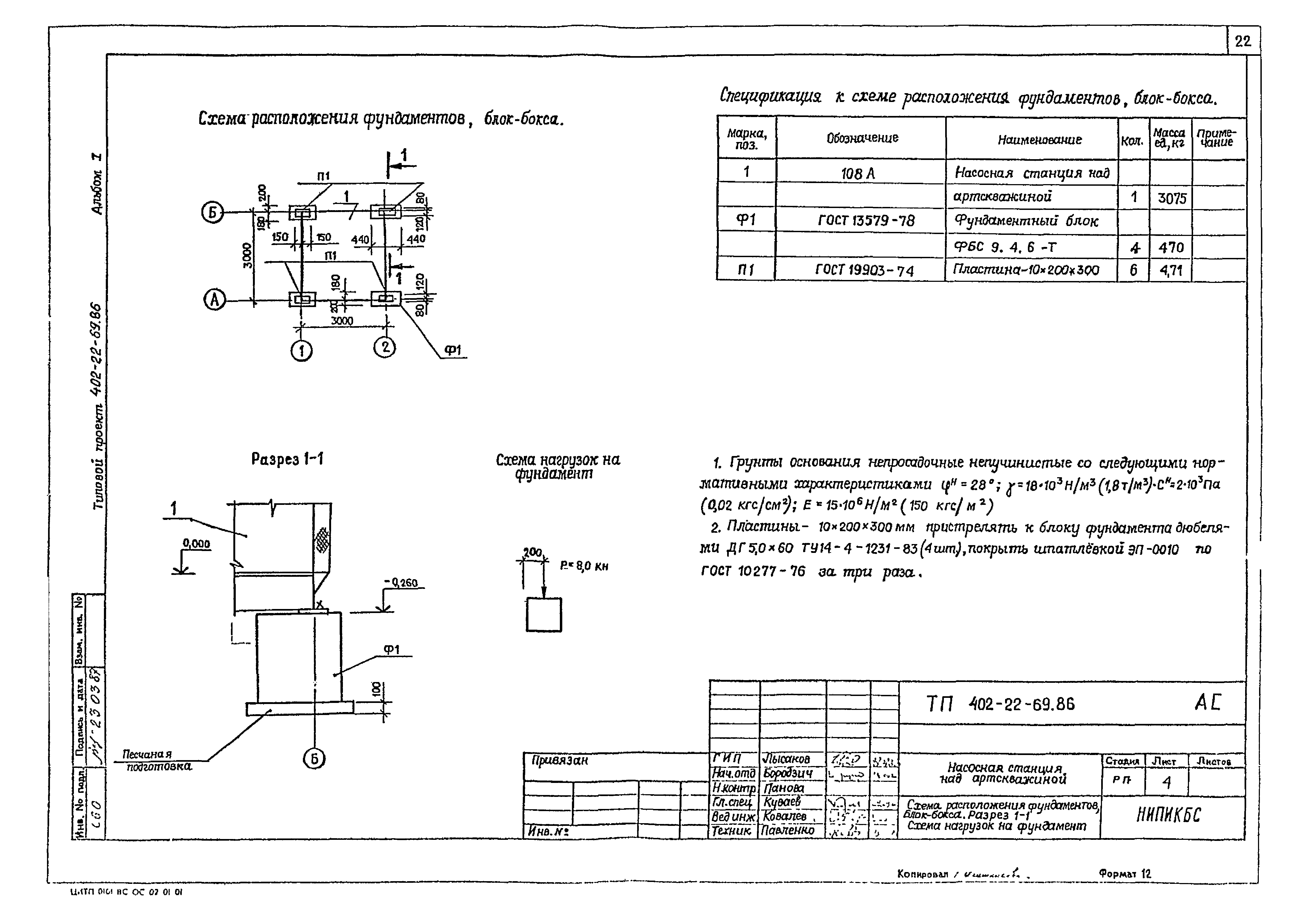
Альбом I. Пояснительная записка, чертежи, спецификация оборудования| Обозначение: | Типовой проект 402-22-69.86 | | Обозначение англ: | 402-22-69.86 | | Статус: | не определен законодательством | | Название рус.: | Альбом I. Пояснительная записка, чертежи, спецификация оборудования | | Дата добавления в базу: | 01.09.2013 | | Дата актуализации: | 01.01.2021 | | Дата введения: | 01.03.1987 | | Дата окончания срока действия: | 30.06.2003 | | Область применения: | Насосная станция над артскважиной предназначена для использования в системах водоснабжения компрессорных станций магистральных газопроводов и других объектов | | Разработан: | НИПИ КБС Миннефтегазстроя
| | Утверждён: | 23.12.1985 Госстрой СССР (Государственный комитет Совета Министров СССР по делам строительства) (USSR Gosstroy 255)
| | Заменяет собой: | |
                                  
|