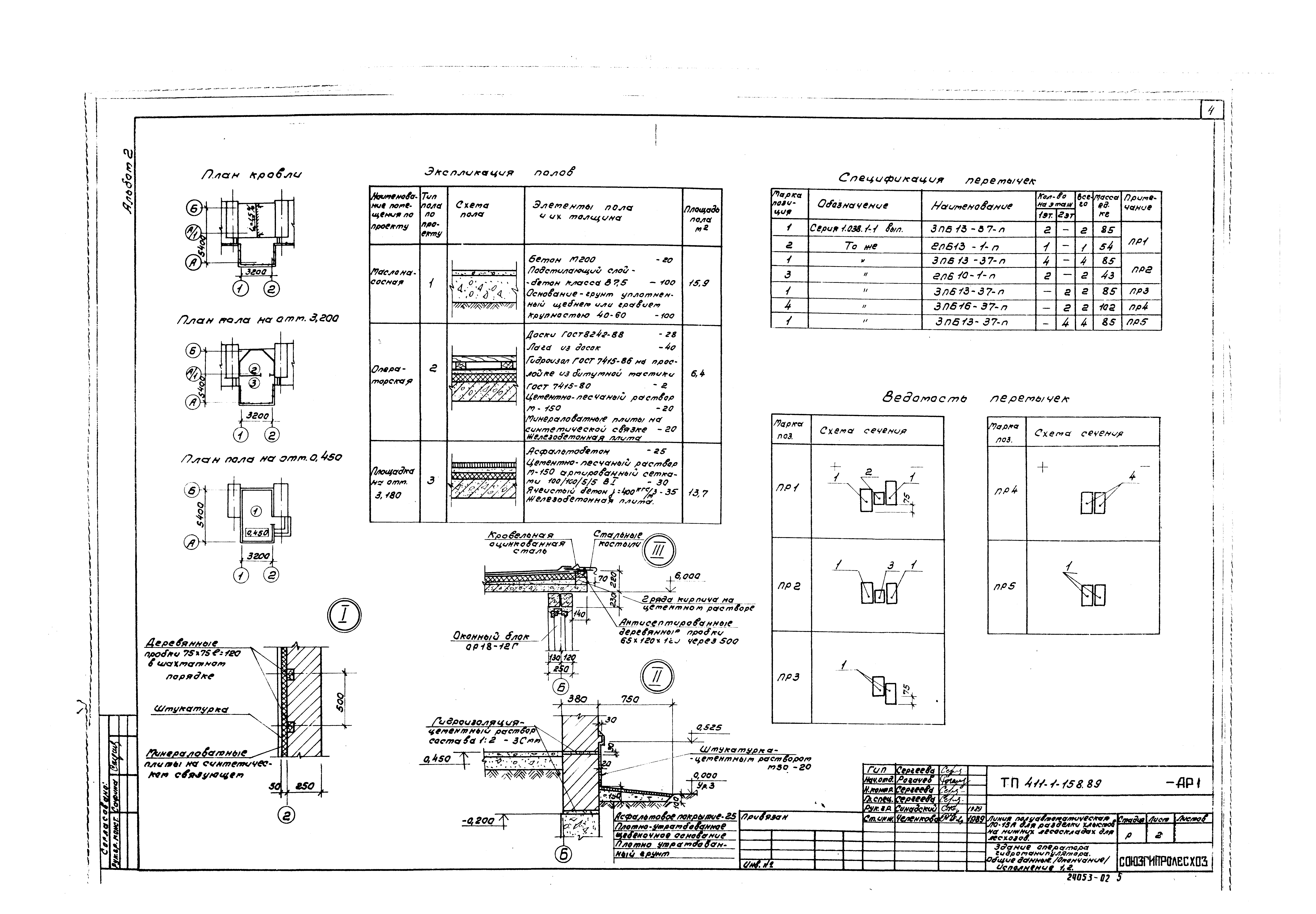
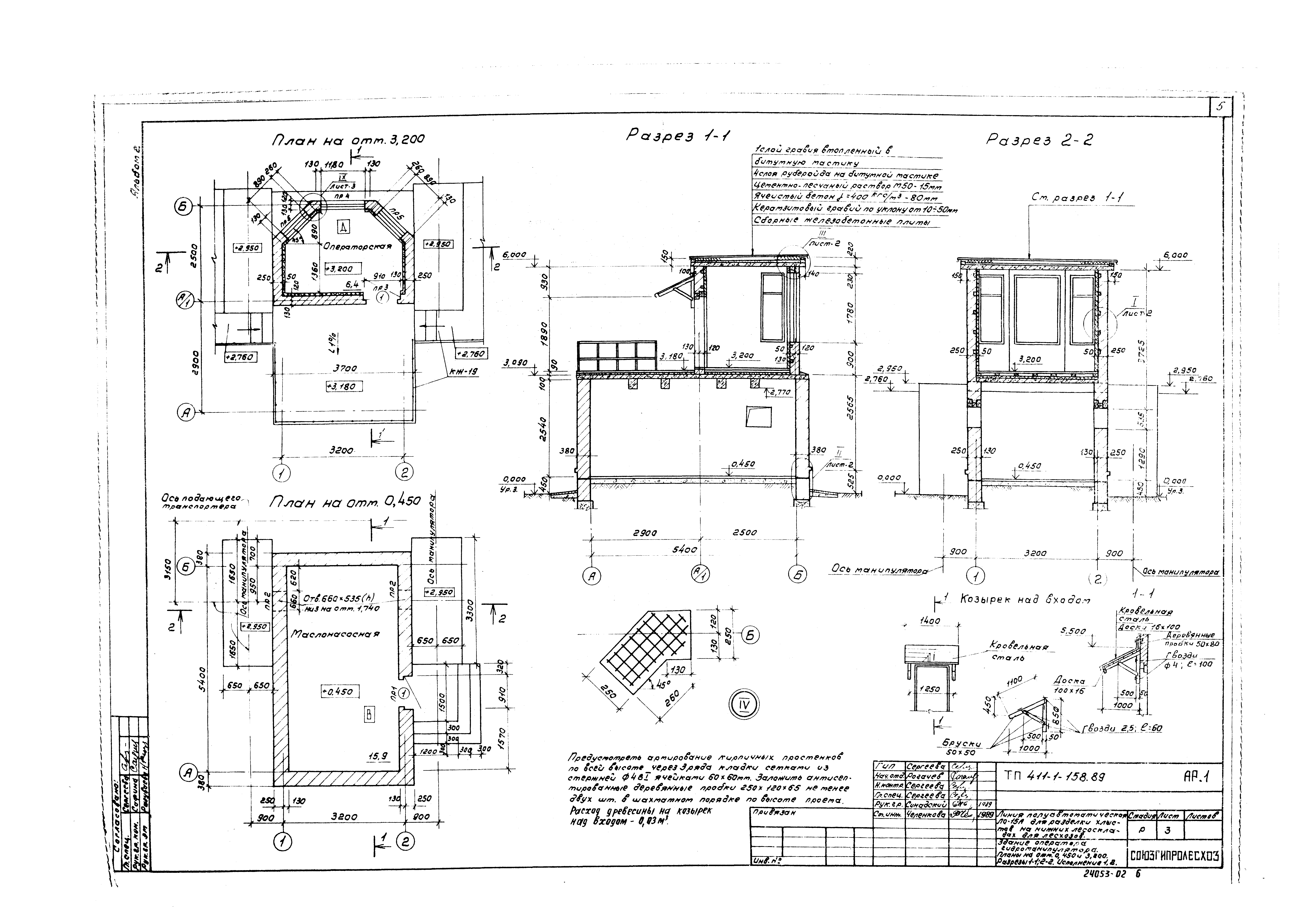
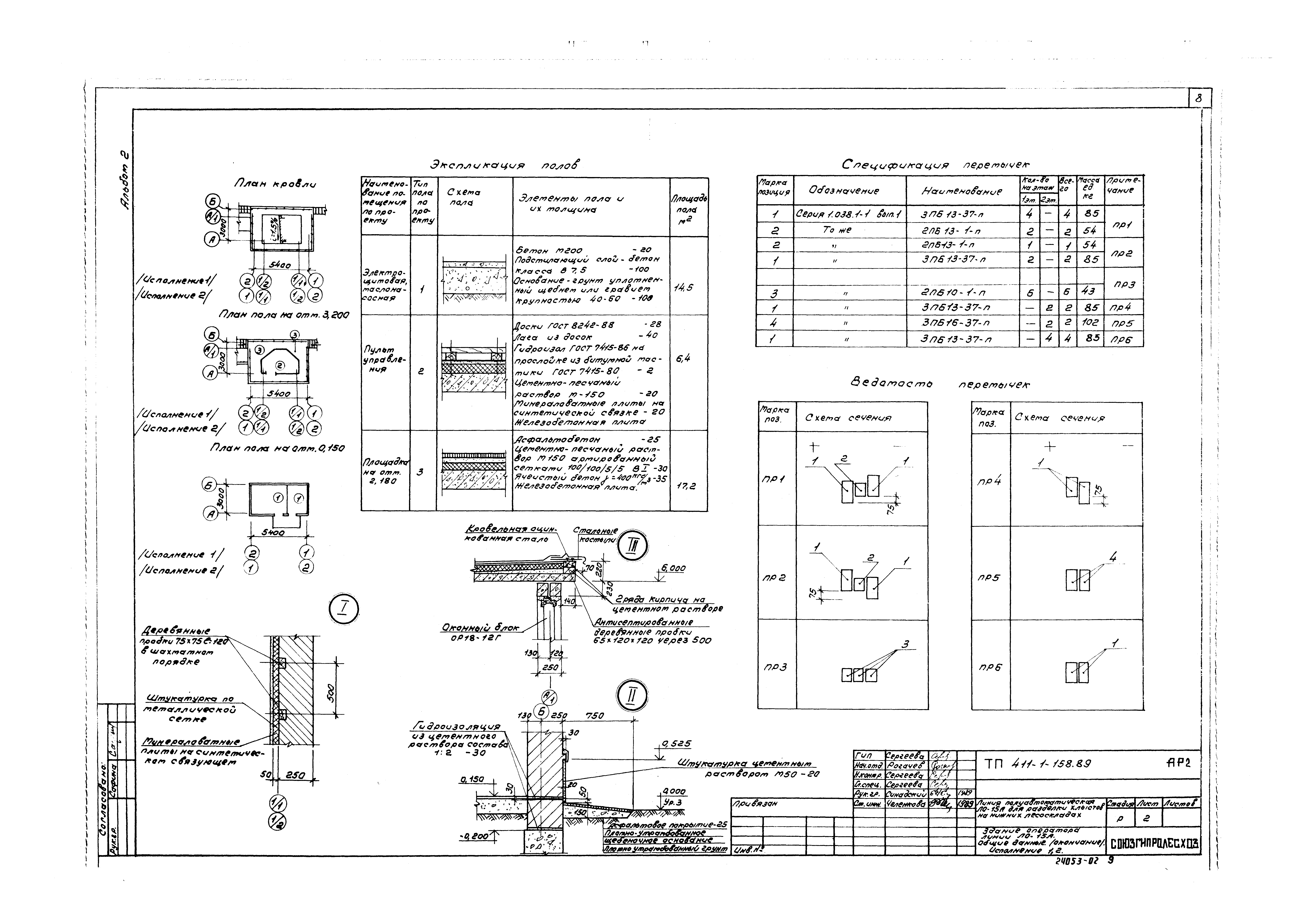
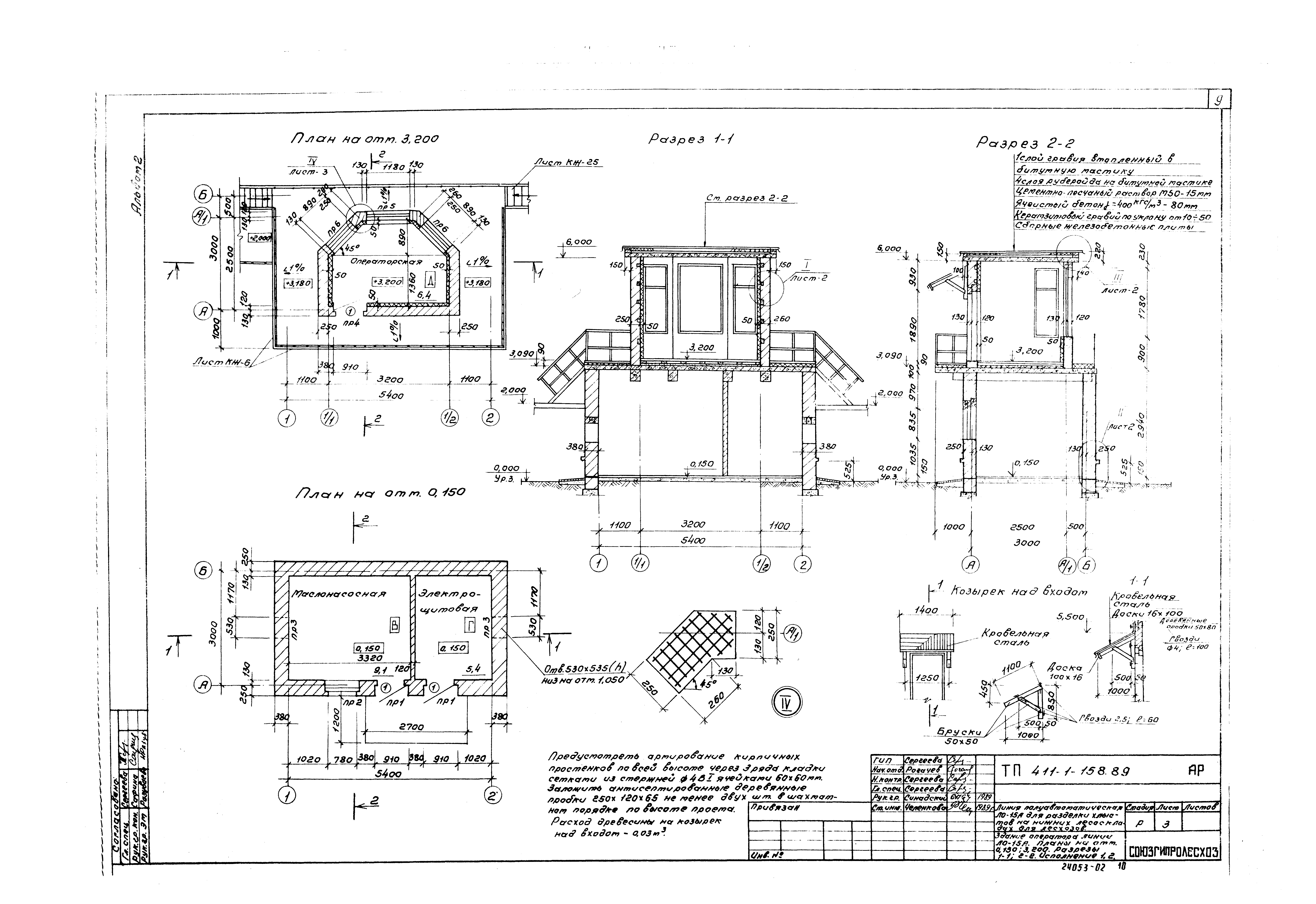
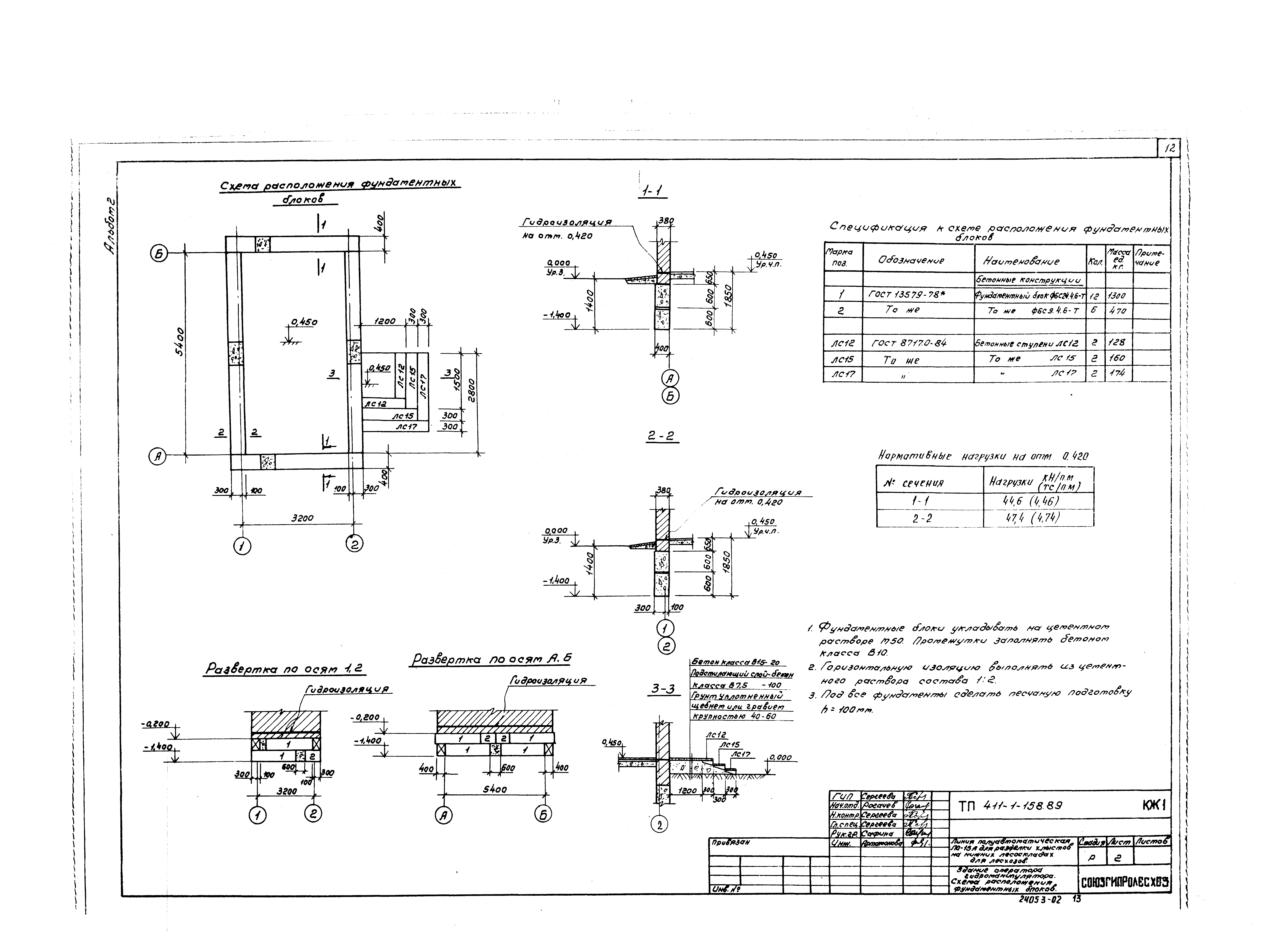
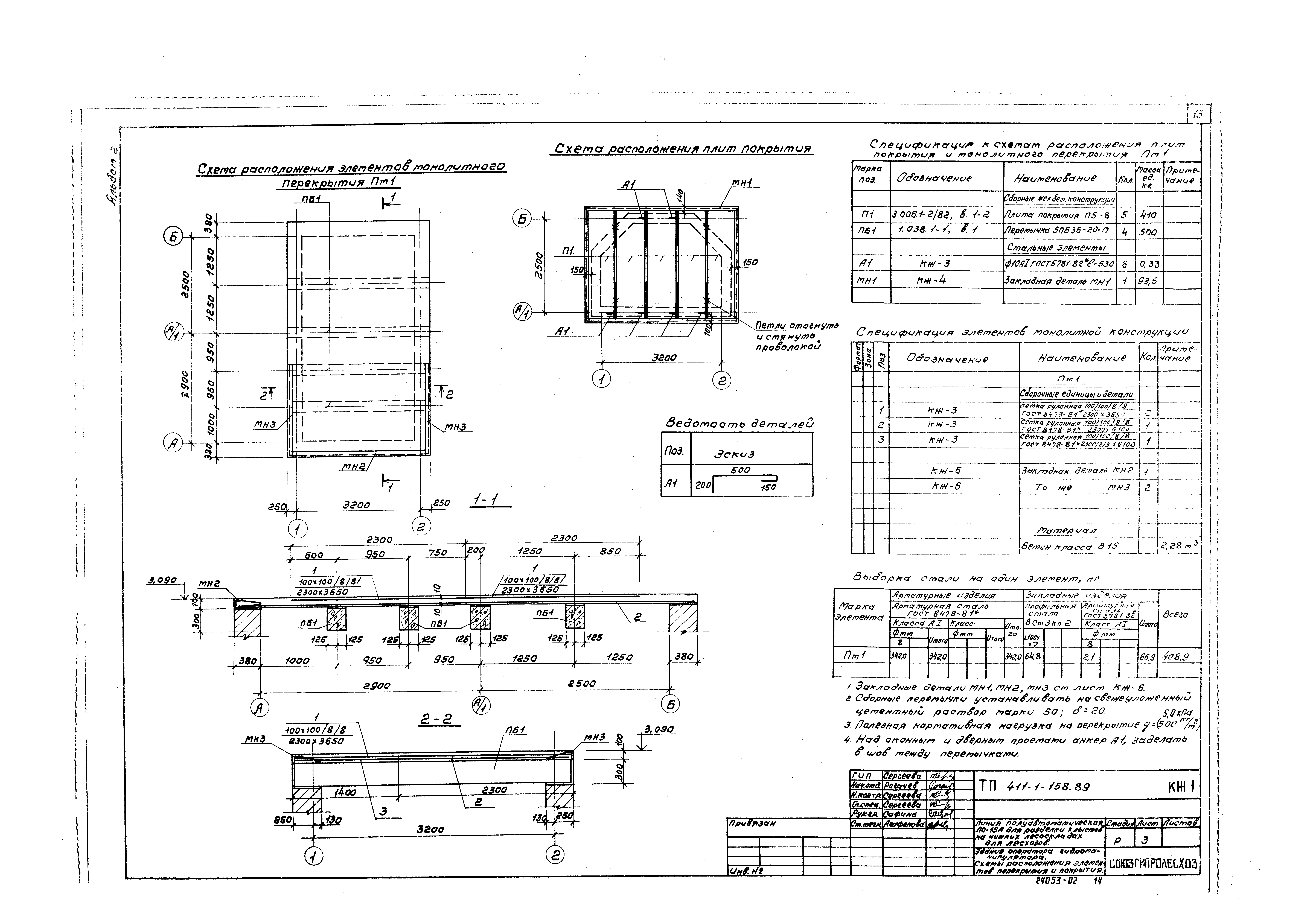
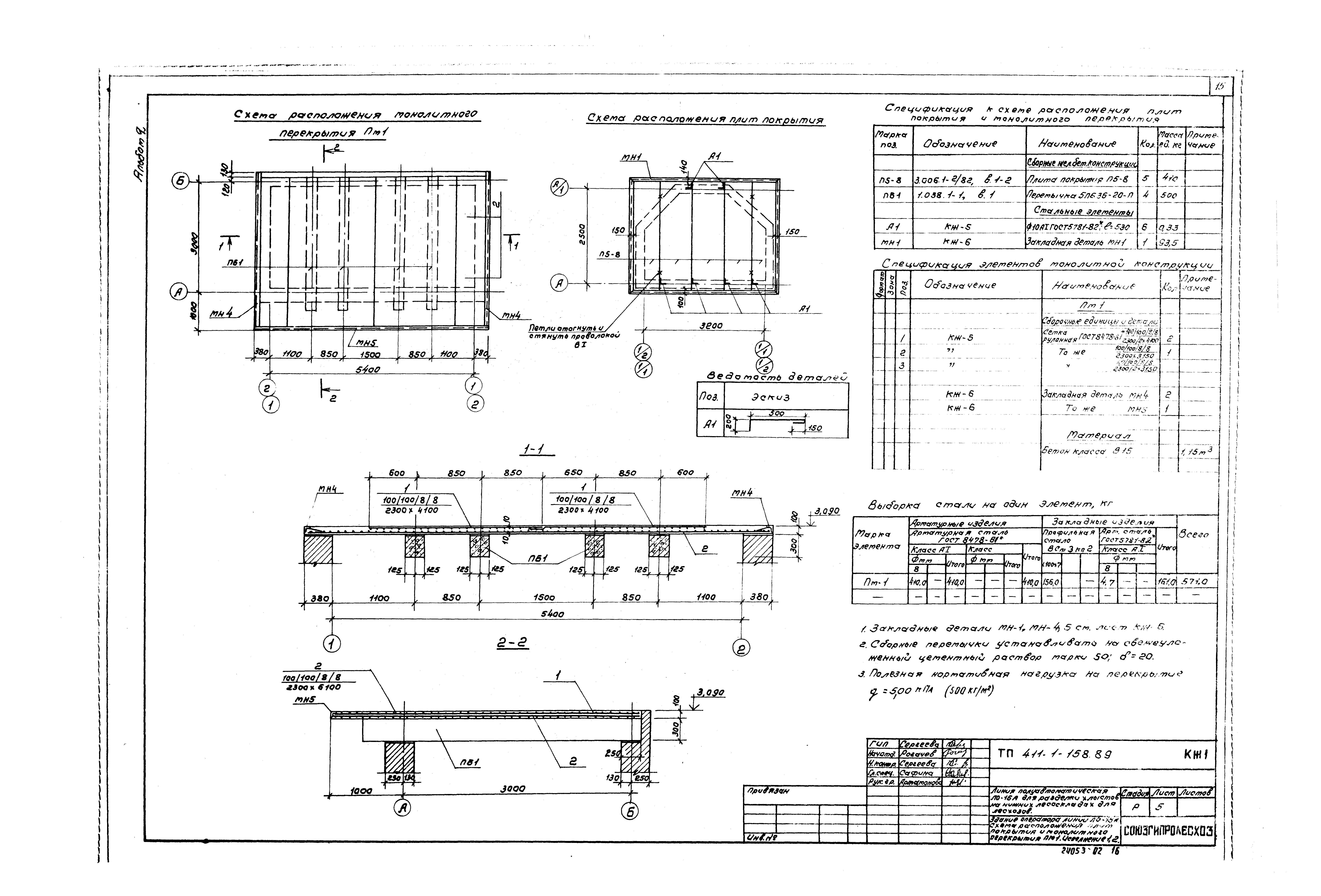
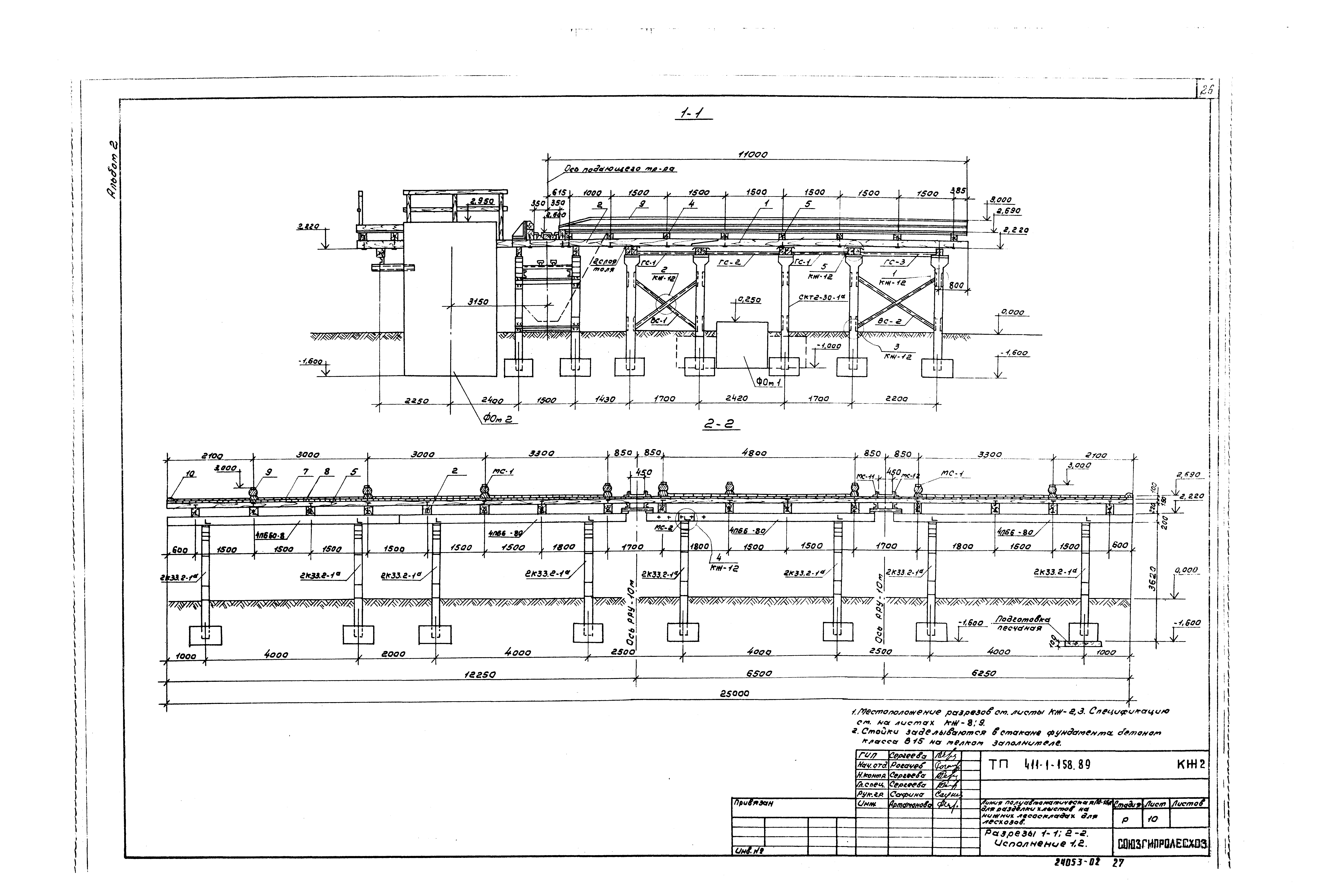
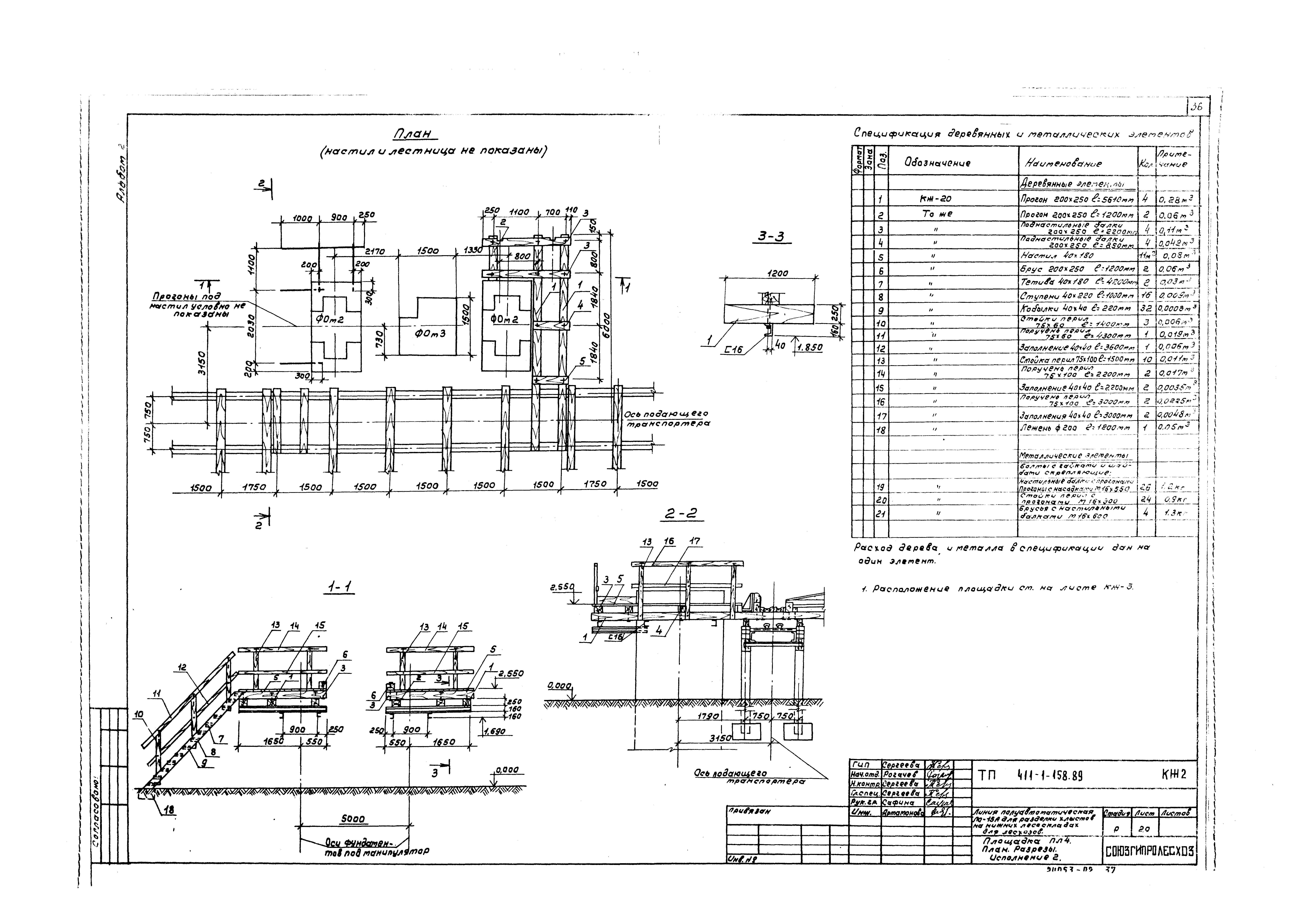
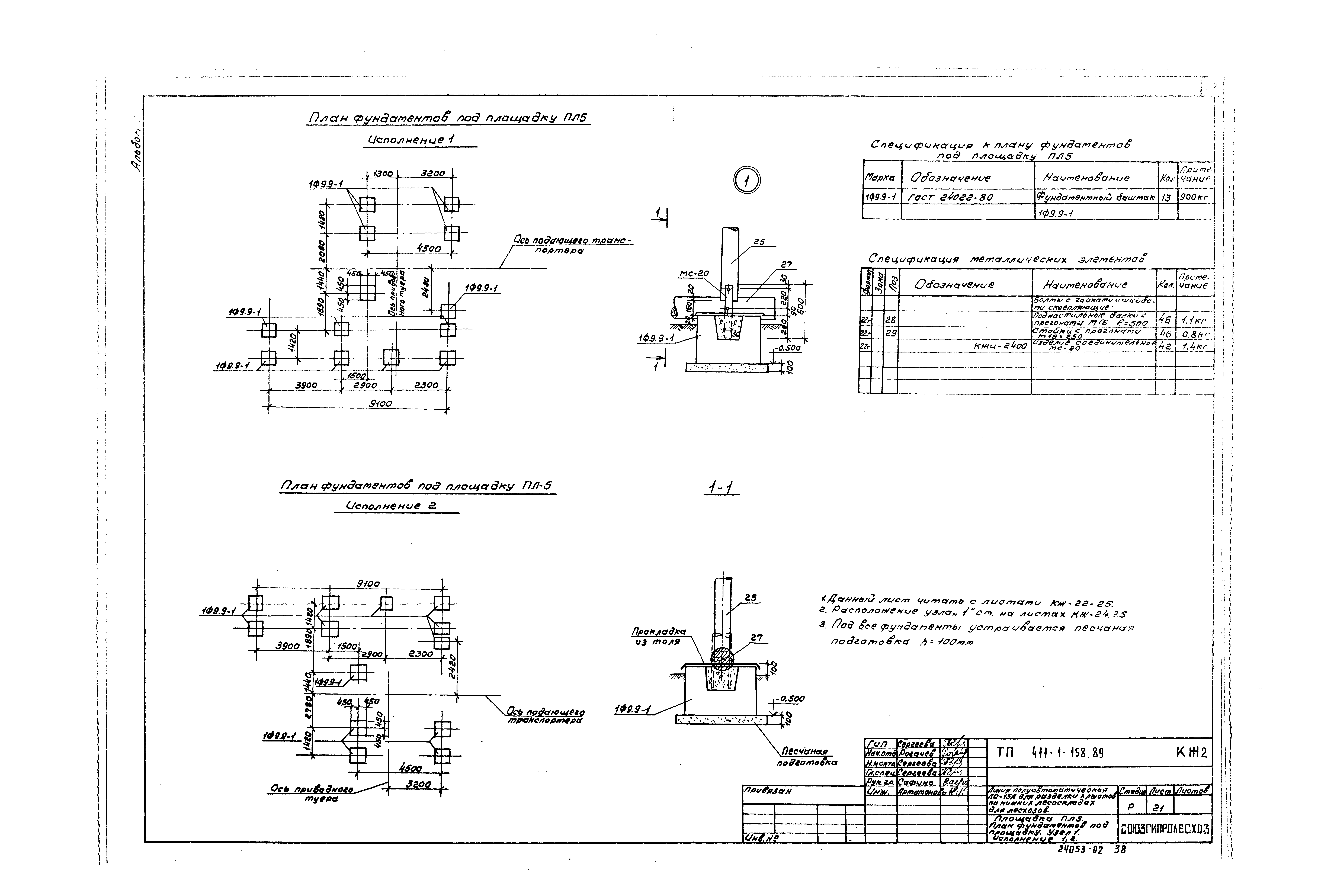
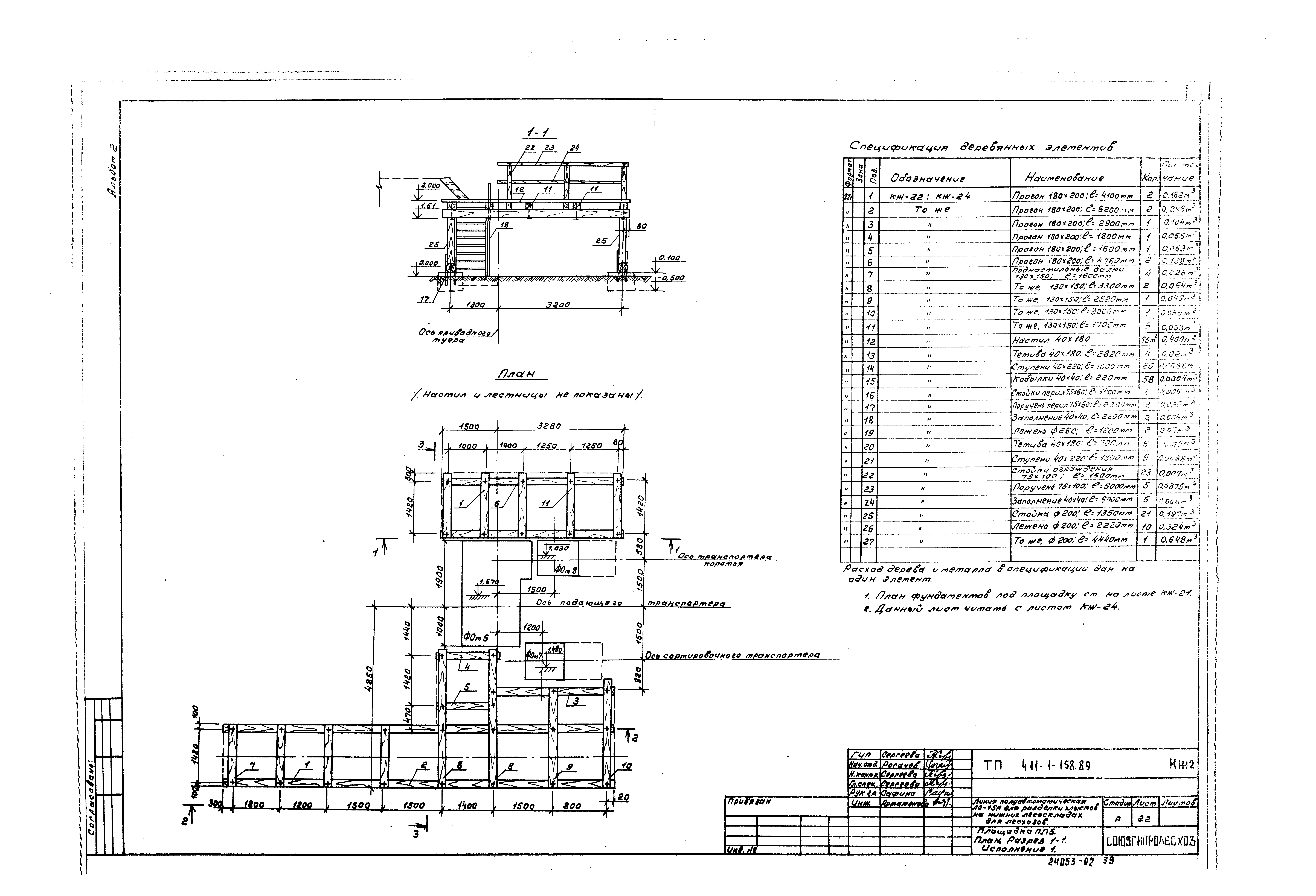
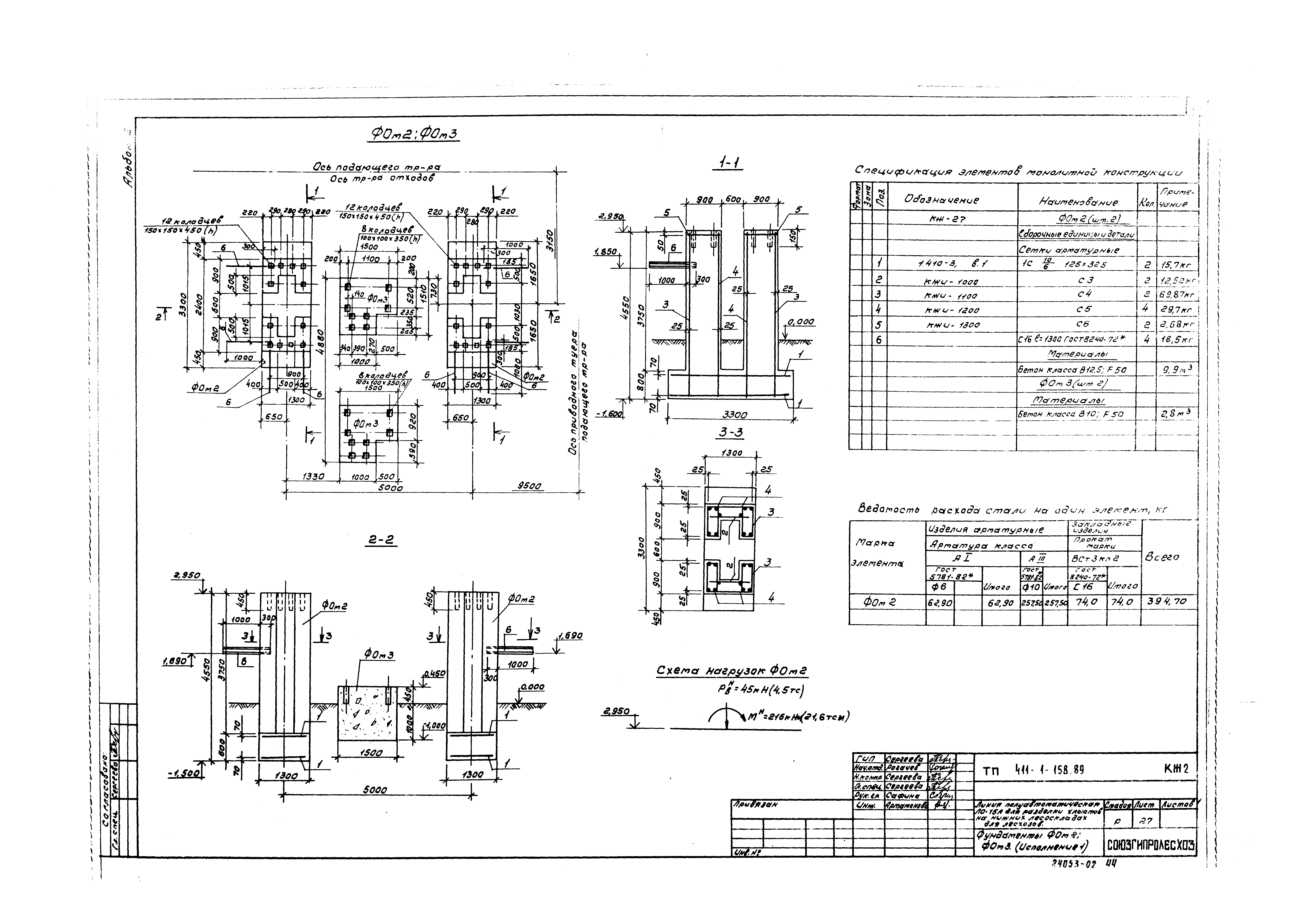
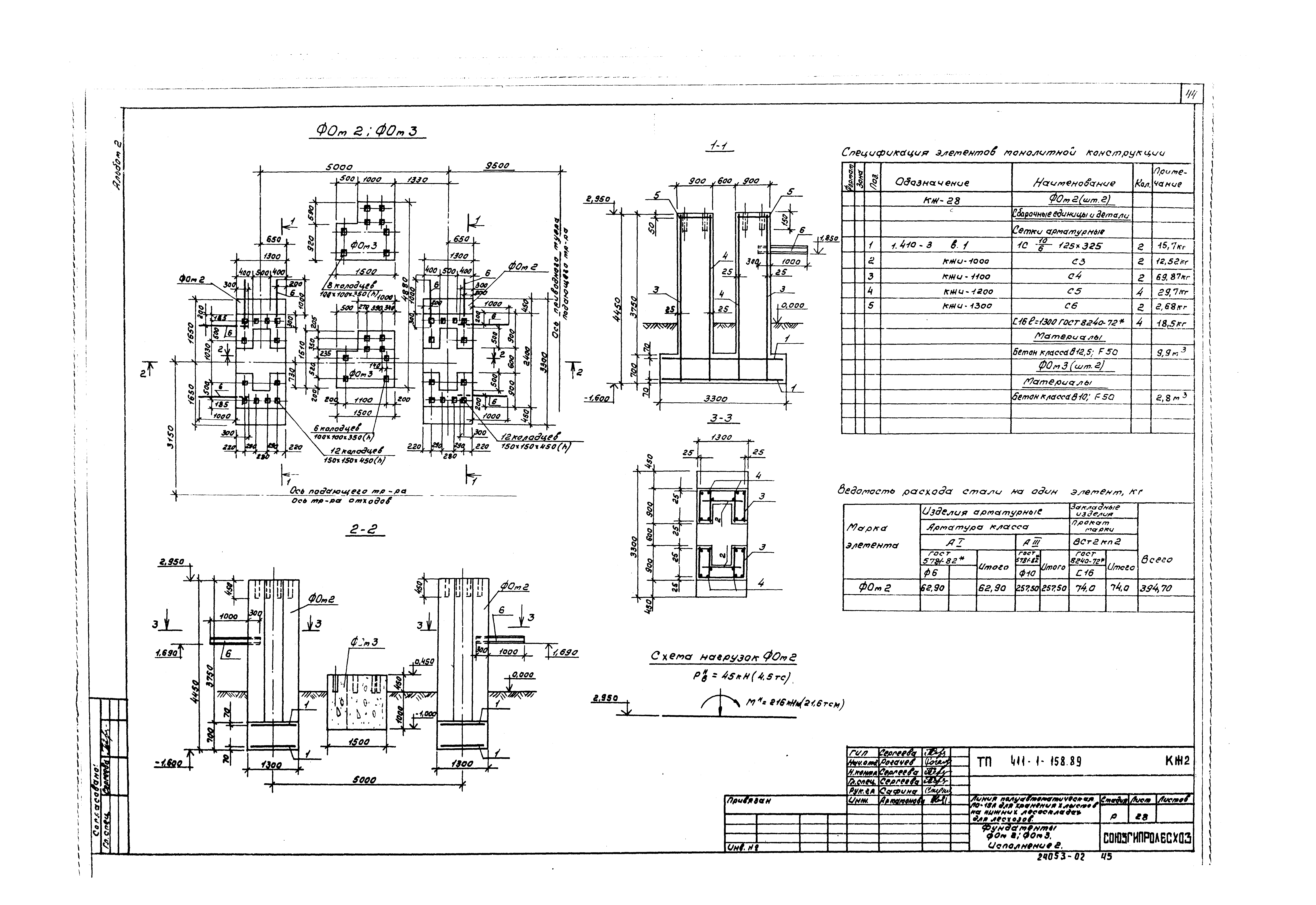
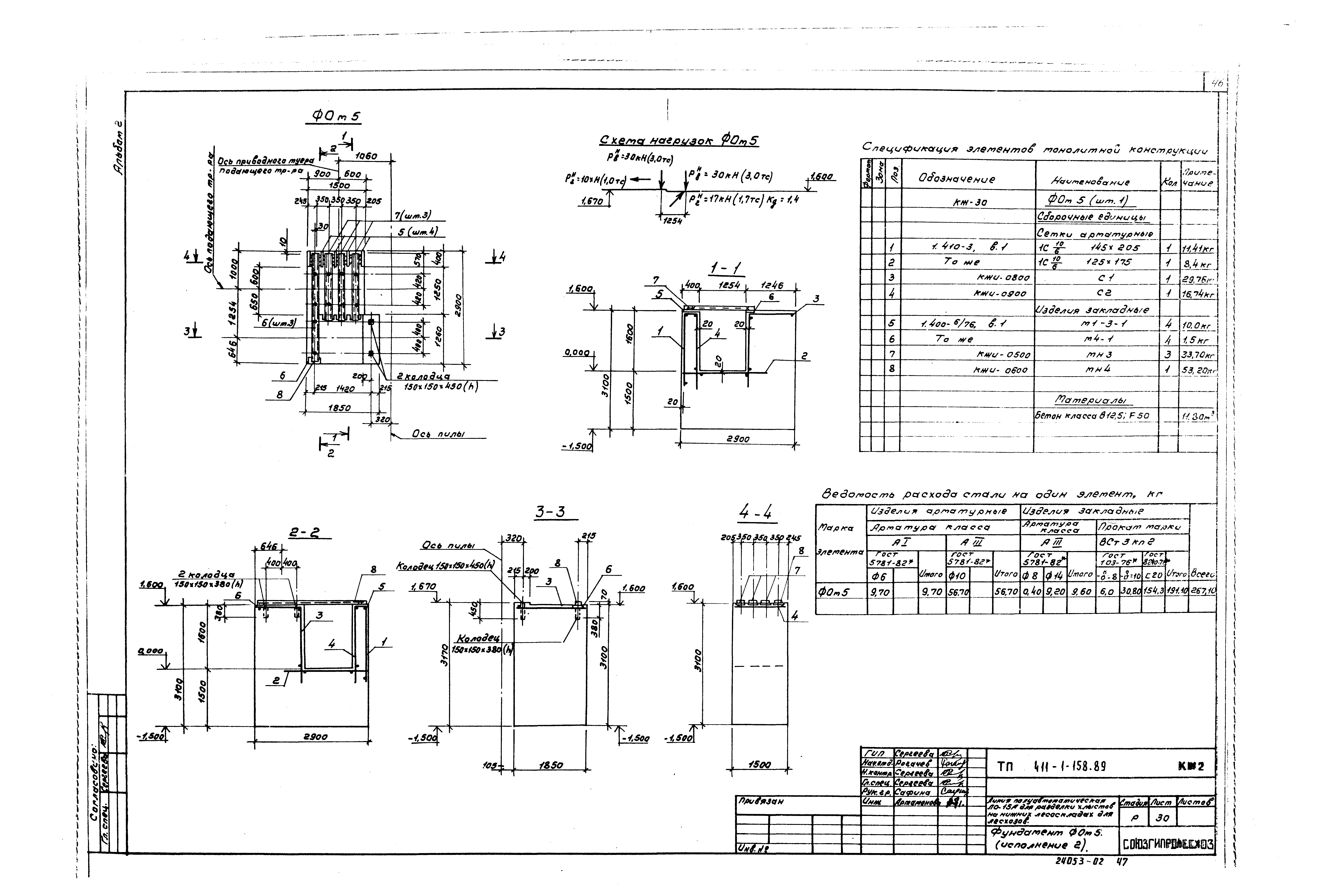
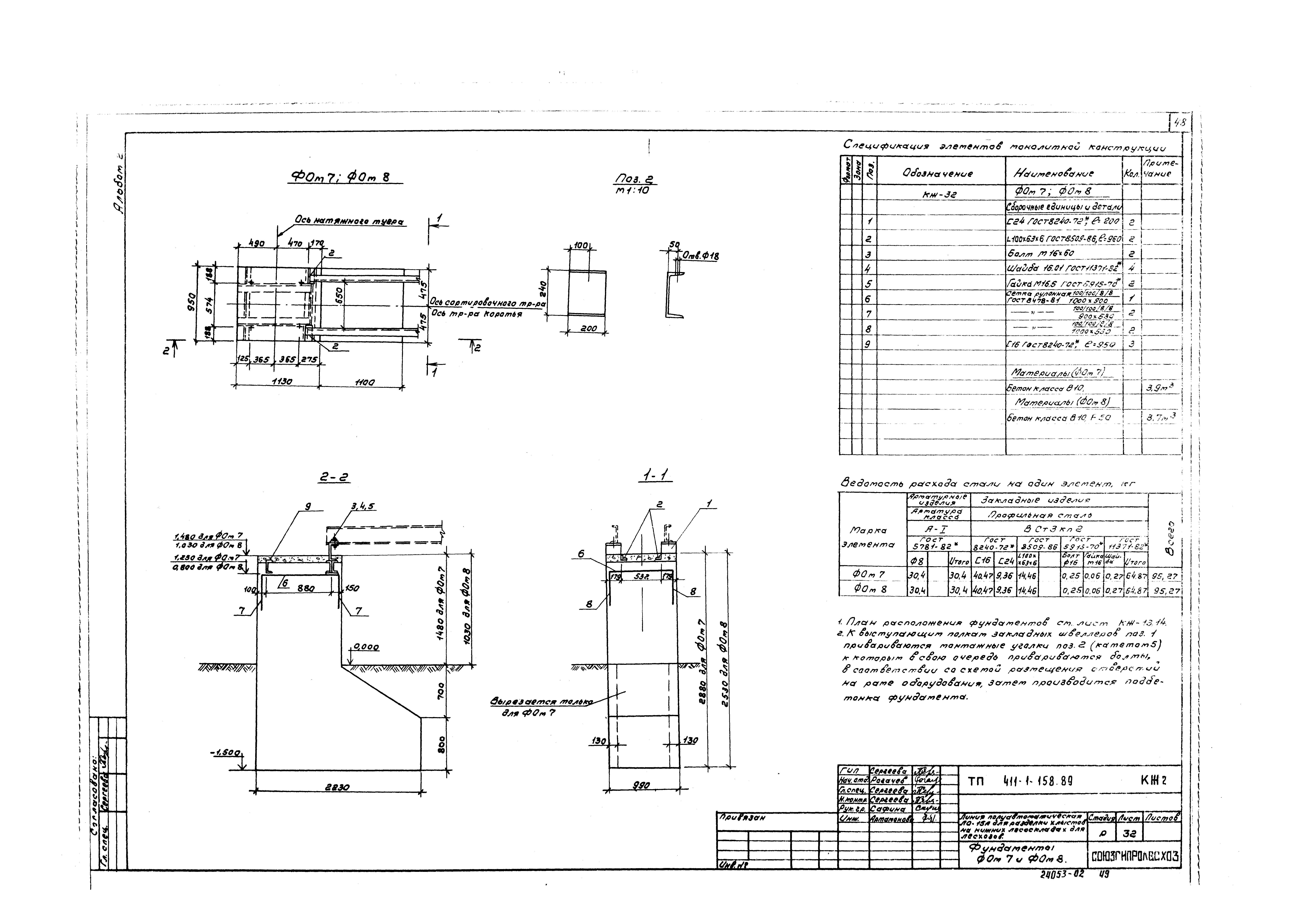
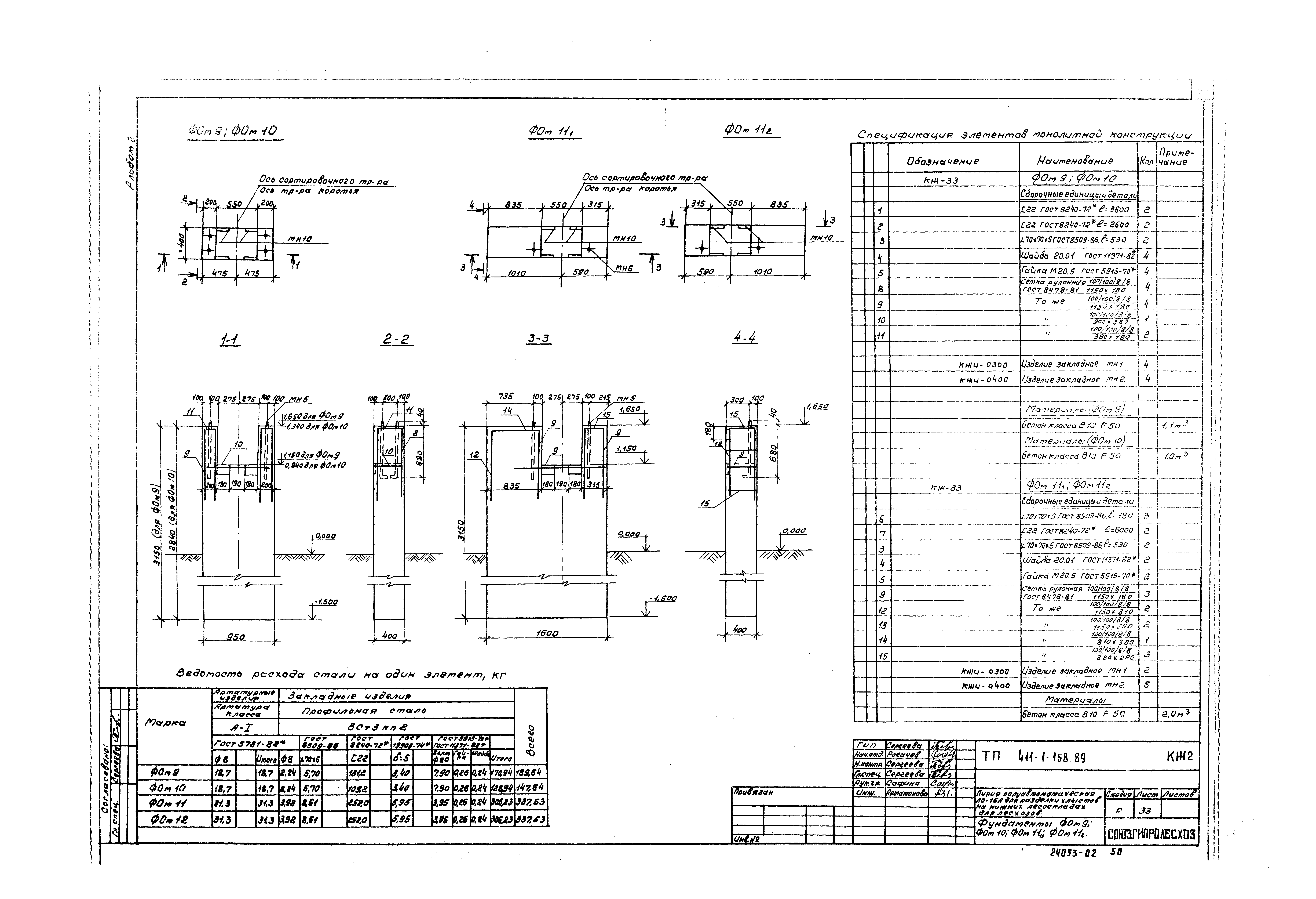
Скачать Типовой проект 411-1-158.89 Альбом 2. Архитектурные решения. Конструкции железобетонные. Конструкции металлическиеДата актуализации: 01.01.2021
|
| Обозначение: | Типовой проект 411-1-158.89 |
| Обозначение англ: | 411-1-158.89 |
| Статус: | не определен законодательством |
| Название рус.: | Альбом 2. Архитектурные решения. Конструкции железобетонные. Конструкции металлические |
| Дата добавления в базу: | 01.09.2013 |
| Дата актуализации: | 01.01.2021 |
| Дата введения: | 19.10.1989 |
| Дата окончания срока действия: | 30.06.2003 |
| Разработан: | Союзгипролесхоз Госкомлеса СССР |
| Утверждён: | 11.10.1989 Госкомлес СССР (USSR Goskomles 19) |
| Издан: | ЦИТП Госстроя СССР (CITP, Gosstroy (USSR) 1990 г. ) |
































































