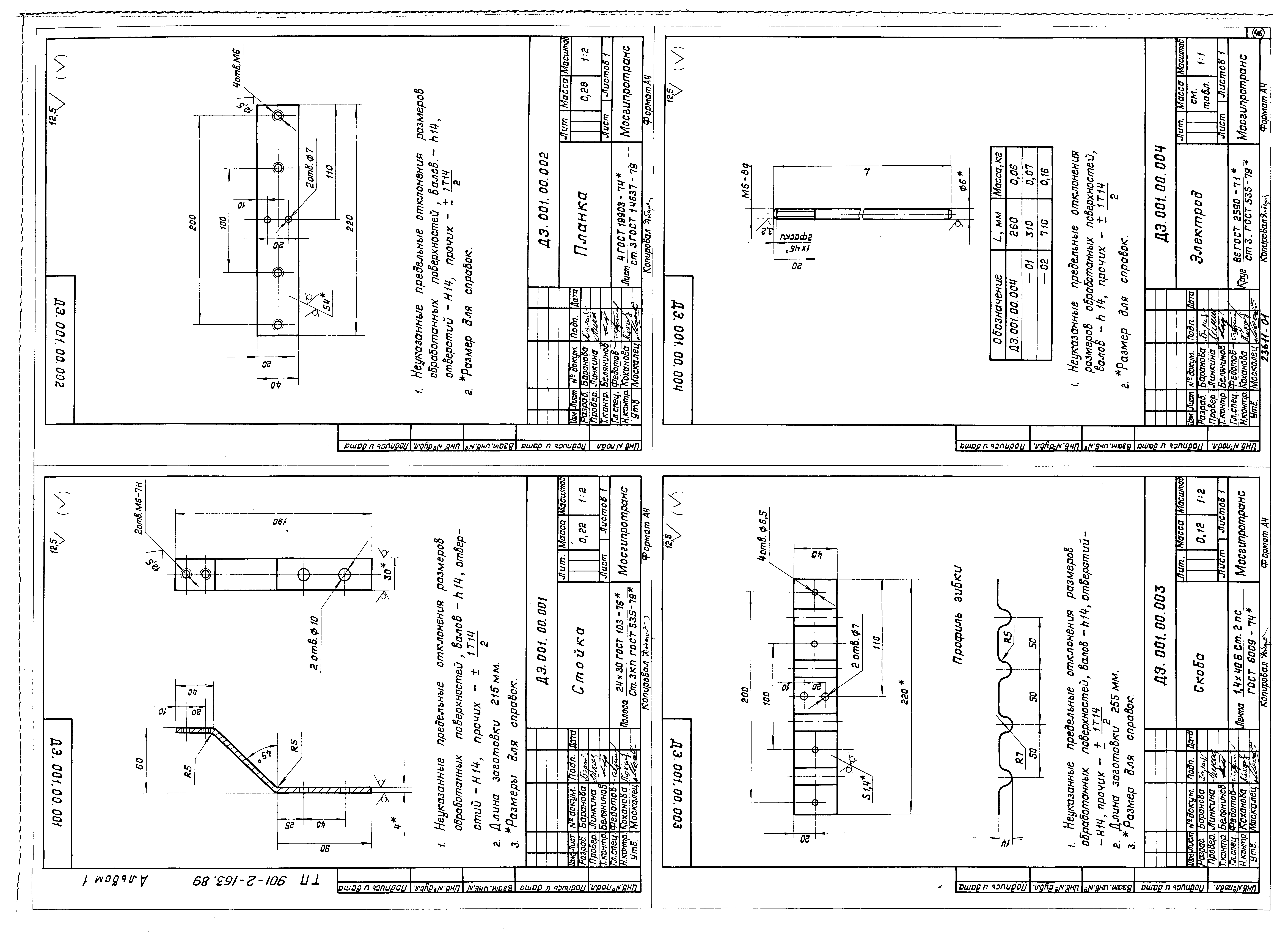
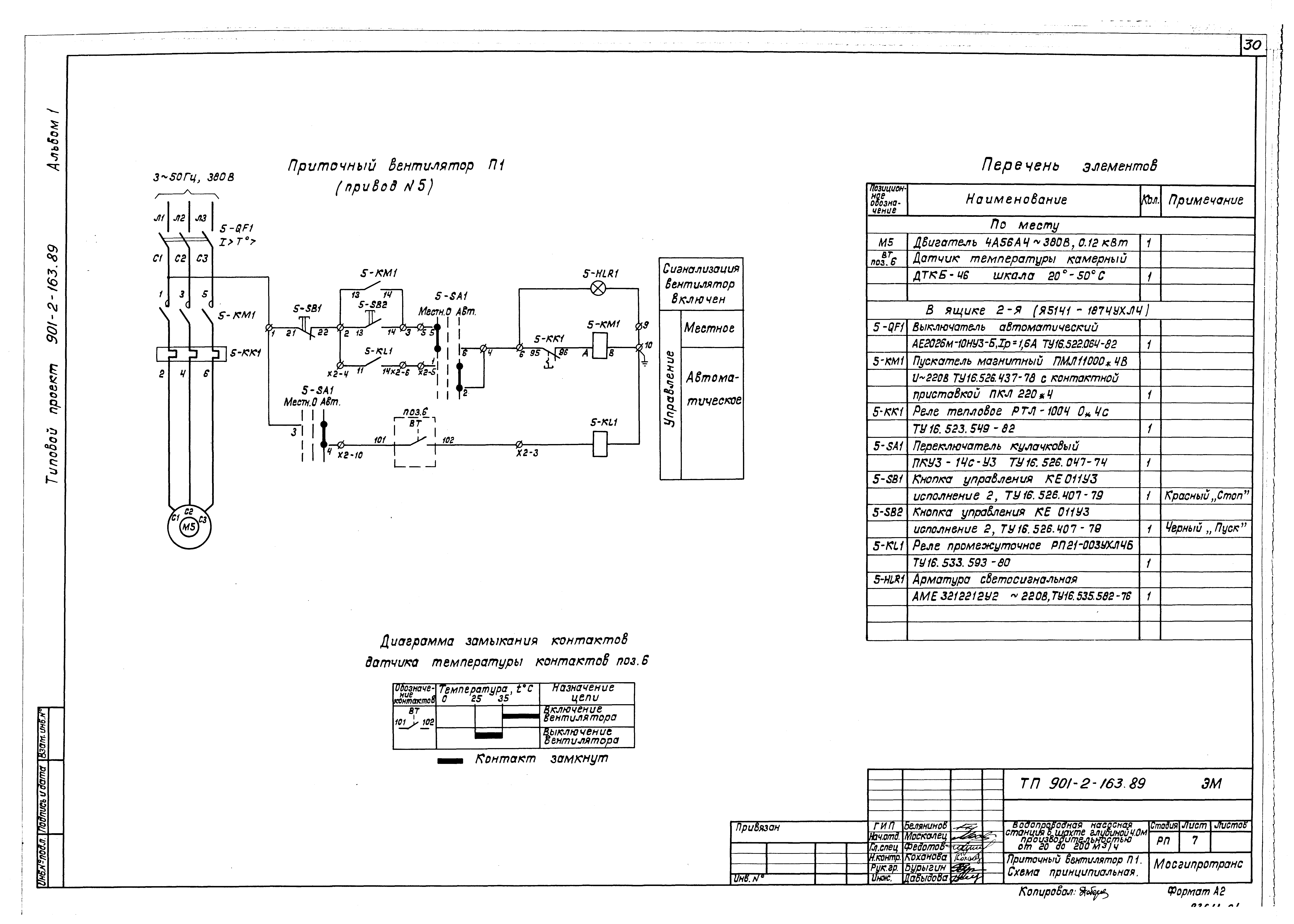
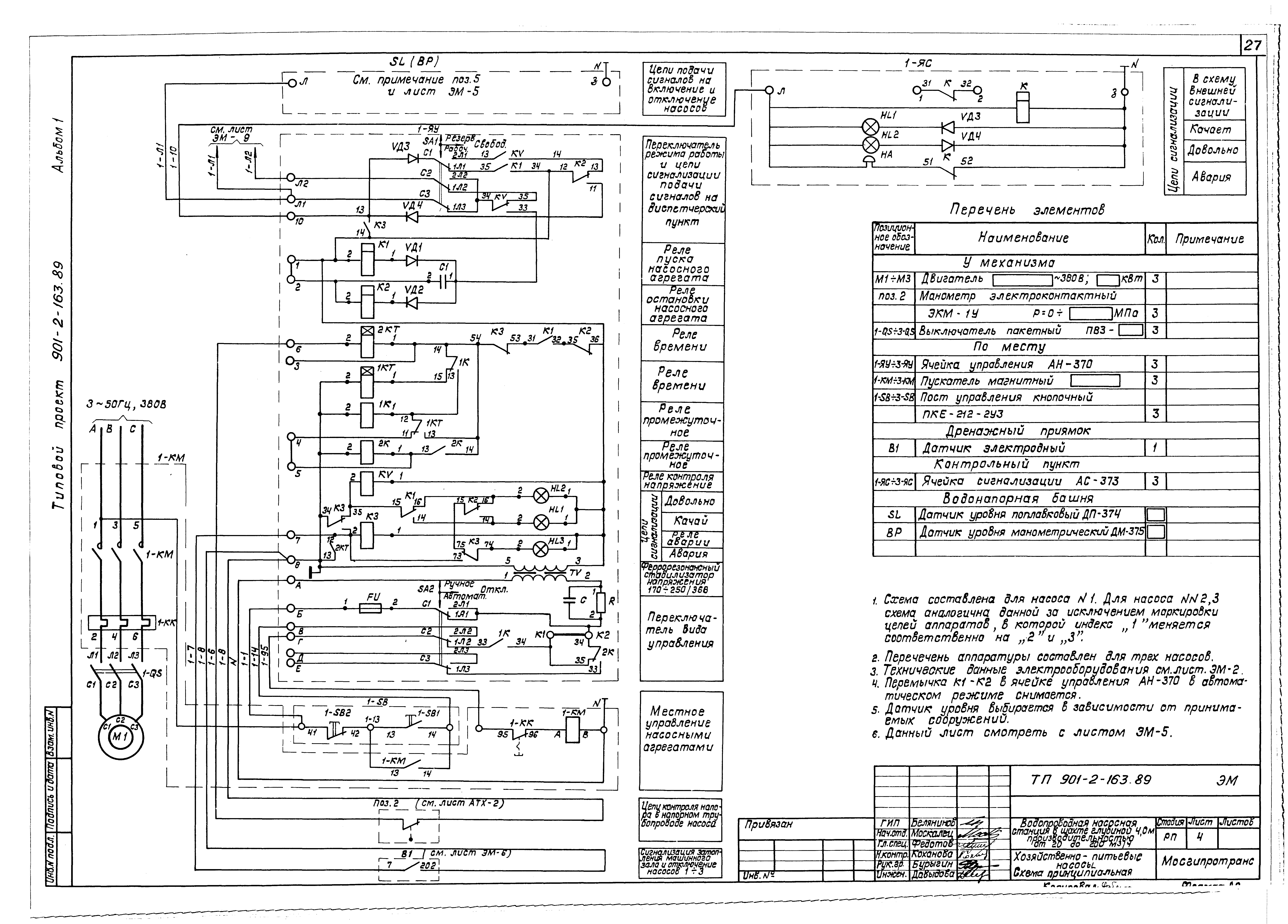
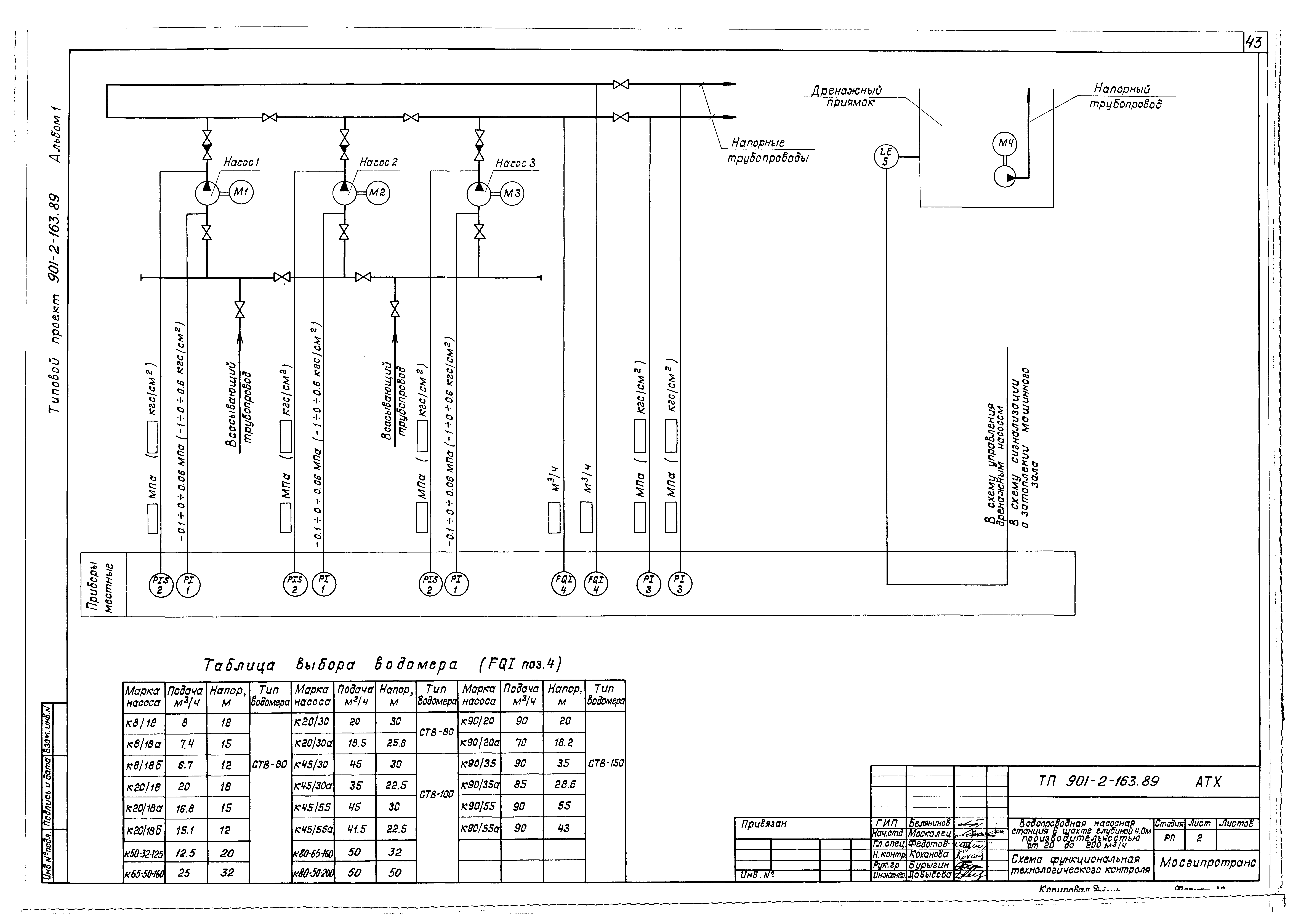
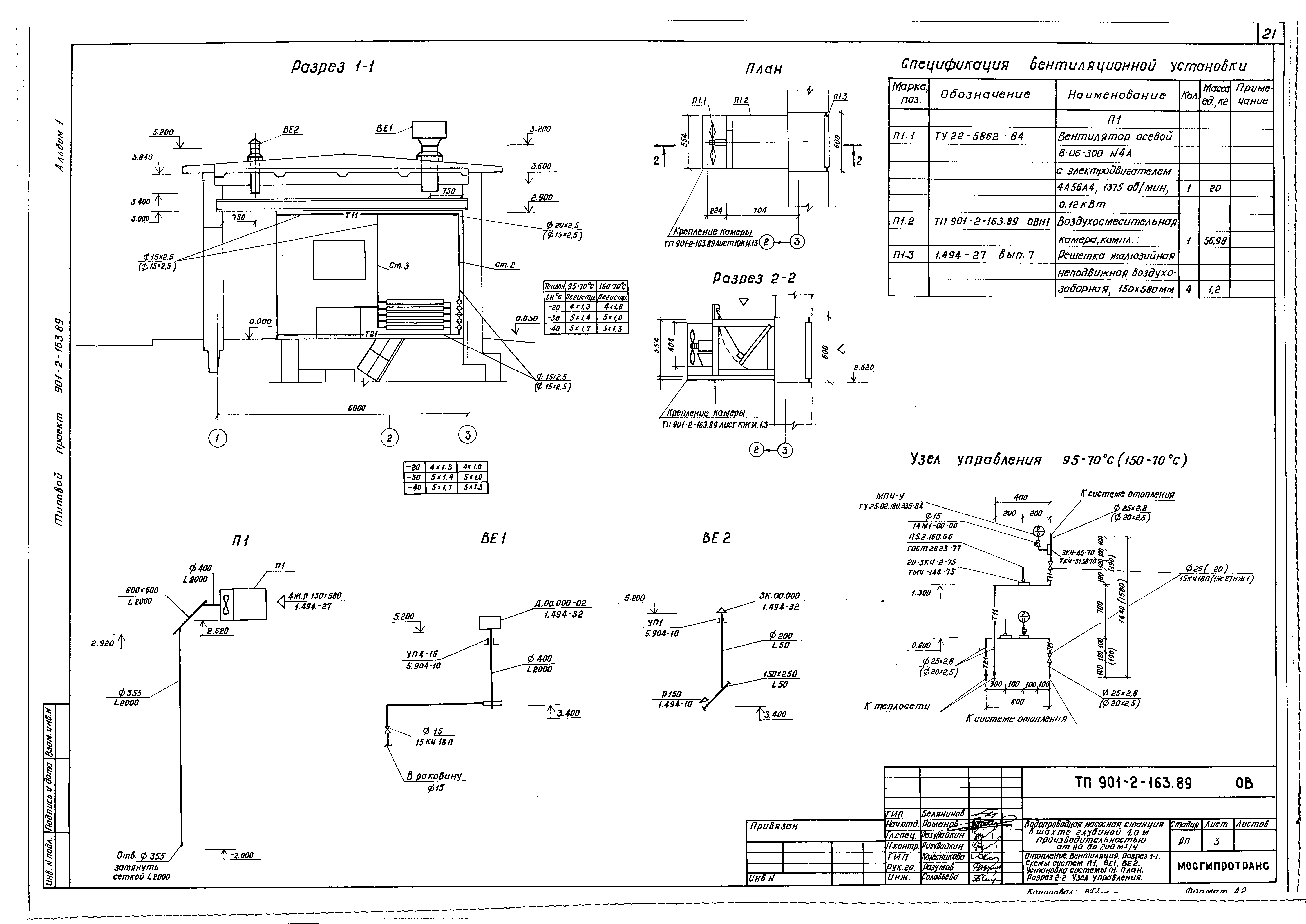
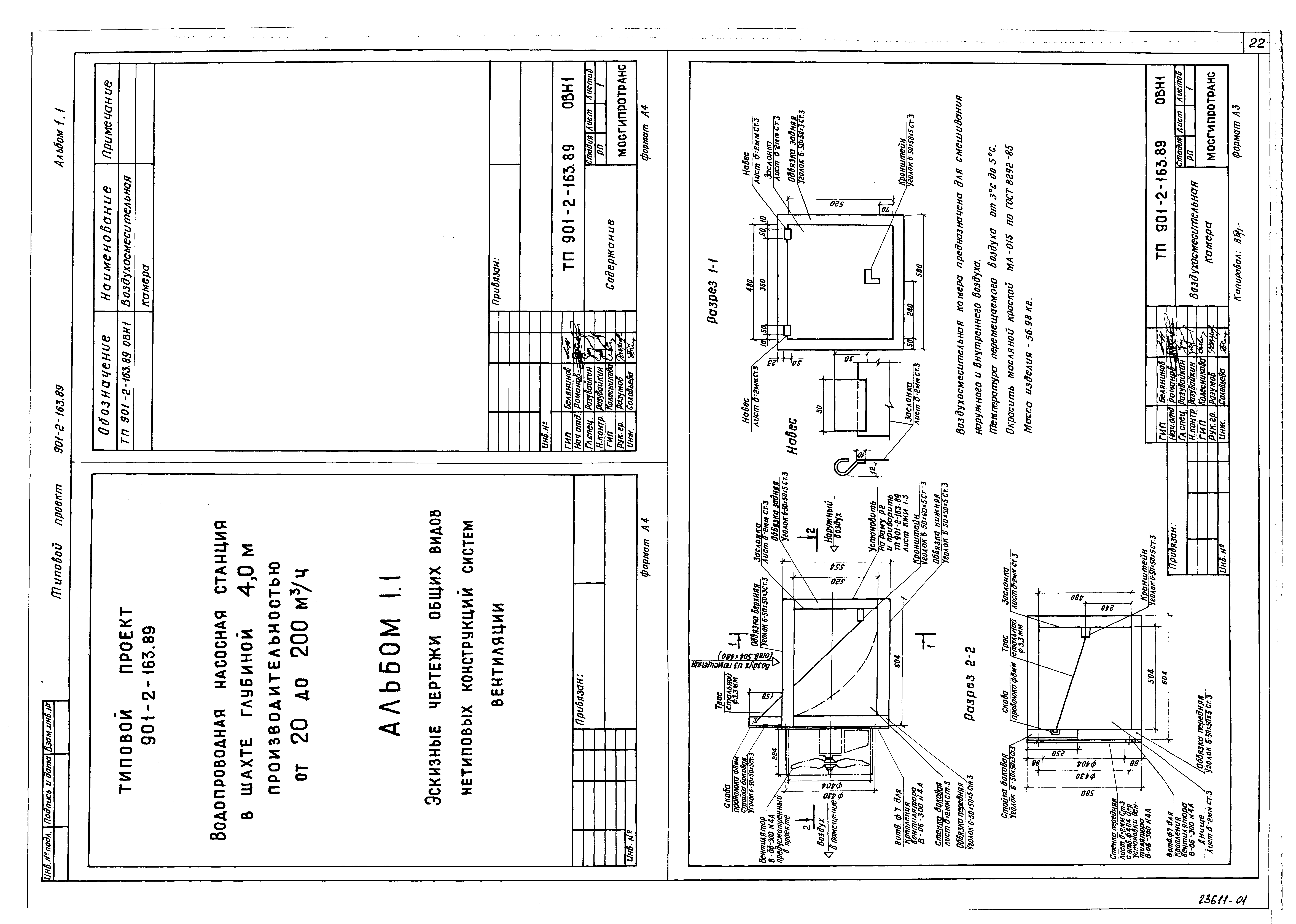
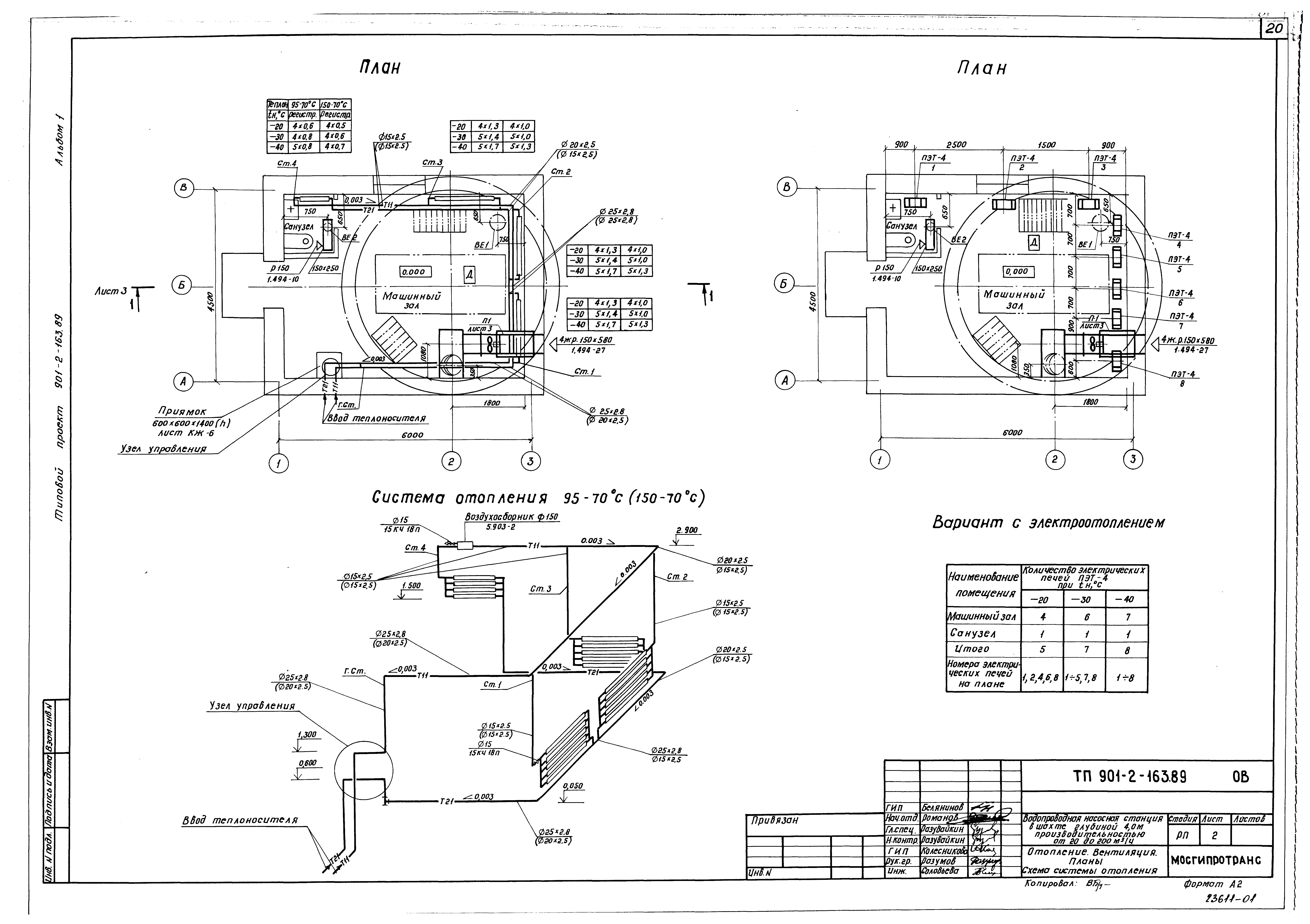
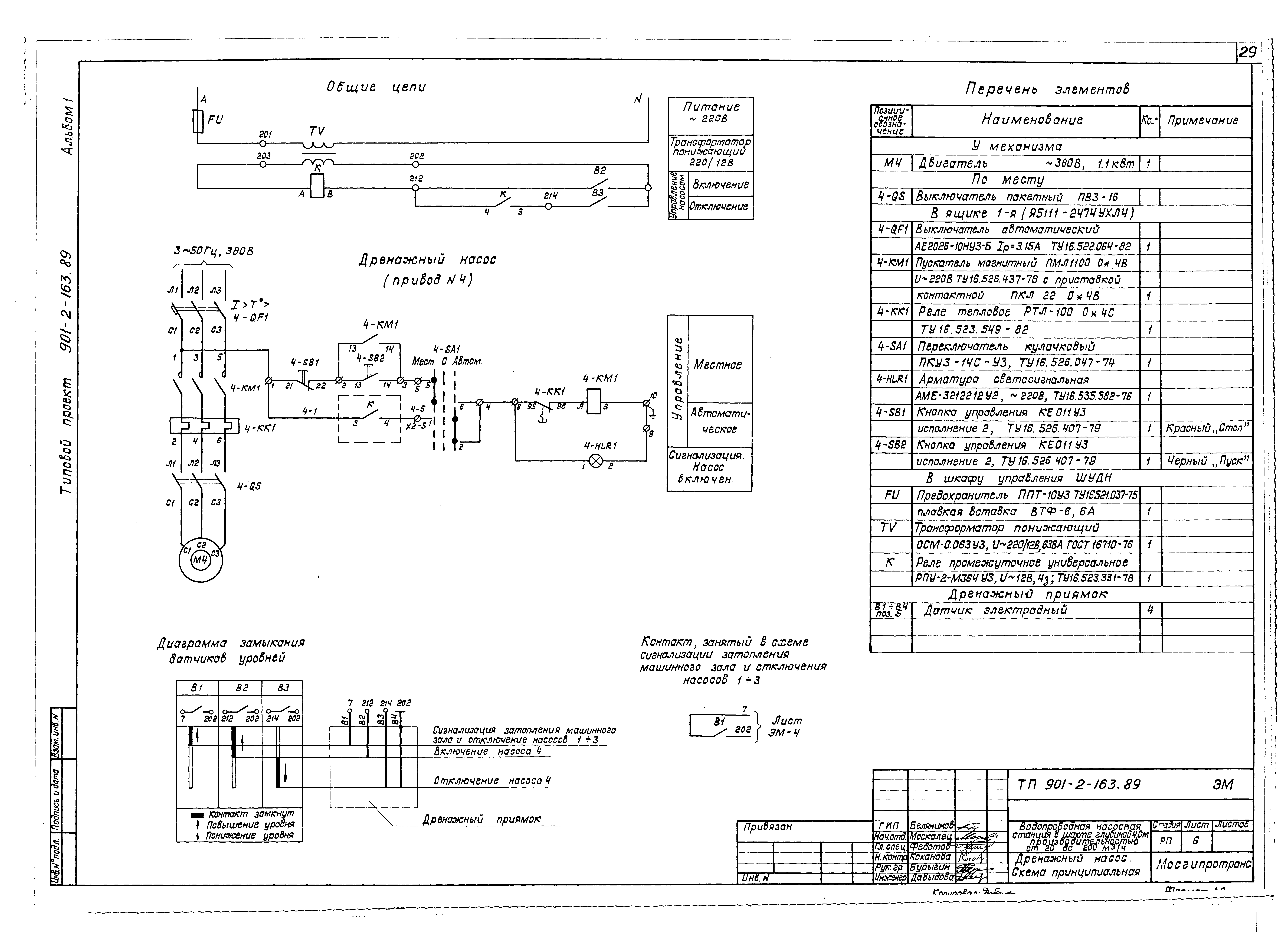
Скачать Типовой проект 901-2-165.89 Альбом 1. Пояснительная записка. Технологические решения. Отопление и вентиляция. Внутренние водопровод и канализация. Электротехническая часть. Технологический контроль (из ТП 901-2-163.89)

Дата актуализации: 01.01.2021

Типовой проект 901-2-165.89

Альбом 1. Пояснительная записка. Технологические решения. Отопление и вентиляция. Внутренние водопровод и канализация. Электротехническая часть. Технологический контроль (из ТП 901-2-163.89)

Обозначение: Типовой проект 901-2-165.89
Обозначение англ: 901-2-165.89
Статус:не определен законодательством
Название рус.:Альбом 1. Пояснительная записка. Технологические решения. Отопление и вентиляция. Внутренние водопровод и канализация. Электротехническая часть. Технологический контроль (из ТП 901-2-163.89)
Дата добавления в базу:01.09.2013
Дата актуализации:01.01.2021
Дата введения:27.12.1988
Дата окончания срока действия:30.06.2003
Разработан: Мосгипротранс
Утверждён:27.12.1988 Министерство транспортного строительства СССР (USSR Ministry of Transport Construction ГА-968)
Издан: ЦИТП Госстроя СССР (CITP, Gosstroy (USSR) 1988 г. )
Заменяет собой:
Типовой проект 901-2-165.89Типовой проект 901-2-165.89Типовой проект 901-2-165.89Типовой проект 901-2-165.89Типовой проект 901-2-165.89Типовой проект 901-2-165.89Типовой проект 901-2-165.89Типовой проект 901-2-165.89Типовой проект 901-2-165.89Типовой проект 901-2-165.89Типовой проект 901-2-165.89Типовой проект 901-2-165.89Типовой проект 901-2-165.89Типовой проект 901-2-165.89Типовой проект 901-2-165.89Типовой проект 901-2-165.89Типовой проект 901-2-165.89Типовой проект 901-2-165.89Типовой проект 901-2-165.89Типовой проект 901-2-165.89Типовой проект 901-2-165.89Типовой проект 901-2-165.89Типовой проект 901-2-165.89Типовой проект 901-2-165.89Типовой проект 901-2-165.89Типовой проект 901-2-165.89Типовой проект 901-2-165.89Типовой проект 901-2-165.89Типовой проект 901-2-165.89Типовой проект 901-2-165.89Типовой проект 901-2-165.89Типовой проект 901-2-165.89Типовой проект 901-2-165.89Типовой проект 901-2-165.89Типовой проект 901-2-165.89Типовой проект 901-2-165.89Типовой проект 901-2-165.89Типовой проект 901-2-165.89Типовой проект 901-2-165.89Типовой проект 901-2-165.89Типовой проект 901-2-165.89Типовой проект 901-2-165.89Типовой проект 901-2-165.89Типовой проект 901-2-165.89Типовой проект 901-2-165.89Типовой проект 901-2-165.89Типовой проект 901-2-165.89