Скачать Серия 3.503.9-110.93 Выпуск 15/1. Плита монолитная. Чертежи КЖДата актуализации: 01.01.2021
|
| Обозначение: | Серия 3.503.9-110.93 |
| Обозначение англ: | Series 3.503.9-110.93 |
| Статус: | не определен законодательством |
| Название рус.: | Выпуск 15/1. Плита монолитная. Чертежи КЖ |
| Дата добавления в базу: | 01.09.2013 |
| Дата актуализации: | 01.01.2021 |
| Дата введения: | 01.09.1998 |
| Дата окончания срока действия: | 30.06.2003 |
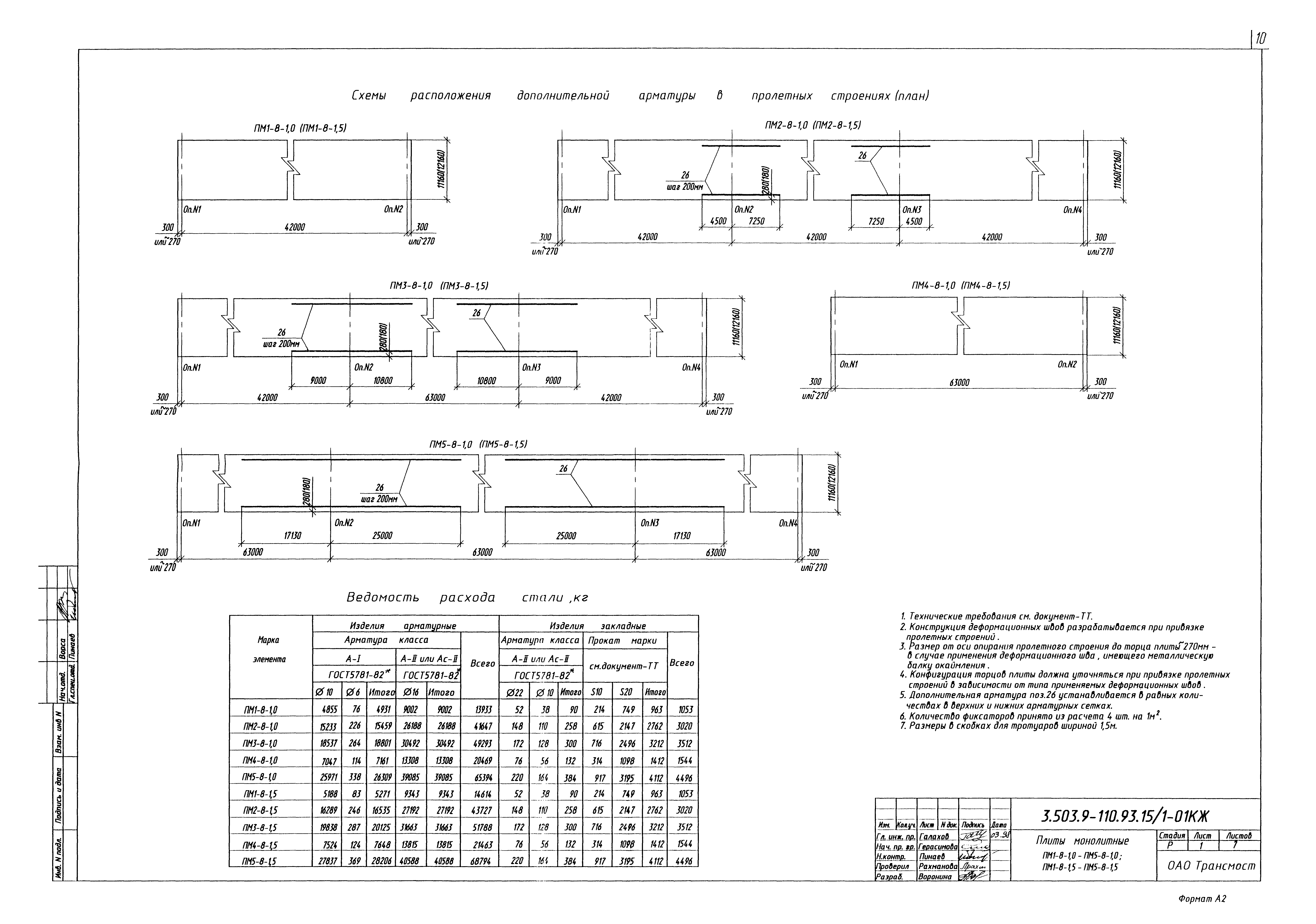
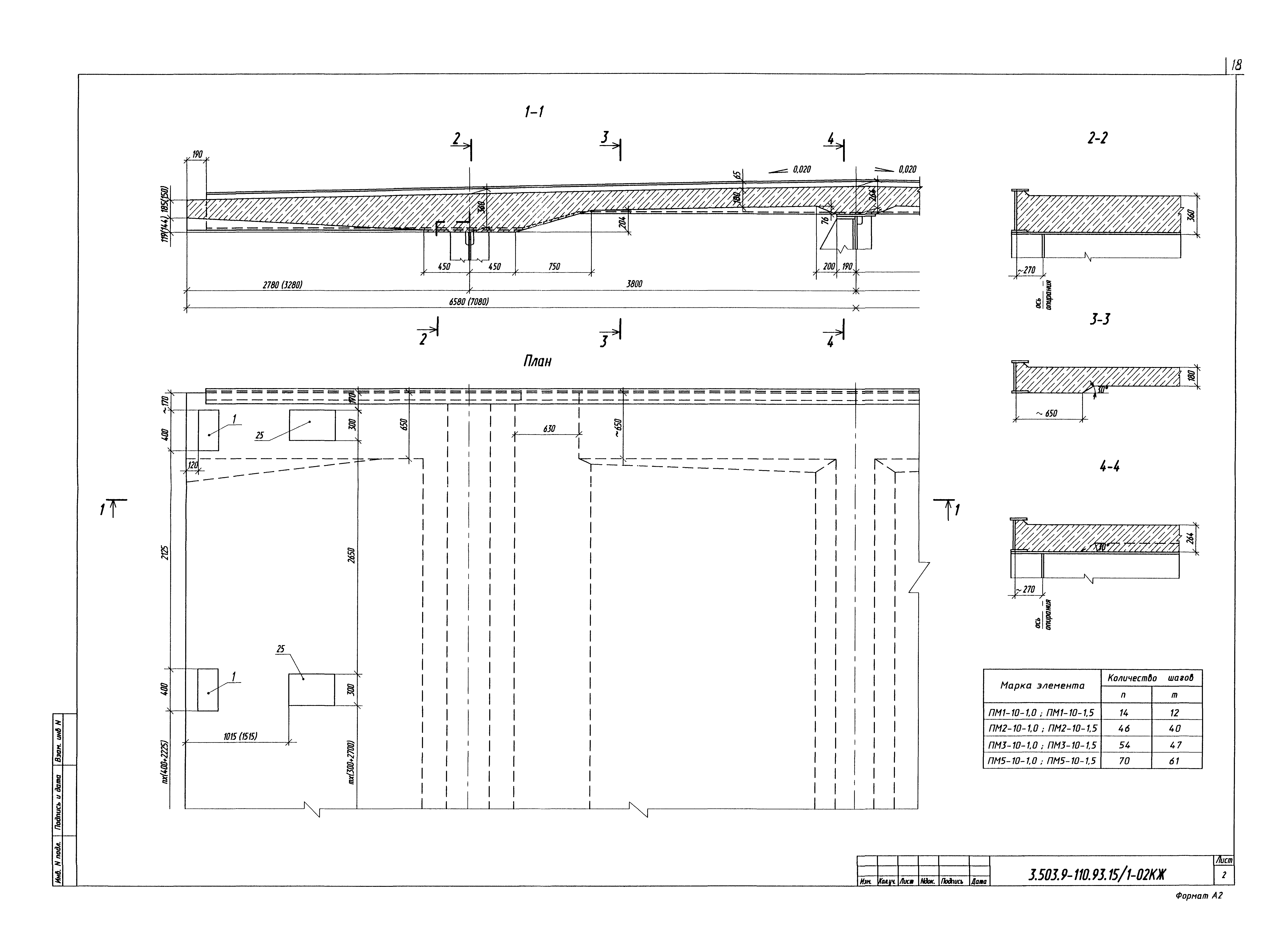
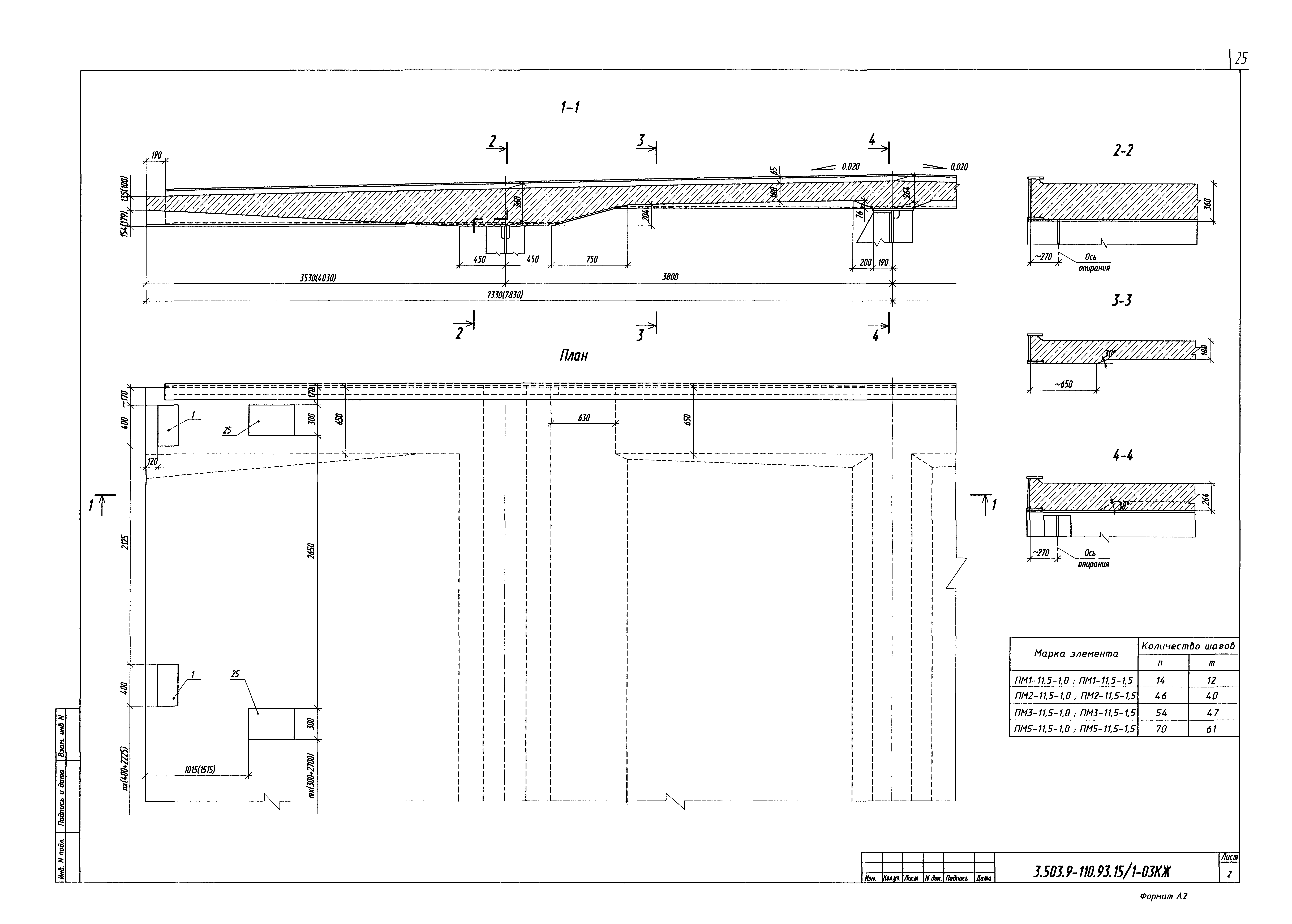
| Область применения: | Настоящий выпуск 3.503.9-110.93.15/1 "Монолитная плита. Чертежи КЖ" включает в себя рабочие чертежи монолитной железобетонной плиты проезда пролетных строений под габариты Г-8, Г-10 и Г-11,5, тротуарами шириной 1,0 или 1,5 м, расчетными пролетами 42,0; 63,0; 3х42,0; 42,0+63,0+42,0; 3х63,0 |
| Разработан: | АО Трансмост |
| Утверждён: | 23.06.1998 ФДС России (Russian Federation FDS 72) |
| Заменяет собой: |
|


































