Скачать Типовой проект 708-75.93 Альбом 3. Электротехническая частьДата актуализации: 01.01.2021
|
| Обозначение: | Типовой проект 708-75.93 |
| Обозначение англ: | 708-75.93 |
| Статус: | не определен законодательством |
| Название рус.: | Альбом 3. Электротехническая часть |
| Дата добавления в базу: | 01.09.2013 |
| Дата актуализации: | 01.01.2021 |
| Дата введения: | 06.12.1993 |
| Дата окончания срока действия: | 30.06.2003 |
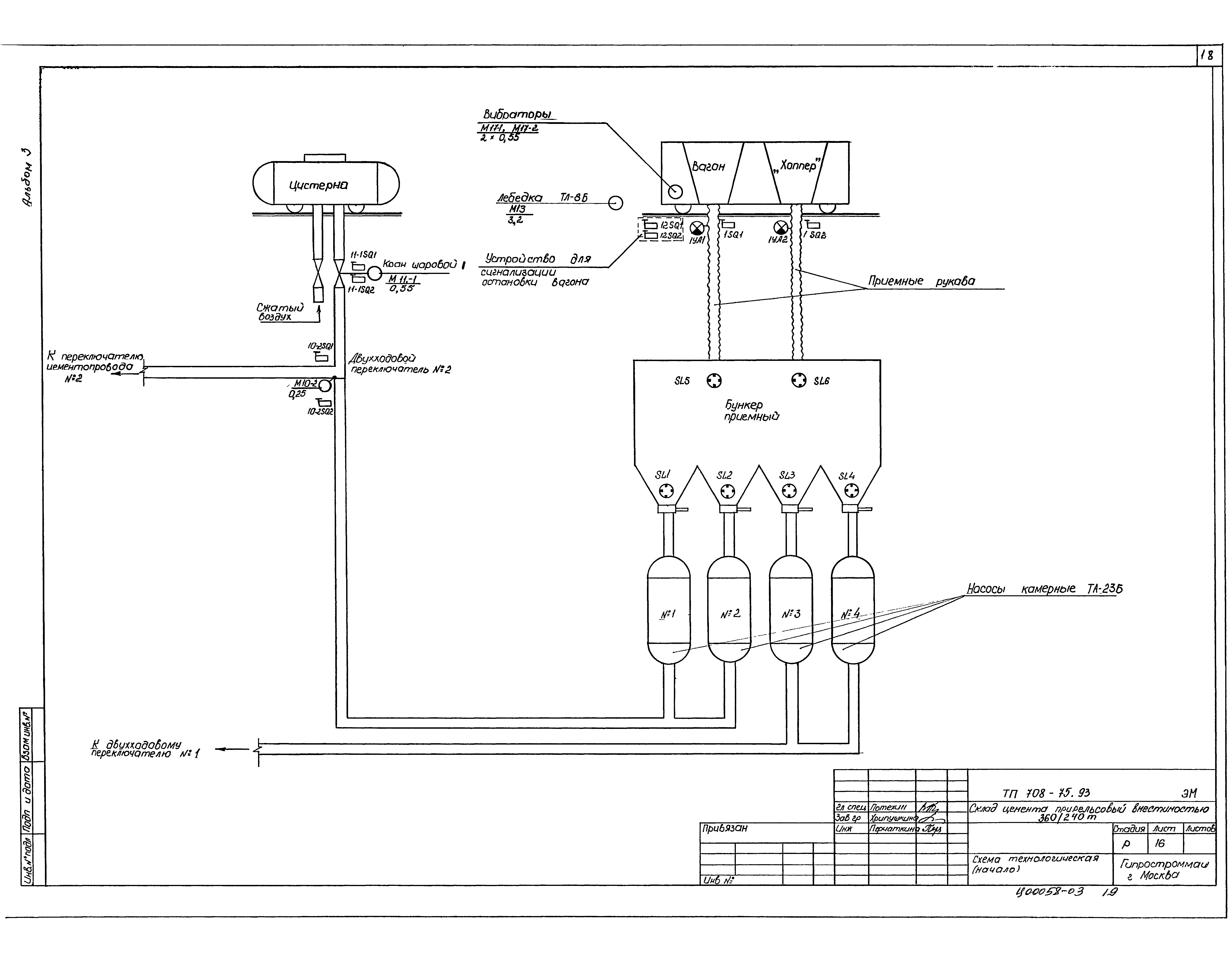
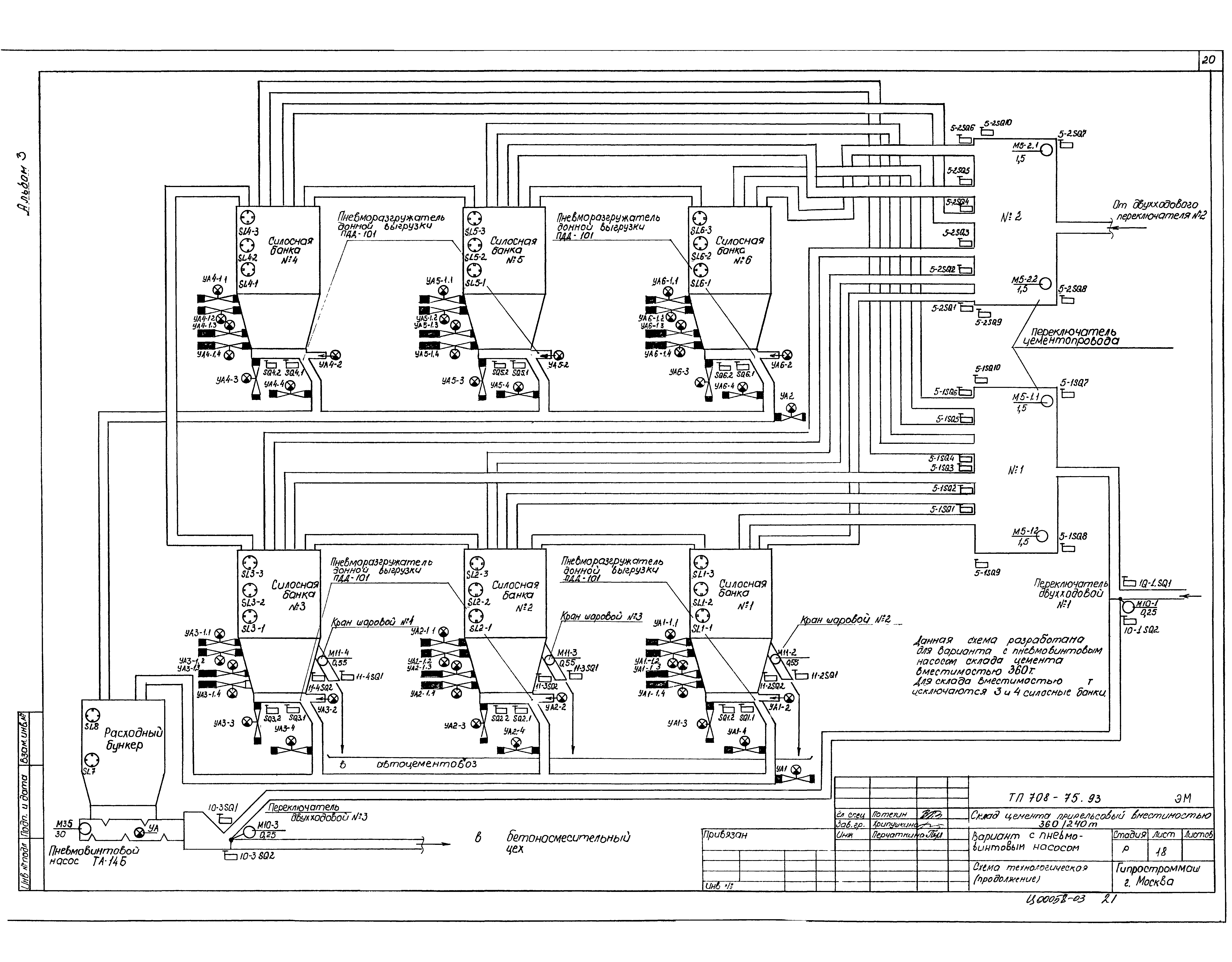
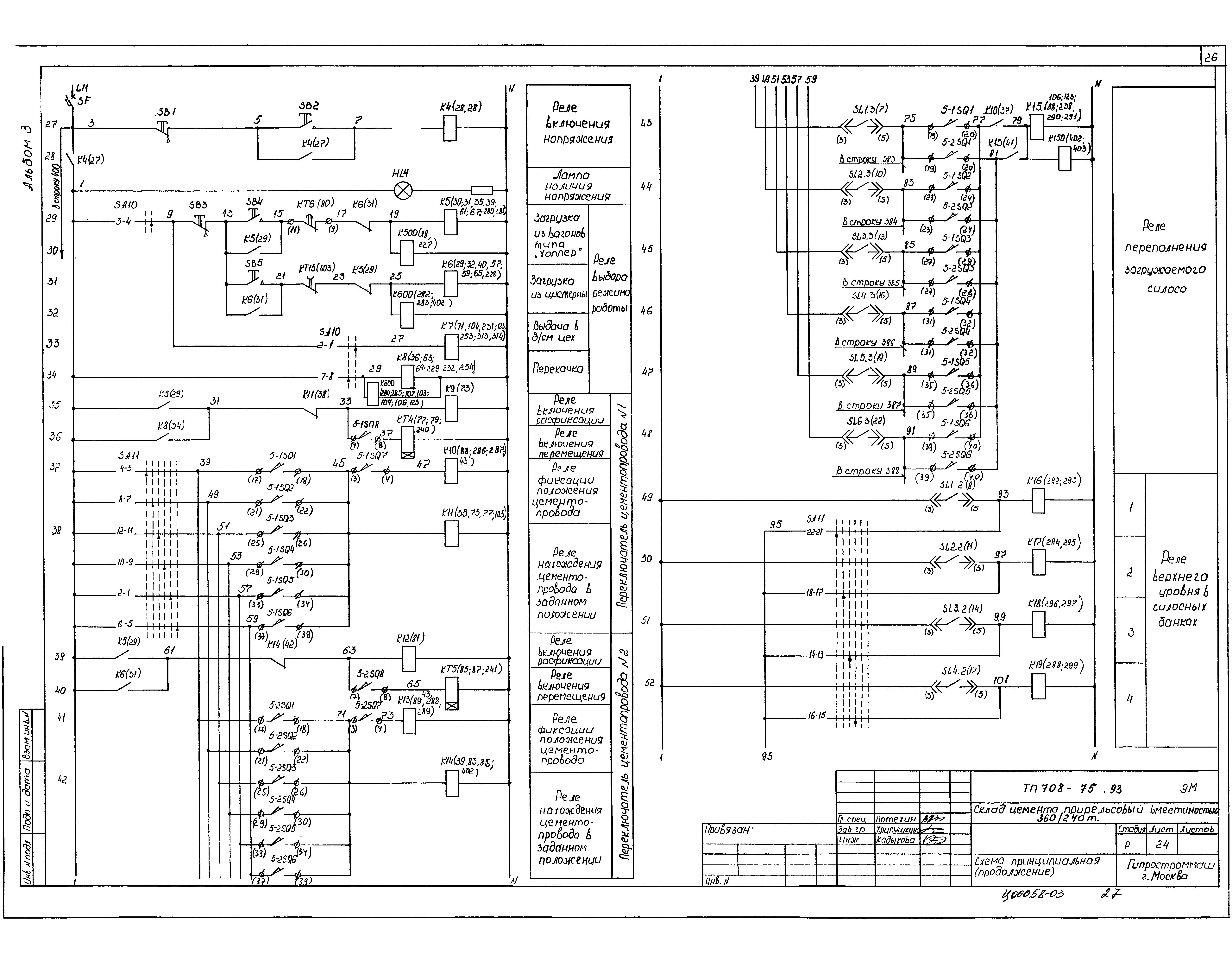
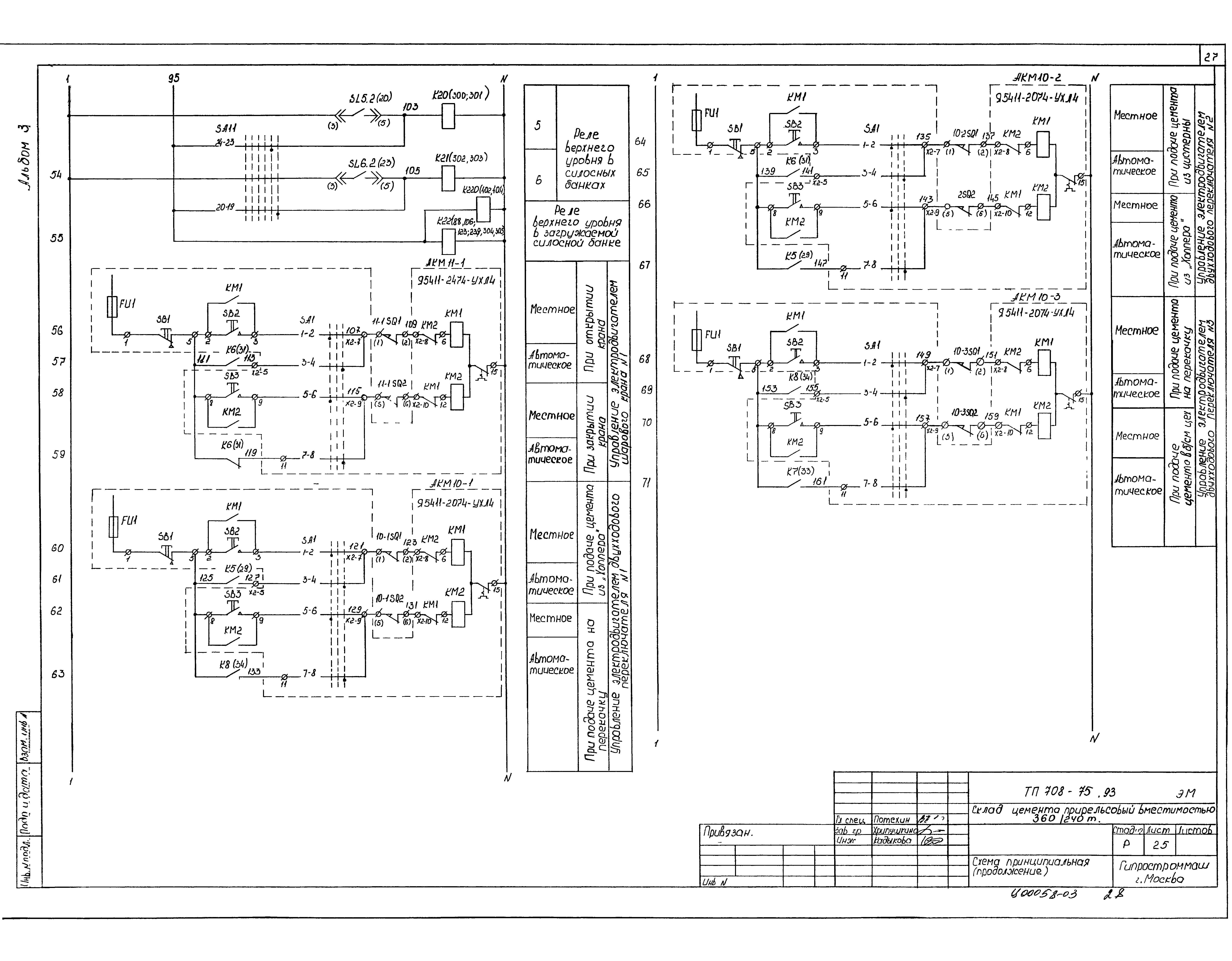
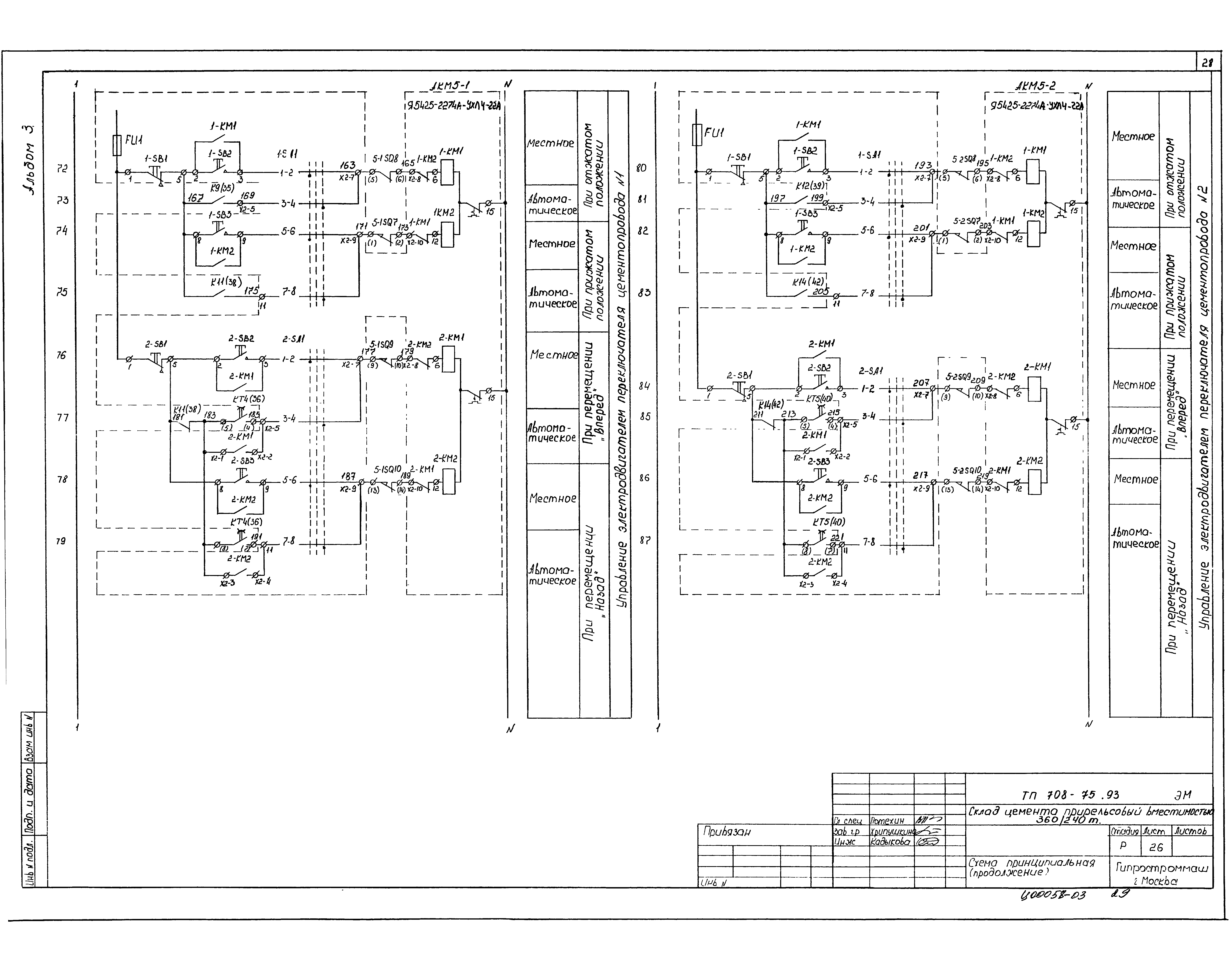
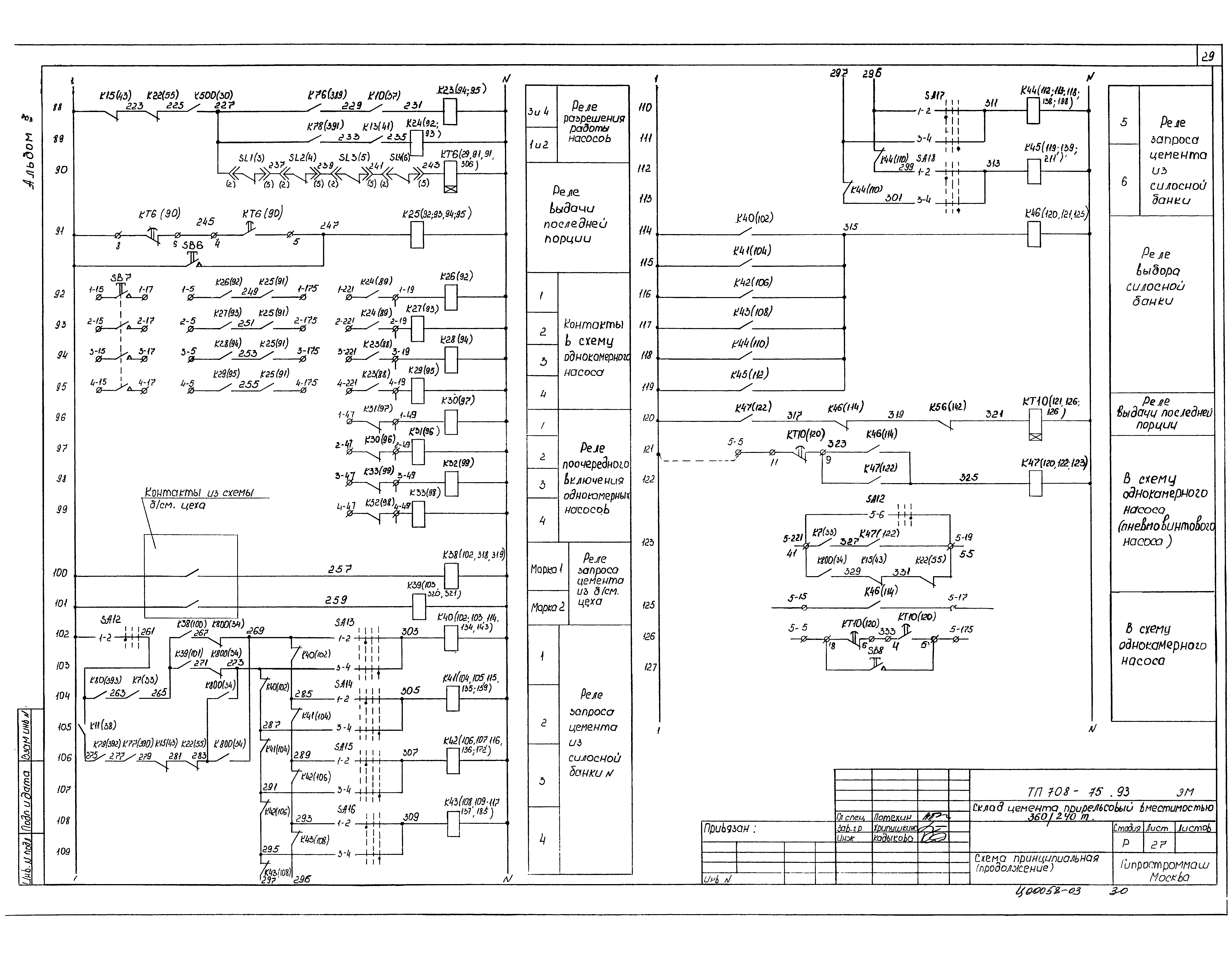
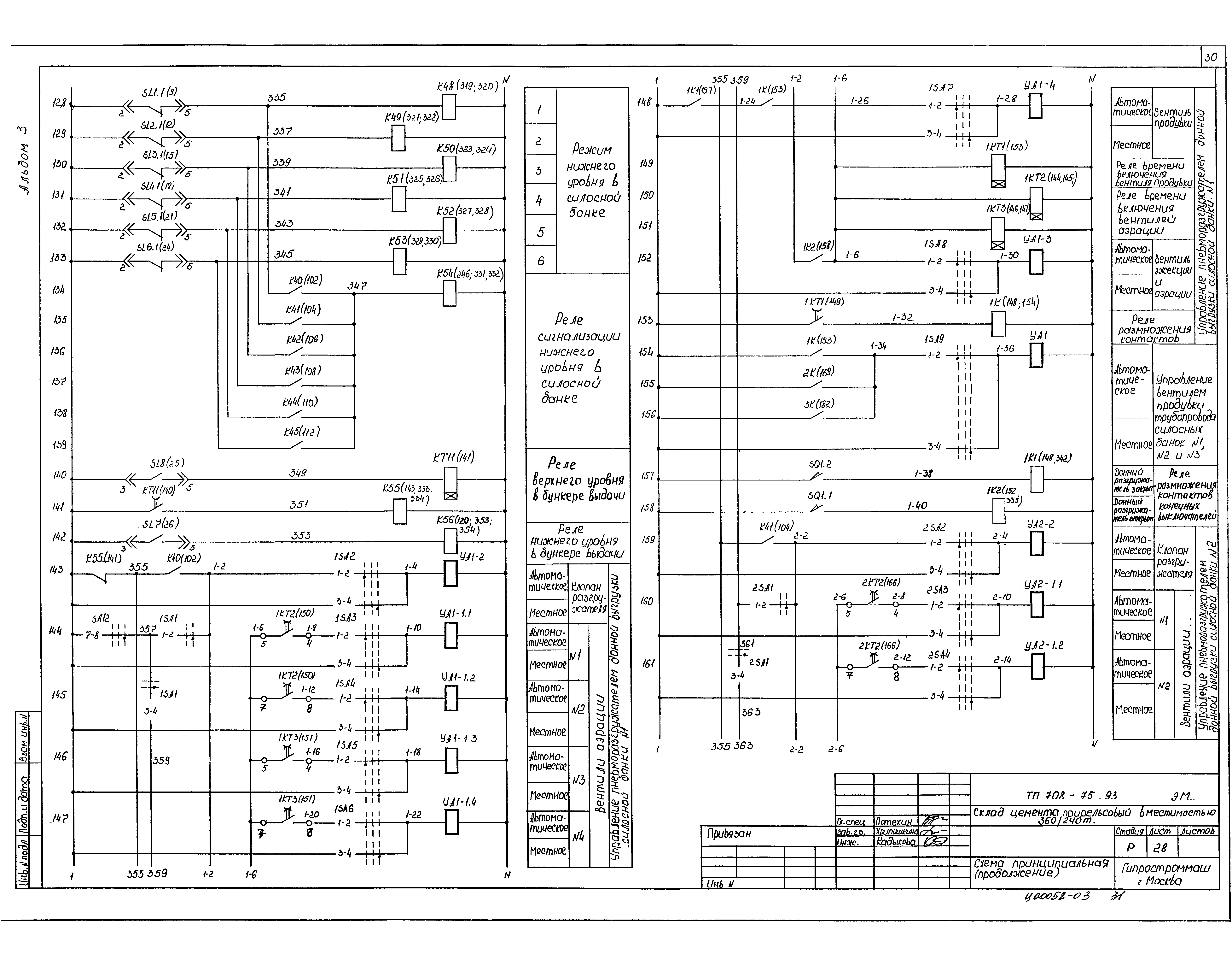
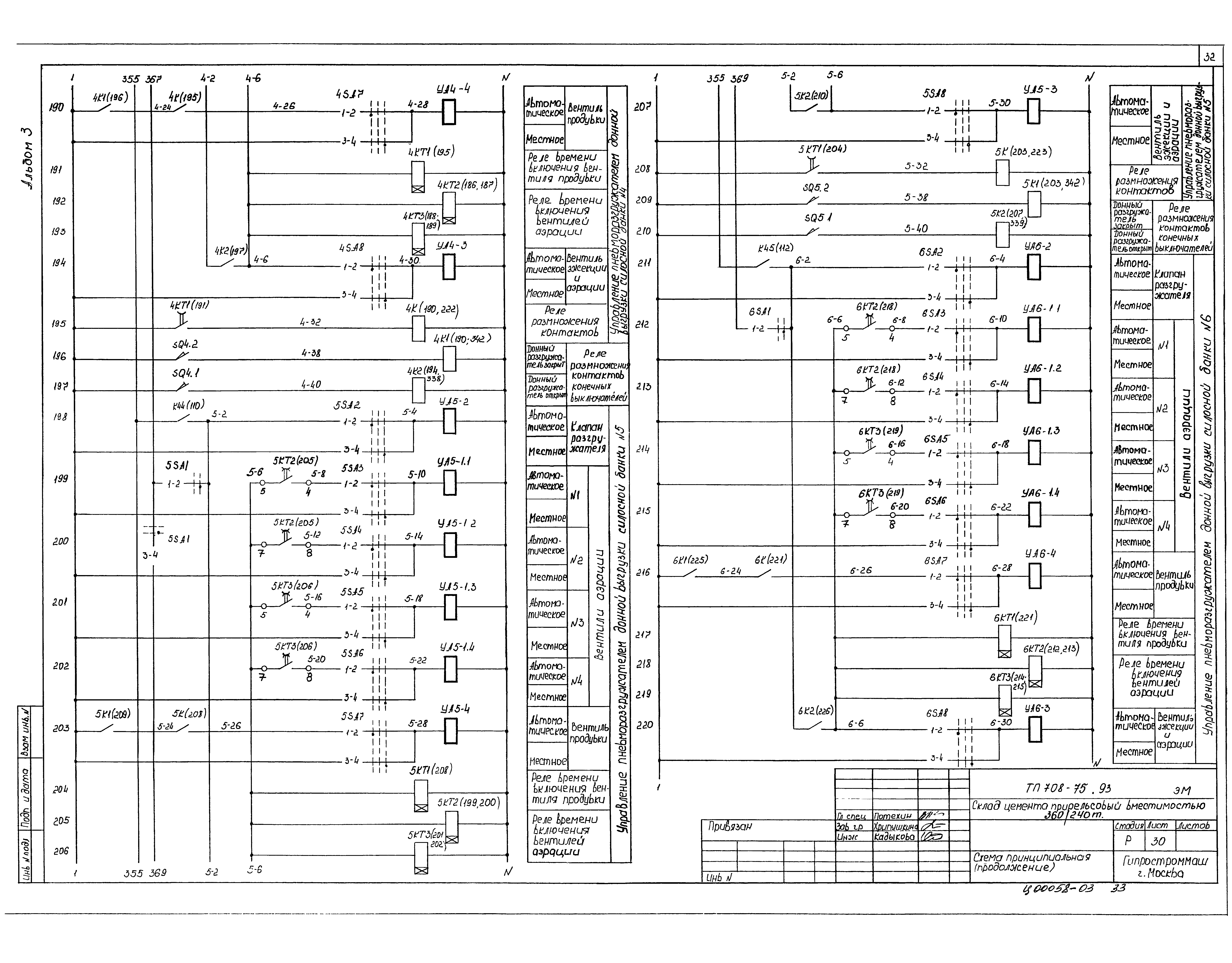
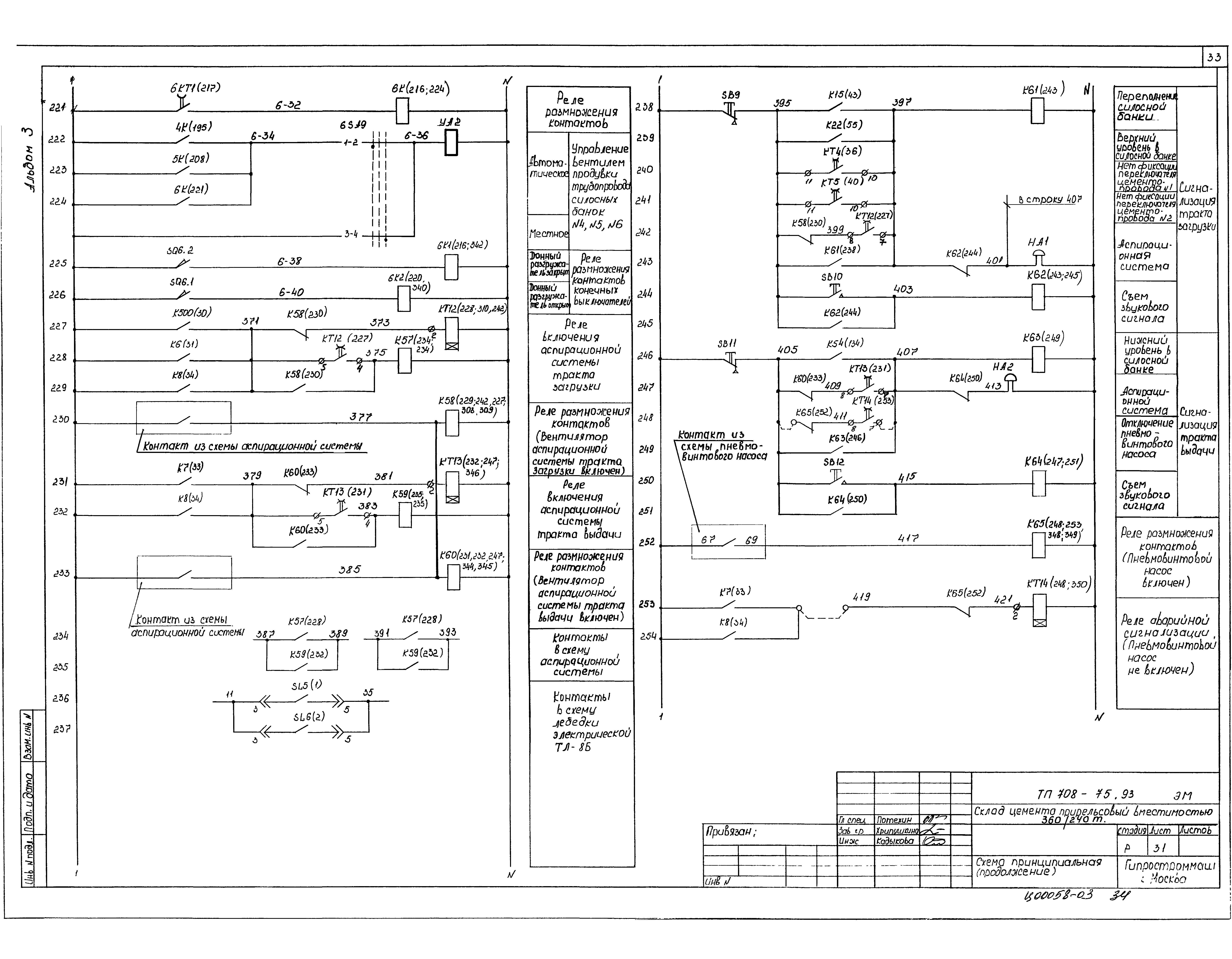
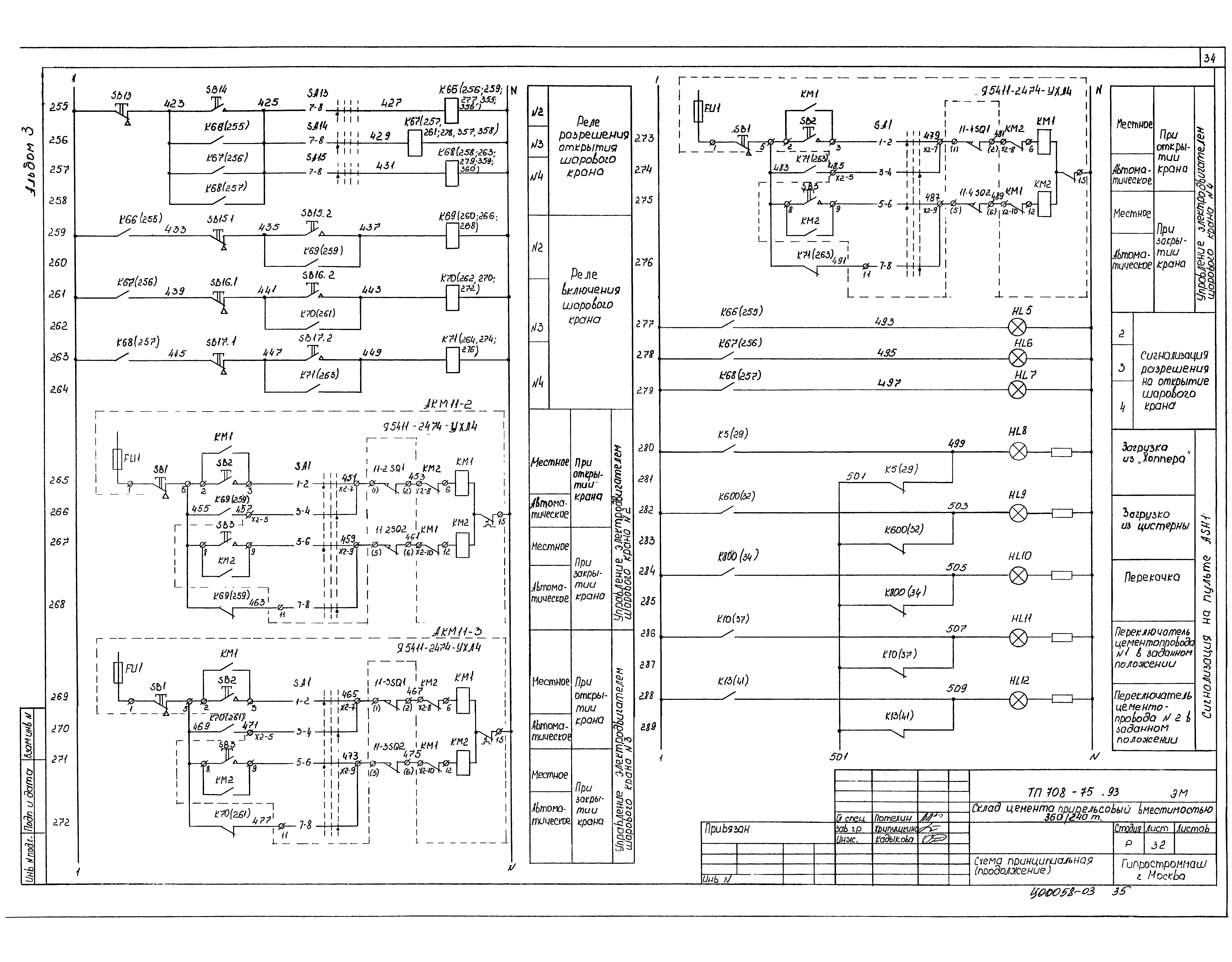
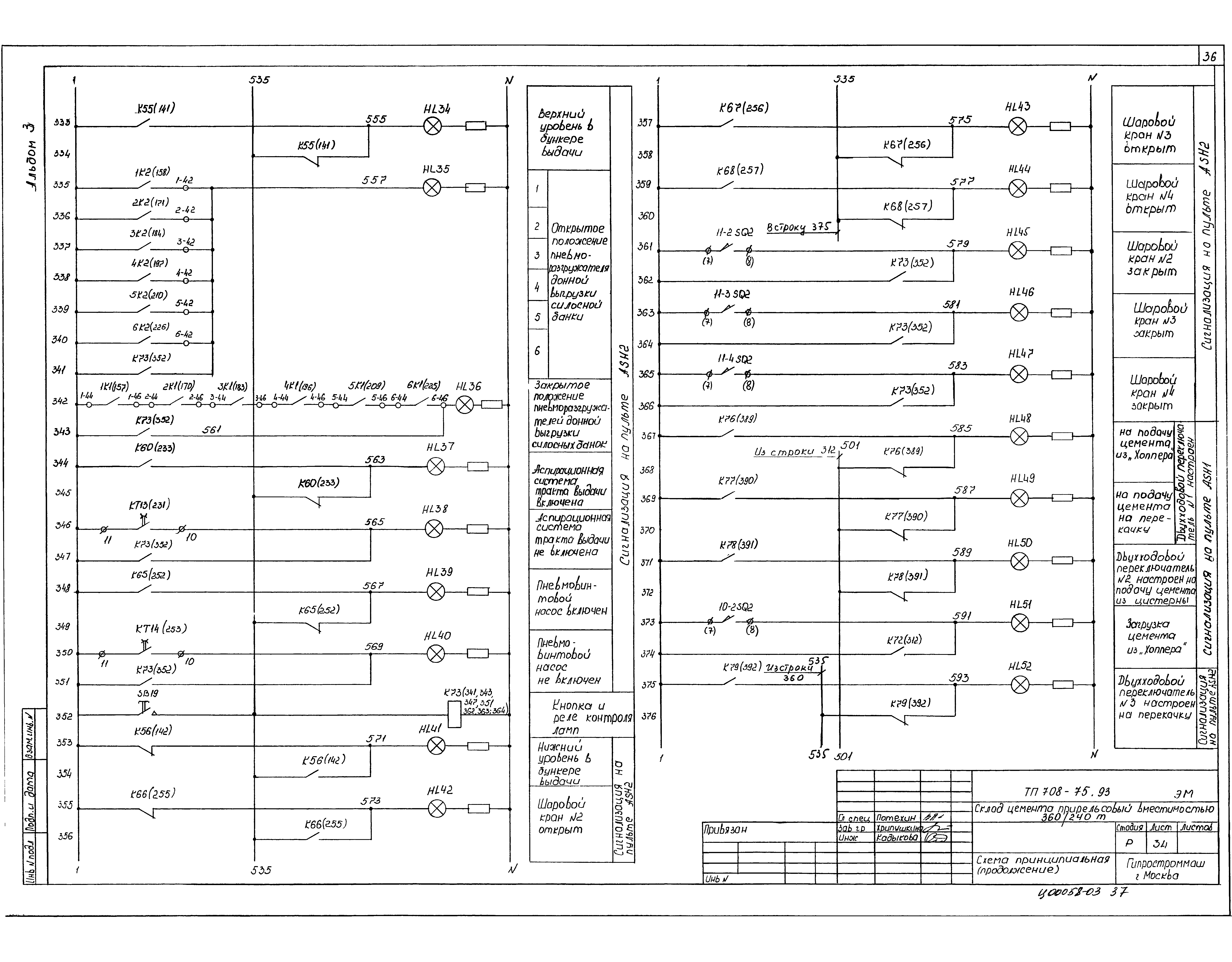
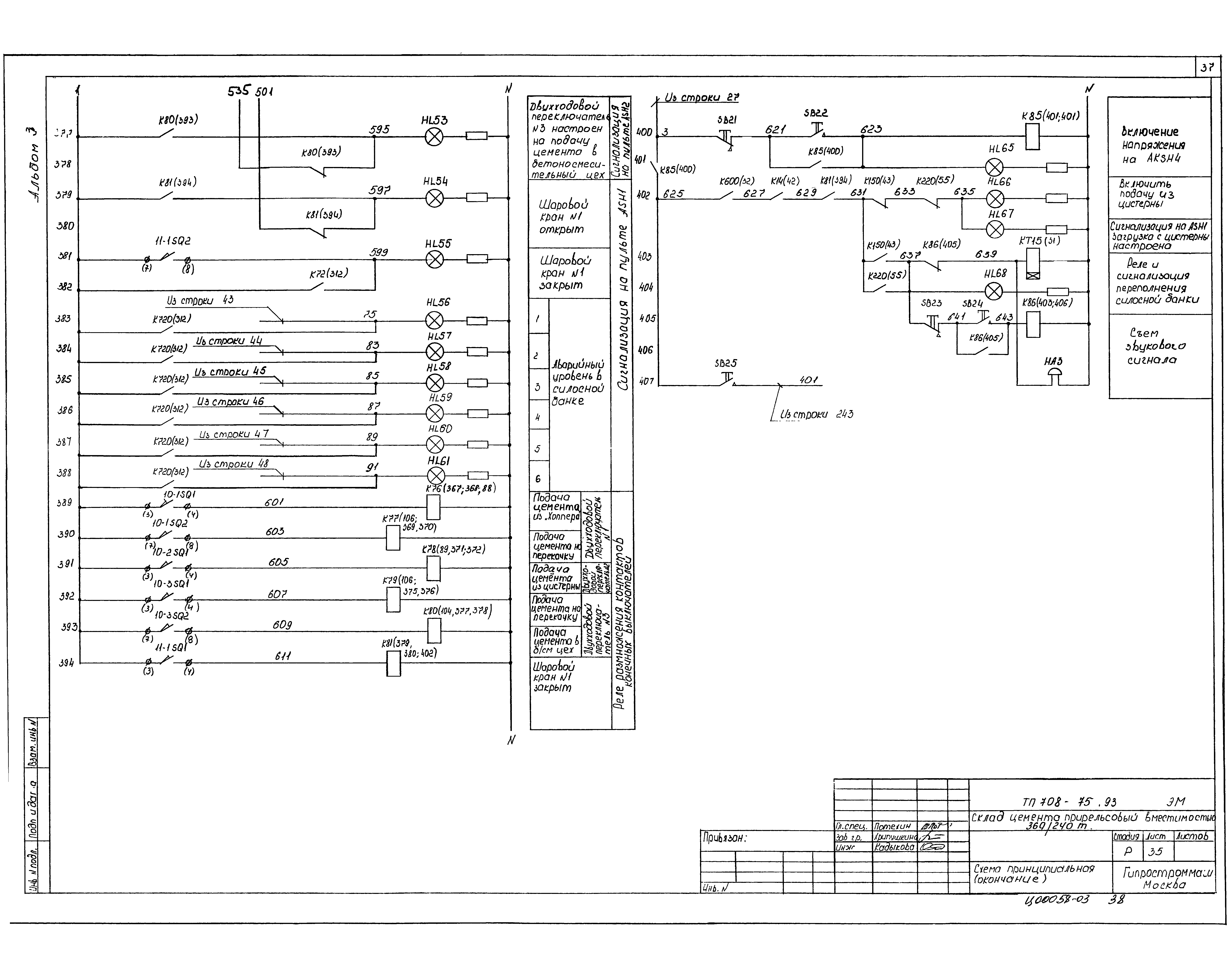
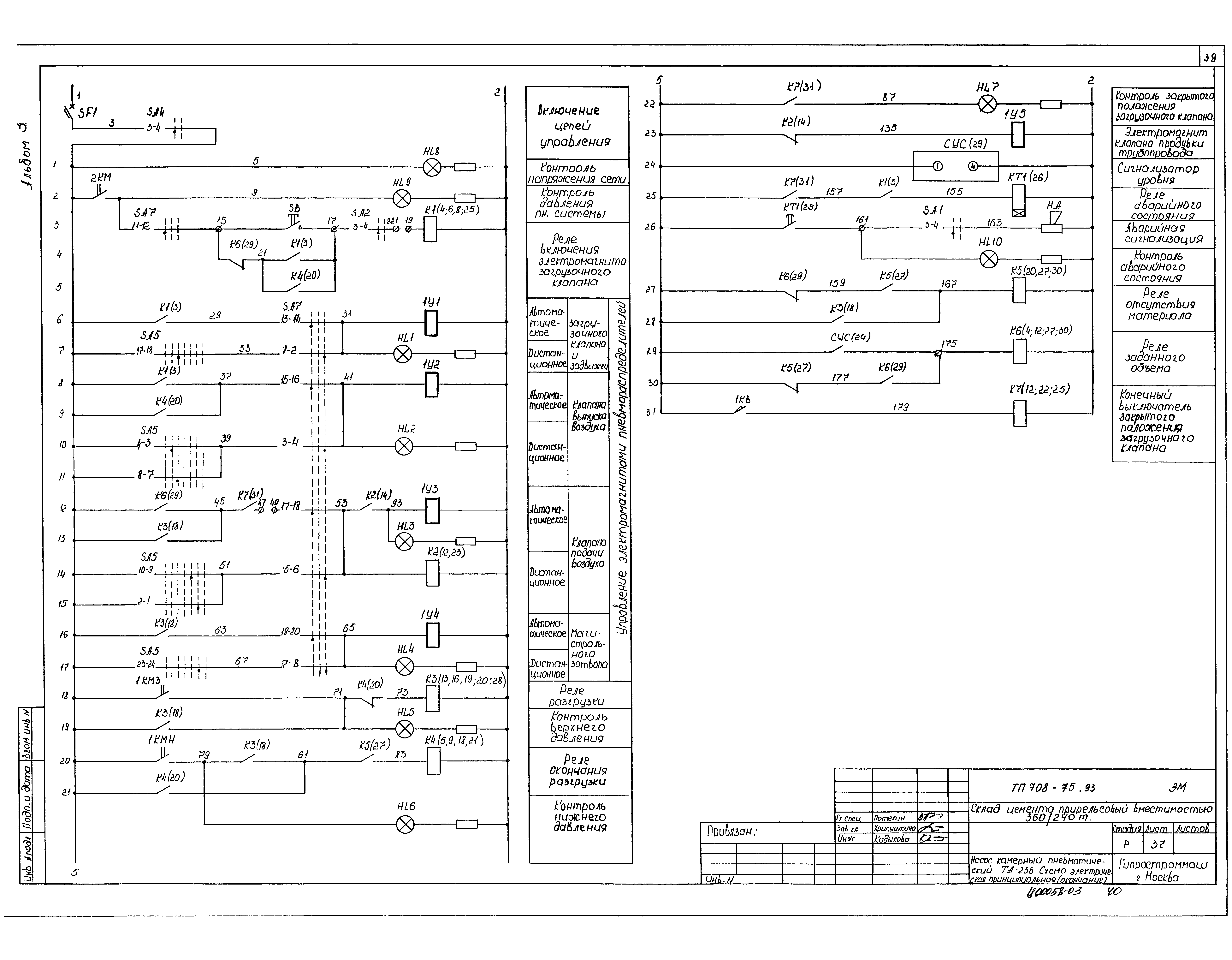
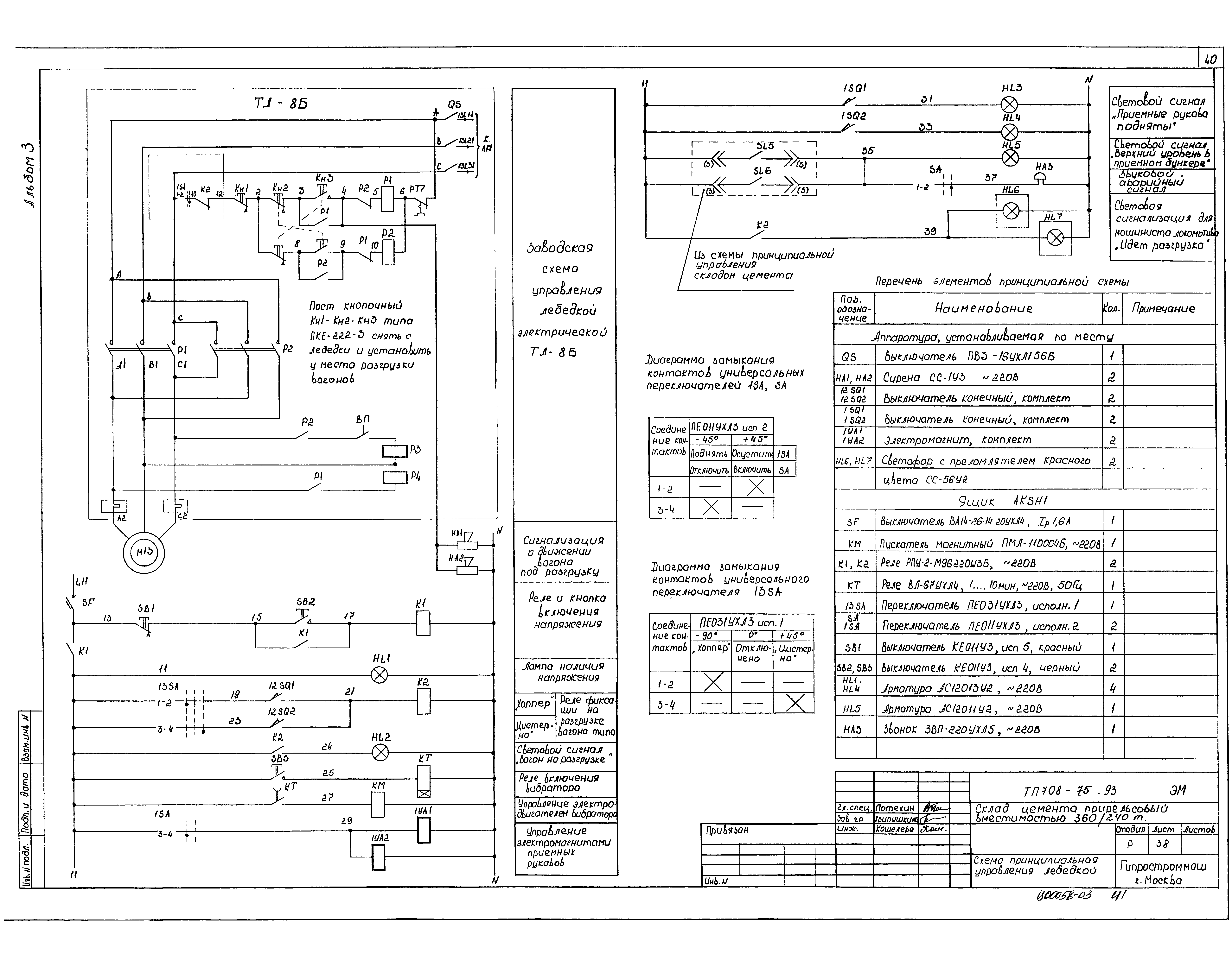
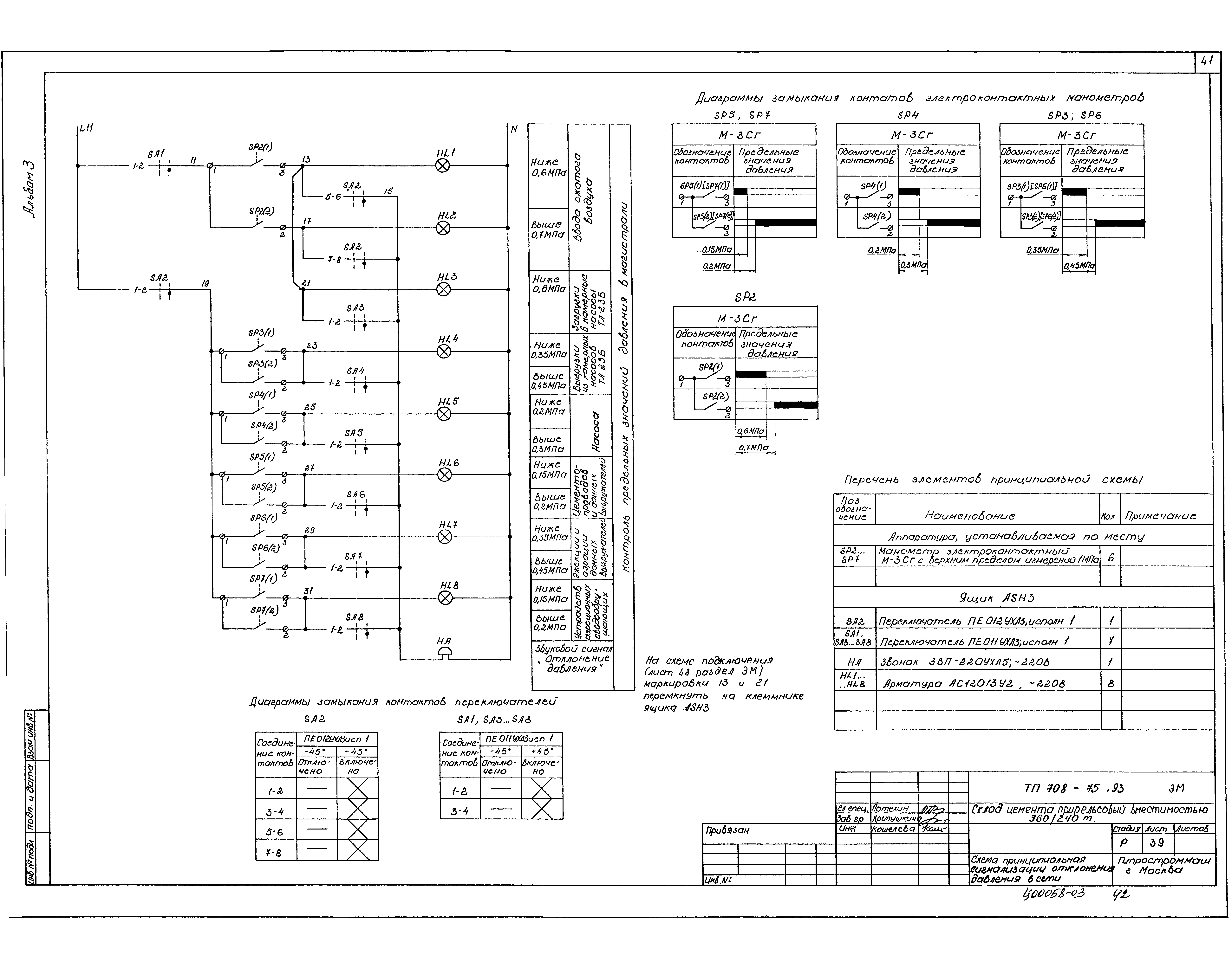
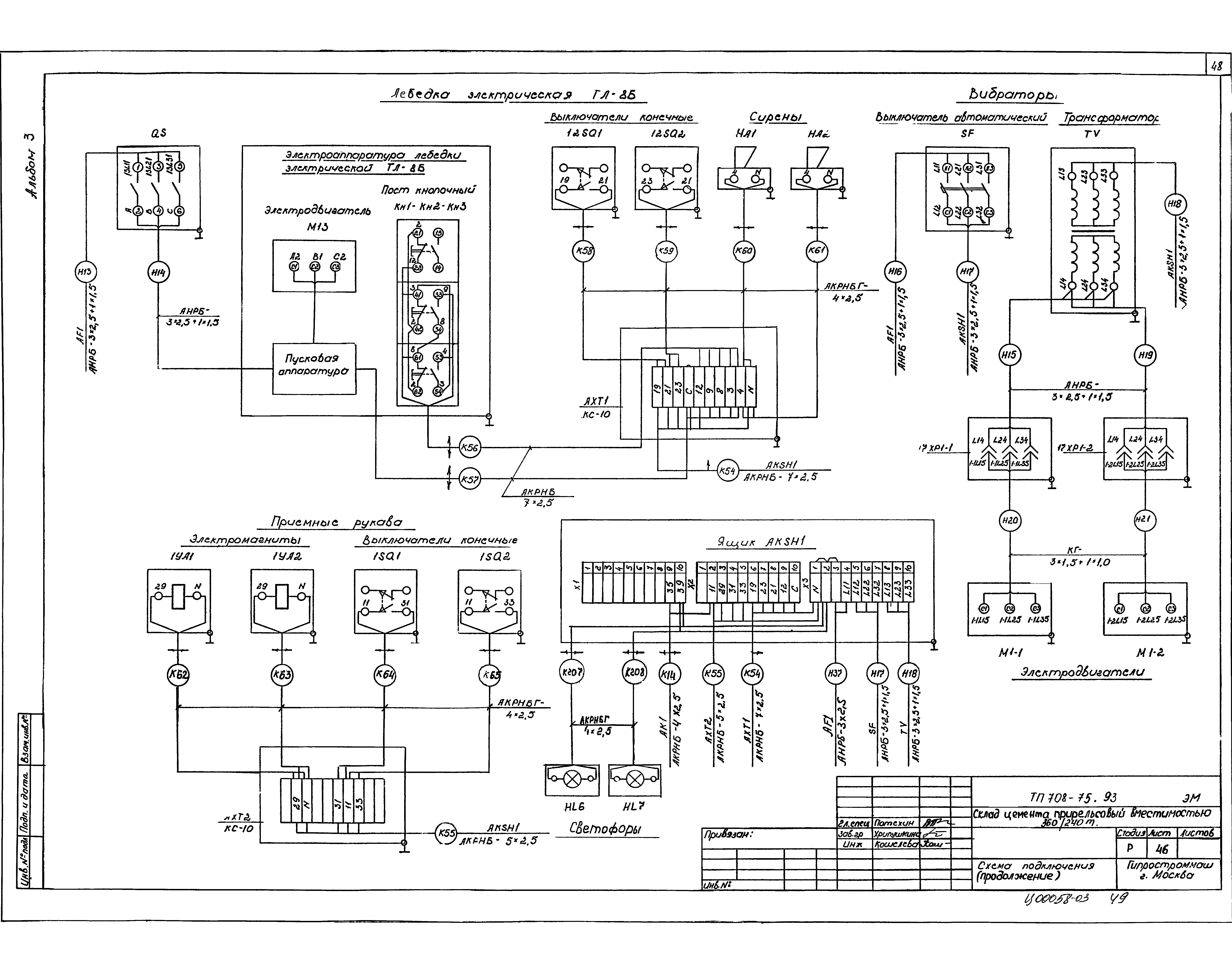
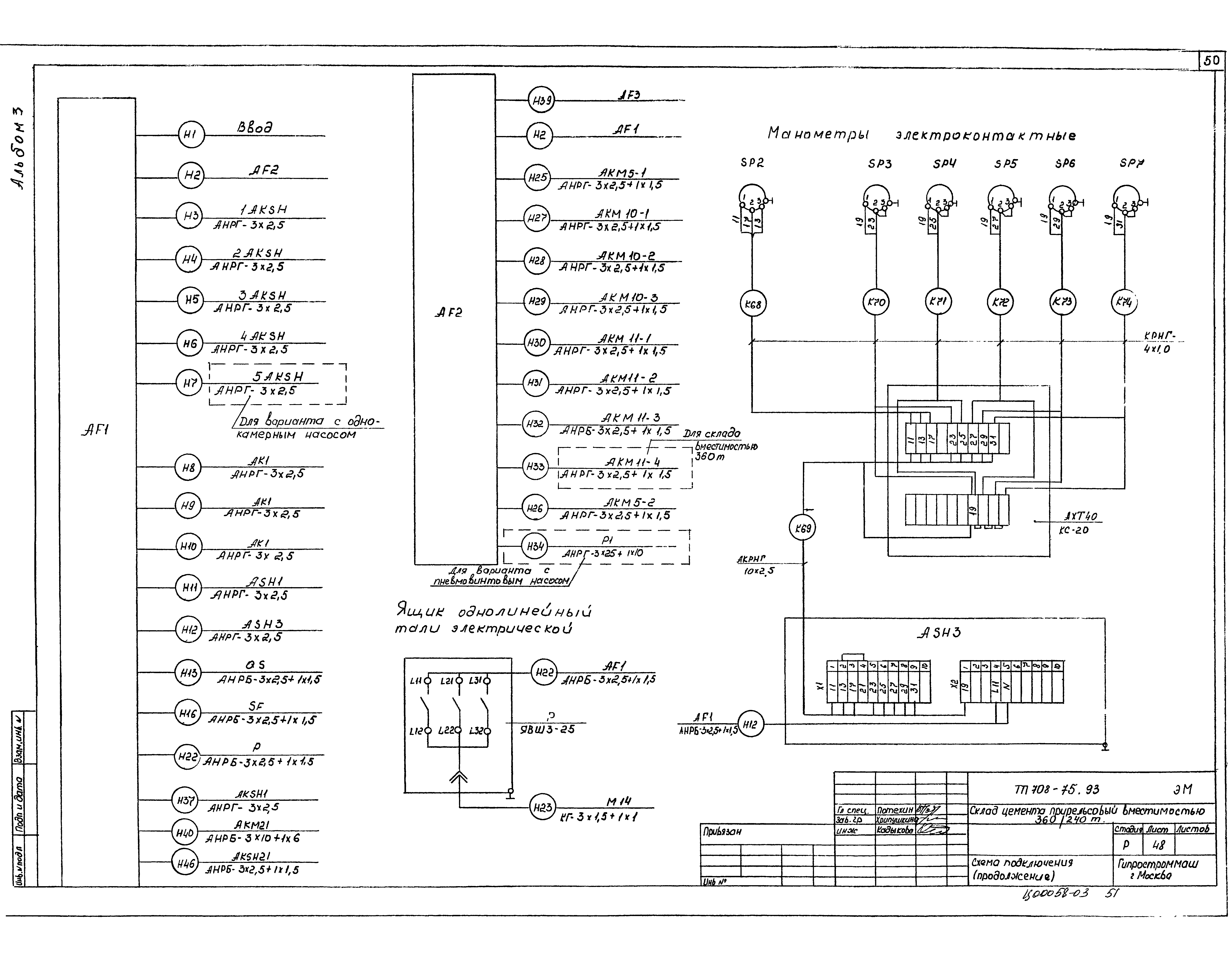
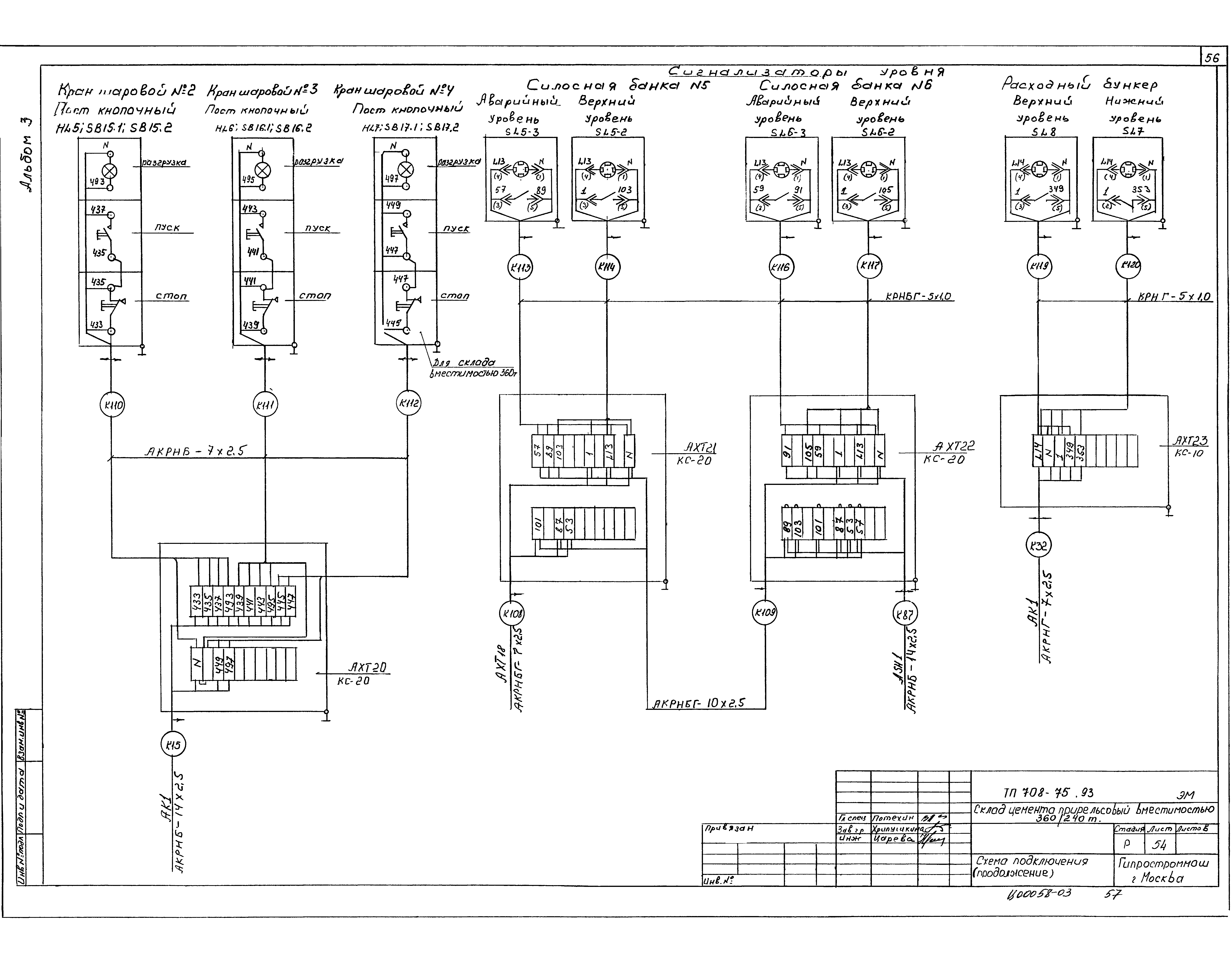
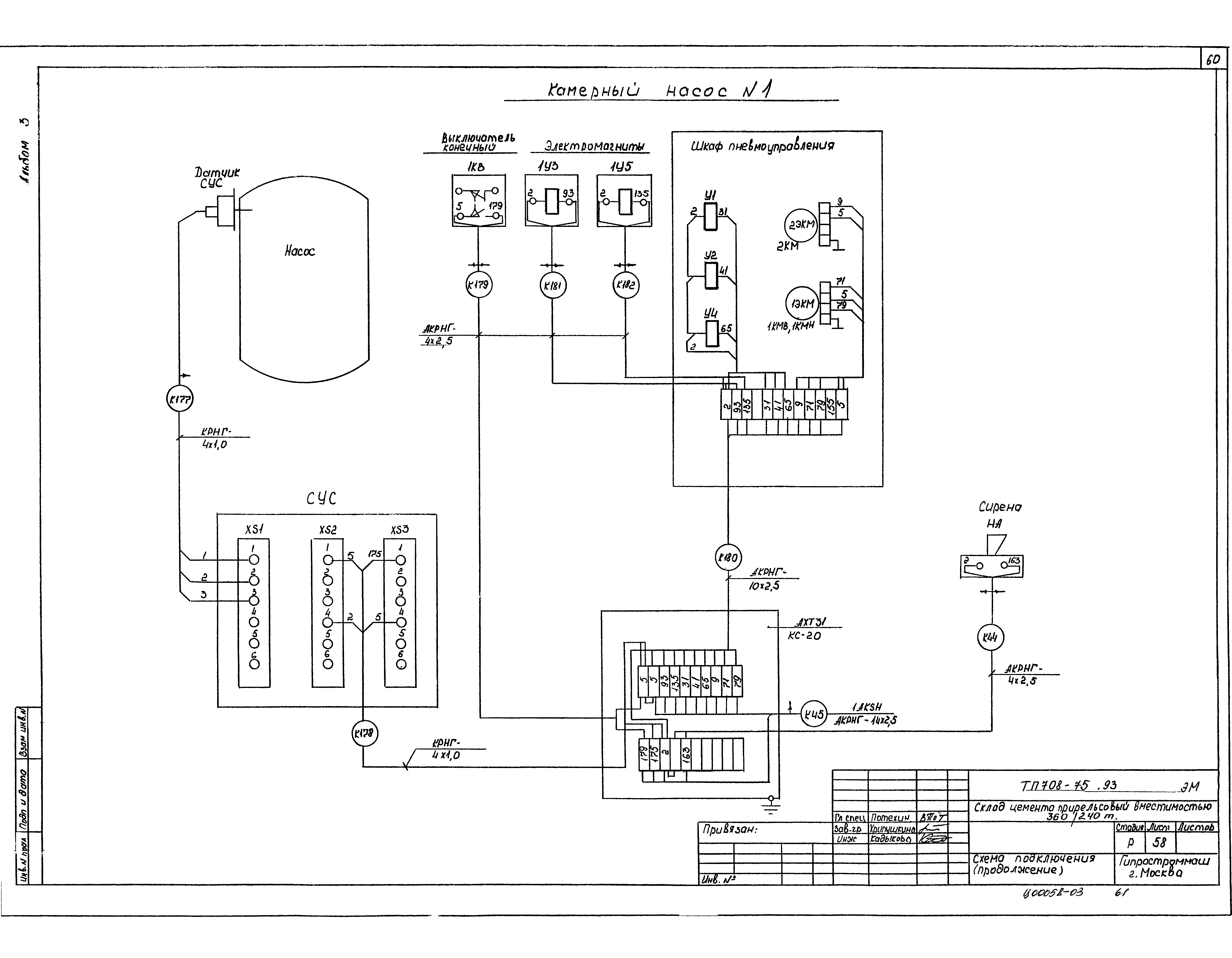
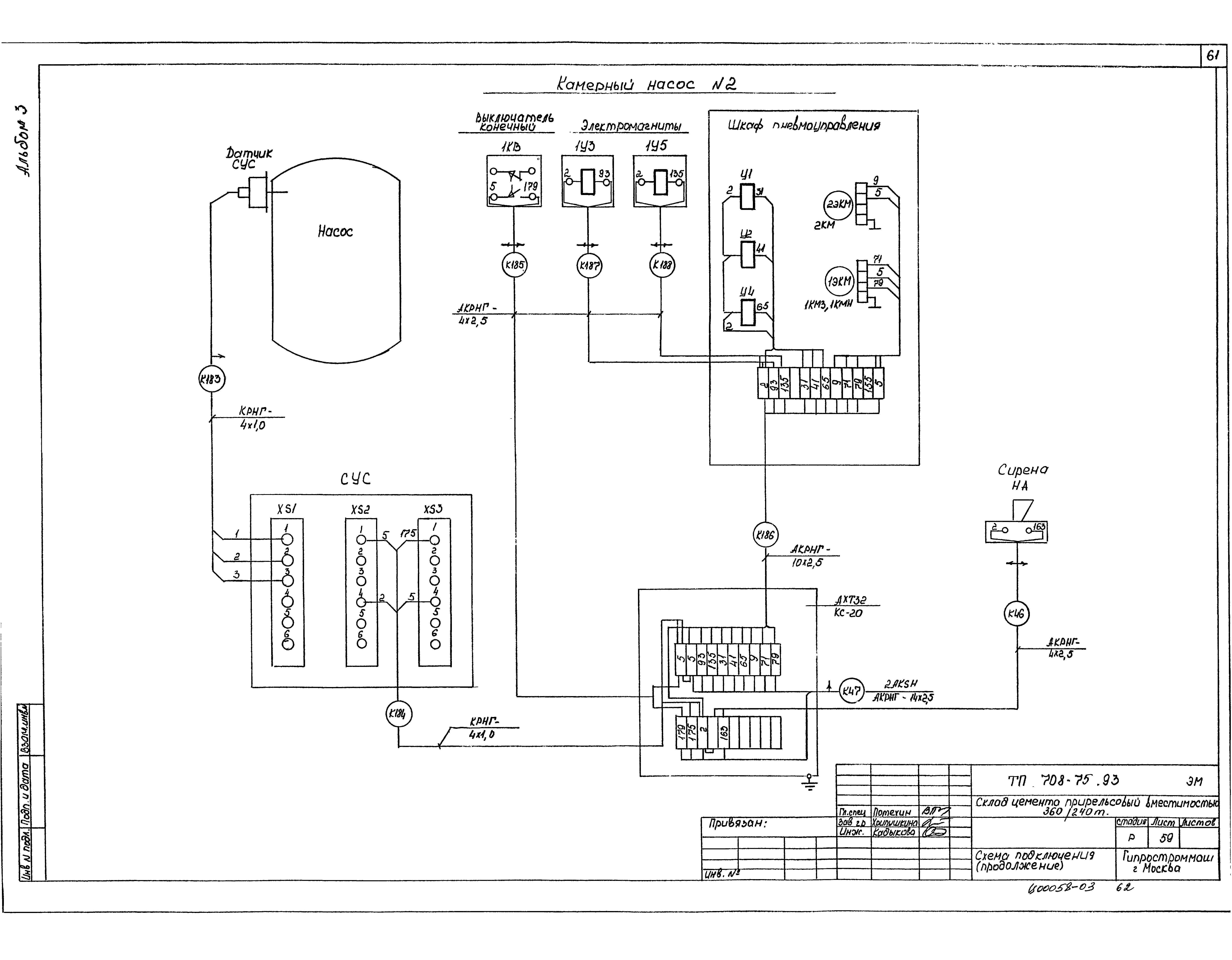
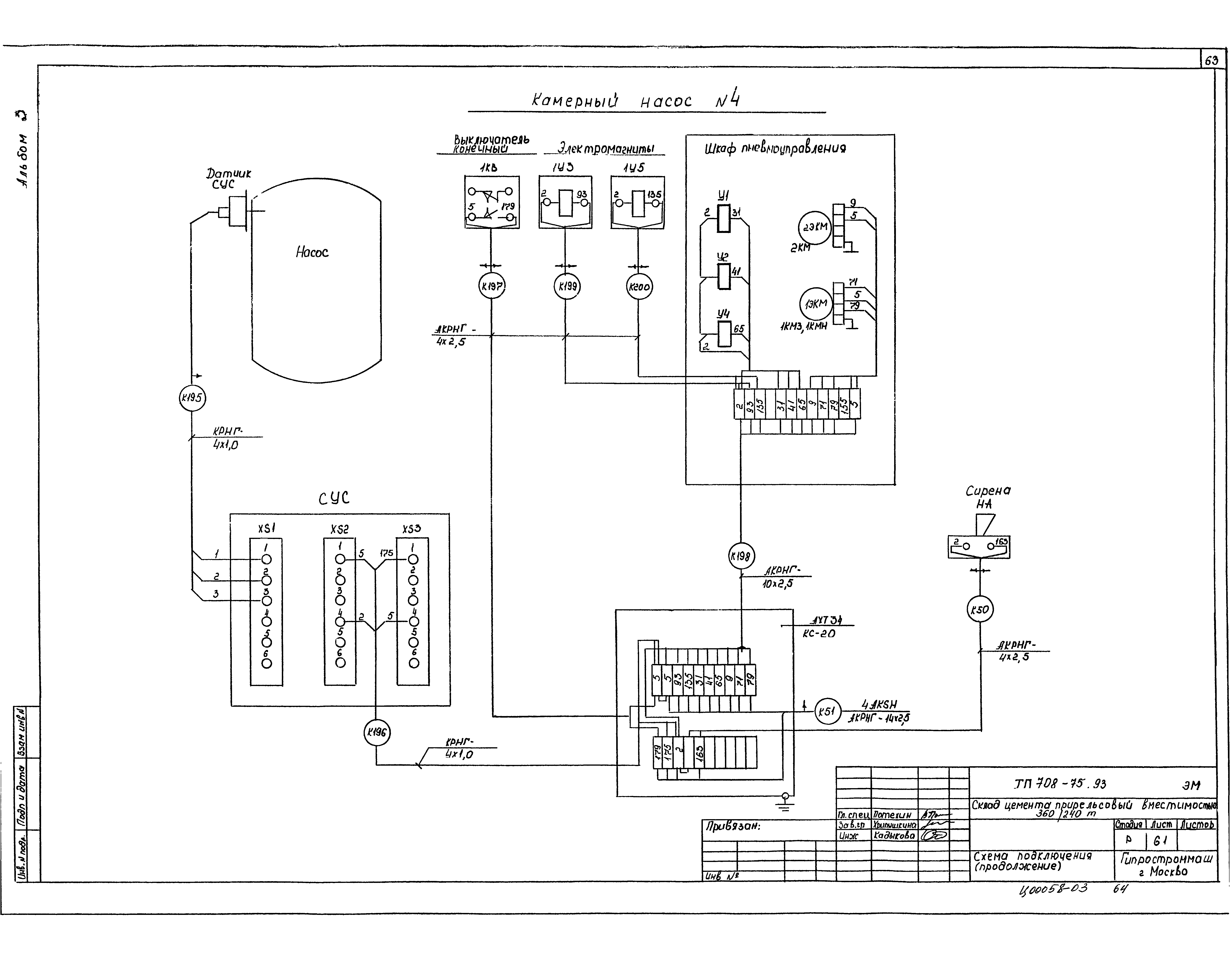
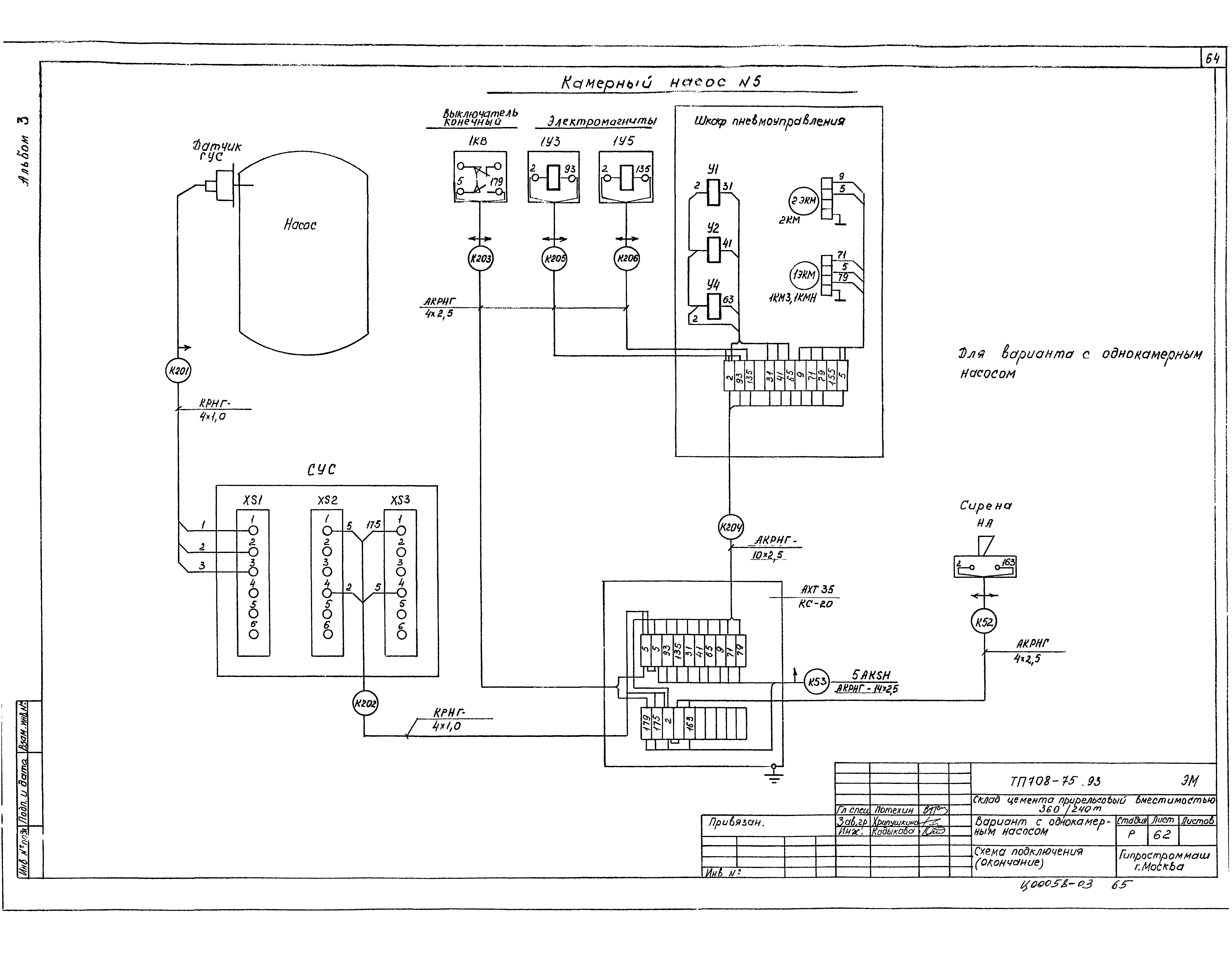
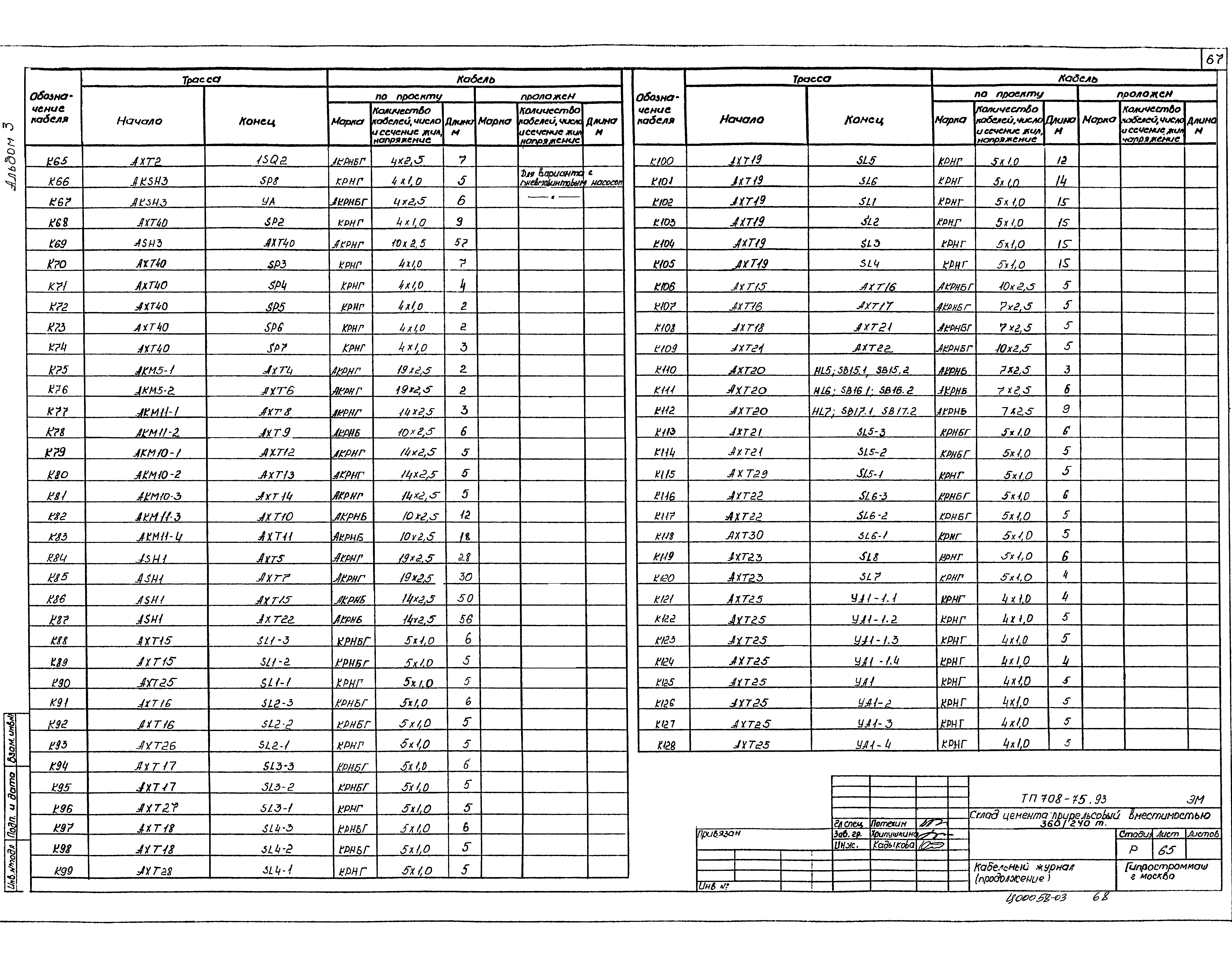
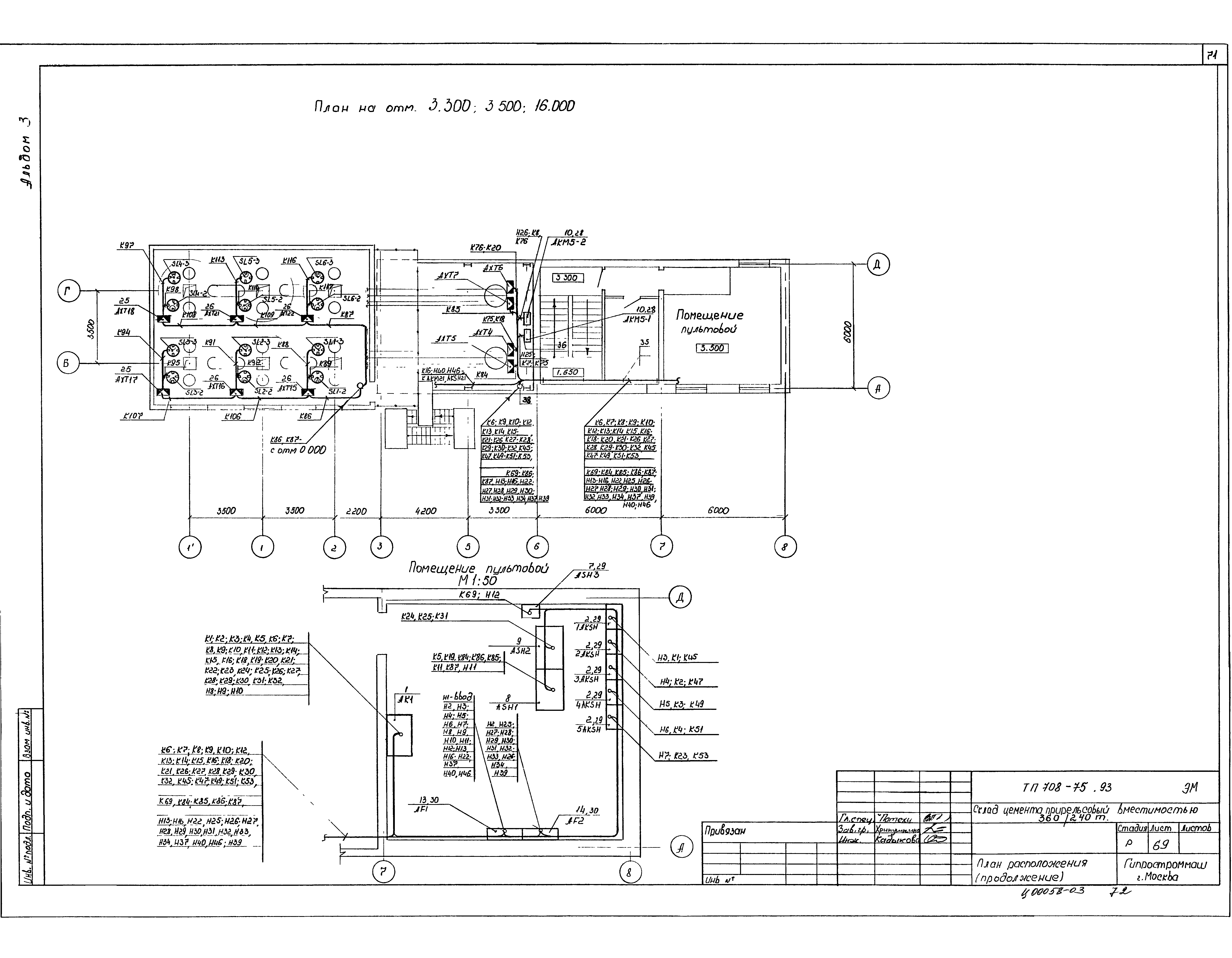
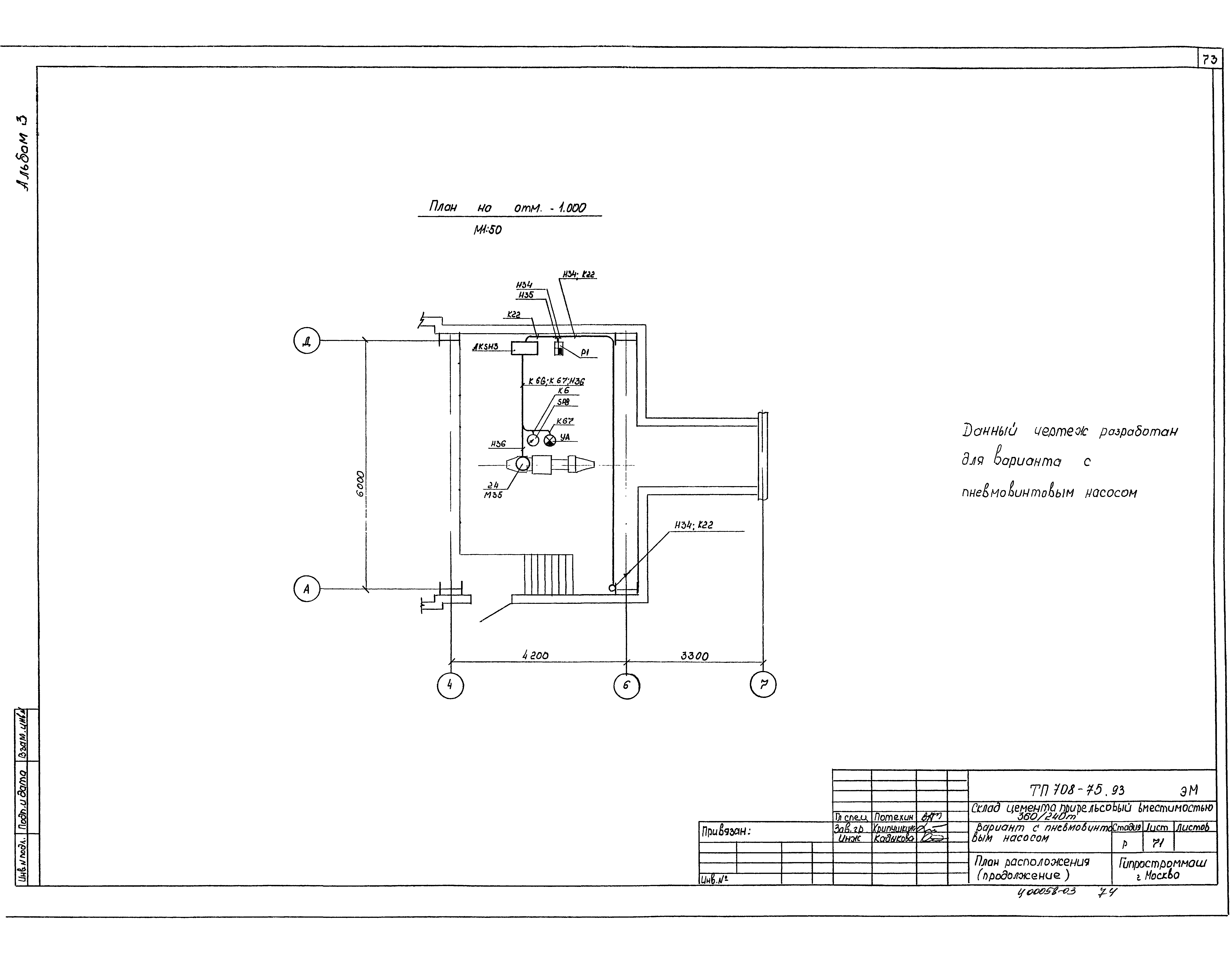
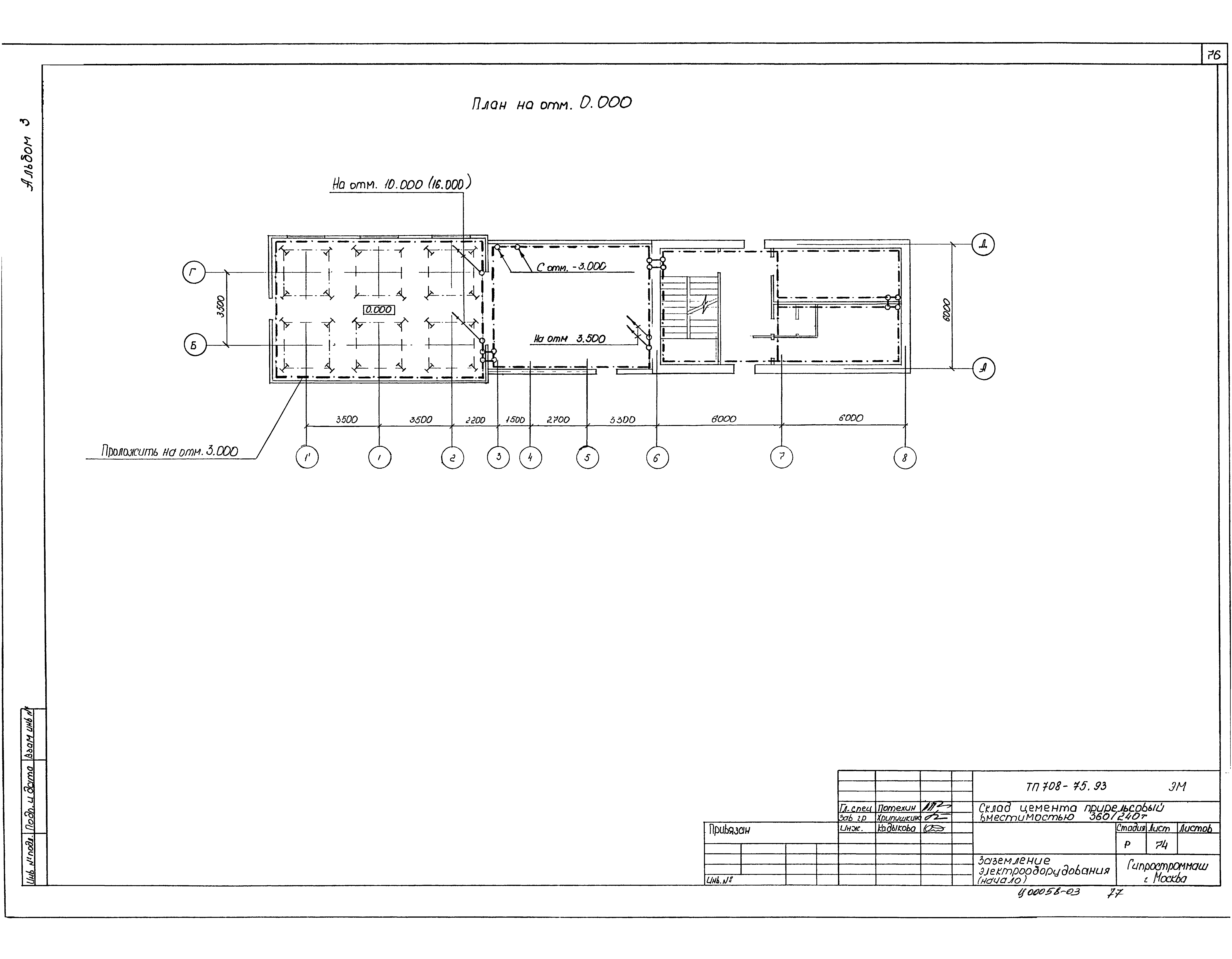
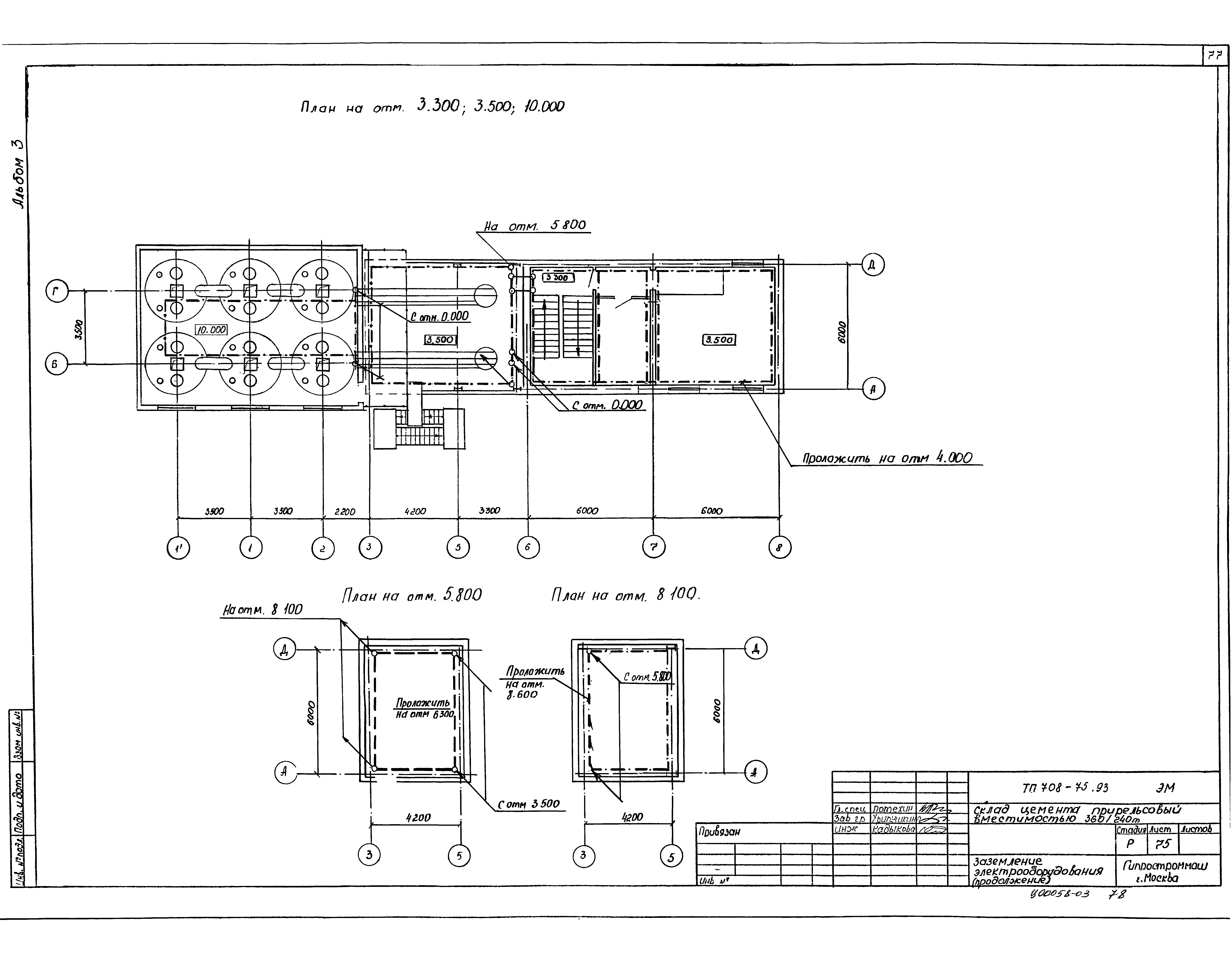
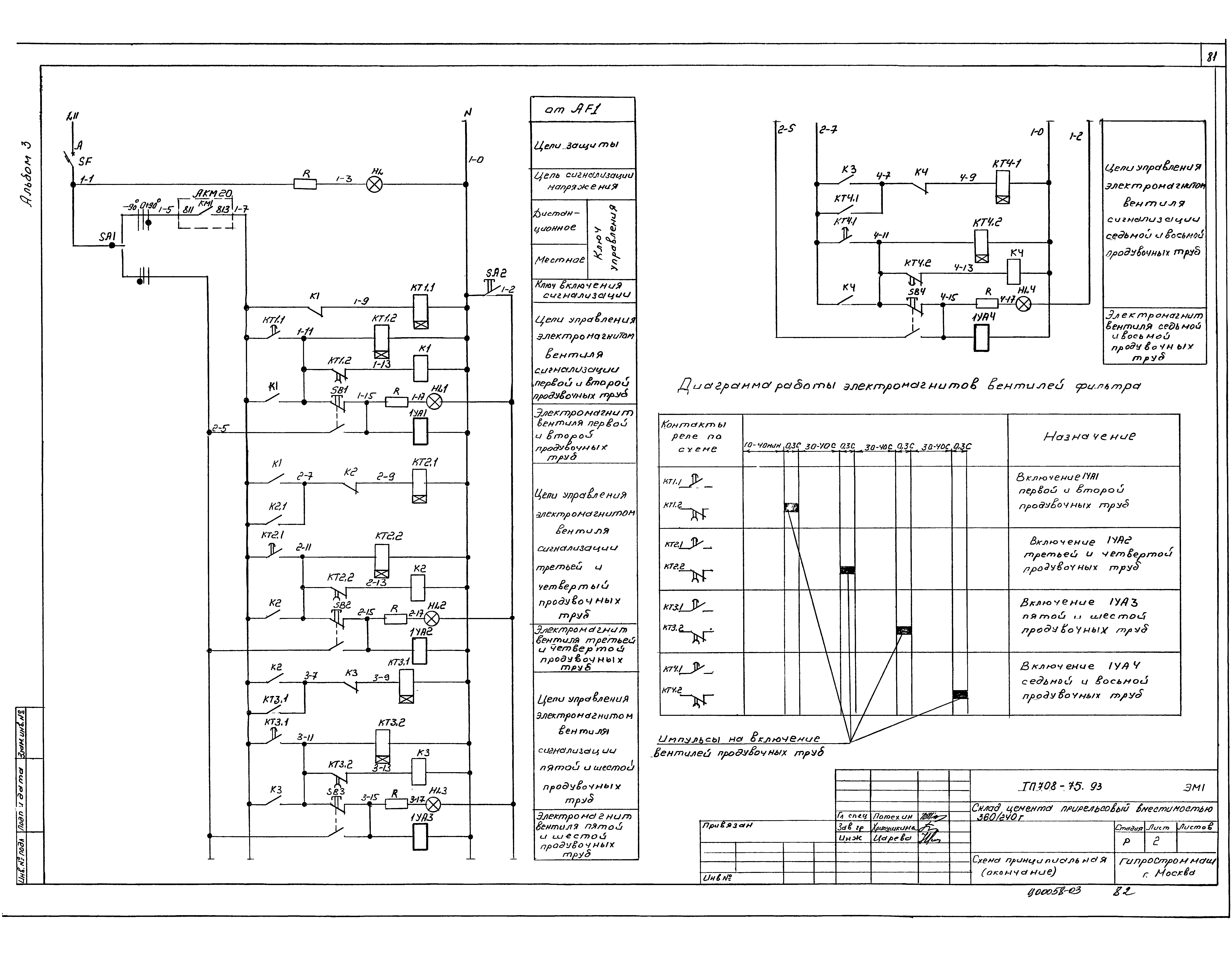
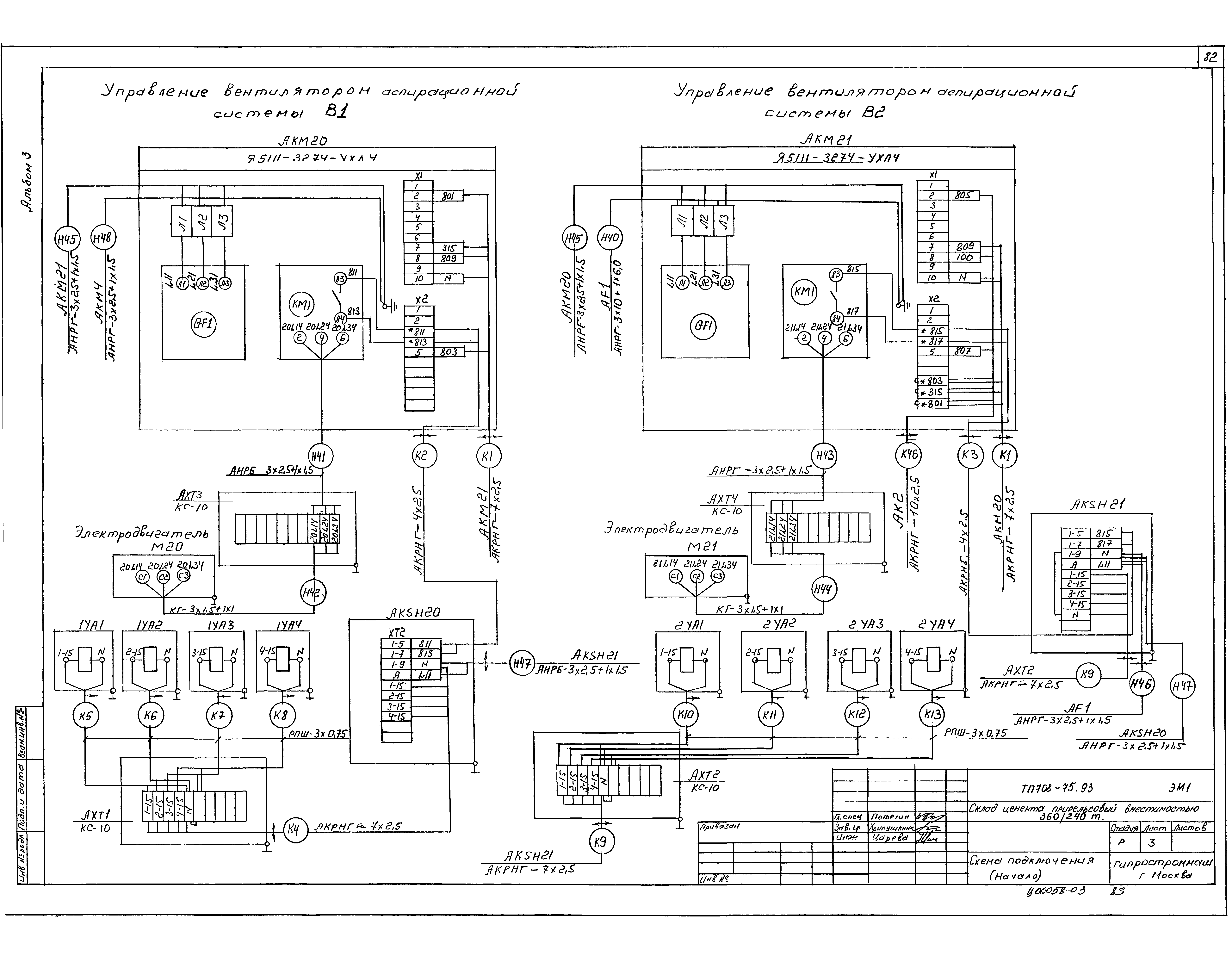
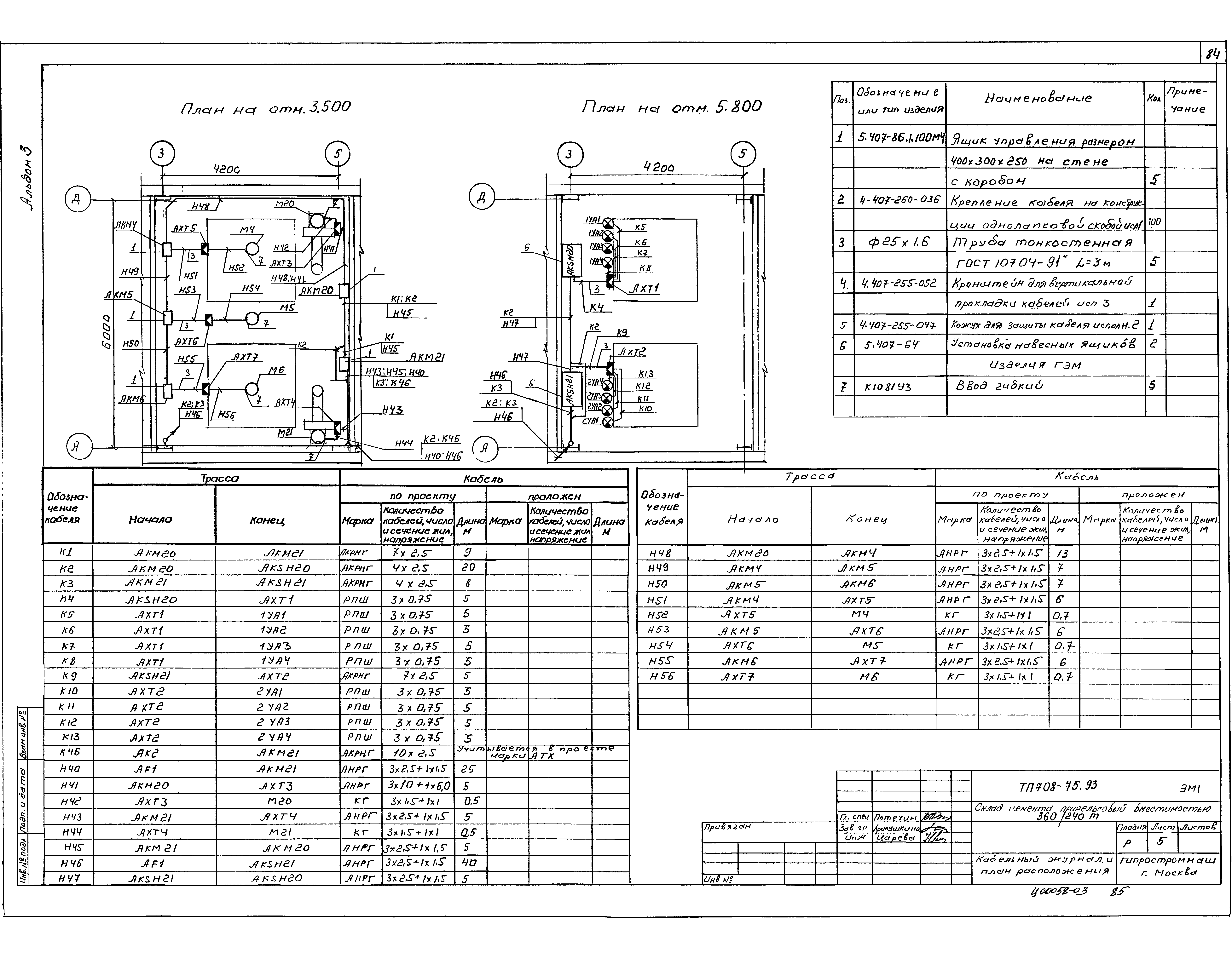
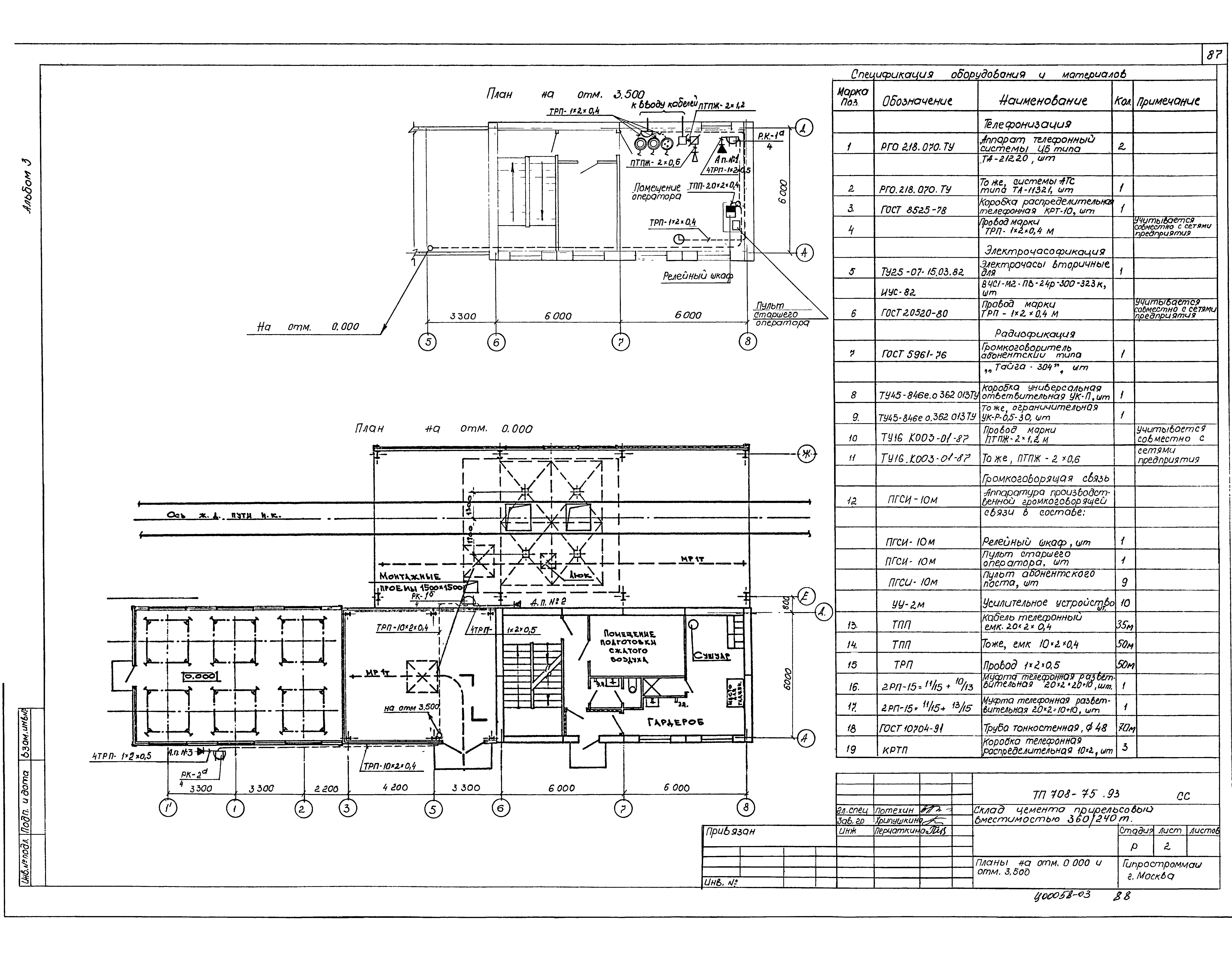
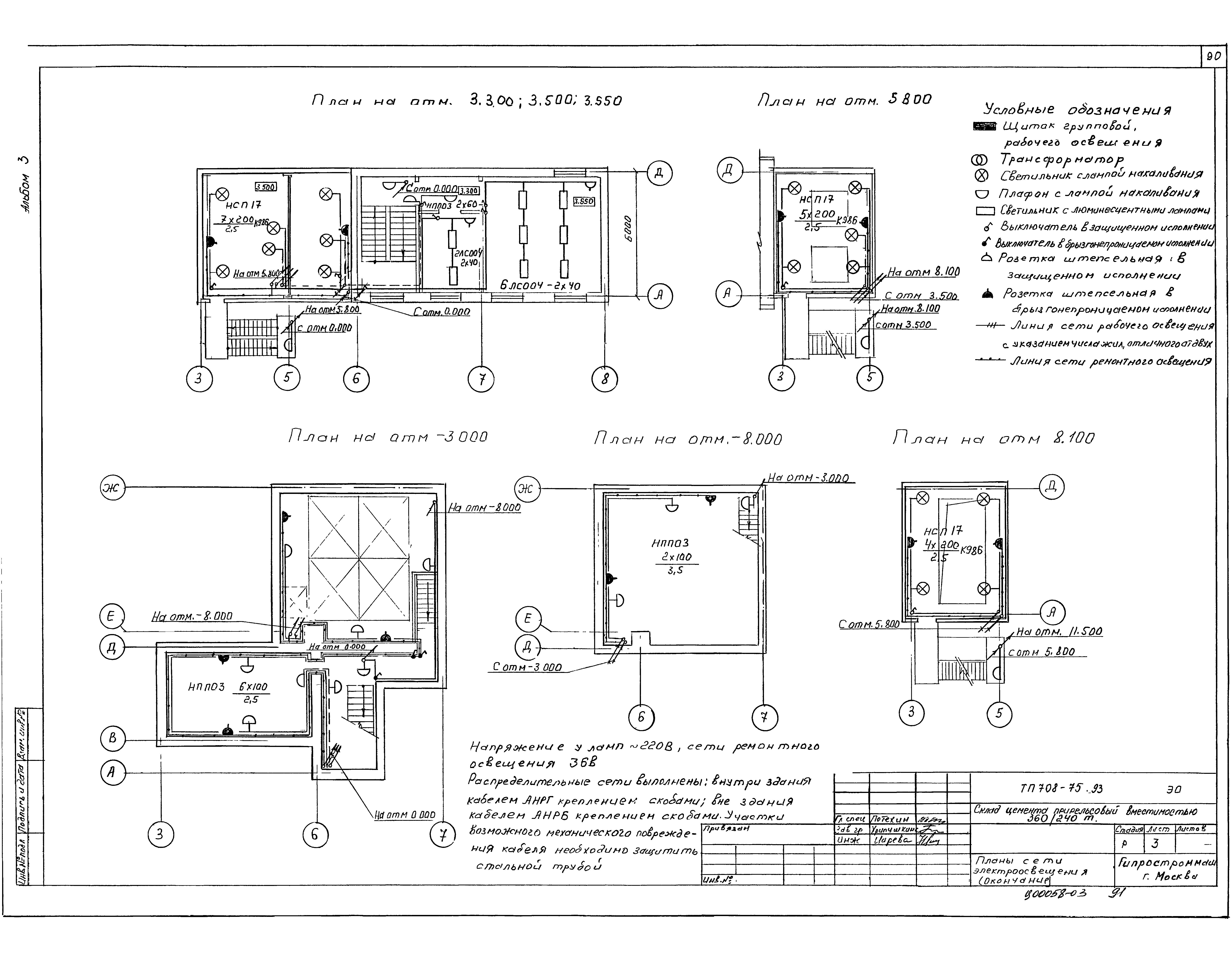
| Оглавление: | ТП 708-75.93 СА Содержание альбома ТП 708-75.93 ЭМ Силовое электрооборудование - ЭМ ТП 708-75.93 ЭМ Общие данные (начало) ТП 708-75.93 ЭМ Общие данные (продолжение) ТП 708-75.93 ЭМ Общие данные (окончание) ТП 708-75.93 ЭМ Схема принципиальная распределительной сети (начало) ТП 708-75.93 ЭМ Схема принципиальная распределительной сети (продолжение) ТП 708-75.93 ЭМ Схема принципиальная распределительной сети (окончание) ТП 708-75.93 ЭМ Схема технологическая (начало) ТП 708-75.93 ЭМ Схема технологическая (продолжение) ТП 708-75.93 ЭМ Схема технологическая (окончание) ТП 708-75.93 ЭМ Схема принципиальная (начало) ТП 708-75.93 ЭМ Схема принципиальная (продолжение) ТП 708-75.93 ЭМ Схема принципиальная (окончание) ТП 708-75.93 ЭМ Насос камерный пневматический ТА-23Б. Схема электрическая принципиальная (начало) ТП 708-75.93 ЭМ Насос камерный пневматический ТА-23Б. Схема электрическая принципиальная (окончание) ТП 708-75.93 ЭМ Схема принципиальная управление лебедкой ТП 708-75.93 ЭМ Схема принципиальная сигнализации отклонения давления в сети ТП 708-75.93 ЭМ Схема принципиальная управления пневмовинтовым насосом ТП 708-75.93 ЭМ Схема подключения (начало) ТП 708-75.93 ЭМ Схема подключения (продолжение) ТП 708-75.93 ЭМ Схема подключения (окончание) ТП 708-75.93 ЭМ Кабельный журнал (начало) ТП 708-75.93 ЭМ Кабельный журнал (продолжение) ТП 708-75.93 ЭМ Кабельный журнал (окончание ТП 708-75.93 ЭМ План расположения (начало) ТП 708-75.93 ЭМ План расположения (продолжение) ТП 708-75.93 ЭМ План расположения (окончание) ТП 708-75.93 ЭМ Заземления электрооборудования (начало) ТП 708-75.93 ЭМ Заземления электрооборудования (продолжение) ТП 708-75.93 ЭМ Заземления электрооборудования (окончание) ТП 708-75.93 ЭМ Ведомость объемов электромонтажных и строительных работ и задание МЭЗ ТП 708-75.93 ЭМ1 Силовое электрооборудование технологической аспирации - ЭМ1 ТП 708-75.93 ЭМ1 Общие данные. Схема принципиальная (начало) ТП 708-75.93 ЭМ1 Схема принципиальная (окончание) ТП 708-75.93 ЭМ1 Схема подключения (начало) ТП 708-75.93 ЭМ1 Схема подключения (окончание) ТП 708-75.93 ЭМ1 Кабельный журнал и план расположения ТП 708-75.93 ЭМ1 Ведомости на электрооборудование, кабельные изделия и материалы ТП 708-75.93 СС Связь и сигнализация - СС ТП 708-75.93 СС Общие данные. Устройства связи и сигнализации. Скелетные схемы ТП 708-75.93 СС Планы на отм. 0.000 и отм.3.500 ТП 708-75.93 ЭО Электроосвещение - ЭО ТП 708-75.93 ЭО Общие данные ТП 708-75.93 ЭО Планы сети электроосвещения (начало) ТП 708-75.93 ЭО Планы сети электроосвещения (окончание) ТП 708-75.93 ЭО Конструкция и установка светильников с лампой накаливания ТП 708-75.93 ЭО Коробка с выключателем и коробка со штепсельной розеткой ТП 708-75.93 ЭО Ведомости электрооборудования, кабельных изделий и материалов |
| Разработан: | Гипростроммаш Проектный институт №2 |
| Утверждён: | 30.11.1993 Главпроект Госстроя России (9-3-1/254) |





























































































