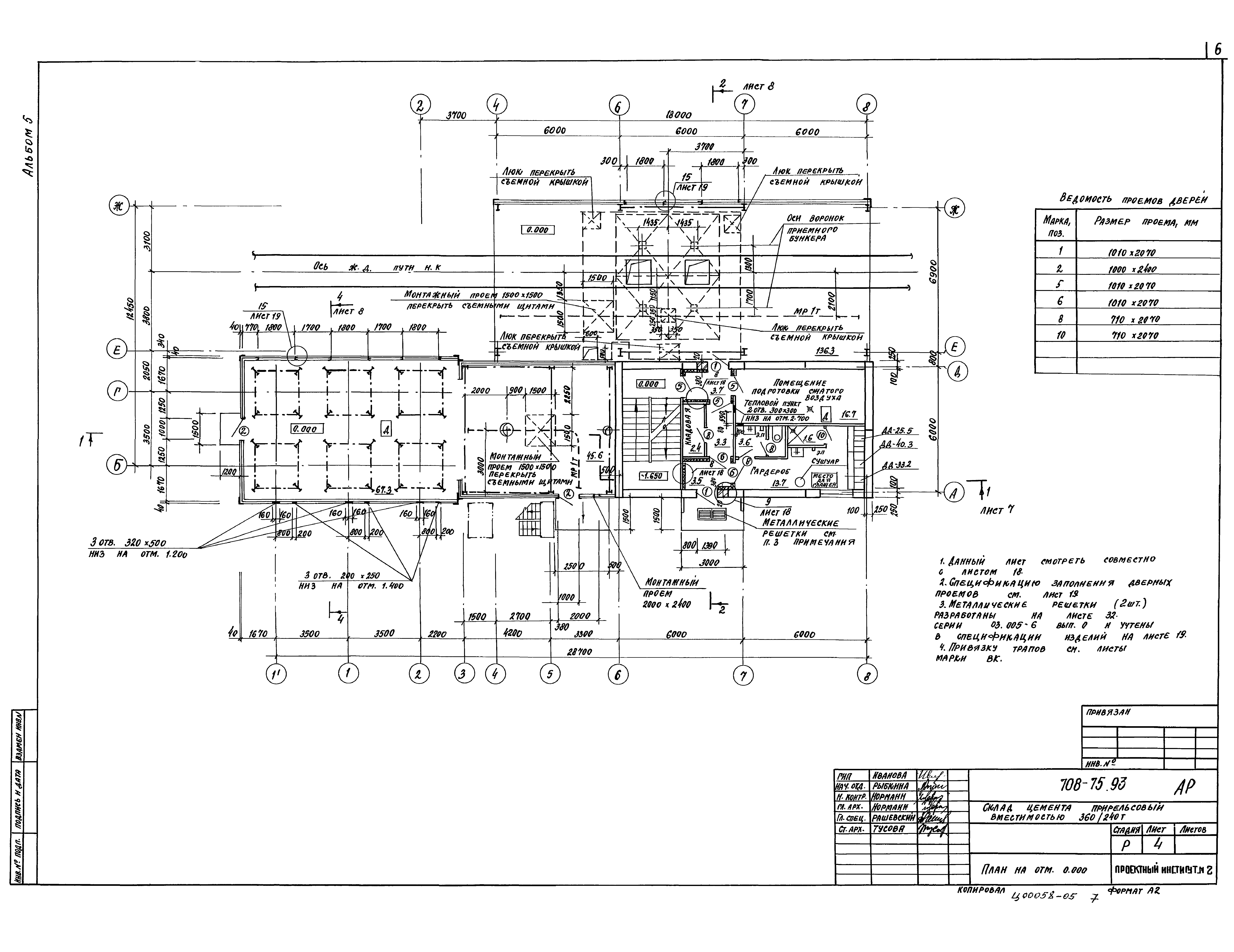
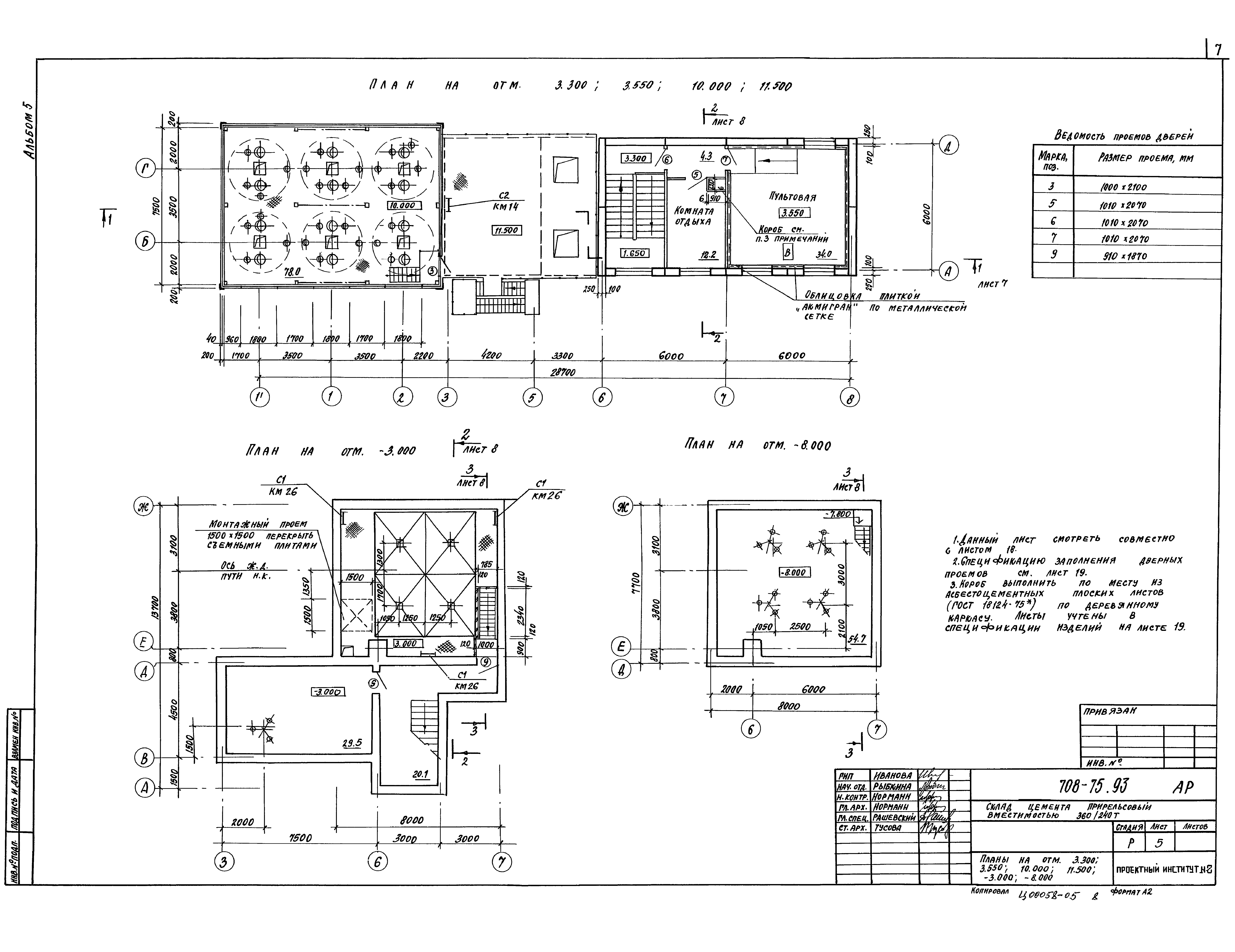
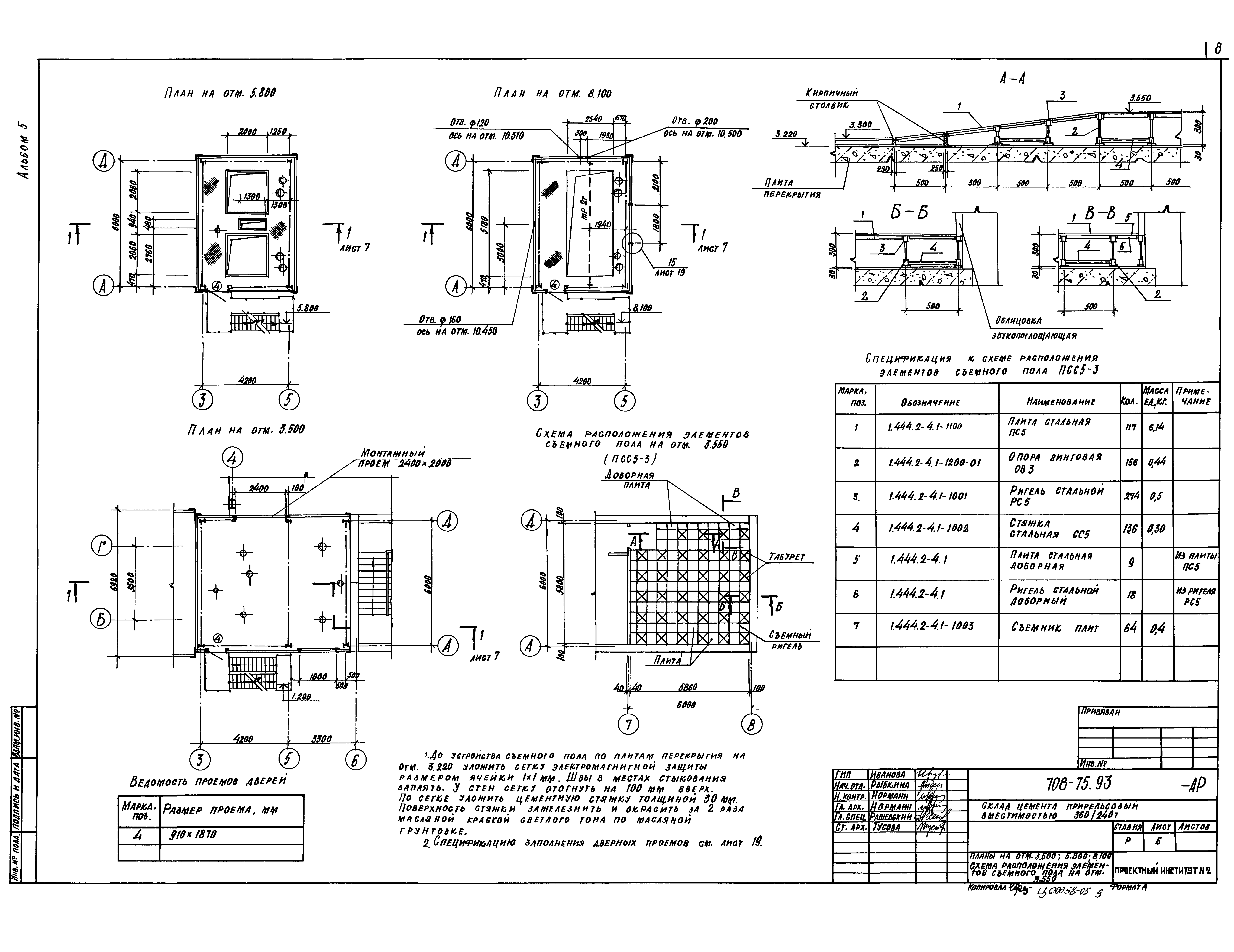
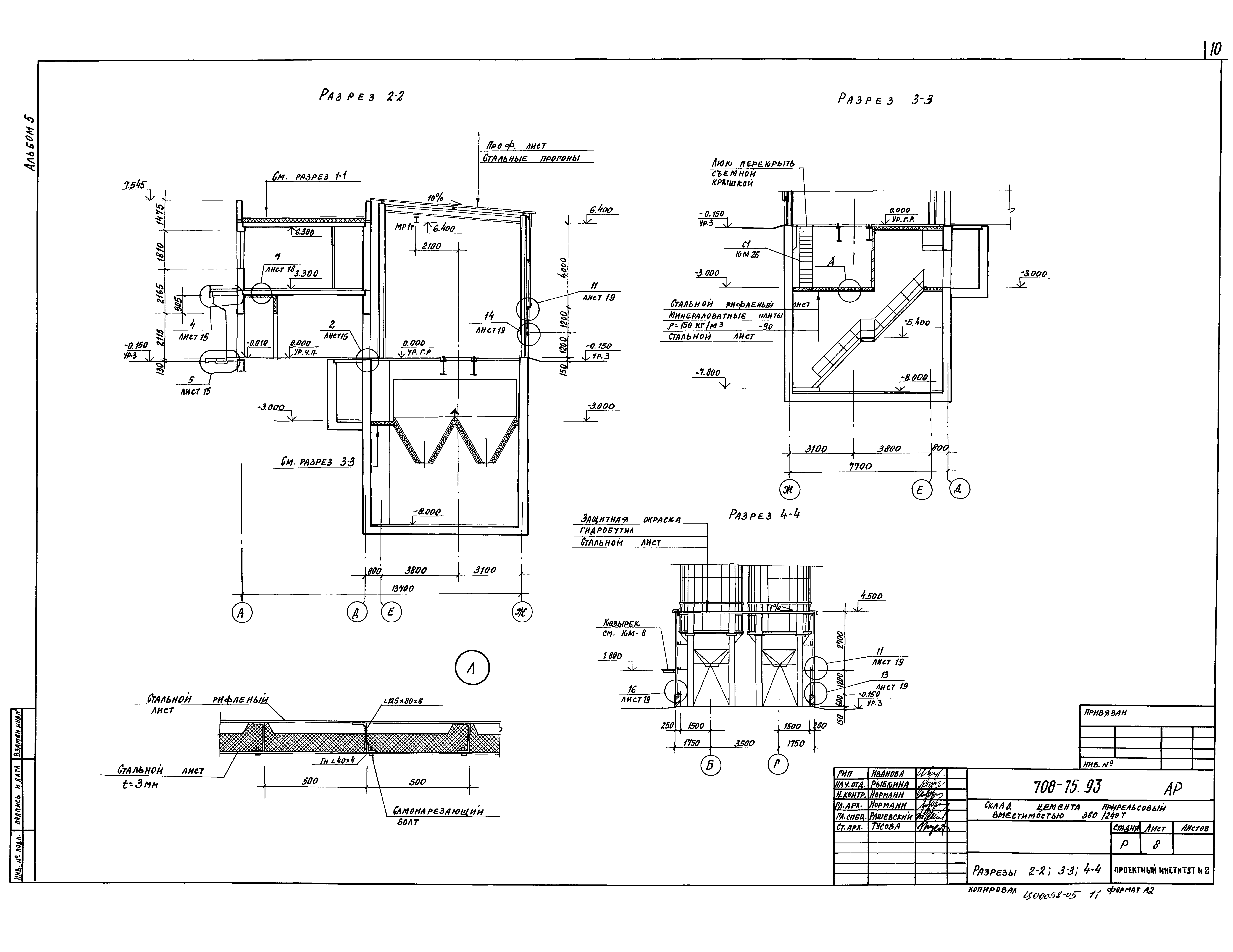
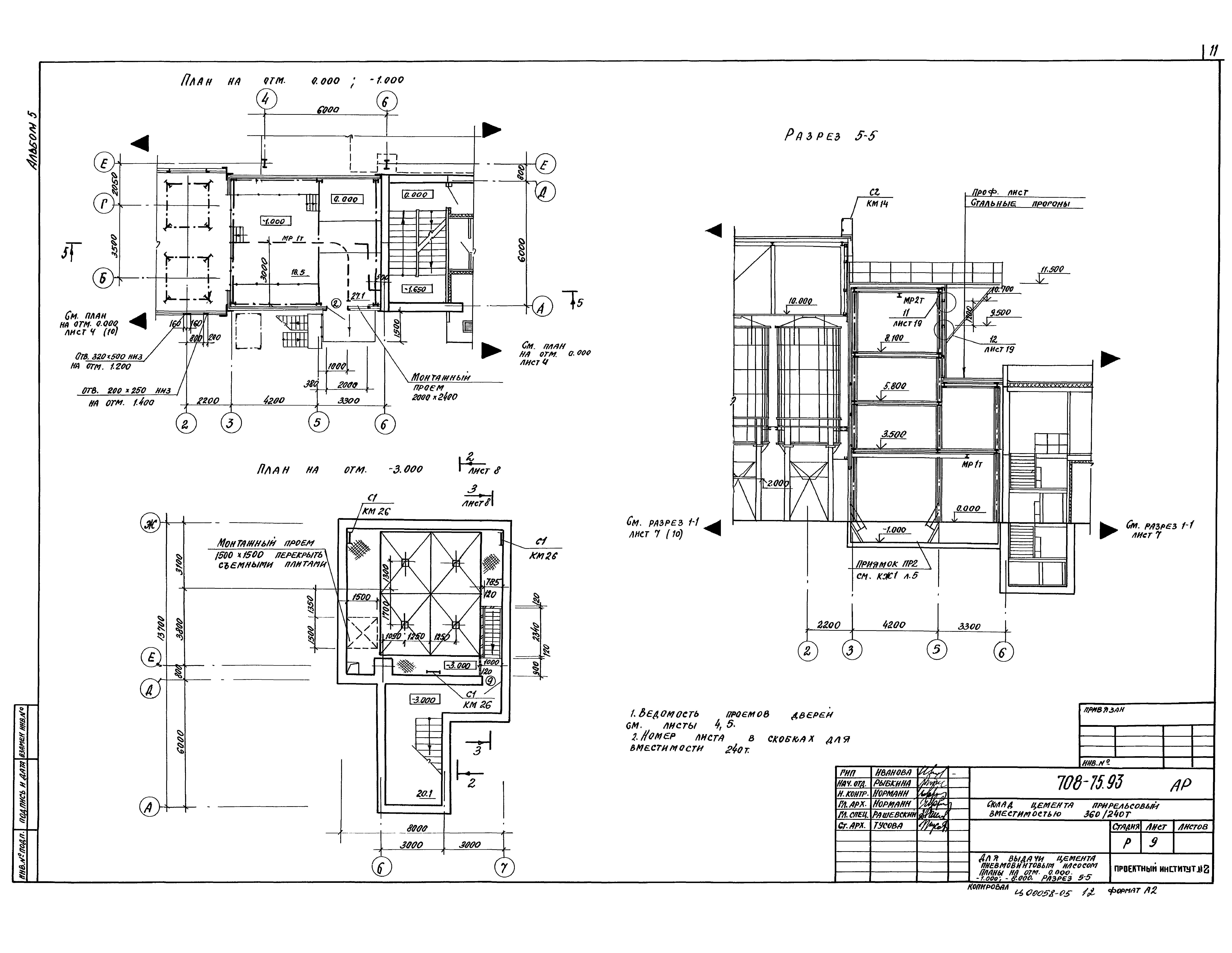
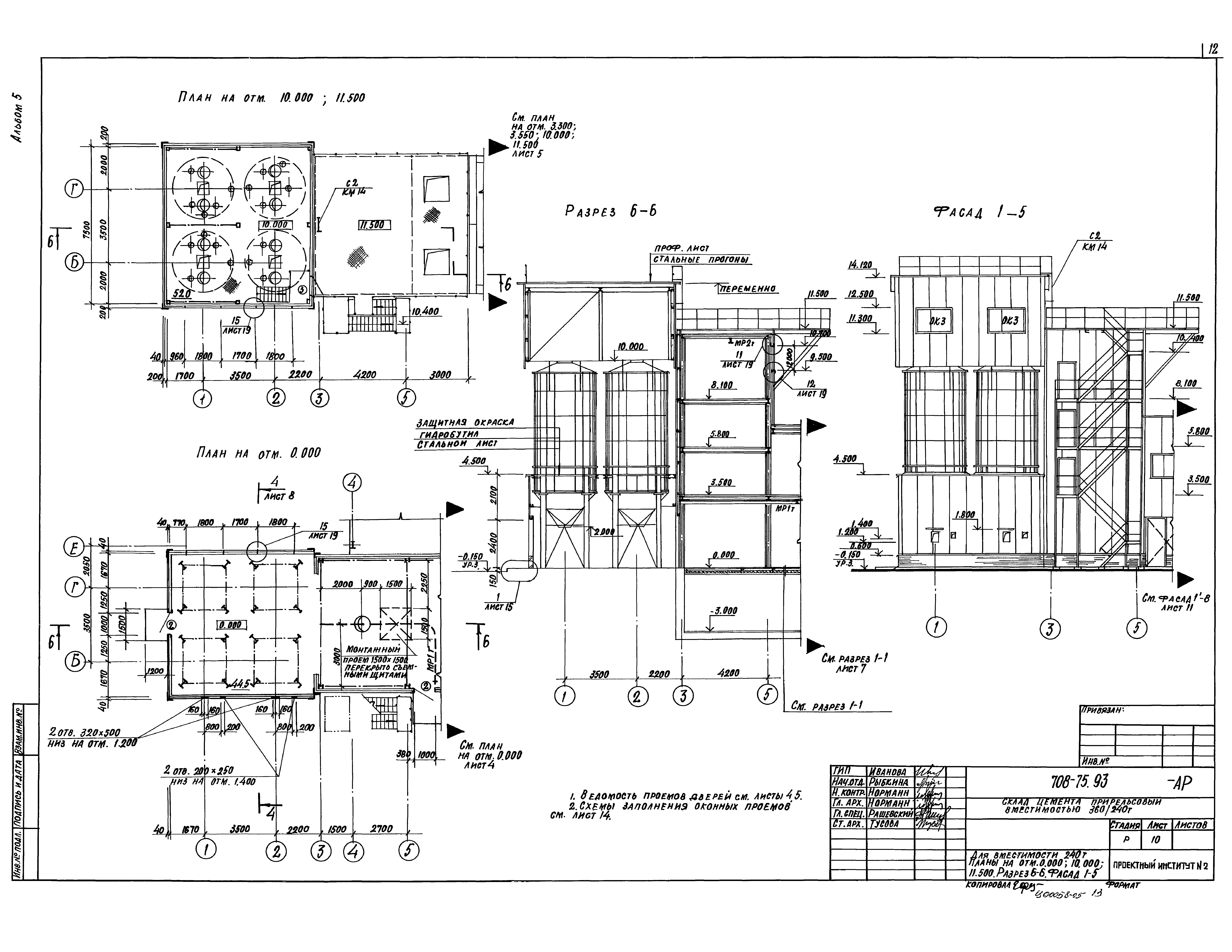
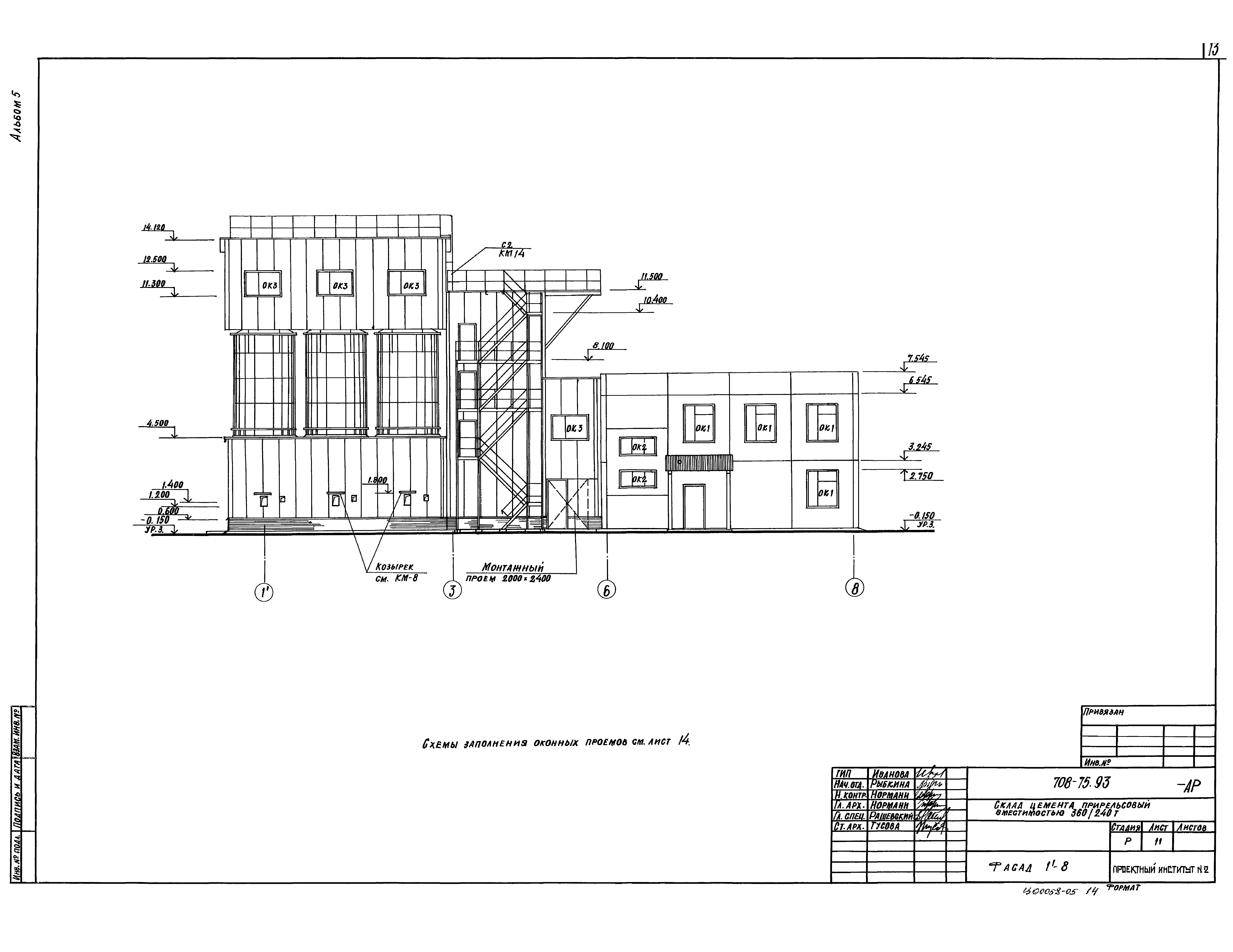
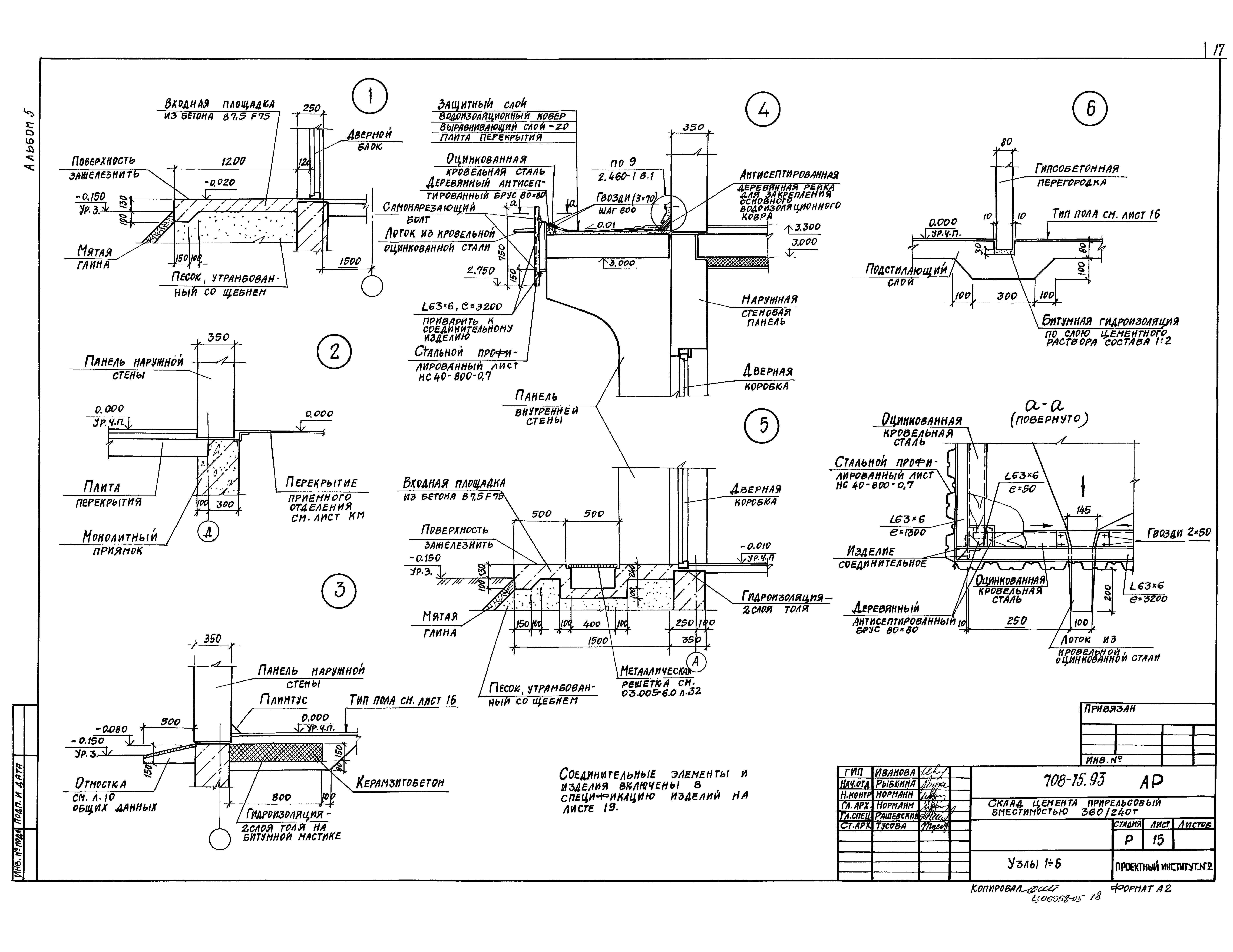
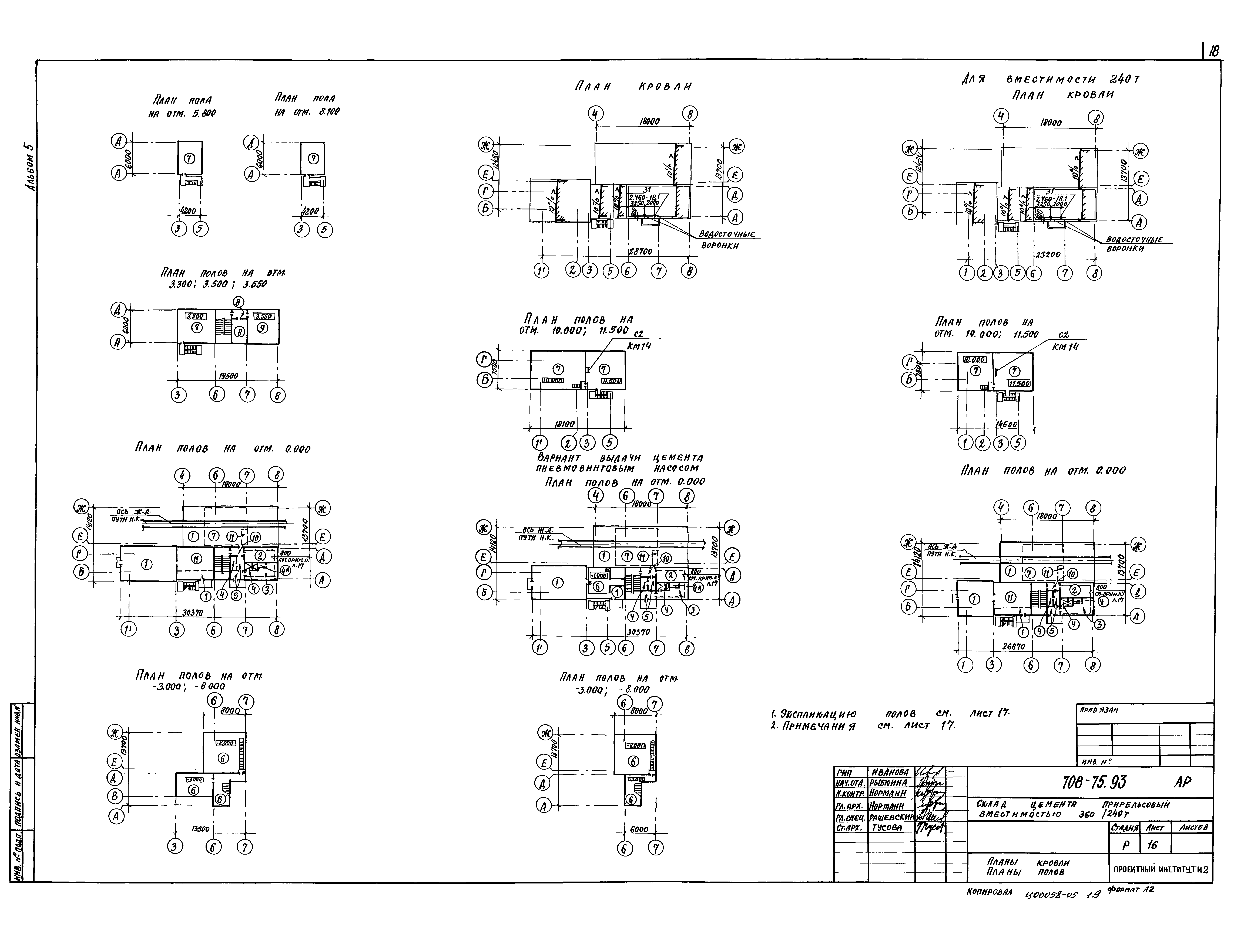
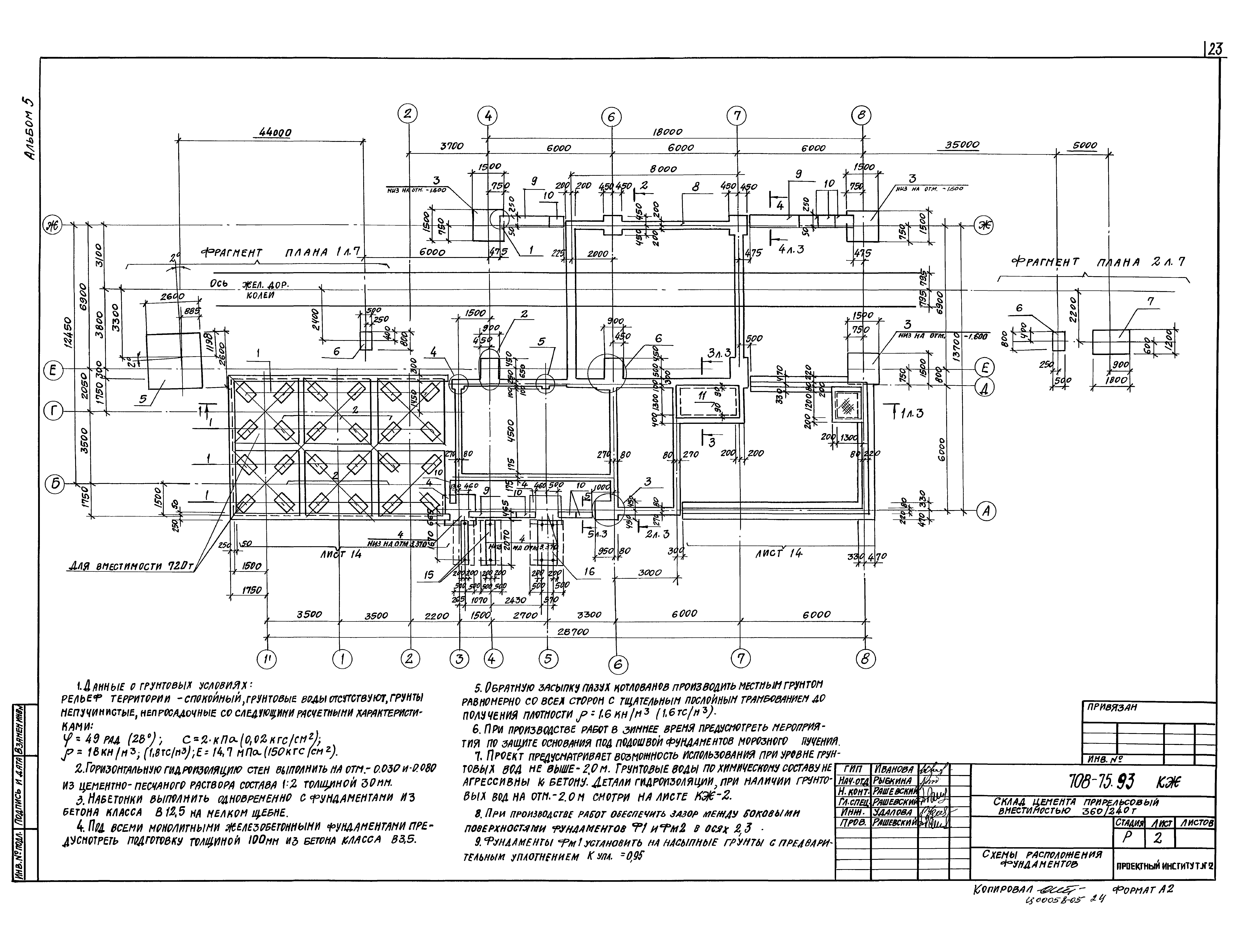
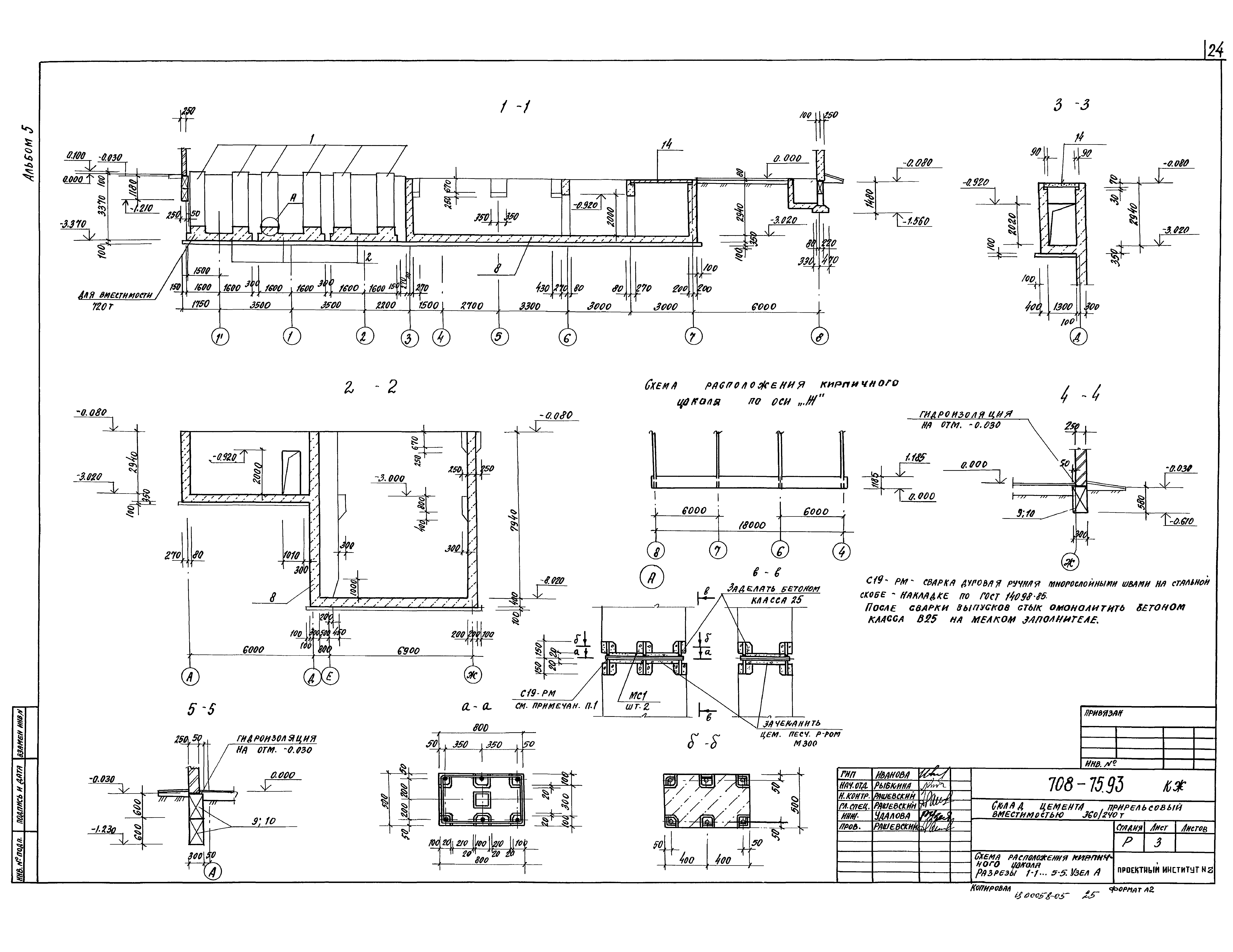
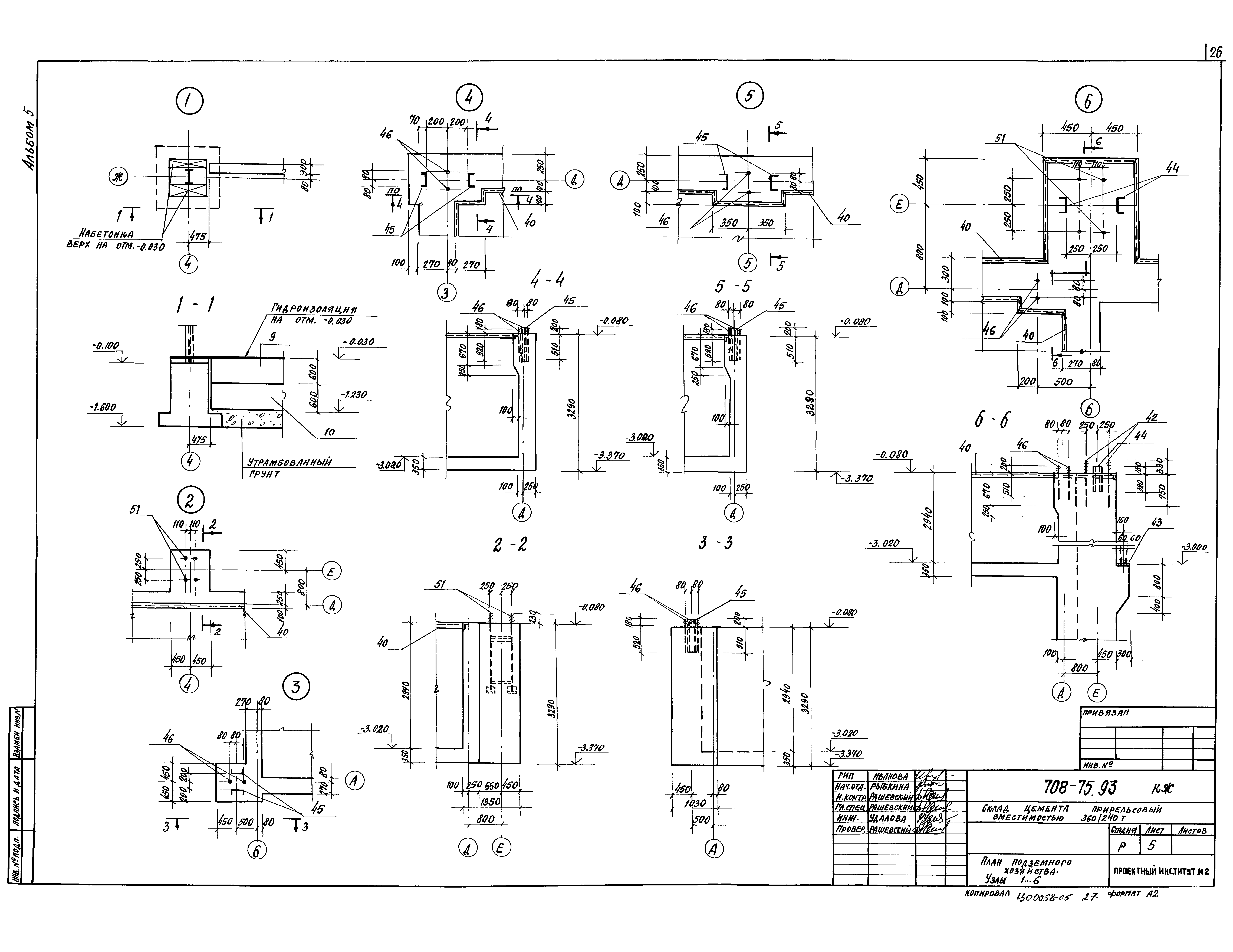
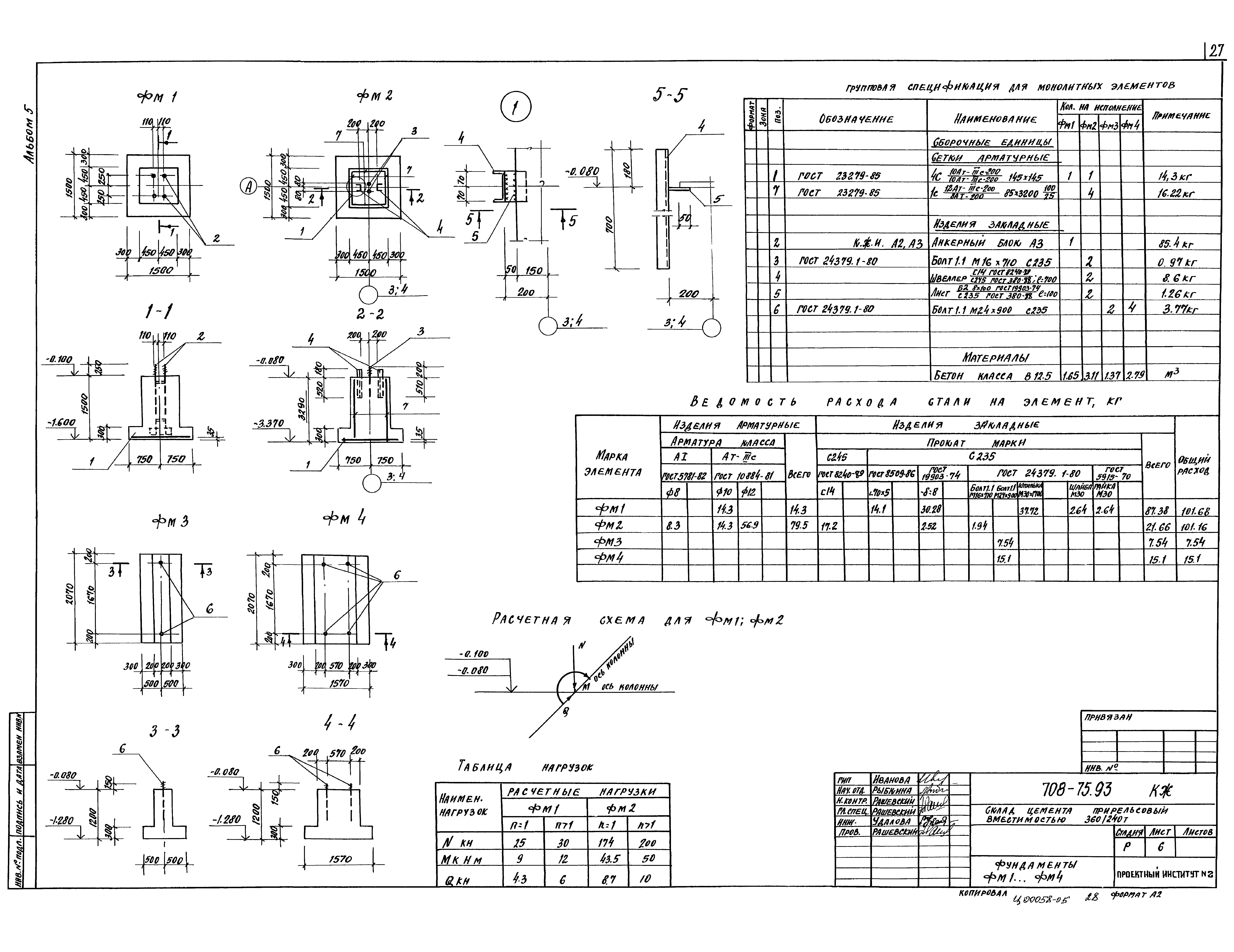
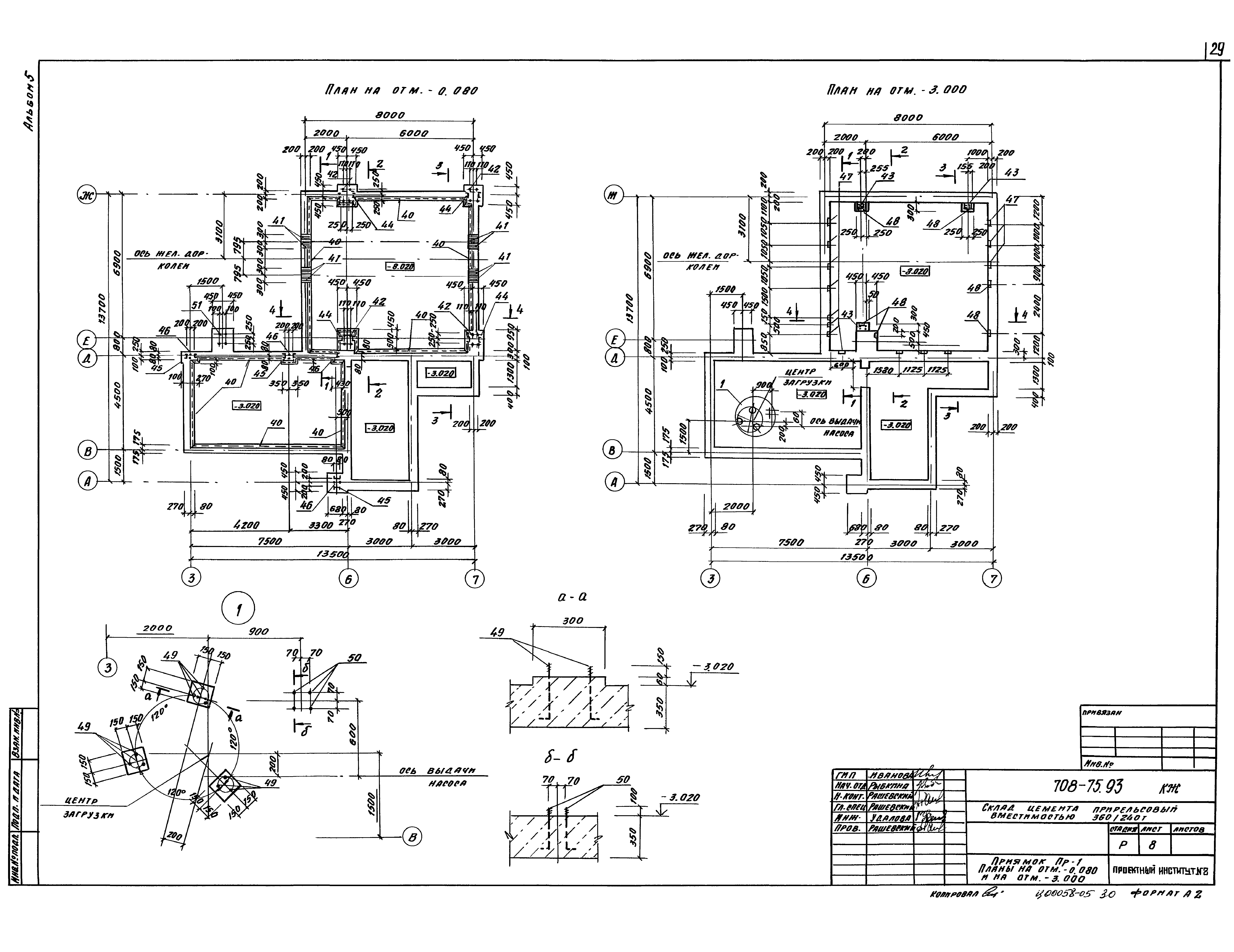
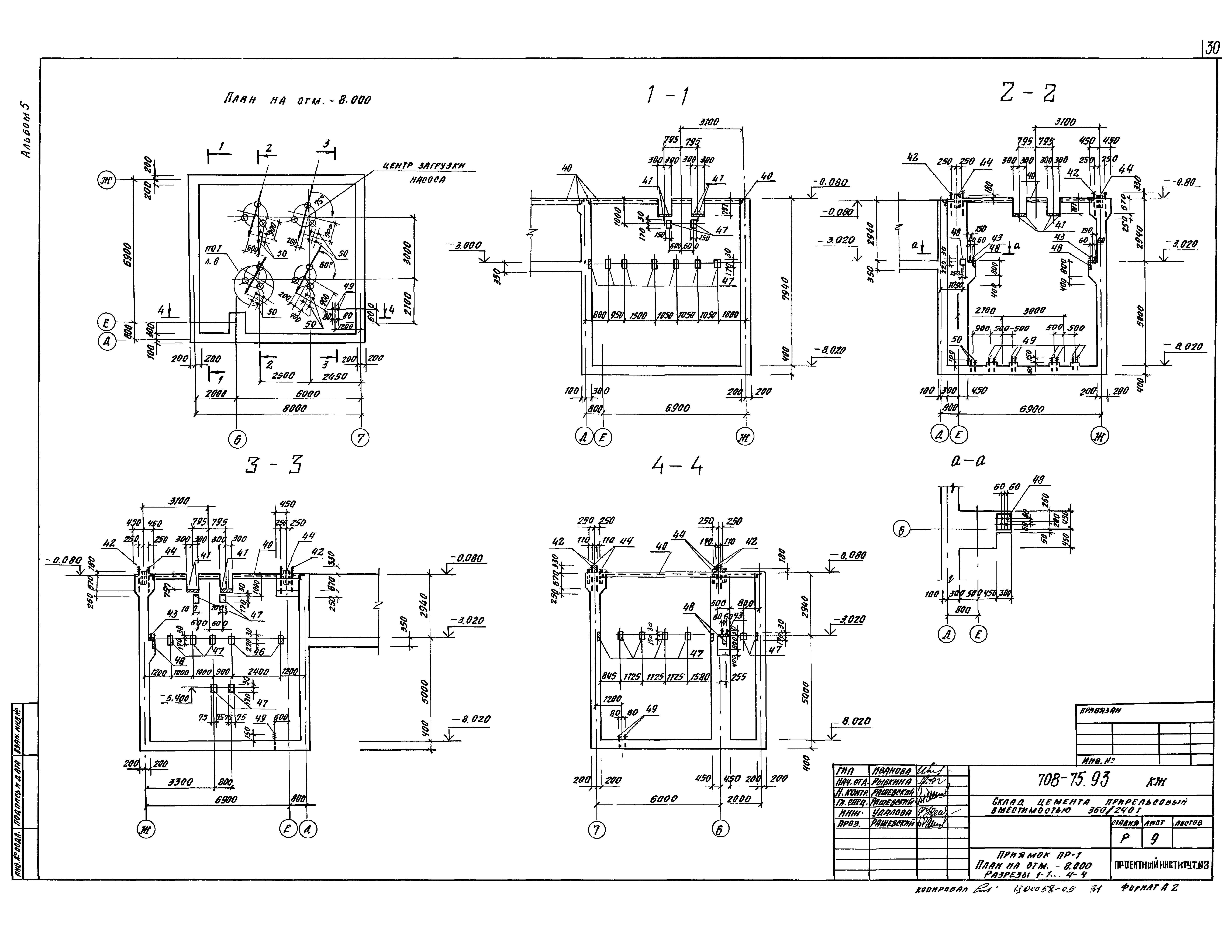
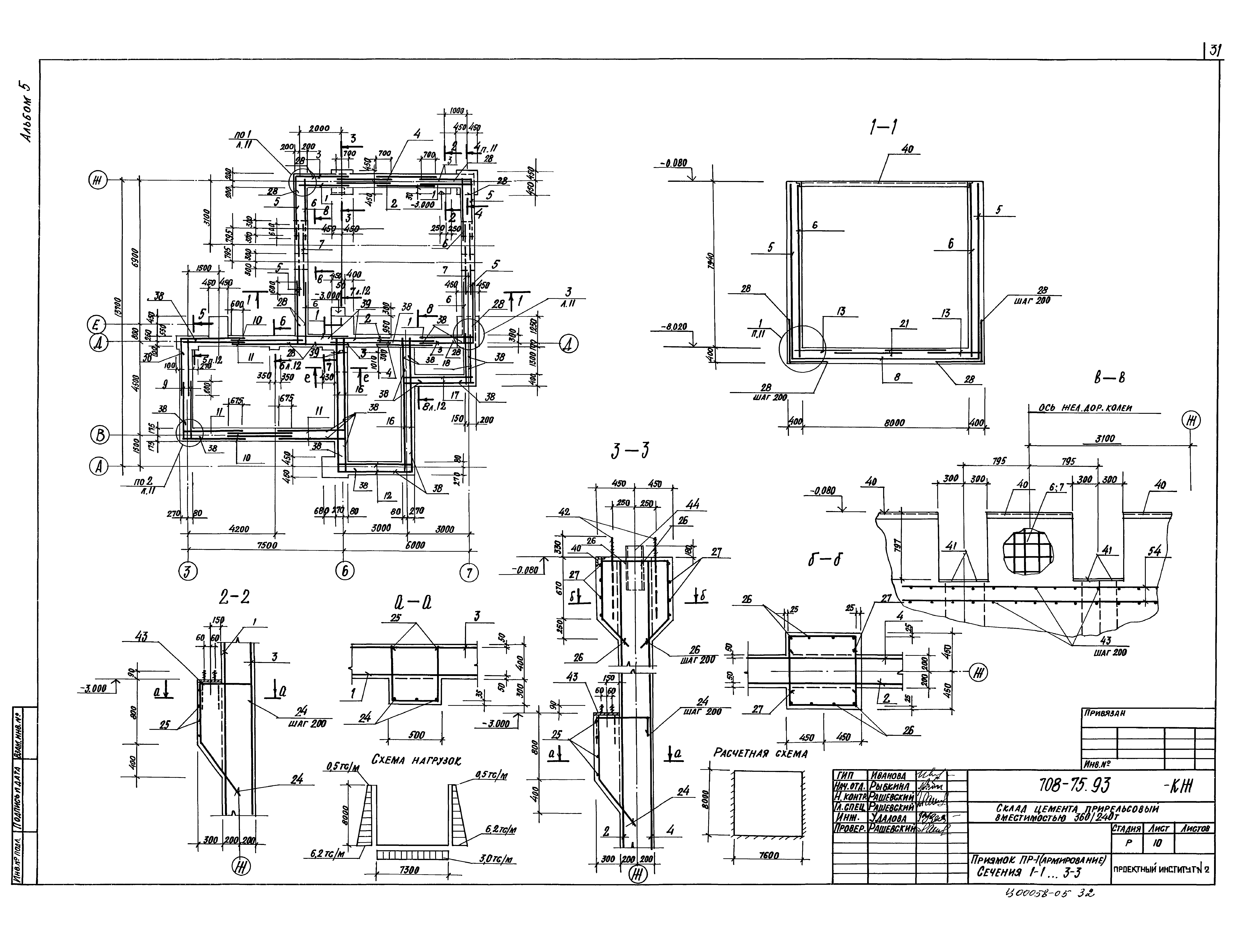
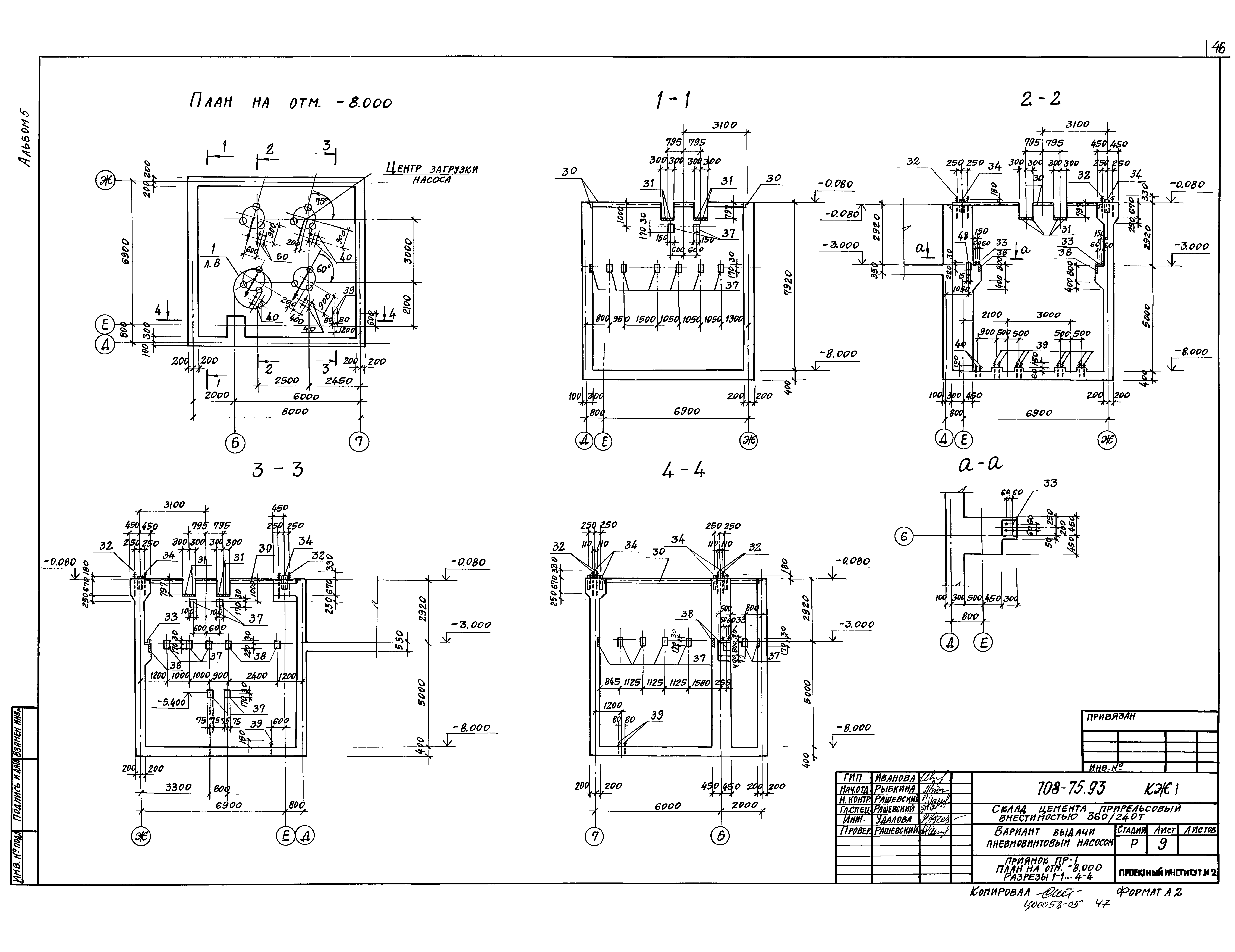
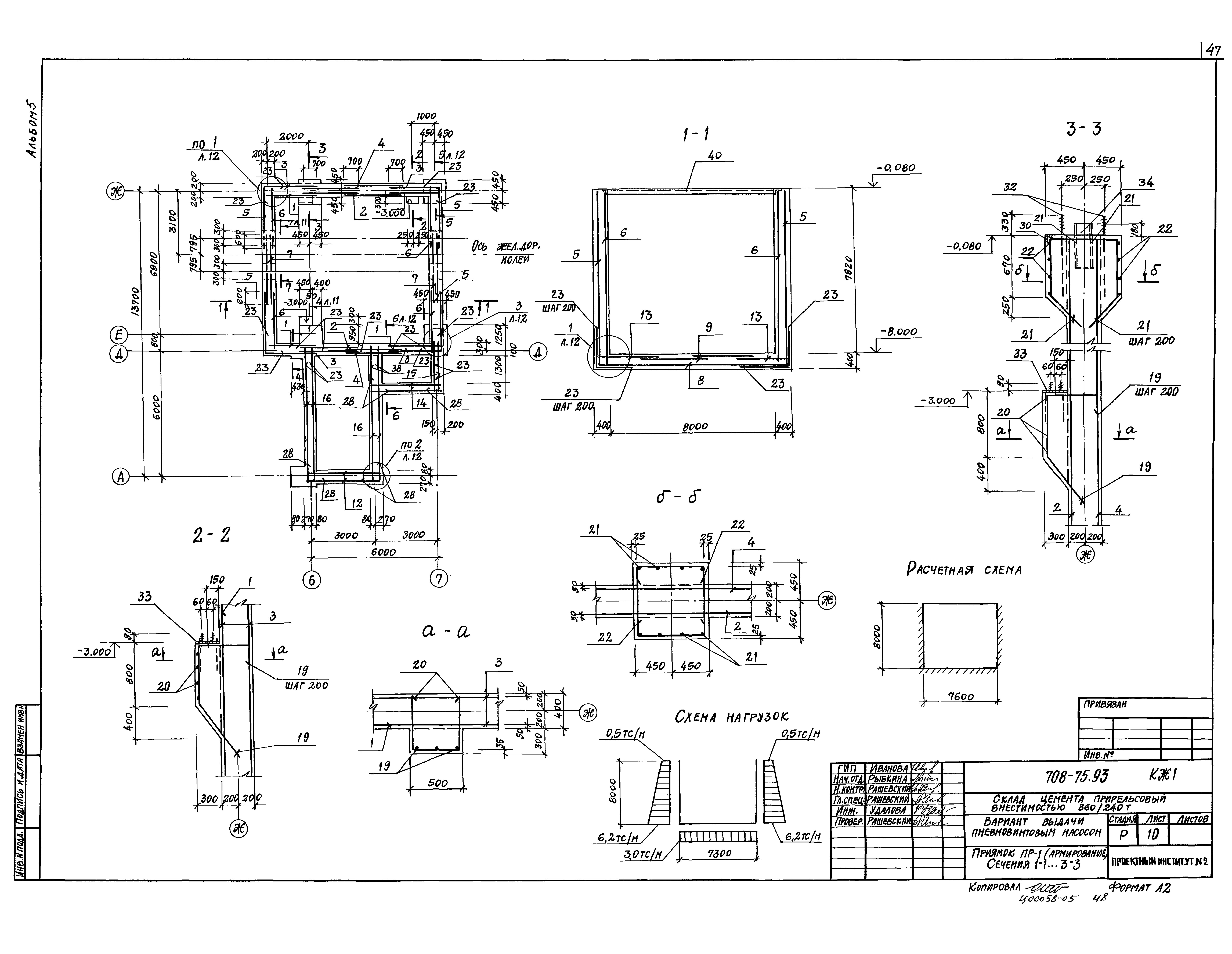
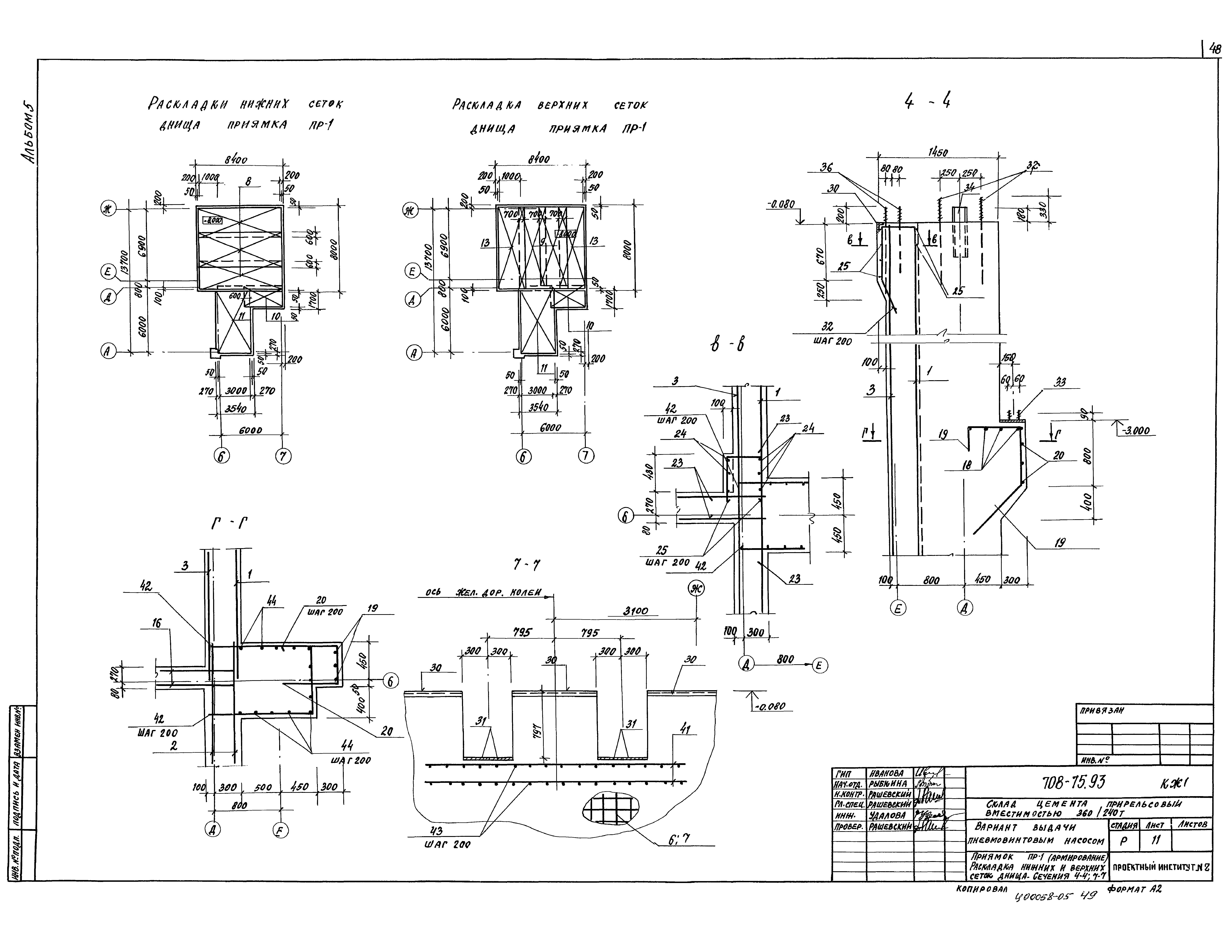
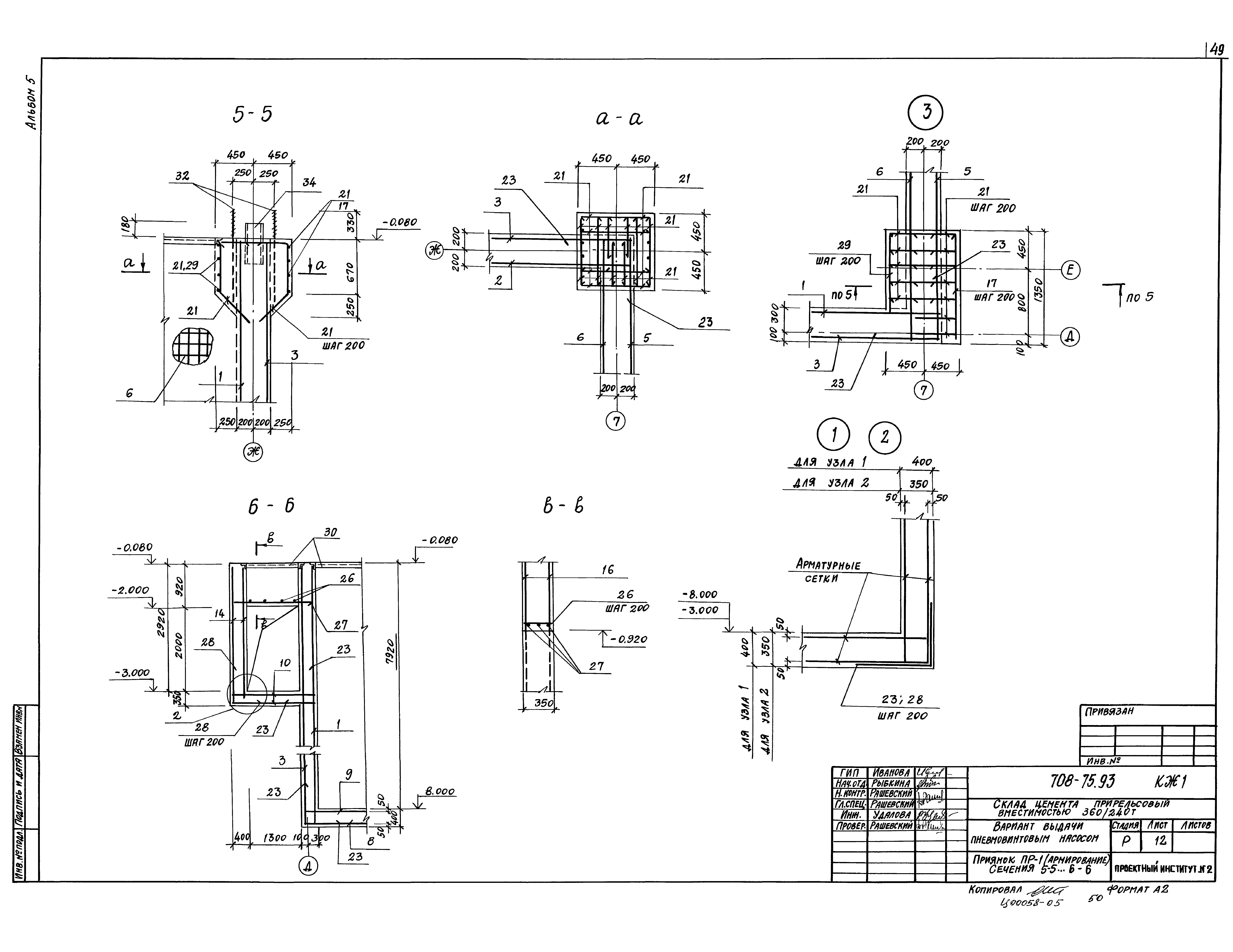
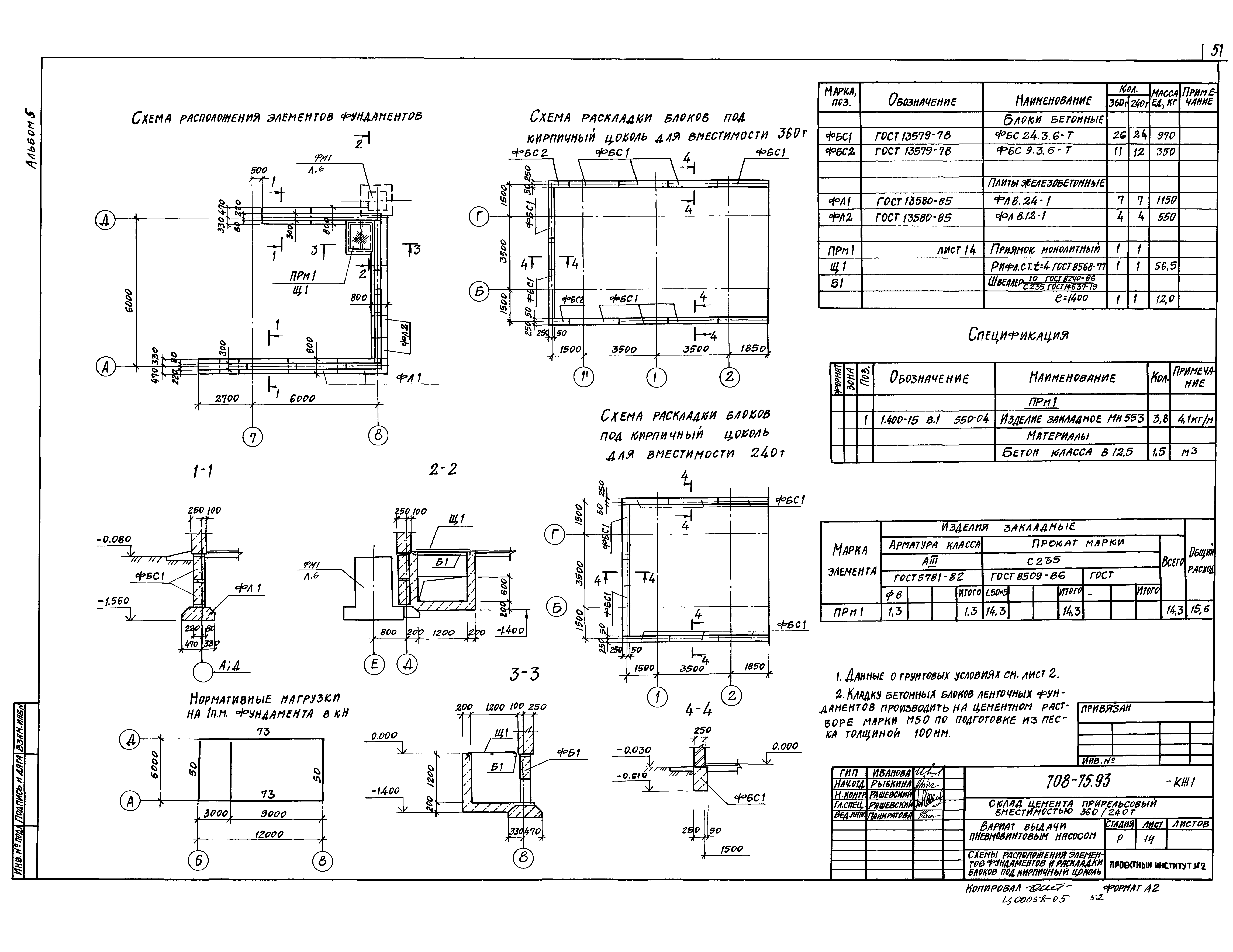
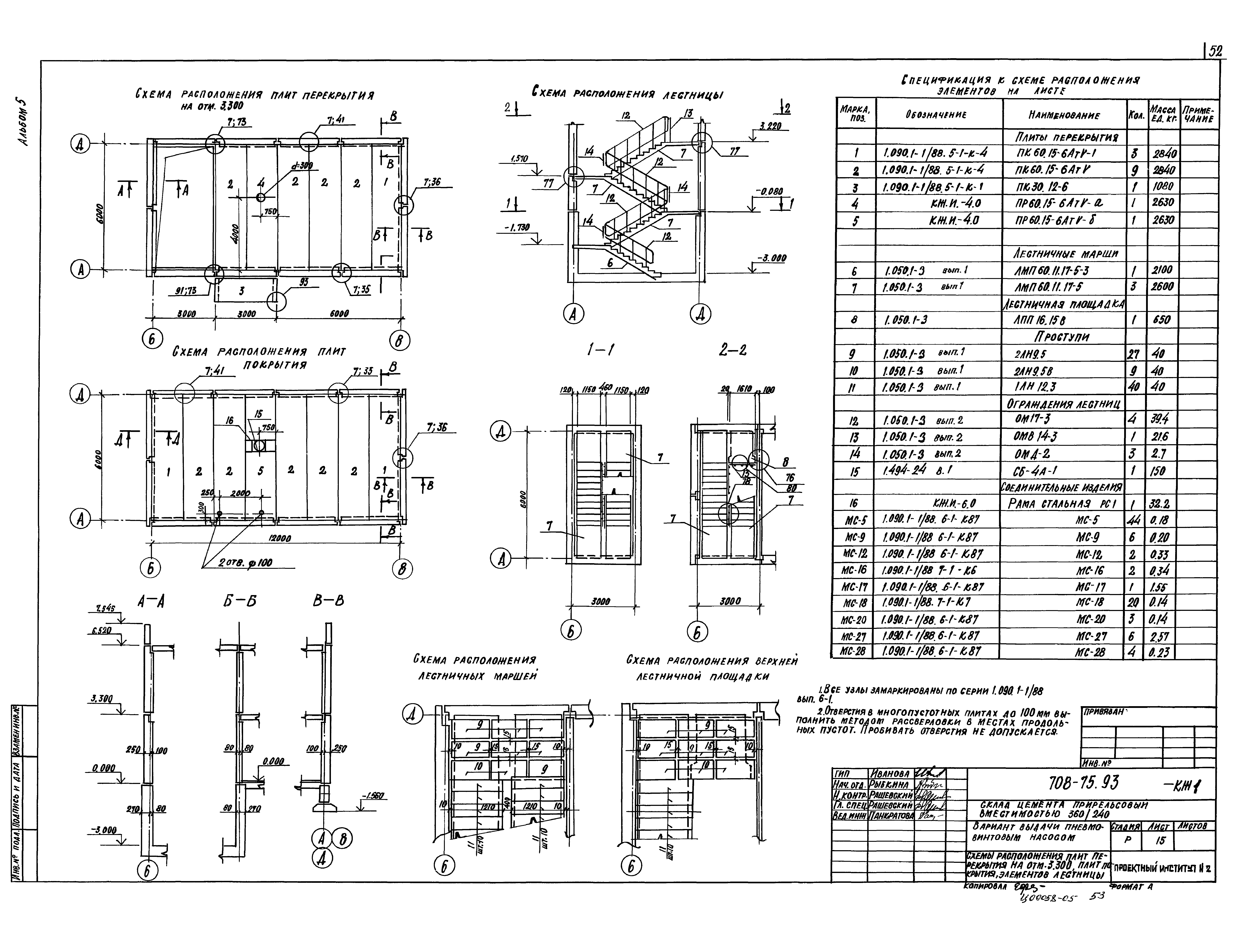
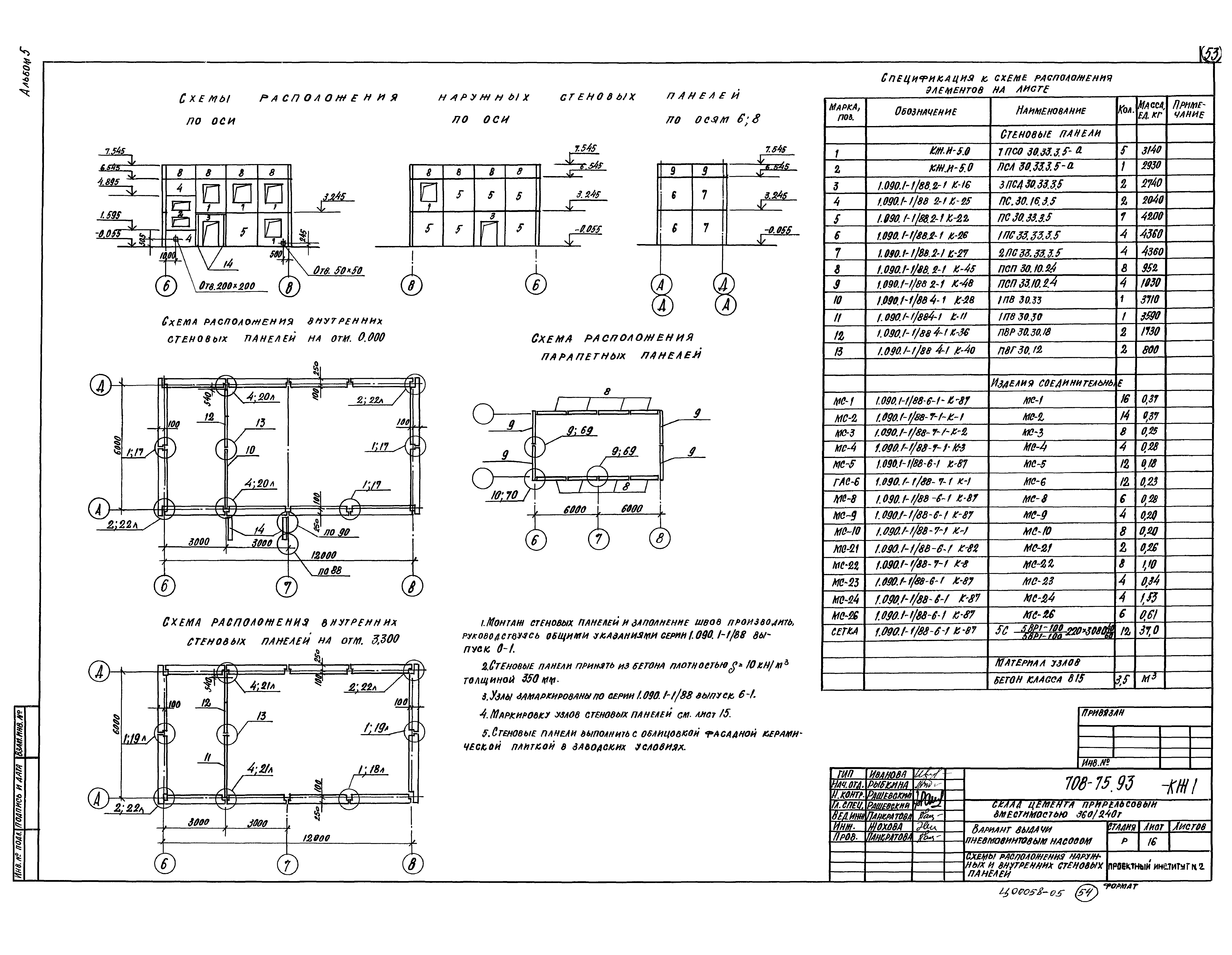
Скачать Типовой проект 708-75.93 Альбом 5. Архитектурные решения. Конструкции железобетонные. Конструкции железобетонные (вариант выдачи пневмовинтовым насосом)Дата актуализации: 01.01.2021
|
| Обозначение: | Типовой проект 708-75.93 |
| Обозначение англ: | 708-75.93 |
| Статус: | не определен законодательством |
| Название рус.: | Альбом 5. Архитектурные решения. Конструкции железобетонные. Конструкции железобетонные (вариант выдачи пневмовинтовым насосом) |
| Дата добавления в базу: | 01.09.2013 |
| Дата актуализации: | 01.01.2021 |
| Дата введения: | 06.12.1993 |
| Дата окончания срока действия: | 30.06.2003 |
| Разработан: | Гипростроммаш Проектный институт №2 |
| Утверждён: | 30.11.1993 Главпроект Госстроя России (9-3-1/254) |





















































