Скачать Типовой проект 708-75.93 Альбом 12. Эскизные чертежи общих видов нетиповых конструкцийДата актуализации: 01.01.2021
|
| Обозначение: | Типовой проект 708-75.93 |
| Обозначение англ: | 708-75.93 |
| Статус: | не определен законодательством |
| Название рус.: | Альбом 12. Эскизные чертежи общих видов нетиповых конструкций |
| Дата добавления в базу: | 01.09.2013 |
| Дата актуализации: | 01.01.2021 |
| Дата введения: | 06.12.1993 |
| Дата окончания срока действия: | 30.06.2003 |
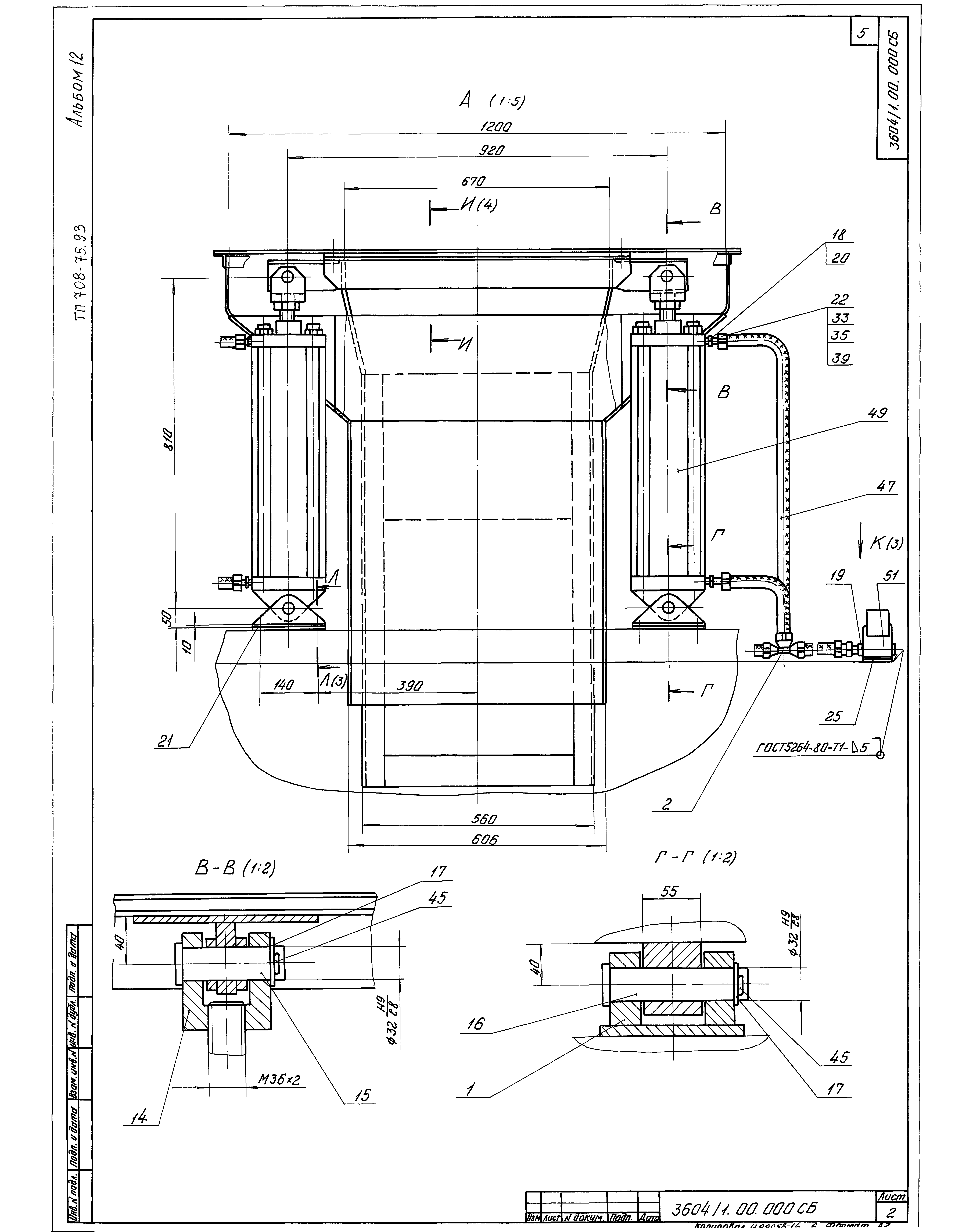
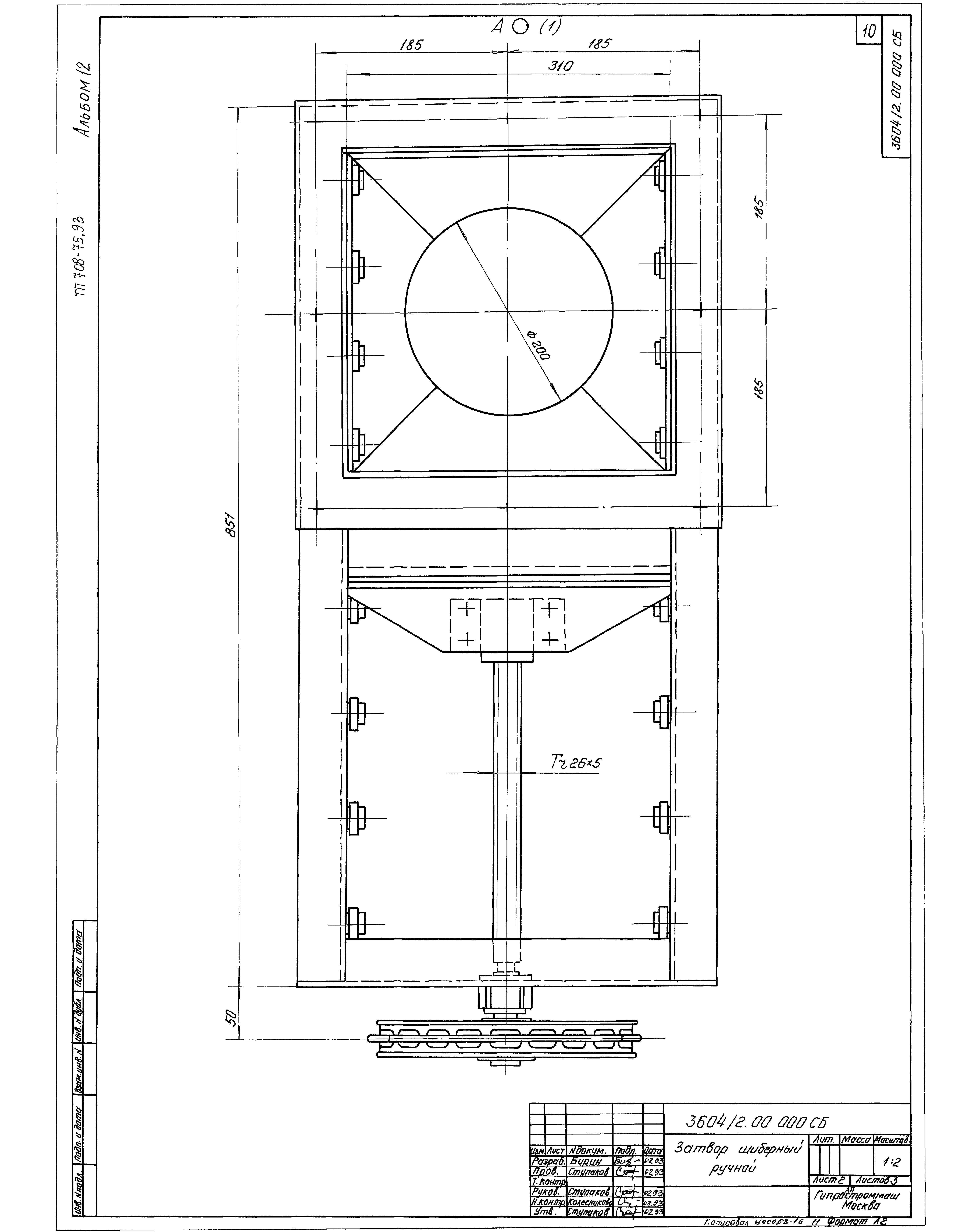
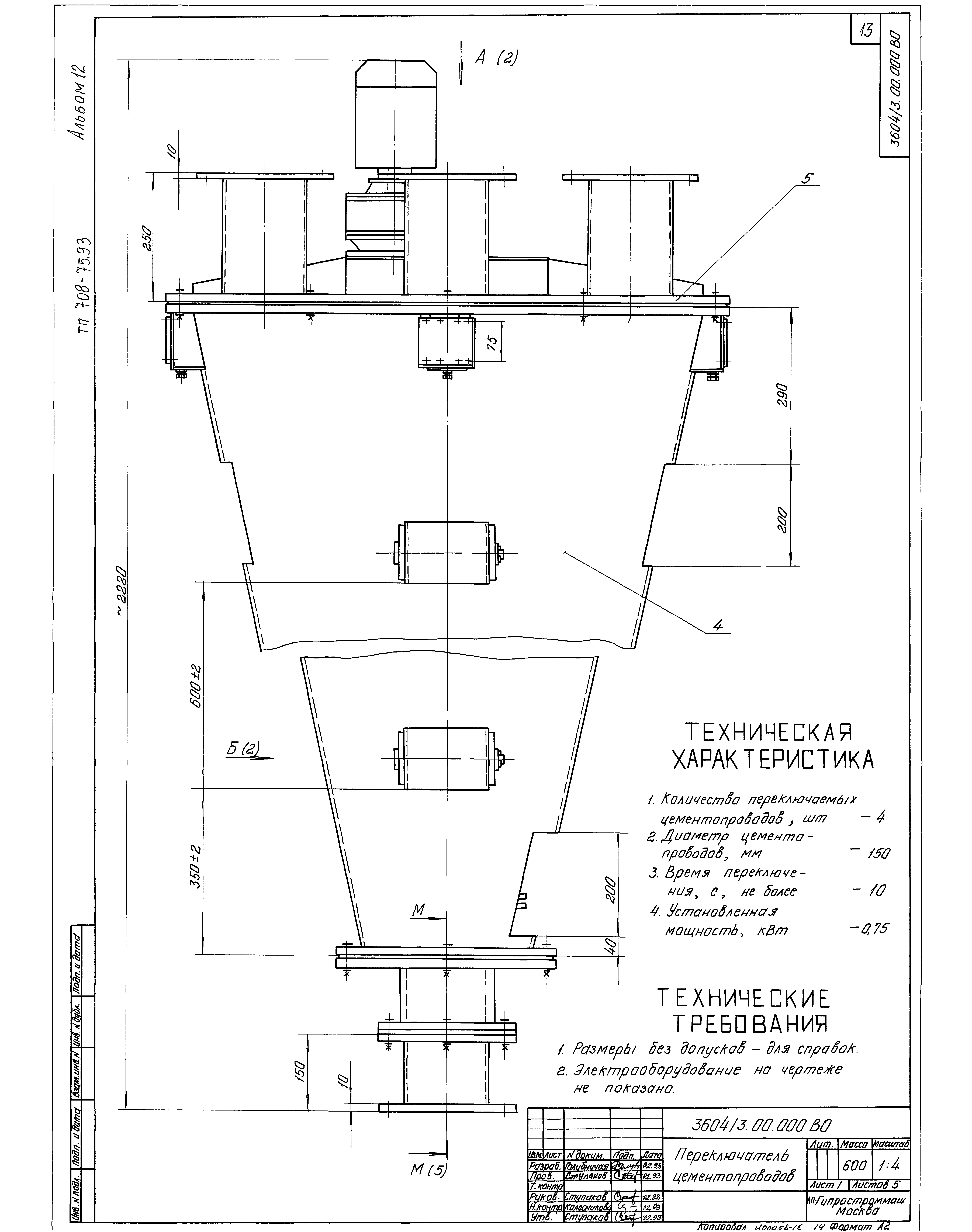
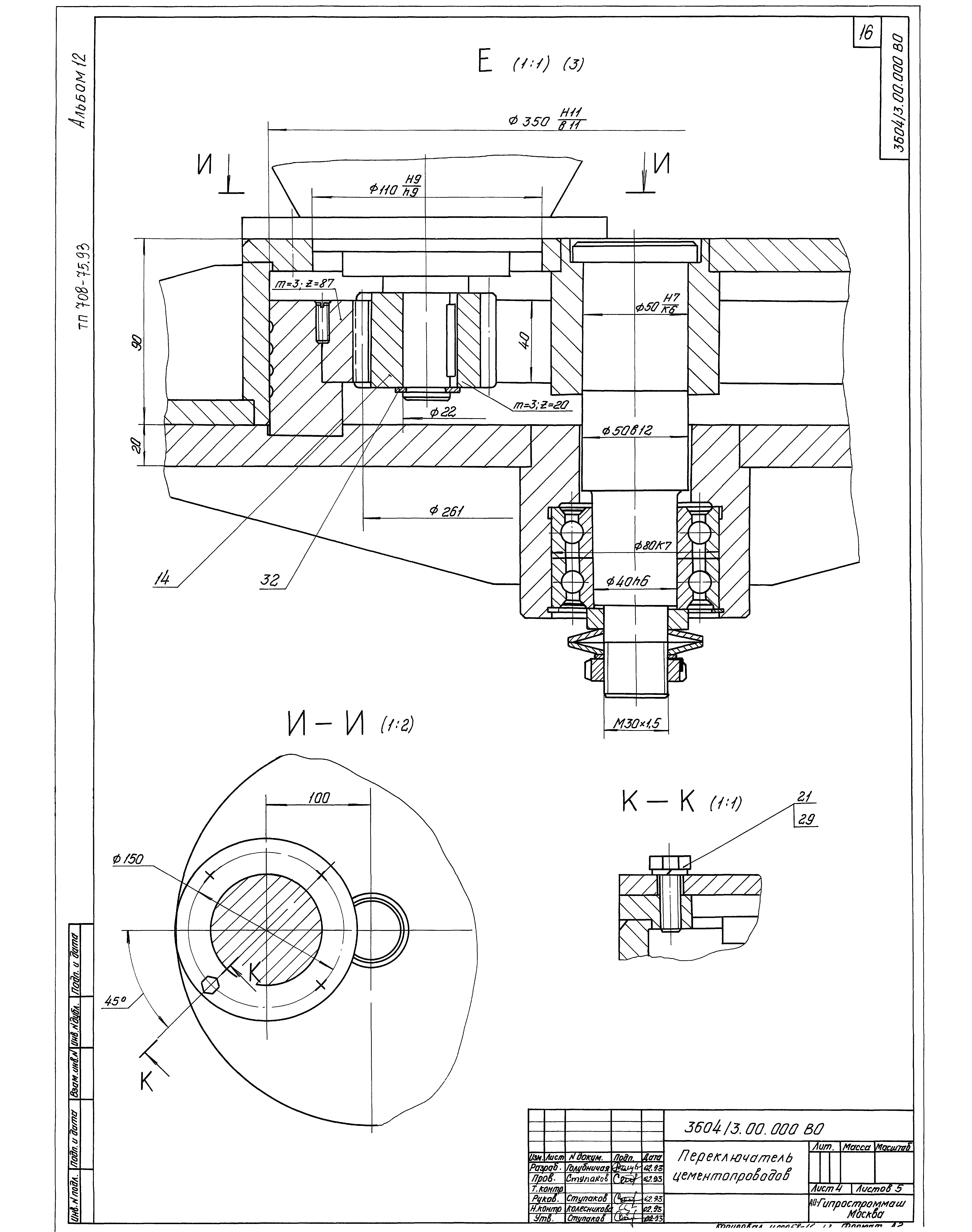
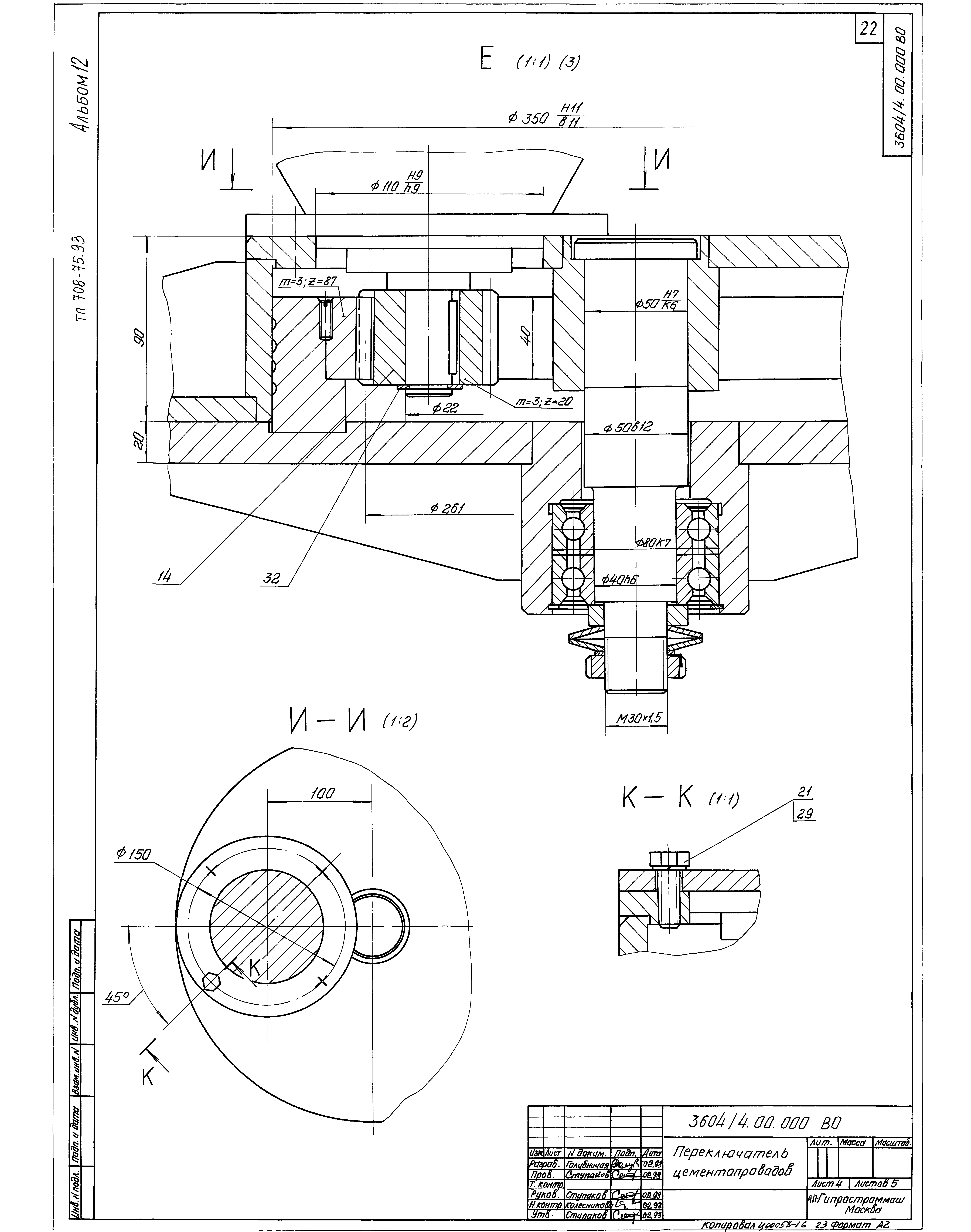
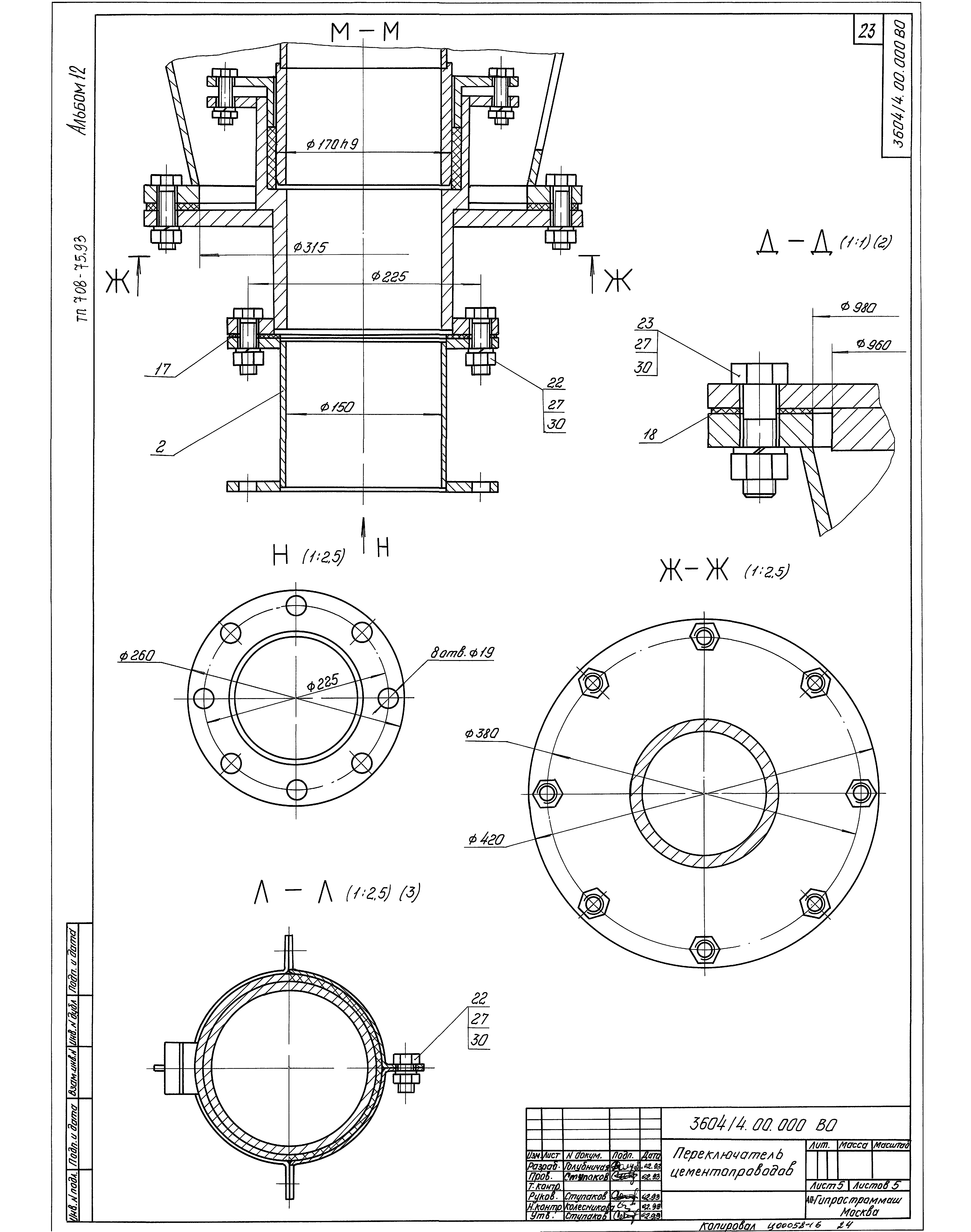
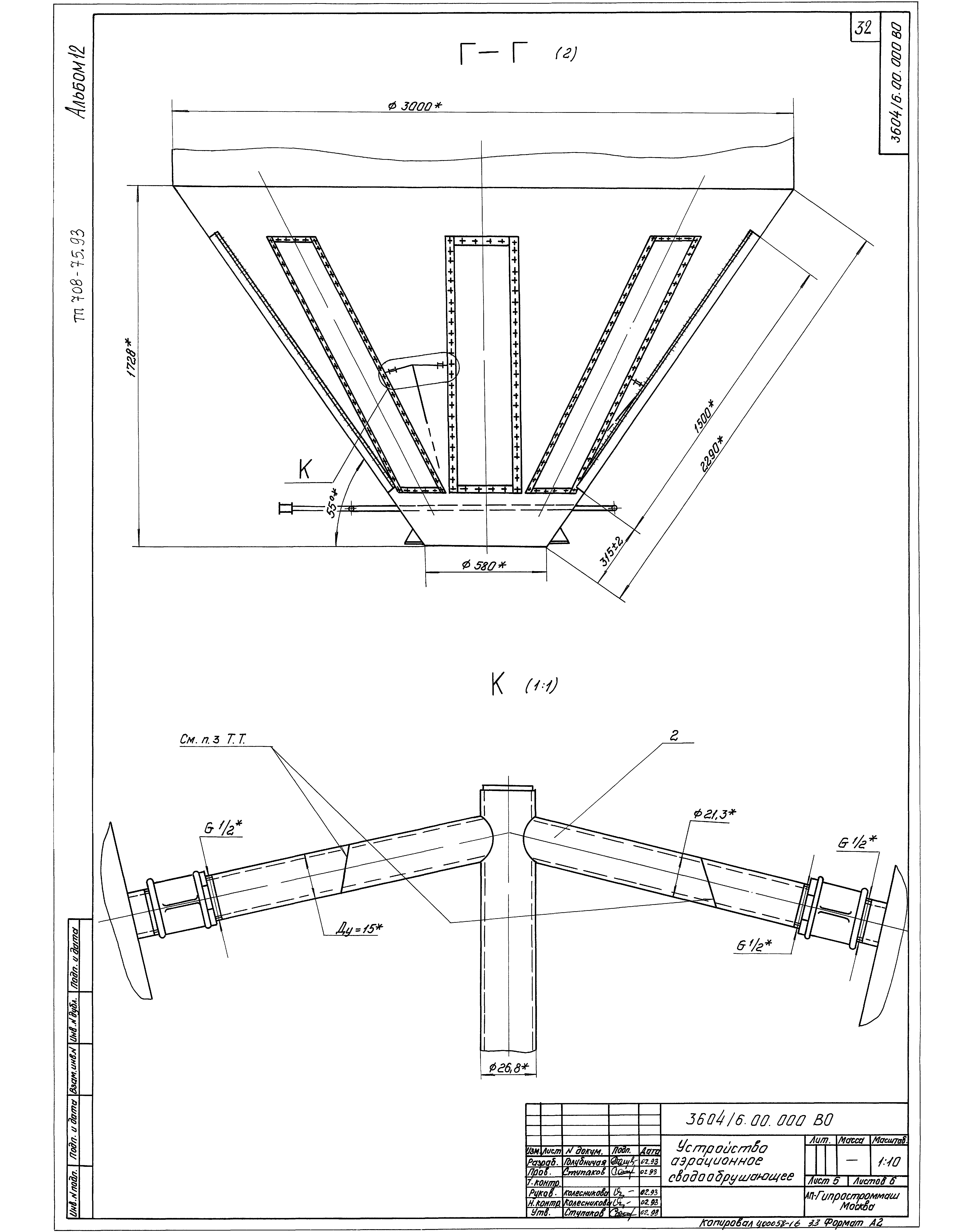
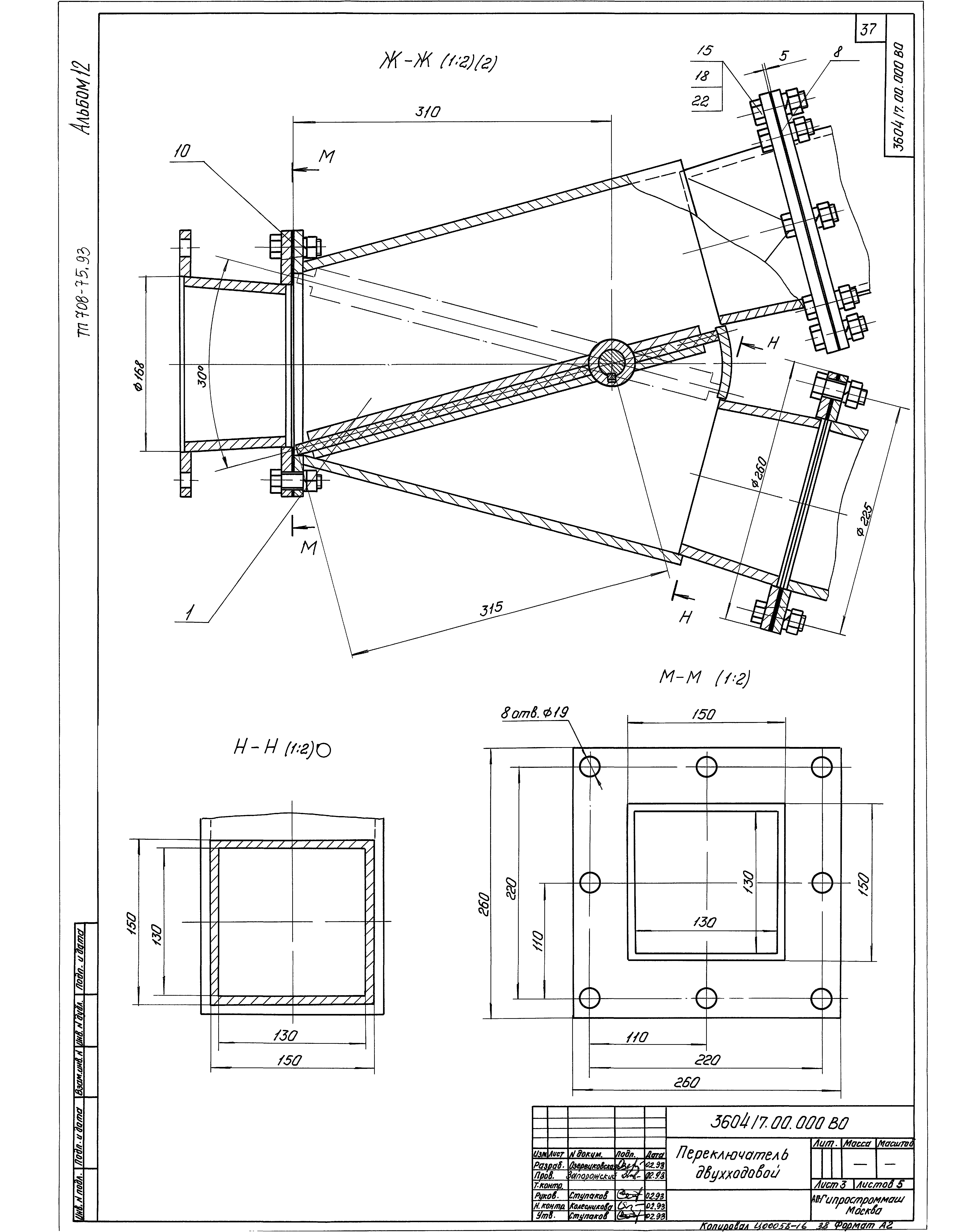
| Оглавление: | 3604/1.00.000 Рукав приемный 3604/1.00.000СБ Рукав приемный 3604/2.00.000 Затвор шиберный ручной 3604/2.01.000 Затвор 3604/2.00.010 Цепь 3604/2.00.000СБ Затвор шиберный ручной 3604/3.00.000 Переключатель цементопроводов 3604/3.00.000ВО Переключатель цементопроводов 3604/4.00.000 Переключатель цементопроводов 3604/4.00.000ВО Переключатель цементопроводов 3604/5.00.000 Осадитель цемента 3604/5.00.100 Осадитель 3604/5.00.002 Прокладка 3604/5.00.004 Прокладка 3604/5.00.000СБ Осадитель цемента 3604/6.00.000 Устройство аэрационное сводообрушающее 3604/6.00.000ВО Устройство аэрационное сводообрушающее 3604/7.00.000 Переключатель двухходовой 3604/7.00.000ВО Переключатель двухходовой |
| Разработан: | Гипростроммаш Проектный институт №2 |
| Утверждён: | 30.11.1993 Главпроект Госстроя России (9-3-1/254) |






































