Скачать Серия 1.465.1-17 Выпуск 3. Плиты с проемами в полке для зенитных фонарей. Рабочие чертежиДата актуализации: 01.01.2021
|
| Обозначение: | Серия 1.465.1-17 |
| Обозначение англ: | Series 1.465.1-17 |
| Статус: | заменен |
| Название рус.: | Выпуск 3. Плиты с проемами в полке для зенитных фонарей. Рабочие чертежи |
| Дата добавления в базу: | 01.09.2013 |
| Дата актуализации: | 01.01.2021 |
| Дата введения: | 01.01.1991 |
| Дата окончания срока действия: | 01.12.1994 |
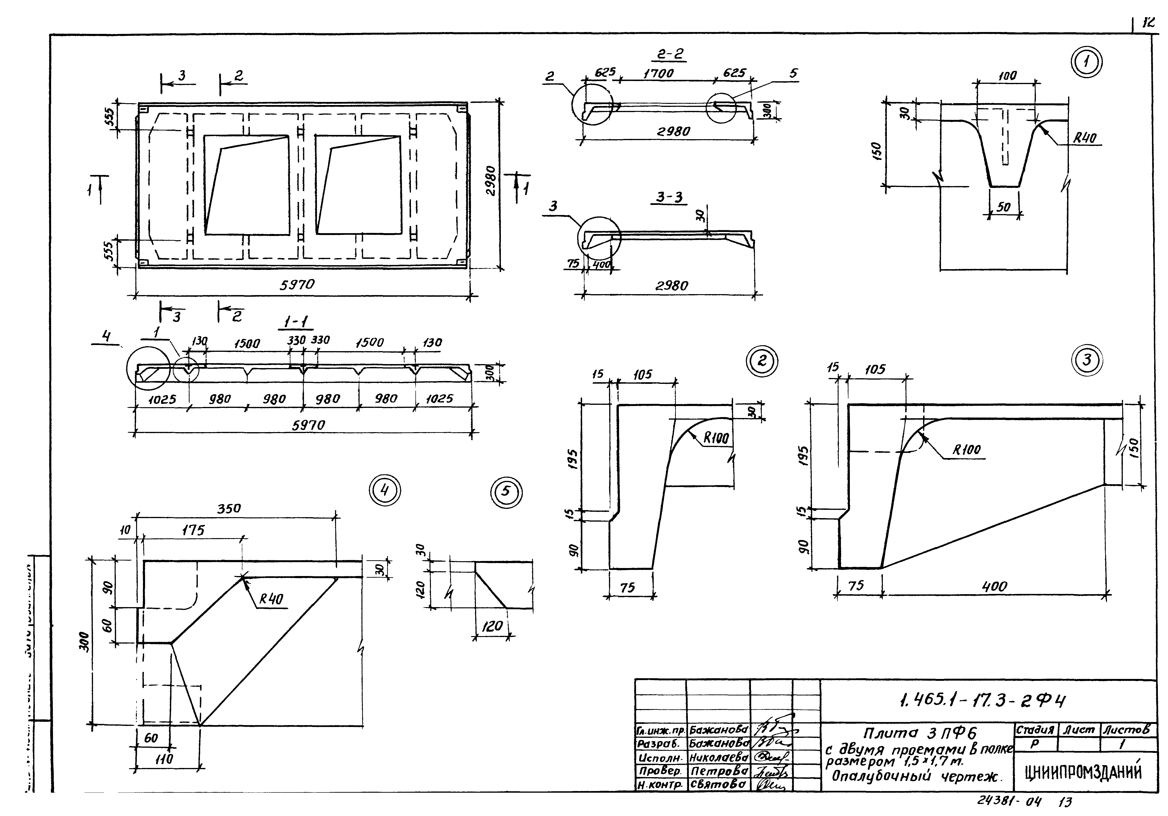
| Область применения: | Выпуск 3 серии 1.465.1-17 содержит рабочие чертежи железобетонных предварительно напряженных плит размером 3х6 м с проемами в полке для установки зенитных фонарей поперечного и панельного типа из двухслойных стеклопакетов по сериям 1.464-14, вып.1 и 1.464.2-17, вып.1 (плиты типа ЗПФ) |
| Оглавление: | 1.456.1-17.3-ТТ Технические требования 1.456.1-17.3-1ФУ Плита 3ПФ6 с одним проемом в полке размером 1,5х1,7 м. Опалубочный чертеж 1.456.1-17.3-1 Плита 3ПФ6 с одним проемом в полке размером 1,5х1,7 м 1.456.1-17.3-2ФУ Плита 3ПФ6 с двумя проемами в полке размером 1,5х1,7 м. Опалубочный чертеж 1.456.1-17.3-2 Плита 3ПФ6 с двумя проемами в полке размером 1,5х1,7 м 1.456.1-17.3-3ФУ Плита 3ПФ6 с одним проемом в полке размером 2,6х2,7 м. Опалубочный чертеж 1.456.1-17.3-3 Плита 3ПФ6 с одним проемом в полке размером 2,6х2,7 м 1.456.1-17.3-РС1 Ведомость расхода на плиту с одним проемом размером 1,5х1,7 м, кг 1.456.1-17.3-РС2 Ведомость расхода на плиту с двумя проемами размером 1,5х1,7 м, кг 1.456.1-17.3-РС3 Ведомость расхода на плиту с одним проемом размером 2,6х2,7 м, кг |
| Разработан: | НИИЖБ Госстроя СССР НИИСК Госстроя СССР ЦНИИпромзданий |
| Утверждён: | 23.02.1989 Главпроект Госстроя России |
| Издан: | ЦИТП Госстроя СССР (CITP, Gosstroy (USSR) 1990 г. ) |
| Чем заменён: |








































