Скачать Типовой проект 901-4-72.83 Альбом IV. Строительные изделия резервуаров емкостью 50… 1400 куб. мДата актуализации: 01.01.2021
|
| Обозначение: | Типовой проект 901-4-72.83 |
| Обозначение англ: | 901-4-72.83 |
| Статус: | не определен законодательством |
| Название рус.: | Альбом IV. Строительные изделия резервуаров емкостью 50… 1400 куб. м |
| Дата добавления в базу: | 01.09.2013 |
| Дата актуализации: | 01.01.2021 |
| Дата введения: | 19.12.1983 |
| Дата окончания срока действия: | 30.06.2003 |
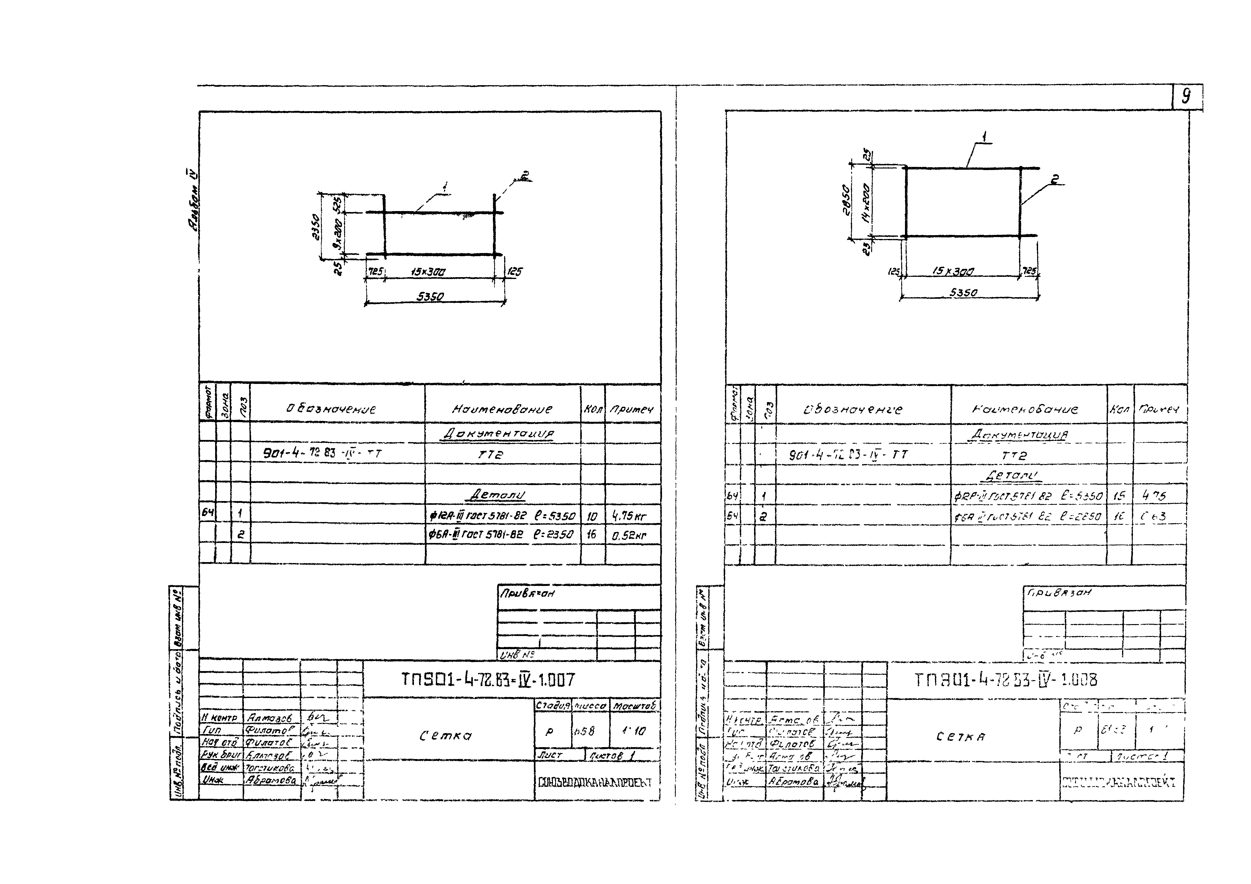
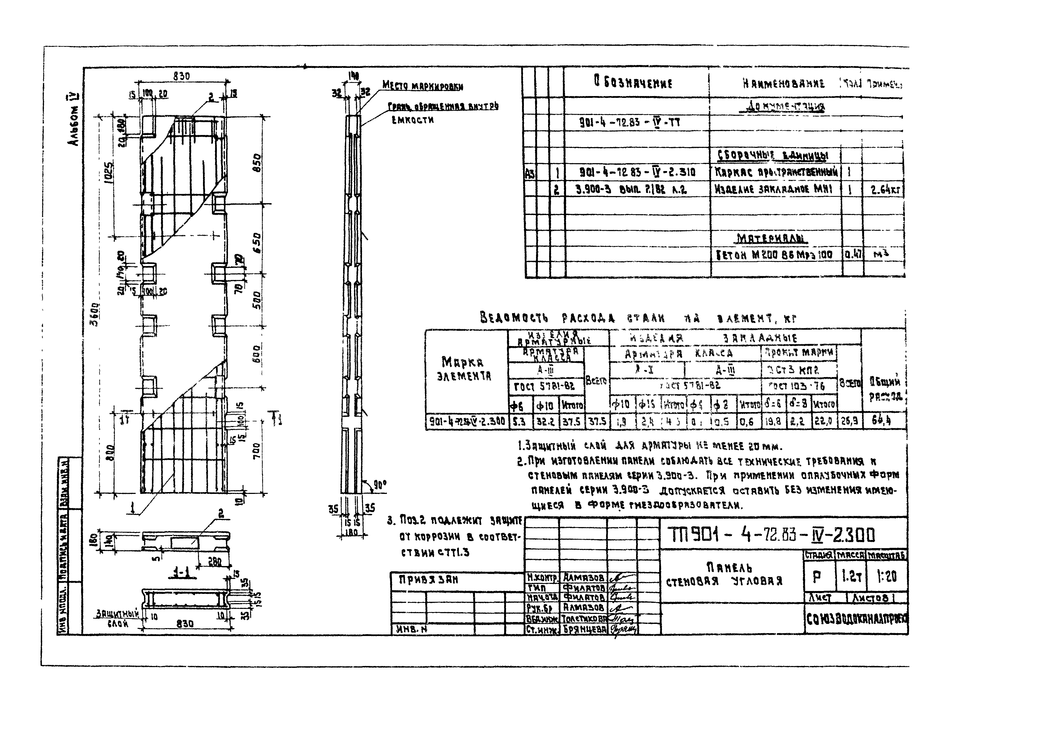
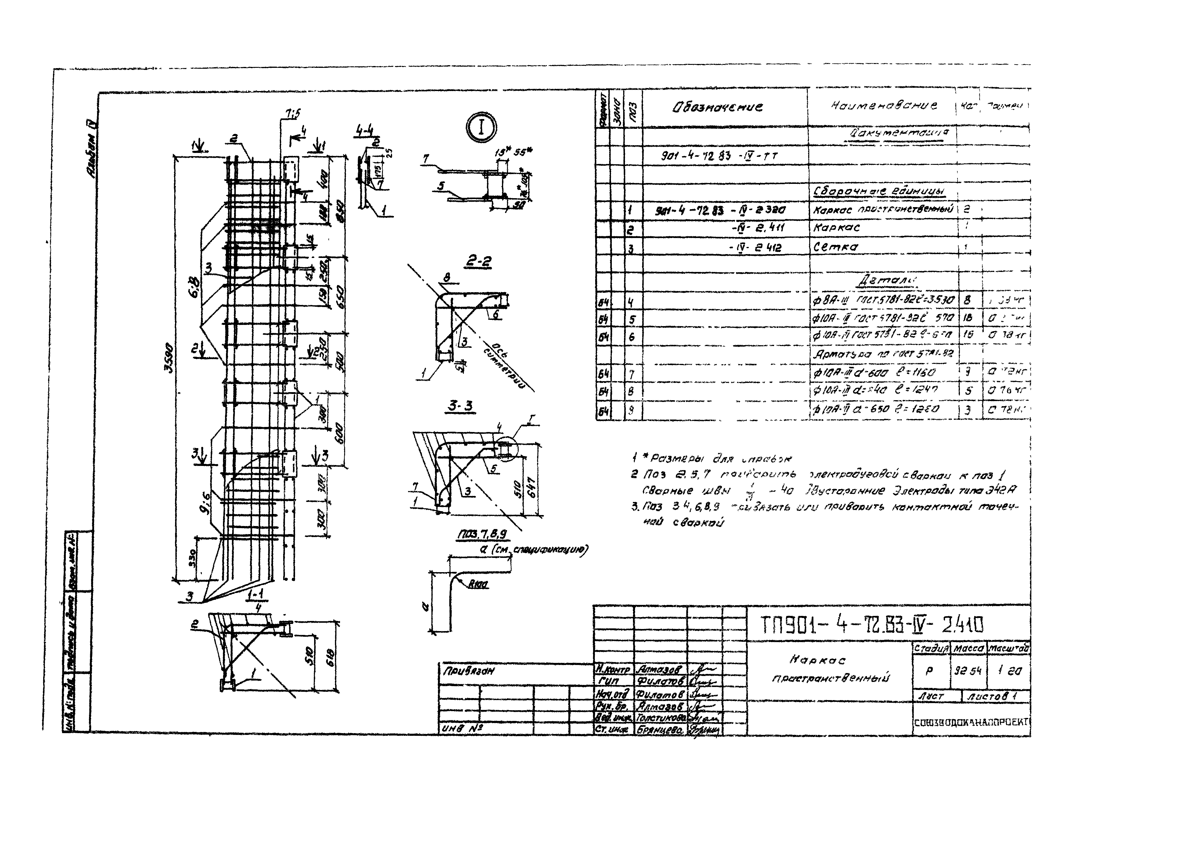
| Оглавление: | ТП901-4-72.83-IV Содержание альбома ТП901-4-72.83-IV-ТТ Технические требования ТП901-4-72.83-IV-1.100 Каркас пространственный ТП901-4-72.83-IV-1.101 Сетка ТП901-4-72.83-IV-1.001 Сетка ТП901-4-72.83-IV-1.002 Каркас плоский ТП901-4-72.83-IV-1.003 Сетка ТП901-4-72.83-IV-1.004 Сетка ТП901-4-72.83-IV-1.005 Сетка ТП901-4-72.83-IV-1.006 Сетка ТП901-4-72.83-IV-1.007 Сетка ТП901-4-72.83-IV-1.008 Сетка ТП901-4-72.83-IV-2.100 Панель стеновая ПС2-36-64 ТП901-4-72.83-IV-2.200 Панель стеновая ПС2-36-65 ТП901-4-72.83-IV-2.101 Изделие закладное ТП901-4-72.83-IV-2.102 Изделие закладное ТП901-4-72.83-IV-2.000 ВМС Панель стеновая ПС2-36-64;65. Ведомость расхода стали ТП901-4-72.83-IV-2.311 Петля строповочная ТП901-4-72.83-IV-2.300 Панель стеновая угловая ТП901-4-72.83-IV-2.310 Каркас пространственный ТП901-4-72.83-IV-2.320 Каркас пространственный ТП901-4-72.83-IV-2.321 Сетка ТП901-4-72.83-IV-2.400 Блок угловой ТП901-4-72.83-IV-2.410 Каркас пространственный ТП901-4-72.83-IV-2.411 Каркас ТП901-4-72.83-IV-2.412 Сетка ТП901-4-72.83-IV-3.100 Плита покрытия 2ПР;4ПР ТП901-4-72.83-IV-3.200 Плита покрытия 4ПР ТП901-4-72.83-IV-3.300 Плита покрытия 5ПР;6ПР ТП901-4-72.83-IV-3.300 СБ Плита покрытия ПР. Сборочный чертеж ТП901-4-72.83-IV-3.301 Сетка ТП901-4-72.83-IV-3.300 ВМС Плита покрытия 5ПР;6ПР. Ведомость расхода стали ТП901-4-72.83-IV-4.000 Хомут ТП901-4-72.83-IV-5.000 Лестница съемная ТП901-4-72.83-IV-6.000 Заглушка ТП901-4-72.83-IV-6.100 Электрод нулевой ТП901-4-72.83-IV-6.200 Бобышка ТП901-4-72.83-IV-6.300 Фланец Ф1 ТП901-4-72.83-IV-7.000 Деталь отводящего трубопровода ТП901-4-72.83-IV-7.100 Деталь спускного трубопровода ТП901-4-72.83-IV-1.009 Сетка |
| Разработан: | Союзводоканалпроект ЦНИИпромзданий НИИЖБ |
| Утверждён: | 30.06.1982 Госстрой СССР (Государственный комитет Совета Министров СССР по делам строительства) (USSR Gosstroy 53) |
| Издан: | Госстрой СССР (1987 г. ) |































