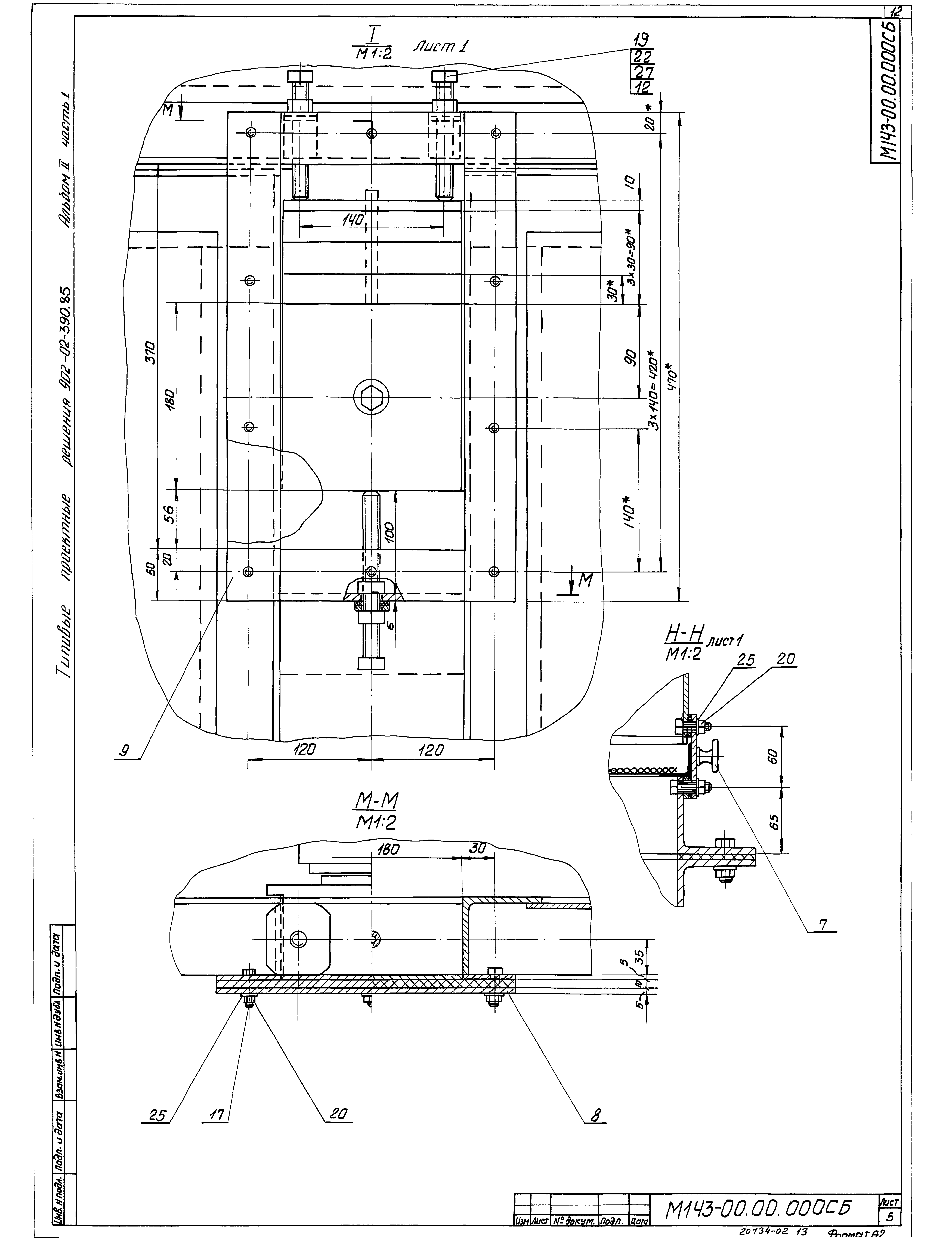
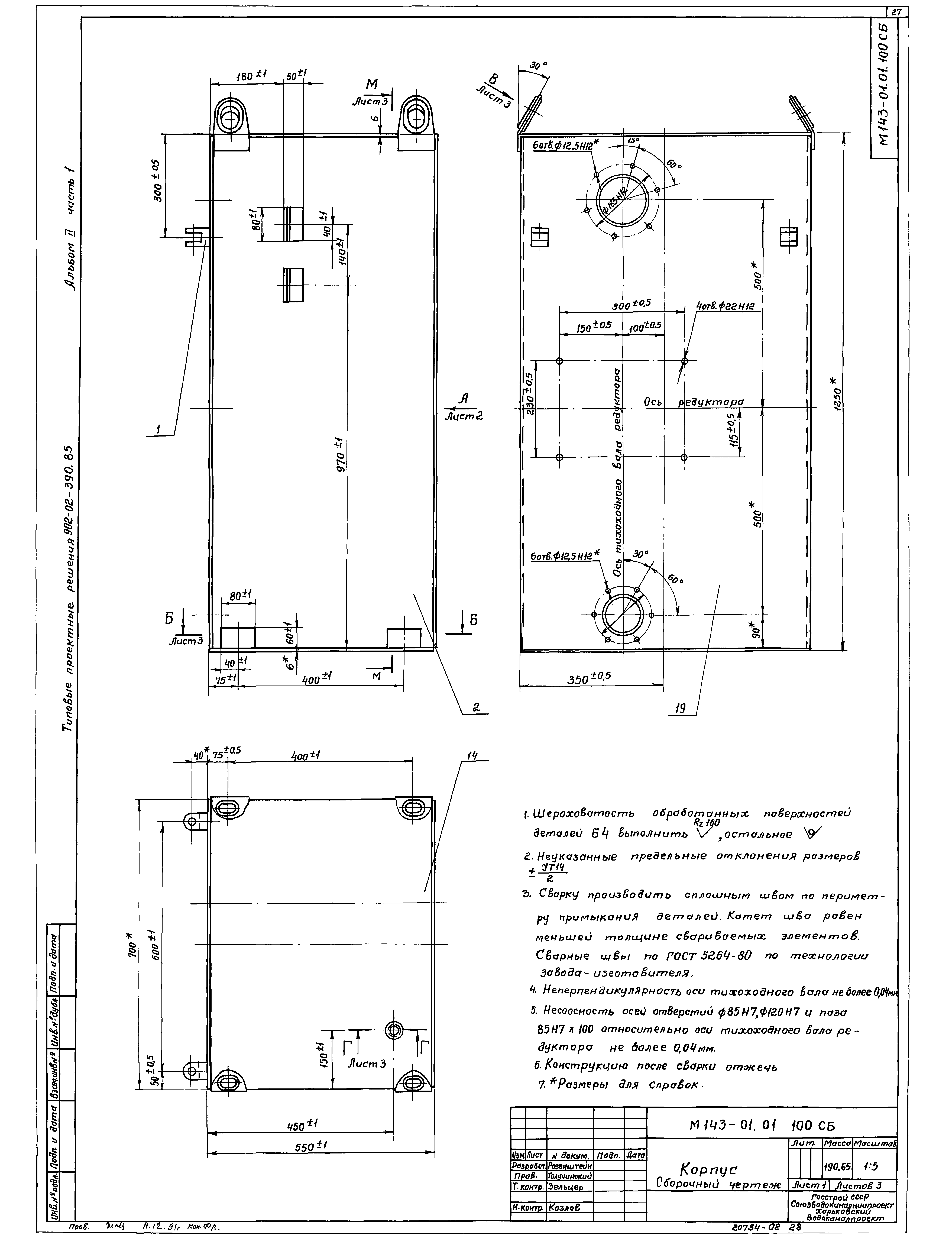
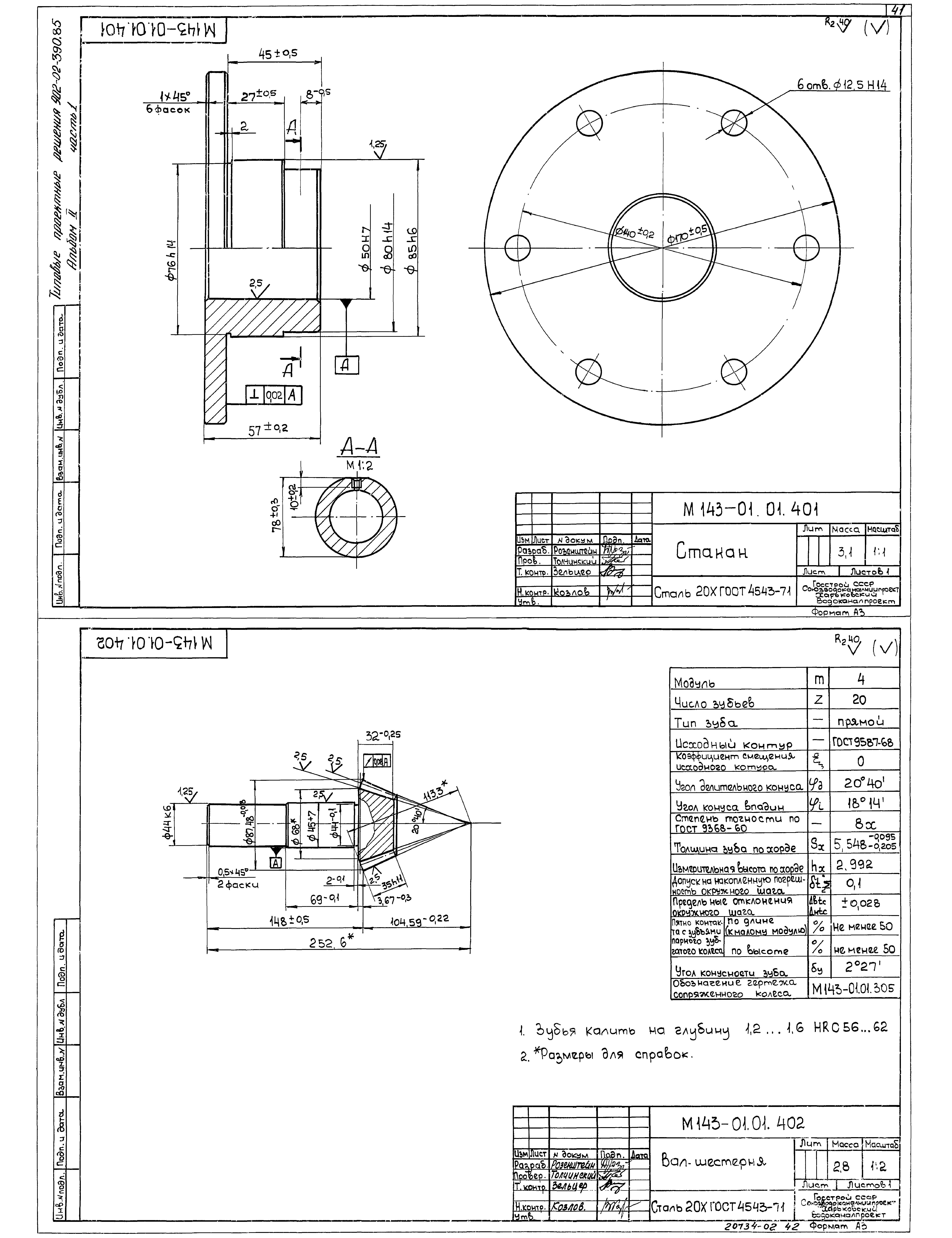
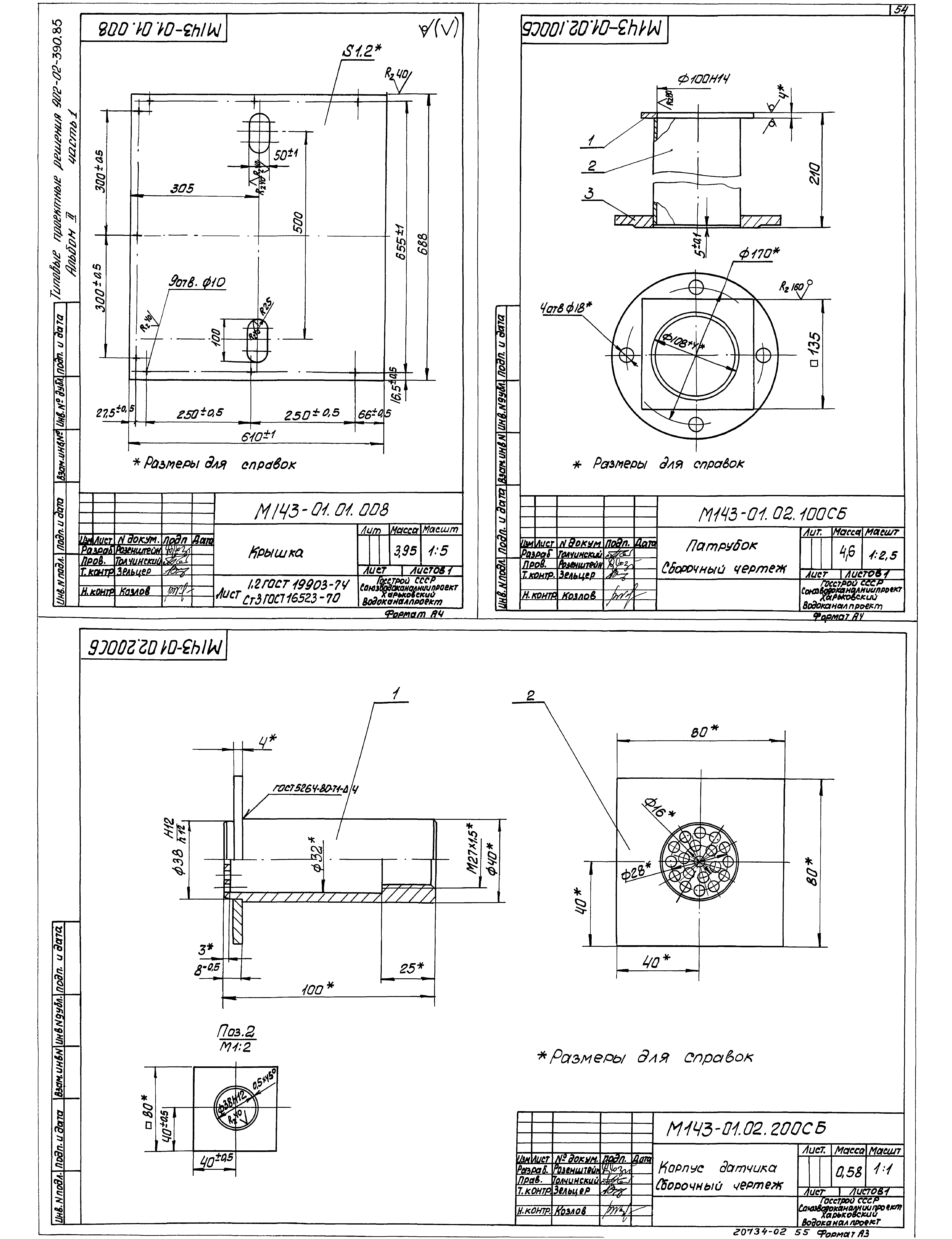
Скачать Типовые проектные решения 902-02-390.85 Альбом II. Часть 1. Нестандартизированное оборудованиеДата актуализации: 01.01.2021
|
| Обозначение: | Типовые проектные решения 902-02-390.85 |
| Обозначение англ: | 902-02-390.85 |
| Статус: | справочные материалы, мп, тпр |
| Название рус.: | Альбом II. Часть 1. Нестандартизированное оборудование |
| Дата добавления в базу: | 01.09.2013 |
| Дата актуализации: | 01.01.2021 |
| Дата введения: | 21.06.1985 |
| Разработан: | Харьковский Водоканалпроект |
| Утверждён: | 21.06.1985 Госстрой СССР (Государственный комитет Совета Министров СССР по делам строительства) (USSR Gosstroy АЧ-22) |

















































































