Скачать Железобетонные опоры для совместной подвески защищенных проводов ВЛ 10 кВ и самонесущих изолированных проводов двухцепной ВЛ 0,4 кВ. Рабочие чертежиДата актуализации: 01.01.2021
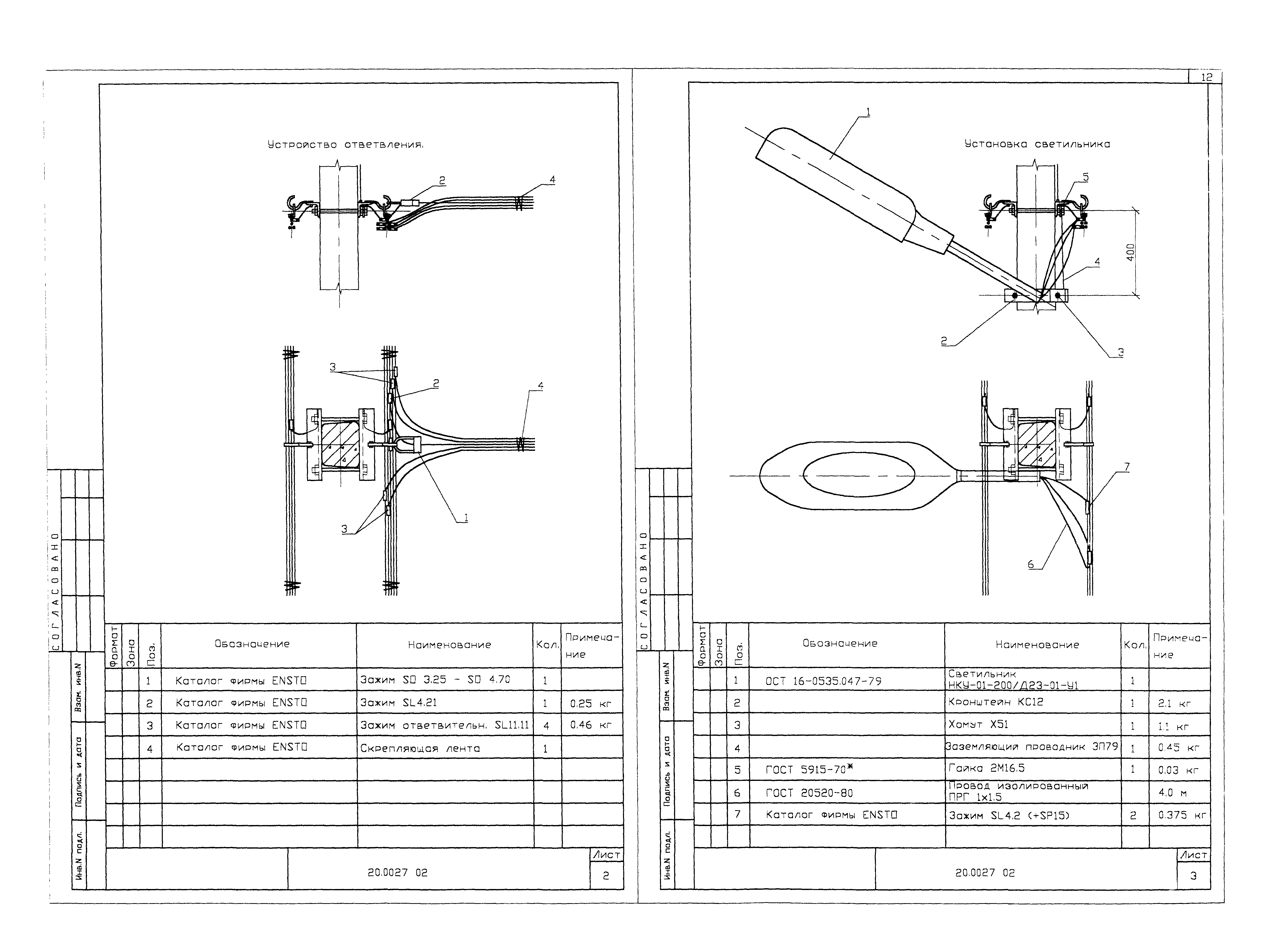
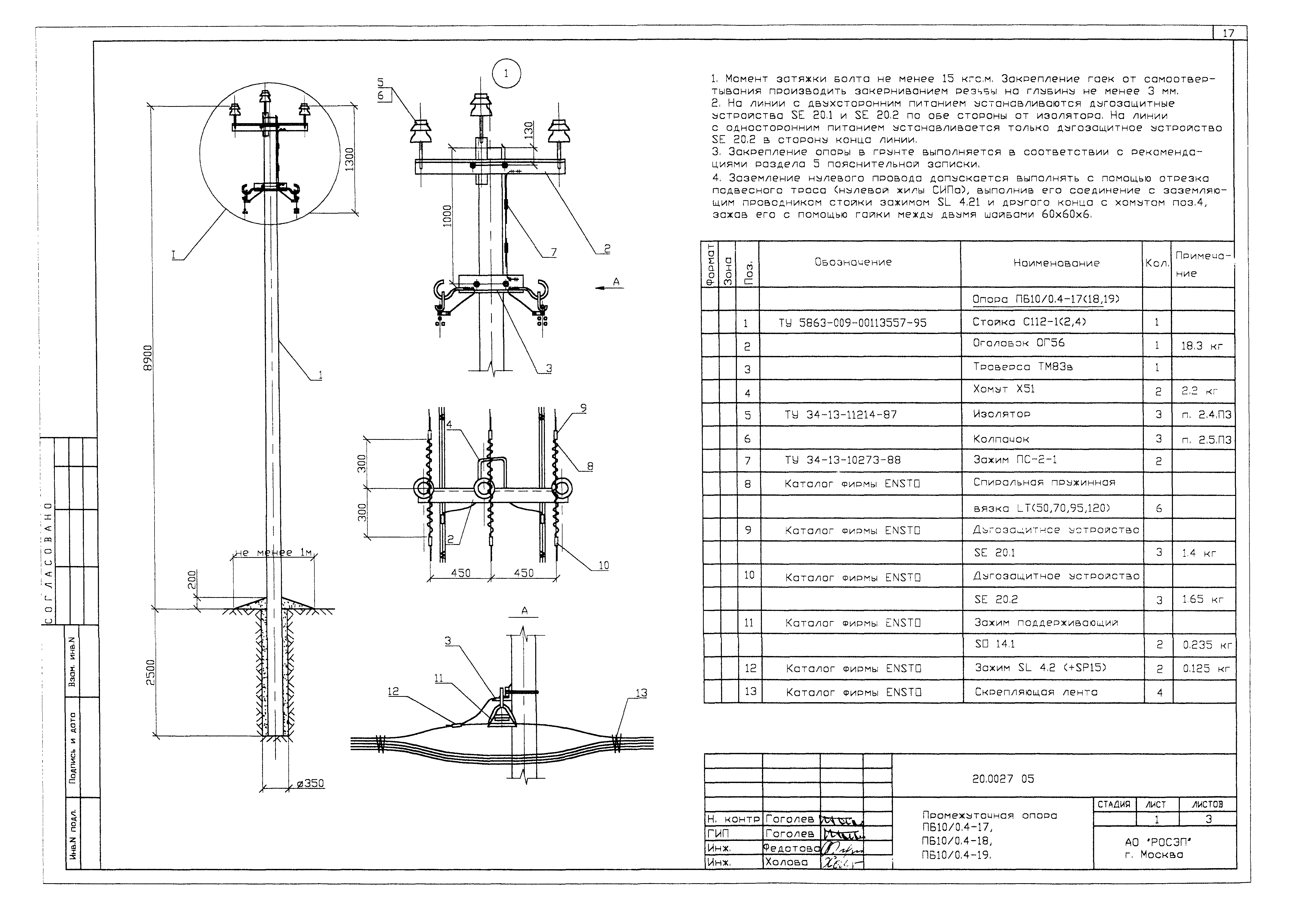
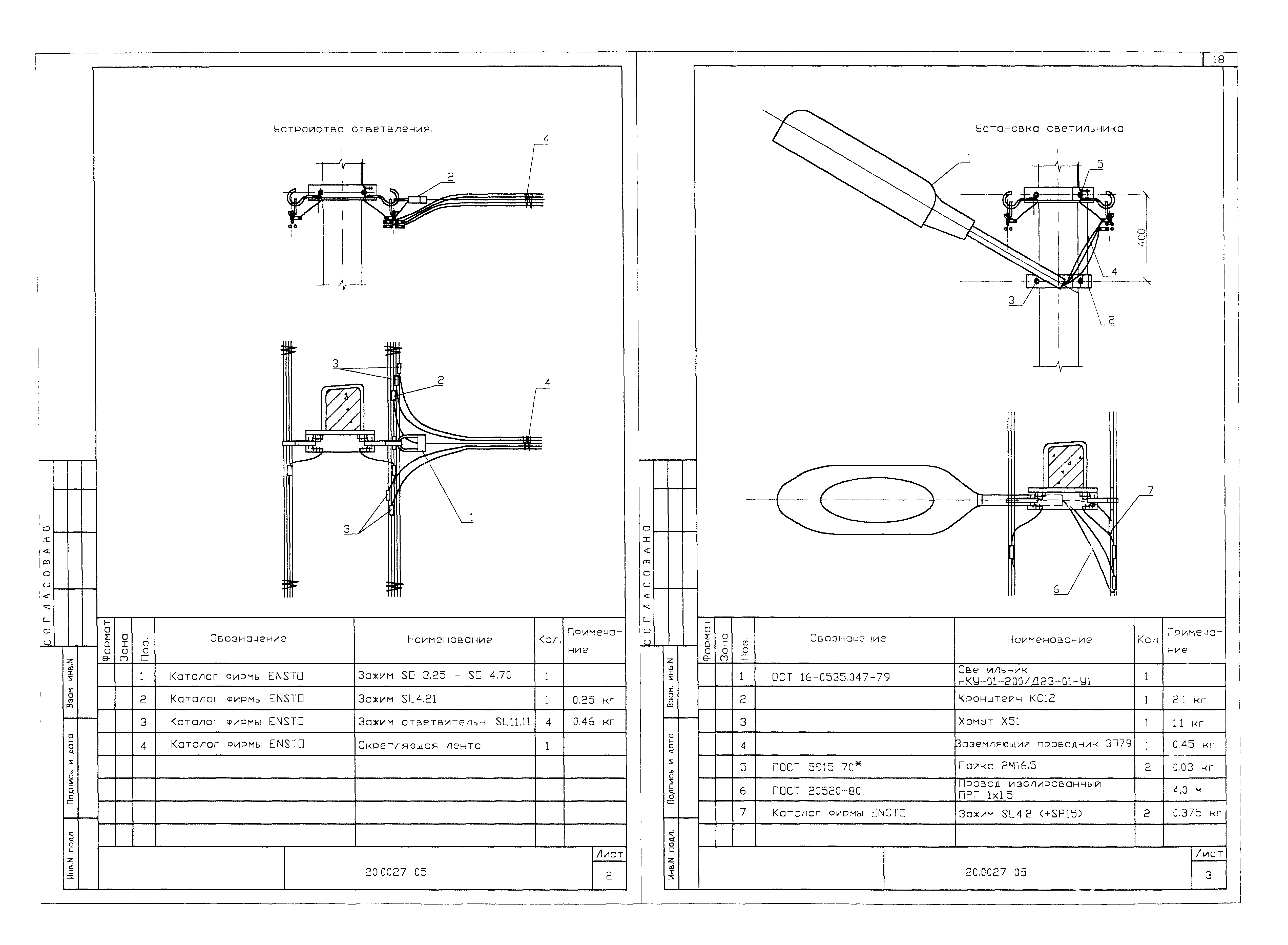
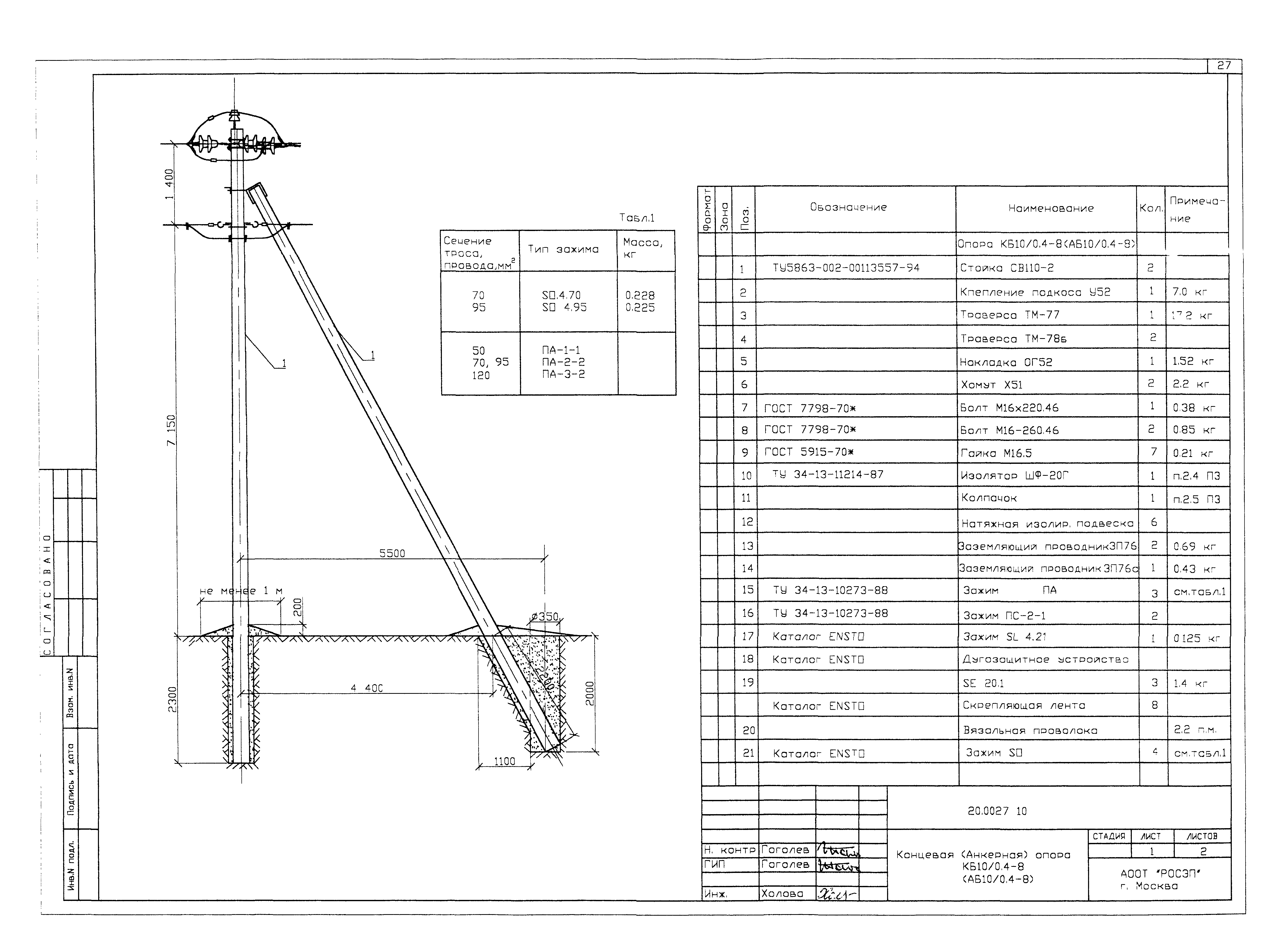
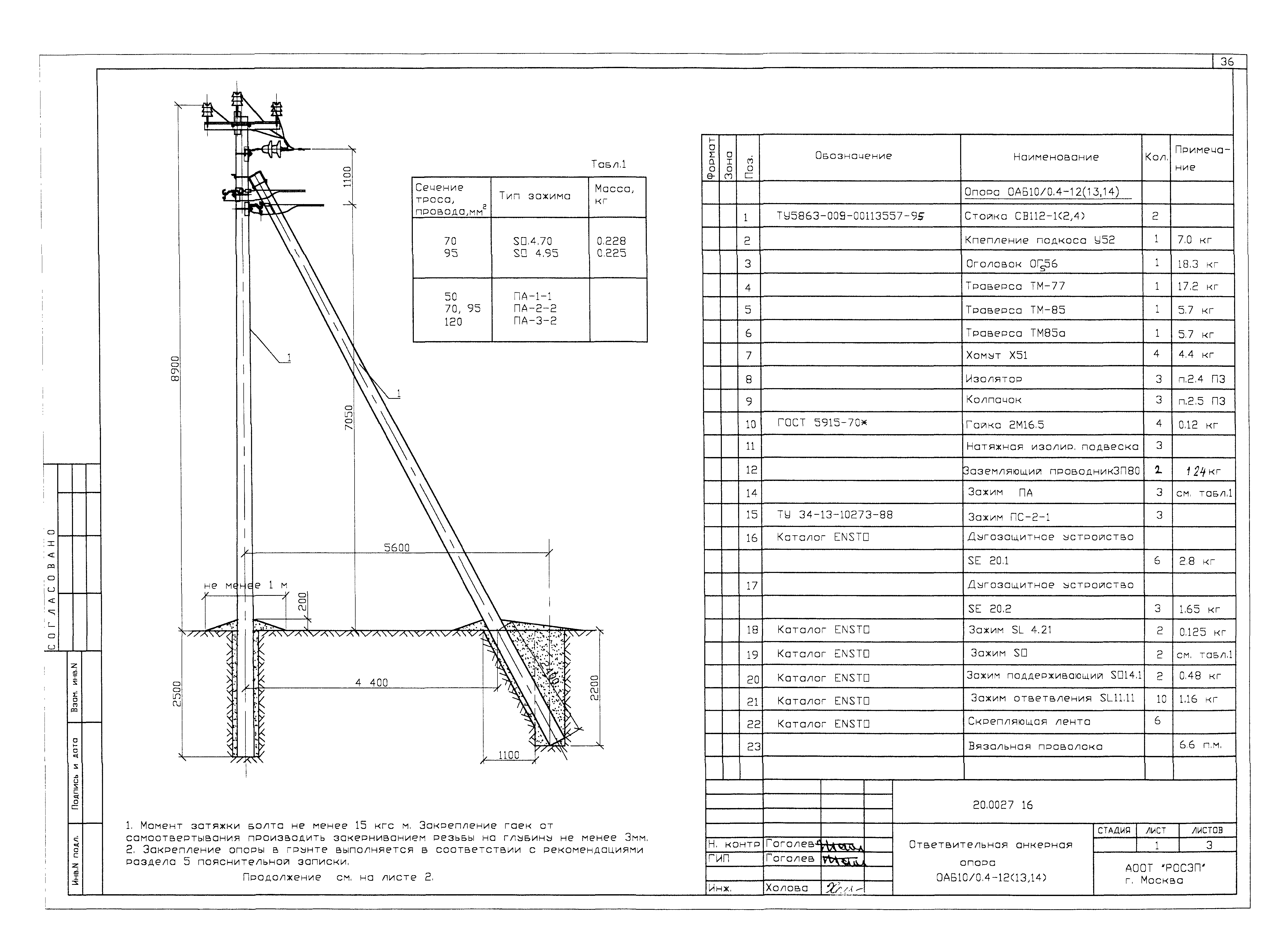
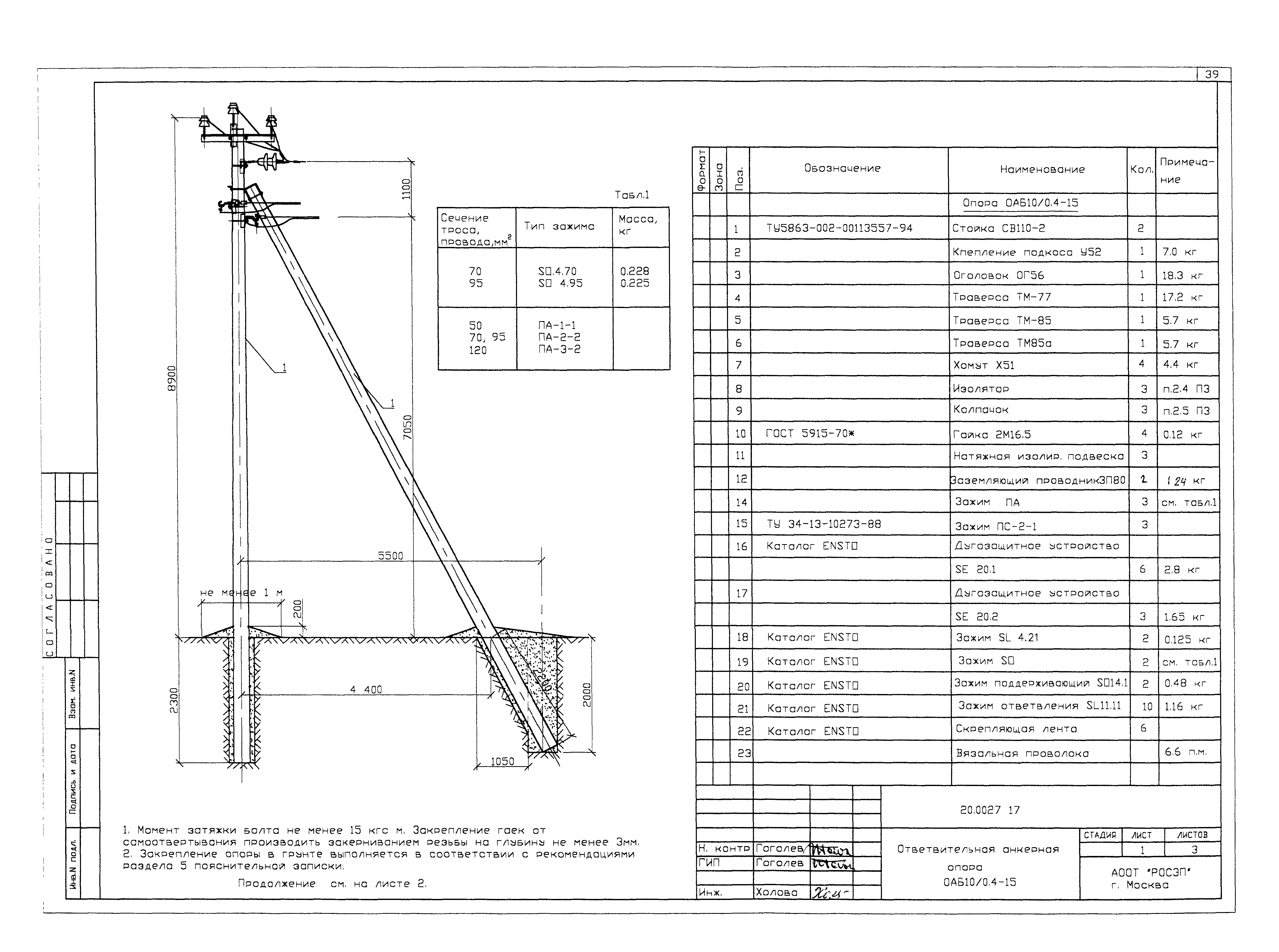
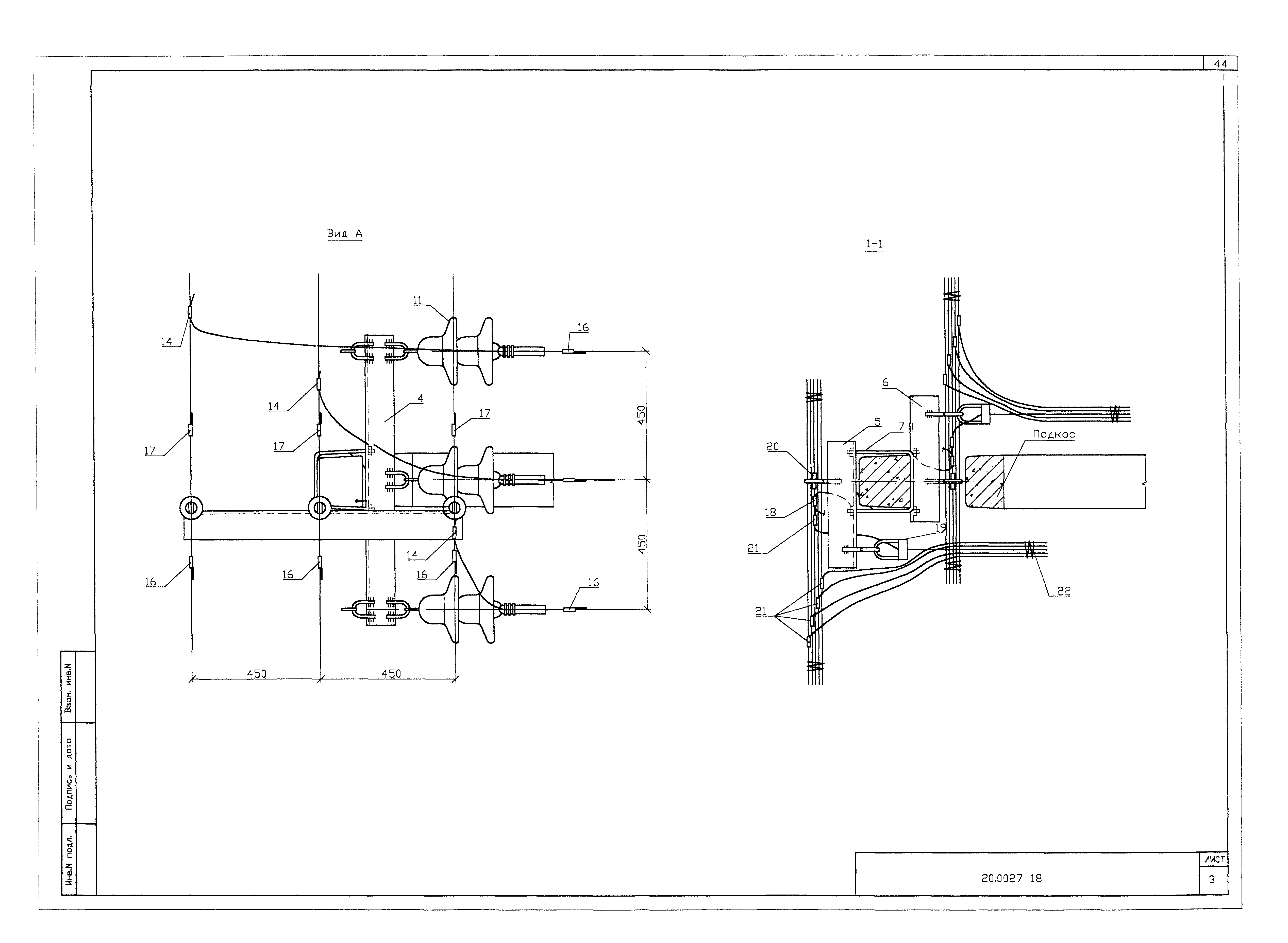
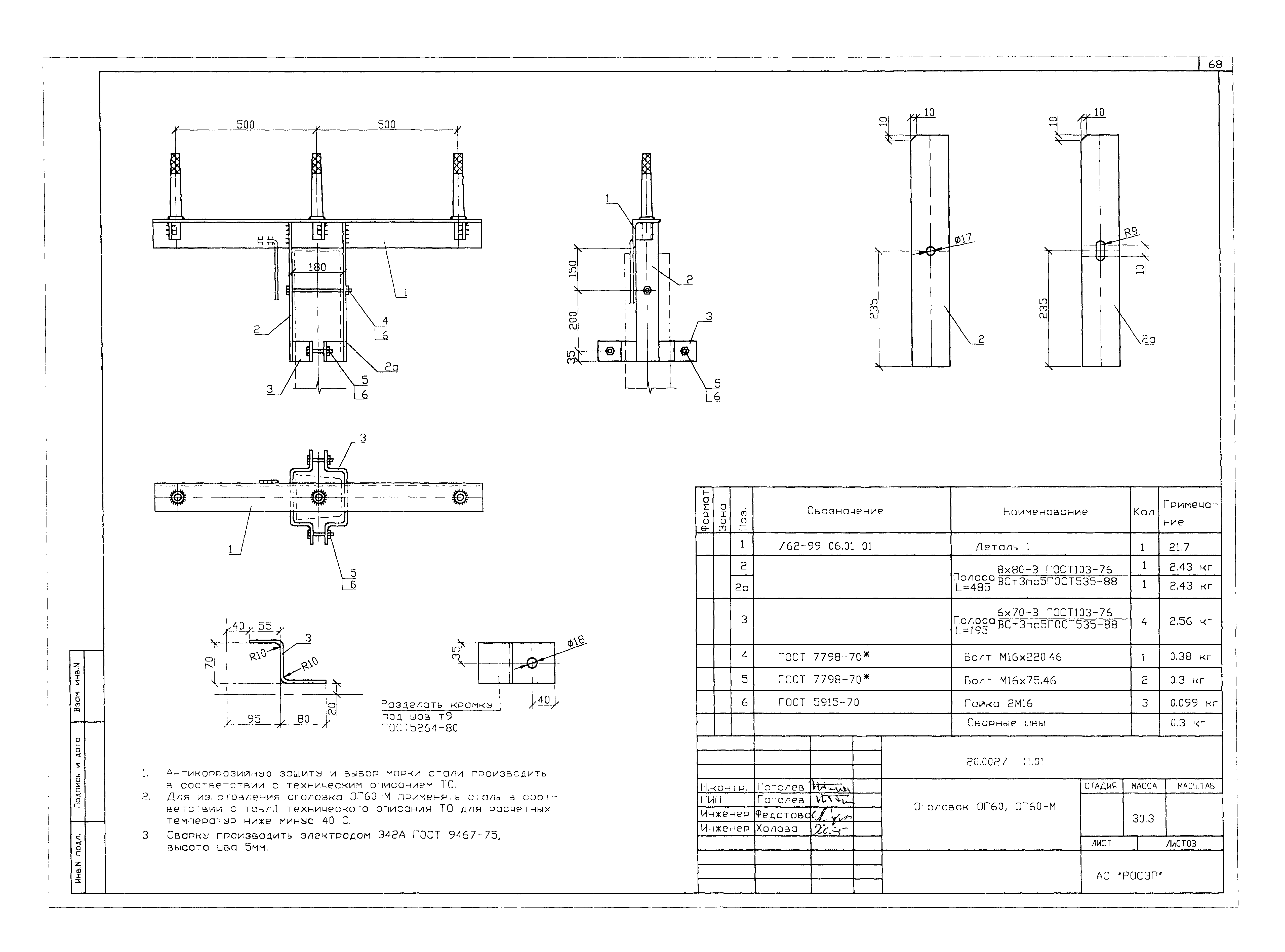
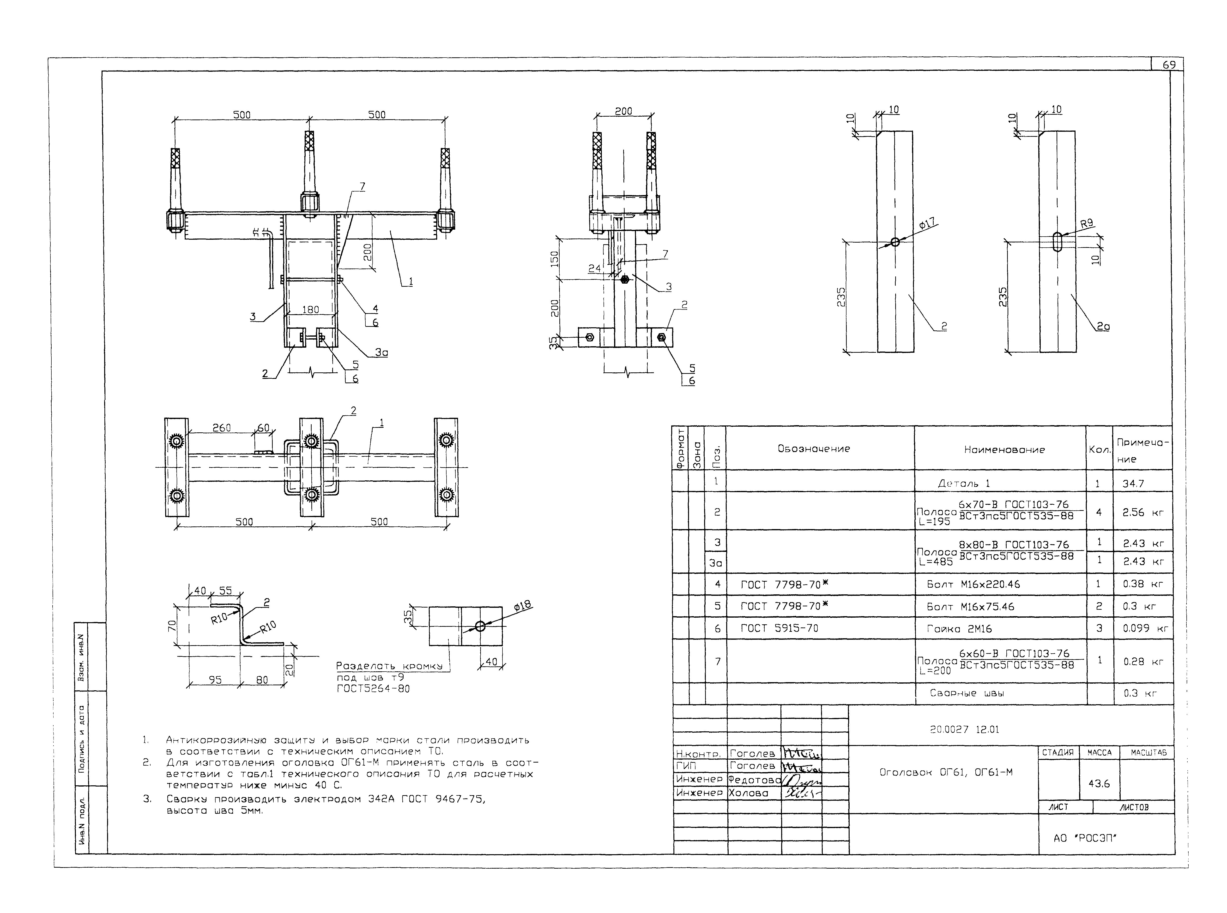
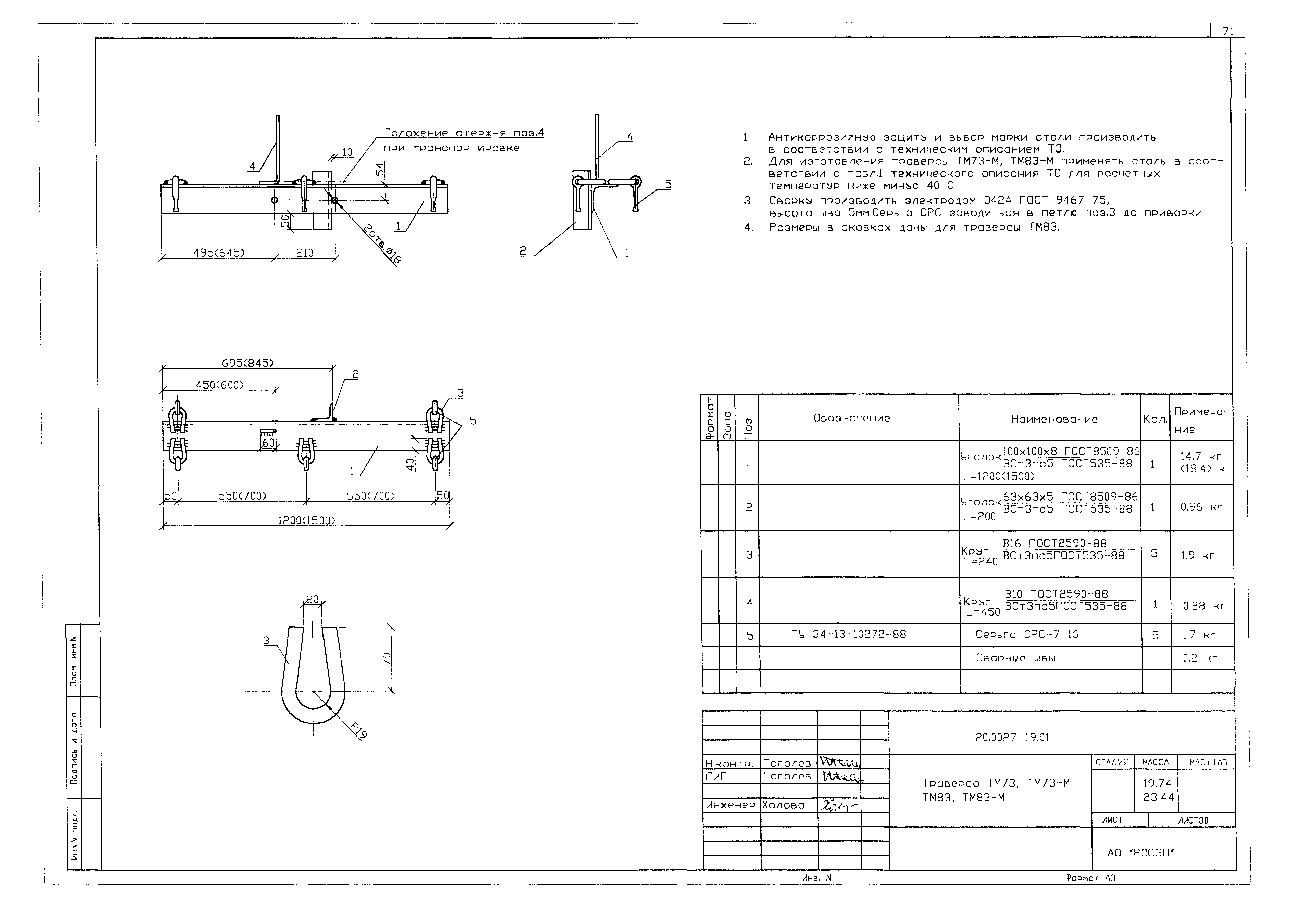
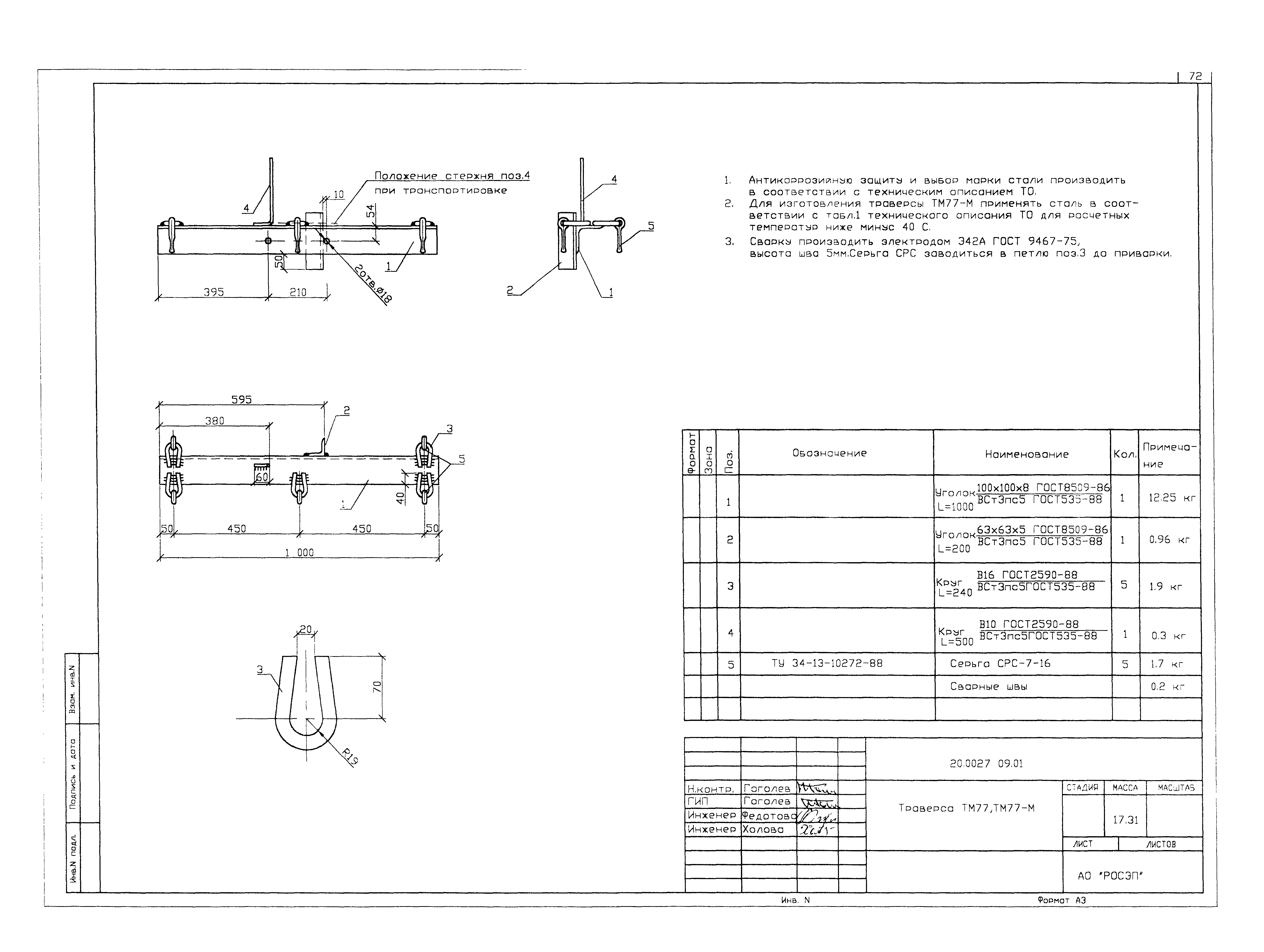
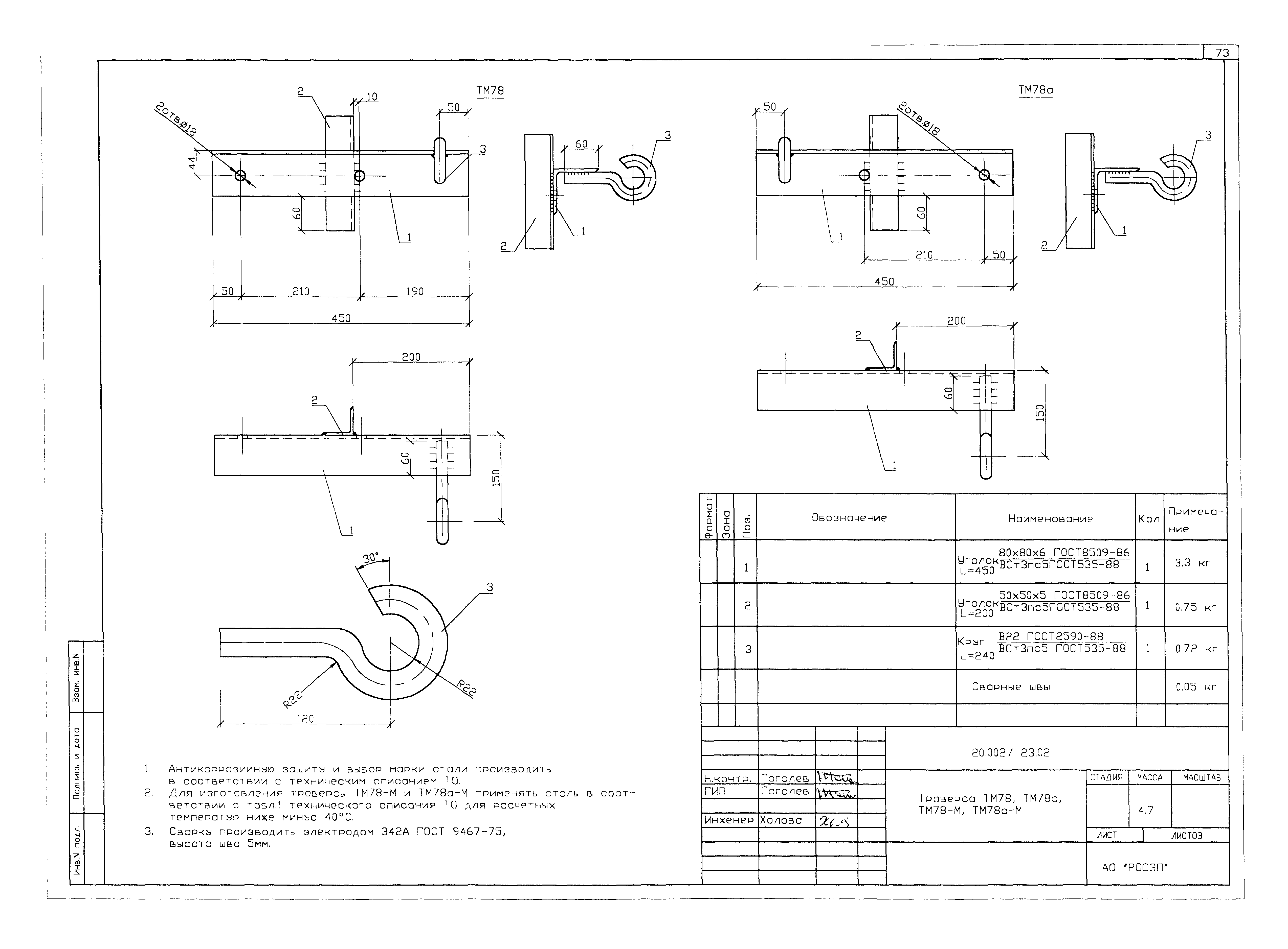
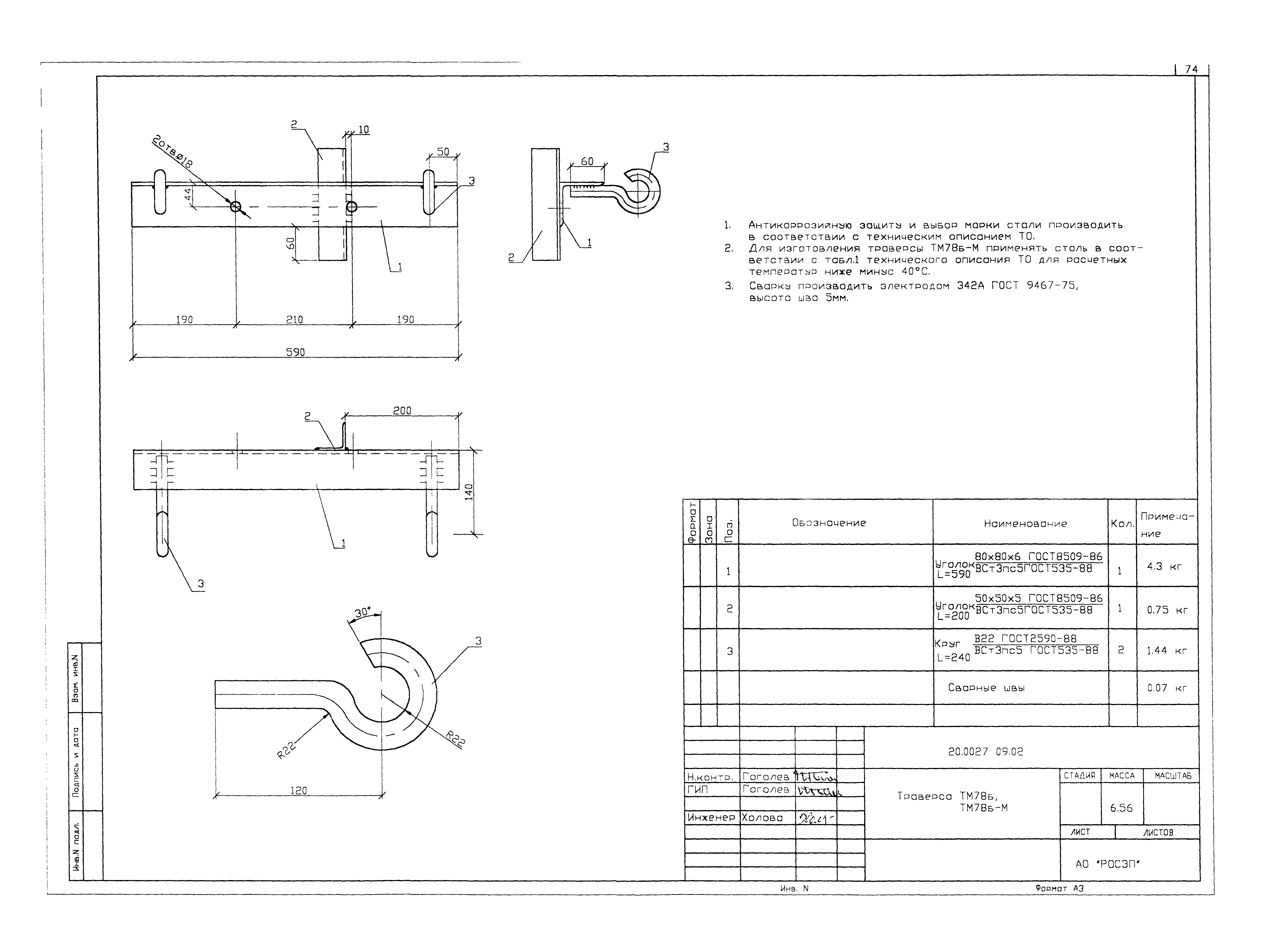
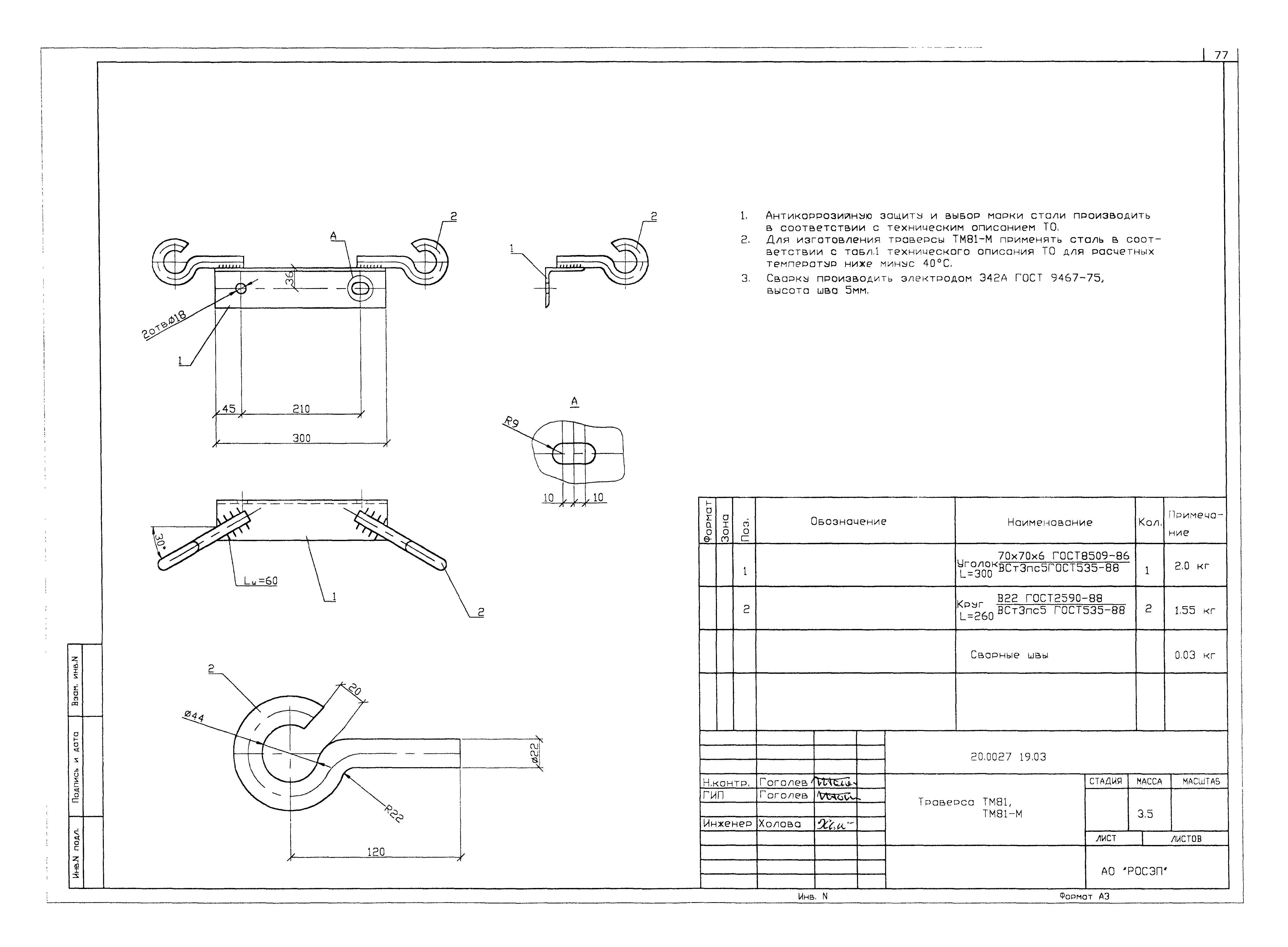
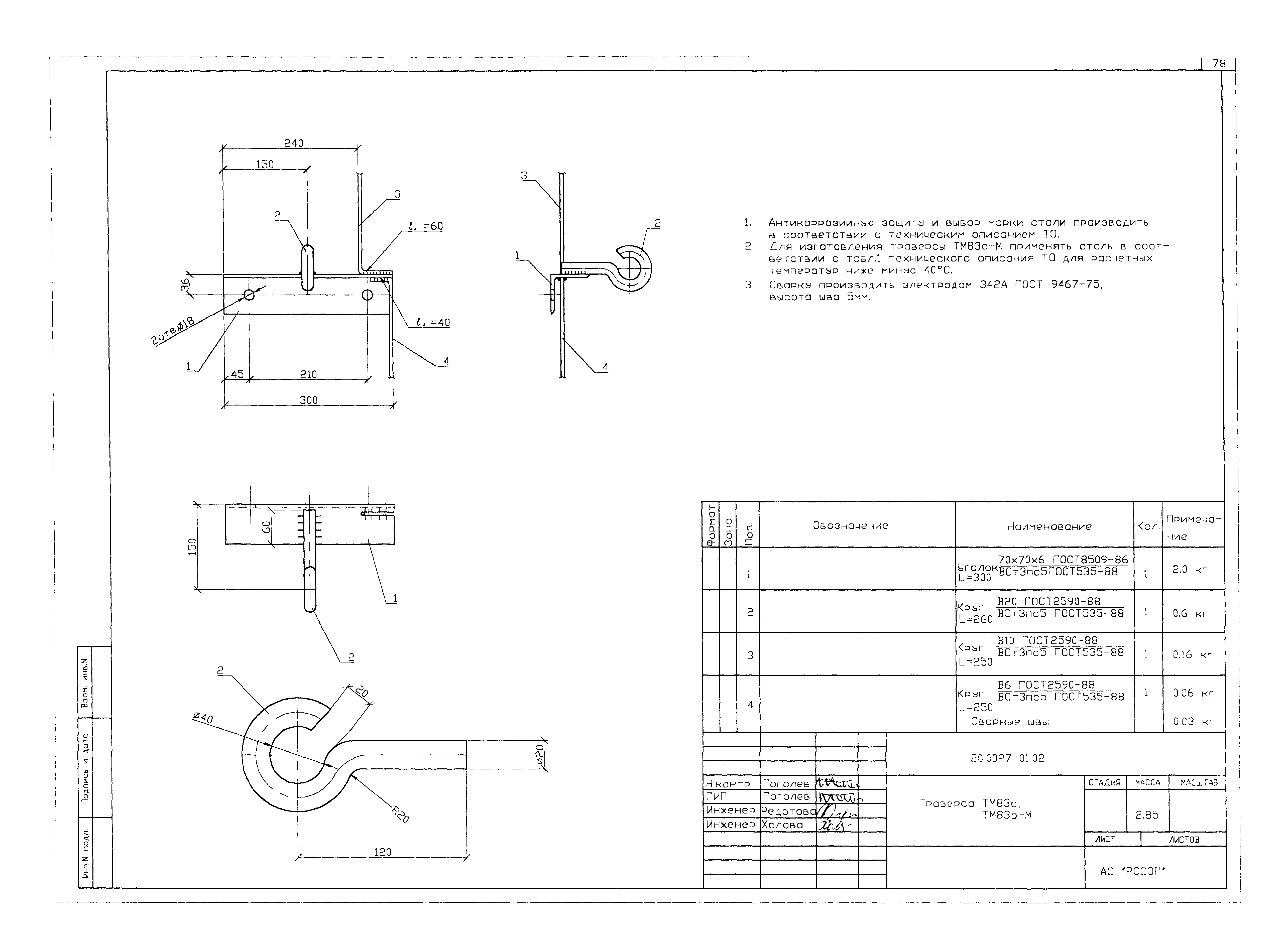
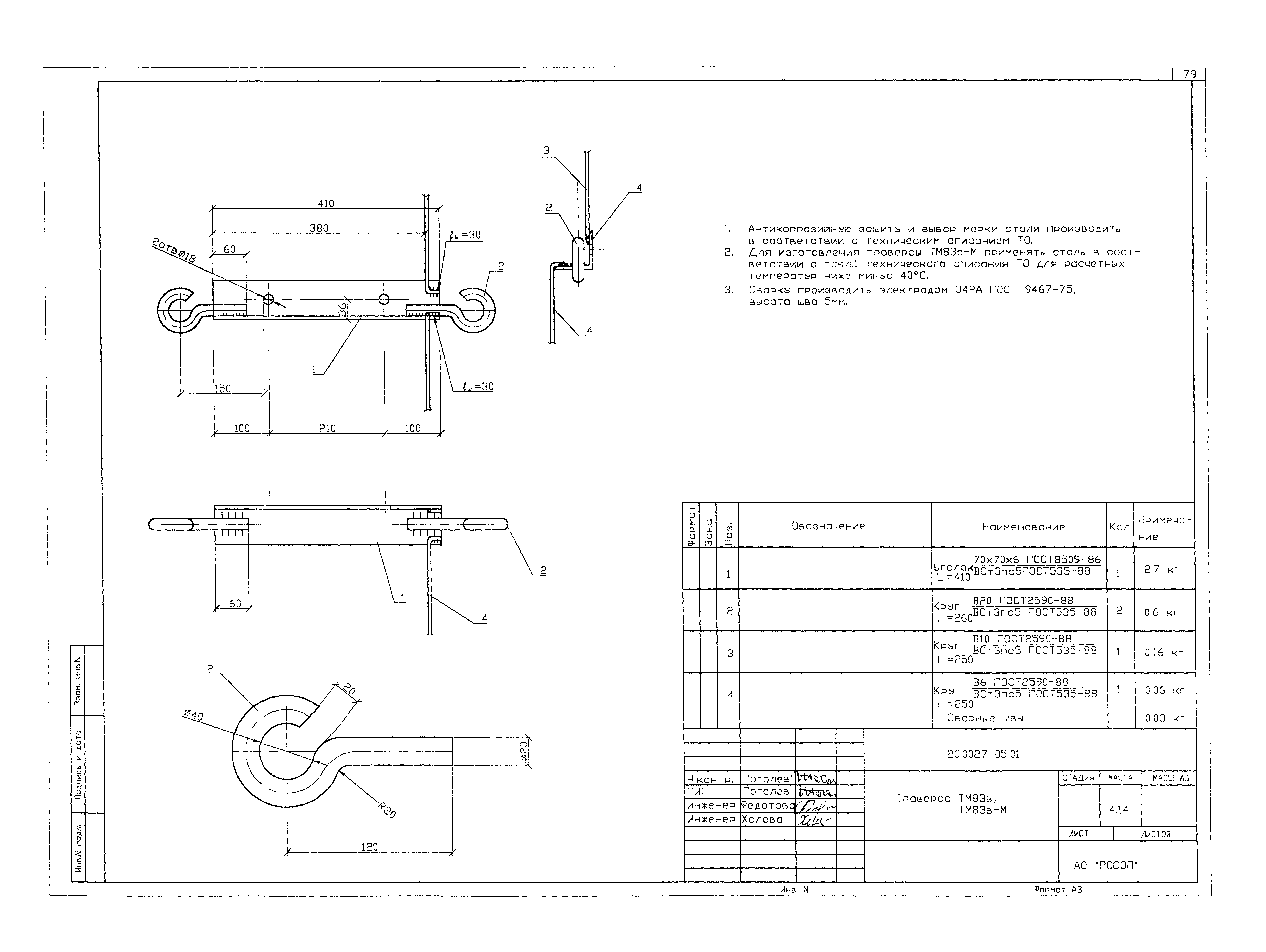
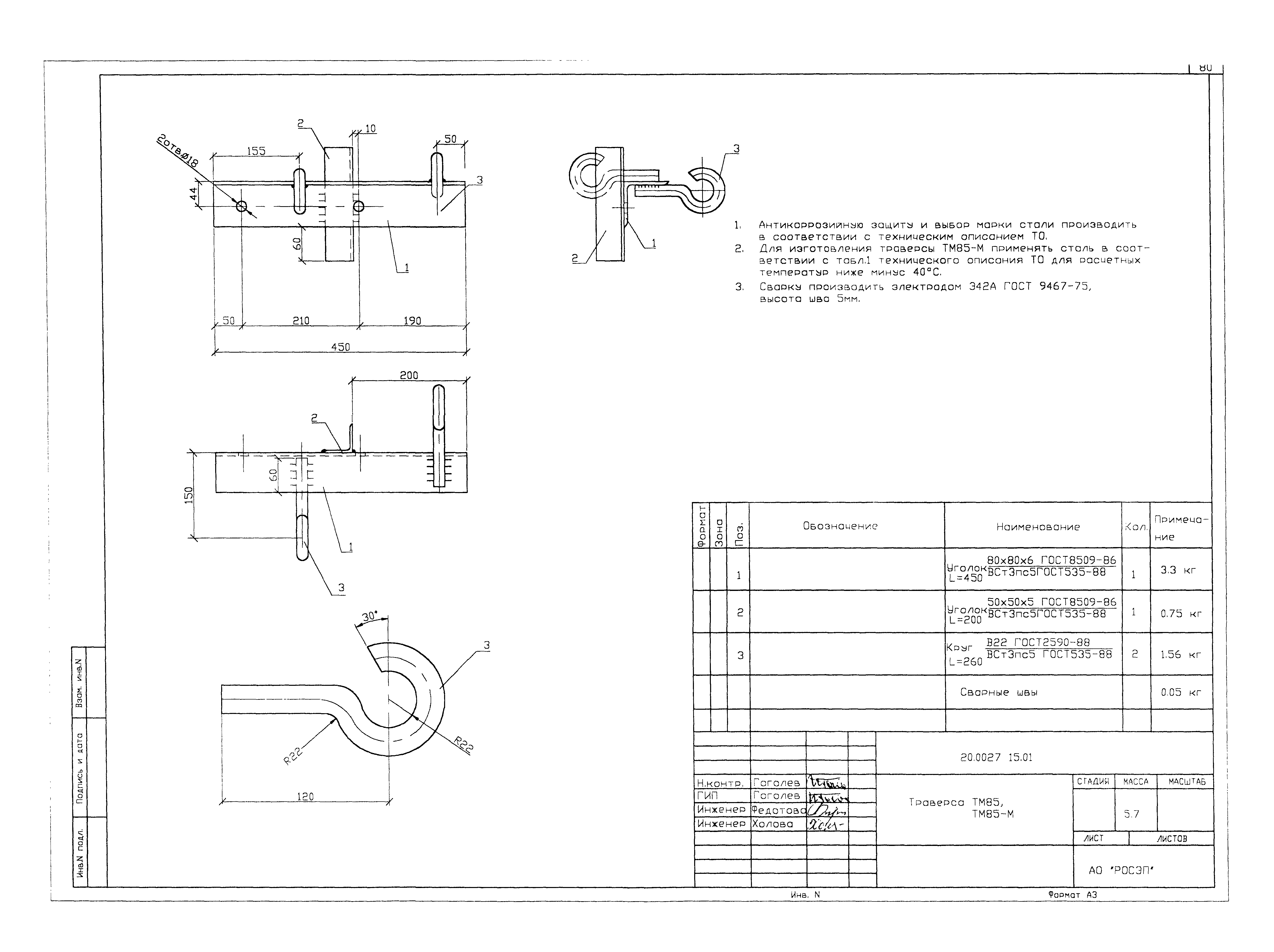
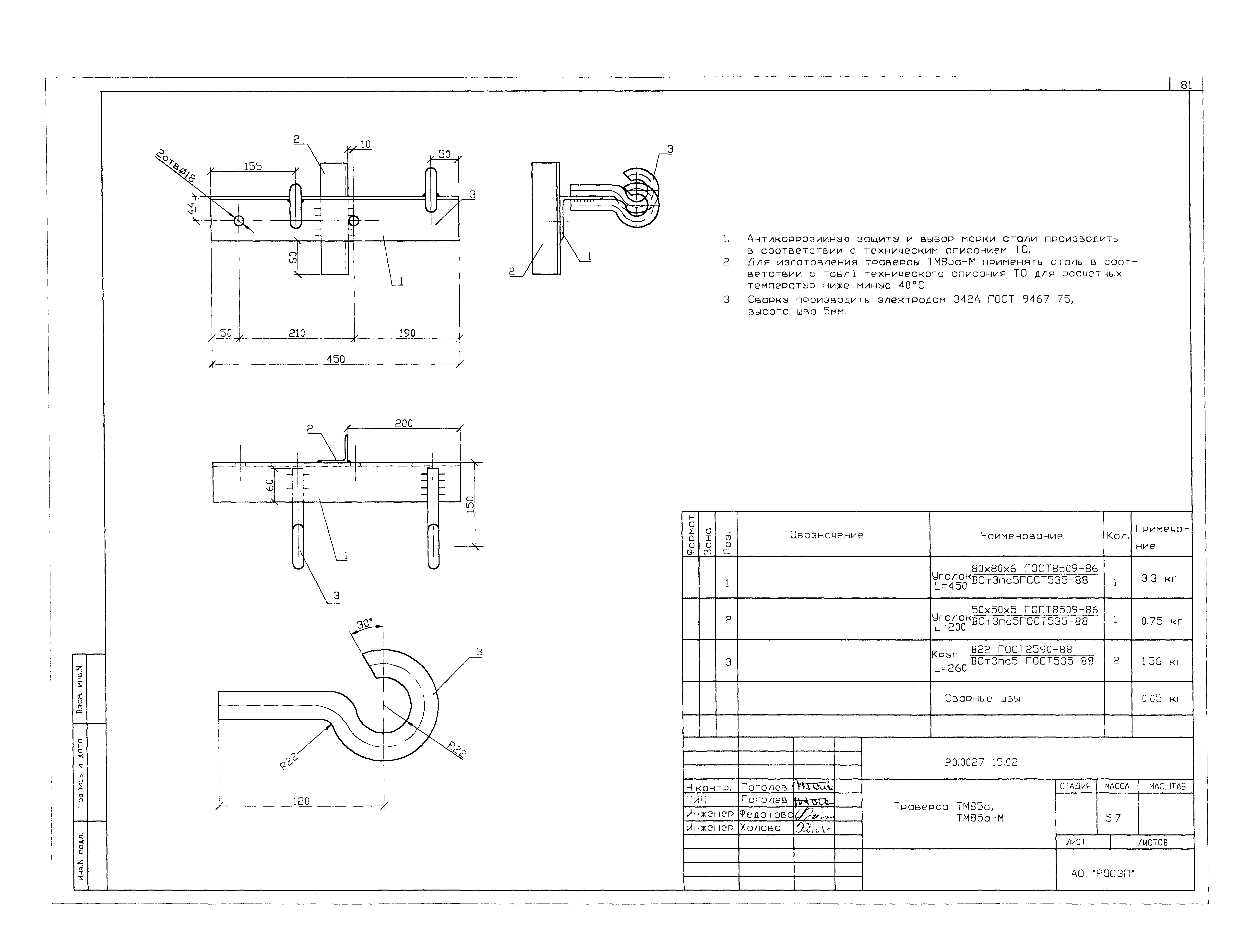
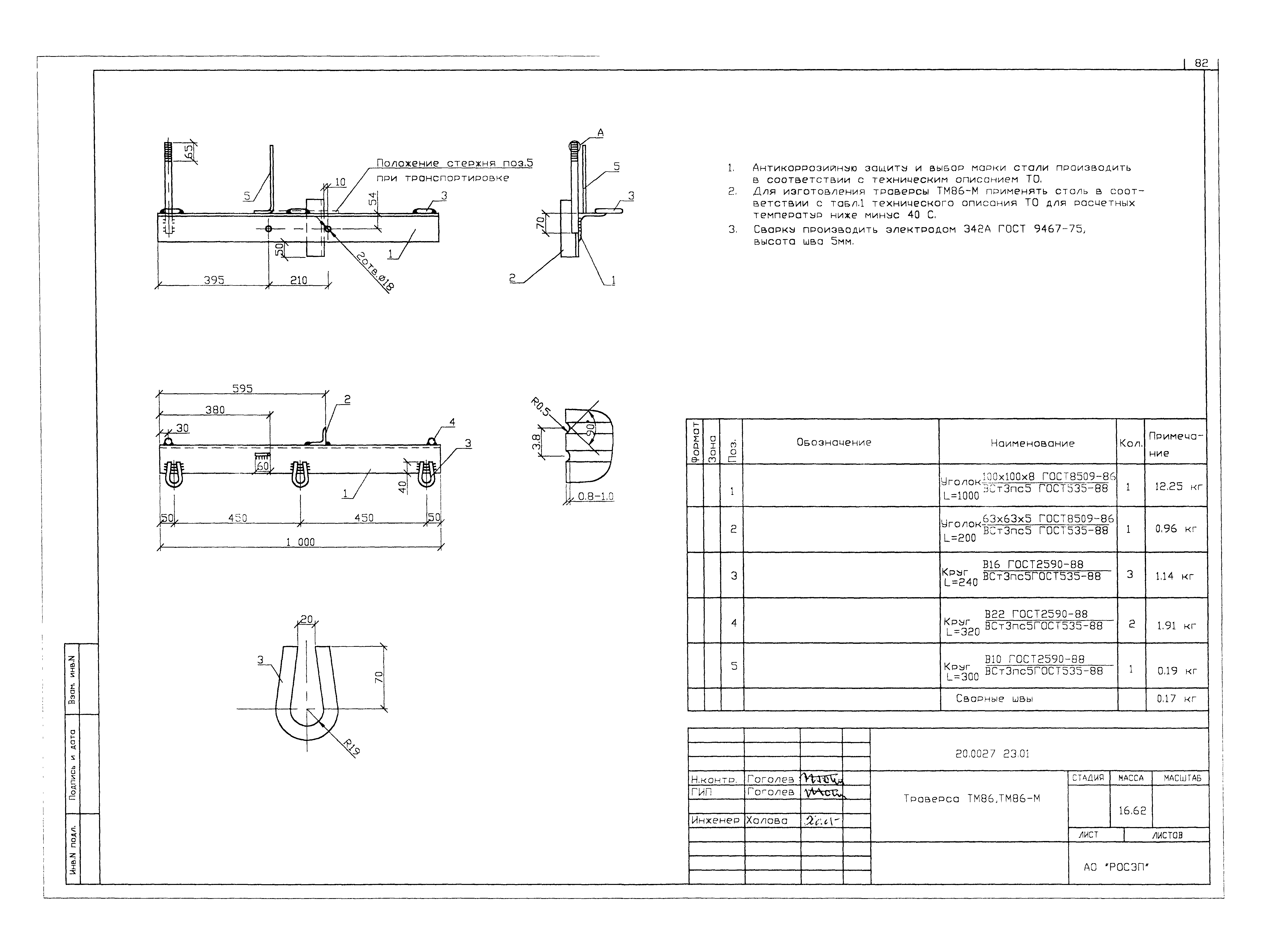
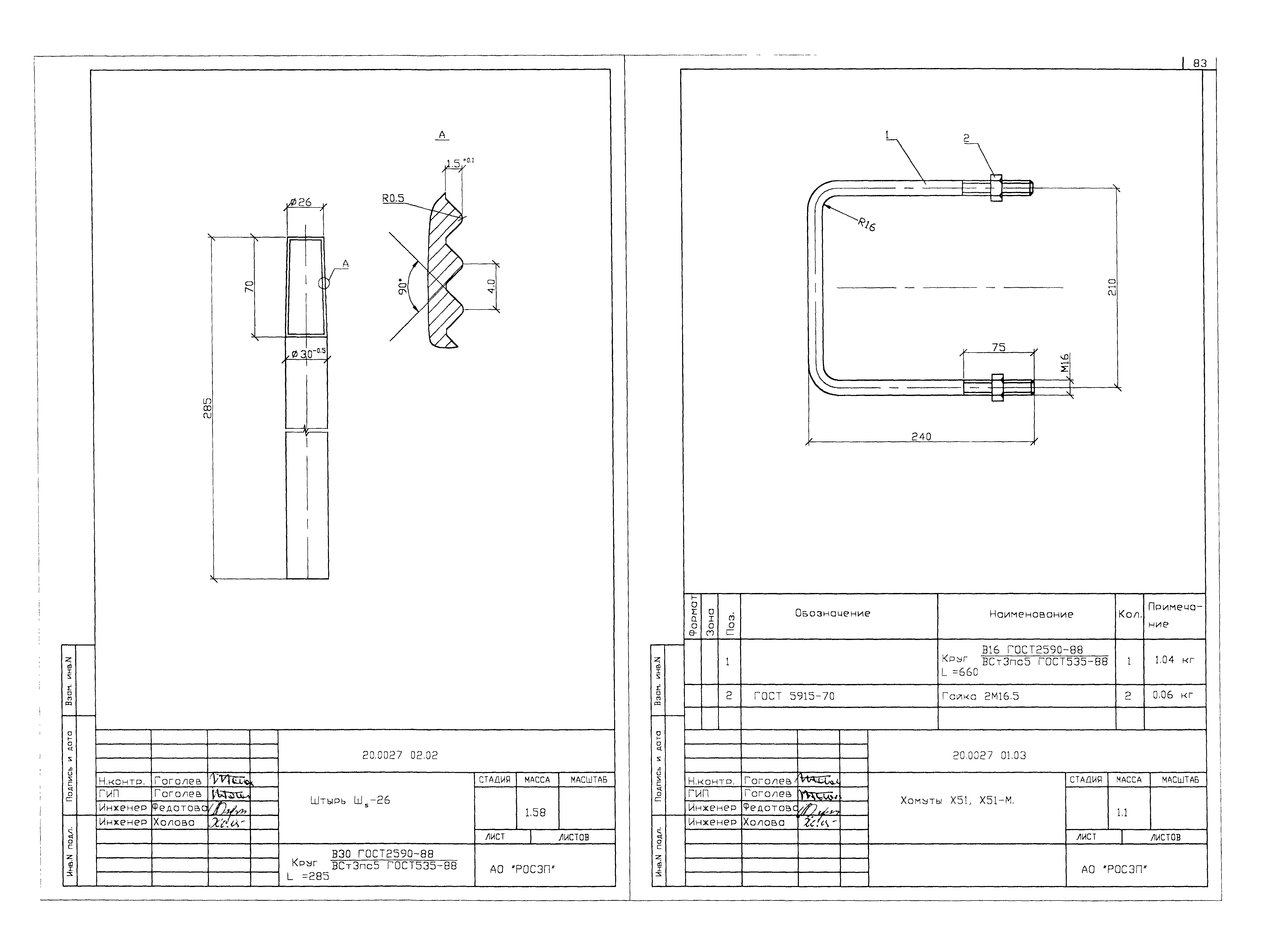
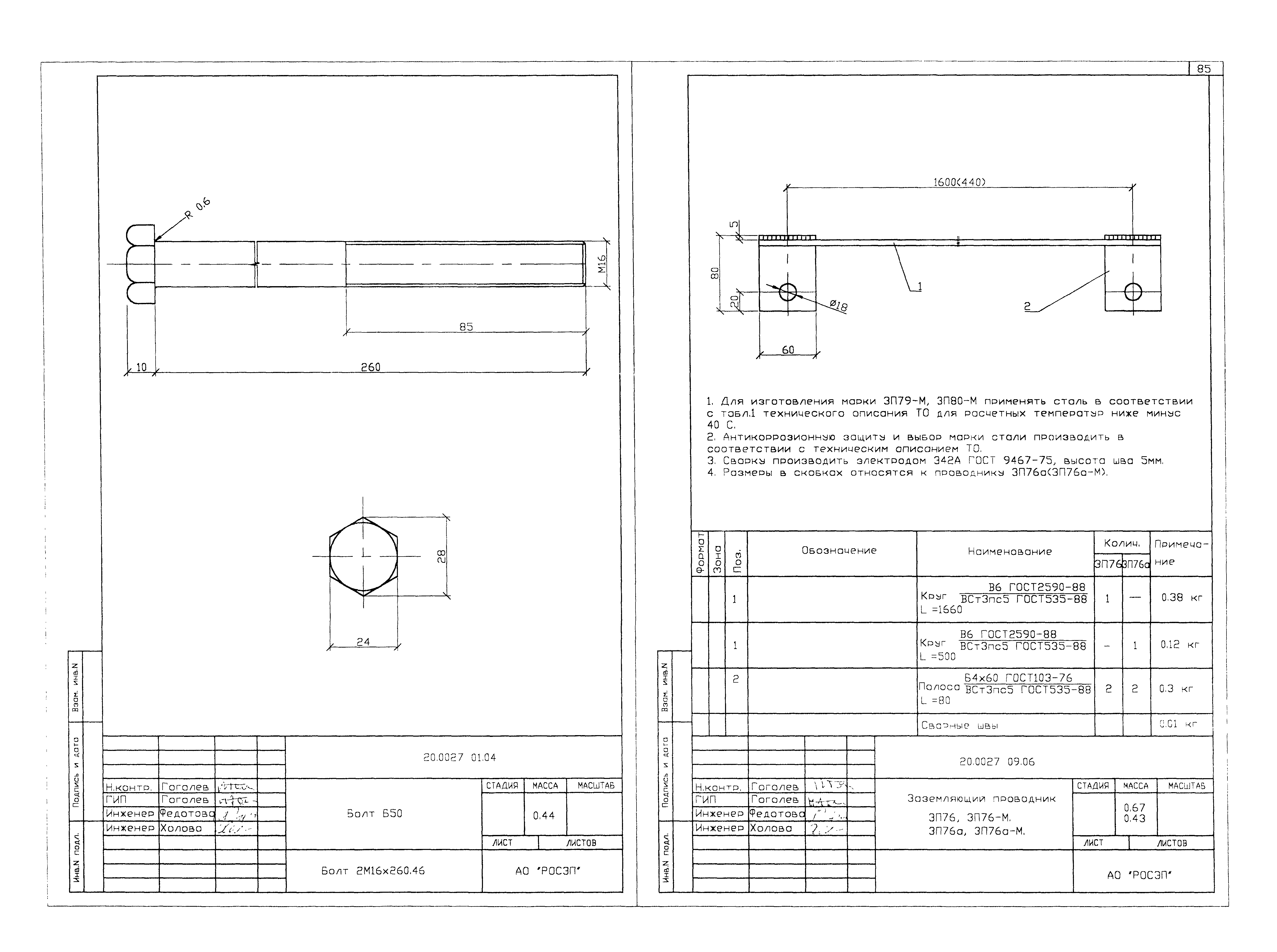
Железобетонные опоры для совместной подвески защищенных проводов ВЛ 10 кВ и самонесущих изолированных проводов двухцепной ВЛ 0,4 кВ. Рабочие чертежи| Статус: | не определен законодательством | | Название рус.: | Железобетонные опоры для совместной подвески защищенных проводов ВЛ 10 кВ и самонесущих изолированных проводов двухцепной ВЛ 0,4 кВ. Рабочие чертежи | | Дата добавления в базу: | 01.09.2013 | | Дата актуализации: | 01.01.2021 | | Дата введения: | 01.01.2000 | | Дата окончания срока действия: | 30.06.2003 | | Область применения: | Альбом содержит разработанные по дополнительному соглашению к договору №25 от 05.04.99 г. с РАО "ЕЭС России", задание 3,8 рабочие чертежи железобетонных опор для совместной подвески защищенных проводов ВЛ 10 кВ и изолированных проводов низкого напряжения, сооружаемых в ненаселенной и населенной местности на базе стоек марок СВ110 и С112, утвержденных для применения РАО "ЕЭС России" (протокол №11-02 от 15.06.95 г.) | | Разработан: | АООТ РОСЭП
| | Утверждён: | 01.01.2000 РАО ЕЭС России (UES of Russia RAO )
|
                                                                                     
|