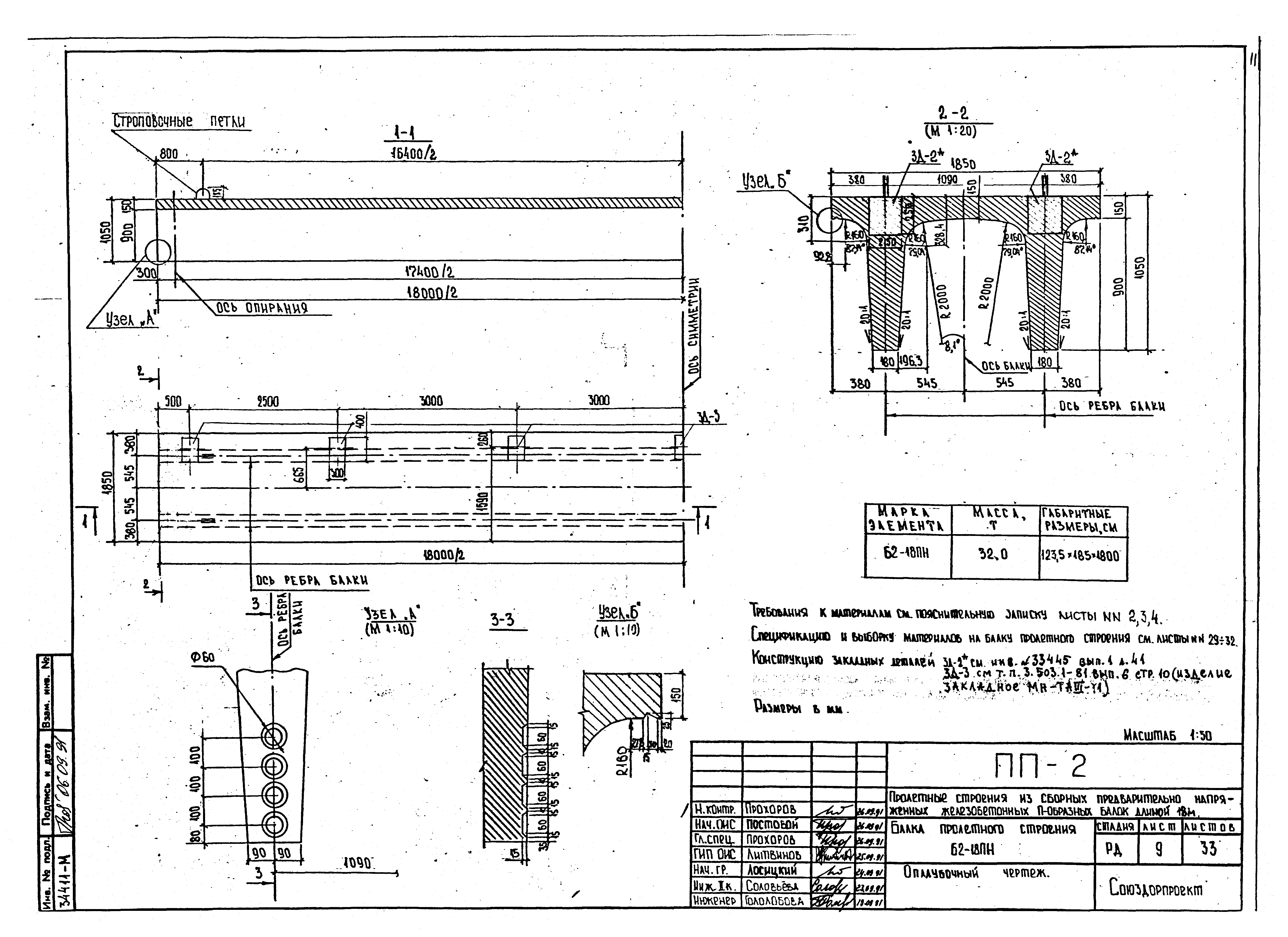
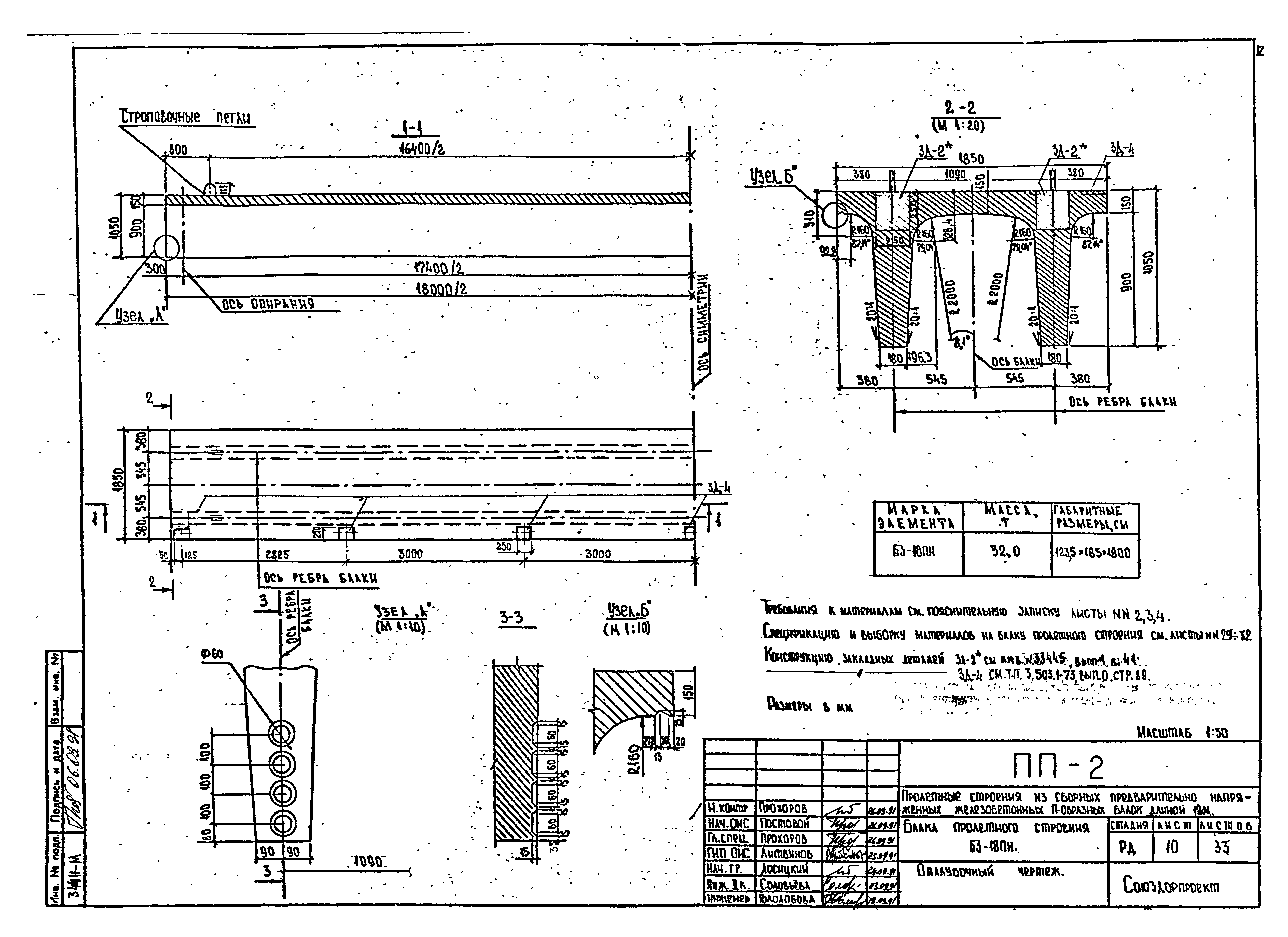
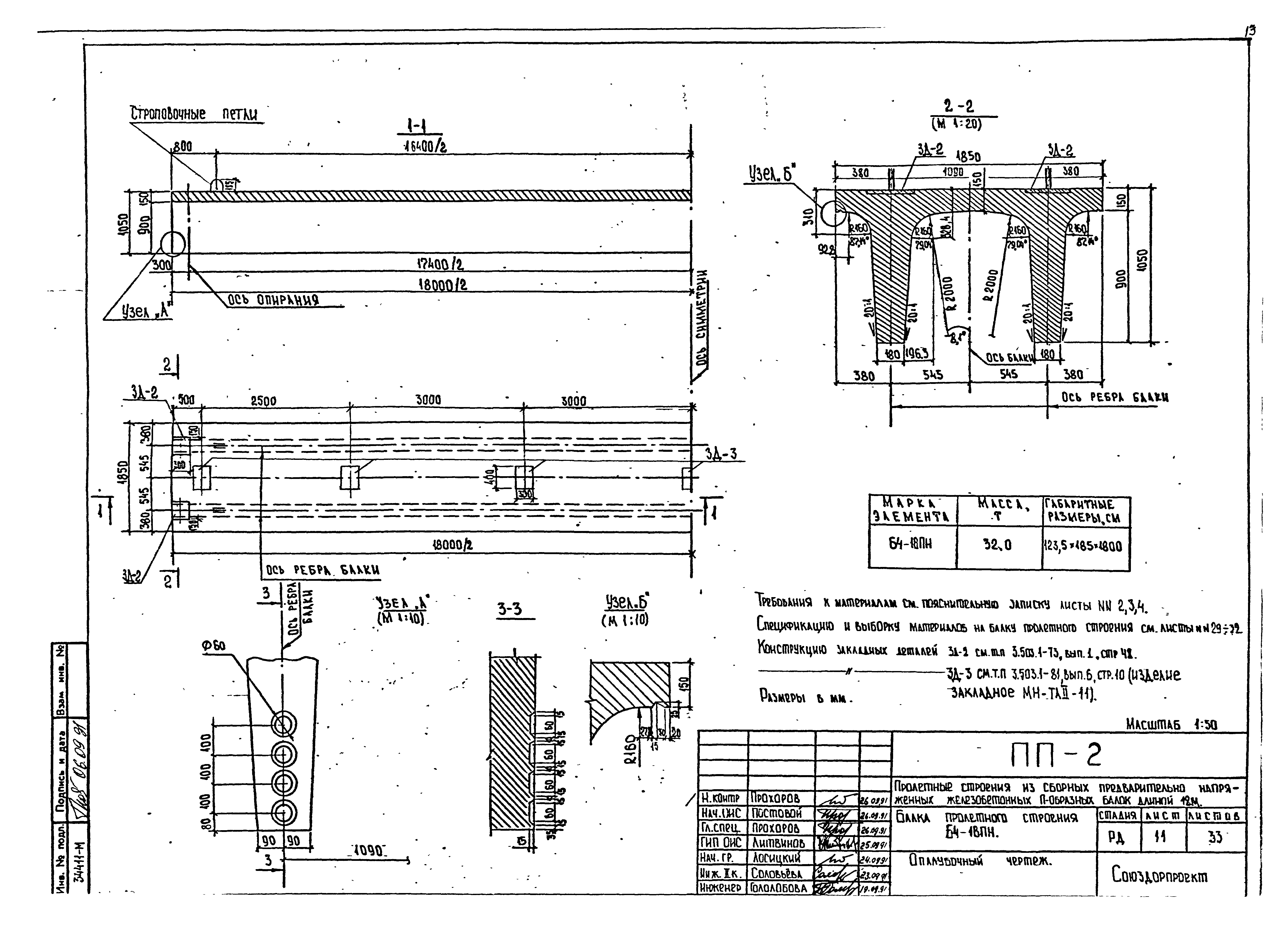
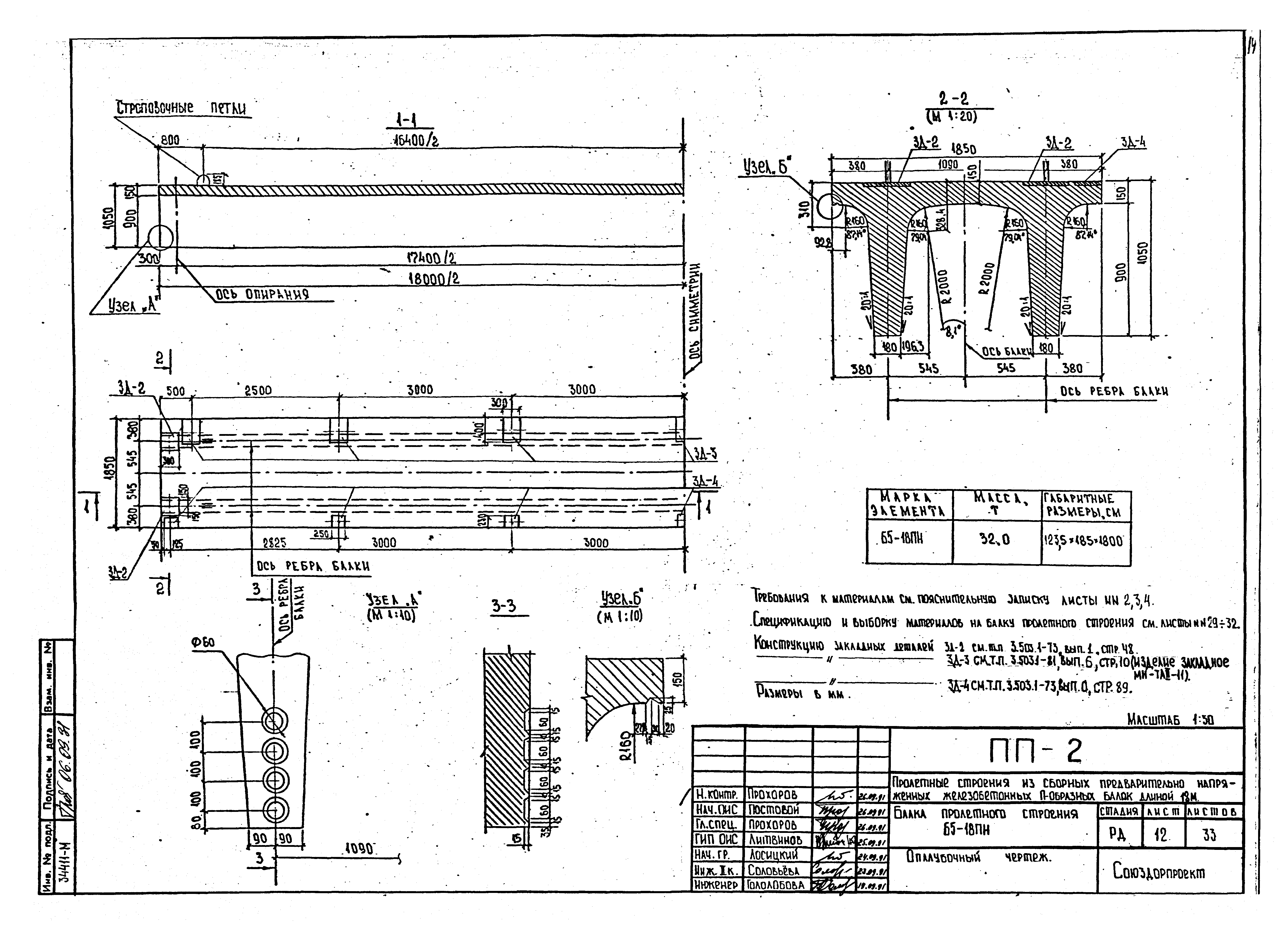
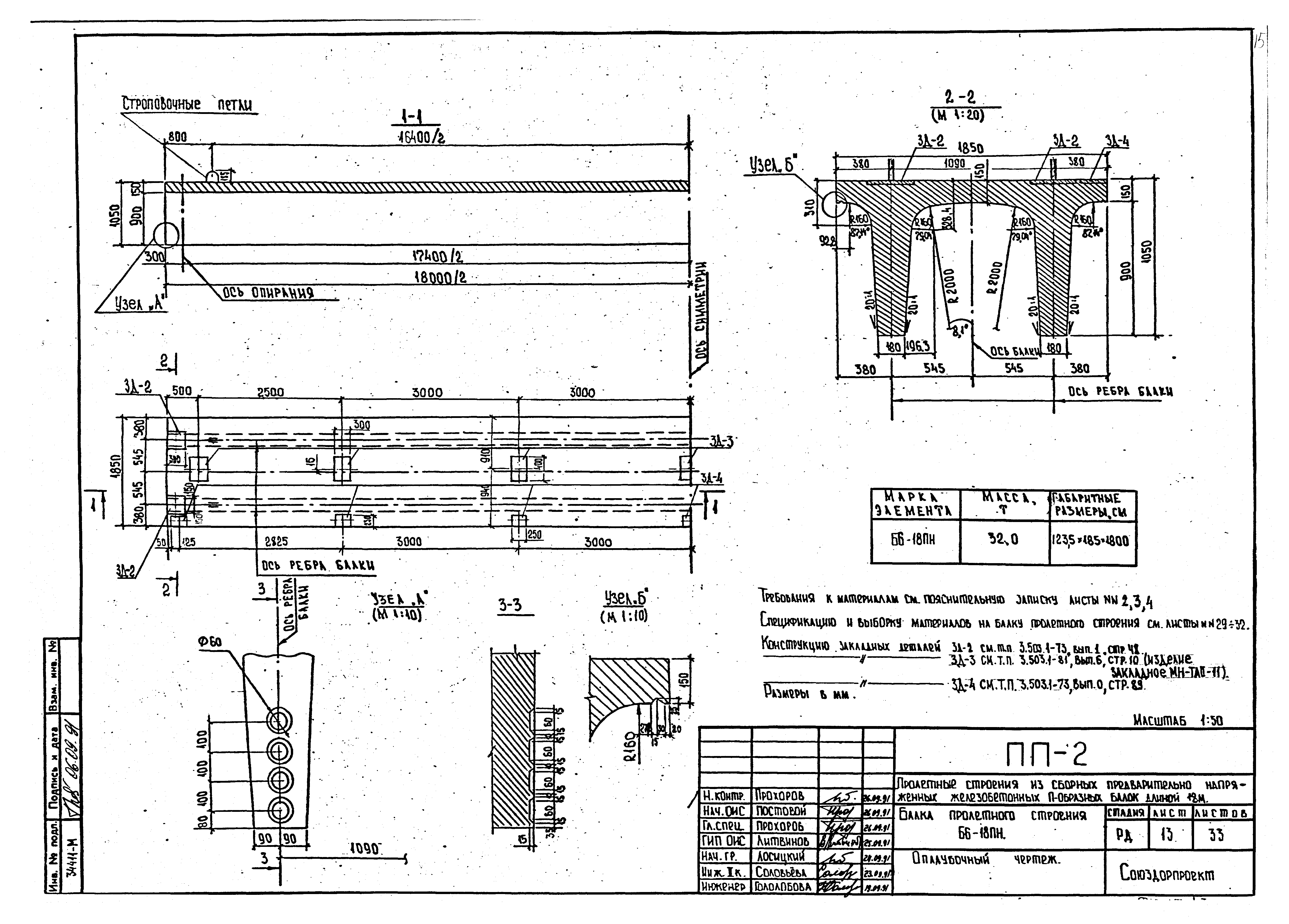
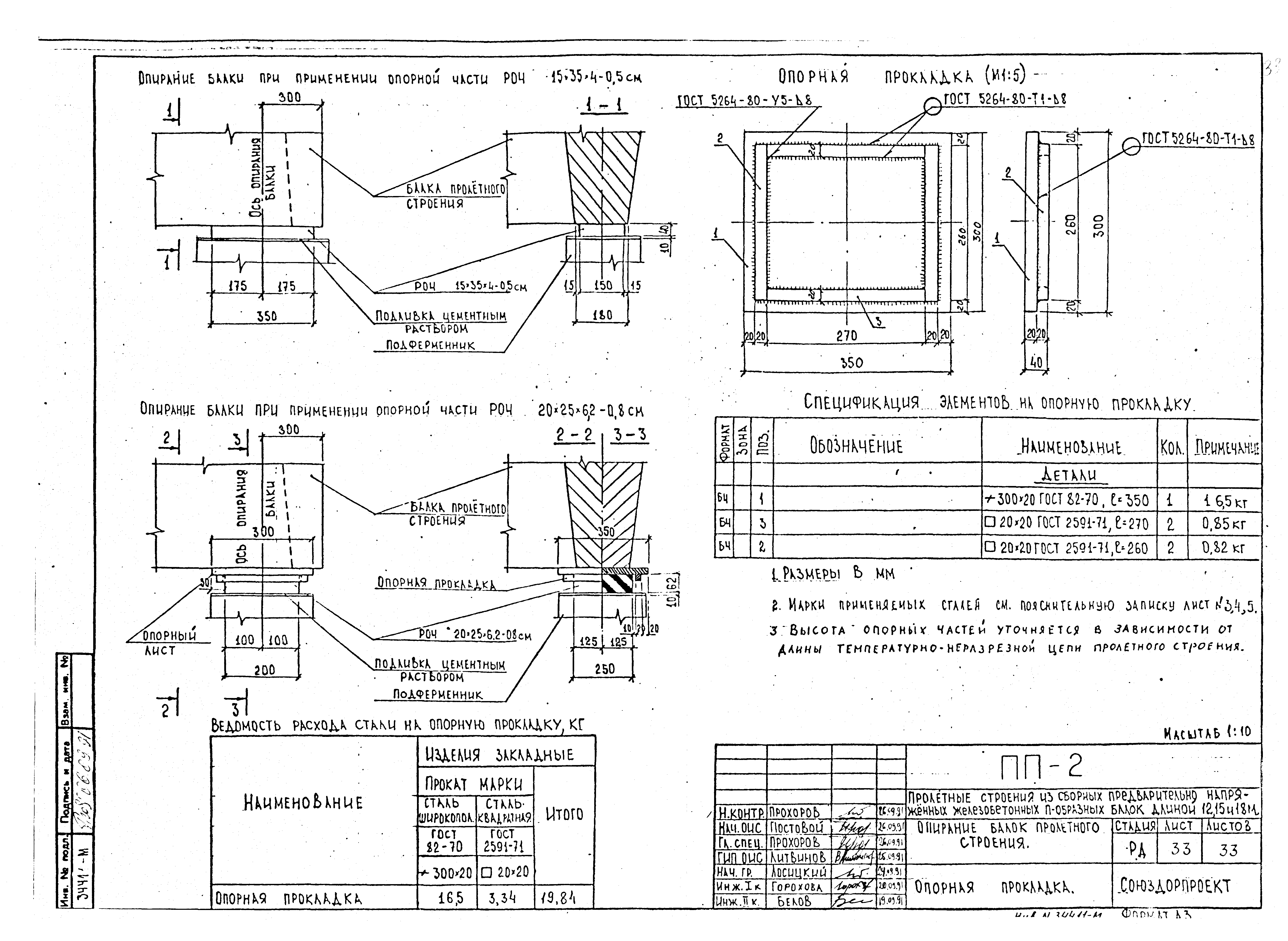
Скачать Выпуск 2. Предварительно напряженные балки длиной 18 м. Рабочая документацияДата актуализации: 01.01.2021
Выпуск 2. Предварительно напряженные балки длиной 18 м. Рабочая документация| Статус: | не определен законодательством | | Название рус.: | Выпуск 2. Предварительно напряженные балки длиной 18 м. Рабочая документация | | Дата добавления в базу: | 01.09.2013 | | Дата актуализации: | 01.01.2021 | | Дата введения: | 26.09.1991 | | Дата окончания срока действия: | 30.06.2003 | | Разработан: | ГПИ Союздорпроект
| | Утверждён: | 26.09.1991 Союздорпроект Минтрансстроя (Soyuzdorproject, Mintransstroy )
|
                                
|