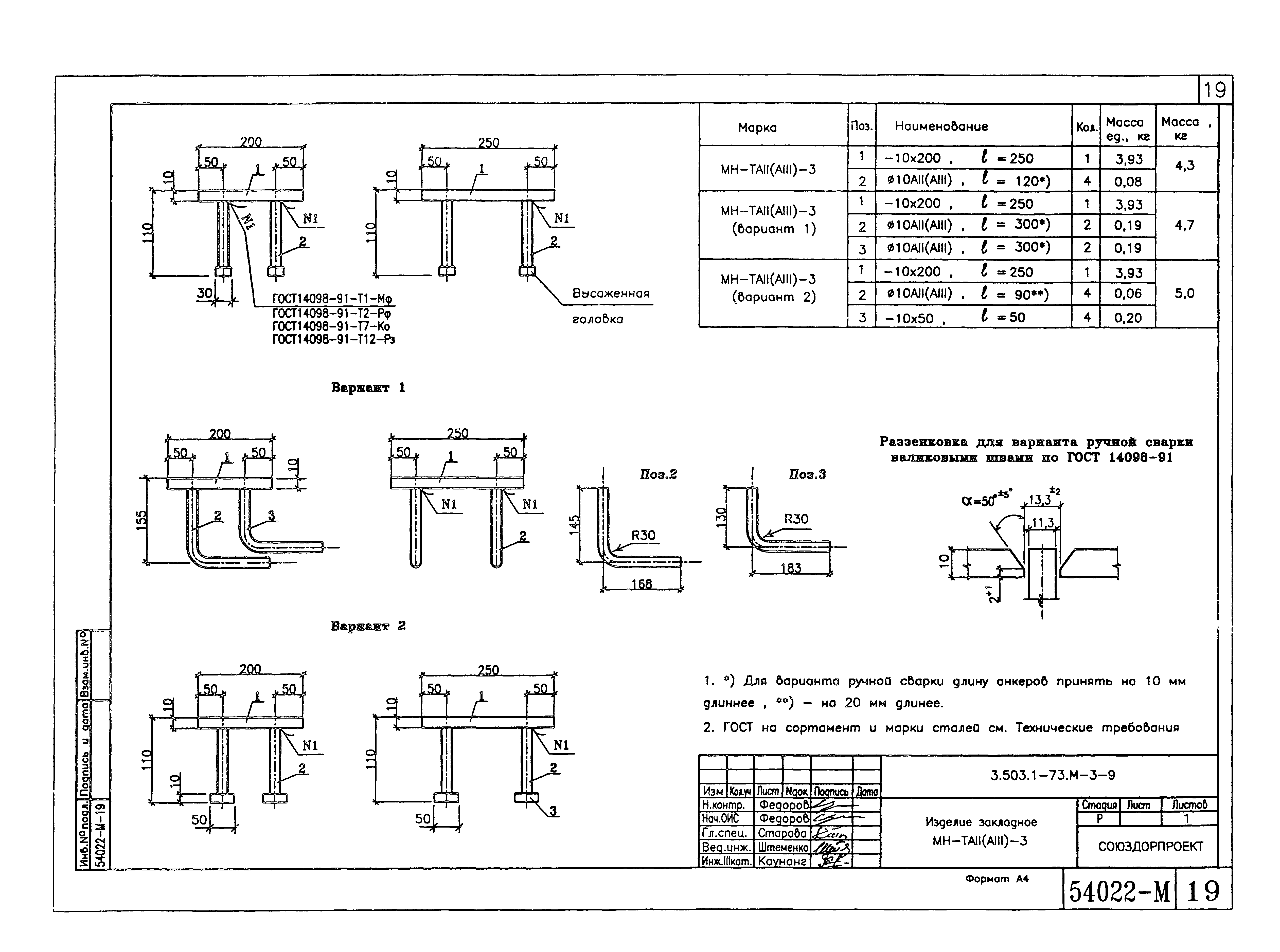
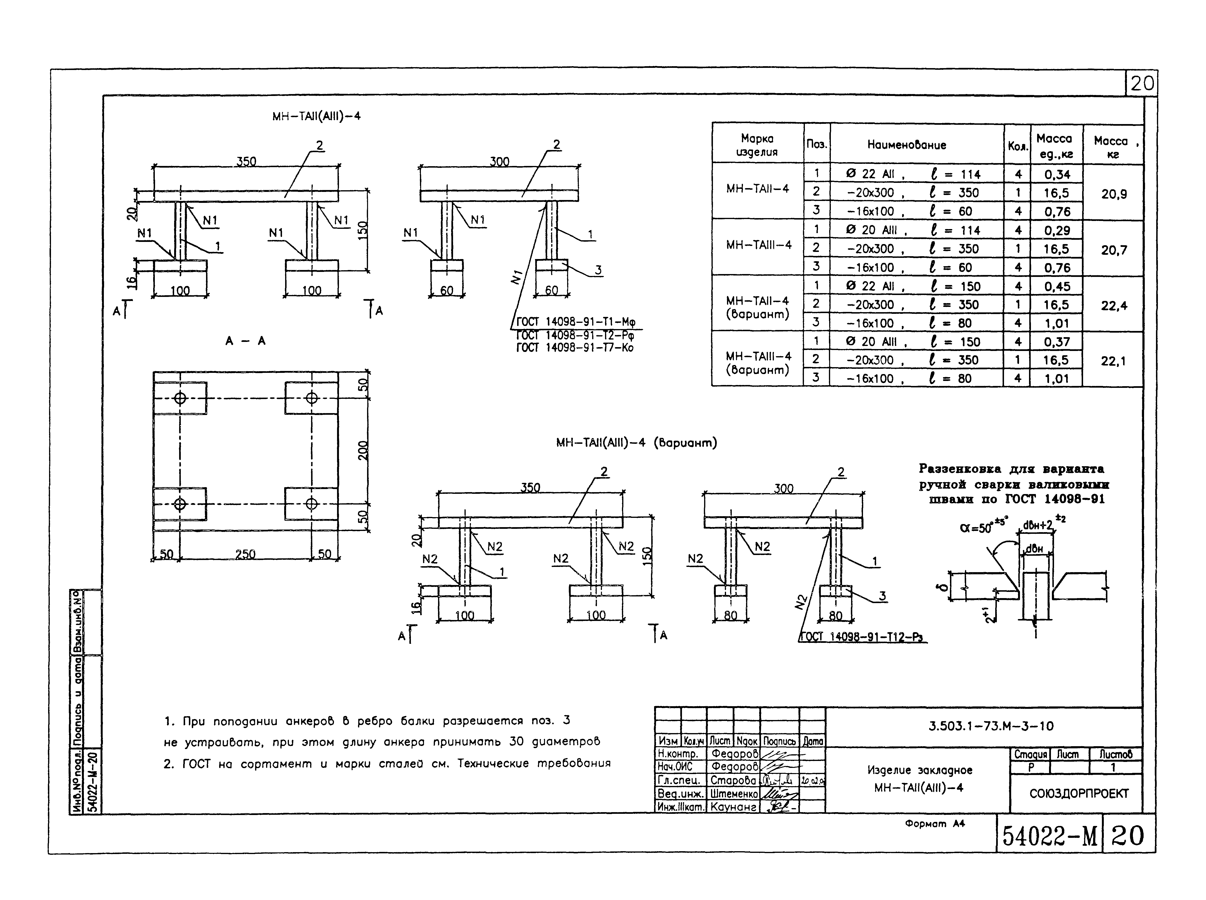
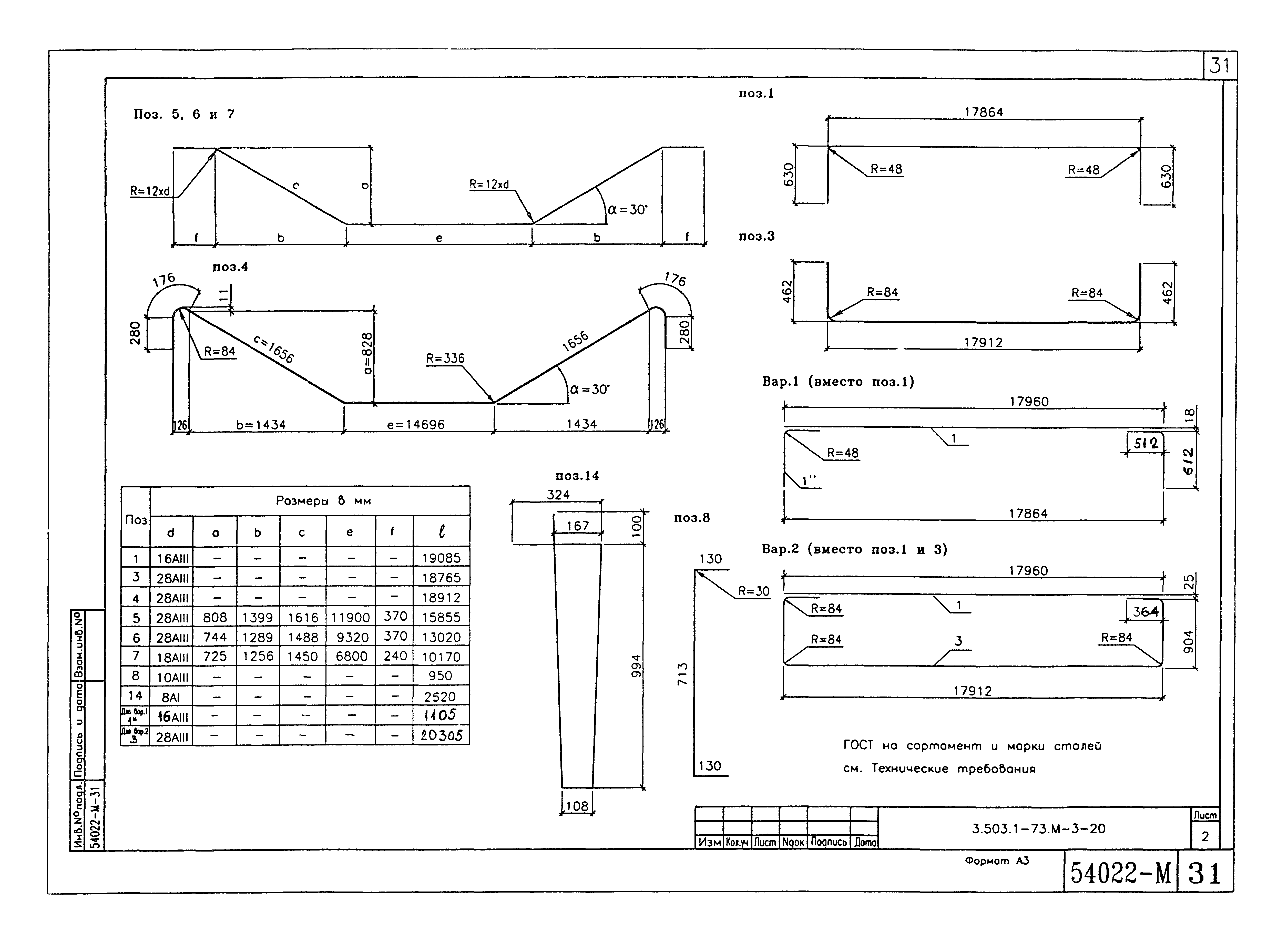
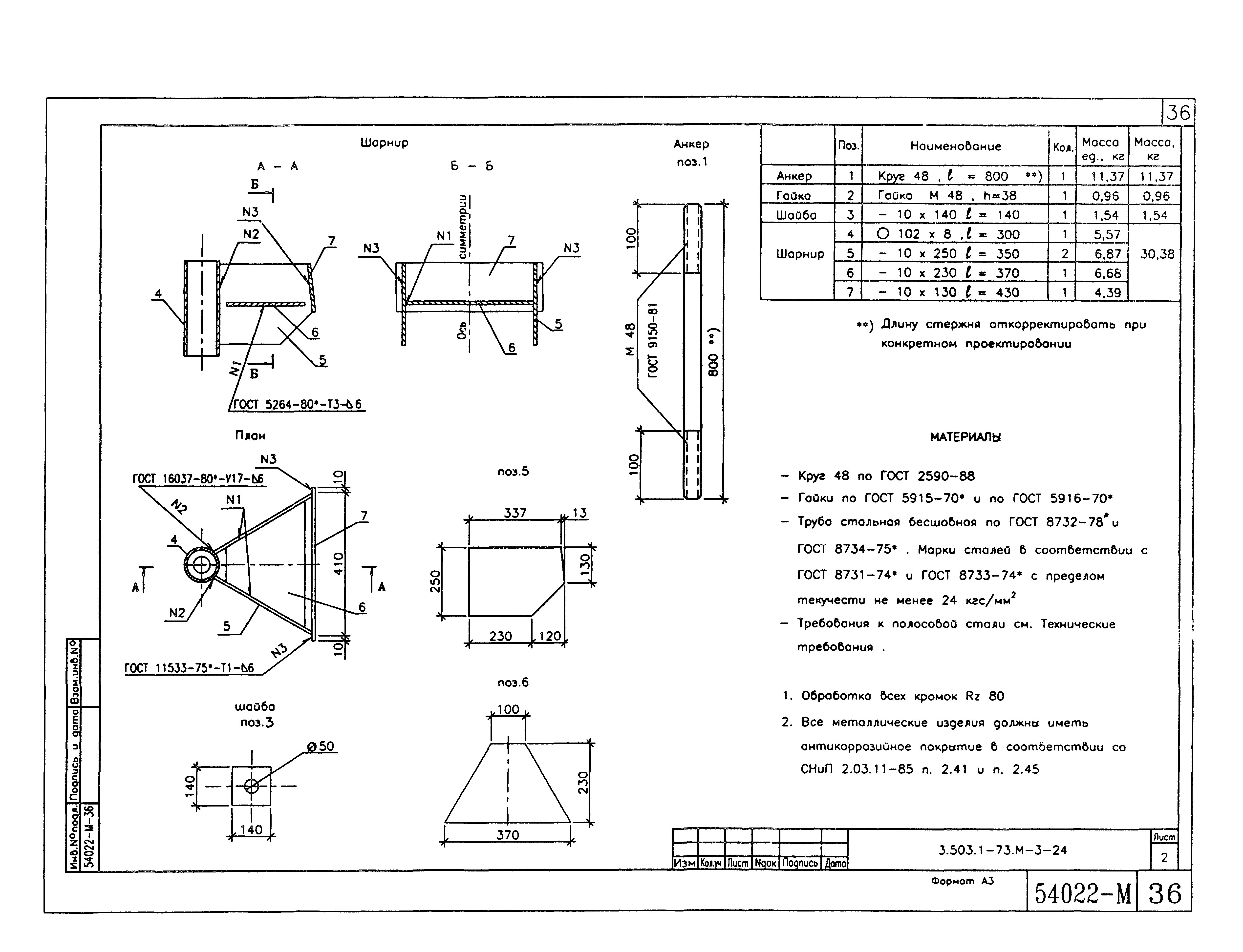
Скачать Выпуск 3. Балки пролетного строения длиной 18 м, высотой 1,08 м, изготавливаемые в опалубке балок по серии 3.503.1-73 (Балки марок Б 1800.130.108-Т28АIIIв и Б 1800.130.108-Т28АIIIс). Рабочие чертежиДата актуализации: 01.01.2021
Выпуск 3. Балки пролетного строения длиной 18 м, высотой 1,08 м, изготавливаемые в опалубке балок по серии 3.503.1-73 (Балки марок Б 1800.130.108-Т28АIIIв и Б 1800.130.108-Т28АIIIс). Рабочие чертежи| Статус: | не определен законодательством | | Название рус.: | Выпуск 3. Балки пролетного строения длиной 18 м, высотой 1,08 м, изготавливаемые в опалубке балок по серии 3.503.1-73 (Балки марок Б 1800.130.108-Т28АIIIв и Б 1800.130.108-Т28АIIIс). Рабочие чертежи | | Дата добавления в базу: | 01.09.2013 | | Дата актуализации: | 01.01.2021 | | Дата введения: | 20.12.2001 | | Дата окончания срока действия: | 30.06.2003 | | Разработан: | Союздорпроект Минтрансстроя
| | Утверждён: | 20.12.2001 Союздорпроект Минтрансстроя (Soyuzdorproject, Mintransstroy )
|
                                      
|