Скачать Серия 5.905-27.08 Выпуск 1. Рабочие чертежиДата актуализации: 01.01.2021
|
| Обозначение: | Серия 5.905-27.08 |
| Обозначение англ: | Series 5.905-27.08 |
| Статус: | не определен законодательством |
| Название рус.: | Выпуск 1. Рабочие чертежи |
| Дата добавления в базу: | 01.09.2013 |
| Дата актуализации: | 01.01.2021 |
| Дата введения: | 25.01.2008 |
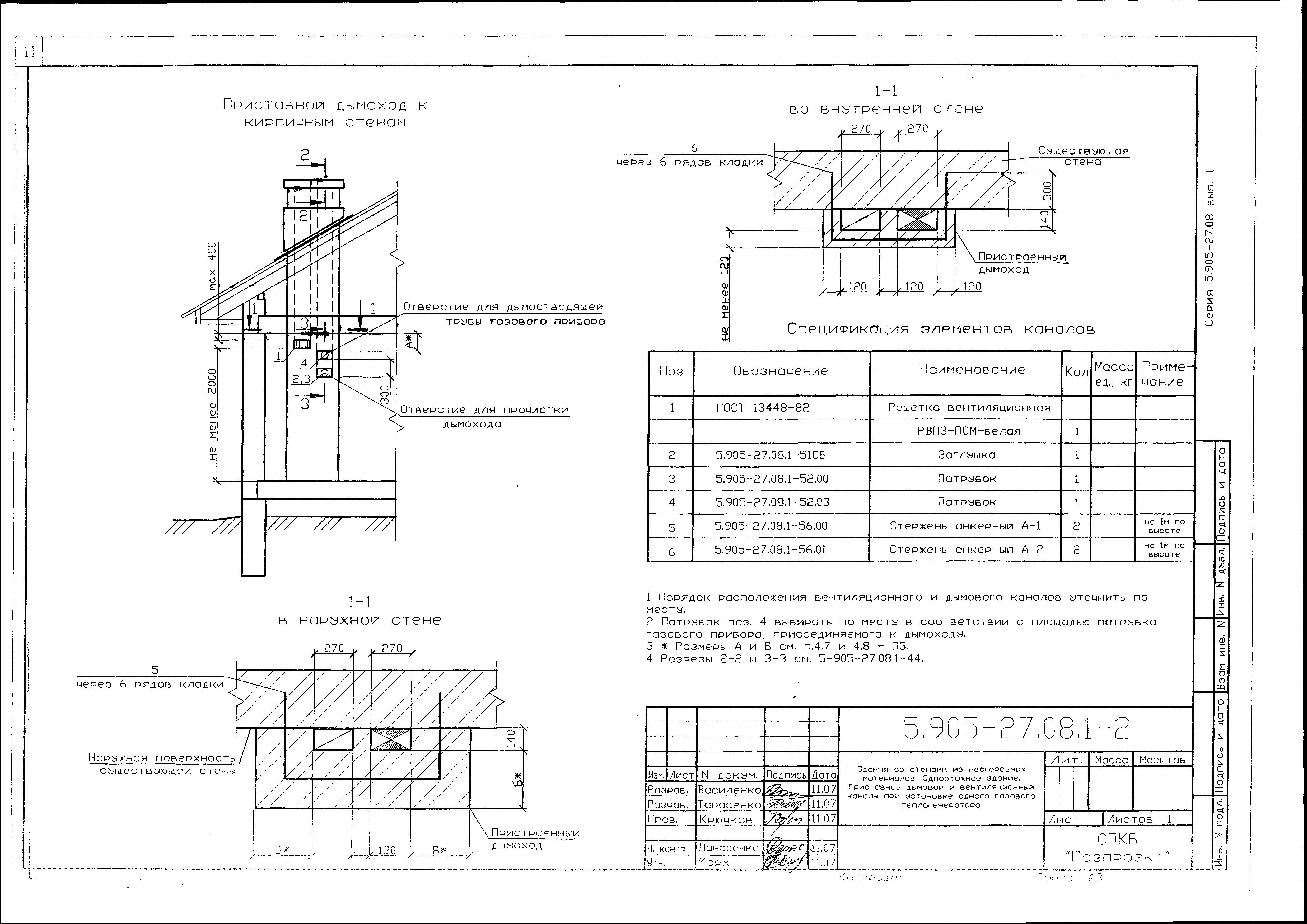
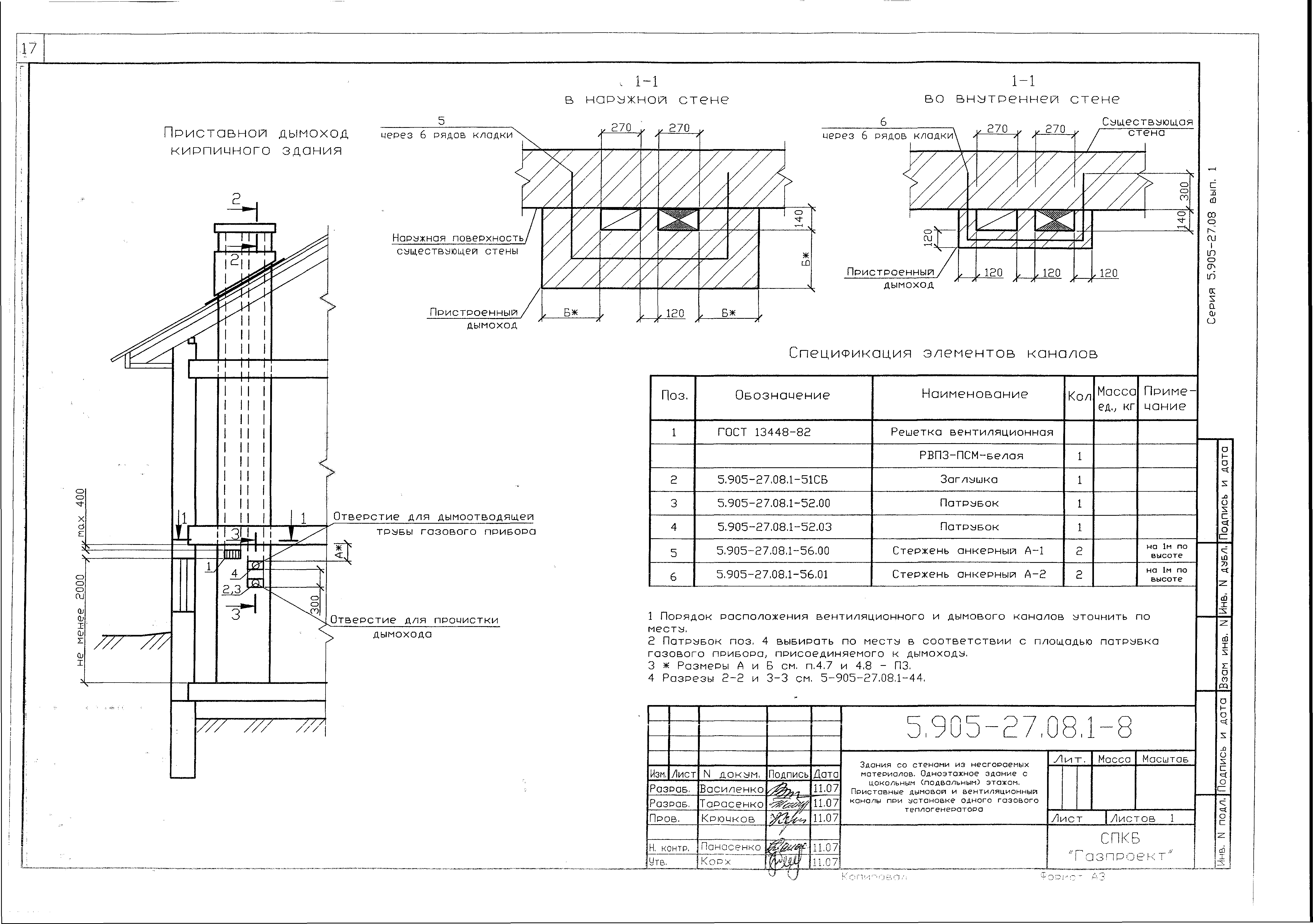
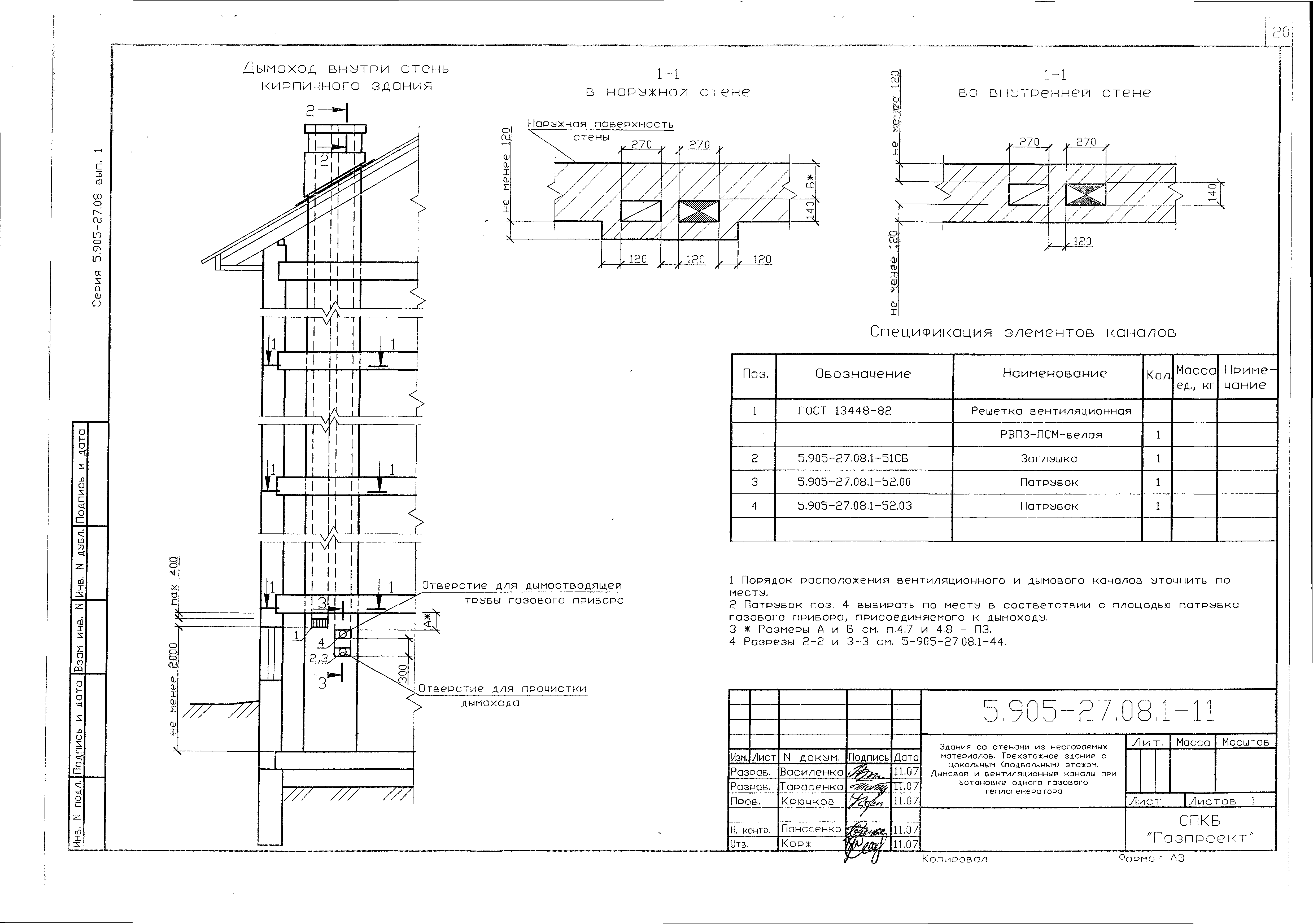
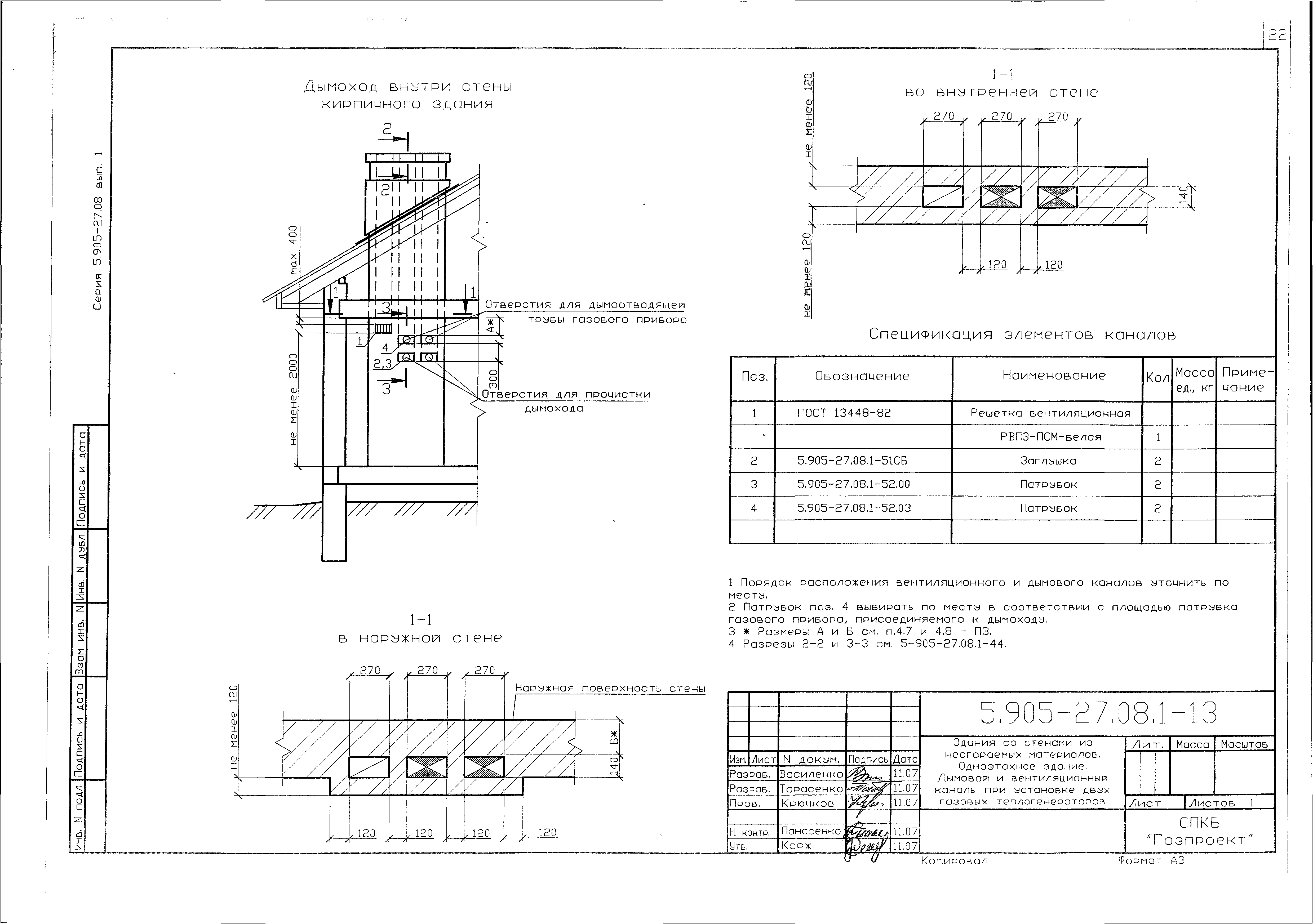
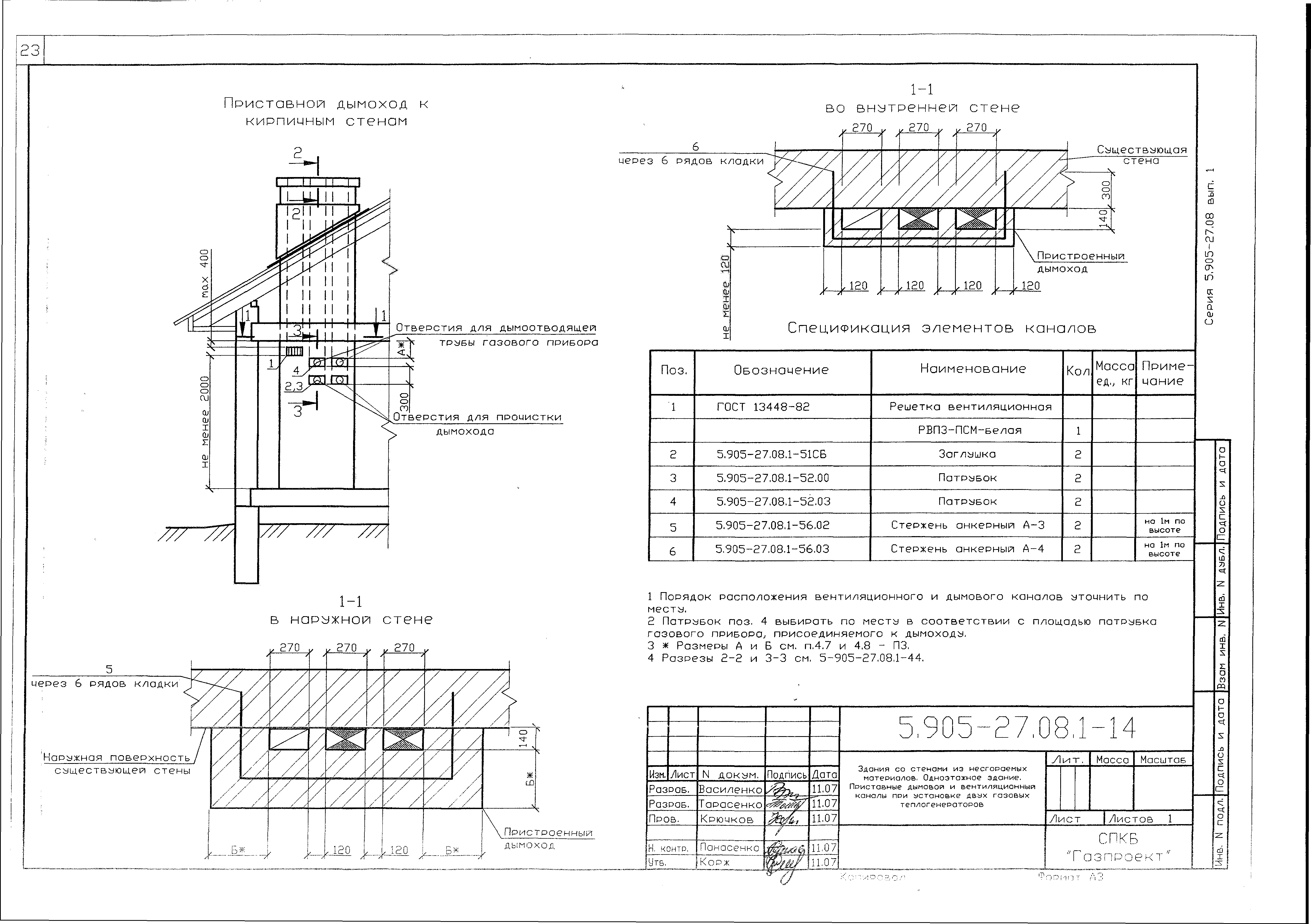
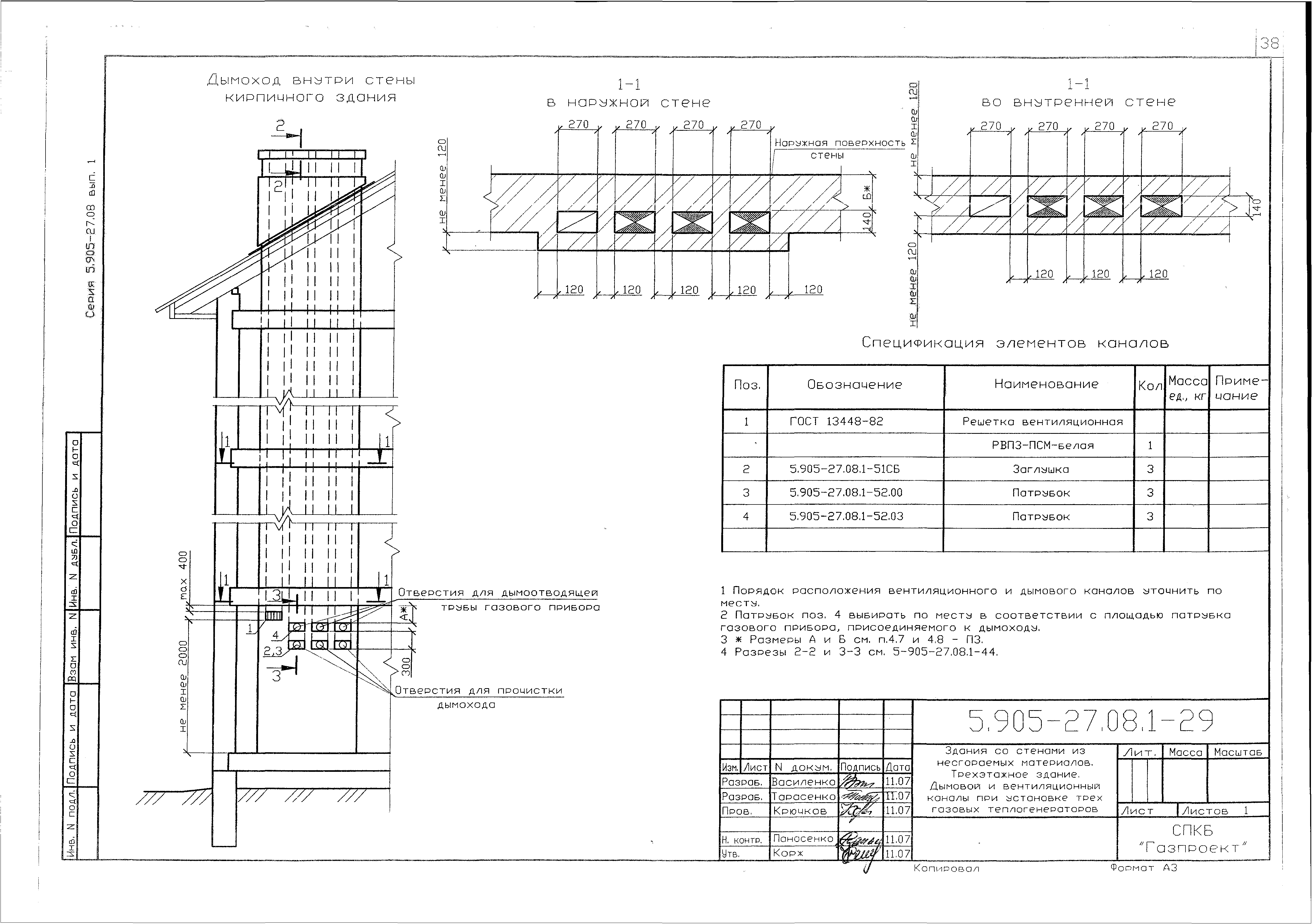
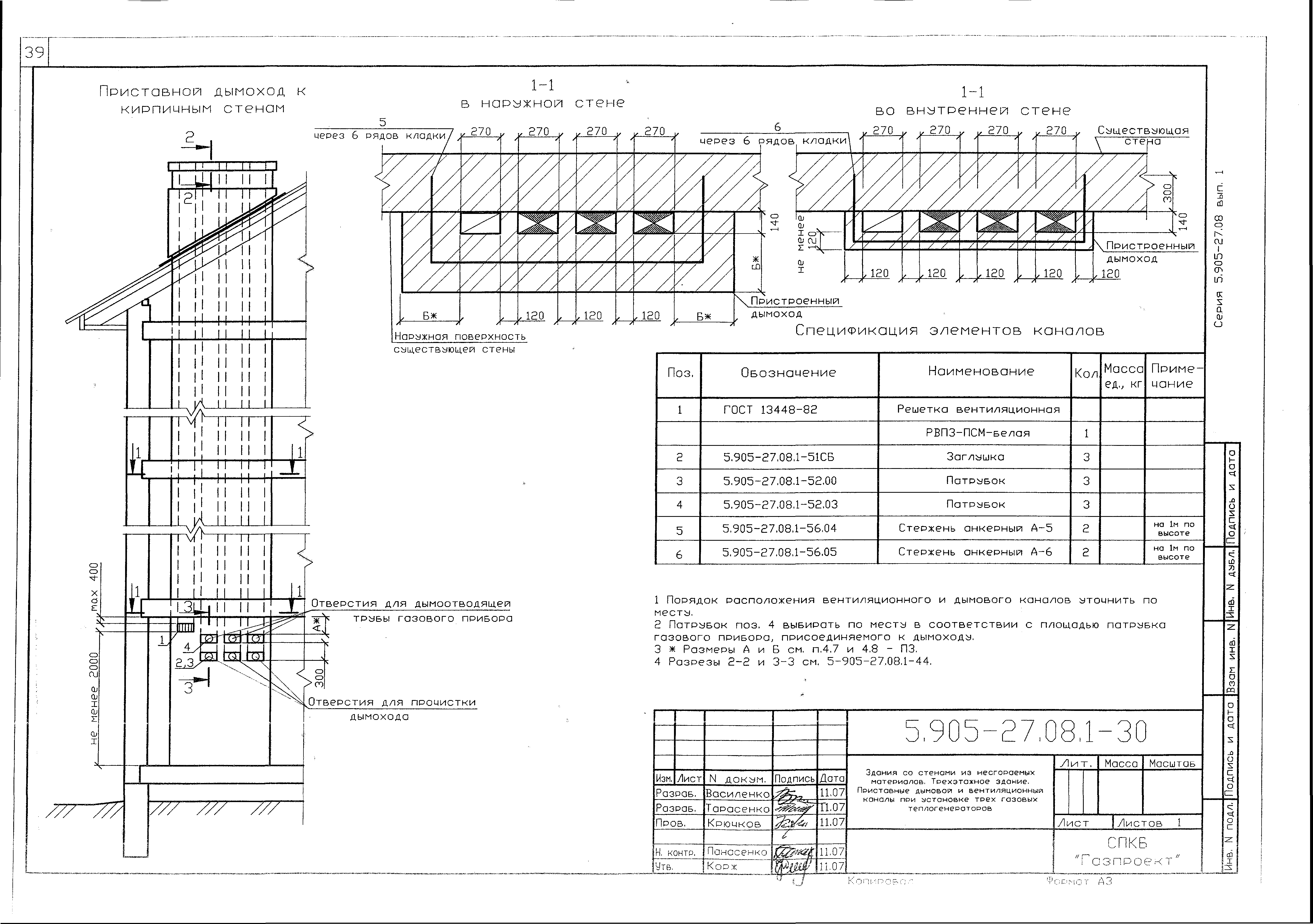
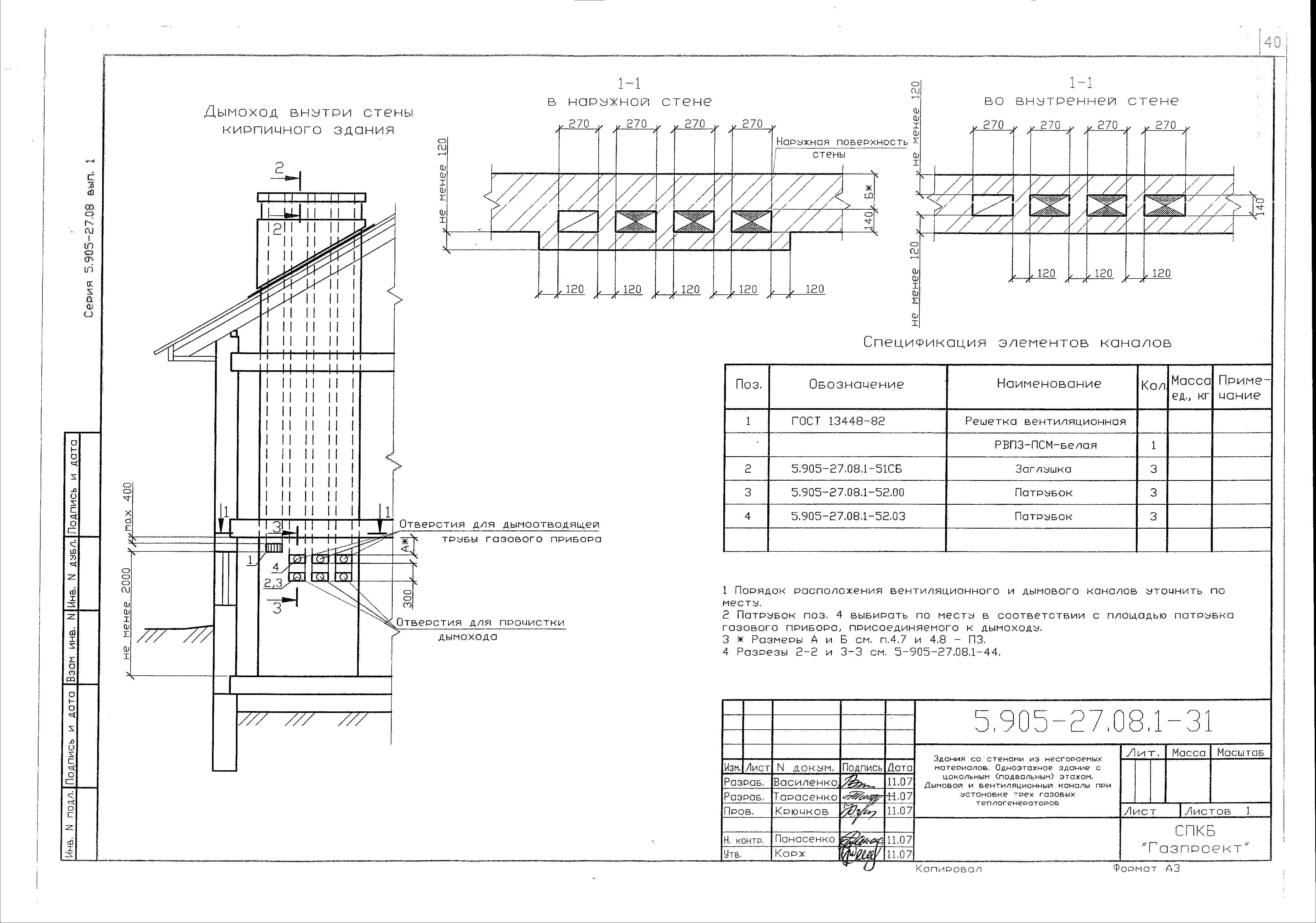
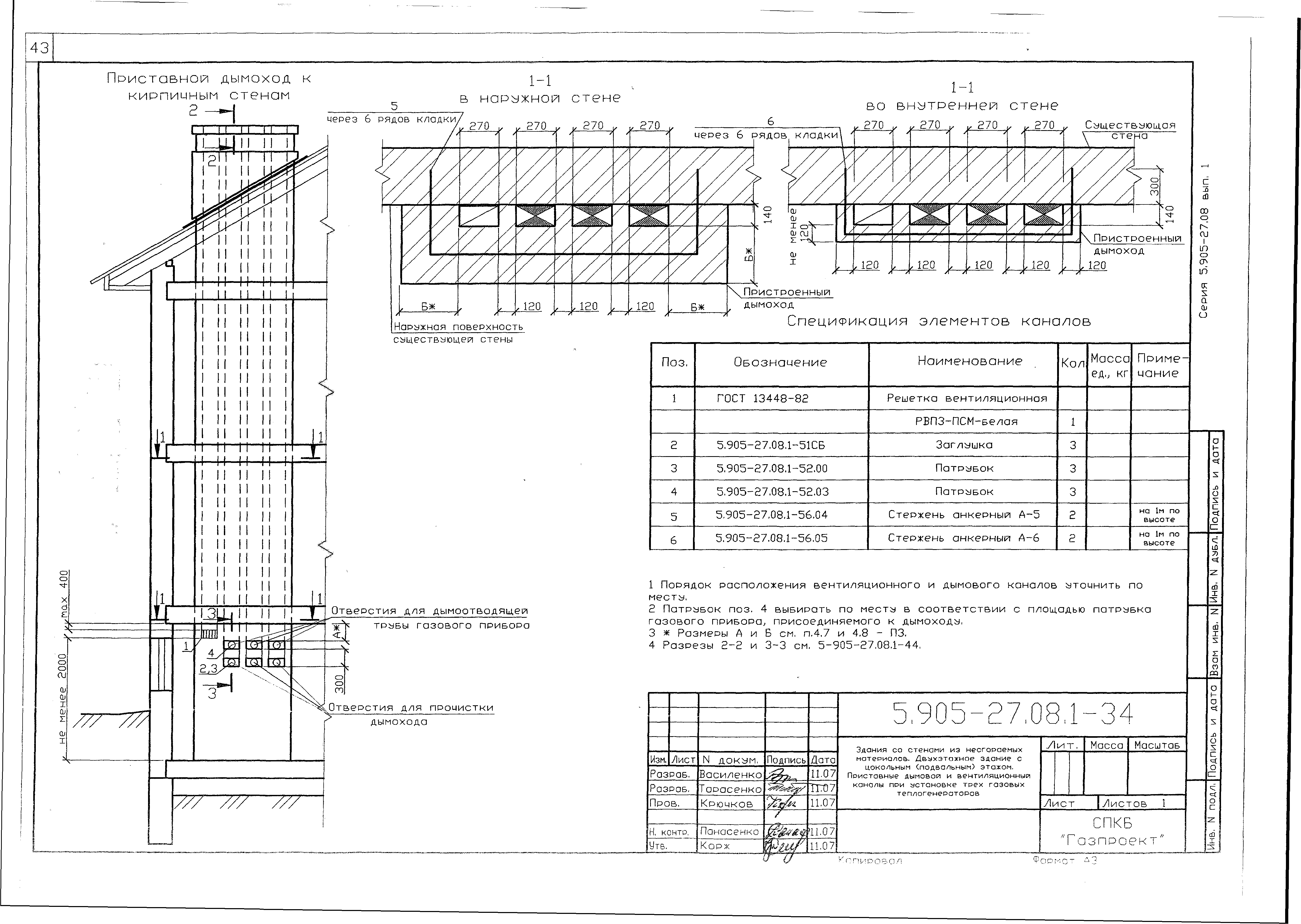
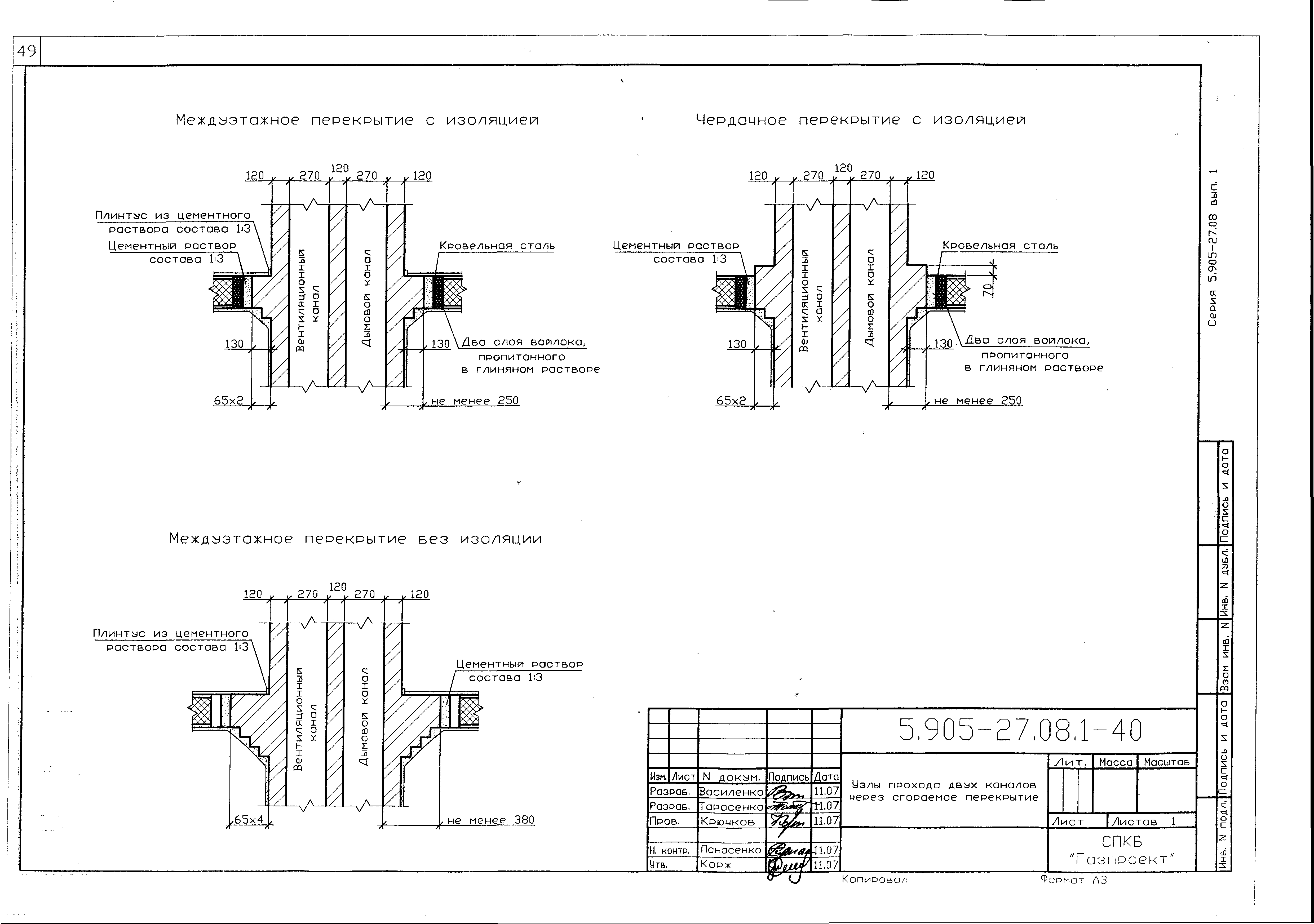
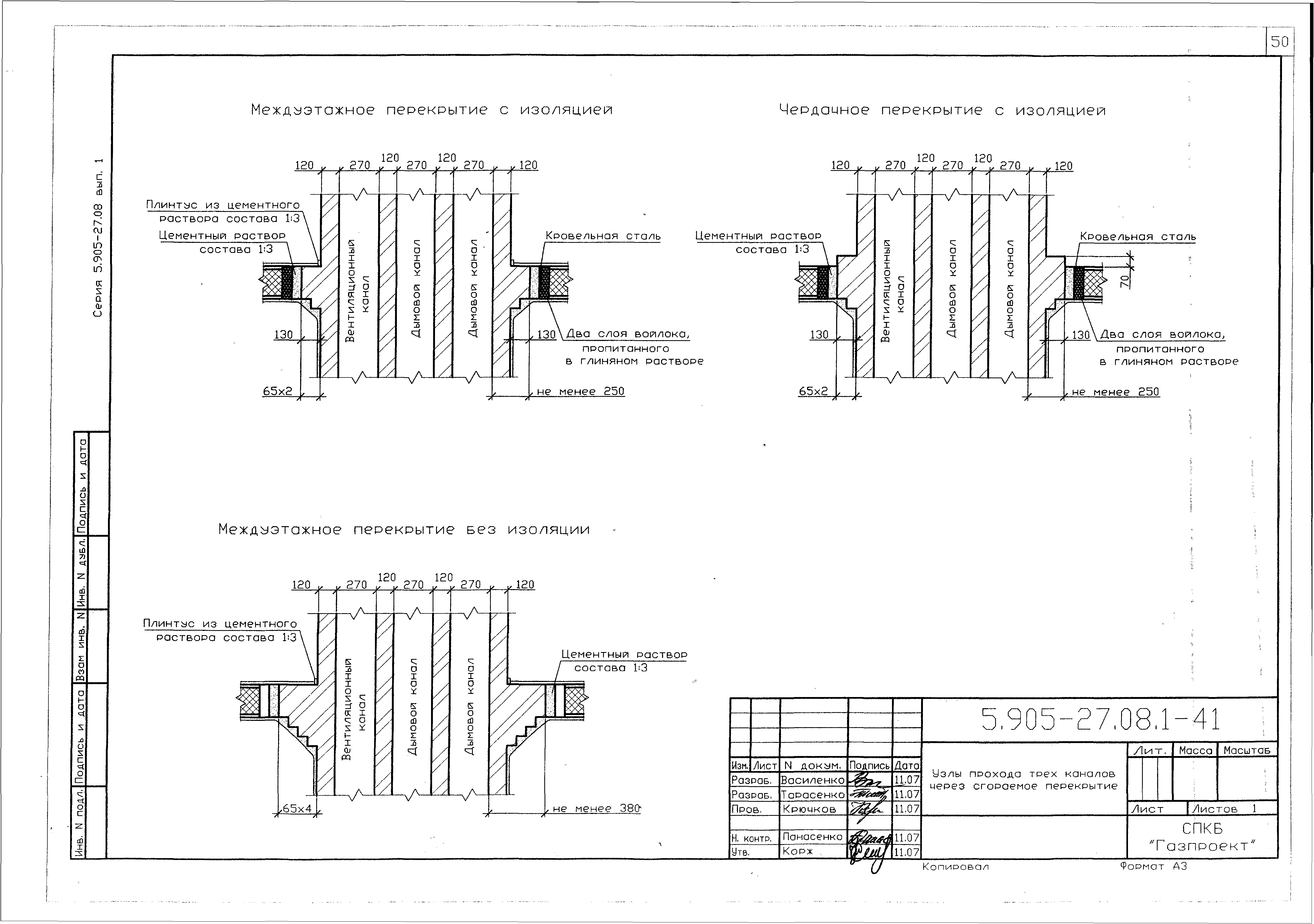
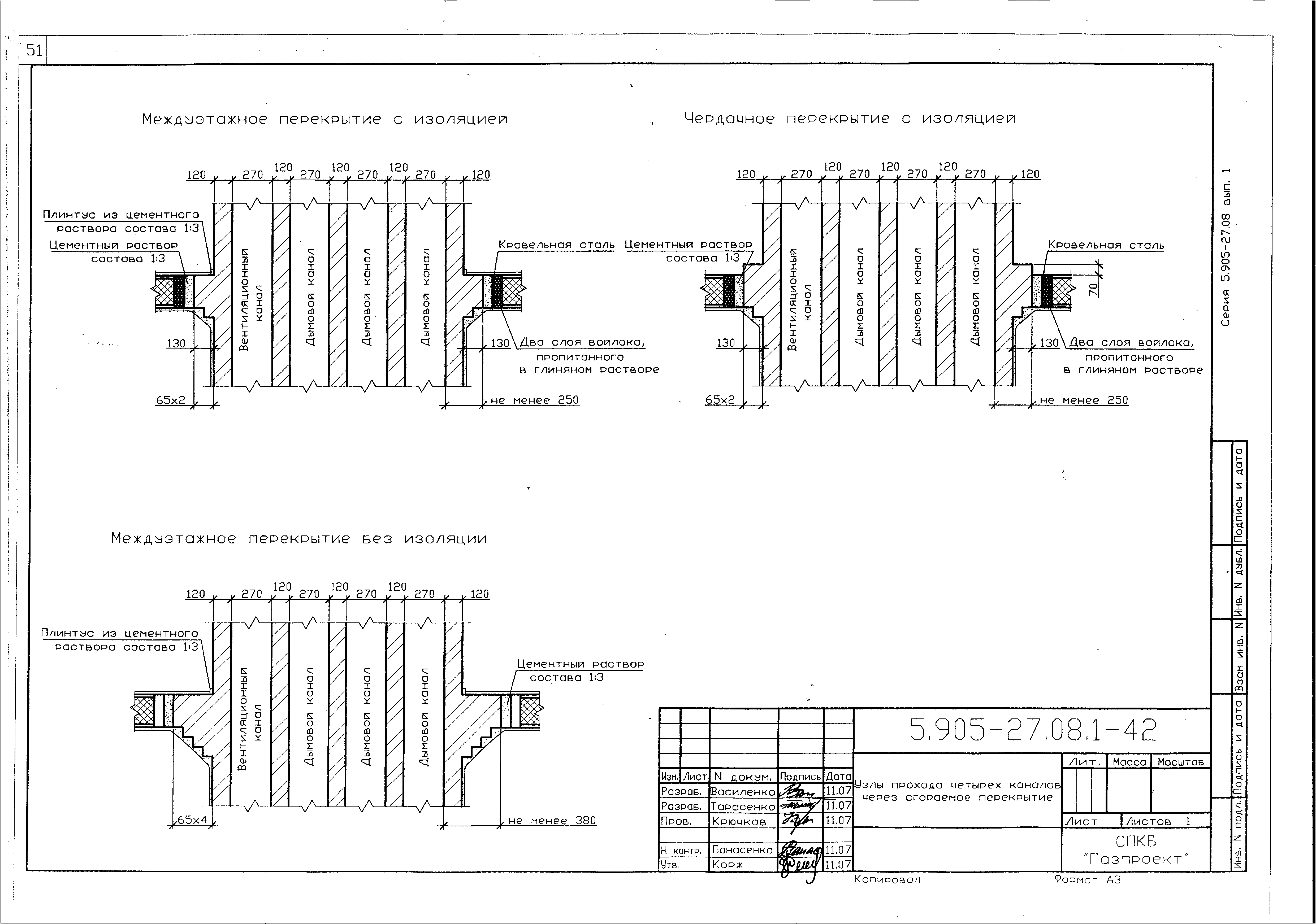
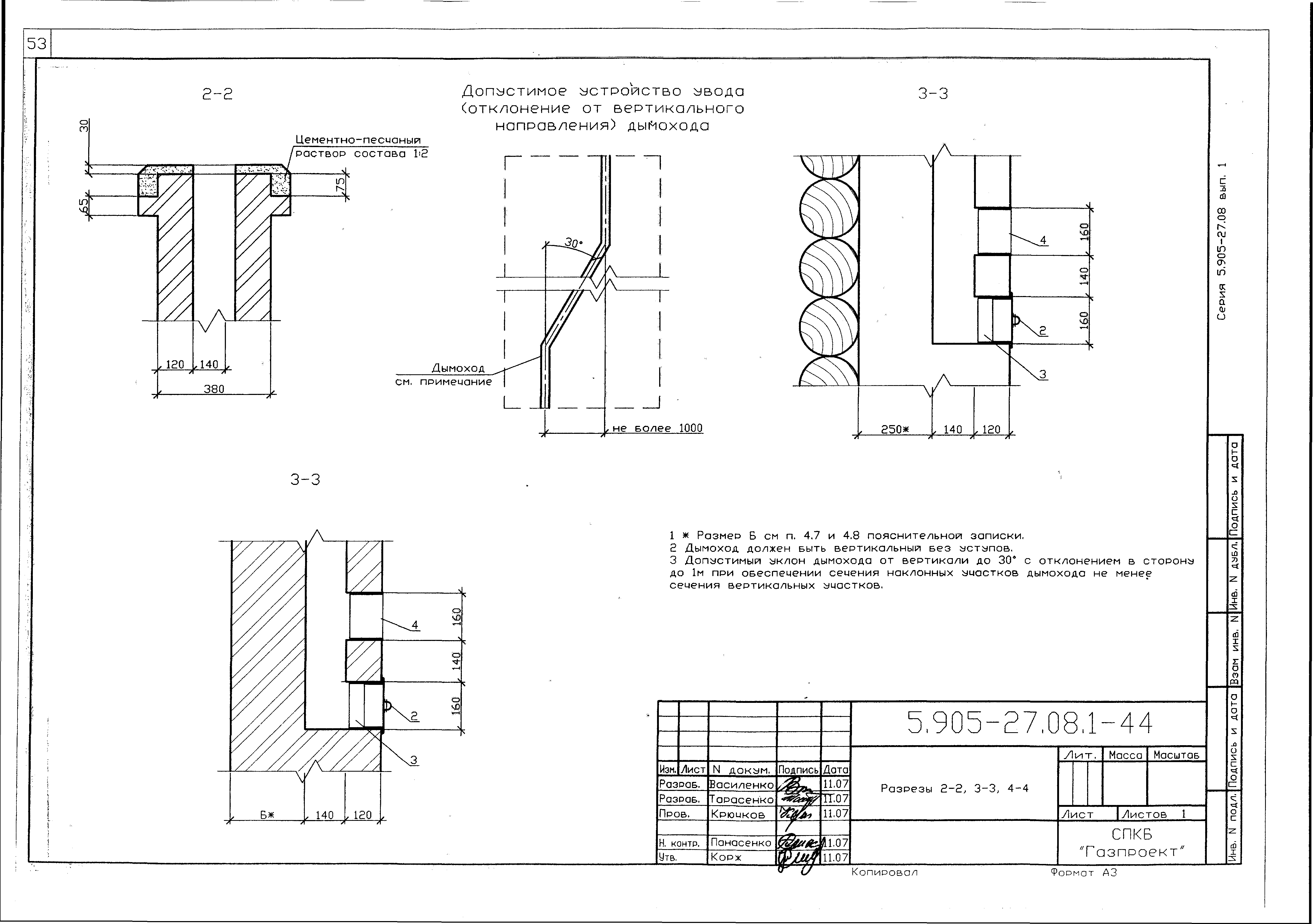
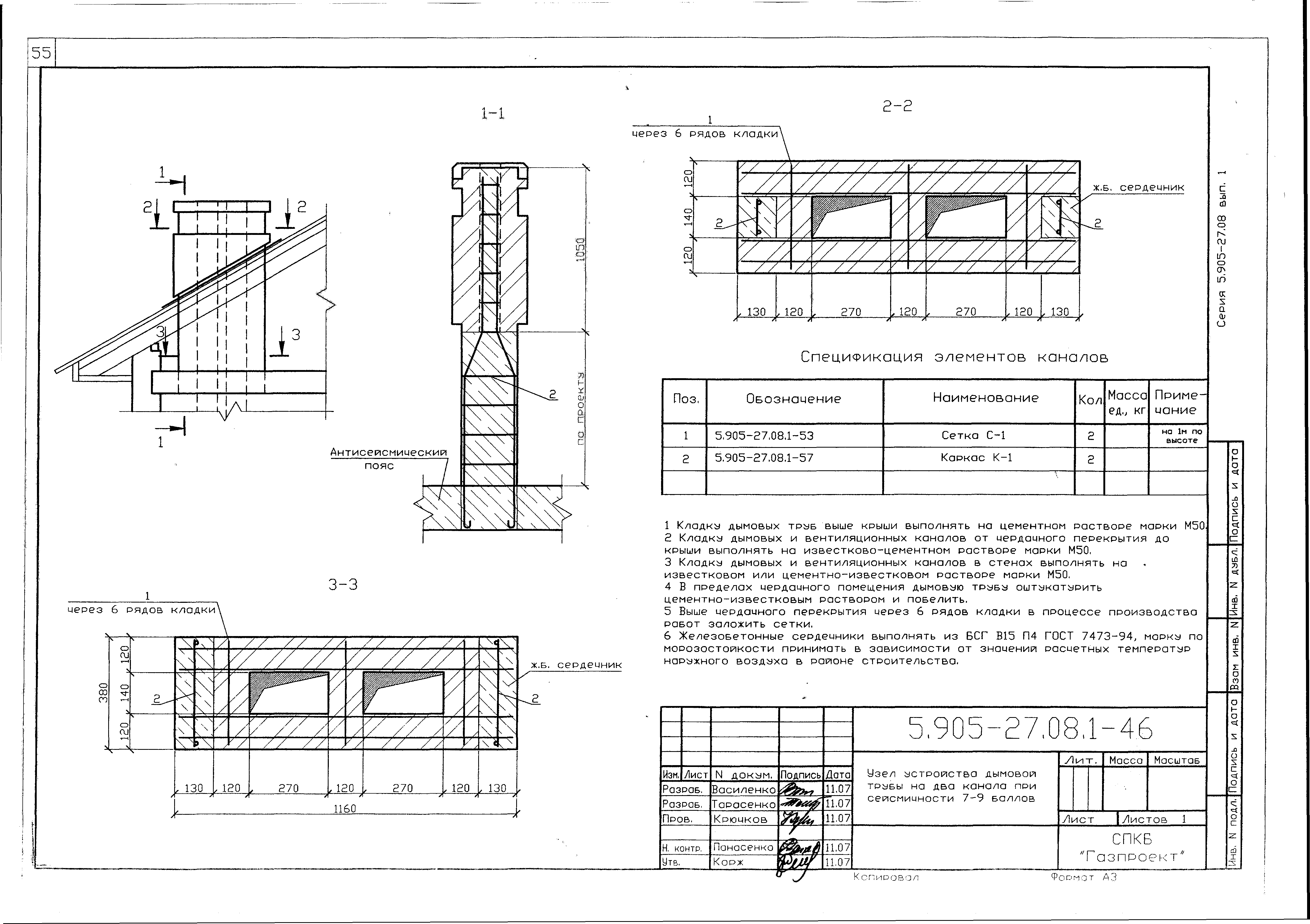
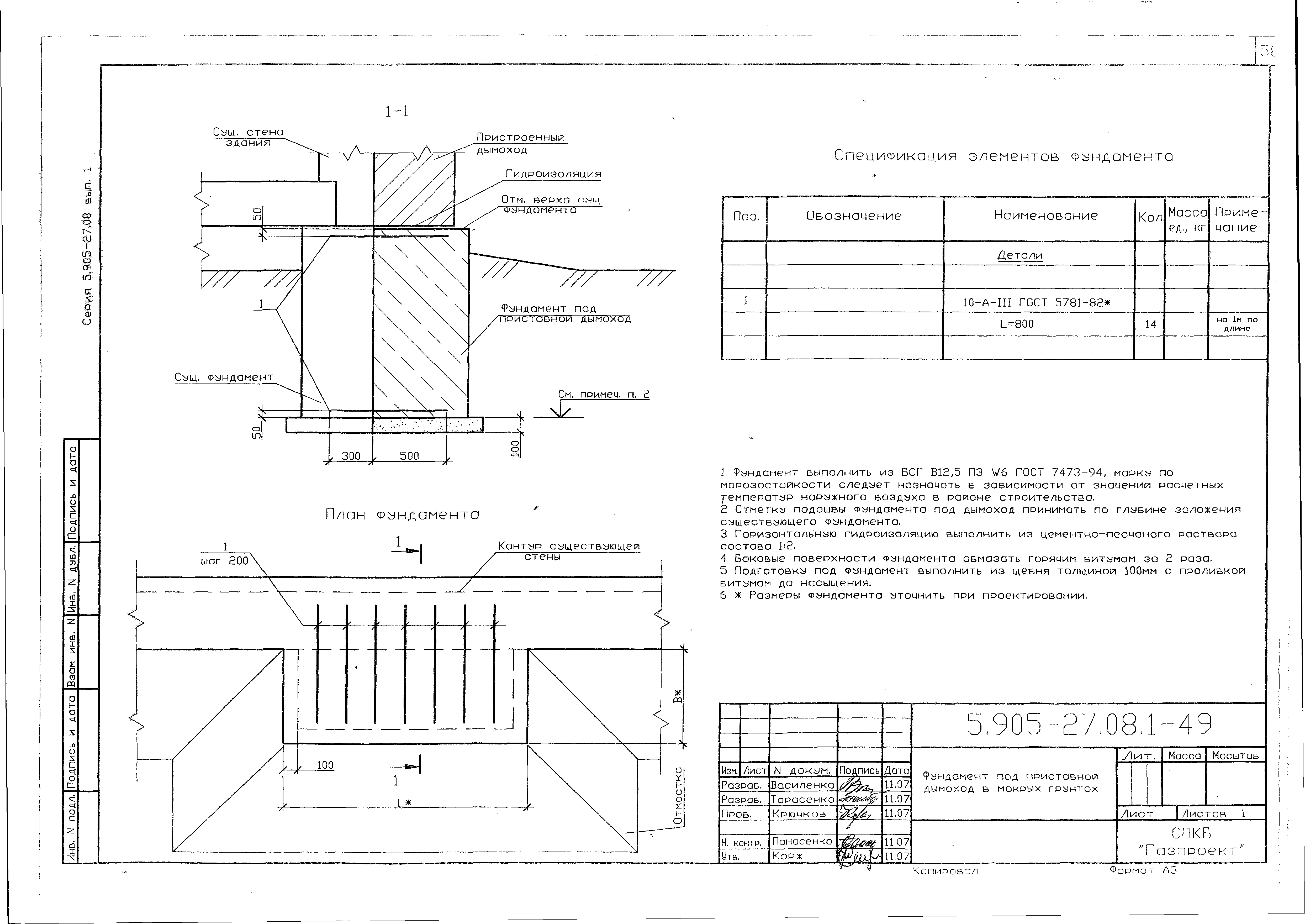
| Область применения: | Рабочие чертежи настоящей типовой документации применяются при проектировании, строительстве и эксплуатации дымовых и вентиляционных каналов газифицируемых помещений, зданий и сооружений (дома жилые, жилые зданий, общественные здания и сооружения, производственные зданий, административные и бытовые здания) при установке бытовых теплогенераторов, при сейсмичности не более 9 баллов, для районов с расчетной температурой наружного воздуха не ниже минус 40 градусов Цельсия |
| Разработан: | ОАО СПКБ Газпроект -БТЦ |
| Утверждён: | 21.01.2008 ОАО Росгазификация (Rosgazifikatsiya OAO 1) |
| Заменяет собой: |

































































