Скачать Типовой проект 501-166 Выпуск 1. Типовой проект пешеходных мостов через железные дороги. Рабочие чертежиДата актуализации: 01.01.2021 Типовой проект 501-166
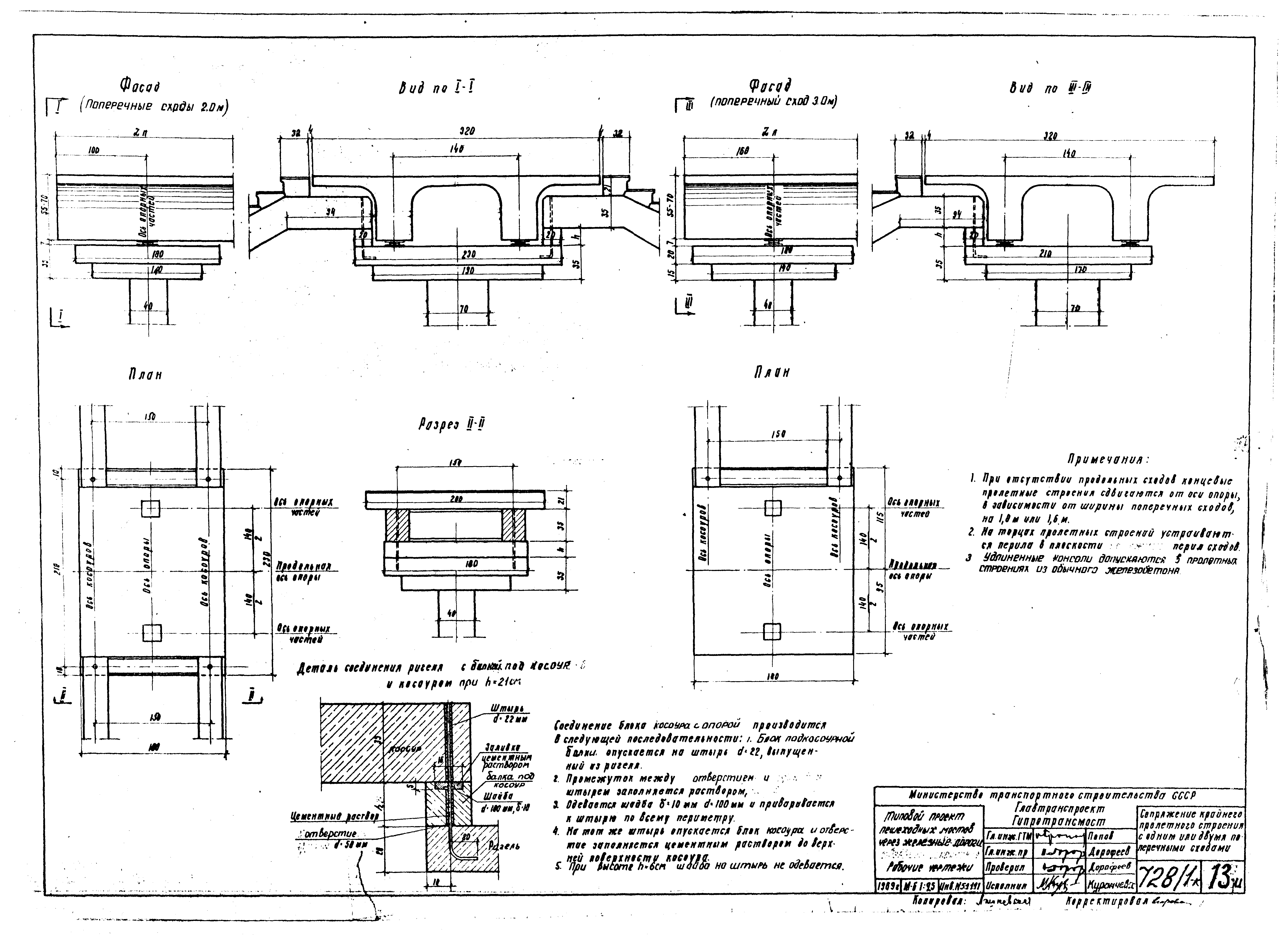
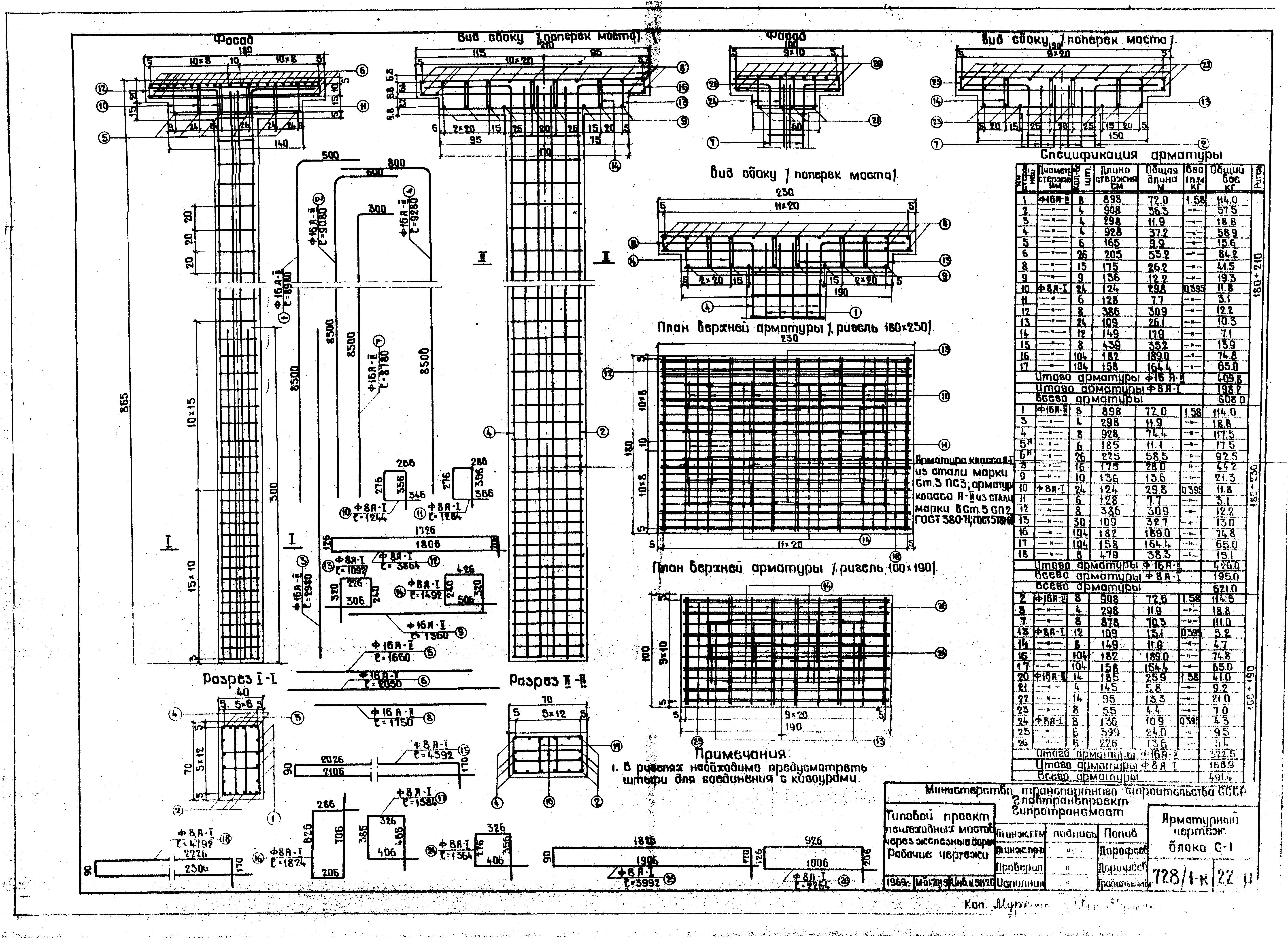
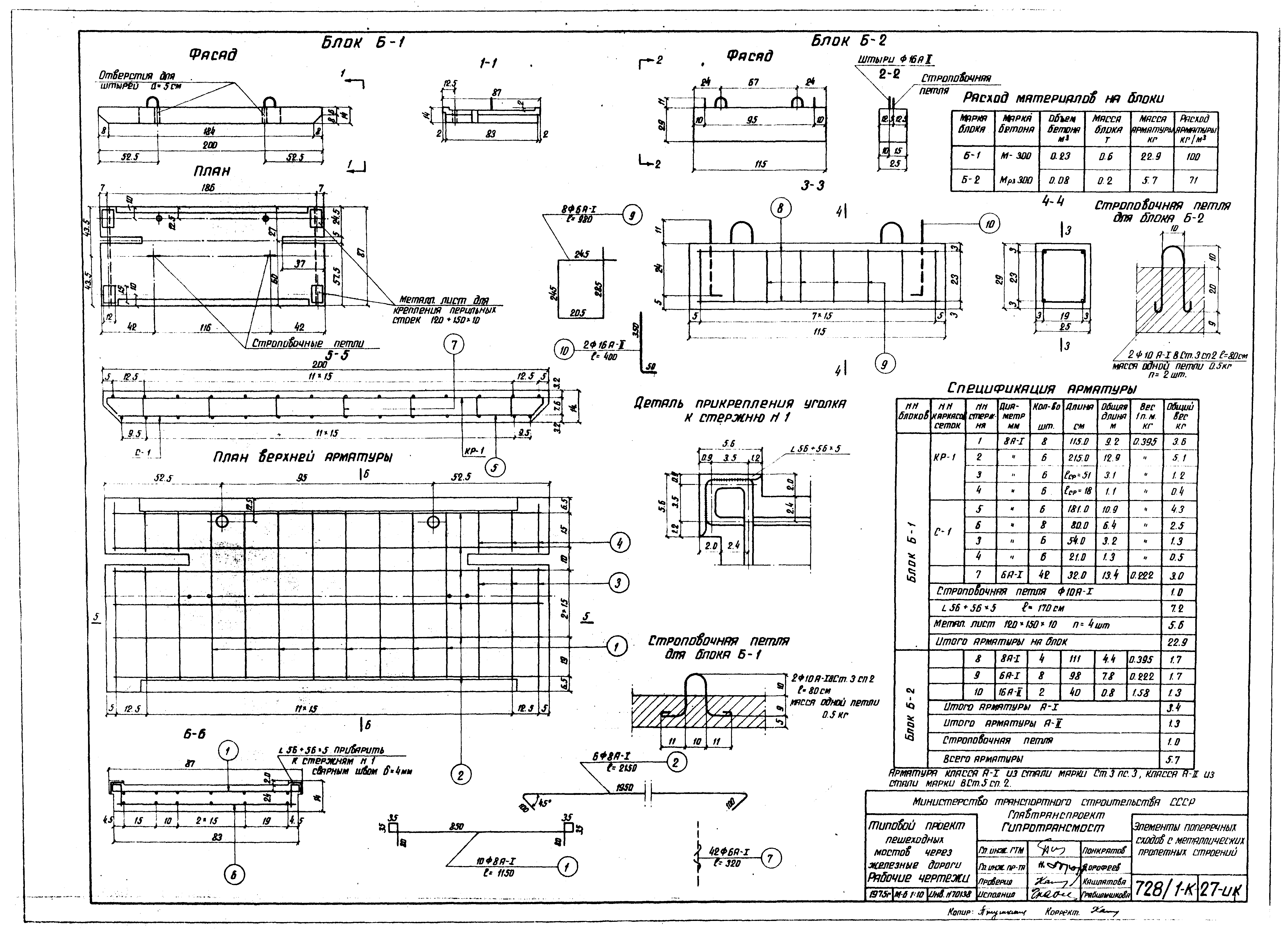
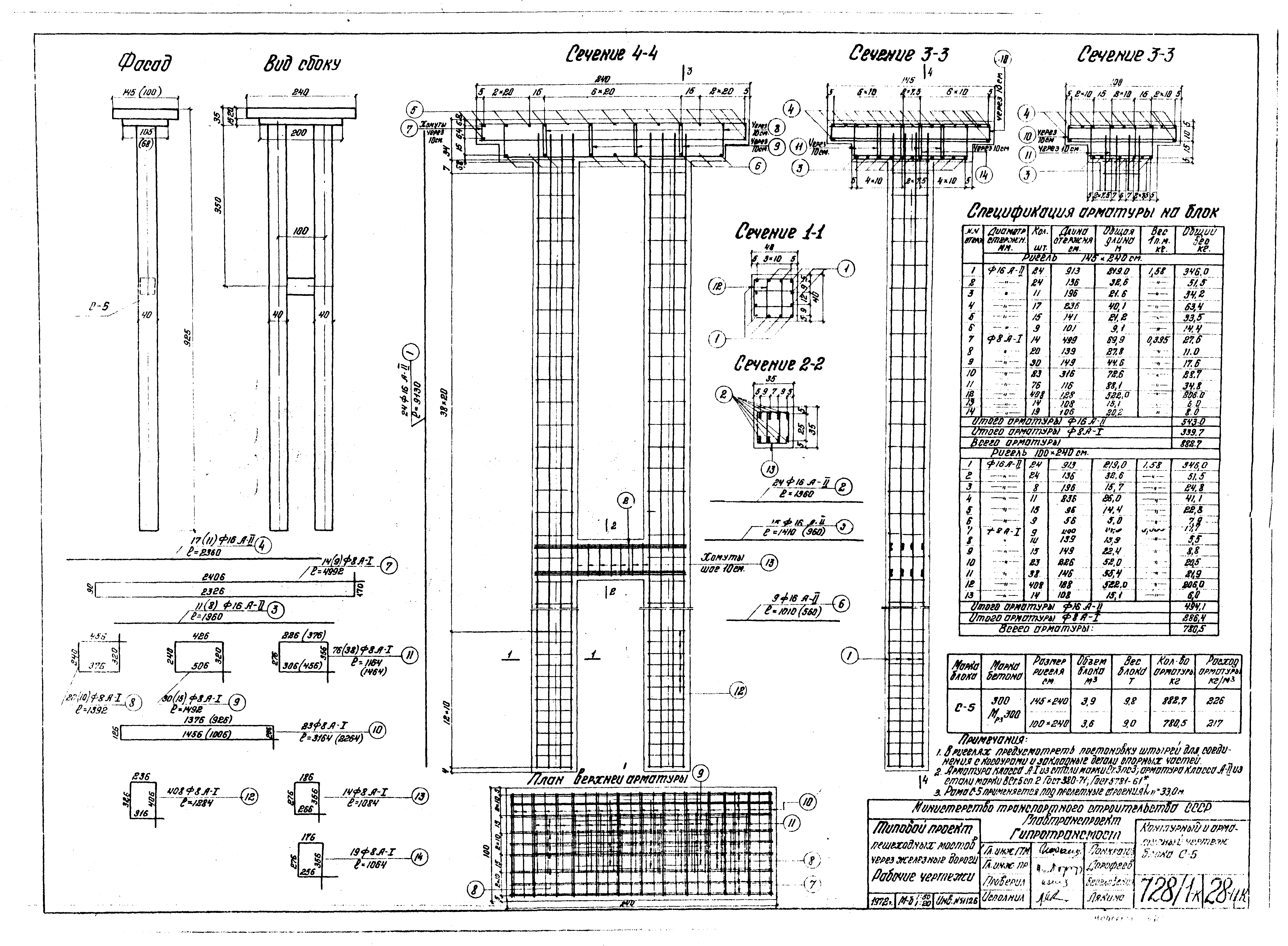
Выпуск 1. Типовой проект пешеходных мостов через железные дороги. Рабочие чертежи| Обозначение: | Типовой проект 501-166 | | Обозначение англ: | 501-166 | | Статус: | действует | | Название рус.: | Выпуск 1. Типовой проект пешеходных мостов через железные дороги. Рабочие чертежи | | Дата добавления в базу: | 01.09.2013 | | Дата актуализации: | 01.01.2021 | | Дата введения: | 31.12.1975 | | Область применения: | В типовой проект включены схемы пешеходных мостов, опоры и сходы | | Разработан: | Гипротрансмост
| | Утверждён: | 31.12.1975 МПС (Ministry of Railroads А-383.79)
|
                                                                                           
|