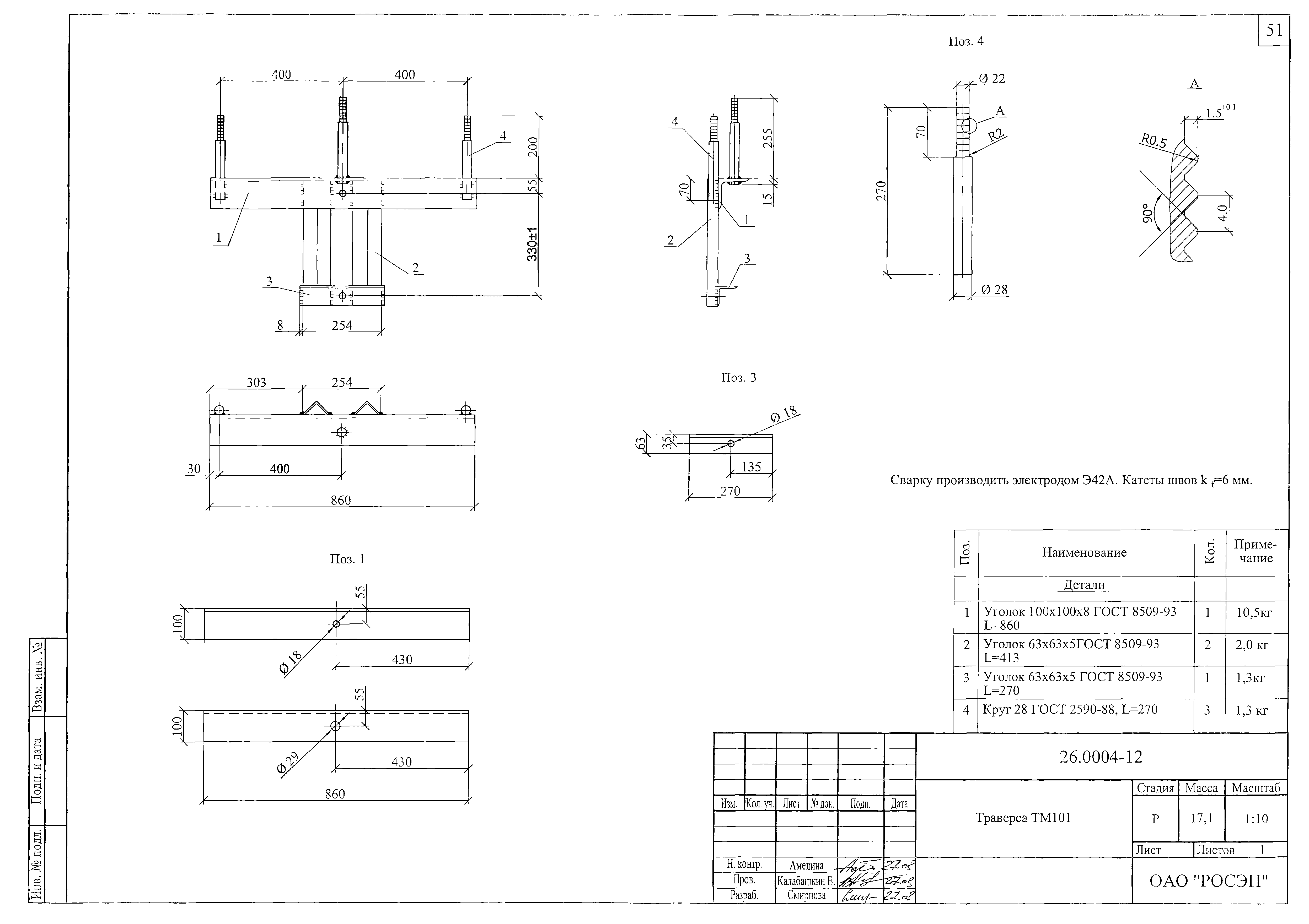
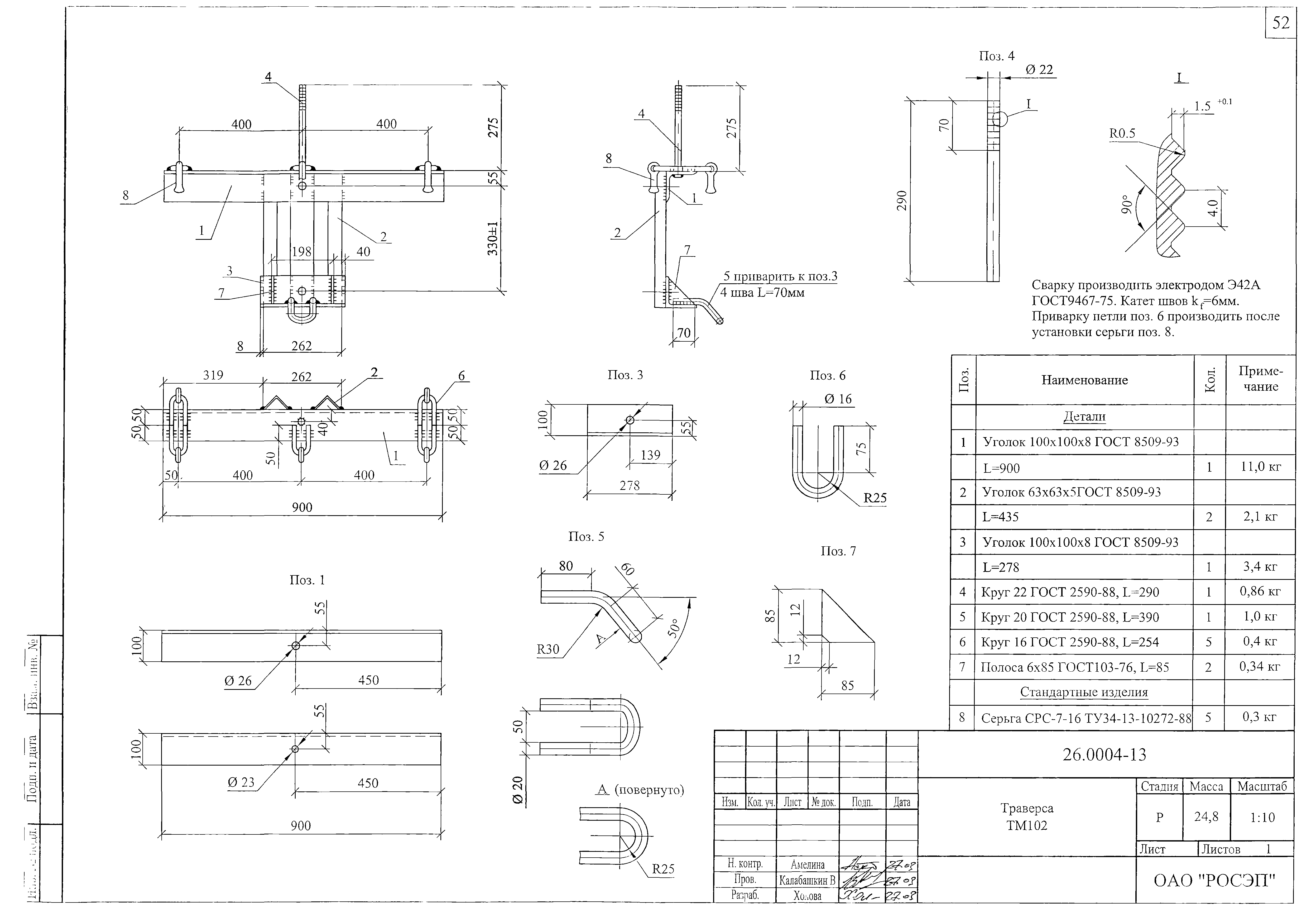
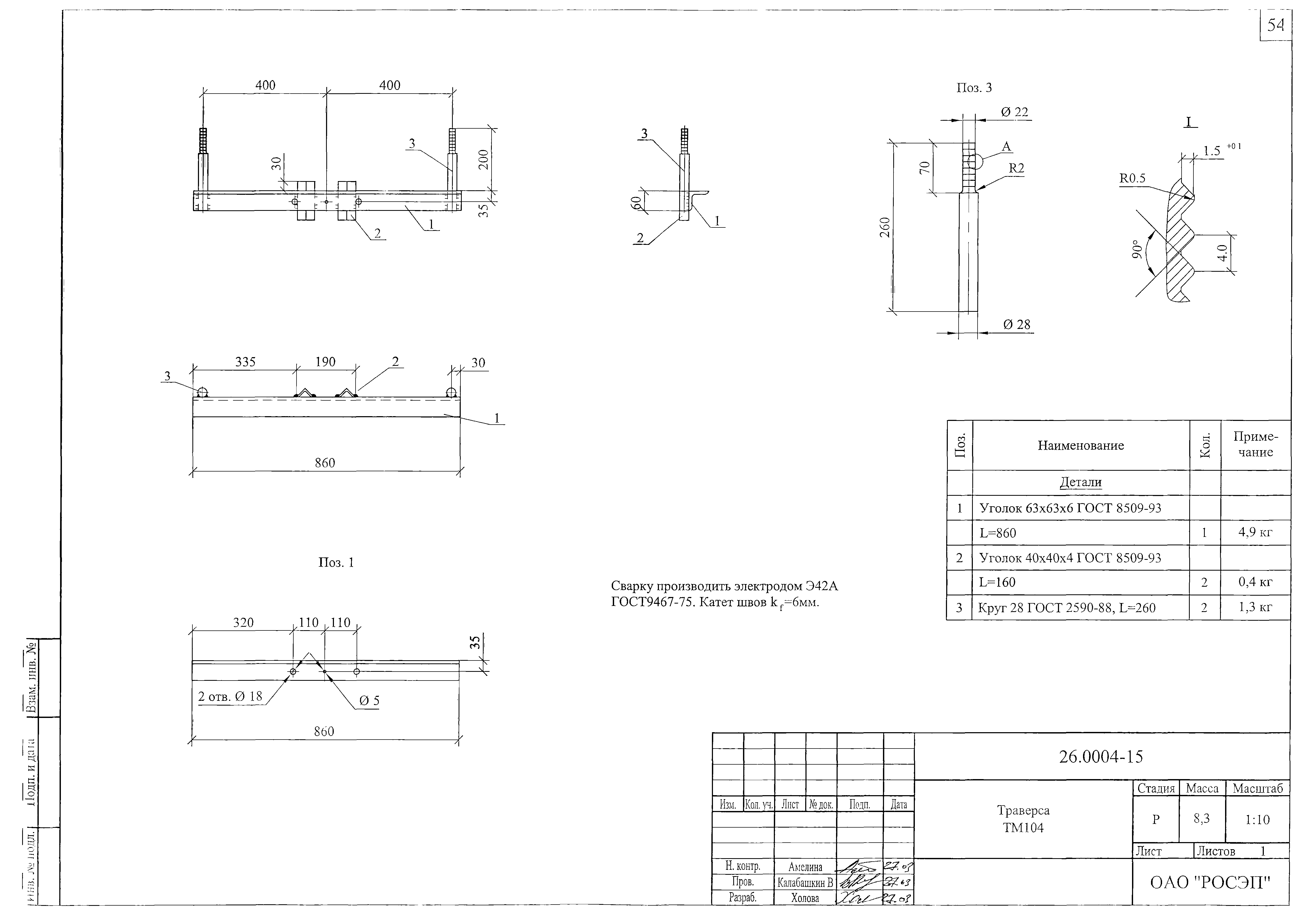
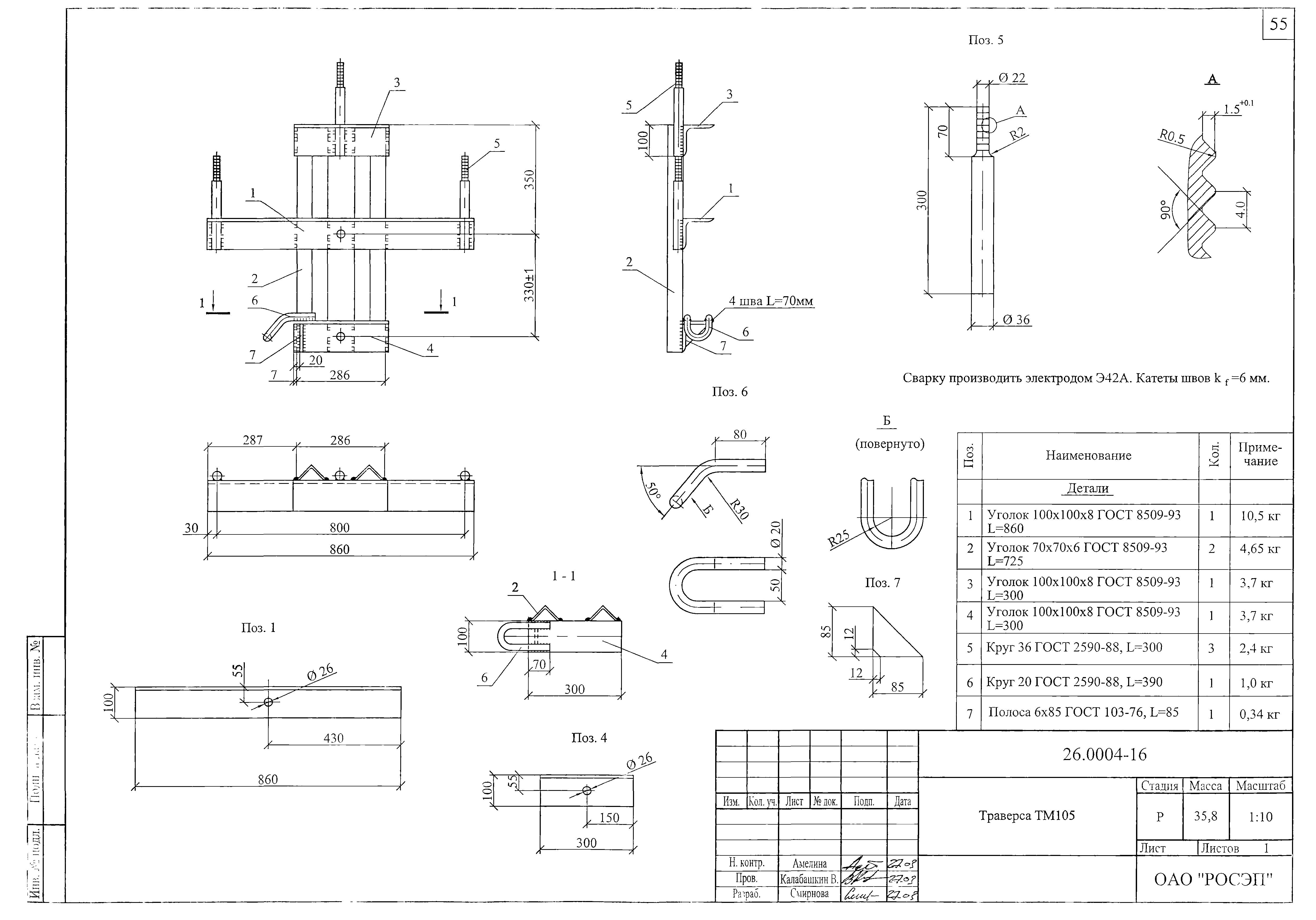
Скачать Шифр 26.0004 Деревянные опоры ВЛ 6 - 10 кВ с защищенными проводами с анкерно-угловыми опорами с оттяжкамиДата актуализации: 01.01.2021 Шифр 26.0004
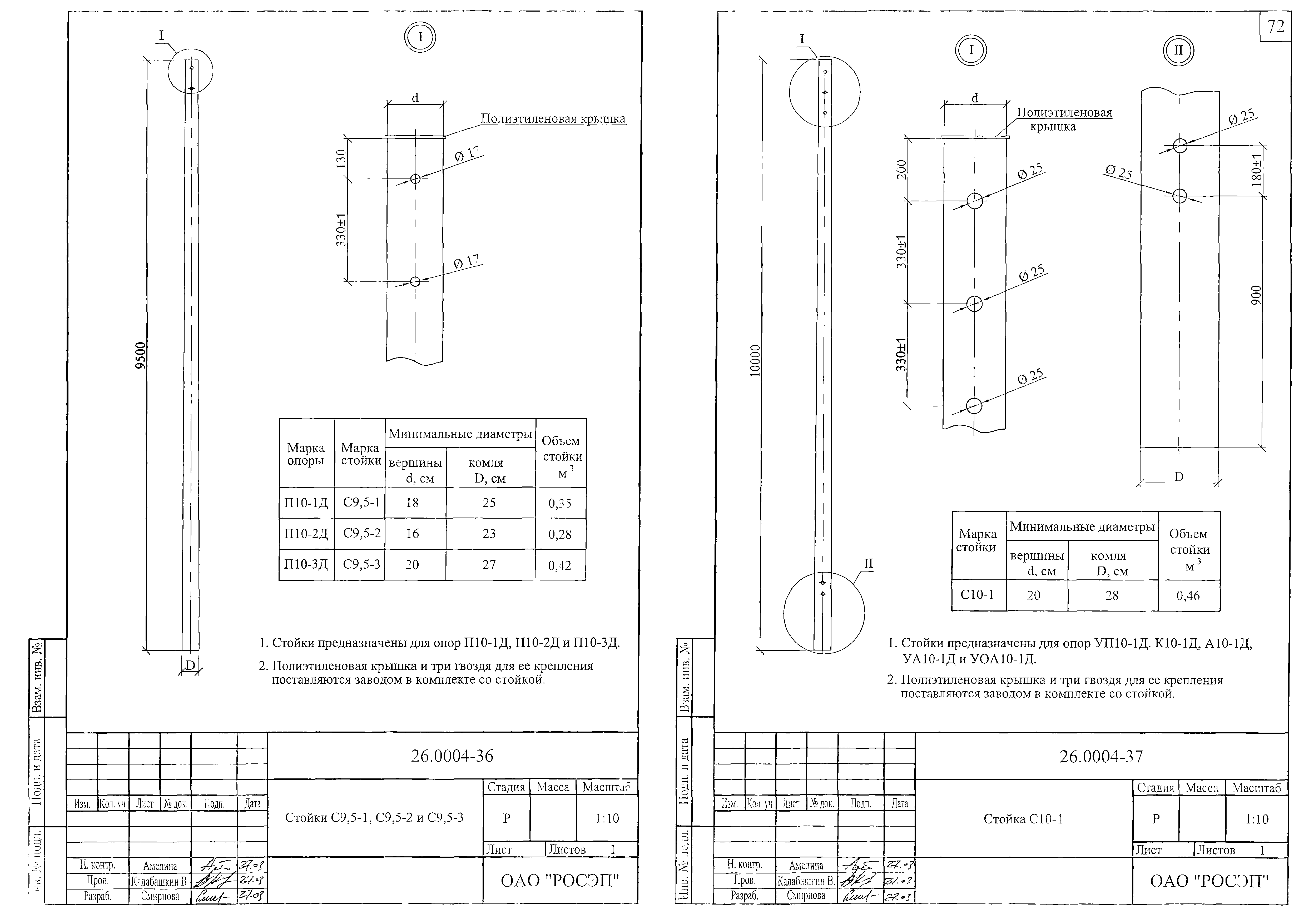
Деревянные опоры ВЛ 6 - 10 кВ с защищенными проводами с анкерно-угловыми опорами с оттяжками| Обозначение: | Шифр 26.0004 | | Обозначение англ: | 26.0004 | | Статус: | не определен законодательством | | Название рус.: | Деревянные опоры ВЛ 6 - 10 кВ с защищенными проводами с анкерно-угловыми опорами с оттяжками | | Дата добавления в базу: | 01.09.2013 | | Дата актуализации: | 01.01.2021 | | Дата введения: | 01.01.2006 | | Разработан: | ОАО РОСЭП
| | Утверждён: | 01.01.2006 ОАО РАО ЕЭС России (UES of Russia RAO OAO )
|
                                                                          
|