Скачать Серия 3.503.1-73 Выпуск 1. Дополнение 1. Балка пролетного строения длиной 14,06 м, высотой 0,93 м для ремонта моста через реку Клязьму в г. Ногинске на 44 км Горьковско-Ярославского шоссе. Рабочие чертежиДата актуализации: 01.01.2021
|
| Обозначение: | Серия 3.503.1-73 |
| Обозначение англ: | Series 3.503.1-73 |
| Статус: | не определен законодательством |
| Название рус.: | Выпуск 1. Дополнение 1. Балка пролетного строения длиной 14,06 м, высотой 0,93 м для ремонта моста через реку Клязьму в г. Ногинске на 44 км Горьковско-Ярославского шоссе. Рабочие чертежи |
| Дата добавления в базу: | 01.09.2013 |
| Дата актуализации: | 01.01.2021 |
| Дата введения: | 16.06.1997 |
| Дата окончания срока действия: | 30.06.2003 |
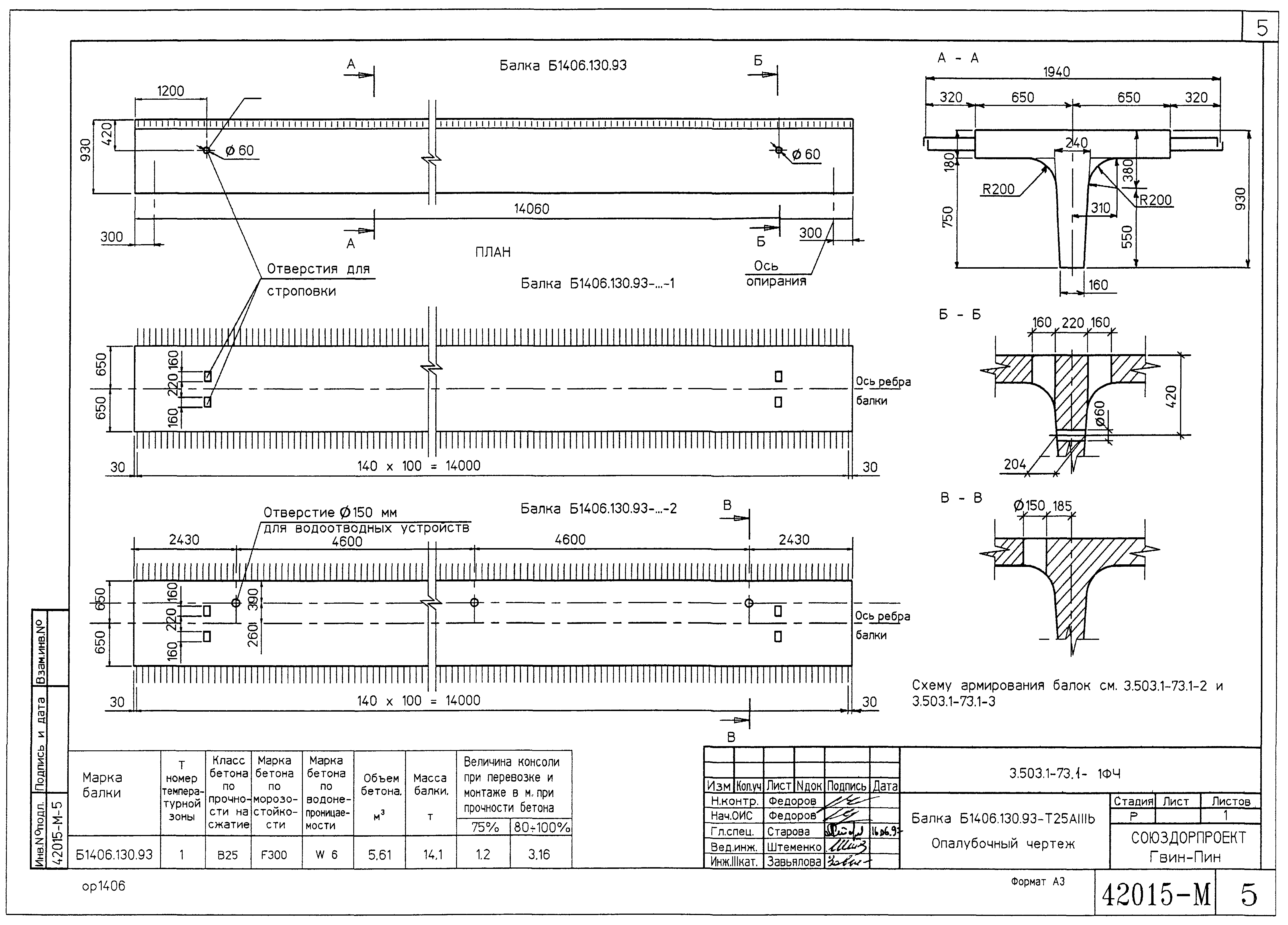
| Область применения: | Настоящие рабочие чертежи балок автодорожного пролетного строения длиной 14,06 м, высотой 0,93 м разработаны для ремонта моста через реку Клязьму в г. Ногинске на 44 км Горьковско-Ярославского шоссе |
| Оглавление: | 3.503.1.-73.1-ТТ доп.1 Технические требования 3.503.1.-73.1-1ФЧ Балка Б1406.130.93-Т25АIIIЬ. Опалубочный чертеж 3.503.1.-73.1-2 Плита балки Б1406.130.93. Схема армирования 3.503.1.-73.1-3 Ребро балки Б1406.130.93. Схема армирования 3.503.1.-73.1-4 Сетка плиты СП130-ТАII(АIII)-1 СП130-ТАII(АIII)-2 3.503.1.-73.1-5 Сетка плиты СП130-ТАII(АIII)-3 СП130-ТАII(АIII)-4 3.503.1.-73.1-6 Сетка плиты СП130-ТАII(АIII)-5 СП130-ТАII(АIII)-6 3.503.1.-73.1-7 Сетка вута 3.503.1.-73.1-8 Каркас К1406-Т25АIIIЬ 3.503.1.-73.1-9РС Ведомость расхода стали 3.503.1.-73.1-10 Расчетный лист |
| Разработан: | Союздорпроект Минтрансстроя |
| Утверждён: | 16.06.1997 Союздорпроект Минтрансстроя (Soyuzdorproject, Mintransstroy ) |













