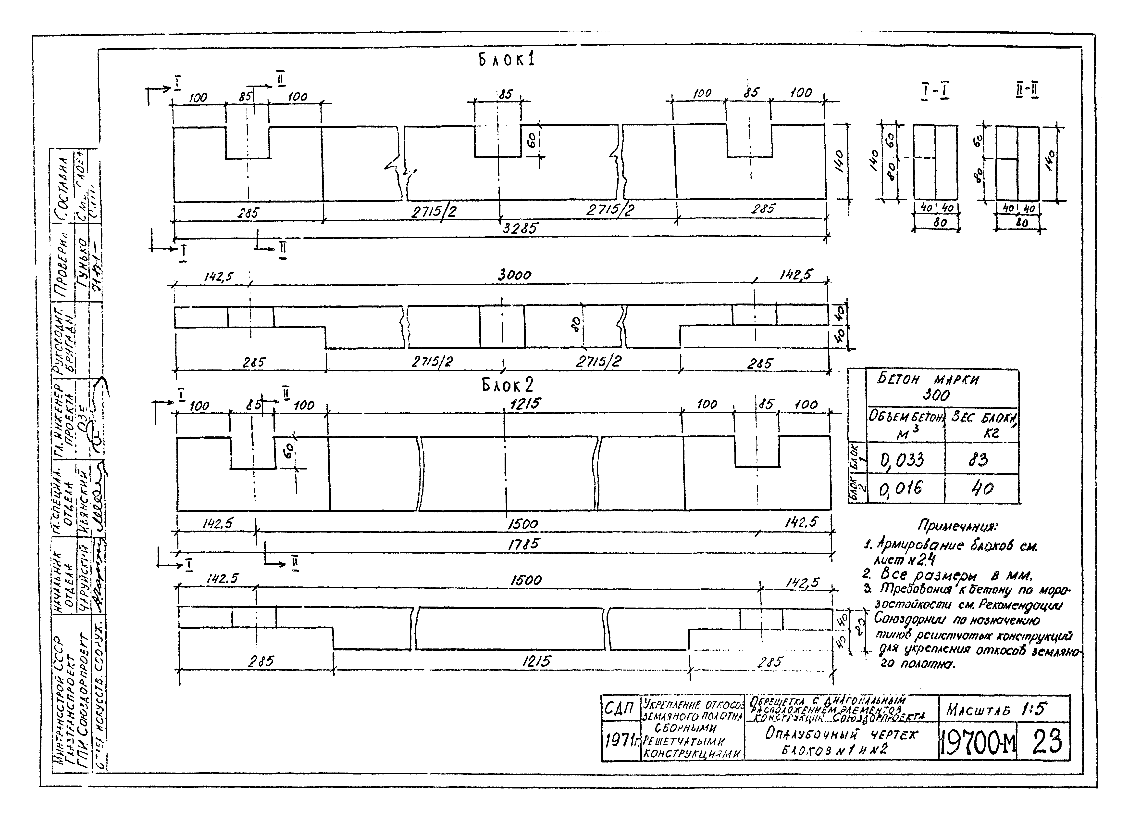
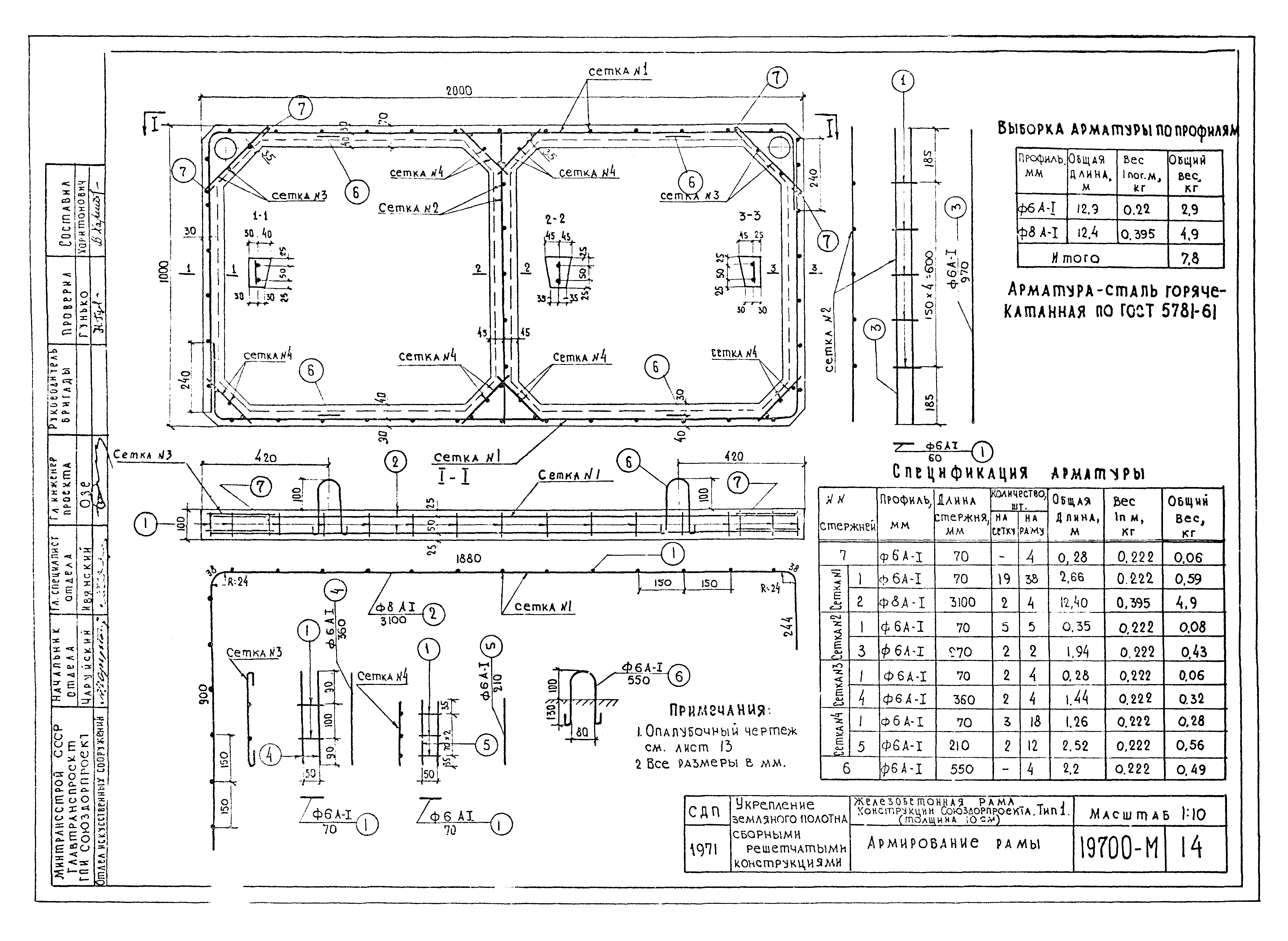
Скачать Проект укрепления откосов земляного полотна сборными решетчатыми конструкциями. Конструкции обрешеток. Рабочие чертежи

Дата актуализации: 01.01.2021

Проект укрепления откосов земляного полотна сборными решетчатыми конструкциями. Конструкции обрешеток. Рабочие чертежи

Статус:не определен законодательством
Название рус.:Проект укрепления откосов земляного полотна сборными решетчатыми конструкциями. Конструкции обрешеток. Рабочие чертежи
Дата добавления в базу:01.09.2013
Дата актуализации:01.01.2021
Дата введения:01.01.1971
Дата окончания срока действия:30.06.2003
Разработан: Союздорпроект Минтрансстроя
Утверждён:01.01.1971 Союздорпроект Минтрансстроя (Soyuzdorproject, Mintransstroy )