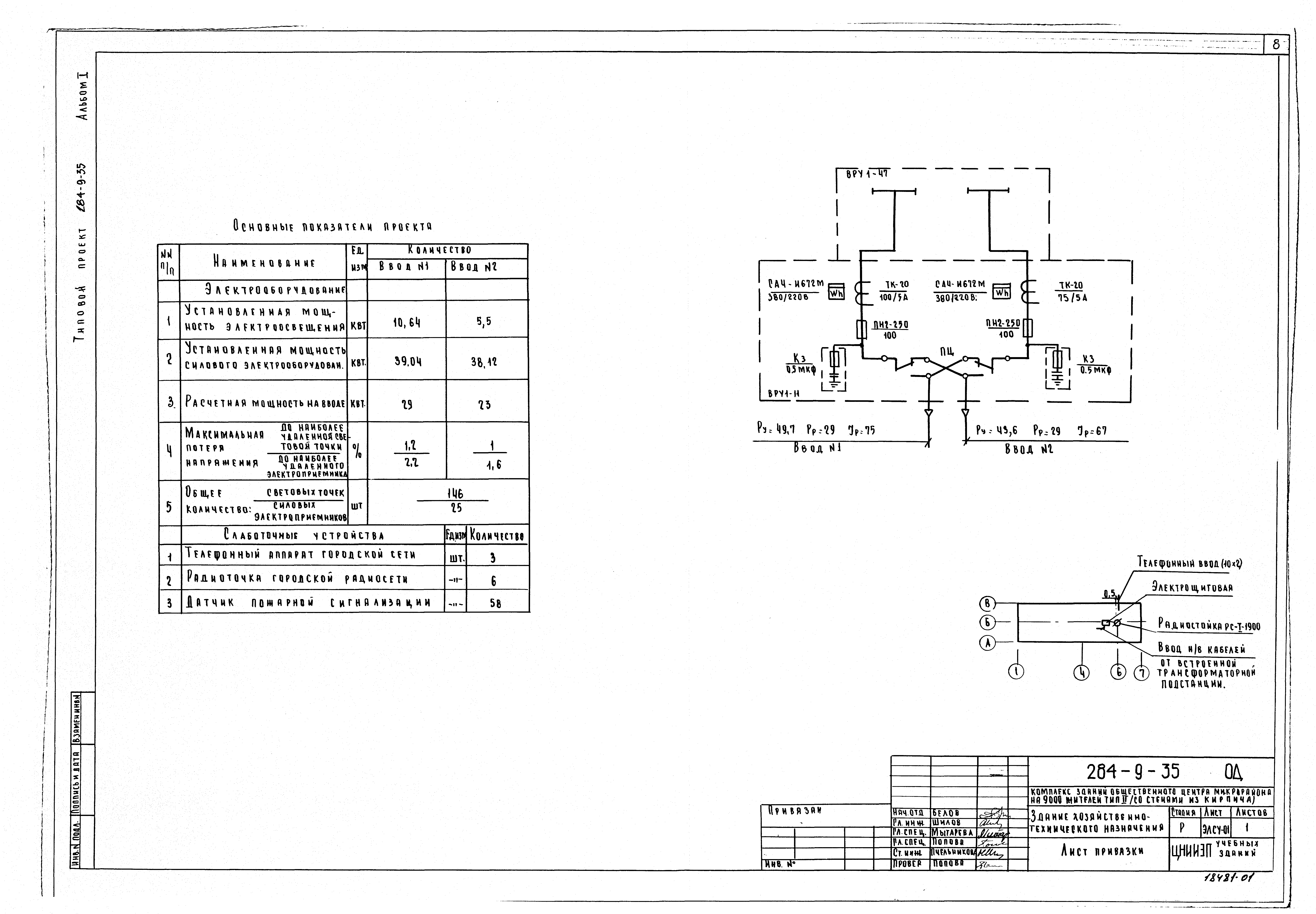
Скачать Типовой проект 284-9-35 Альбом I. Материалы для привязки. Архитектурно-строительные и технологические чертежиДата актуализации: 01.01.2021
|
| Обозначение: | Типовой проект 284-9-35 |
| Обозначение англ: | 284-9-35 |
| Статус: | не определен законодательством |
| Название рус.: | Альбом I. Материалы для привязки. Архитектурно-строительные и технологические чертежи |
| Дата добавления в базу: | 01.09.2013 |
| Дата актуализации: | 01.01.2021 |
| Дата введения: | 28.01.1983 |
| Дата окончания срока действия: | 30.06.2003 |
| Разработан: | ЦНИИЭП учебных зданий Госгражданстроя |
| Утверждён: | 19.10.1978 Госгражданстрой (Gosgrazhdanstroy 221) |




























