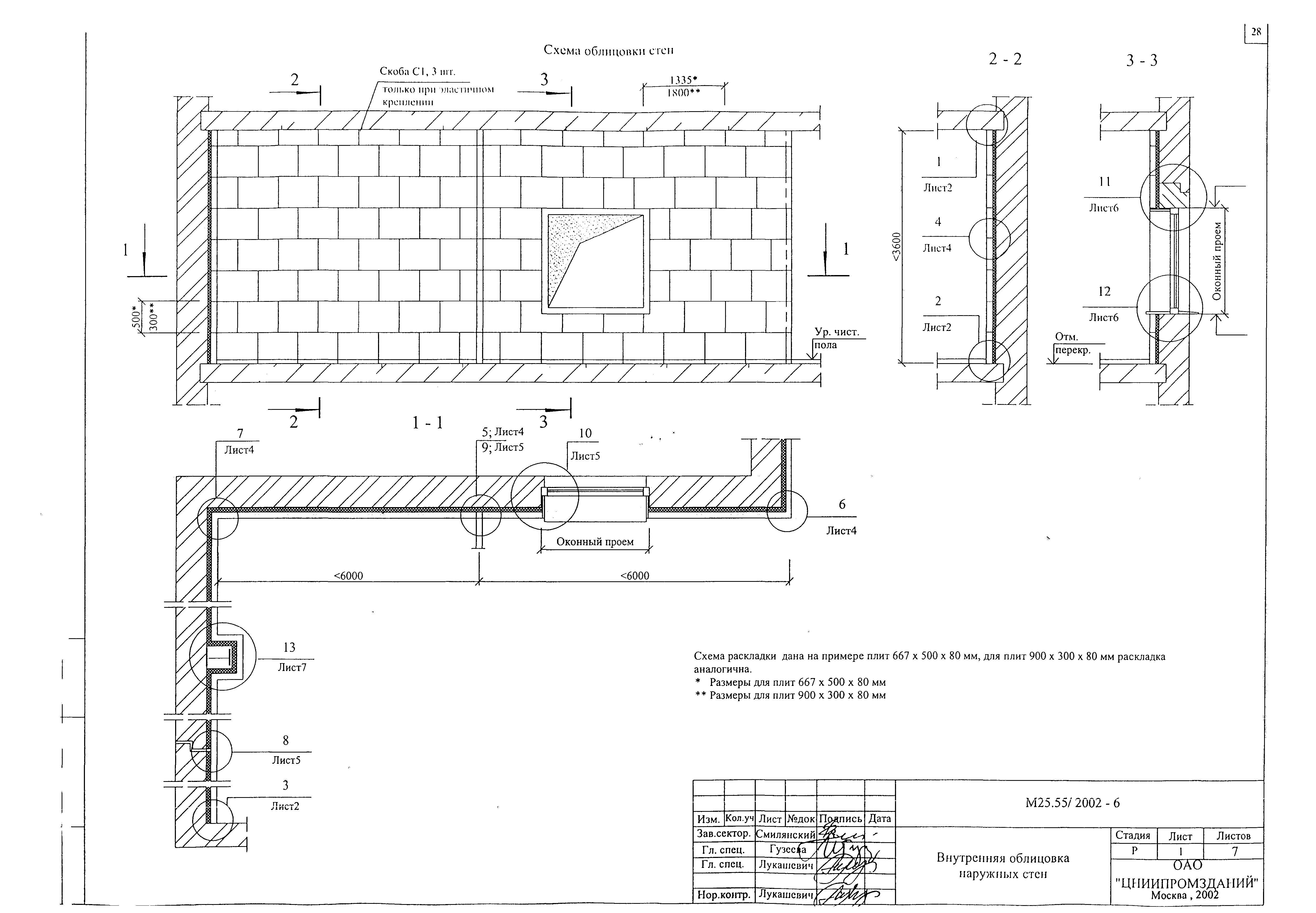
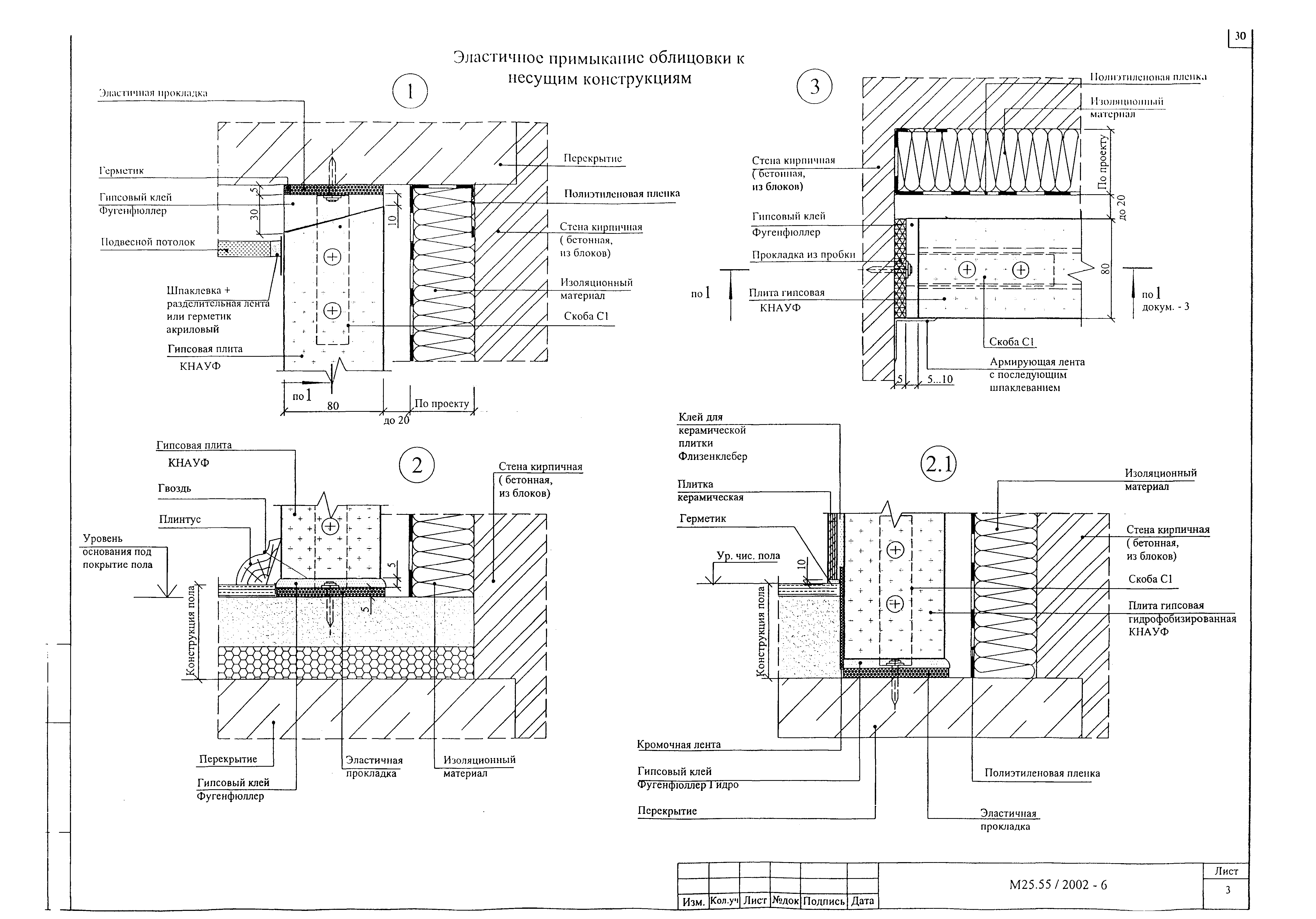
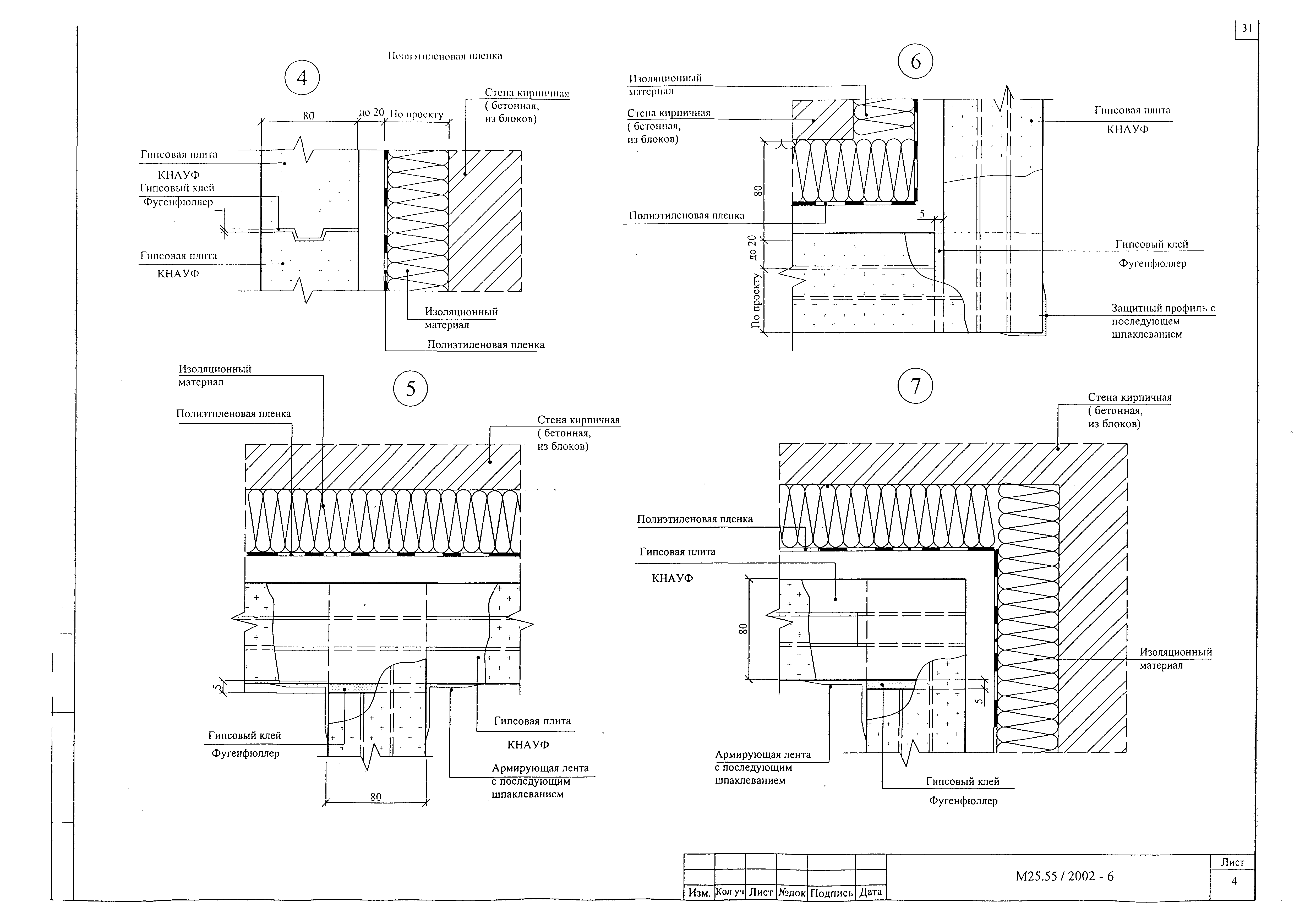
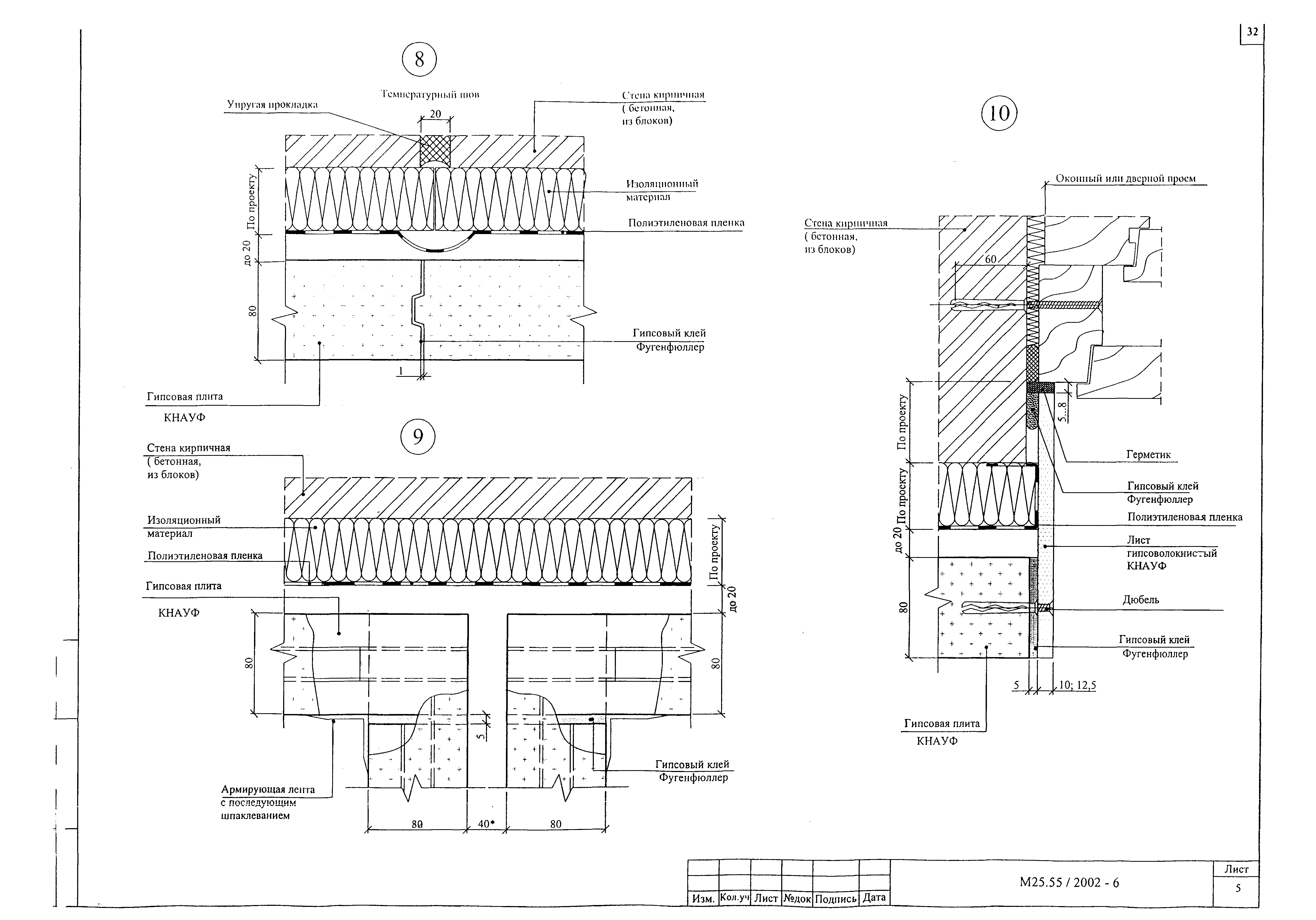
Скачать Шифр М25.55/2002 Перегородки и внутренняя облицовка наружных стен из гипсовых пазогребневых плит жилых, общественных и производственных зданий. Выпуск 1. Материалы для проектирования и рабочие чертежи узловДата актуализации: 01.01.2021 Шифр М25.55/2002
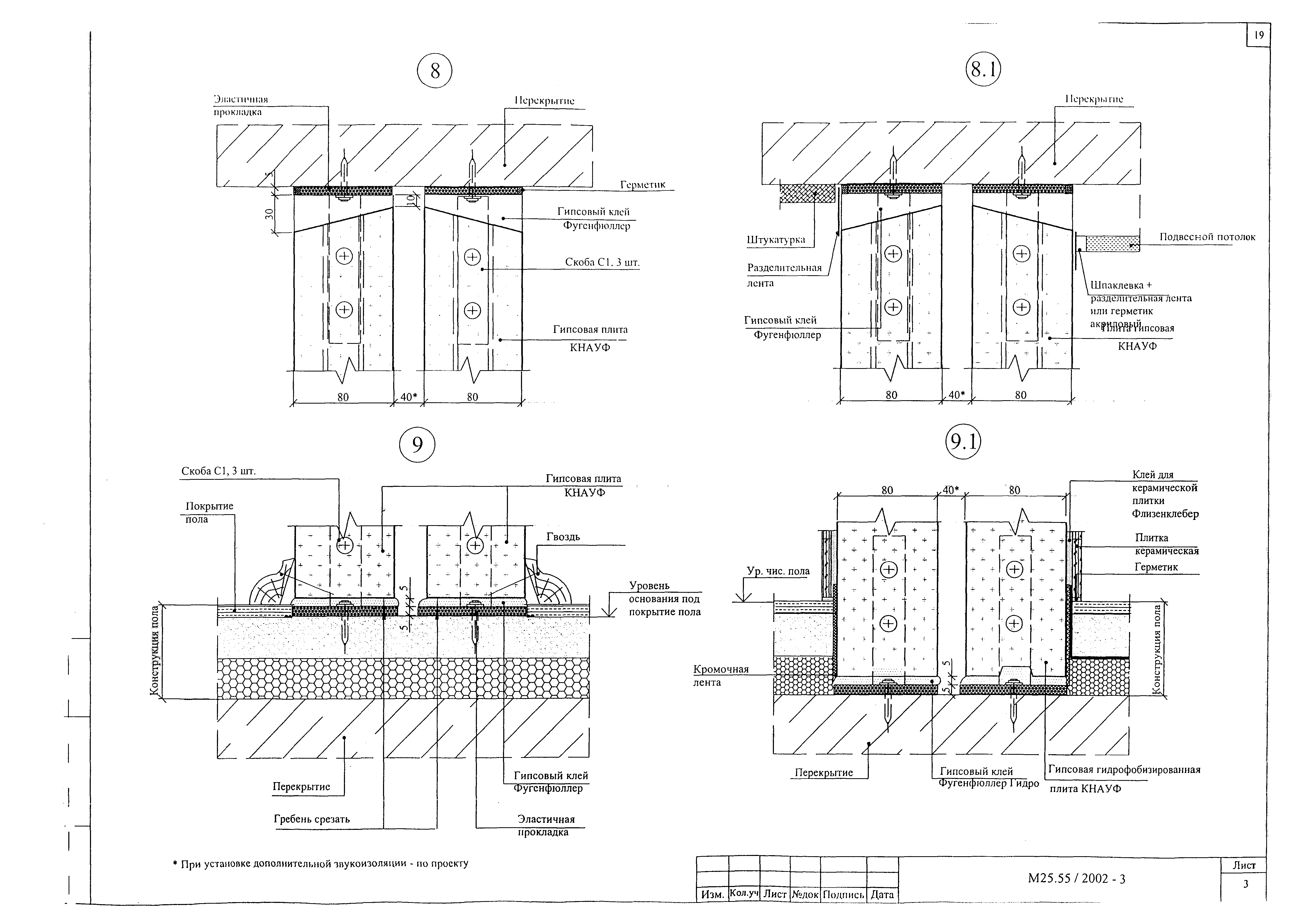
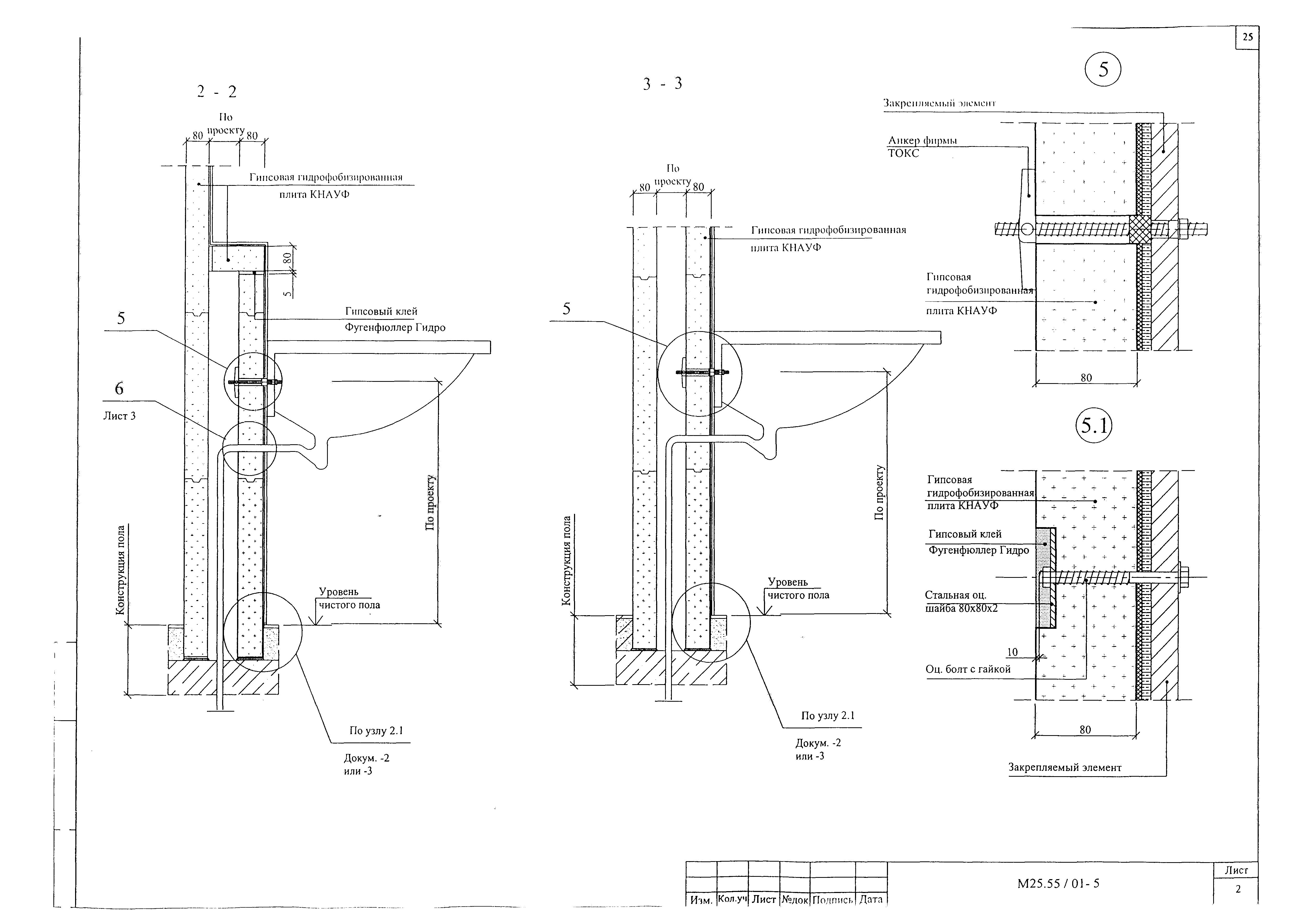
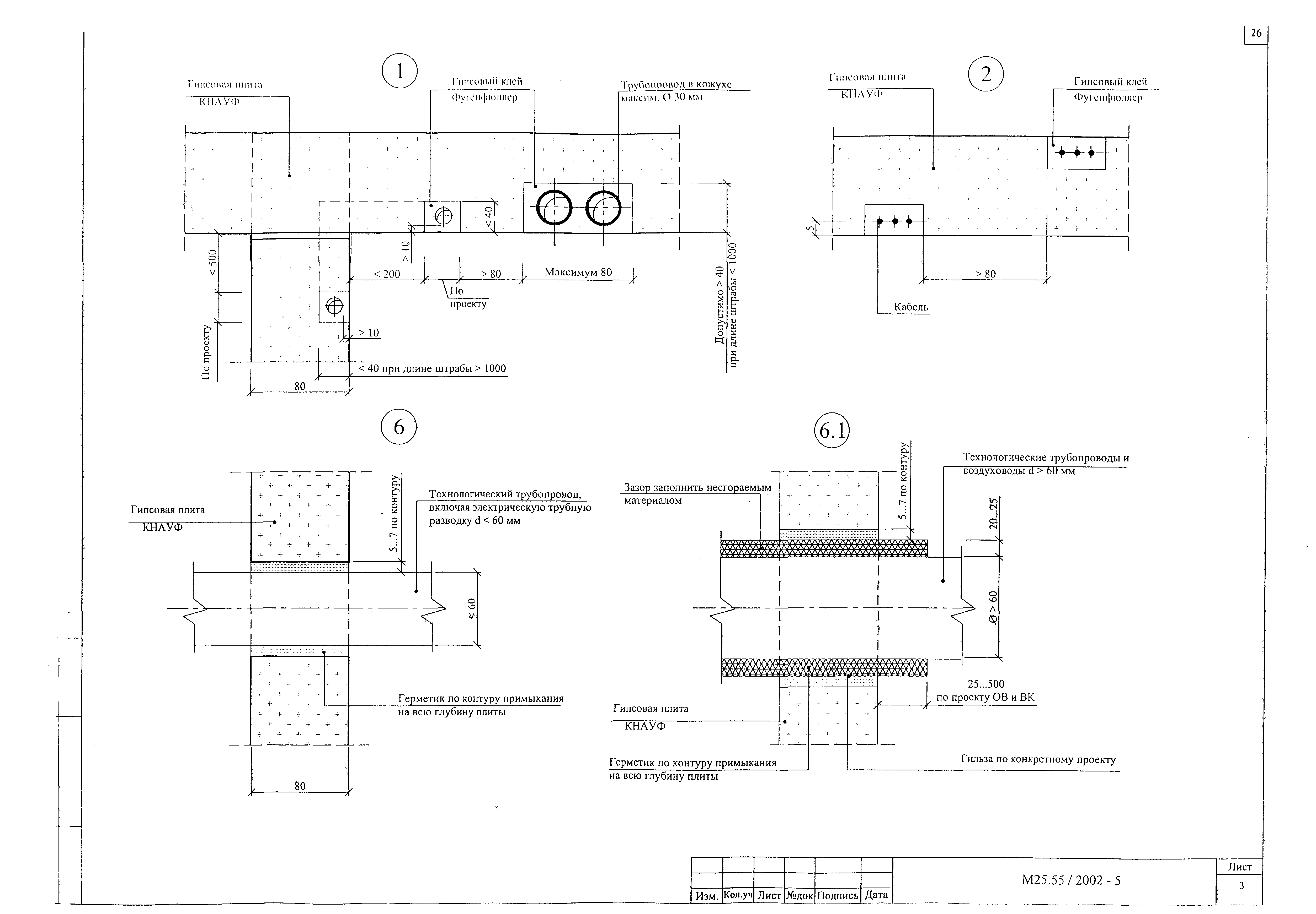
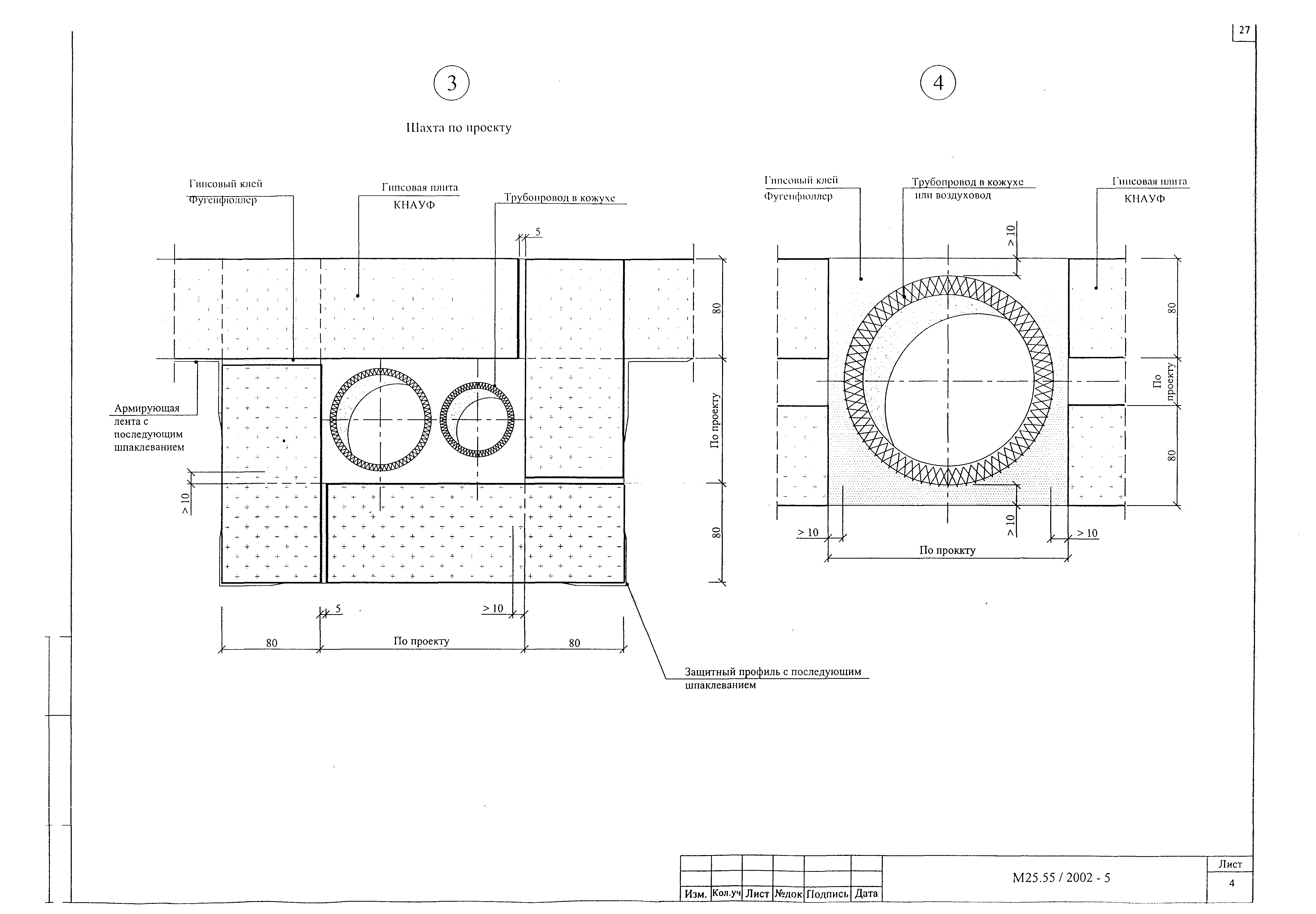
Перегородки и внутренняя облицовка наружных стен из гипсовых пазогребневых плит жилых, общественных и производственных зданий. Выпуск 1. Материалы для проектирования и рабочие чертежи узлов| Обозначение: | Шифр М25.55/2002 | | Обозначение англ: | М25.55/2002 | | Статус: | не действует | | Название рус.: | Перегородки и внутренняя облицовка наружных стен из гипсовых пазогребневых плит жилых, общественных и производственных зданий. Выпуск 1. Материалы для проектирования и рабочие чертежи узлов | | Дата добавления в базу: | 01.09.2013 | | Дата актуализации: | 01.01.2021 | | Область применения: | Альбом включает материалы для проектирования и рабочие чертежи узлов конструкций из гипсовых пазогребневых плит для перегородок и внутренних облицовок наружных стен зданий различного назначения | | Разработан: | ОАО ЦНИИпромзданий
| | Утверждён: | 01.01.2002 ОАО ЦНИИпромзданий (TsNIIpromzdaniy OAO )
|
                                   
|