Скачать Типовой проект 284-4-48 Альбом I. Пояснительная записка. Архитектурно-строительные чертежи. Отопление и вентиляция. Электрооборудование и автоматизация

Дата актуализации: 01.01.2021

Типовой проект 284-4-48

Альбом I. Пояснительная записка. Архитектурно-строительные чертежи. Отопление и вентиляция. Электрооборудование и автоматизация

Обозначение: Типовой проект 284-4-48
Обозначение англ: 284-4-48
Статус:не определен законодательством
Название рус.:Альбом I. Пояснительная записка. Архитектурно-строительные чертежи. Отопление и вентиляция. Электрооборудование и автоматизация
Дата добавления в базу:01.09.2013
Дата актуализации:01.01.2021
Дата введения:15.07.1976
Дата окончания срока действия:30.06.2003
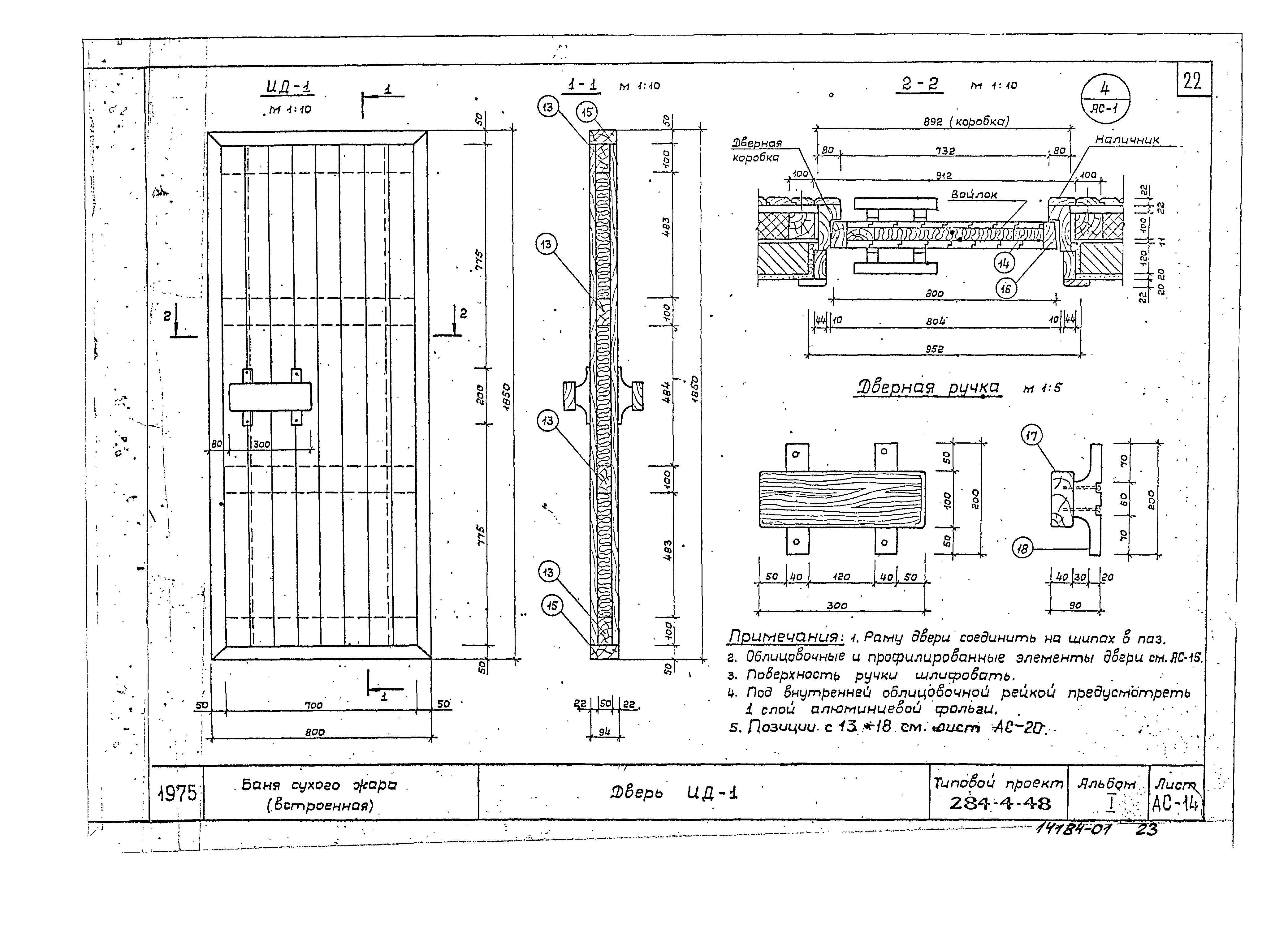
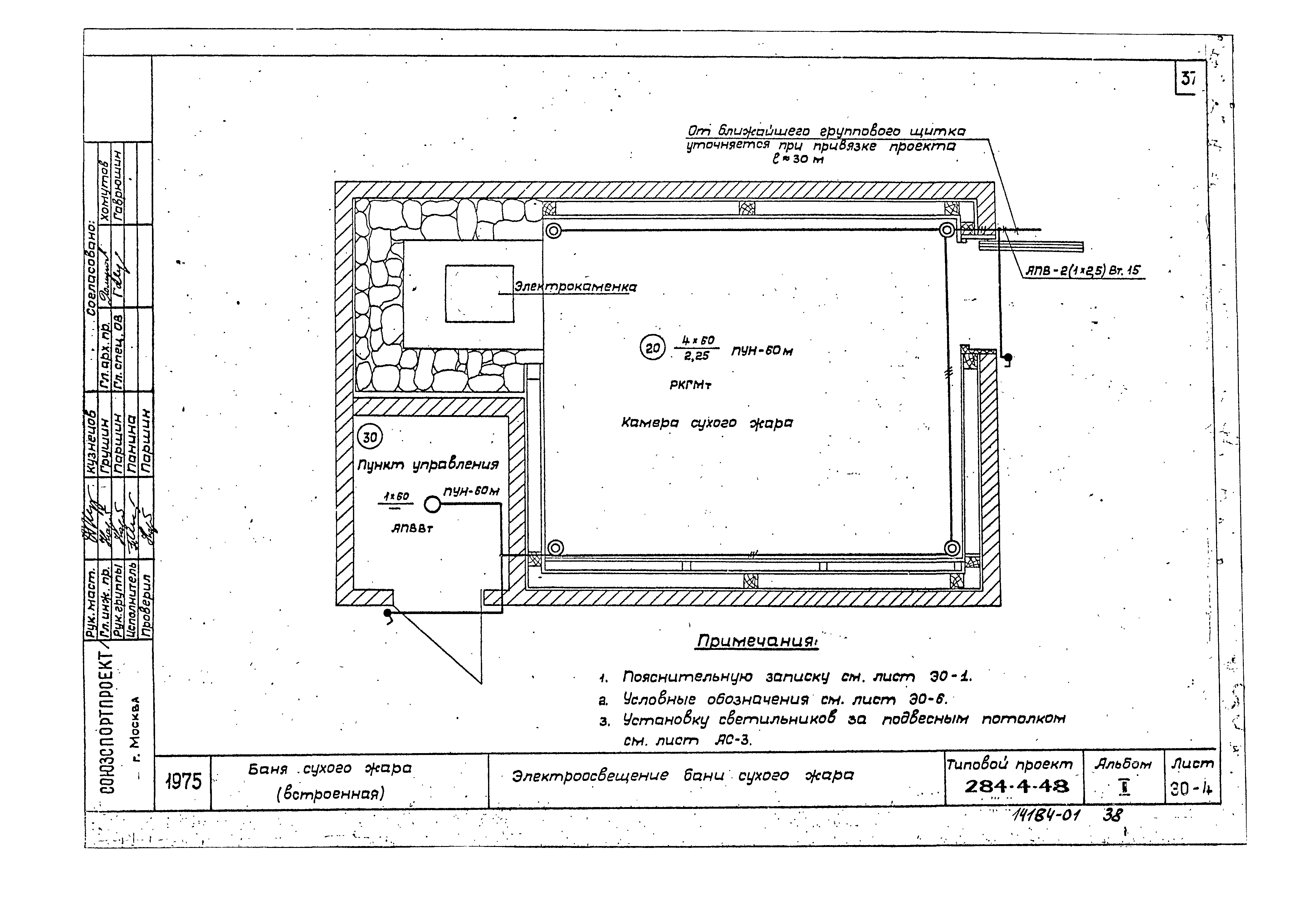
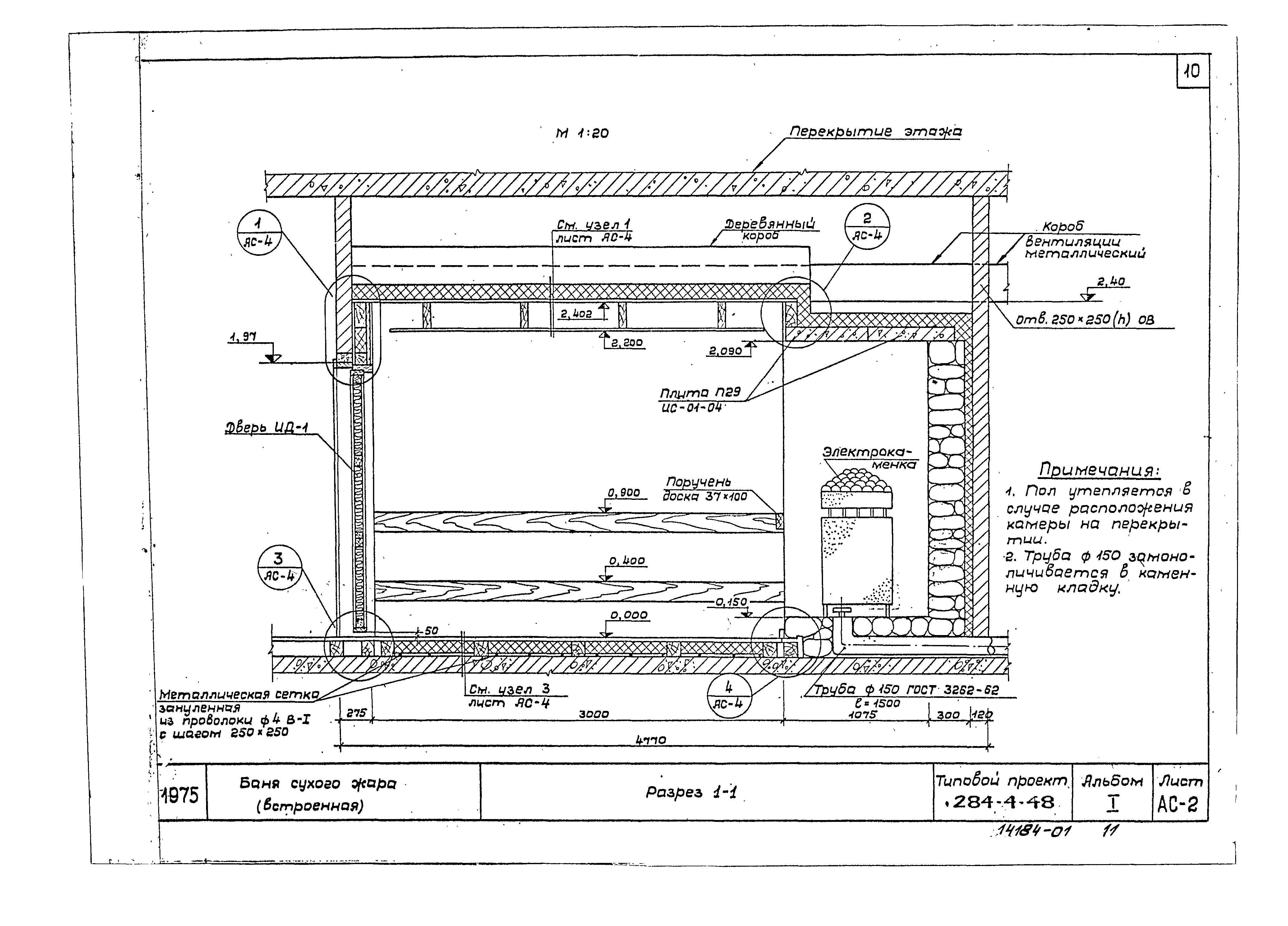
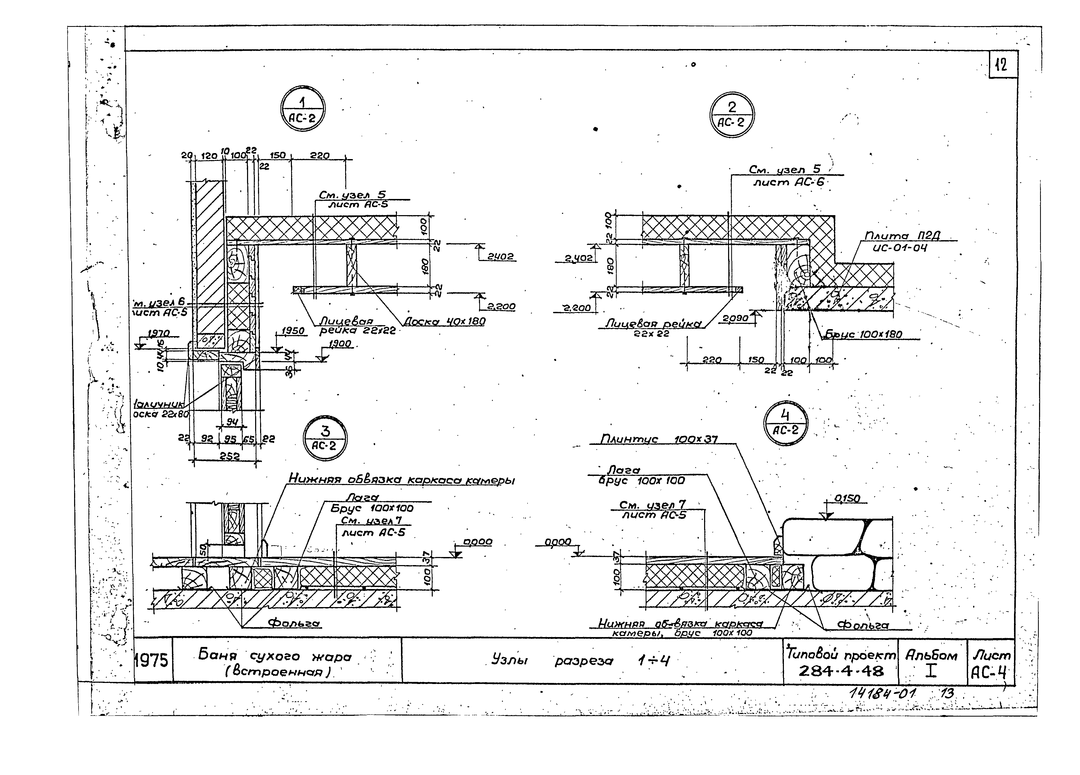
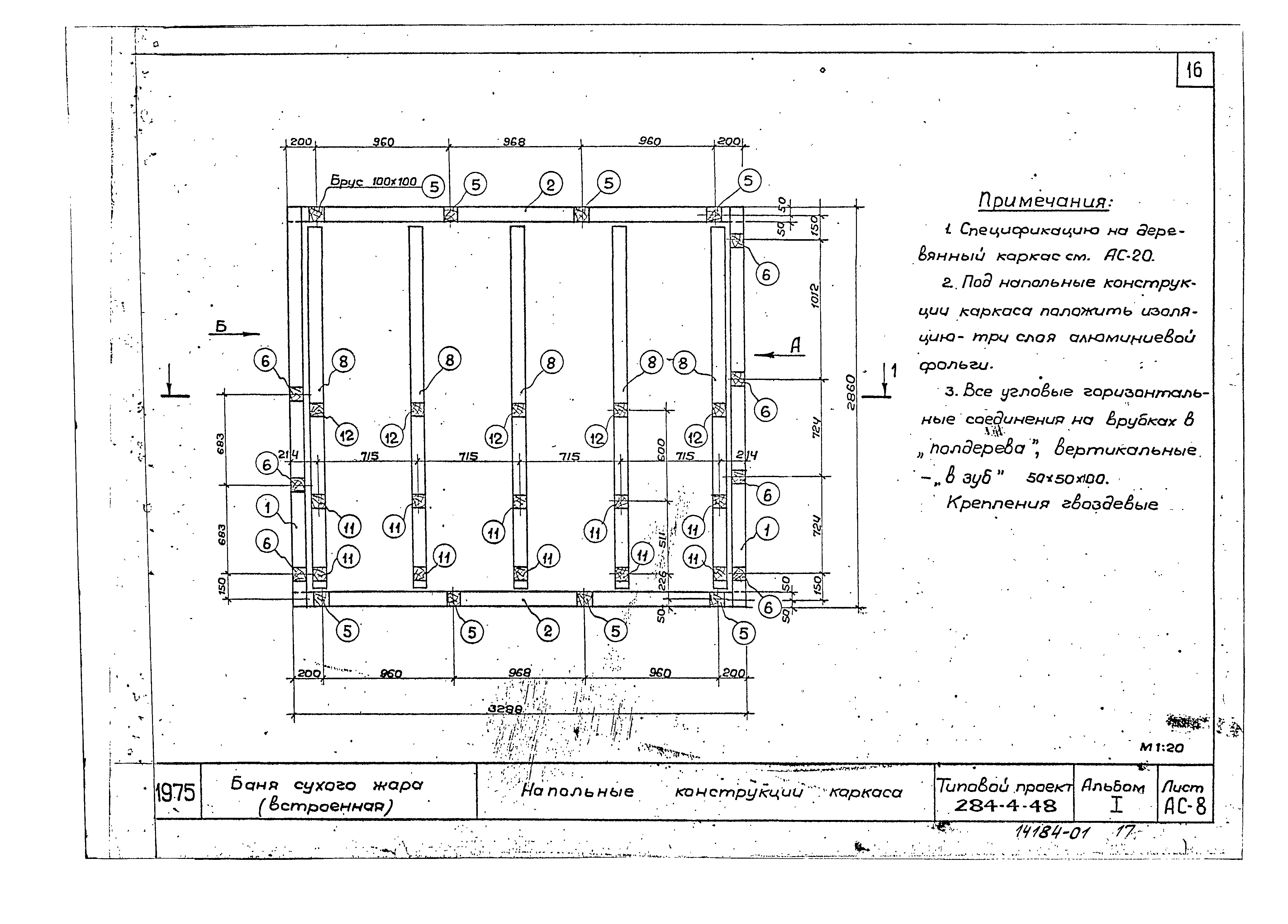
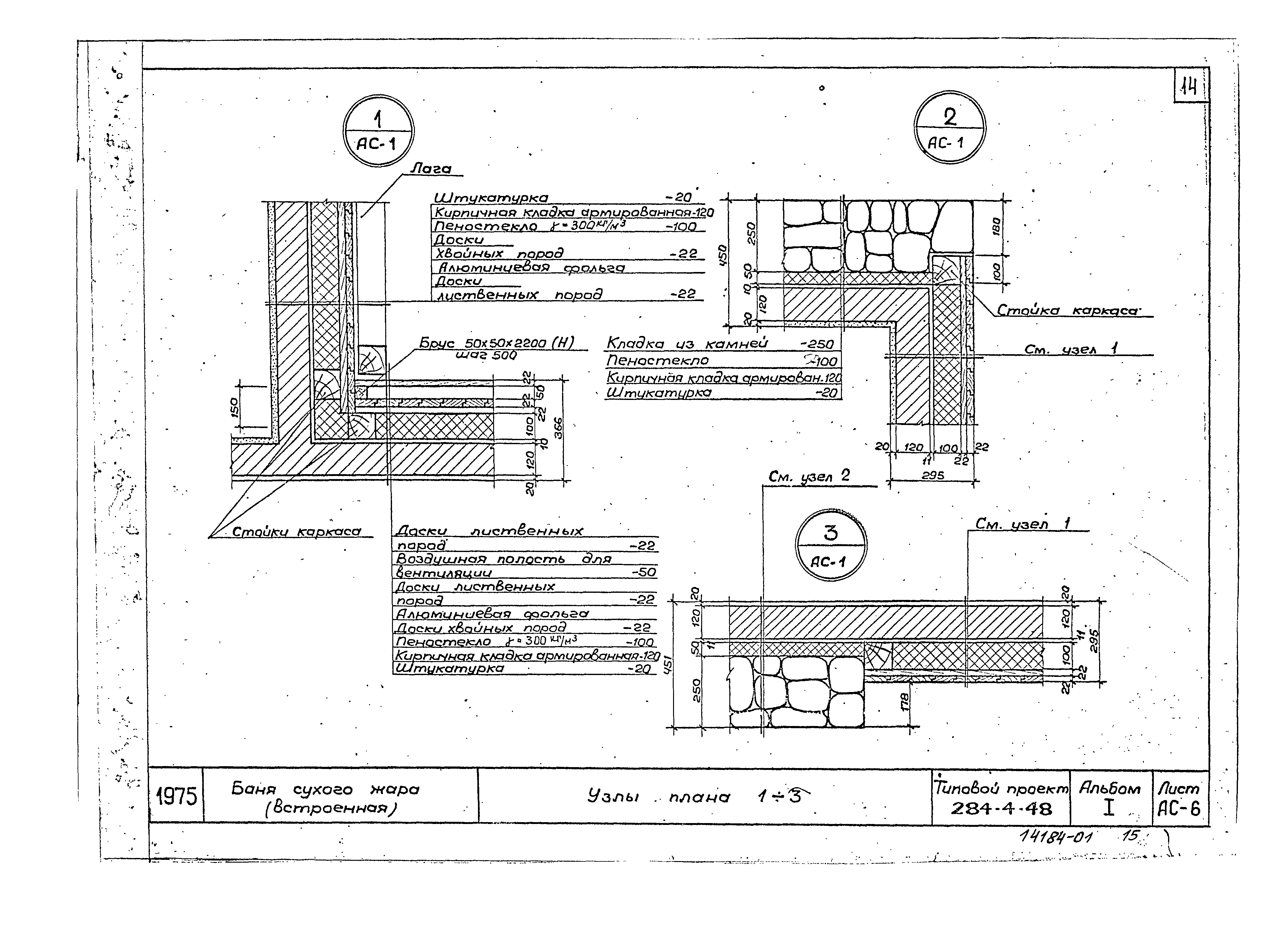
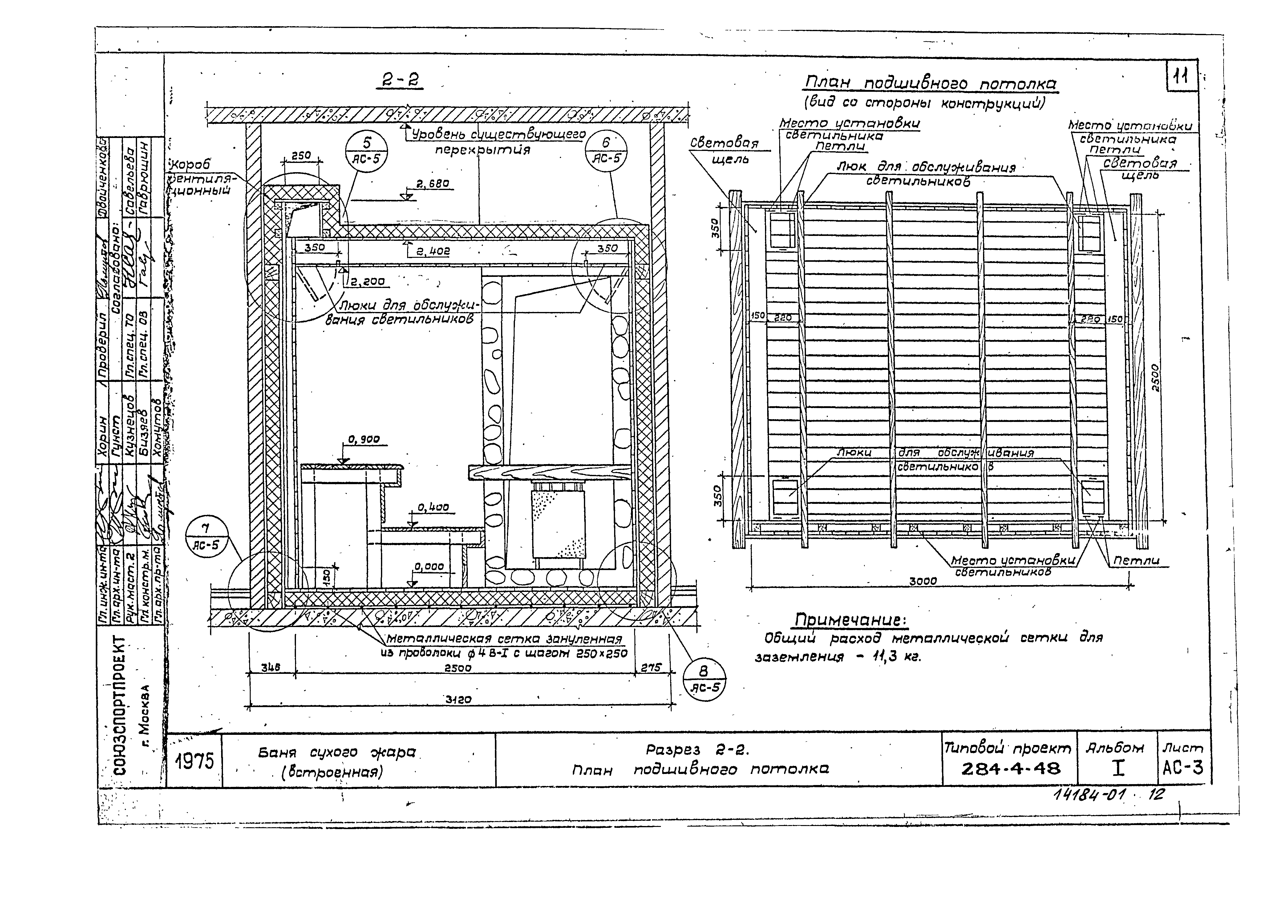
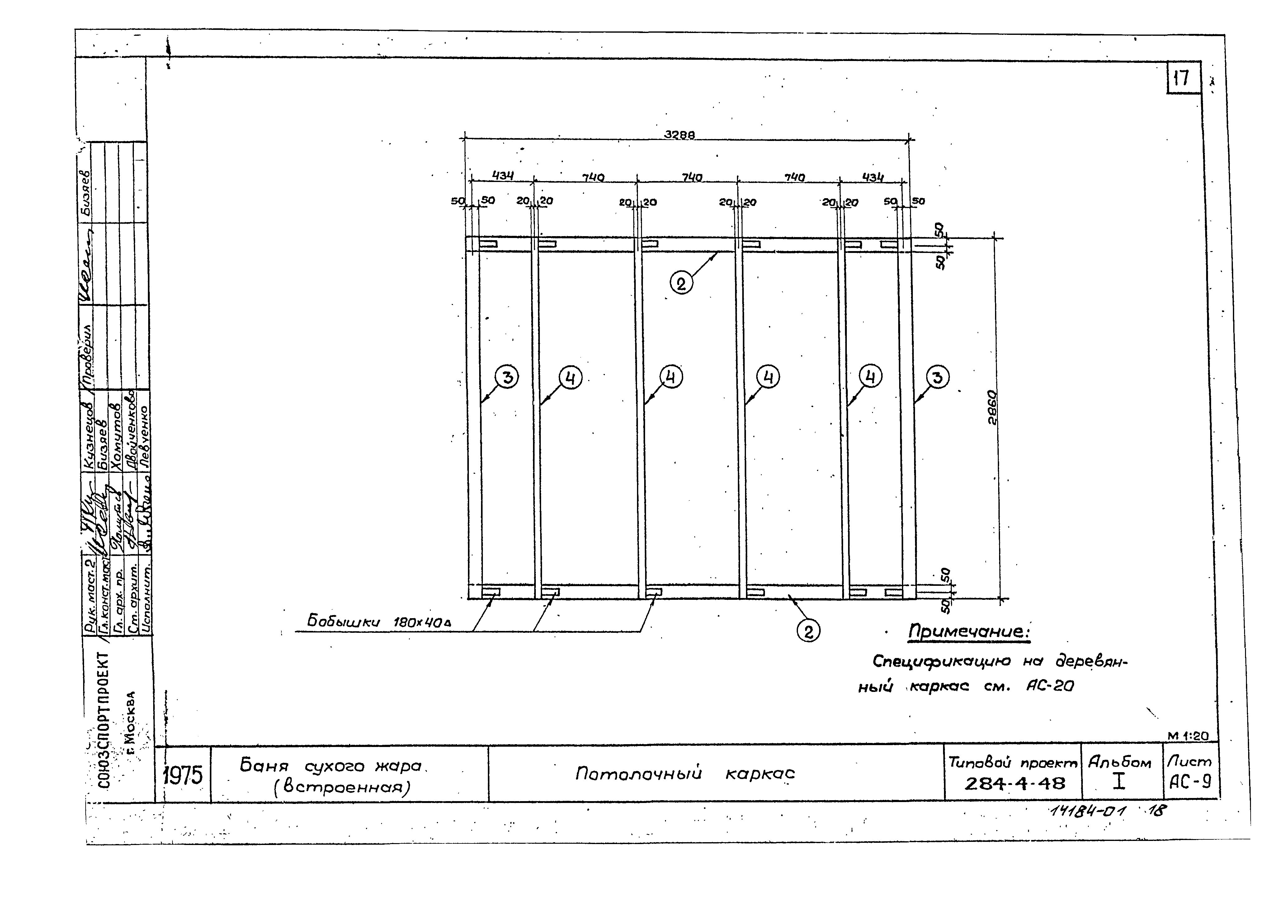
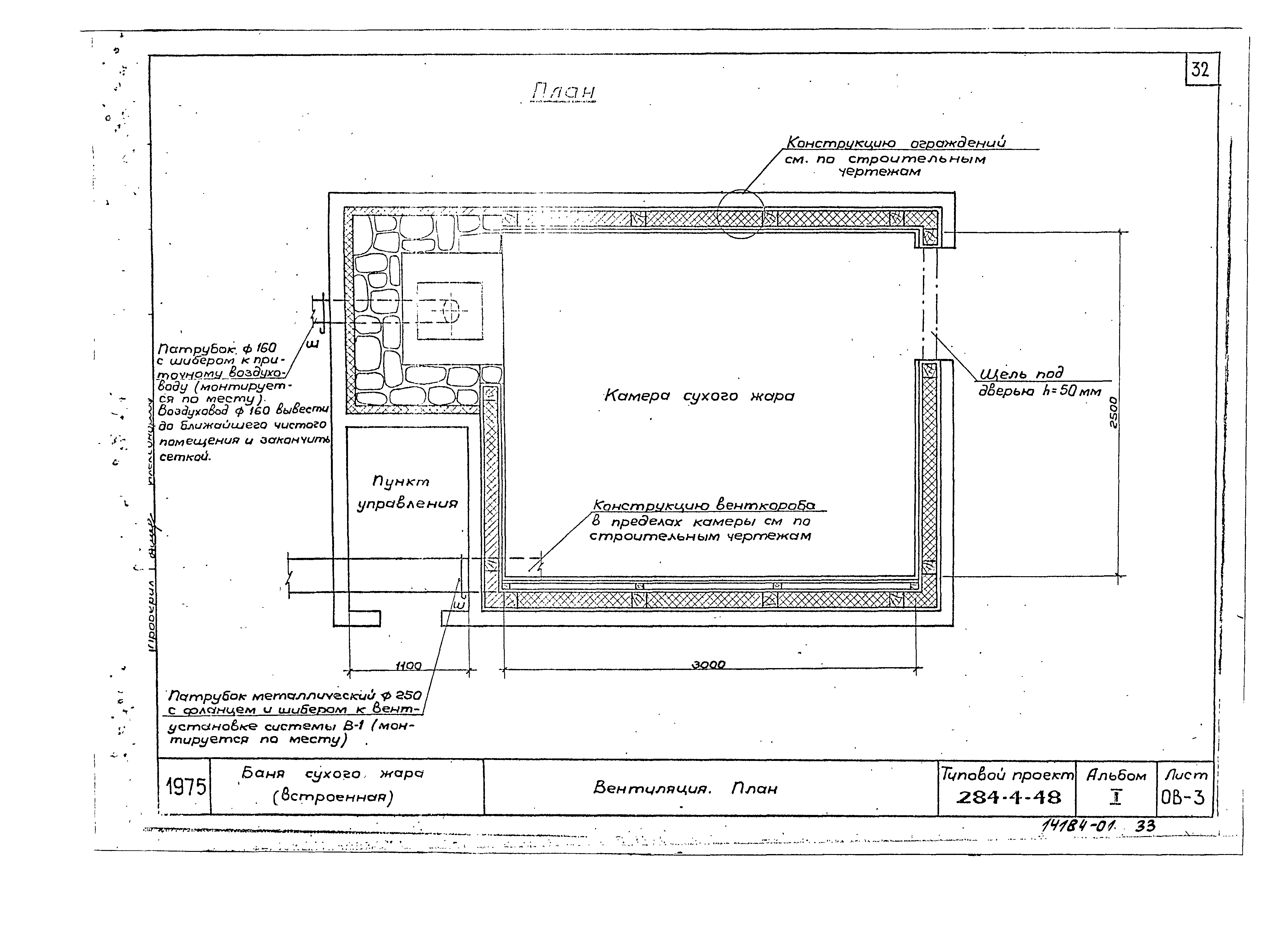
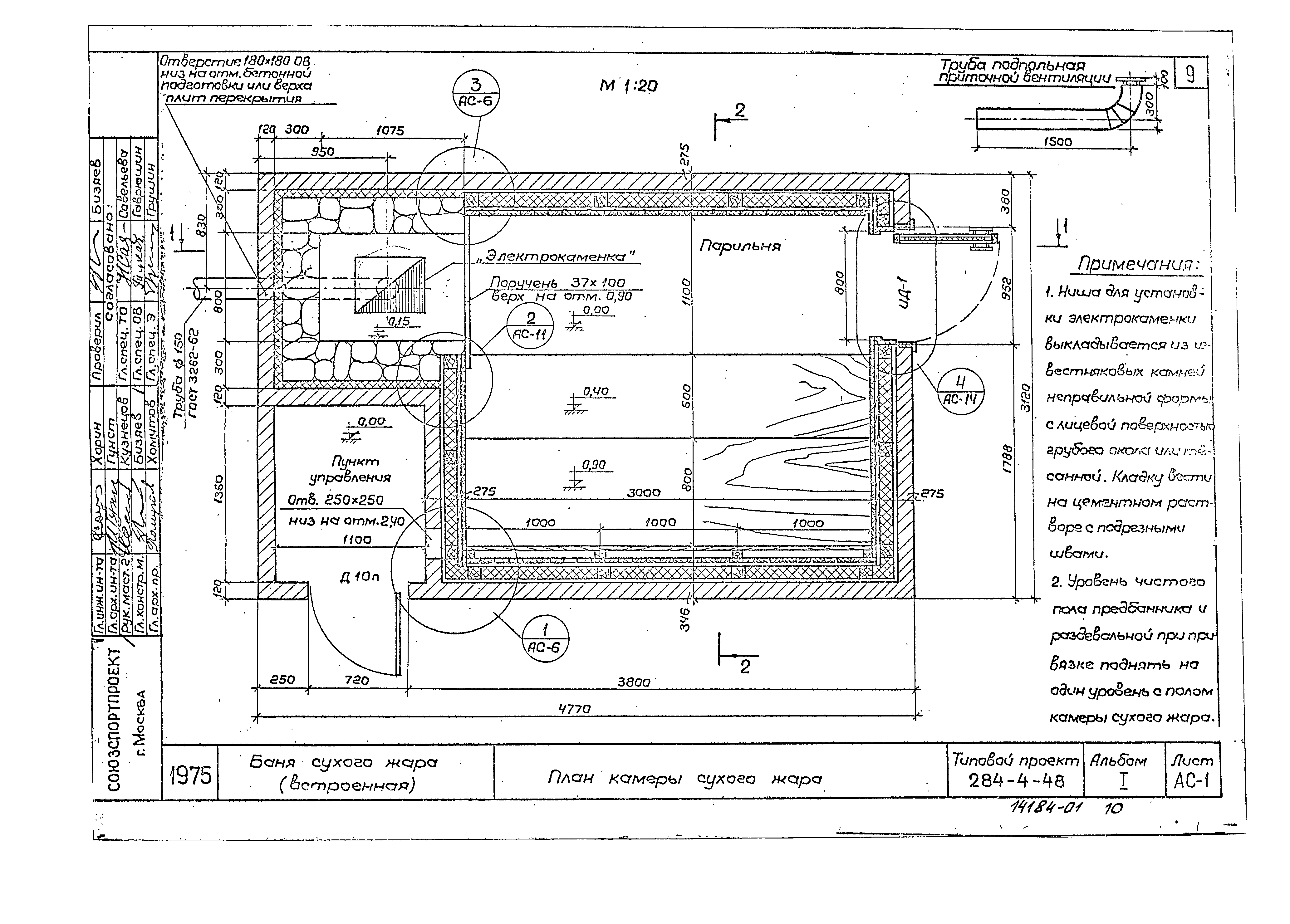
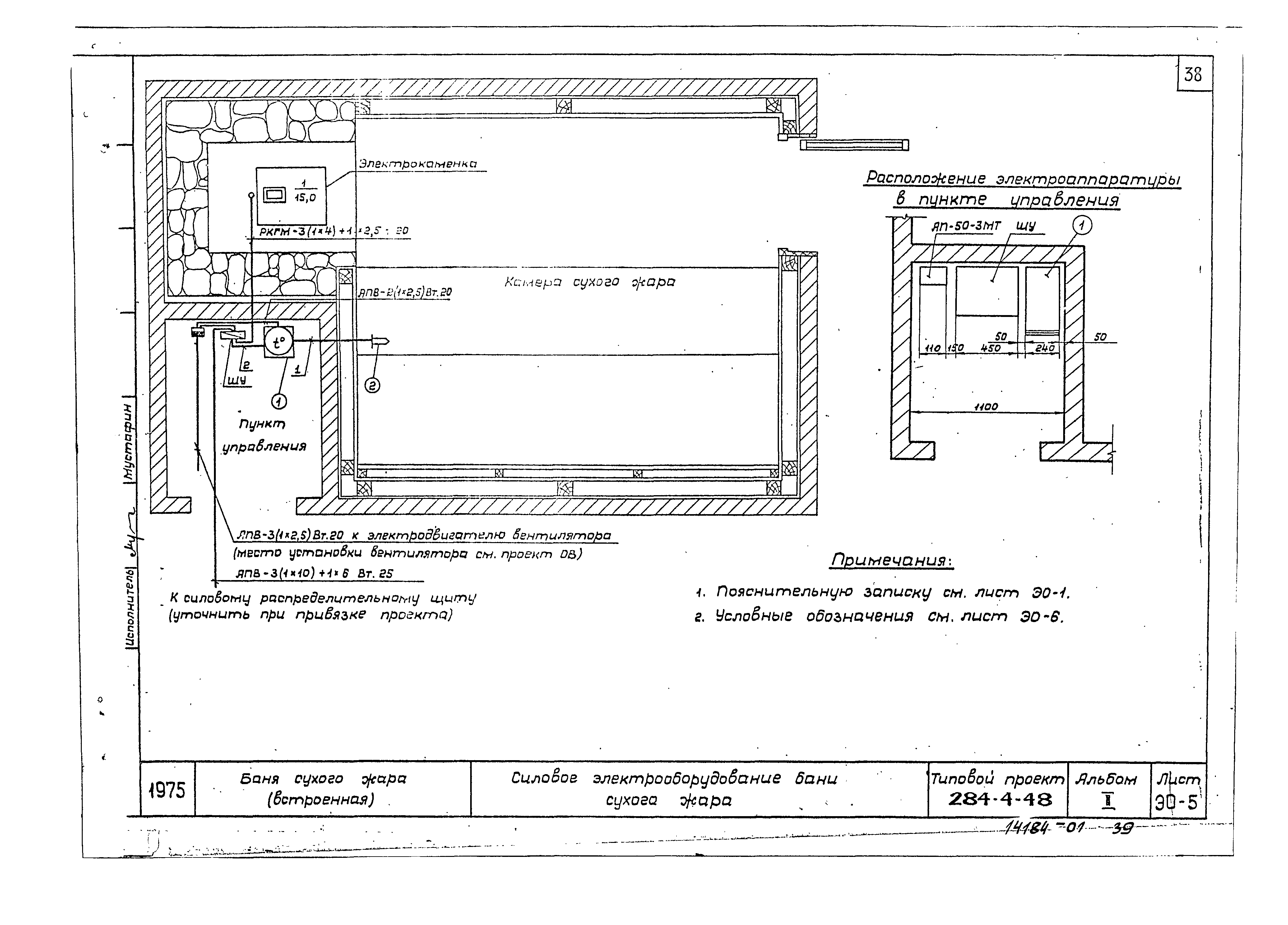
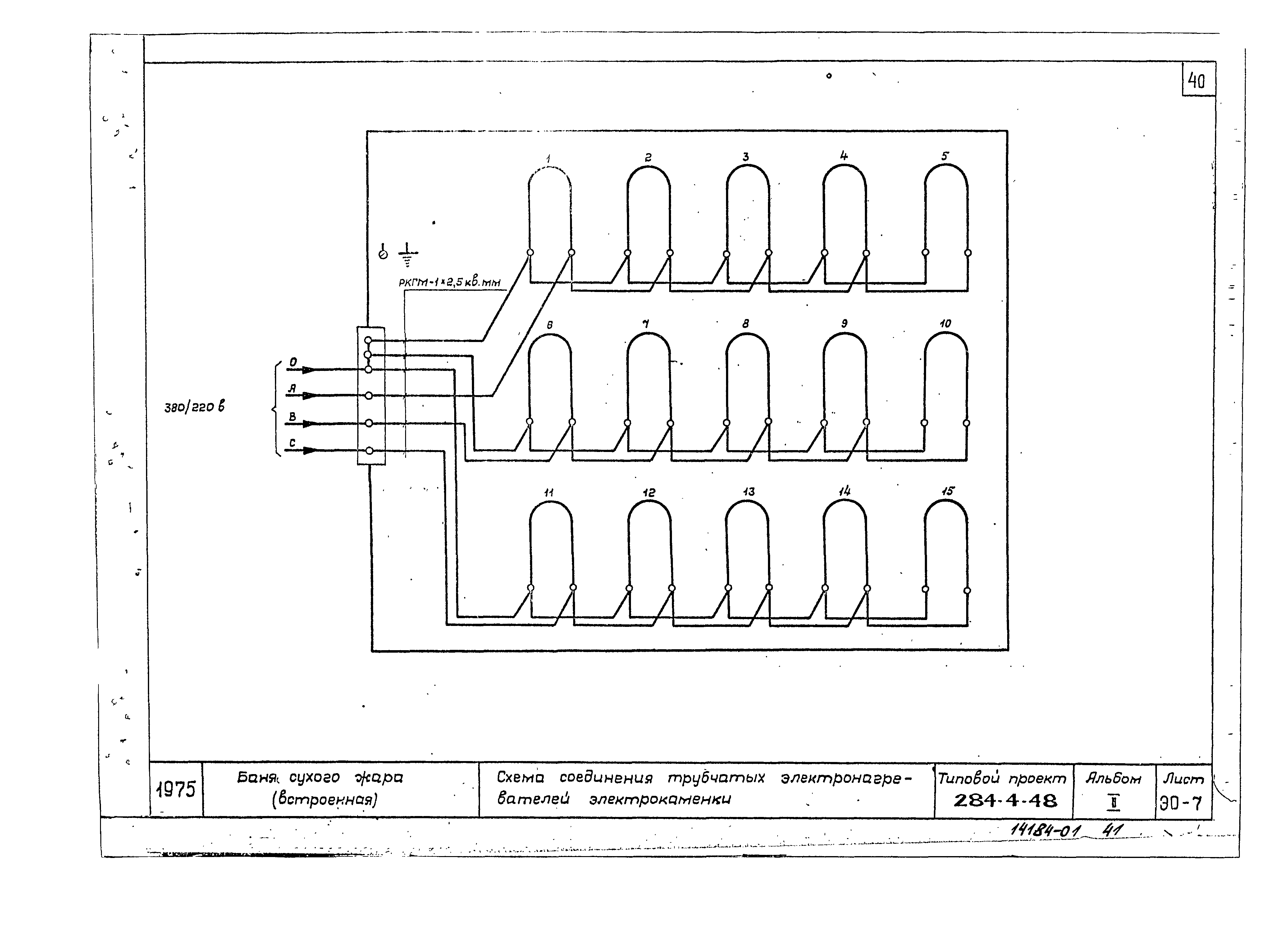
Область применения:В состав проекта входят разработки планировочных решений в различных вариантах размещения, архитектурные и конструктивные решения по камере сухого жара и конструктивные решения по электрокамину-каменке
Разработан: Союзспортпроект Спорткомитета СССР
Утверждён:27.02.1976 Госгражданстрой (Gosgrazhdanstroy 50)
Типовой проект 284-4-48Типовой проект 284-4-48Типовой проект 284-4-48Типовой проект 284-4-48Типовой проект 284-4-48Типовой проект 284-4-48Типовой проект 284-4-48Типовой проект 284-4-48Типовой проект 284-4-48Типовой проект 284-4-48Типовой проект 284-4-48Типовой проект 284-4-48Типовой проект 284-4-48Типовой проект 284-4-48Типовой проект 284-4-48Типовой проект 284-4-48Типовой проект 284-4-48Типовой проект 284-4-48Типовой проект 284-4-48Типовой проект 284-4-48Типовой проект 284-4-48Типовой проект 284-4-48Типовой проект 284-4-48Типовой проект 284-4-48Типовой проект 284-4-48Типовой проект 284-4-48Типовой проект 284-4-48Типовой проект 284-4-48Типовой проект 284-4-48Типовой проект 284-4-48Типовой проект 284-4-48Типовой проект 284-4-48Типовой проект 284-4-48Типовой проект 284-4-48Типовой проект 284-4-48Типовой проект 284-4-48Типовой проект 284-4-48Типовой проект 284-4-48Типовой проект 284-4-48Типовой проект 284-4-48Типовой проект 284-4-48Типовой проект 284-4-48Типовой проект 284-4-48Типовой проект 284-4-48Типовой проект 284-4-48