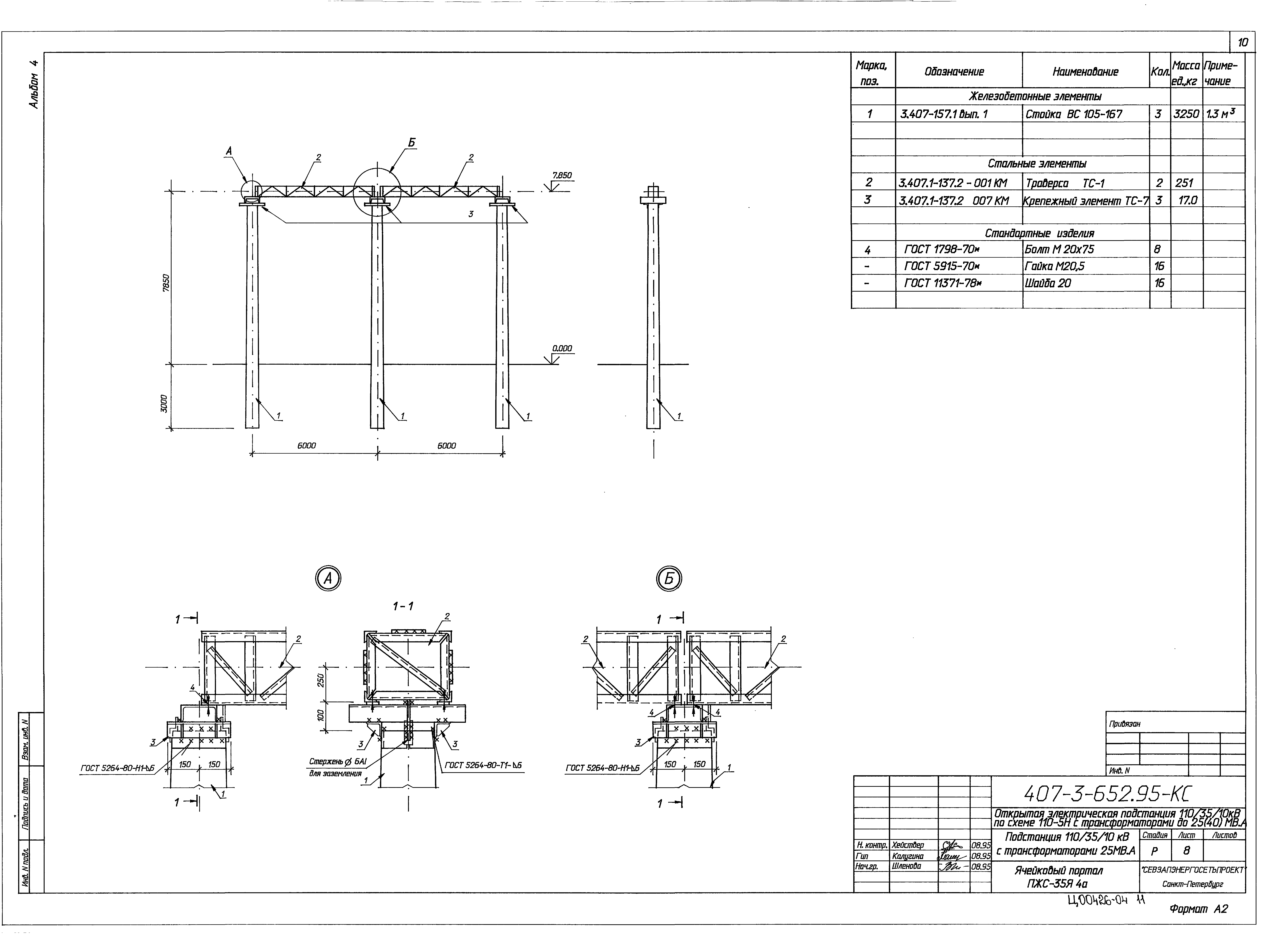
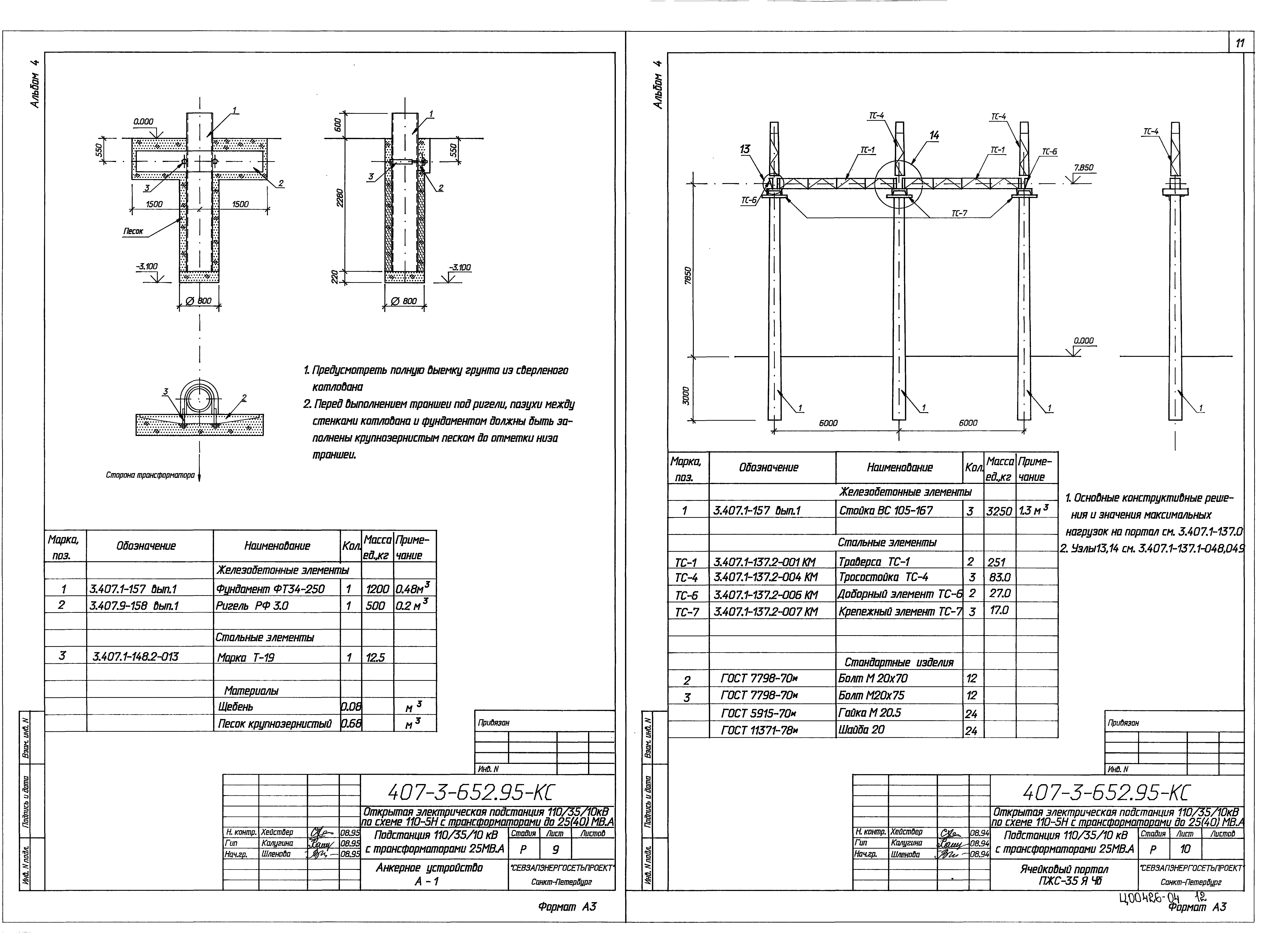
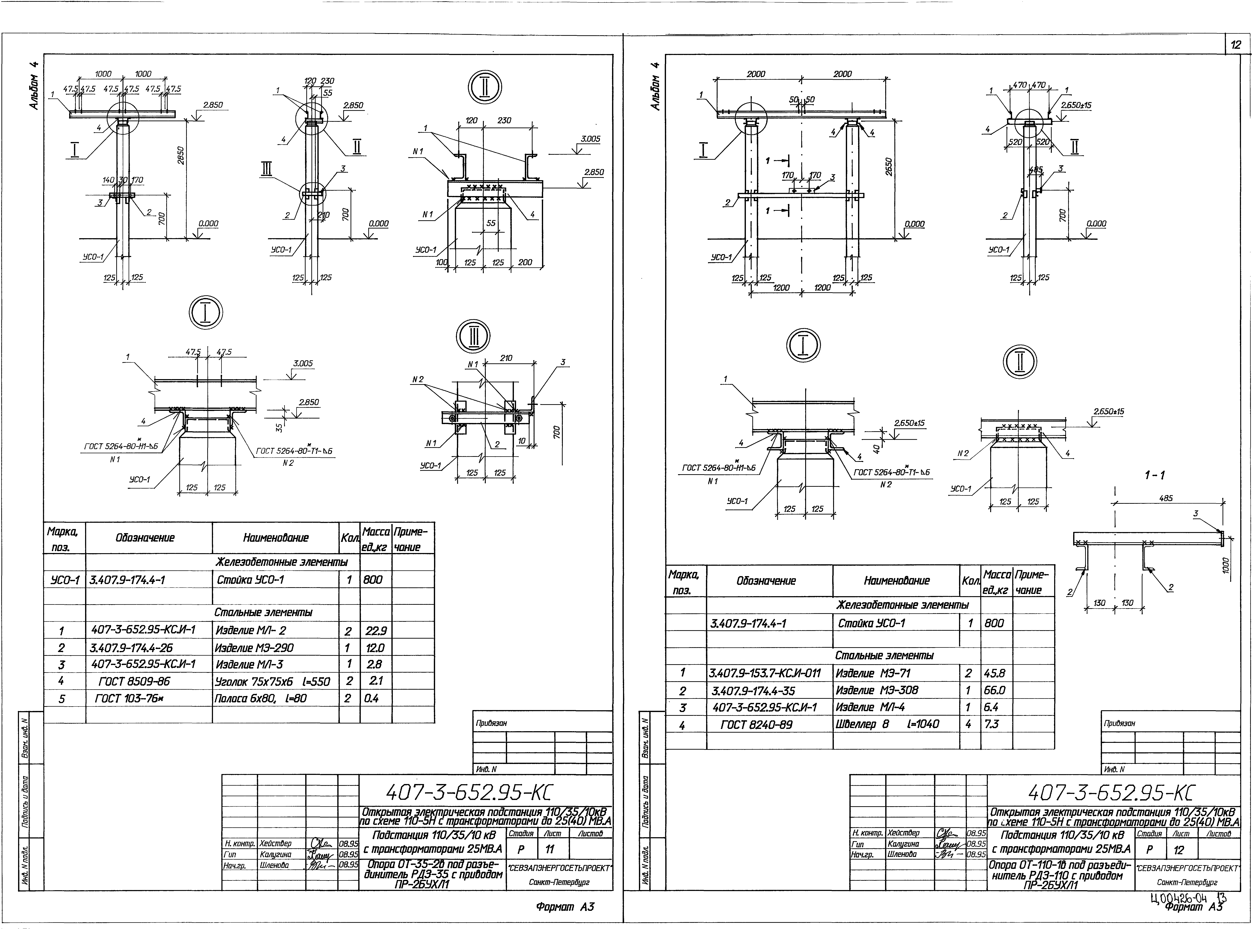
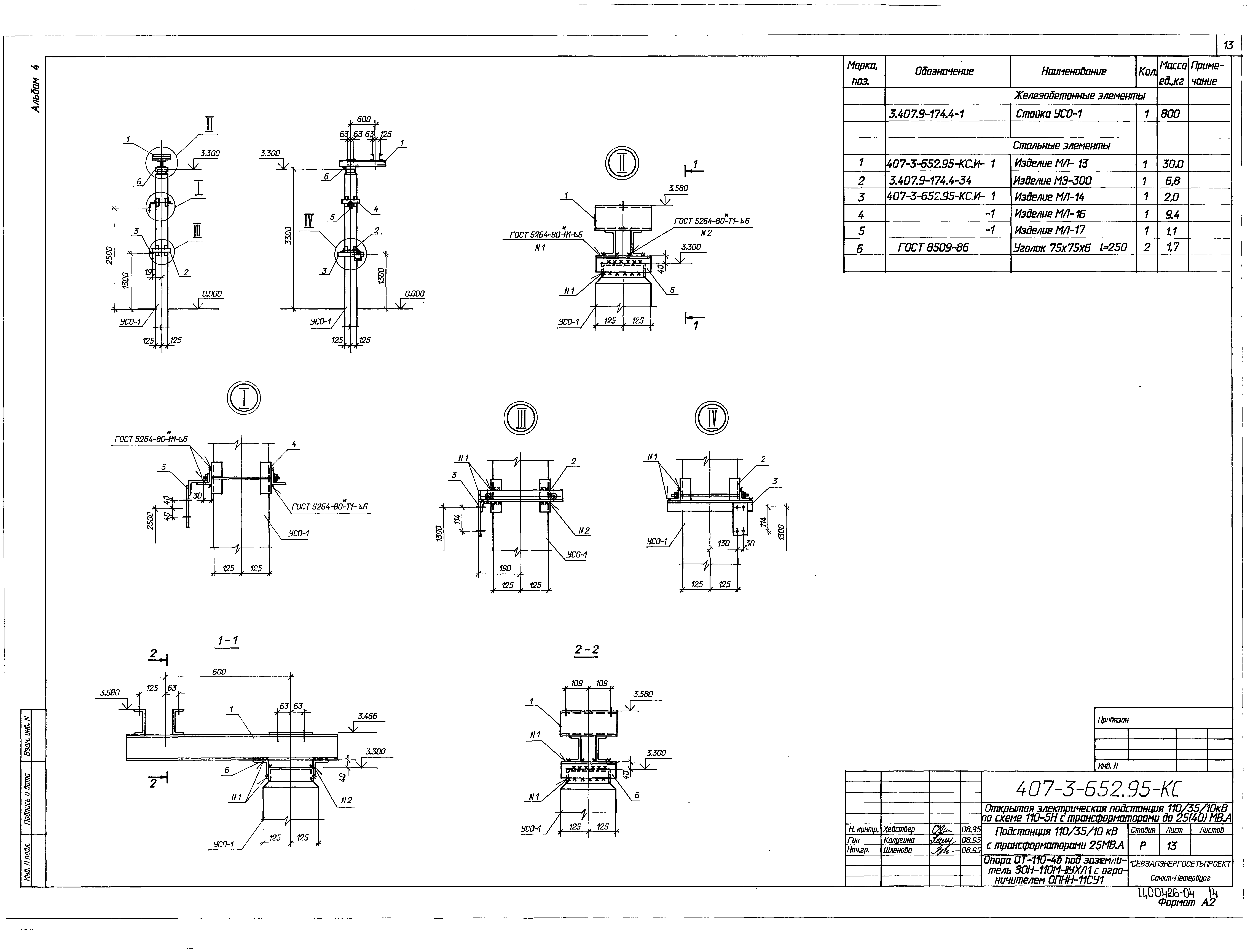
Скачать Типовой проект 407-3-652.95 Альбом 4. Строительные конструкции. Строительные изделия. Ведомость потребности в материалахДата актуализации: 01.01.2021
|
| Обозначение: | Типовой проект 407-3-652.95 |
| Обозначение англ: | 407-3-652.95 |
| Статус: | не определен законодательством |
| Название рус.: | Альбом 4. Строительные конструкции. Строительные изделия. Ведомость потребности в материалах |
| Дата добавления в базу: | 01.09.2013 |
| Дата актуализации: | 01.01.2021 |
| Дата введения: | 04.10.1995 |
| Дата окончания срока действия: | 30.06.2003 |
| Разработан: | Севзапэнергосетьпроект |
| Утверждён: | 04.10.1995 Минтопэнерго России (Russian Federation Mintopenergo 1) |


































