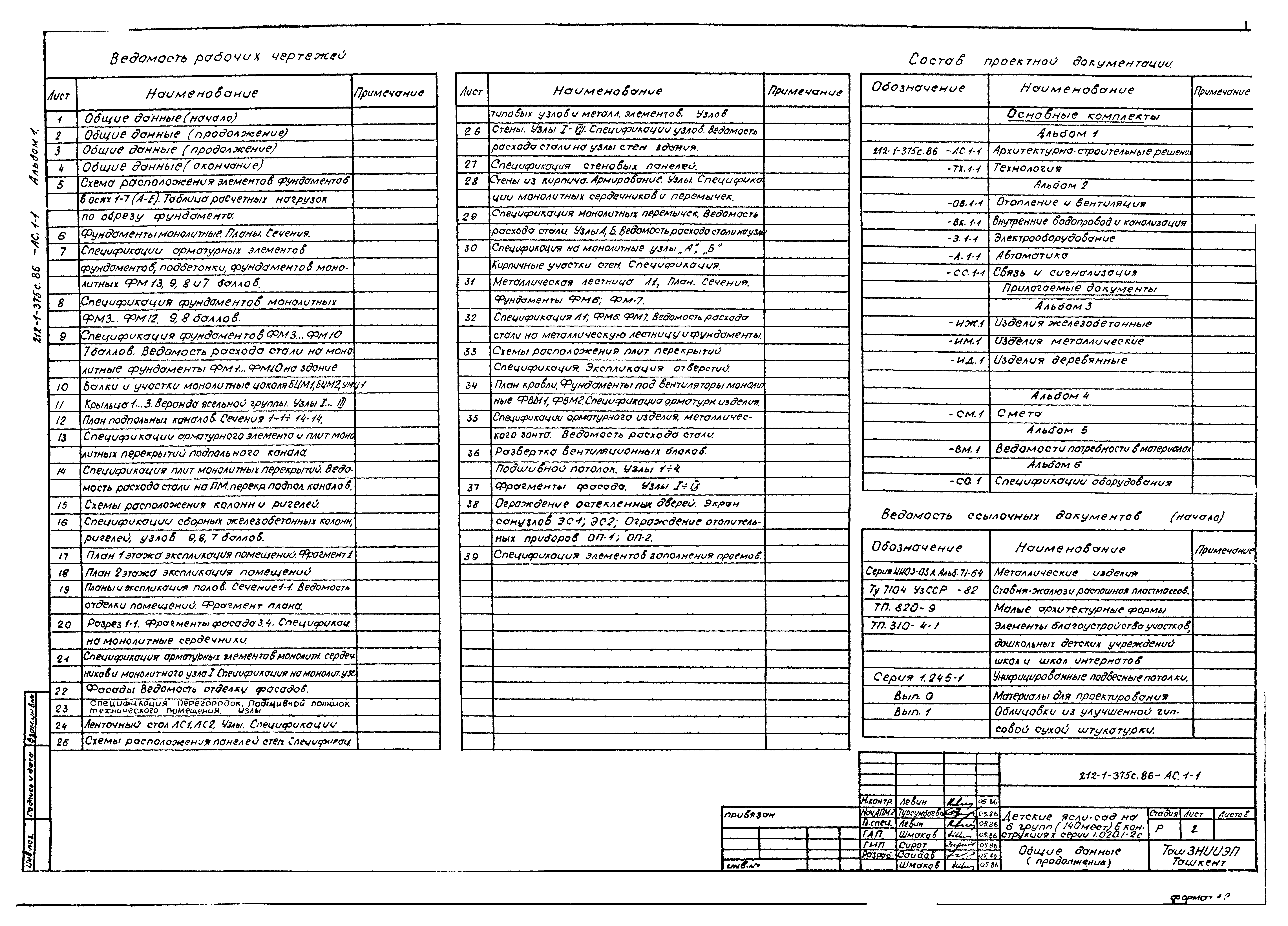
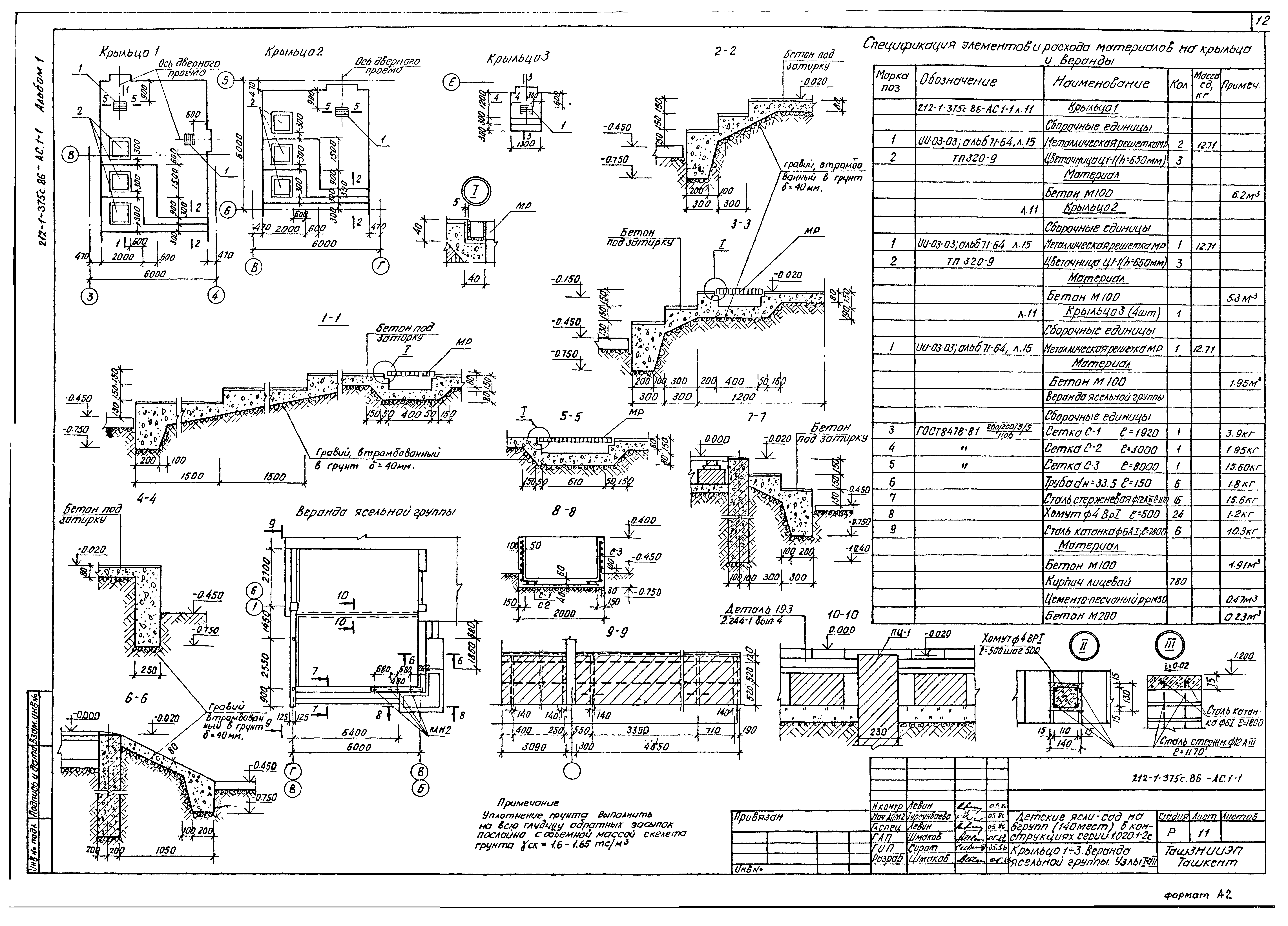
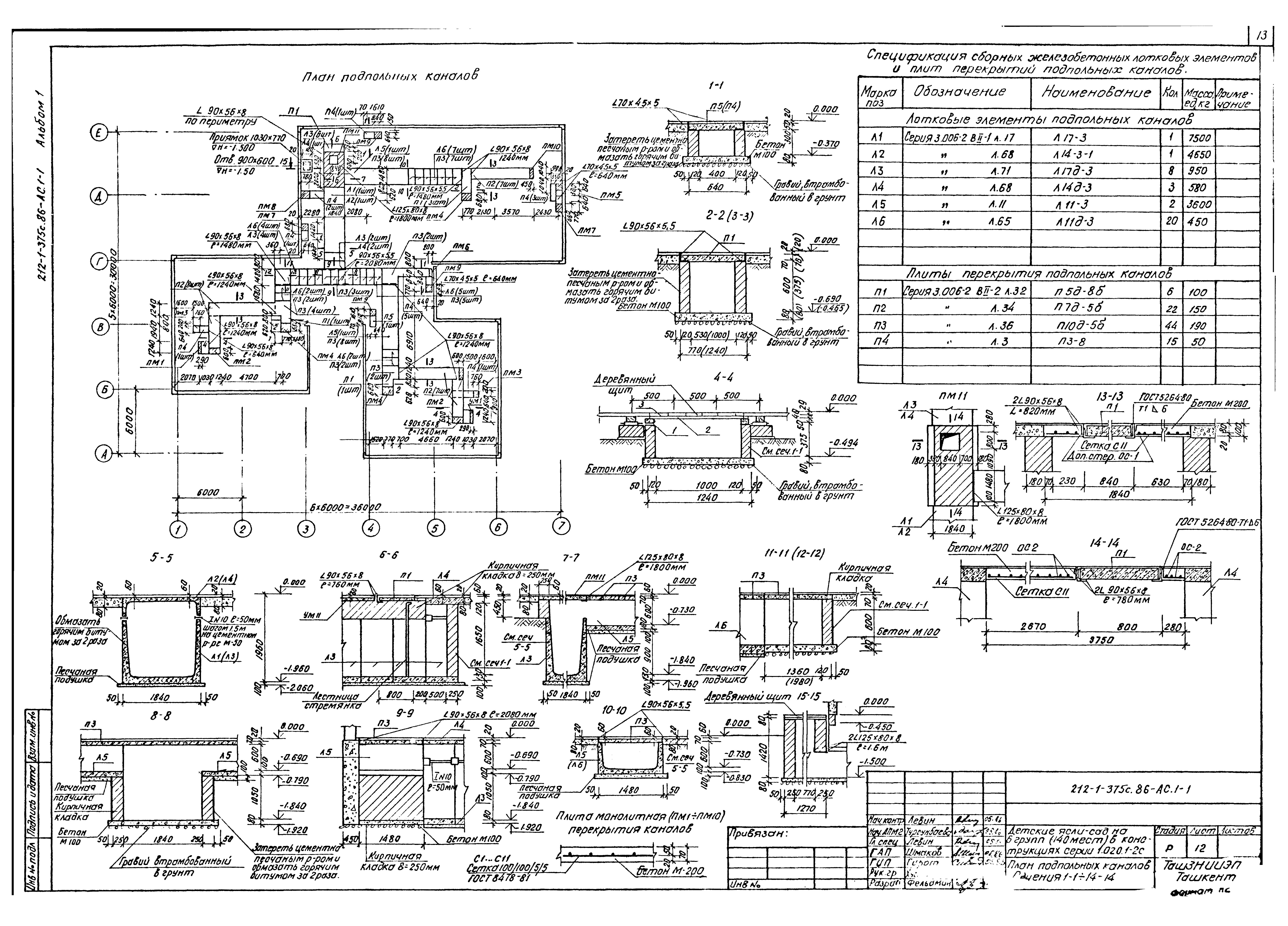
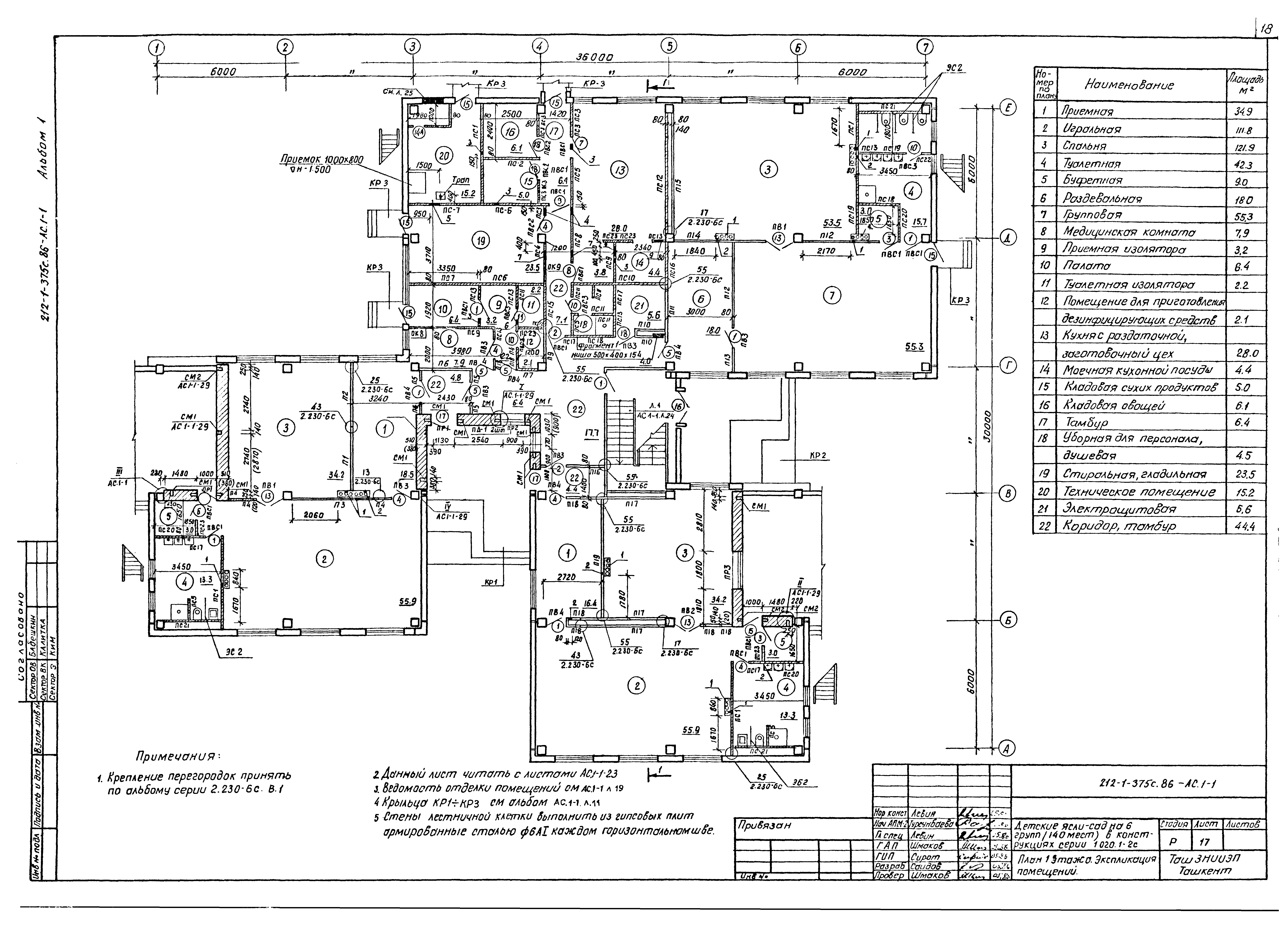
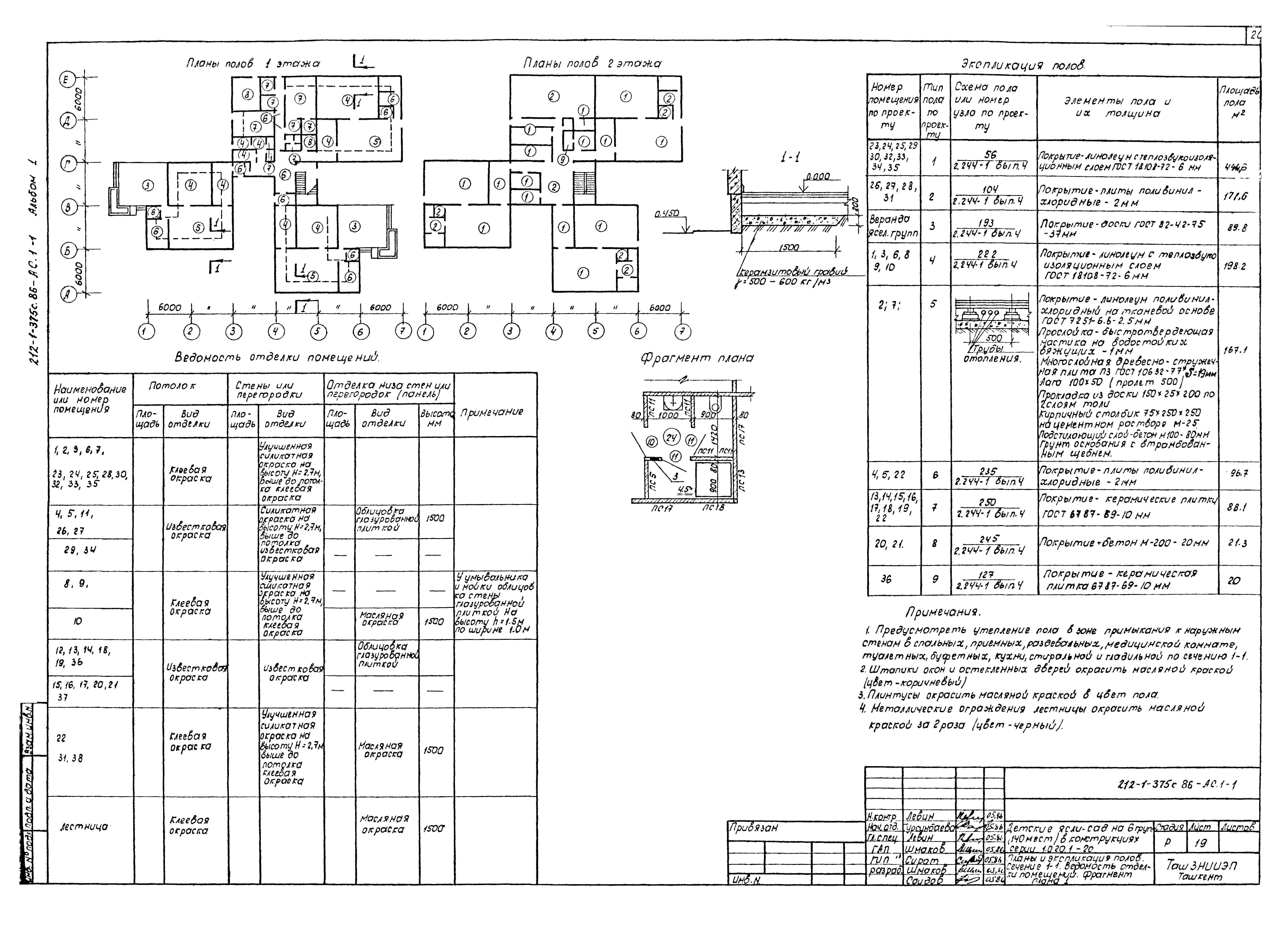
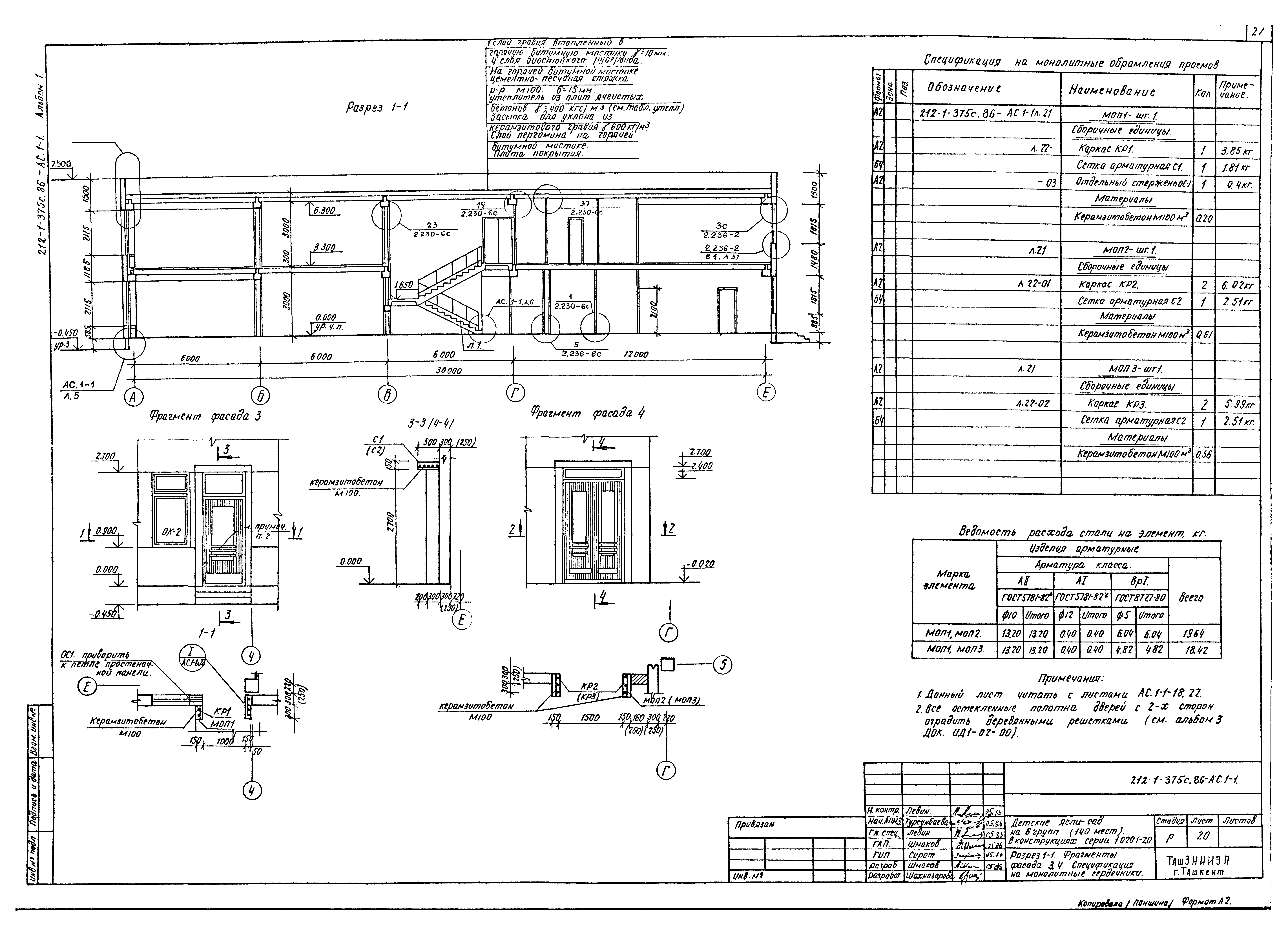
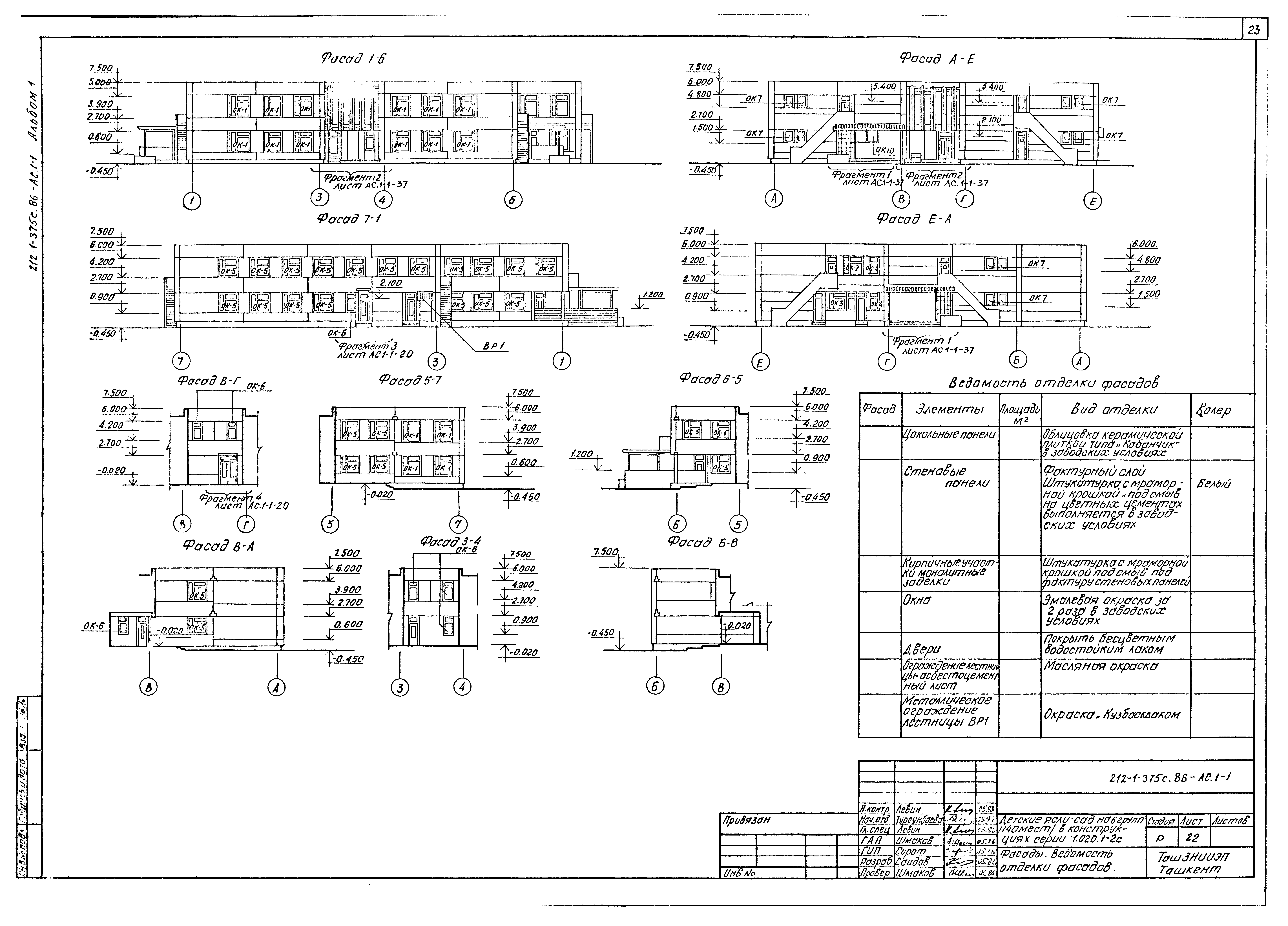
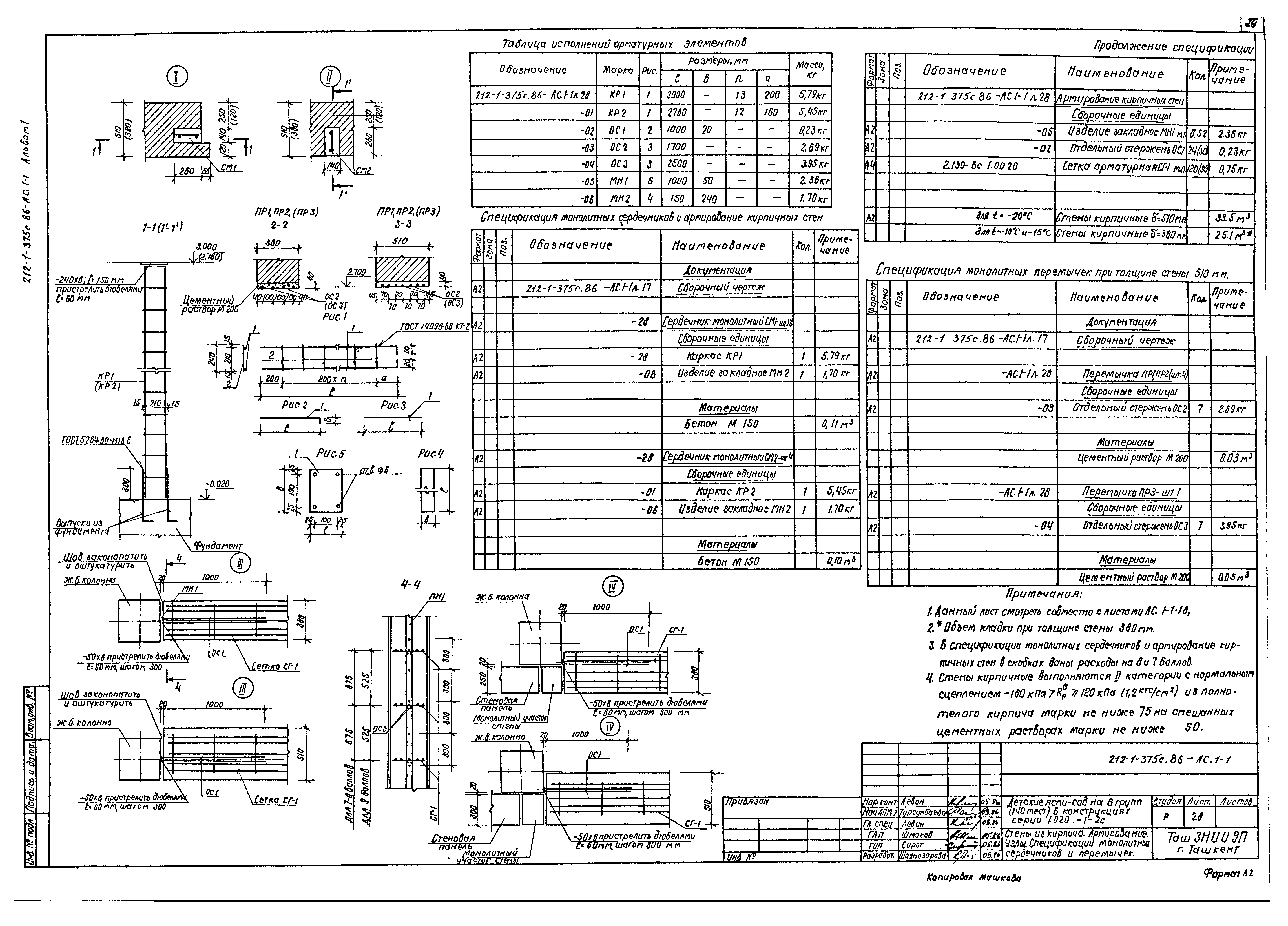
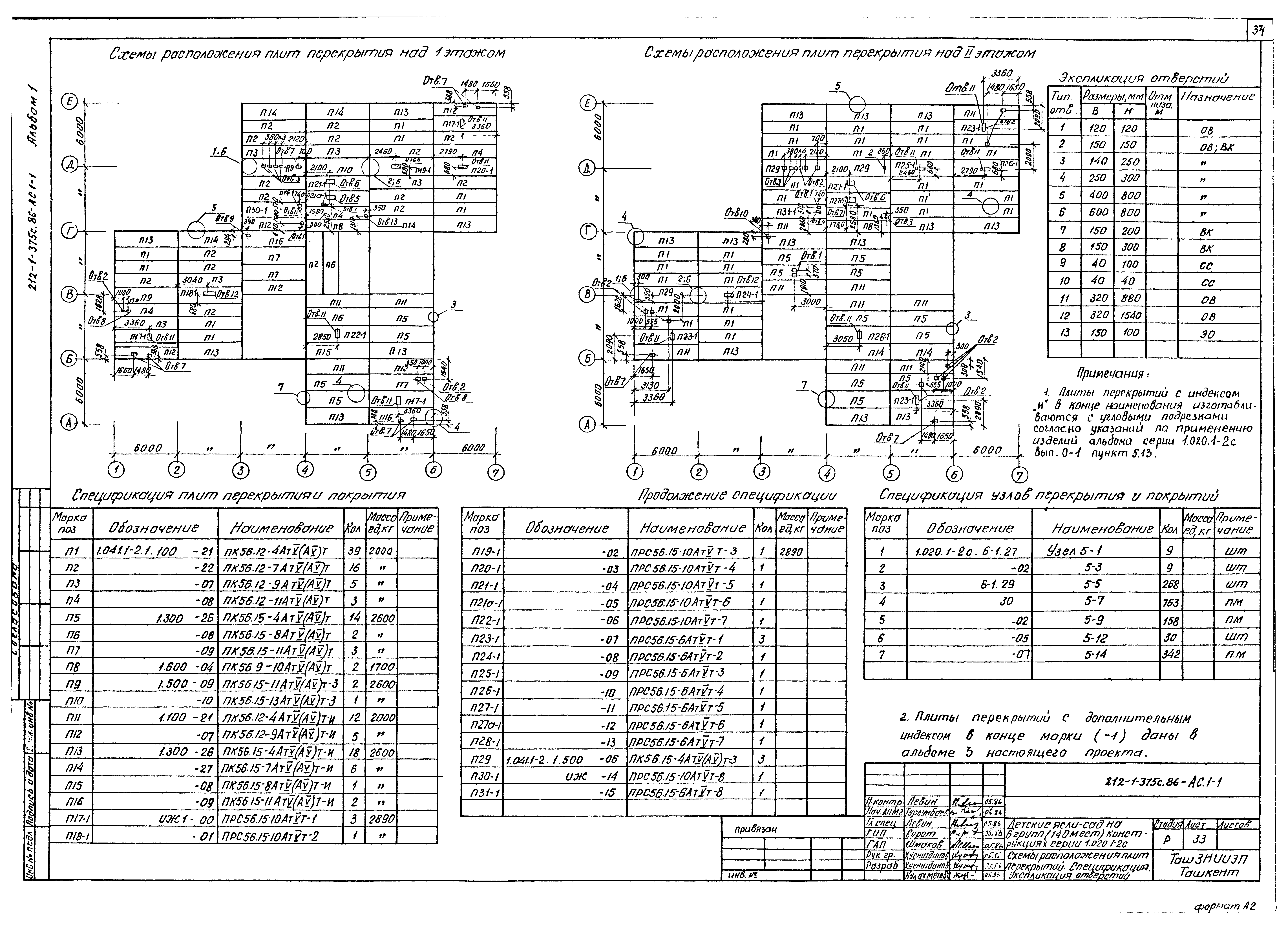
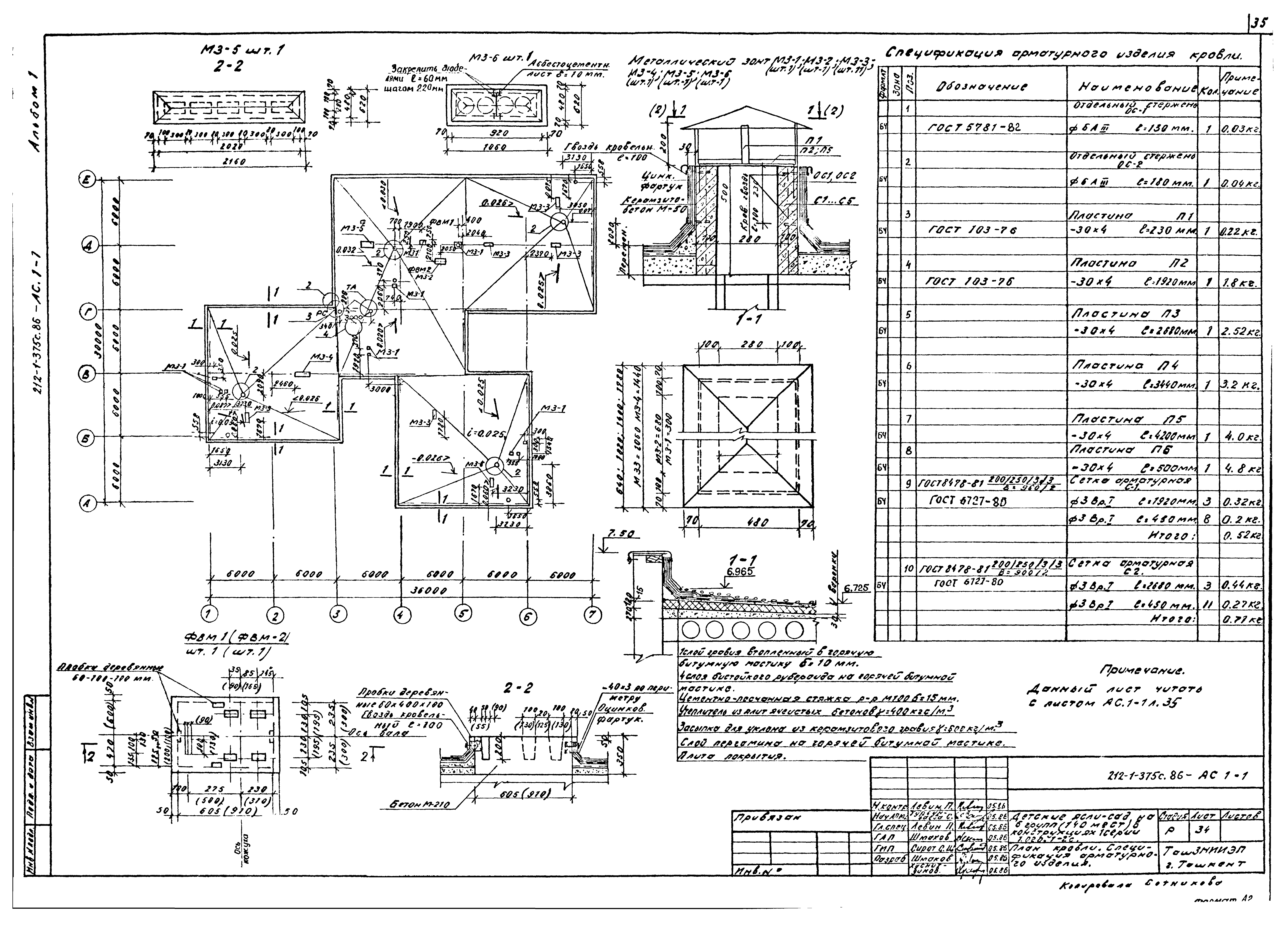
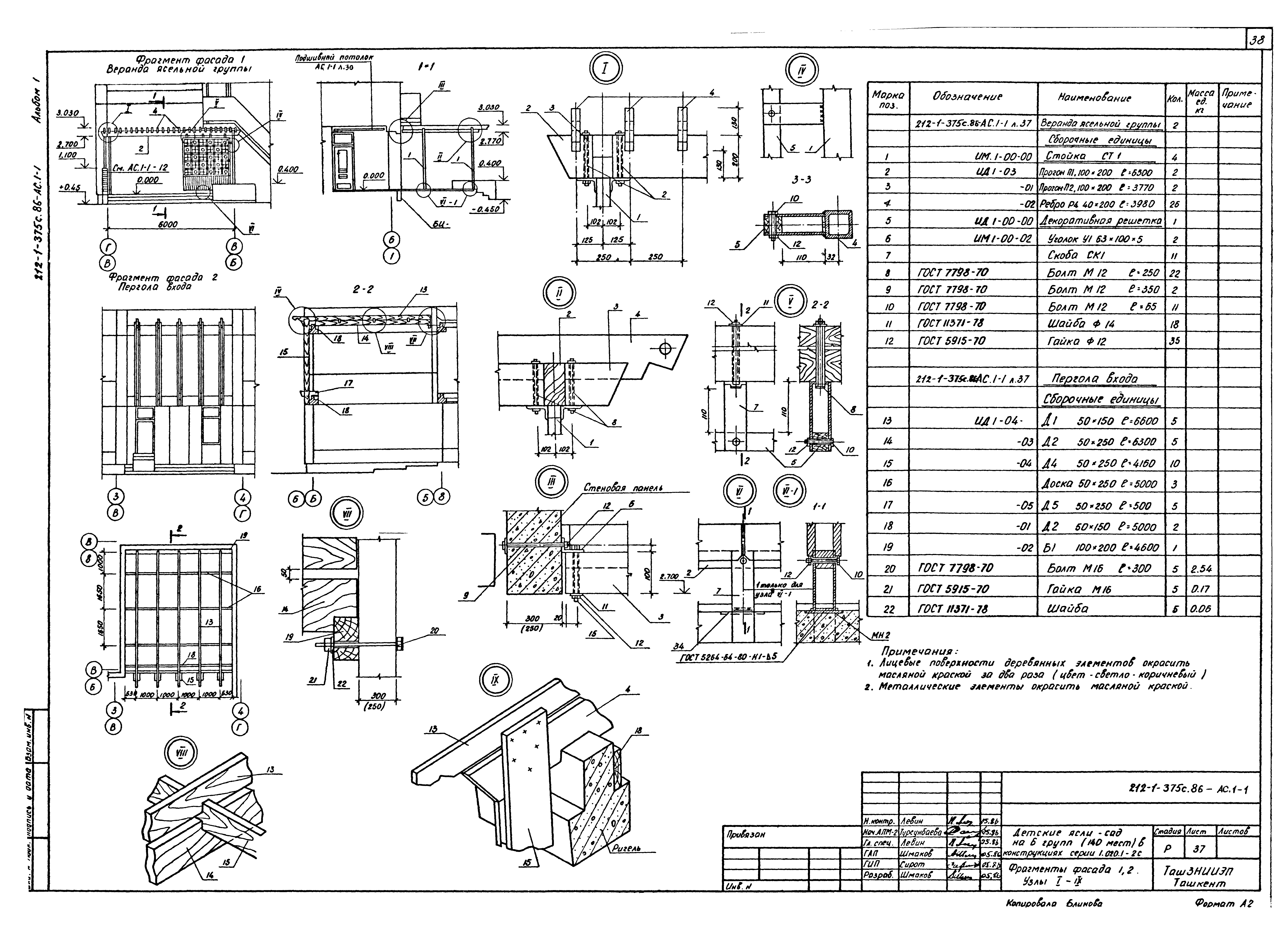
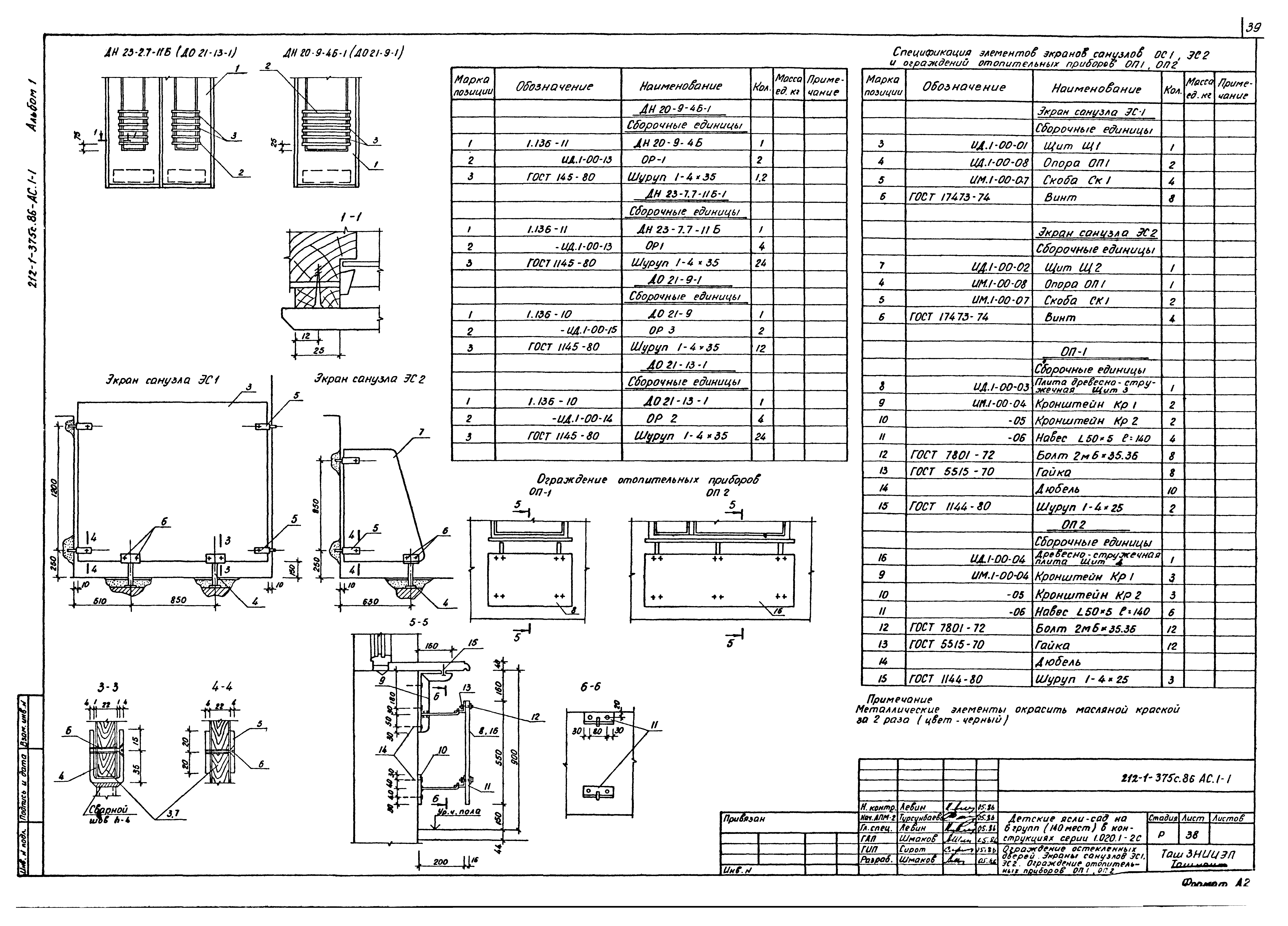
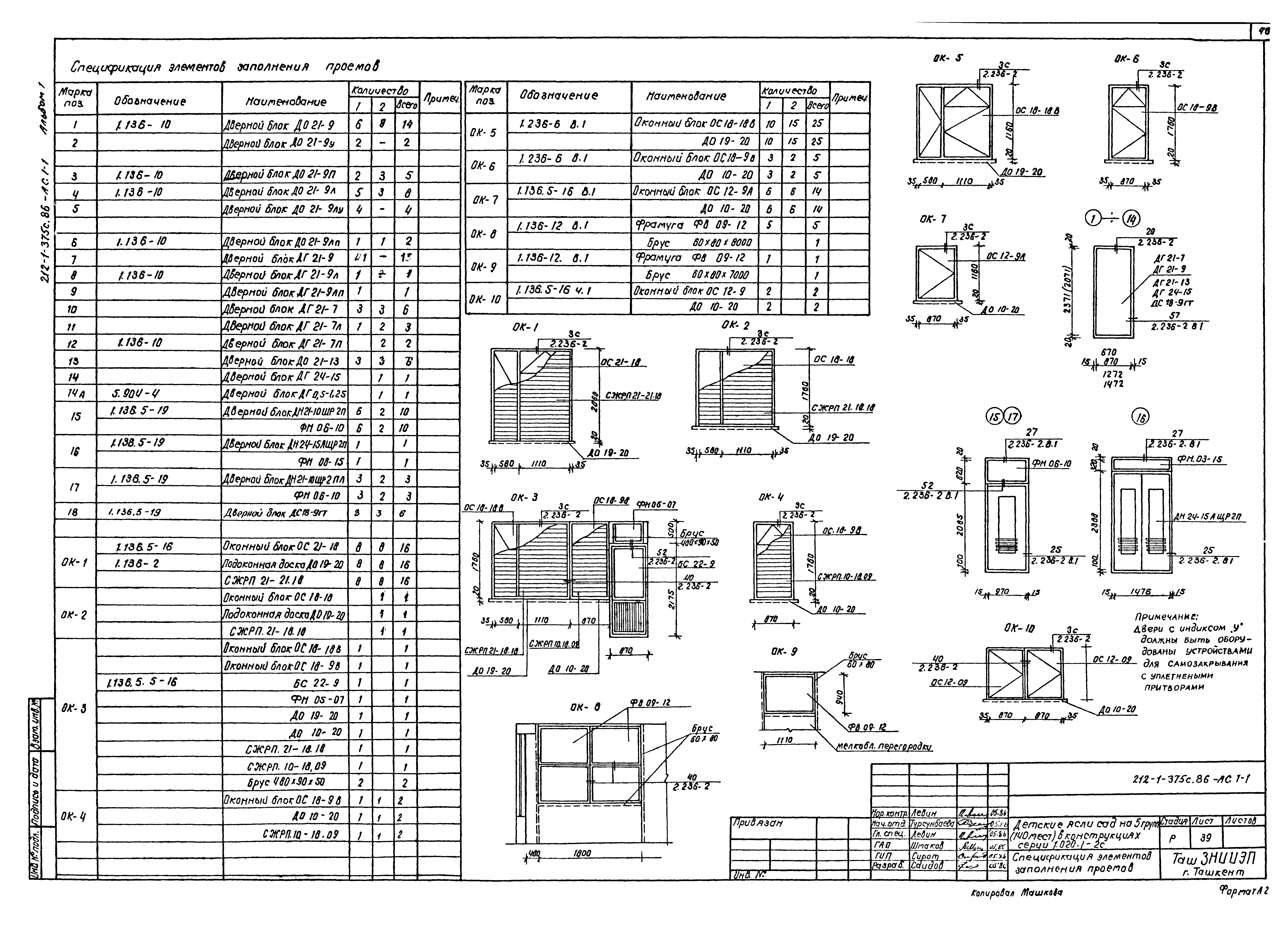
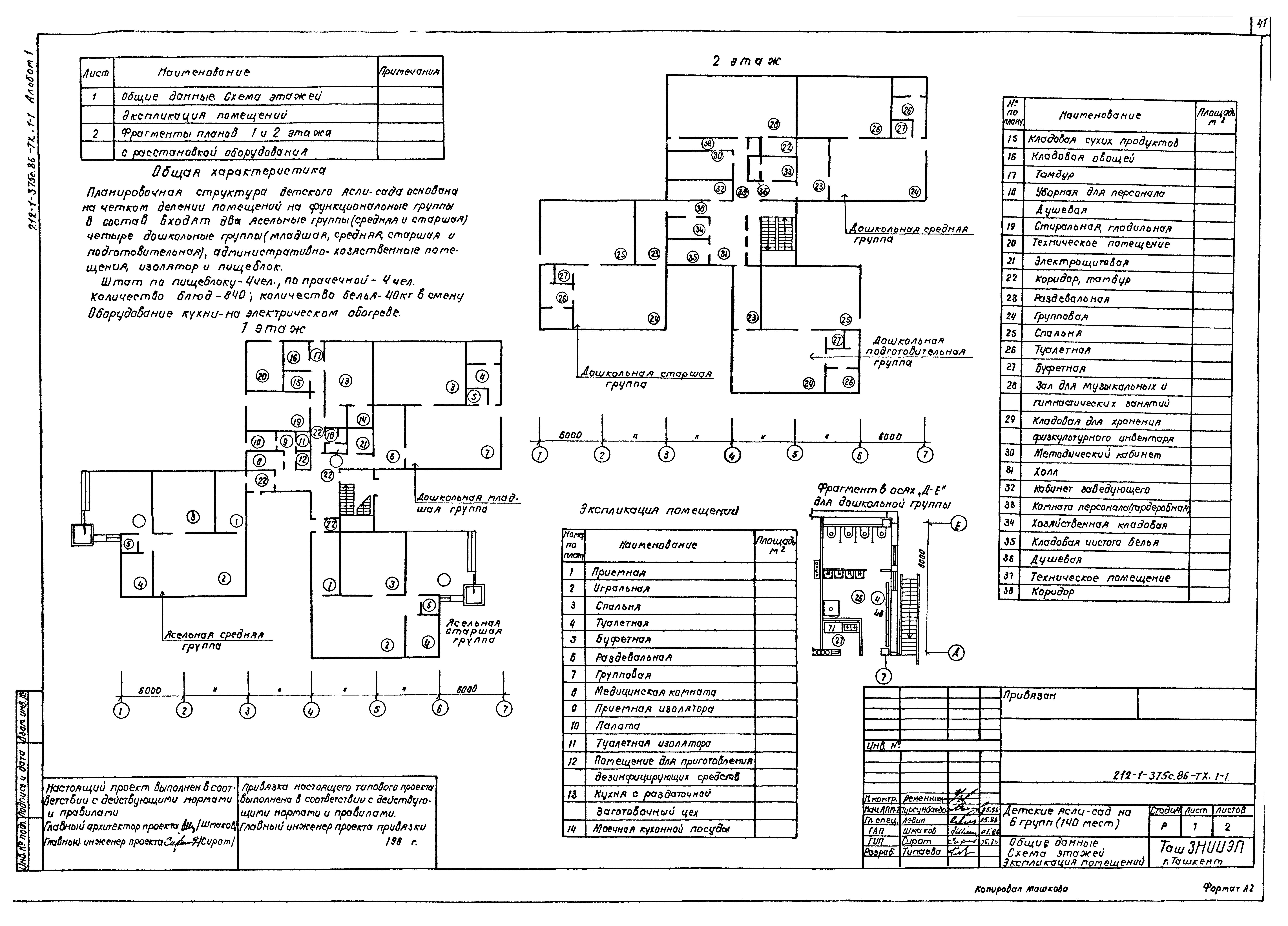
Скачать Типовой проект 212-1-375с.86 Альбом 1. Архитектурно-строительные решения. ТехнологияДата актуализации: 01.01.2021 Типовой проект 212-1-375с.86
Альбом 1. Архитектурно-строительные решения. Технология| Обозначение: | Типовой проект 212-1-375с.86 | | Обозначение англ: | 212-1-375с.86 | | Статус: | не действует | | Название рус.: | Альбом 1. Архитектурно-строительные решения. Технология | | Дата добавления в базу: | 01.09.2013 | | Дата актуализации: | 01.01.2021 | | Разработан: | ТашЗНИИЭП Госгражданстроя
| | Утверждён: | 30.08.1982 Госгражданстрой (Gosgrazhdanstroy 238)
|
                                        
|