Скачать Серия 3.503.1-81 Выпуск 5-5. Дополнение 1. Балки пролетного строения длиной 24 м цельноперевозимые с натяжением на упоры, изготавливаемые в опалубке балок серии 3.503-12 вып.19. Рабочие чертежиДата актуализации: 01.01.2021
|
| Обозначение: | Серия 3.503.1-81 |
| Обозначение англ: | Series 3.503.1-81 |
| Статус: | не определен законодательством |
| Название рус.: | Выпуск 5-5. Дополнение 1. Балки пролетного строения длиной 24 м цельноперевозимые с натяжением на упоры, изготавливаемые в опалубке балок серии 3.503-12 вып.19. Рабочие чертежи |
| Дата добавления в базу: | 01.09.2013 |
| Дата актуализации: | 01.01.2021 |
| Дата введения: | 25.03.1988 |
| Дата окончания срока действия: | 30.06.2003 |
| Область применения: | Настоящие рабочие чертежи разработаны в дополнение к чертежам серии 3.503.1-81 выпуск 5-5 для изготовления балок пролетных строений длиной 24 м в имеющихся на заводах ЖБК опалубках балок отмененной серии 3.503-12 выпуск 19 инв. №384/46 |
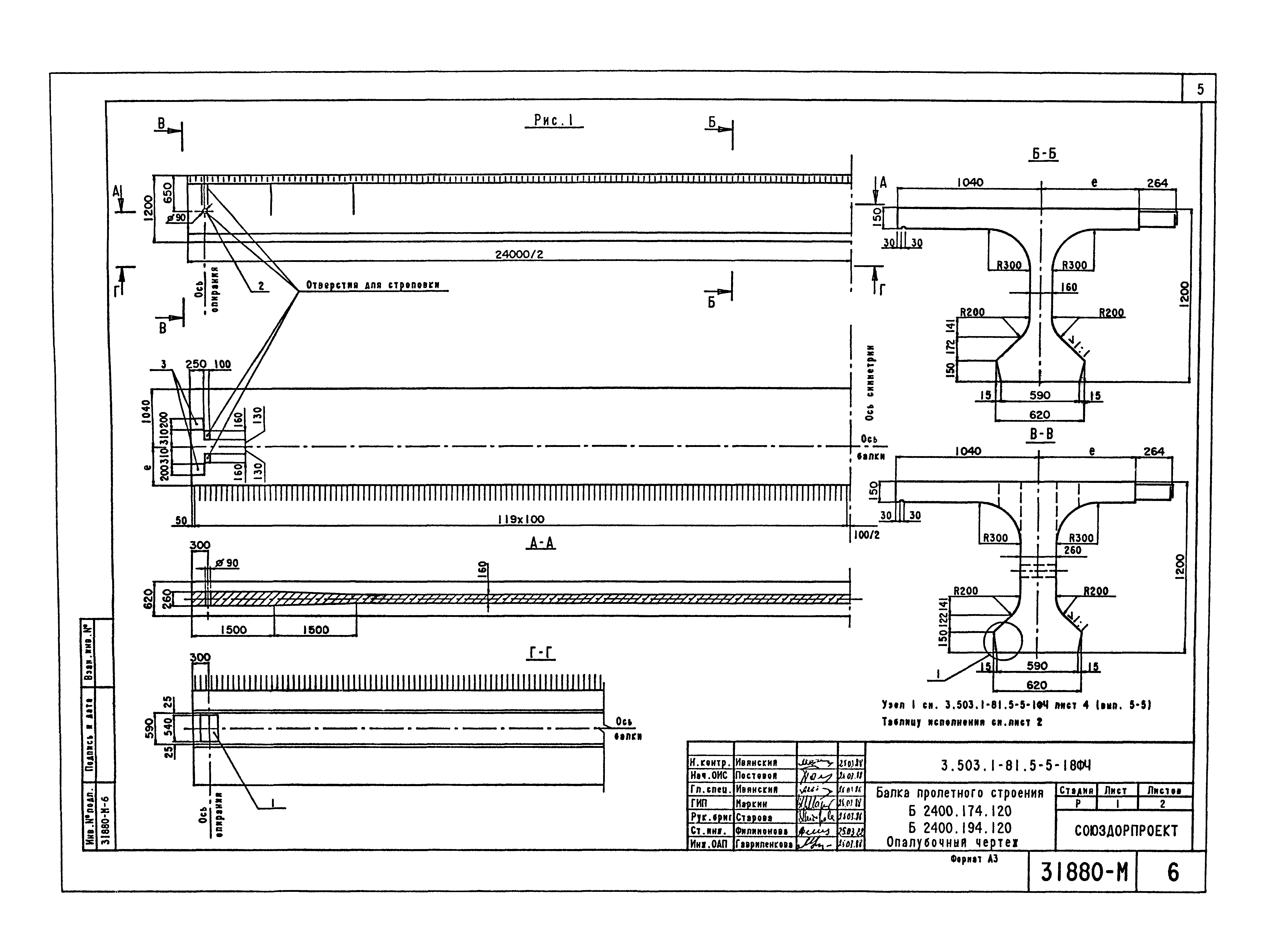
| Оглавление: | 3.503.1-81.5-5доп Содержание 3.503.1-81.5-5-ТТ доп Технические требования 3.503.1-81.5-5-18ФЧ Балка пролетного строения Б 2400.174.120, Б 2400.194.120. Опалубочный чертеж 3.503.1-81.5-5-18 Балка пролетного строения Б 2400.174.120, Б 2400.194.120 3.503.1-81.5-5-19 Ребро балки. Ненапрягаемая арматура класса A- III 3.503.1-81.5-5-20 Ребро балки. Ненапрягаемая арматура класса А-II 3.503.1-81.5-5-21ФЧ Балка пролетного строения Б 2400.140.120, Б2400.180.120. Опалубочный чертеж 3.503.1-81.5-5-21 Балка пролетного строения Б 2400.140.120, Б2400.180.120 3.503.1-81.5-5-22Сетка ребра CP120-TAII-4, CP120-TAIII-4 3.503.1-81.5-5-23 РС Ведомость расхода стали. Армирование пучками из стали класса В-II и ненапрягаемой арматурой класса A-III 3.503.1-81.5-5-24 РС Ведомость расхода стали. Армирование пучками из стали класса В-II и ненапрягаемой арматурой класса А-II |
| Разработан: | Союздорпроект Минтрансстроя |
| Утверждён: | 25.03.1988 Союздорпроект Минтрансстроя (Soyuzdorproject, Mintransstroy ) |













